










3.1 5
3,527 $1,152,000

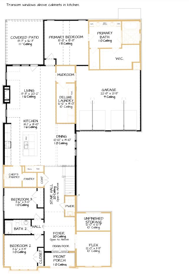
1ST FLOOR

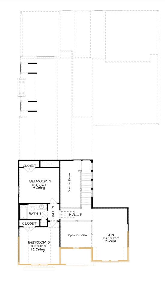
2ND FLOOR

![]()











3.1 5
3,527 $1,152,000








• TRIM
• CEILINGS
• DOORS
• WALL COLOR 1
• WALL COLOR 2
• WALL COLOR 3
•
make a grand entrance


DELUXE RAILING

a space for any need



















chef approved













beautiful, fashionable, durable







good food & good times


end your day on the highest note




refresh, relax, repeat








HARDWARE
FLOORING



DESIGNER SHOWER WALL

SHOWER FLOOR



bedtime story central




























half the bath, all the style

$1,580 Hardware


White with Gold Hardware
$1,580


MIRROR

refresh your look



FLOORING


