PORTAFOLIO CJ

Page 1

C J

O R
L I O C R I S T I N A J O A N A R Q U I T E C T U R A Y D I S E Ñ O D E I N T E R I O R E S
P
T A F O

993916667

CRISTINA JOAN ABANTO PAIVA

SOBRE MI:

¡Hola! Me llamo Cristina y mi gusto por la arquitectura inició desde que estaba en el colegio gracias a las ferias universitarias que visité

A lo largo de mi trayectoria como universitaria y practicante, me di cuenta de que me gustaba mucho el modelado de espacios interiores, es algo que me apasiona y lo cual deseo perfeccionar poco a poco.

PROGRAMAS

joansalucas20@gmail.com

APTITUDES

Creatividad Responsabilidad

Resiliencia

Honestidad

Proactividad Adaptabilidad

CONTACTO
Lima - Perú

CONDOMINIO BICENTENARIO

CONTENIDO

REMODELACIÓN DE LATARCHÉ

DISEÑO DE MUEBLE DIDÁCTICO

DISEÑO DE MOBILIARIO PARA RECEPCIÓN

TIENDA VISUMANS

SECTOR DE UN CEBE

OTROS RENDERS

ESTE PROYECTO FUE REALIZADO COMO PRACTICANTE

PARA LA CONSTRUCTORA MORENO LINCH, UBICADA EN TRUJILLO.

SE REALIZÓ UNA PROPUESTA DE DISEÑO INTERIOR

PARA LOS DEPARTAMENTOS Y ÁREAS COMUNES DEL CONDOMINIO EN BASE A LOS PLANOS EXISTENTES.

C O N D O M I N I O B I C E N T E N A R I O

REMODELACIÓN DE LATARCHÉ

LATARCHÉ ES UN RESTAURANTE UBICADO EN EL DISTRITO DE CARABAYLLO, LA PROPUESTA

BUSCA AMPLIAR LOS ESPACIOS Y BRINDAR UN AMBIENTE CÓMODO A LOS USUARIOS.

SE IMPLEMENTÓ UN ESTILO MÁS ATRACTIVO Y

ELEMENTOS COMO UN ESCENARIO Y

ACABADOS MÁS DINÁMICOS YA QUE EL CLIENTE DESEABA IMPLEMENTAR UN PUB.

IMÁGENES TOMADAS EN PROCESO DE REMODELACIÓN, PERSPECTIVAS IGUALES A LOS RENDERS.

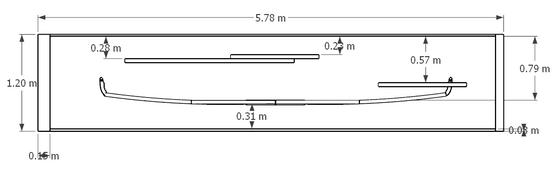
DISEÑO DE MUEBLE DIDÁCTICO

LA PROPUESTA SE BASA EN UN MOBILIARIO PARA DORMITORIO DE UNA NIÑA DE 8 AÑOS, EL ESTILO APLICADO ES ROMÁNTICO Y SE CONSIDERÓ LA SEGURIDAD DEL MUEBLE PARA EL USUARIO

PLANTA MUEBLE DESPLEGADO - CERRADO CORTE

ELEVACIONES

SUPERFICIE NO POROSA

PINTURA NO CONTIENE COMPONENTES TÓXICOS

RESISTENTE, SIN RIESGO A CAERSE

DISEÑO DE MOBILIARIO PARA RECEPCIÓN

PROPUESTA DE MOBILIARIO EN BASE EMPRESA "TOCOMADERA".

EL CONCEPTO DE BASÓ EN EL DI SOBRESALIENTE DEMUESTRA LA ENERG INTERCECCIÓN SON OBSTÁCULOS QU

Es uctura de drywal con paca de yeso RF con acabado esuco coor cementopuldo

MuebedeMDFenplanchasconacabado tpo formka con coor blanco con repserodeaencón

Uso de la técnica del machimbrado Uso de tornillos para la unión entre las planchas deMDF

La estructura de drywall se une mediante los listones de mdf en el mueble con tornillo de latalargo

Uso de tarugos de madera a presión con colasintética

PLANTA ORTE
Zócaode5cm Table o postformado MDF e 4cm enchapado de ormka am ech coor evo e
D1 D2 D2 D3 D4 D2
D3 D4

TIENDA VISUMANS

VISUMANS ES UNA TIENDA DE ROPA ENFOCADA EN UNIVERSITARIOS, OFRECIENDO UN ESTILO URBANO, POR ELLO LA PROPUESTA DE DISEÑO SE BASÓ EN ELLO TAMBIÉN SE PROPUSO UN DISEÑO DE ESCAPARATE.

P A L E T A D E C O L O R E S

EXHIBICIÓN ESCAPARATE DE ISLA ESTANTES Y COLGADORES DESCANSO

RECEPCIÓN DEPÓSITO ESCAPARATE EN FACHADA

EN CUANTO AL ESC REPRESENTAR EL E LLEVA EL USUARIO ENFOCADO EN EL DEP TOMADO SE BASÓ EN ESTRATEGIA DE DISEÑO

TIPO DE ESCAPARATE:

VISTA AÉREA (MEDIDA)

( C O M P L E M E N T A R I O S A D Y A C E N T E S )
MANQU PEQUEÑOS MOCHLA ZAPATILLA MOCHILA MANQUI(1) MANIQUI(2) MANIQUI(3) MANIQUI(4) UBICACION DE PRODUCTOS

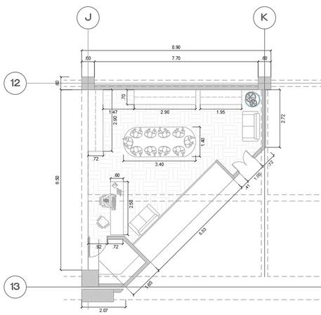
PLANO DETALLADO DE SECTOR BIBLIOTECA DE CEBE

EL PLANO OBSERVADO ES UN SECTOR DE 1000M2 SELECCIONADO, CON LA FINALIDAD DE PODER PRESENTAR LOS DETALLES DE LA ZONA DE LA BIBLIOTECA, ADMINISTRACIÓN, ALGUNAS AULAS Y PARTE DEL HALL PRINCIPAL

D-D
CORTE A-A CORTE B-B CORTE C-C CORTE

ELEVACIONES UNICAMENTE DEL SECTOR

LOS COLORES FUERON ELEGIDOS TOMANDO EN CUENTA LA PSICOLOGÍA DEL COLOR YA QUE ES UN CENTRO DE EDUCACIÓN BÁSICA ESPECIAL.

CORTES FUGADOS

OTROS RENDERS

Turn static files into dynamic content formats.

Create a flipbook
Issuu converts static files into: digital portfolios, online yearbooks, online catalogs, digital photo albums and more. Sign up and create your flipbook.