
philip
![]()

philip
is a design professional with an affinity towards architectural design, details, graphic design, environmentalism, and materiality. Early on, Philip was drawn towards the art of craft and trades, such as fine-art, woodworking, metal working and construction. These interests led to a period of exploration through various studies.
Philip’s architecture journey started in Orange County, California. After completing 2 years of art and architecture studies, Philip’s educational journey brought him to San Diego, California where he completed his Bachelor of Architecture degree with a focus in fine-art and design. His unique experience working with the top architect/developer in San Diego, and small design/build firms offered a wealth of knowledge of the complete architectural design process from land acquisition to certificates of occupancy. His work experience sparked a passion for people-centered design, urban development and equitable housing which he advocates for through educating future architects. Philip stays active in the architecture community through teaching and mentorships at his alma mater.
Philip’s interests outside of architecture include music and art. In his free time, he can be found camping, or in his workshop making objects and listening to music with his children and 2 dogs.
c: 714.397.3962 e: philiphuotari@gmail.com
AXP hours completed - currently testing
AIA Associate member
OSHA 10 certified
Education
2006-2009
Goldenwest College
Certificate of Architecture
2014 - 2018
Jonathan Segal Architects
2018 - 2020
2009-2013
Newschool of Architecture + Design Bachelor of Architecture (focus in fine art + design)
Bowman Design Build
Designer + Construction Manager Designer + Construction Manager
Jonathan Segal Architects is an award winning architect developer office specializing in mixed-use, affordable multi-family projects.
Bowman Design Build specialized in turn-key solutions for tenant improvements. Job types included: office, retail, sacred spaces, hotels, real estate developments, and single family residential.

2020 - 2021
2021 - 2024
Hammer and Nails Construction Domusstudio Architecture
Designer + Construction Manager Designer + Job Captain
Hammer and Nails Construction is a design build firm specializing in commercial, residential and condominium projects.
Architecture firm specializing in sacred, and educational, custom residential typologies.
Jonathan Segal Architects
The Continental The Fort Bungalows
Park & Polk
Mr Robinson
Bowman Design Build
Barona
First United Methodist BGIM
Capital Projects
La Boheme Condos
(multi family, micro-units, affordable)
(Mixed-Use, Multi-Family, Affordable) (Historic preservation) (Mixed-Use, Multi-Family, Affordable) (Mixed-Use, Multi-Family, Affordable)
(hotel room design) (sacred) (commercial T.I.) (development) (Remodel)
Hammer and Nails Construction
Multiple ADUs
City Front Terrace Harbor Club (residence) (unit remodels) (unit remodels)
Architecture
St. Martin of Tours
Schwan residence
St. Brigid Parish
Agape House
Winston School
Buckley Residence
Covenant Church
Wynne
Bonner Hall
Carlsbad Water Facility
Cypress Residence
Taos Haus
Webster Residence
(preschool) (residence) (sacred) (mixed use) (educational) (residential) (sacred) (Multi-unit) (re-roof, historic, UCSD) (public) (residential) (residential) (ADU)
Sketching
Drafting
Model Making
Wood Working
Metal Working
Painting
Revit
Lumion
AutoCAD
Sketchup
Rhinoceros
Adobe Illustrator
Adobe Indesign
Adobe Photoshop
Adobe Lightroom
Blubeam
Newschool of Architecture Alumni Mentorship Program
Mentored and assisted 1 student per year 2013 - 2023
Newschool of Architecture - Professor Adjunct
Arch. history from 1890-2020, Environmental Sci. I 2023 - 2024
Daniela Deutsch
Dean of Architecture
Newschool of Architecture + Design
858 . 405 . 2816
Newschool of Architecture Alumni Board Officer
Assisted in fundraising, events, coordination 2019-2022
AIAS Napkin Sketch Auction
3 sketches submitted for auction to fundraise for AIAS 2023-2024
Pauly DeBartolo
Founding Principal
DBRDS Architects
Past President SDAF 858 . 220 . 5262
Greg Yeatter
Project Architect
ZGF Architects 619 . 248 . 1112
Code Analysis Master Planning Cost Estimating Massing Entitlements Specifications

Taos Haus
A private residence on the outskirts of Taos, New Mexico.
3,000 sf + 1200 sf guest residence
Buckley Residence
Single Family dwelling remodel. Sunset Cliffs, San Diego +1200 sf addition within coastal commission
Agape House
Multi-unit, mixed-use college housing supporting SDSU students. 30,000 sf new construction
Winston School
Rehabilitation of existing school campus. Phased Construction. Accessibility and site upgrades. Interior remodels.
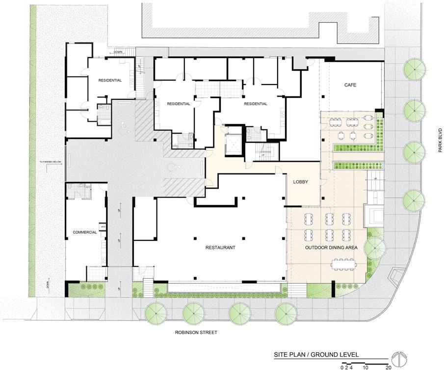
Mr Robinson
A Mixed-Use, Multi-Family Affordable project located in the Hillcrest neighborhood in San Diego, CA. Focus on transparency and revealing structure.
Park & Polk
A Mixed-Use, Multi-Family Affordable project located in the Hillcrest neighborhood in San Diego, CA.
The Fort
Mixed-Use, Multi-Family Affordable project located in the Mission Hills, San Diego, CA. Includes historic preservation component.
San Diego Brewing Museum
A space where visitors interested in brewing can come learn about the culture, and methods of San Diego’s brewing culture.

Fractured Dwelling
A residential design to be used by fictional characters from the play by Edward Albee, titled “Zoo Story”.
Corporeal Jazz
A thesis project in which rules that dictate jazz are used to create a process that informs architectural design.
The Taos Haus client’s only design cue was a driveway courtyard with a central entry point into the residence, and an additional guest house.
The layout was informed by site topography to ground the living space and utilize views of the neighboring mountain peak.
Glazed moments in the envelope evoke an elevated feel while the solid moments ground the house in the site topography.





































































































project information:
• 7500’ site elevation
• difficult site access
• 3,500 sf residence + 1200 sf guest residence
• abundant trees (to be preserved)
• 180 degree views on north, east, and south
project duties:
• site analysis
• concept design
• design development
• renderings
• client meetings
• gc interviews



The Buckley residence project is a 1200 sf addition and remodel to an existing residence. In order to remain out of the coastal commission process, the residence must retain at least 50% of its existing walls/structure. This presented an interesting challenge to accommodate new program and provide a modern look with minimized intervention.
project information:
• remodel of existing residence
• 8300 sf lot
• large easement restrictions
• steep site conditions
project duties:
• DDs, CDs
• design detailing
• material selection
• consultant coordination
• bim modeling
• renderings









The Agape House is a privately funded student mixed-use student housing project designed to create a welcoming space to study, relax, and live. The project is sited on the southern edge of San Diego State University.
The project has a total of 40 units on an incredibly tight 5,000 sf lot.
project information:
• mixed use (A3, R2, B) occ.
• private dormitory housing
• 40 residential units
• communal living spaces
• Roof-top deck
project duties:
• construction documents
• V.E. (remove floor from plans at 80% CD)
• renderings
• details
• consultant coordination
• bim modeling


The Winston school is a private school in Del Mar, California. The exising school has good mid-century design aesthetic.
The project is complicated by phased construction by building and logistics. The scope consists of interior remodels including MEP, and site accessibility upgrades.
project information:
• private school
• 5 acre site
• 3 separate construction phases
• MEP upgrades
• minimal structural intervention
project duties:
• construction documents
• renderings
• details
• phasing logistics
• job walks with GC







1/4” scale model Project Awards:
2018 PCBC Gold Nugget Grand Honor Award
2018 National American Architecture Award
2017 Residential Architect Magazine Citation Award
2016 Builder’s Choice & Custom Home Magazines “Project Of The Year”
2017 California Council Housing Awards AIA Merit Award
2016 California Council AIA Honor Award
2016 Our City Magazine Building of the Year
2016 San Diego AIA Honor Award designated historic

project information:
• mixed-use / affordable
• 36 units
• 12 months construction
• 60,000 square feet
project duties:
• construction documents
• model making
• site supervision
• bidding/negotiation
• RFI/CO
• punchlist
• photography/marketing
• award submissions





project information:
• mixed use-affordable
• 58 units
• 14 months construction
• 100,000 square feet duties included:
• Construction Documents
• All model making
• Site Supervision
• Bidding/Negotiation
• RFI/CO
• Photography/Marketing
• Award Submissions
• Project accounting
• Punchlist











original - 1920s
The Fort required the careful measurements of an existing historic building and its graphics. The building was faithfully re-created.
project information:
• mixed use-affordable
• 29 units
• 12 months construction
• 60,000 square feet
duties included:
• Construction Documents
• All model making
• Site Supervision
• Bidding/Negotiation
• RFI/CO
• Photography/Marketing
• Award Submissions
• Project accounting
• Punchlist
• Historic Graphics/Plans

re-creation - 2017
The culture of brewing has been a cornerstone in San Diego since before prohibition. After prohibition, San Diego’s brewing market was slow to recover until the late 1980s, San Diego did not have any brewing facilities. As of 2024 there are about 150 unique breweries in the San Diego area.
Designing a building that embodies the climate of San Diego along with the culture of brewing allows visitors to the city to experience an amalgam of all that this city offers.
The museum serves multiple functions, including, a brewhouse, a classroom, a tasting room, and an historic exhibit space. Guests can learn everything there is to brewing, while enjoying beer inside San Diego’s Balboa Park.

The concept for the San Diego Brewing Museum was derived from the site’s immediate context.
The main east-west axis that runs through the park (Prado Axis) has moments of intersection that allow visitors to travel to other areas of the park.
This diagram focuses on the macro context of the park, and how a new building would adapt to the site. The main visual corridors are blocked by major structures north or south of the axis in all instances other than one, which is the location of the project.
The resulting diagram was also used to develop a concept of two grids merging and utilizing the resultant forms.



The cantilevered portion of the building is supported by large core. The brewhouse grain silo is then placed within the core.








Corporeal Jazz is an exploration and creation of methods in which design cue data can be extracted from non-visual environments. This project used data from jazz music, to create an architectural experience that feels and functions like jazz. The process involved learning, understanding, and mastering the rules of jazz, and incorporating the rules into a process that is free to quickly explore many design options.




Layered images were explored in order to understand sequencing and variations. Inspired by improvisational jazz.



Site Plan
The building is oriented next to the world beat center, providing opportunities for musical collaboration. N










The entry space provides brief glimpses of activity before directing movement. Heightening anticipation.


