PARIS VERCHER, MBA
CONTACT
parisvercher@icloud com (225) 397-0029
www.parisvercher.com www linkedin com/in/parisvercher
PORTFOLIO
https://issuu.com/paris-vercher/ docs/vercher paris design portfolio?fr=xKAE9 zU1NQ
COURSEWORK
History of Architecture & Interior Design
Interior Graphic Design Construction Documentation
Interior Construction Systems
ADA & Accessibility Design
Materials, Finishes, and Furnishings
Branding & Identity Design
Fashion Sketch Work & Design
Marketing
SOFTWARE
Revit
Enscape
AutoCAD
Adobe Photoshop, InDesign, & Illustrator
Microsoft Office Suite
CREATIVE VISION
I see design as a bridge between culture, community, and experience Inspired by the vibrancy of Louisiana and driven by a passion for placemaking and storytelling, I aim to create spaces that connect people to their environment and each other.
EDUCATION
EXPERIENCE
OUTREACH, LEADERSHIP & IMMERSION

HowcanI,asadesigner,tellastory?
To me, storytelling lives in the details. I believe design is one of the most powerful ways we tell stories without words. It can hold memory, stir emotion,andgiveformtotheintangible.
I’mParisVercher,adesigner,creativethinker,and Louisiana native who believes that the most powerfulspacesaretheonesthatmakeusfeel. Inaworldthatcanoftenseemdisconnectedand digitally saturated, I am drawn to the tactile and thegrounded.Iaminspiredbyspacesthatinvite presence,sparknostalgia,andcreateasenseof belonging.
I studied Interior Design at LSU and earned an MBA with a focus on strategy and leadership. That combination of creative intuition and business insight has shaped a perspective that is both emotionally attuned and strategically thoughtful. My study abroadexperiencesinFlorenceandThailandfurtherdeepenedmybeliefthatdesignisa cultural language: one that honors history, embraces nuance, and connects us across timeandplace.
Whether I am designing a wellness retreat or boutique hospitality space, my work is always guided by one question: how can this space tell a story that makes people feel inspired,energized,andtrulyseen?
OMNIAWELLNESS
CENTER
BERMUDAPARK
HYATTRESORT
VETERANSAFFAIRS
COMMONSPACE
BARGELLOMUSEUM
REBRANDING
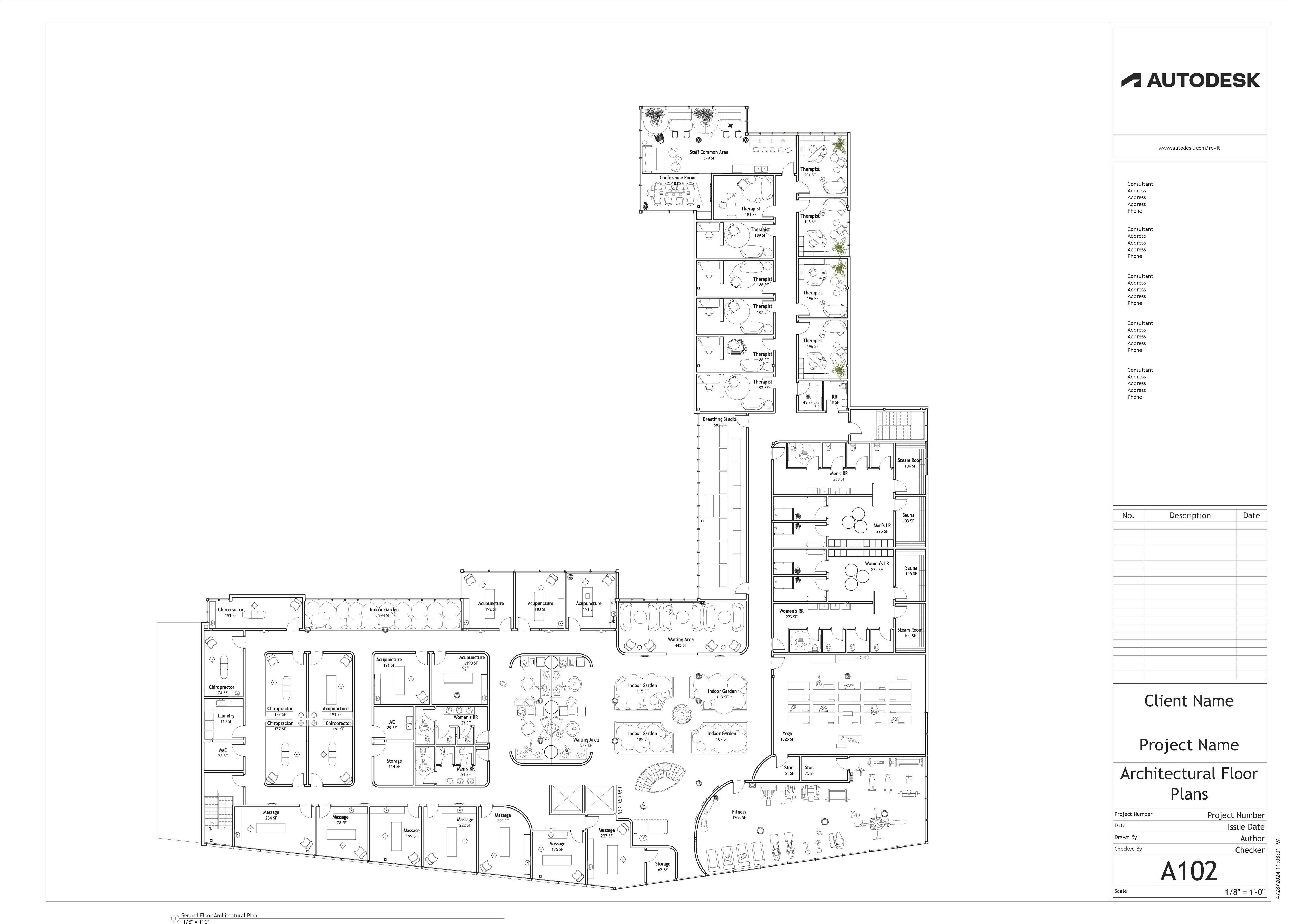
Omnia Wellness Center is poised to revolutionize holistic health care in Baton Rouge by addressing a critical gap in the availability of alternative therapies Designed with a comprehensive approach to healing, the center uniquely integrates mental and physical well-beingpracticestoserveadiversecommunity.
Program spaces
sq.ft.
role
Software
AyurvedicCafe
Library
EducationalAssemblyRooms
WellnessCenterRetail
Consultation
Dietician
Therapist
ArtTherapy
MusicTherapy
Yoga
FitnessGym
ChiropracticTherapy
MassageTherapy
AcupunctureTherapy
Meditation&BreathingStudio
32,994
SoleDesigner Researcher
ConceptDevelopment

“OMNIA” embodies the idea of completeness or wholeness,translatingto“everything”or“all”inLatin.




INCLUDES:Cafe,Library,EducationalConferences,Consultation,ArtTherapy, MusicTherapy,Dietitian,&BackofHouseOffices

INCLUDES:Therapists,IndoorGarden,MassageTherapy,Chiropractic Therapy,AcupunctureTherapy,YogaStudio,MeditationStudio,FitnessGym


RECEPTIONENTRYWAY

RETAIL

LIBRARY

AYURVEDICCAFESEATING
MATERIALS

FURNITURE&LIGHTING

WAYFINDING


RECEPTION

ENTRYWAITING

CAFERECEPTION

CAFESEATING

LIBRARY

READINGROOM

RETAIL

RETAIL

ARTTHERAPY

MUSICTHERAPY

SECONDFLOORRECEPTION

MASSAGETHERAPY

WAITINGAREA

WAITINGAREA

FITNESSGYM

goal
Program spaces
sqft
role
Software used
Design a luxury resort that reflects the branding and globalreputationofParkHyattwhilehonoringtherich historyandcultureofBermuda.
SITEDEVELOPMENT
SPA KINGSUITE DOUBLEQUEENSUITE
TOTAL:190,125
DESIGNED:8,084
InteriorDesigner
ConceptDevelopment
SitePlanning
Revit
Enscape
InDesign
Photoshop
Illustrator
Bermuda Park Hyatt ensures a unique, timeless experience that celebrates the local culture through aesthetics and memorable viewpoints, urging guests to comeback.







RESORTSITE

DIAGRAMOVERSITE

FLOORPLAN


FLOORPLAN

RENDERING

RENDERING

RENDERING
CYROTHERAPY

LOUNGE TREATMENTROOMS
LOCKERROOMS
RECEPTION& WAITINGAREA
BOHOFFICES

RECEPTION&WAITINGAREA


Create a restorative environment for Veterans that balancesopportunitiesforcommunityinteractionwith spacesforsolitudeandpersonalreflection.
Program spaces
sq.ft.
role
Software used
COMMONLOUNGE
TVLOUNGE
KITCHEN
DININGAREA
OUTDOORDININGAREA
LIBRARY&STUDY
INDOORMEDITATIONROOM
OUTDOORMEDITATIONSPACE
WELLNESSSTUDIO
OUTDOORWELLNESSSTUDIO
MULTI-USEOFFICE
INDOOR:2,778
TOTAL:4,752
ConceptDevelopment
FloorPlanDesign
MaterialSelection
FF&ESelection
Rendering
Revit
Enscape
InDesign
Photoshop
Upon visiting the site, our team chose to honor the existing midcentury modern architecture nestled in the woods. Emphasizing simple forms, functional living, and nature-inspired tones, the design reinforces clean geometries and open space planning for flexible furniture layouts and integrated storage. Natural wood panelingandexpansivewindowscreateawarm,light-filledsetting, while blue-green accents echo the surrounding landscape. The result is a modern, timeless interior rooted in the site's original designlanguage.









RENDEREDFLOORPLAN-NTS

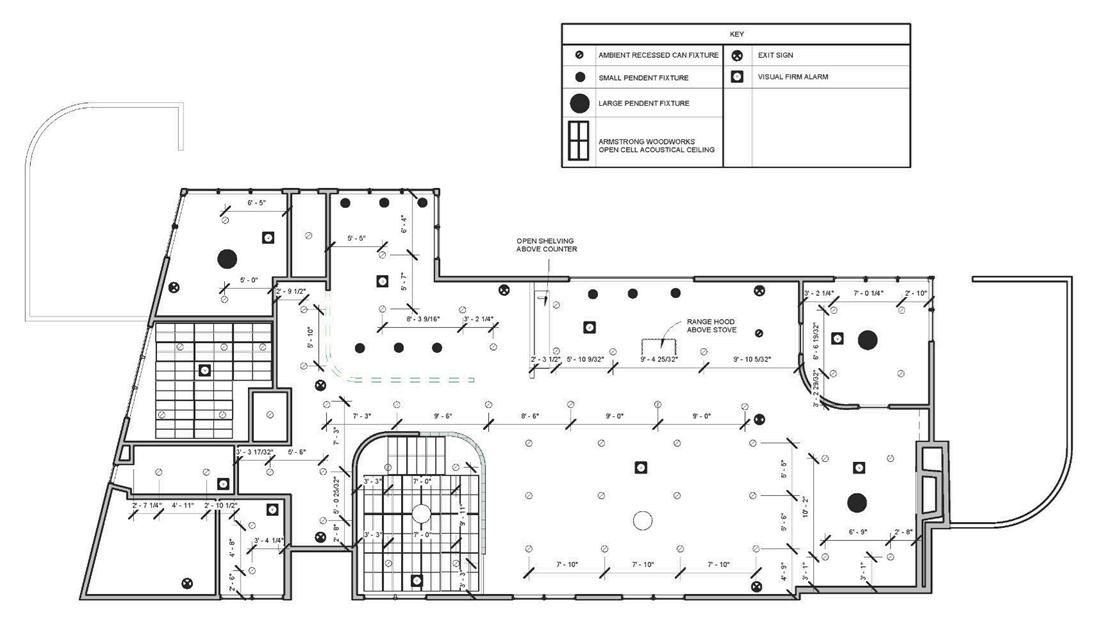
REFLECTEDCEILINGPLAN
MATERIALS


FURNITURE&LIGHTING



COMMONLOUNGE

LIBRARY

TVLOUNGE

KITCHEN

DININGAREA-CAFESEATING

DININGAREA-BARSEATING



MULTI-USEOFFICE

INDOORQUIETSPACE


goal context
Create a branding concept for a historical museum that more clearly illustrates its identity.
deliverables
LOGO
MARKETINGPOSTERS
ADMISSIONSTICKET
TOTEBAGS PINS
POSTCARDS BUSINESSCARD
This project was completed during my semester abroad in Florence, Italy, during a branding&identityelectiveclass.
role
SoleDesigner
Research
ConceptDevelopment
Software used
Illustrator
InDesign
Photoshop


















