Skip to main content

Nicoll choque portafolio

Page 1


BIBLIOTECA YCENTROCULTURAL

Taller de Diseño Arquitectónico N VIII

DISEÑO DEINTERIORES

Cursos de Carrera

CENTRO

DE ATENCION DE DÍAYRESIDENCIALPARAEL

ADULTO MAYOR EN EL DISTRITO DE LA MOLINA

Taller de Titulación N X

CENTRO MULTIUSOACHO

Taller de Diseño Arquitectónico N IX

El proyecto responde a la problemática actual que se enfrenta el adulto mayor en la sociedad mediante la aplicación de nuevas estrategias de diseño que resuelvan las necesidades del adulto mayor y brinde mejor calidad de vida. Se encuentra dentro de la residencia geriátrica el cual vendría a ser un hito dentro del distrito de la molina, ubicado en una zona con equipamientos que puedan satisfacer las necesidades del usuario y evite que recorra grandes rutas. Además dentro del contexto se resuelven las problemáticas, dentro de un zona que cuenta con áreas libres y presenta carácter residencial, por lo que es tranquilo, en el campo de la infraestructura se pensara en la accesibilidad y se

CENTRO DE ATENCION DE DÍA YRESIDENCIALPARA EL ADULTOMAYOR

La Molina- Lima-Perú

UBICACIÓN

PRINCIPIOS

SENSORIAL

DE LA ARQUITECTURAGERIÁTRICA

1. Iluminación: La luz natural es un medio importante que ayuda a concentrarse y mejorar el ambiente y lasalud.

2. Espacios al aire libre con áreas verdes: Las áreas verdes ayudan a establecer características amigables con los adultos mayores mejorando la tranquilidad y la quietud de su entorno.

3. Color: Los colores influyen en el estado de animo y el consumo de luz por ello es importante estudiar las distintas tonalidades

4. Materialidad: La materialidad debe considerarse al momento de diseñar ya que ayuda a mejorar el confort de la persona que habita el espacio de acuerdo a los distintos materiales que se puedenusar

5. Accesibilidad: La accesibilidad es otro criterio importante que se debe considerar en el momento de diseñar considerando las necesidades del adulto mayor para acceder a cualquierambiente.

VISTAEXTERIOR

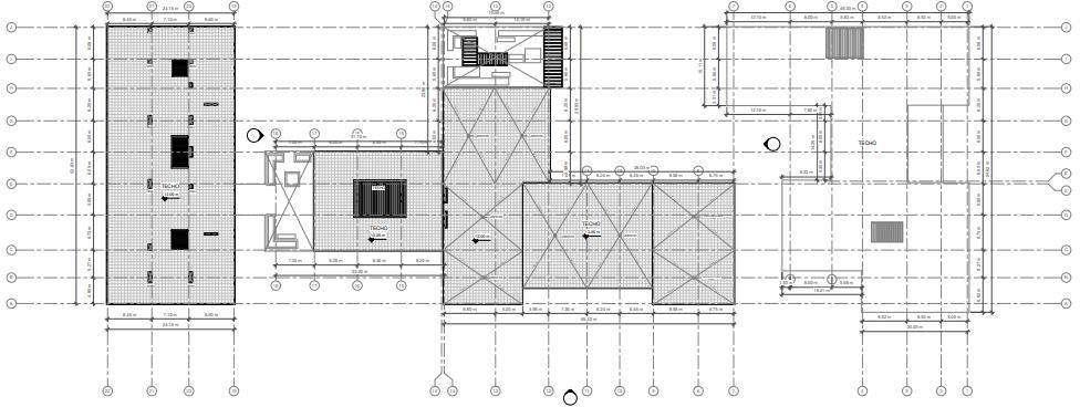
PRIMER PISO

TERCER PISO

VISTARESIDENCIA

JARDIN TERAPEUTICO

El proyec to se ubica en el Centro Histórico de Lima, específicamente frente a la plaza San Martin, esta compuesto por dos volúmenes y en el medio se encuentra un puente integrador el cual alberga al bookcafe el cual es un espacio integrador entre el flujo de personas de ambos volúmenes. Cada edificio cuenta con su propia zonificación el cual responde a las actividades mas realizadas por el usuario

BIBLIOTECA YCENTROCULTURAL

Taller Arquitectónico Nivel VIII

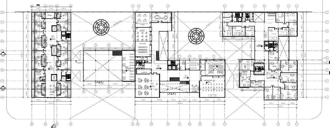
PRIMER PISO

SEGUNDO PISO

VISTAGENERAL

VISTA EXTERIOR

El proyecto se ubica en la Plaza de Toros de Acho, el cual mantiene la estructura actual creando una nueva cobertura que presente actividades relacionadas al deporte como hacia la cultura sobre la tauromaquia, los primeros niveles presentan doble altura y una cobertura mas transparente para poder observar los contra fuentes de la Plaza de Toros de Acho.

CENTRO MULTIFUNCIONALACHO

Taller Arquitectónico Nivel IX

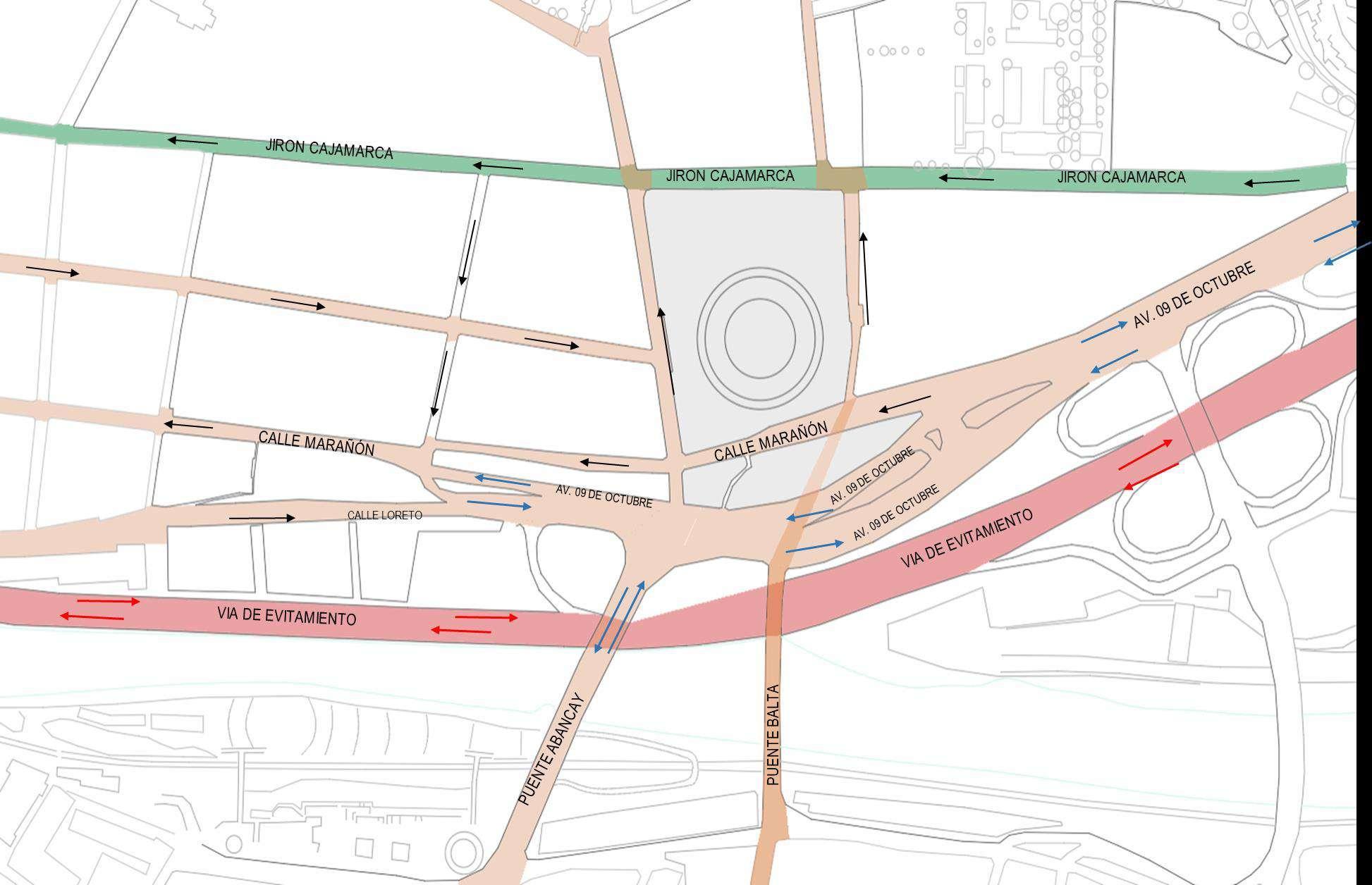
ANALISIS DELUGAR

PLAZA DE TOROS ACHOACTUAL

CARACTERÍSTICAS

- Aforo: 13 000 espectadores

- DEFENSA CIVIL: 10 000 ESPECTADORES

PLOT PLAN

Se toma en cuenta los ejes principales que potencian en gran manera al terreno debido a su ubicación, tomando como punto principal la nueva arena acho y haciéndolo potencial colocando nuevos usos a su alrededor como una zona comercial y espacios públicos incluyendo grandes plazas y parques para el uso del público.

NUEVAS ACTIVIDADES

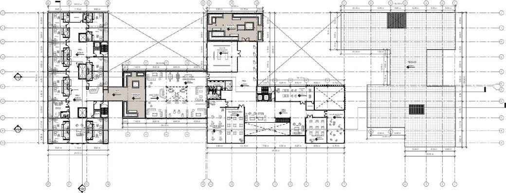
PRIMER PISO

TERCER PISO

Turn static files into dynamic content formats.

Create a flipbook