Architektur Portfolio

Page 1

Abdelrahman Negmeldeen

Technische Hochschule Mittelhessen Bachelor of abdelrahman.negmelden@gmail.cominstagram.com/negmeldeenn/Engineering+4917641735361

INHALT

02

05 TreppenstudioAusstellung+Wohnen

03 Wohnen an der Bleichstraße Mehrfamilienhaus SharedTreppenhausSpaceEntwurf

07 Ruhe Raum Anbau an bestehendes haus

08 Backstein-DenkmalAusstellung

09 Schule am Modernisierung-InnenarchitekturSee Selbständige Arbeit Projekte

11 Haus in ModellierungMittelfranken&Visualisierung

10 Wohnen aus Werkstatt Umbau

04

Studium Projekte

01 Wassersensible Stadt Kleinlinden Studentenwohnheim Wohnen am MehrfamilienhausStockhaus

06 Black shed Holz Cabin

01 STUDENTENWOHNHEIM KLEINLINDEN

Weitere Maßnahmen gegen Hochwasser sind Was serdurchlässige Stellplätze und Sitzbereiche Ein nachhaltiger Umgang mit Regenwasser ist möglich durch Fassaden- und Dachbegrünung und

Entwurf folgt dem Konzept "Wohnhöfe", das für gemeinschaftlich nutzbare Freiräume sorgt. Die Laubengänge erschließen, die Wohnräume und fördern Kommunikation und Austausch und wirken sozial verbindend.

Rückhaltbecken Pool

Die Rückhaltbecken könnten dauerhaft ausgenutzt werden. In dem Kies Untergrund Teil sammelt sich das Regenwasser als erstes von jedem Nieder Hineinschlag.Kommt auch das Überschusswasser von Dach Entwässerungssysteme. Brunnen sichern genügend Bewegung des Wassers, damit das Wasser zum Schwimmen genutzt werden kann. Zum Teil werden die Rück haltbecken für Urban-Gardening genutzt. in dem nur sich das Wasser von Starkregen sammelt

DerTiefbeete.städtebauliche

-

Für Ressourceneinsparungen und geringe Betriebskosten kommen die nachhaltige Betonfer tigteile Wände mit größere Öffnungen für Taglicht im Einsatz. Flexibilität und Sicherstellung der Um nutzungen der Grundrisse erfolgen durch Leichtbau wände zwischen Zimmer und Wohnungen.

Auf einem hochwassergefährdeten Grundstück in Kleinlinden sollte ein Studentenwohnheim gebaut werden, um das Wachstum der Studierendenzahl zu Dasbegegnen.Projektnimmt viele Maßnahmen gegen 10 und 100 jähriger Überschwemmung vor.

Innenhof Hochwasser

Lageplan

Grundstück H.wasser

WasserGrünflächeFlächenaufnahme

Technik TechnikTechnik B A C C D D-DB-B A-A C-C V1 C-CB-BEG

+6,80 m +0,20 m +-0,00 m +2,90 A 0m 10m5m

Fassadenansicht

02 WOHNEN AM STOCKHAUS

Lageplan

AxonometriePerspektive

Detail-Südwest

Detail-Südost

EG NG

Am GeorgStockhausSchlosser

Straße

Schnitt b-b

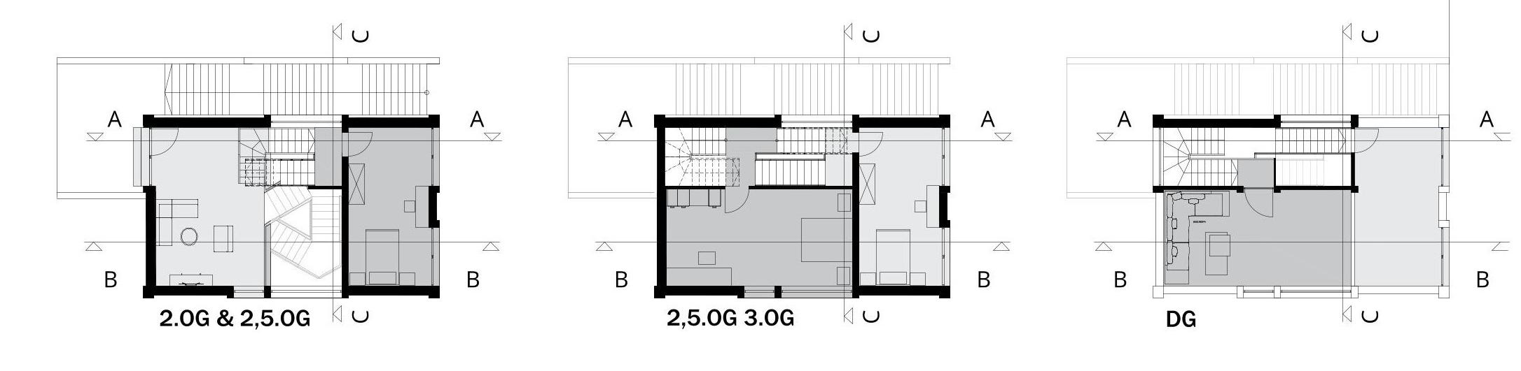
03 Wohnen an der Bleichstraße

Gefälle 2%Gefälle 2% 265 265 barrierefreie Schiebetür elektrischer elektrischerRolladenRolladen elektrischer Rolladen Gefälle 2% Not Ent. +1,4 HP OKFF +4,55 OG OKFF +7,70 SG OKFF Dachablauf Tiefgarage Rampe 50 mm Substrat 20 mm 10180120DachabdichtungFiltervliesKies80mmGefälledämmung60mmGrunddämmungAlujetFloorjetDampfsperremmStahlbetondeckemmPutz 10 mm Parkett 5 mm Mörtelbett 65 mm Heizestrich PE Folie 30 mm Trittschalldämmung 180 mm Stahlbeton Decke Entwerfen B5 GRUPPE LMODULPROJEKTPLAN-INFO NEUBAU Bleichstraße 26, 1:20 Rolladensturz, Rolladensturz,tragendtragendPutzabschlussprofilDämmstoffdübel 4 barrierefreie Schiebetür +11,13 Attika OK +10 78 Dach OK +10,53 Dachrohdecke OK +10,34 Dachdecke UK Fugenband +11,13 Attika OK +1,4 HP OKFF +4,55 OG OKFF +7,70 SG OKFF + 6,91² STH + 3,76² STH + 1,75+/-0,00BRH+1078 Dach OK

Perspektive

Ost Ansicht Nord Ansicht

Süd AnsichtWest Ansicht 12,9112,52Schlafenm²Schlafenm² W 2 Musterwohnung

Schnitt a-a 18,40Technikm² Heizung9,4m² küche,11,84Schlafenm²Bad6,75m²Essen und 17,90Wohnenm² Flur7,30 m² W1 12,2FlurTeeküchem² Büro78,50 m² WC 4WC6,222m²2m² a abb KG & Tiefgarage Hochparterre

7,65Bad12,52Schlafenm²m²Schlafen12,91m²Flur7m²EssenKüche8,5m²undWohnen22m²Küche8,5m²EssenundWohnen22m² 12,5212,91Schlafenm²Schlafenm²Bad7,75 m²Flur7m²W2W3W 4 Bad4,67 m² 11Schlafenm² Flur4m² küche und Wohnen 15,32 m² abba 12,00Schlafen12,10Schlafenm²m²küche, Essen und 31,00Wohnenm²Eingang4m²Eingang4m²Bad9,88 m² Bad9,88 m² W 5 W 6 küche, Essen und 31,00Wohnenm² 12,10Schlafen12,00Schlafenm²m² a abb 1.OG SG Schnitt b-b

04 Treppenhaus

+4,00+8,002.0G+12,003.0G1.0G Hinterlüftete Fassade aus Naturstein Fassadebbekleidung 3cm Senkrechtes Tragprofil Wärmedämmungverankerung 20cm Stahlbeton 25cm +16,26FLACH DACH +17,00Atikka Dachaufbau DachabdichtungkiesschüttungGefälledämmung 2cm in Mittel Grunddämmung 12cm DampfsperreStahlbeton20cm Abgehängte Decke Gipsdeckenplatten mit Tragankern an STB-Decke befestigt Stabalux DeckenaufbauFassade/FensterPfosten-RiegelElementeAusStahlundHolz Bodenbeleg Marmor Fliesen 2,2cm Estrich TrittschaldämmungTrennlage5cm 2cm Stahlbeton Deckenplatte 20cm VeluxkunststeinabdeckungLichtbandOberlicht Deckenaufbau Bodenbeleg Fliesen 2.2cm Estrich TrittschaldämmungTrennlage5cm 2cm Wärmedämmung 10cm Ausgleichsestrich 15cm Stahlbeton Deckenplatte 20cm PolystyrolAbdichtungDämmung 12cm Schottertragschicht / Kapilarbrechende Schicht Erde Schiebetür Eingang Schnitt a-a 1:25 EG+-0,00-3,50Kellergeschoss Treppenschnitt

Treppe zum Erdgeschoss Grundriss 1:25 A Obergeschosse Grundriss 1:25OGEG

Treppenstudio

05

Schnittperspektive

Das Haus ist ein treppenstudio, wo Holz-und stahltreppen für die kunden ausgestellt werden. Am wochenenden dient es als ein Ferienhaus für den Besitzer. Von dem unteren Diagram sieht man, dass das Haus im split-level Weise gelöst wird. Die Halbgeschossigkeit ähneln zwischenpo deste. Die Abwechslung von Inspiralförmigen, geradenförmigen, und diagonalenförmigen Treppen bietet die Kunden ein entscheidende Erlebnis. Es wird insgesamt 5 verschiedene Holz-stahltreppen angeboten. im Erdgeschoss befindet sich eine Galarie und dort findet die Verkaufsgespräche statt.

06

INHALT Black shed

Holzfaser-UnterdeckplatteHolzrahmenHolzBeplankung

HT12/36CMBSH Beton Punktfundament NT 12/20CMBSH GlassSchiebetür Verzinkter PfostenträgerStahl GeländerGlass

07 Ruhe Raum

GRUDNRISSANSICHT

AAB B METALL VERKLEIDUNG STEHFALZ SCHALLUNG 2,2CM VERTIKALE LATTUNG 5/5CM WÄRMEDÄMMUNG/WINDSPERRE HOLZSTÄNDER 20CM LATTUNG GIPSKARTONBEKLEIDUNG3/3CM 1,25CM NORD

METALLDACHEINDECKUNG STEHFALZ DACHSCHALUNG 2,2CM VERTIKALE KANTHOLZ 5/5CM GIPSKARTONBEKLEIDUNGLATTUNGDAMPFSPERREUNTERSPANNBAHNWÄRMEDÄMMUNG20CM3/3CM 1,25CM D.01 4 20/30STG DACHAUFBAU BODENAUFBAU INDUSTRIEPARKETT 2,2CM HEIZEESTRICH 5CM TRITTSCHALDÄMMUNGTRENNLAGE 2CM WÄRMEDÄMMUNG AUSGLEICHESTRICH/10CMTECHNIKLEITUNGEN AM FUßBODEN 15CM BODENPLATTE STAHLBETON 20CM ABDICHTUNG GEGEN AUFSTEIGENDE FEUCHTIGKEIT POLYSTYROL (DÄMMUNG) 12CM SCHOTTERTRAGSCHICHT/ KAPILLARBRECHENDE SCHICHT 20CM METALL VERKLEIDUNG STEHFALZ SCHALLUNG 2,2CM VERTIKALE LATTUNG 5/5CM WÄRMEDÄMMUNG/WINDSPERRE HOLZSTÄNDER 20CM GIPSKARTONBEKLEIDUNGLATTUNGDAMPFSPERRE3/3CM 1,25CM STEHFALZ GIPSKARTONBEKLEIDUNGLATTUNGUNTERSPANNBAHNDACHSCHALUNGDACHEINDECKUNG2,2CMVERTIKALEKANTHOLZ5/5CMWÄRMEDÄMMUNG20CM3/3CM1,25CM DACHAUFBAU BODENAUFBAU INDUSTRIEPARKETT 2,2CM HEIZEESTRICH 5CM TRITTSCHALDÄMMUNGTRENNLAGE 2CM WÄRMEDÄMMUNG AUSGLEICHESTRICH/10CMTECHNIKLEITUNGEN AM FUßBODEN 15CM BODENPLATTE STAHLBETON 20CM ABDICHTUNG GEGEN AUFSTEIGENDE FEUCHTIGKEIT POLYSTYROL (DÄMMUNG) 12CM SCHOTTERTRAGSCHICHT/ KAPILLARBRECHENDE SCHICHT 20CM SCHNITT B B SCHNITT A A PFOSTEN-RIEGEL FASSADE Z.B. STABALUX FENSTERELEMENTHZ.B.

INHALT08 Backstein-Denkmal

09 Schule am See

EGOG

RAUM Gestalt Technik Negmeldeen, AbdelrahmanMODULPROJEKTPLAN-INFO 1:10 Schnitt a-a Schnitt b-b +3,07 +-0,00 +2,93 RAUM Gestalt Technik Negmeldeen, Abdelrahman PLAN-INFOPROJEKT 1:20 DIN A2 26.01.2022 03 Geschliffen, Poliert, Versiegelt 65mm Estrich 55mm WD trittfest 200mm Bodenplatte Stahlbeton Geschliffen, Poliert, Versiegelt 25mm 180mmTrittschaldämmungStahlbeton50Wärmedämmung SchnittTreppenschnitta-a

10 Wohnen aus Werkstatt

1,2WCm2 Küche & Essbereich Wohnzimmer DF Schlafzimmer 1 Schlafzimmer22,7m2 2 22,7m2 Badzimmer 1 10,22m2 WC 7,771m2 Flur 1 15,6 m2 Flur23,3m2 Eingangsbereich23m2 16,22Gästezimmerm212,90Jagdzimmerm2 HAR Schlafzimmer 3 22,6m2 7m2Treppe 23,5GYMm2 Büro42,2 m2 Garderobe OG UMBAU 19 m2 Heizung & Pelletspeicher 13,80 m2 Wkst 1 Wkst 2 Backstein Haus EGBESTANDUMBAU

Nord Ansicht West AnsichtOst Ansicht Süd Ansicht

11 Haus in Mittelfranken

DANKE

Turn static files into dynamic content formats.

Create a flipbook
Issuu converts static files into: digital portfolios, online yearbooks, online catalogs, digital photo albums and more. Sign up and create your flipbook.