Portafolio de Arquitectura - Kevin Matos

Page 1

PORTAFOLIO DE ARQUITECTURA

ARQUITECTURA ES EL PUNTO DE PARTIDA DEL QUE QUIERA

LLEVAR A LA HUMANIDAD HACIA UN PORVENIR MEJOR”

LE CORBUSIER

“LA

PERFIL

EN LA CAPACIDAD DE DISEÑAR Y GESTIONAR SOLUCIONES ARQUITECTÓNICAS RESPODIENDO

ADECUADAMENTE A LOS REQUERIMIENTOS DEL USUARIO.

KEVIN MATOS

ARQUITECTURA Y URBANISMO

75 % 85 % 100 %

ORDEN ANÁLISIS COMUNICACIÓN

FORMACIÓN ACADÉMICA

INSTITUCIÓN EDUCATIVA PARROQUIAL "SAN VICENTE FERRER", DICIEMBRE 2010

FACULTAD DE ARQUITECTURA Y DISEÑO, CARRERA DE ARQUITECTURA Y URBANISMO, UNIVERSIDAD PRIVADA DEL NORTE, 2023

EXPERIENCIA LABORAL

SODIMAC / TIENDAS DE MEJORAMIENTO DEL HOGAR

2020 - 2023

FRELANCE ARQUITECTURA 2021

SUAL SAC 2022

DIRECCIÓN

MARIANO ANGULO 222

URBANIZACIÓN SANTA LUZMILACOMAS

TELÉFONO

999 195 688

MS OFFICE

CORREO

MATOS.KEVIN558@GMAIL.COM

ASESOR DE ATENCIÓN AL CLIENTE (PISOS Y REVESTIMIENTOS)

ASESOR BACKOFFICE, ENCARGADO DE GESTIÓN Y SEGUIMIENTO DE RECLAMOS PARA SODIMAC CHILE.

DISEÑO Y REMODELACIÓN DE UNA VIVIENDA MULTIFAMILIAR. DIGITALIZACIÓN Y ACTUALIZACIÓN DE PLANOS DE ARQUITECTURA.

ELABORACIÓN DE PLANOS DE VIVIENDA UNIFAMILIAR, ARQUITECTURA Y ESPECIALIDADES.

HABILIDADES

CONOCIMIENTO

DISTRIBUCIÓN

I. ELÉCTRICAS

I. SANITARIAS

MODELADO 3D

RENDERIZADO

PASATIEMPOS

REVIT
AUTOCAD SKETCHUP
PHOTOSHOP PROGRAMAS

VIVIENDA MULTIFAMILIAR MAGDALENA

PROYECTO VIVIENDA

Proyecto de vivienda multifamiliar ubicado en el distrito de Magdalena

Se desarrolló con el objetivo de aprovechar las vistas al litoral marino y además se plantearon espacios comunes como una sa a de gimnas o en el primer nivel y terraza común en la azotea

PROGRAMACIÓN ARQUITECTÓNICA

4 5 6 7 8 8 8 4 5 6 7 8 8 4 5 6 4 5 6 7 8 8 1 2 3 3 4 4 4 5 5 5 5 6 6 6 7 7 7 8 8 8 8 8 8 8 9 9 9 9 10 ZONA RESIDENCIAL GIMNASIO COMÚN ACCESO Y ESCALERAS HALL DE INGRESO GIMNASIO COMÚN TERRAZA SALA COMEDOR COCINA LAVANDERIA DORMITORIO ESTACIONAMIENTOS ESCALERAS Y ASCENSOR 1 2. 3 4. 5. 6 7. 8 9. 10 PLANTA PRIMER NIVEL PLANTA SEGUNDO NIVEL ZONIFICACION
PROGRAMACIÓN

RENDERS EXTERIORES

UBICACION

El proyecto de v vienda mu tifami iar se encuentra en el Jirón Diego Ferré 185 cruce con Jirón Echenique El área del terreno es de 990 m2 con v sta a mar

El área a ntervenir tiene dos fachadas en as cuales se aprovecha su emplazam ento cercano al mar

El acceso peatonal se encuentra en Diego Ferre, y el acceso vehicular a través del Jr. Echenique. Se planteo un co or neutro con aplicac ones de madera y se le dió prioridad a las áreas verdes. Arbo es y jardines en el frente y en as ventanas.

SE PLANTEA LA AZOTEA COMO ESPACIO DE RECREACIÓN TIPO TERRAZA, ESTA ZONA ES DE USO COMÚN DE LOS DEPARTAMENTOS DEL EDIFICIO

AREAS VERDES Y MATERIALES

SE USA MATERIALES COMO LA MADERA YA QUE ES ECOLÓGICO, VÉRSATIL Y PERMITE COMBINARLO FACILMENTE CON OTROS MATERIALES COMO EL HORMIGÓN

EN LA PARTE EXTERNA DEL EDIFICIO SE EMPLEAN AREAS VERDES

CORTES ARQUITECTÓNICOS

CORTE A CORTE B

TIPOLOGIA DE DEPARTAMENTO

Departamento típico de la vivienda

Características

Sala

Comedor

Cocina

Lavanderia

2 dormitor os

TERRAZA URBANA EN COMAS

Proyecto de terraza urbana con el concepto de biofilia ubicado en el distrito de Comas. Desarrollado como zona de descanso y comedor para un edificio de oficinas.

ANTECEDENTES Y DATOS

UBICACIÖN: AV BELAUNDE - COMAS

NÚMERO DE PISOS: 3 PISOS

TIPO DE EDIFICACIÓN (FUNCIÓN): ALQUILER DE

OFICINAS

ÁREA: 180 m2

Se plantea el diseño de una terraza en un edificio cuya función es del alquiler de oficinas administrativas

Ubicado en el distrito de Comas, cerca a a Av Universitaria y la Av Tupac Amaru, dos vías muy concurridas con altos índi d t i ió

PROBLEMÁTICA Y CONCEPTUALIZACIÓN

PROBLEMÁTICA

El edificio fue diseñado para el alqu ler de of c nas sin embargo no se consideró un área donde los trabajadores puedan al mentarse y descansar en el horar o de refrigerio

La O ciuda mínim por ha

ÁREADELATERRAZAAINTERVENIR DEPÓSITO

SSHH CONCEPTO

El sentido de la conexión del ser humano con a a l

ZONADEDESCANSO/RELAJACIÓN

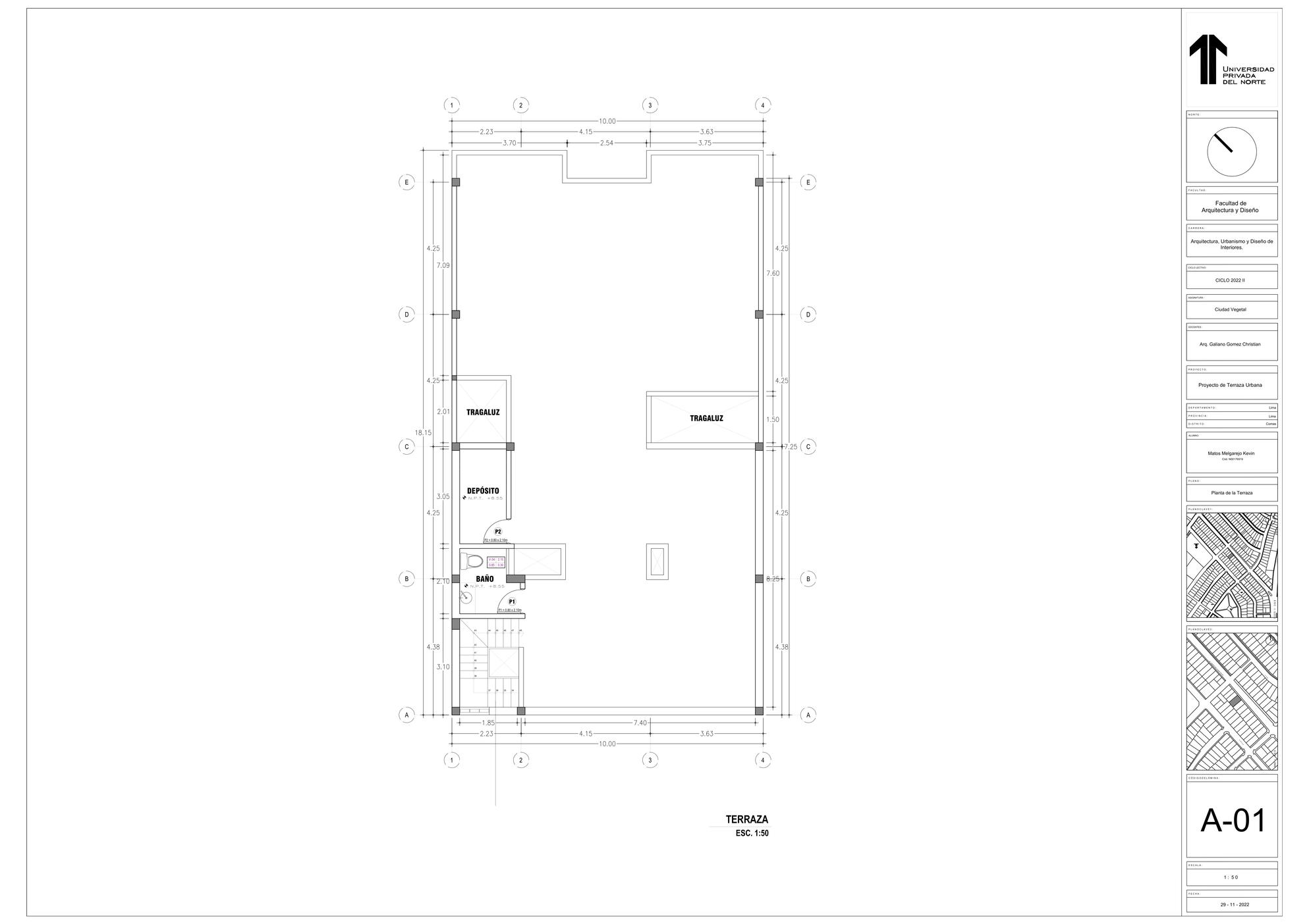
PLANTAGENERAL

Planta de la terraza urbana, se han d señado con el concepto de “Biofilia”, utilizando en todos los espacios de la terraza, áreas verdes y p antas que favorezcan la conexión de las personas con la naturaleza.

Comprende el espacio donde los trabajadores podrán relajarse y hacer una pausa de a jornada labora , en esta área se emplean los muros verdes, macetas con plantas y un espe o de agua.

ÁREADEMICROONDASYLAVADERO

Ärea donde los trabajadores calentarán la com da y podrán lavar os implementos como tapers y cubiertos Esta zona se encuentra a lado del área del comedor

ÁREADECOMEDOR

Espac o donde os trabajadores podrán comer en su horario de refrigerio, se emplean macetas colgantes, adicionalmente por protección del sol se usa una pérgola que tiene un recubrimiento de áreas verdes.

TERRAZA URBANA ESC 1:50

MACETASCONVEGETACIÓN

MUROSVERDES

GRÉS PORCELÁNICO DE MADERA(SUELOELEVADO)

GRÉS PORCELÁNICO DE PIEDRA

PORCELANATOBEIGE

MACETASCOLGANTES

4 1 2 3 A A B B C C D D E E 085 0 -3 0 4 P1 P2 0 0m P m COMEDOR BAÑO DEPÓSITO MICROONDASYLAVADERO TRAGALUZ TRAGALUZ
AREADEDESCANSO
PLANO GENERAL DE LA PROPUESTA

ZON DES

ZONAS DE LA PROPUESTA DE TERRAZA

INTERCAMBIO SOCIAL BIOFILIA

eran ar el esto sí un do y

MICROONDAS Y LAVADERO

Se crea así un grato ambiente laboral, ya que esto ncide directamente en a productividad y creatividad de los colaboradores

ZONA DE DESCANSO

Se usaron distintos tipos de plantas para brindar sensac ón de bienestar, tanto en paredes a través de muros verdes y en maceteros. Al centro de la zona de descanso se proyectó una fuente de agua. El concepto de la Biofi ia apl cado a este espacio garantiza que haya un aumento de la creatividad de los empleados, se d sminuya el stress y en consecuencia aumente la product vidad.

CORTES ARQUITECTÓNICOS

PROPUESTA DE MOBILIARIO

MOBILIARIOPARATERRAZA

Los palets de madera son utilizados pr ncipa mente para transportar o manipular dist ntas mercancías y que habitualmente desechamos porque no encontramos un uso adecuado estas tab as de madera tienen un alto grado de reciclabilidad, muchas empresas los guardan o los devuelven al mayorista, aunque otras los desechan

Se usaron pallets de madera que estaban almacenados en a edificación

DESARROLLODEMOBILIARIO

MODULACIÓN

La versati idad de este elemento nos permite modularlo en distintos tamaños, como se observa podemos plantear mob liar o para una o mas personas

Mobiliar o para un usuario Mobiliario para tres usuarios

Base de Mobil ario Zebra Cojín 200 para Mueble Respaldar de Mobil ario Palets Pa ets sin tab as superiores

Turn static files into dynamic content formats.

Create a flipbook
Issuu converts static files into: digital portfolios, online yearbooks, online catalogs, digital photo albums and more. Sign up and create your flipbook.
Portafolio de Arquitectura - Kevin Matos by Kevin Matos Melgarejo - Issuu