Portfolio 2024

Page 1

Arq.MalenySastré-License9820521

Bachelor’sdegreefromtheAutonomousUniversityof Guadalajara,Mexico.SpecializationMinorinProjectand WorkManagement2015.ProjectDesignerandBIM collaborator.

+10yearsasauserofAECCollectionSoftware/Revit ,AutoCAD,Civil3D,Navisworks.

+20CommercialProjectsinU.S.A

+50Residencial,Commercial,OfficeandHealthcare ProjectsinMexico

•Passionateaboutsustainabilityandfutureofdesign usingIA.

PORTFOLIO
NCARBarchitectrecord889409
1 Index México Cover…………………………………………………………….1 Officebuildings–District27………………...........................2,3 ResidentialandCommercialProjecst-Palmira………….4,5 ResidentialProjects–Kaana,Xala11………………………6-8 U.S.A Quickservicerestaurants………………………………………9,10 Fuelcenters……………………………………………………….11,12 Otherreferences………………………………………………..13

InOctober2015thegovernmentofthissoutherncityinMexicoplannedtorelocatedallthe decentralizedservicesofthecityinonedistrict.TheprojectDistrict27combinearchitecture, graphicdesign,urbanplanningandlandscapetodefineandanalyzetheneedsofspace,traffic andinfrastructurewithseveralkeyideasonaschematicdesignprocessthatinvolvedmorethan 20differentsecretaryshipsandhisrepresentativestocoordinatedeveryaspectofthebuildings.

Softwareofuse.Revit+3dsmax

Softwareofuse3dsmax+Photoshop

Softwareofuse.AutoCAD+Revit+Lumion

Softwareofuse.GoogleEarth+AutoCAD+Photoshop

Thefacadeisdefinedbyan exteriorsilhouettethatjumpsin andoutperlevel,concep processforasixlevelbuilding.

ImagescreditsaresharedwithObraArchitects
2

Softwareofuse.AutoCAD+Revit+3dsmax+D5

Asaresult,ObraArchitectsarchitectureteam,landscapeandpublic spacecreatedanalternativetothegenericexperienceofdue diligenceforcitizens.

Softwareofuse.AutoCAD+Revit+3dsmax

Softwareofuse.AutoCAD+Photoshop

Conceptprocessforaofficebuilding facade,drawnsandfloorplans.

Softwareofuse.AutoCAD+Photoshop

ImagescreditsaresharedwithObraArchitects 3

In2016IstartedtocollaboratewithAtmósferaArchitectsformainlyresidentialandcommercialdevelopmentswithdifferentbudgets.Theobjective ofmyroleistodeliverandcoordinateconstructiondocumentsforthetworesidencedevelopmentsatsametimeoureffortwastomoveourdesign processinto3D.Thefirstoneforlowbudgethomesunderthename[FronteraandTercerMilenio]andthesecondonehighbudgetresidences[

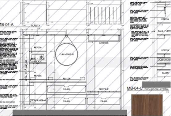
Softwareofuse.3dsmax+Vray 3DModeling+CD´S. ResidentialProject Interior+ Visualization. ResidentialProject
ImagescreditsaresharedwithAtmosferaArchitects 4
Softwareofuse.AutoCAD+Revit

Softwareofuse.AutoCAD+Revit+Vray

FloorPlans+3D Details.Residential Project

Exterior/Interior Visualization+ DesignOptions. ResidentialProject

Softwareofuse.Revit+Vray

Softwareofuse.AutoCAD+Revit+Vray

Softwareofuse.AutoCAD+Revit+Vray

3DModel+ Visualization. CommercialProjects

ImagescreditsaresharedwithAtmosferaArchitects 5

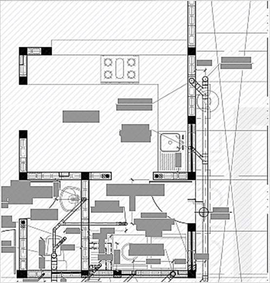
In2017Istartedtocollaborate withMetricDevelopment Groupfortheprojectunder thenameKaanaresidential developments.Theobjectiveof myroleistoleadand coordinateconstructionsite andassistdesignersand generalconstructorto generateasbuilddocuments, rfiandanalyzeutilitiesforclash controlpurposes.Inthis particularprojectiexcellby combiningallmy3D-BIM modelingknowledgewith constructionexperience.

Softwareofuse.AutoCAD+Revit

ImagescreditsaresharedwithRDLPArchitects 6

In2024Istartedtocollaborate withArchitectureDevelopment Agencyfortheprojectunder thenameXala11.The objectiveasaproject manageristoleadand coordinateconsultants,BIM modelersanddesignersinUSA andMexicotogeneratethe documentationofthedesign developmentphaseaimingto closethebudgetanddesign decisionmakingtostartthe constructiondocumentphase insidetheschedule.

Designintepretation andmaterial coordination.

SoftwareofuseRevit ImagescreditsaresharedwithStudioCABANandADAArchitects 7
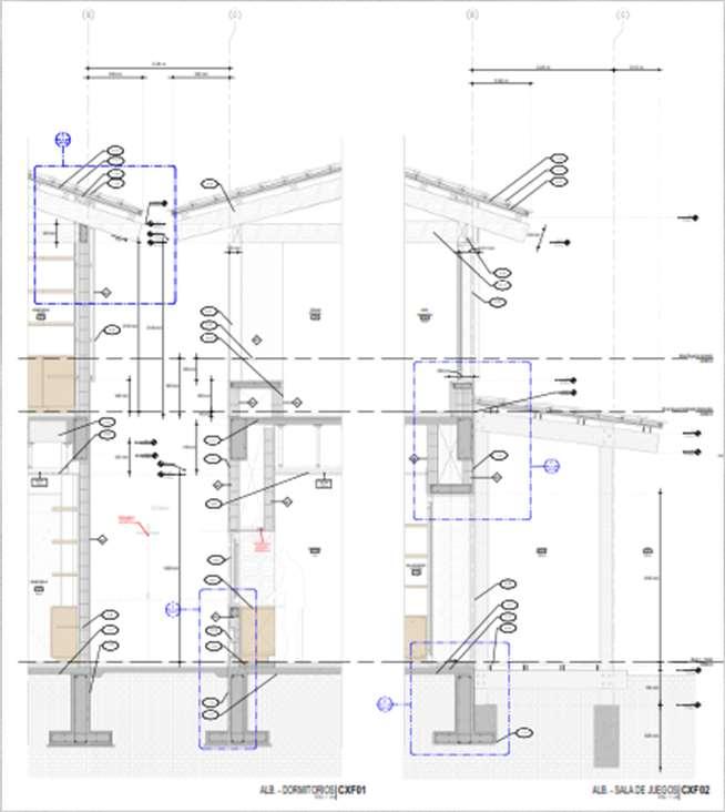
Lanscapeproposal andwallsections coordination.

Understandingofsite guidelinesbetween designand consultants.

SoftwareofuseRevit,AutocadandPhotoshop ImagescreditsaresharedwithStudioCABANandADAArchitects 8

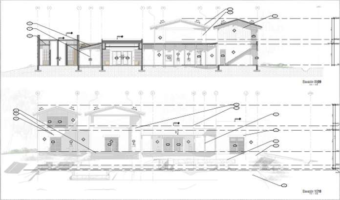
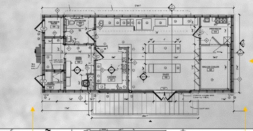
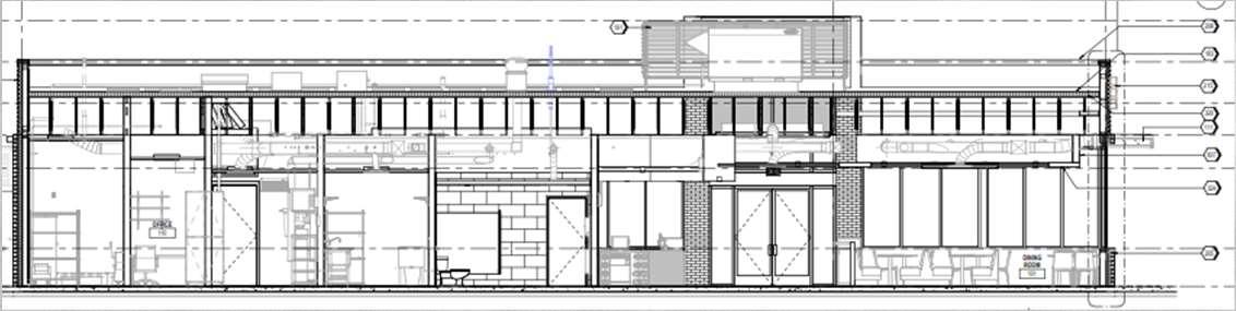
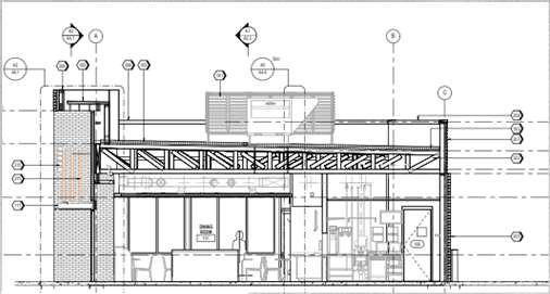
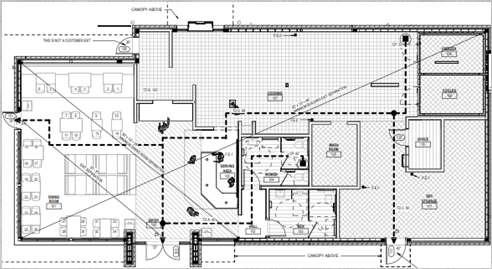
In2022Istartedtocollaborate withNCARBArchitectsfor commercialdevelopments suchasfuelcentersand restaurantsforsoutherncitiesin U.S.A.Theobjectiveofmyrole istodeliverconstruction documentsfortheexpansion planofdifferentclientsonthe QSRmarketintoBIMaswellto analyzenormativityintheir locationandleadarchitectsto understandbetterthe standards,guidelinesfor replicabilityandthewood framesystemphases.

Exterior/Visualization+DesignOption+ ConstructionDetails.QuickService Restaurants

ImagescreditsaresharedwithAMCGArchitects 9 Softwareofuse.Revit+Vray
Softwareofuse.Revit+Vray
Softwareofuse.Revit
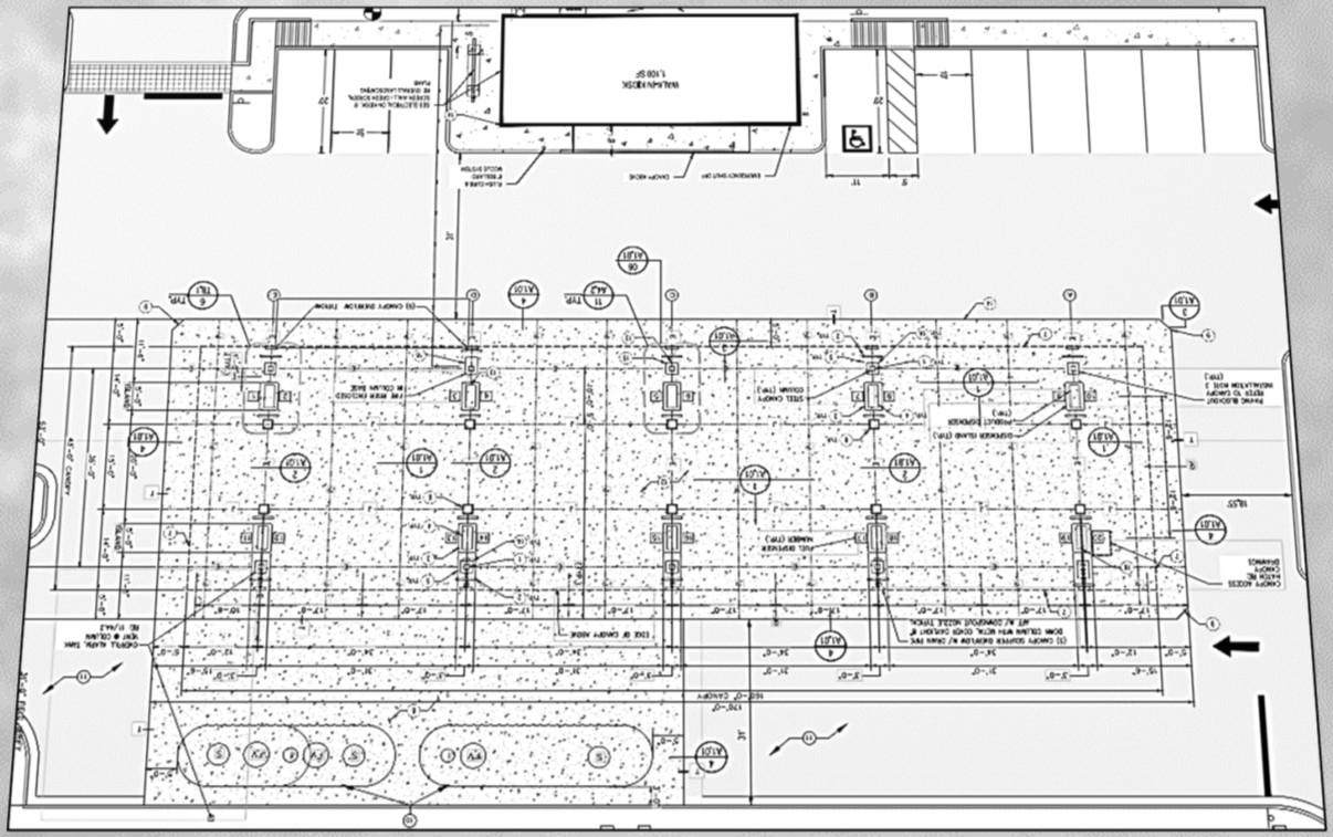
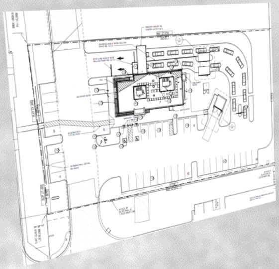
ImagescreditsaresharedwithAMCGArchitects 10 Softwareofuse.Revit SitePlanDesignandCoord. +WetUtilitiesCoord.+ LandscapeVisualization .QuickServiceRestaurants
renderingand
Softwareofuse.Civil3D+Revit
DoubleDrivethru
design.
Disciplines Coordinationand3D Modeling.
Softwareofuse.Revit+Vray

SitePlanandBuiildingKiosk DesignandCoord.Fuel Centers

ImagescreditsaresharedwithAMCGArchitects 11
Softwareofuse.Civil3D Softwareofuse.Revit Softwareofuse.Revit

Softwareofuse.Revit

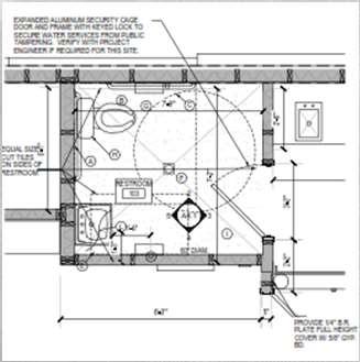
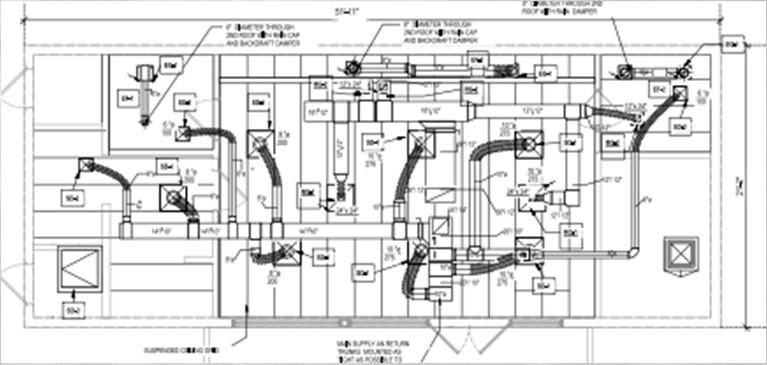
DesignOptions+Construction Details+MEPProposals+Clash control..FuelCenters

Softwareofuse.Revit

Softwareofuse.Revit

Softwareofuse.RevitSoftwareofuse.Revit

ImagescreditsaresharedwithAMCGArchitects 12

Email. malenyccss@outlook.com

LinkedIn

http://www.linkedin.com/in/maleny-estefania-cáceres-sastré8bb808234

13

Turn static files into dynamic content formats.

Create a flipbook
Issuu converts static files into: digital portfolios, online yearbooks, online catalogs, digital photo albums and more. Sign up and create your flipbook.
Portfolio 2024 by Maleny Cáceres Sastré - Issuu