PORTAFOLIO DISEÑO DIGITAL

Page 1

PORTAFOLIO ARQUITECTONICO

Skrlett Campo Dabila - Alexandra Villar Bringas

INTRODUCCIÓN

El contenido de este portafolio es una explicacion breve sobre el proyecto Casa de playa las Arenas de Artadi Arquitectos. Cada pagina

mostrara datos, planos, cortes y elevaciones de la vivienda

INDICE

Pág.1 ................... Casa de playa las Arenas

Pág.2 .................. Datos de la Vivienda

Pág.3 .................. Primera Planta

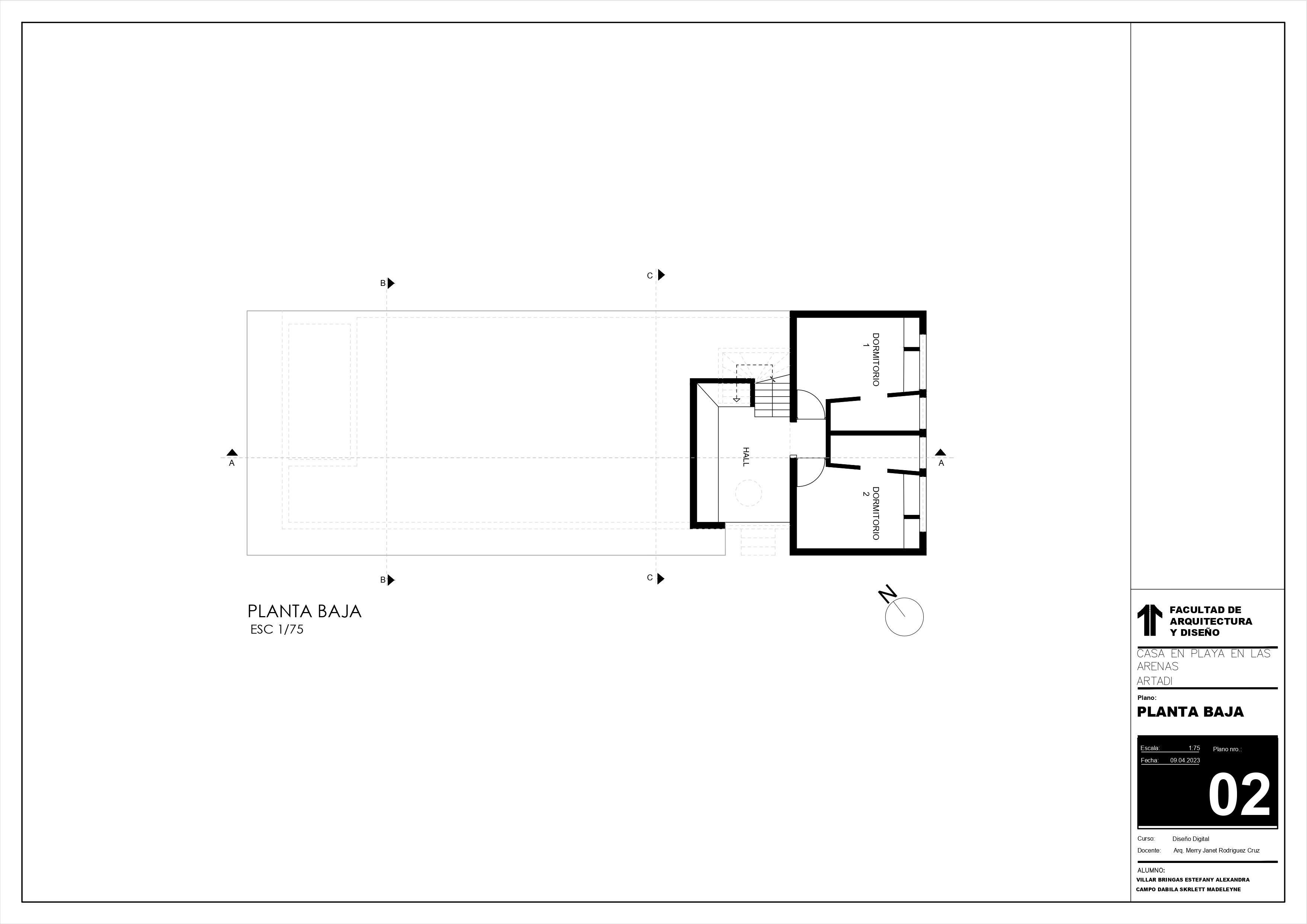
Pág.4 .................. Planta Baja

Pág.5 .................. Plano de Techos

Pág.6 .................. Corte A-A

Pág.7 .................. Corte B-B

Pág.7 .................. Corte C-C

Pág.8 ..................

Pág.9 ..................

pág.9 .................

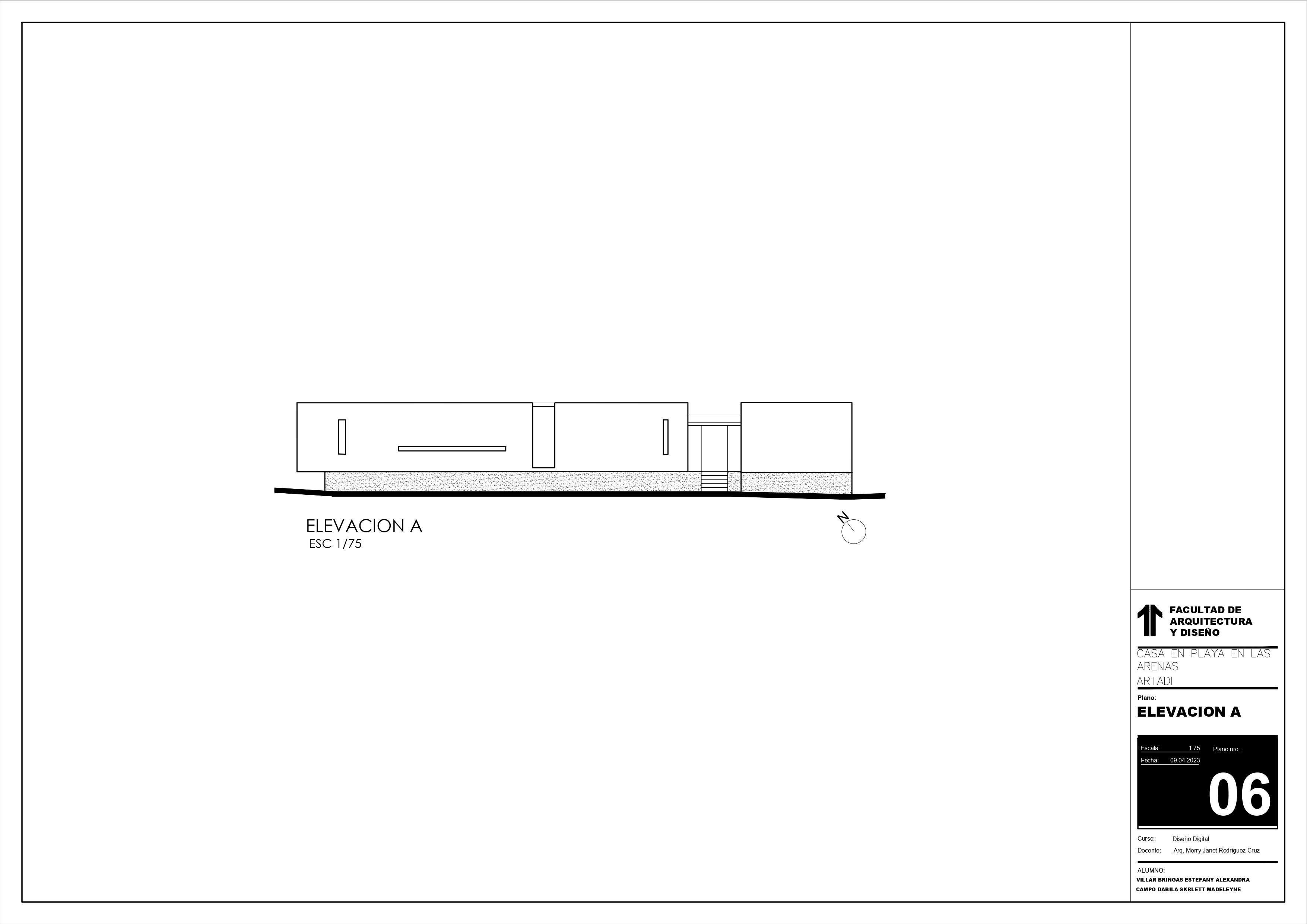
Elevación A

Elevacion B

Elevacion C

Casa en Playa en Las Arenas

Artadi Arquitectos

Casa de playa las Arenas

Pág.1

CASA DE PLAYA LAS ARENAS

Ubicación: Playas del Sur de Lima

Área : 238 m2

Arquitectos : Artadi Arquitectos

Año : 2003 - 2004

El proyecto consiste en una pequeña casa ubicada frente al mar, a cien kilómetros al sur de Lima. Para el proyecto se a creado una especie de gran "Caja Contenedora" dentro de la cual se han creado distintos elementos que permiten opciones de uso múltiple. Arquitectónicamente esta caja fue perforada para efectos de control del asoleamiento y enfoque de visuales; a sido suspendida sobre un jardín incorporando la sensacion de ingravidez y libertad en la experiencia de los usuarios que la habiten.El proyecto busca introducir una opción tipológica diferente dentro de lo que podría significar una casa de playa en la costa peruana en los inicios de este nuevo siglo.

Casa de playa las Arenas

Pág.2

Casa de playa las Arenas

Pág.3

Casa de playa las Arenas

Pág.4

Casa de playa las Arenas

Pág.5

Casa de playa las Arenas

Pág.6

Casa de playa las Arenas

Pág.7

Casa de playa las Arenas

Pág.8

Casa de playa las Arenas

Pág.9

CASA DE PLAYA LAS ARENAS

Skrlett Campo Dabila - Alexandra Villar Bringas

Turn static files into dynamic content formats.

Create a flipbook
Issuu converts static files into: digital portfolios, online yearbooks, online catalogs, digital photo albums and more. Sign up and create your flipbook.
PORTAFOLIO DISEÑO DIGITAL by Alexandra Villar Bringas - Issuu