Architecture design portfolio 2024 - Krittin Sirimaha

Page 1


Architecture + design portfolio

selected works

Krittin Sirimaha graduated from School of Architecture and Design, King Mongkut’s University of Technology Thonburi. Received Bachelor of Architecture with second-class honors.

As an architect, He believes that architecture has the power to enhance people's lives. He is eager to develop skillsets in architectural design ranging from building of all types to shaping a built environment that is not only aesthetically pleasing but also environmentally responsible.

After graduating, he’s been seeking to gain experience in the architecture profession. By attending an internship at EKAR Architects, he has learned and assisted a team with various residential architectural design projects. Later he joined Foundry of Space Co., ltd. as a junior architect. With his attention to detail combined with dedication and teamwork skills, he collaborated closely with a team to complete various commercial building design projects successfully with a comprehensive understanding of the entire design process, from conceptualization to construction.

Apart from that, he is also passionate about music, graphic design, reading, writing, stage design, photography, and cinematography. He spends his leisure time working on songwriting, music videos, and graphic design.

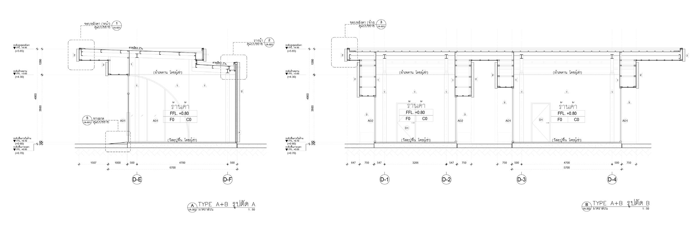
CENTRAL DEPARTMENT STORE EXTENSION at Megabangna

Project with Foundry of Space

Location

Program

Client Building area

Status

Roles

: Samut Prakan, Thailand

: Retail : SF Development Co., Ltd.

: 11,000 m²

: Completed, 2023

Conceptual Design

Design Development

Permission Drawing

Tender Drawing

Construction Drawing

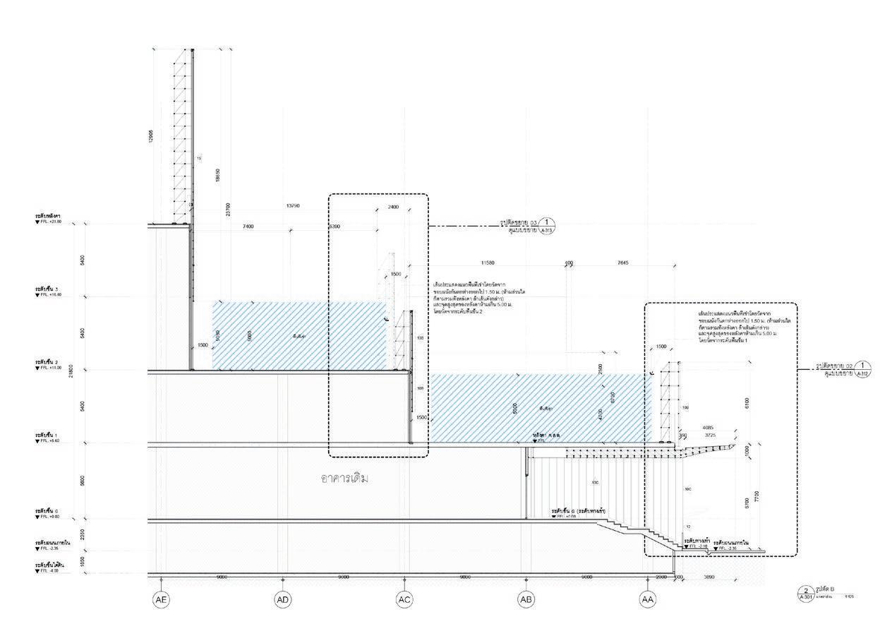
Central Department Store Extension at Megabangna is located on the west side of the whole complex, marking a new phase of mixed-use developments on this side of Megacity Master Plan.

The key element of this project is the facade design on the west side of the building. A series of vertical fins act as a sun protection for the interior space while at the same time sweep up and swing out in a single gesture to be a long cantilevered canopy above the main drop-off area.

During the conceptual design state, I assited a team to study several design ideas focusing on the facade design then developed further from design development state to construction document.

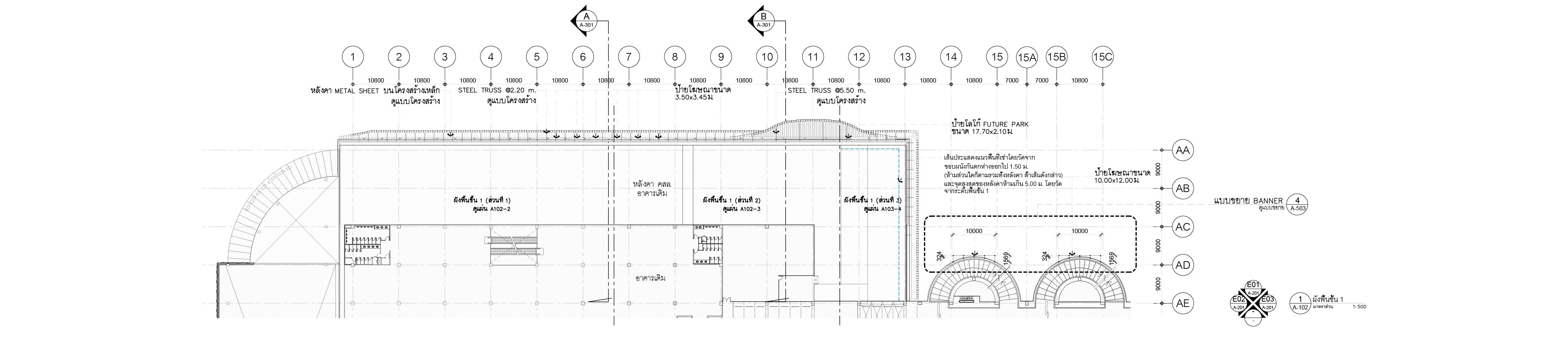
Future Park Exterior Renovation at Future Park Rangsit

Project with Foundry of Space

: Rangsit, Pathum Thani, Thailand

: North Facade Renovation & Van Station

: Rangsit Plaza Co., Ltd.

: 5,000 m² (Facade Area)

: Completed, 2024

Conceptual Design

Design Development

Permission Drawing

Tender Drawing

Future Park Rangsit, a super regional mall located in the Northern Zone of Bangkok, envisions a major renovation, both exterior and interior, throughout the whole complex. The exterior renovation, including the north facade renovation and the van station, is one of the first phase of the plan.

I involved in the early conceptual design state then later on I was assigned to assits team to revise the proposed design, VE, and provided tender andconstruction drawing.

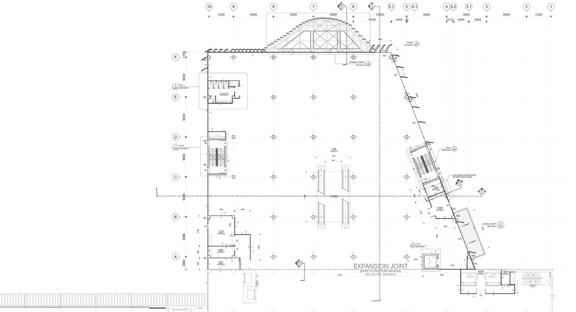
IKEA Store at Emsphere Sukhumvit

Project with Foundry of Space

: Bangkok, Thailand

Program

Client

Building area

Status

Roles

: IKEA store, Facade

: Ikano

: 12,000 m²

: Completed, 2024

Conceptual Design

Design Development

Permission Drawing

Tender Drawing

Construction Drawing

Working with IKEA’s design team to deliver tender and construction drawing for the IKEA store at Emsphere Sukhumvit. Study and visualize the design of the interior shopfront using BIM software and design the Level 3 facade and blade sign which will be expressing IKEA’s branding and identity on the exterior elevation.

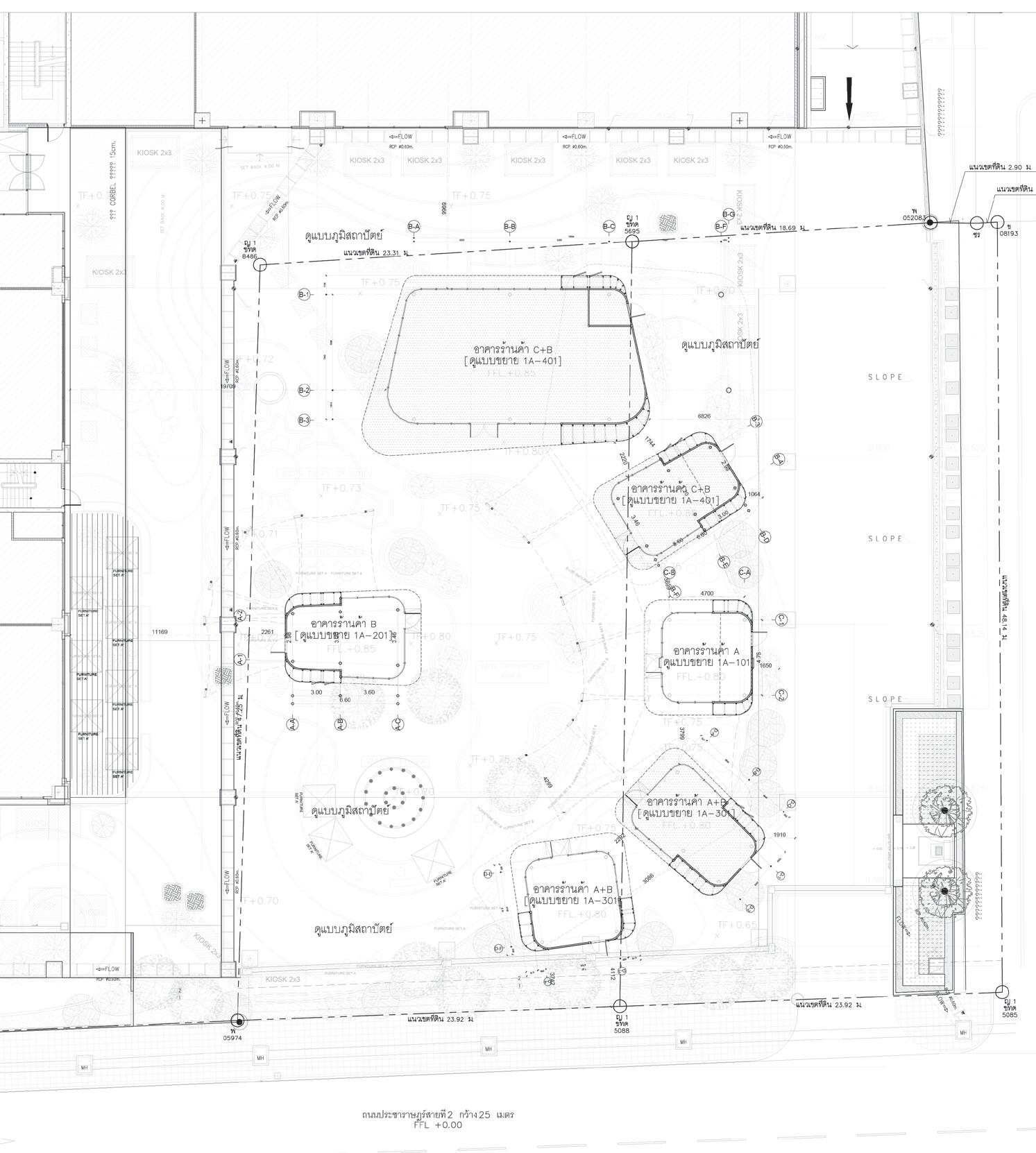
GATEWAY BANGSUE OUTDOOR ZONE

at Gateway Bangsue, Bangkok

Project with Foundry of Space

Location

Program

Status

Roles

: Bangsue, Bangkok, Thailand

: Retail : Completed, 2023

Conceptual Design

Design Development

Permission Drawing

Tender Drawing

Construction Drawing

TRUE DIGITAL PARK

Interior Renovation

Project with Foundry of Space

Location

Program Status

Roles

: Bangkok, Thailand

: Interior Renovation

: Under construction

Conceptual Design

Design Development

Permission Drawing

Working with IKEA’s design team to deliver tender and construction drawing for the IKEA store at Emsphere

With IKEA’s presence in Emsphere mall as an anchor tenant located at level 3F, it is crucial to study and design how IKEA’s branding and identity can be

VANKE GUANGZHOU HUA DI WAN

Retail development at Guangzhou, China

Podium retail design for mixed-use building in Guangzhou, China. Design the overall image of the project through the facade design element, ceiling design, canopy, amphitheater at inner courtyard, landscape and micro-climate strategy. Took inspiration from iconic landscape of the region “Mount Danxia” transform to architectural language of the whole design.

CCCAC:

Community Cultural and Contemporary Art Center

CCCAC is an Community cultural and contemporary art museum located at Klong san, Bangkok, Thailand nearby Rama 8 bridge and Chao Phraya river. During the 3rd year, my colleage and I were doing this project together as a team. After we do the analysis and research, we learnt this site attracts many people already with the public spaces and the nice river view so as the project is to design the museum here, it would draws people even more and there would be more activities that would happen since the museum’s here. As there’ll be more visitors to the site, we thought about how the liveliness the site will become, how arts would create impact to the people, and lastly, how the museum stands as a community center. Not only for the building itself but brought even more lifeliness, create sense that welcom user to interact and appreciate with the art from the outdoor, beyond the park to the bridge and riverfront becase the art should be ready to interact even on the daily basis.

THESIS

As one of Thailand’s industrial district in the eastern region, Rayong province has a significant role to play in the development of education. The government is investing more in education and EEC projects in Rayong, even though the government increases its spending on developing education. Thailand still occupies its place among the bottoms of the ranking.

This thesis aim to study about the need for better education and self-development among certain demographics in Rayong. Rethink the idea of a public learning space and architecture can play a role in supporting a good learning environment for the society in the 21st century.

RAYONG PUBLIC LEARNING AND COMMUNITY CENTER

“ The City’s Public Living Room

The program focusing in three groups, one on ground floor is the open space for public, the second floor will be space for learning library and the upper floor will be space for integration and cooperation learning and co-working area.

The main space were divided into different sections. Industry, agriculture, business, tourism were divided into different box for its independant workshop space and content. The main box at the center are the core program where the integrations between these different sections come together.

The floor on the ground floor is the highest since it is the public space. then the second floor will be more space for user to use the library space which still provide more privacy and independent use rather than open so the user who need focus and concentration would use this space rather than the co-working area on the top floor.

The void were cut several times to create connection between the below and the upper floor. Create natural ventilation to flow to the space and the natural light to go through the floor below. The ourdoor space and roof top terrace are served for outdoor activities where they can have more open area in nature.

Conceptual diagram

DIAGRAM

GO WITH THE FLOW

City Playground design / Exchange program at Hanze UAS, The Netherlands

Go with the Flow is a project that has been designed to offer visitors and inhabitants of Groningen some fun. The design meets the wishes of several users.

The entire playground is connected by a play wall. The wall is transparent in several places to make room for activities for children and elderly. Walkthroughs have been introduced by creating openings. A Flow exists from one side of the street to the other side of the street. The connecting Flow emerges out of the ground and disappears into the ground.

The north ending of the wall has been designed for younger children and cultural aspects. There is room to play and also to provide in theatrical shows. (Singing, dancing, acting, etc.) The south ending of the wall has been designed for adolescents+ to hang out and relax both by and in the water. Typical Groningse phrases are pressed into the wall. This so inhabitants can recognize and visitors can get to know these sayings, for a personal and exciting aspect.

GHOSTS OF NIJO CASTLE

Nijo castle visitor center Workshop at KIT, Japan

This project is a workshop project which KMUTT students went to Kyoto, Japan to do this workshop together among KIT students. The project detail is about Nijo castle at the center of Kyoto city. To design the visitor center for Nijo castle locate nearby the Nijo castle site itself. We as a group have been study through the history and context as well as the design of the castle itself to design the visitor center in the manner of respecting the context as well as the significant Nijo castle, one of the historical heritage of Japan.

The idea that we have developed throughout our team is the Reflecting/Translucent wall concept. Derive from the characteristic of the Nijo castle itself, our building intend to represent and reflecting its importance history to the visitor.

Turn static files into dynamic content formats.

Create a flipbook
Issuu converts static files into: digital portfolios, online yearbooks, online catalogs, digital photo albums and more. Sign up and create your flipbook.
Architecture design portfolio 2024 - Krittin Sirimaha by Krittin Sirimaha - Issuu