PORTAFOLIO_MORALES_KIARA_2023

Page 1

Estuadiante de Diseño de Interiores

Selected works

2019 - 2023

PORTFOLIO

Interiores

KIARA MORALES Diseñadora de

SOBRE MI

Presentación personal donde se muestra mi desarrollo como estudiante hasta la actualidad, teniendo en cuenta las actividades extracurriculares y hobbies. Asimismo, se encuentran mis cualidades y habilidades.

Currículum 2023

DISEÑADORA DE INTERIORES

EDUCACIÓN

2007 - 2018

Kiara

11 de enero del 2002

PERFIL PERSONAL

Estudiante del décimo ciclo de la carrera Diseño Profesional de Interiores en la Universidad Peruana de Ciencias Aplicadas. A lo largo de mi carrera he podido potenciar y desarrollar mis habilidades de organización, creatividad, versatilidad, resolución de problemas, comunicación efectiva y un buen desenvolvimiento en el trabajo en equipo e independiente.

HABILIDADES

Adobe Ilustrator

Adobe Photoshop

Microsoft Office

Rhinocers

Sketchup

Autocad

ACTIVIDADES

2020

Delegada del Aula en la Universidad Peruana de Ciencias Aplicadas - UPC

2020-2021

GEA - Excelencia Académica en la Universidad de Ciencias Aplicadas - UPC

IDIOMAS

Español - Idioma Nativo

Ingles - Nivel Avanzado

2018 - Certificado del Centro de Idiomas Católica

CONTACTO

+51 983337792 / 01 2746215

Email: Kiaramoraleshupiu@gmail.com

https://issuu.com/kiaramoraleshupiu1101

Dirección: Calle Loma del Pilar 418, dpt 401. Santiago de Surco - 15039, Perú.

Colegio Santisimo Nombre de Jesús - Educación Primaria / Secundaria

Ingresé a la institución educativa privada Santísimo Nombre de Jesús, donde realicé toda mi formación primaria y secundaria perteneciendo al Tercio Superior.

2019 - A la actualidad

Universidad Peruana de Ciencias Aplicadas - Educación Univesitaria

Ingresé a la Universidad Peruana de Ciencias Aplicadas donde desde el primer ciclo hasta la actualidad soy parte del Décimo Superior de la carrera.

2022 - 2023

Universidad Europea de Madrid (UEM) - Study Abroad

Fui aceptada en la Universidad Europea de Madrid para realizar un ciclo completo dentro sus instalaciones, donde logré estar en los primeros cinco puestos de mi grupo de estudios.

EXPERIENCIA

2023

Ve - Arquitectura

Trabajé en un estudio de arquitectura donde elaboré planos para espacios residenciales y comerciales. Mi enfoque se centraba en el desarrollo técnico de detalles constructivos, tanto para el mobiliario como para la distribución de espacios, instalaciones eléctricas y revestimientos.

CERTIFICADOS

California Institue of the Arts - Coursera

2021 - Graphic Design

2021 - Brand New Brand

2021 - Introduction to Typography

2021 - Introduction to Imagemaking

2021 - Ideas from History of Graphic

2021 - Fundamentals of Graphic Design

Institute for the Future - Coursera

2021 - Ready, Set, Future! Introduction to Futures Thinking

2021 - Collaborative Foresight: How to Game the Future

2021 - Forecasting Skills: See the Future Before it Happens

2021 - Simulation Skills: This is Your Brain on the Future

2021 - Urgent Optimism: How to Turn Foresight into Action

2022 - Futures Thinking

Michigan State University - Coursera

2022 - Camera Control

2022 - Photography Capstone Project

2022 - Photography Basics and Beyond

2022 - Cameras, Exposure and Photography

2022 - Photography Techniques: Lights, Content and Sharing

2022 - Principles of Photos Composition and Digital Image Post-Production

KIARA
MORALES HUPIU KM

Primer ciclo - 2019-01

PROCESOS CREATIVOS

01 - Diseño inspirado en textura 02 - Estructura en base a módulos

Páginas: 01-04

PORTAFOLIO

DE TRAB

Tercer ciclo - 2020-01

APUNTES Y PERSPECTIVAS

01 - Proyecto de retail 02 - Proyecto comercial

Páginas: 05-08

Sexto ciclo - 2021-02

EQUIPAMIENTO

01 - Recreación y estudio de mobiliario 02 - Estudio de mobiliario

Páginas: 17-20

Sexto ciclo - 2021-02

LOCAL DE VENTA

01 - Diseño de un local de venta 02 - Planimetría del sector

Páginas: 21-24

KIARA MOR

AJOS SELECCIONADOS

ALES HUPIU

Tercer ciclo - 2020-01

EXPRESIÓN DIGITAL

01 - Piezas gráficas de la Bauhaus

02 - Ensayo gráfico

Páginas: 09-12

Séptimo ciclo - 2022-01

PATRIMONIO HISTÓRICO

01 - Diseño especulativo de la propuesta

02 - Planimetría de propuesta del sector

03 - Propuesta-Centro de Artes Aplicadas

04 - Vistas finales de la propuesta

Páginas: 25-32

Cuarto ciclo - 2020-02

CENTRO DE HOSPEDAJE

01 - Refugio de pescadores

02 - Refugio de pescadores

Páginas: 13-16

Octavo ciclo - 2022-02

DISEÑO DE EVENTOS

01 - Inaugaración de un evento

02 - Propuesta del local

03 - Creación de un evento

04 - Vistas finales de la propuesta

Páginas: 32-40

Primer ciclo - 2019-01

PROCESOS CREATIVOS

Este curso introduce a la práctica del proceso creativo como parte esencial de la disciplina. Se aborda desde la experimentación a través de ejercicios individuales y colectivos con temáticas abstractas que facilitan la generación de ideas creativas.

Primer ciclo - 2019-01

Diseño inspirado en textura

Trabajo Final

El proceso del trabajo consistió en elegir una textura compleja que permita poder desarrollar un módulo a partir de sus características principales. Al iniciar el trabajo nos pidieron realizar un análisis completo y representarlo de forma geométrica.

La entrega parcial consistía en hacer un modulo el cual se tendrá que repetir, ya sea de la misma forma o alterando los tamaños para poder generar una estructura compleja que tenga relación con el estudio de la textura seleccionada.

Diseño en base a módulos

Trabajo Parcial

Textura de un elefante Análisis de la textura Análisis geométrico lineal Composición geométrica manual
Procesos Creativos
02
Procesos Creativos Primer ciclo - 2019-01 03
Estructura en base a módulos Trabajo Final

Estructura en base a módulos Trabajo Final

Este trabajo fue elaborado en el primer ciclo de mi carrera universitaria en el 2019. El curso de Procesos Creativos estuvo a cargo del docente Leonardo Sánchez.

El trabajo final consistía en realizar una estructura a base de módulos creados tras una profunda investigación de un objeto en específico. El objeto debía contar con cierta movilidad y complejidad en su estructura.

El objeto de estudio fue un telescopio. Para el desarrollo de la estructura tuve que estudiar cada parte del objeto y su funcionalidad. Con ayuda del estudio y el diseño se fueron creando diferentes prototipos de módulos independientes que luego serían usados para crear una estructura autoportante a base de los módulos y sus ensambles.

04

Tercer ciclo - 2020-01

APUNTES Y PERSPECTIVA

Apuntes y perspectivas, constituye la percepción de las tres dimensiones de las imágenes mentales del diseño o de proyectos emblemáticos ya existentes. En este curso se experimenta con las representaciones a mano alzada, la expresión personal, la exploración de materiales y representación de las sombras.

Proyecto de Retail

Trabajo Parcial

Este trabajo parcial consistía en realizar a mano alzada un perspectiva de un punto de fuga y otra perspectiva de dos puntos de fuga de un local de una empresa reconocida.

Apuntes y Perspectivas Tercer ciclo - 2020-01 06
Boceto de un punto de fuga Boceto con dos puntos de fuga Boceto de un punto de fuga Boceto con dos puntos de fuga
Apuntes y Perspectivas Tercer ciclo - 2020-01 07
Isometría - Starbucks Trabajo Final

Proyecto Comercial Trabajo Final

Este trabajo fue elaborado en mi tercer ciclo de mi carrera universitaria en el 2020. El curso de Apuntes y Perspectiva estuvo a cargo de la docente Cecilia Rozas e Irina Montes de Oca.

El trabajo final consistía en realizar una investigación profunda sobre una empresa reconocida que cuente con una buena paleta de colores y materialidad en sus locales para poder trabajar en base a ello.

El encargo era captar la esencia de la empresa y poder transmitirla con el diseño de una isometría de cuatro cubos como terreno. Para la entrega teníamos que desarrollar el diseño a mano alzada y el prototipo final a digital.

08
Vista principal al segundo piso VIsta principal al primer piso

Tercer ciclo - 2020-01

EXPRESIÓN DIGITAL

El curso busca que el estudiante maneje, conozca, investigue y reflexione el uso de herramientas para el dibujo digital; para que entienda la importancia de la comunicación visual en el ámbito del diseño interior.

Piezas gráficas de la Bauhaus

El trabajo parcial del curso de Expresión Digital consistía en hacer una composición en forma de collage inspirado en una de las mujeres de la Bauhaus. En este caso de la reconocida diseñadora Alma Siedhoff Buscher.

Expresión Digital Tercer ciclo - 2020-01 10
Trabajo Parcial Mockup Trabajo Parcial

Ensayo Gráfico Trabajo Final

El trabajo final se fue desarrollando a lo largo de la segunda mitad del ciclo. Este trabajo fue eleborado en el tercer ciclo de mi carrera universitaria en el año 2020. El curso de Expresión Digital estuvo a cargo de la docente Liset Chávez.

El trabajo final consistió en realizar un estudio a la casa de ladrillo y en base a eso poder desarrollar tanto la planimetría como el diseño de diversas composiciones que representan la esencia de la casa con un diseño único, teniendo en cuenta la materialidad y la forma de los elementos diseñados.

Expresión Digital Tercer ciclo - 2020-01 11
Elevación Lateral Trabajo Final
12

Cuarto ciclo - 2020-02

CENTRO DE HOSPEDAJE

El curso de Centro de Hospedaje busca que el estudiante pueda solucionar a partir del diseño, proyectos con características de flujos internos de forma coherente manejando conceptos de interrelación entre personas.

Refugio para pescadores Trabajo Final

El trabajo final consistía en realizar un refugio para pescadores en Quilca. Para ello debimos realizar una investigación para poder diseñar tanto el exterior como el interior del refugio, cubriendo todas la necesidades del usuario.

Centro de Hospedaje Cuarto ciclo - 2020-02 14
Comedores Espacios sociales Dormitorios

Refugio para pescadores

Trabajo Final

El proyecto tenía como requisito utilizar de base una preexistencia la cual debió ser integrada al producto final del refugio. Los materiales y el diseño fueron pensados para adaptarse a la zona y a la comodidad del usuario, según el análisis realizado.

Perspectiva del refugio

Trabajo Final

Centro de Hospedaje Cuarto ciclo - 2020-02 15
16

Sexto ciclo - 2021-02

EQUIPAMIENTO

El curso de Equipamiento Comercial está orientado a involucrar al estudiante con el tipo de fabricación de los productos del diseño a fin de que pueda proponer soluciones coherentes y pertinentes en sus proyectos de diseño de interiores.

Recreación y estudio de mobiliario Trabajo Parcial

El trabajo consistía en recrear y deducir a profundidad todo lo que hay detrás del diseño de este mobiliario basado únicamente en una fotografía. (la materialidad, el proceso y detalles constructivos, los acabados y su funcionalidad)

Equipamiento Sexto ciclo - 2021-02 18
Elevación Frontal - Aparador Trabajo Parcial

Estudio de mobiliario Trabajo Parcial

Se realizó una investigación de todo el proceso que tiene el material, el mecanismo que permitía su funcionamiento plegable y su instalación empotrada. Además, se presentó el modelado 3D, prototipos físicos y detalles constructivos.

Para deducir la materialidad y las dimensiones del mobiliario se tomaron en cuenta los conocimientos previos del curso. Por ello, se realizó la planimetría y el modelado 3D a detalle, haciendo el despiece y la representación explotada.

Equipamiento Sexto ciclo - 2021-02 19
Puertas Cerradas - Aparador Trabajo Parcial Puertas Semi-PlegadasTrabajo Parcial

Aparador

Corredera puertas plegables Fijación tableros de madera Sistema puertas plegables

Puertas Plegadas - Aparador

Trabajo Parcial

20

Sexto ciclo - 2021-02

LOCAL DE VENTA

El curso está orientado al diseño interior de locales comerciales del rubro retail. El estudiante aplica en este curso, conocimientos sobre prácticas de consumos, marketing, brief comercial, instalaciones eléctricas y mecánicas, iluminación, así como las condicionantes mínimas de seguridad y evacuación.

Diseño de un Local de Venta

Trabajo Final

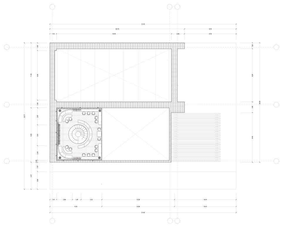
Este proyecto consistía en trabajar en una preexistencia con una función establecida, donde teníamos que crear un local de venta que se adapte a los usuarios y su funcionalidad. Trabajamos en el Aeroparque Esas en Turquía.

Local de Venta Sexto ciclo - 2021-02 22
B C D E F G
Local de Venta Sexto ciclo - 2021-02 23 Planta Primer Nivel ESC 1/100 Planta Segundo Nivel ESC 1/100 H A A B C D F G B C D E F G I J K L M E A C A A B C D E F B C D E F K J I H G A C DOBLE ALTURA DEL ALMACÉN B B

Planimetría del Sector

Trabajo Final

Para el trabajo final se tenía que escoger un sector de todo el proyecto grupal y desarrollarlo a detalle. Dándole la funcionalidad y el diseño interior acorde a la propuesta presentada previamente en la entrega del trabajo parcial.

Se tenia que entregar una planimetría detallada del sector, tanto en cortes, elevaciones y plantas acotadas. Todos los planos cuentan con la información necesaria para poder entender la funcionalidad y la dinámica interior.

A B C D E F G NPT + 0.00 NPT + 9.40 24
Corta A-A ESC 1/100
Corte B-B ESC 1/100
A B C D E NPT + 0.00 NPT + 4.44 NPT + 9.40 RECEPCIÓN PRINCIPAL EXPOSICIÒN DE MENAJES
Venta de menajes Escalera central espiral Segundo nivel de ventas

Séptimo ciclo - 2022-01

PATRIMONIO HISTÓRICO

El curso está orientado al desarrollo de un Proyecto de intervención en un espacio patrimonial. Se desarrolla habilidades técnicas y estrategias de acuerdo con la normativa, además del análisis de los parámetros de conservación y protección del patrimonio. Asimismo, el estudiante desarrolla propuestas de diseño creativas, donde la toma de partido tenga como objetivo principal su relación con la identidad del medio y su historia.

Diseño Especulativo de la Propuesta

Trabajo Parcial

El encargo era una investigación profunda a La Ermita de Barranco. Tras conocer la materialidad, la ubicación, el clima, la topografía y elementos urbanos, teniamos que darle un nuevo uso público que se adecue a las condiciones preexistentes. Adicional a ello, una propuesta especulativa con el Look and Feel de nuestra idea.

Patrimonio Histórico Séptimo ciclo -
26
2022-01
Espacio destinado a invitados especia les que realizarán una exposición de su trabajo con paneles de apoyo para la expositora y un espacio con luz de des taque para ubicar el proyecto. Asimismo, cuenta con asientos para los oyentes. Se empleó tonos neutros con elementos de colores de la paleta propuesta. Zona de Exposición Collage Auditorio

Planimetría de Propuesta del Sector Trabajo Final

La propuesta consistía en un Centro de Artes Aplicadas, donde se realizaba la exposición de velas, vitrales y cerámicas, hechas por los mismos visitantes. Asimismo, en este local se darán talleres para hacer las manualidades.

En la entrega final se presentaba la planimetría detallada de un sector. En mi caso se abarca la cafetería, showroom y área social. Los planos debían estar a detalle y verse la intención de materialidad y funcionalidad del espacio.

-1 2 3 1 2 3 A B C A B CPatrimonio Histórico Séptimo ciclo - 2022-01 27
Planta Segundo Nivel ESC 1/100
B A
MEZZANINE 1 2 A A B C B C 3 1 2 3 28
A B C
Planta Segundo Nivel ESC 1/100
Séptimo ciclo
Patrimonio Histórico
- 2022-01

Propuesta - Centro de Artes Aplicadas

Trabajo Final

Para la propuesta tanto exterior como interior se optó por usar tonos neutros, ya que la finalidad era darles énfasis a los proyectos artesanales. Por ello, se utilizó una paleta de colores suaves, madera y el uso de los elementos naturales como enredaderas y macetas que le den vida al lugar.

30

Vistas Finales de la Propuesta Trabajo Final

Como parte del trabajo final, tuvimos que crear un modelo en render para visualizar de la manera mas realista posible como se vería la propuesta terminada. Teniendo en cuenta la distribución del mobiliario, los materiales, las tonalidades, la funcionalidad y las dimensiones del espacio acorde al uso que le darán los usuarios.

Asimismo, era importante poder representar las actividades que estos mismo realizarían dentro de la zona trabajada para probar y demostrar como serian los posibles recorridos de cada uno de ellos acorde a sus necesidades.

Por otro lado, se debió tener en cuenta los efectos de iluminación acorde a la zona trabajada, ya que así se puede dar más énfasis a las intenciones que se tienen con cada uno de los espacios trabajados. En este caso, optamos por luces de tono neutro debido a que destacar e iluminar toda una zona sin alterar la vista.

Finalmente, se tuvo que tener gran cuidado para seleccionar las mejores vistas, las cuales debían tener el ángulo perfecto para que no deforme el espacio y al mismo tiempo se pueda entender a simple vista el desarrollo del lugar.

Patrimonio Histórico Séptimo ciclo - 2022-01 31
32
Cafeteria Mezzanine Vista Segundo Nivel Cafeteria General Vista Completa Cafeteria Interior Vista Primer Nivel

Octavo ciclo - 2022-02

DISEÑO DE EVENTOS

El curso está orientado a que el estudiante sea capaz de poder identificar la identidad de la marca, creando un branding adecuado que capture los elementos destacables de esta. Asimismo, busca que tras una investigación el alumno pueda crear y diseñar eventos que cumplan con todas las necesidades que requiera el publico objetivo y la funcionalidad que se busca.

Inauguración de un evento

Trabajo Parcial

El proyecto parcial consistía en buscar un local de un restaurante que cuente con una terraza en las afueras de Madrid. Una vez ya seleccionado el restaurante se tenia que realizar una investigación profunda sobre su ubicación, usuario objetivo, personal de servicio, menú, intención del local, su identidad, el branding existente y las necesidades que requiere su terraza en la actualidad.

Asimismo, teníamos como encargo buscar un motivo por el cual podríamos mejorar la terraza y al mismo tiempo darle una inauguración con invitados seleccionados, con el fin de crear un evento social ubicado principalmente en la nueva propuesta en la terraza diseñada y adaptada a las condiciones del evento.

TRADICIONES

Diseño de Evento Octavo ciclo - 2022-02 34

Propuesta del Local Trabajo Parcial

El restaurante seleccionado lleva el nombre de Mis Tradiciones tiene como dirección Paseo de las Yeserías 15, Madrid - España. Es un restaurante de comida y temática peruana. Asimismo, cuenta con una terraza sin uso y en estado descuidado. Sin embargo, tiene una buena dimensión y con gran potencial.

Para el encargo opte por escoger este restaurante con el fin de crear una nueva terraza que pueda sacar provecho el local y al mismo tiempo diseñar un evento de inauguración de esta misma terraza junto a la ampliación de su menú.

Tras la investigación y la visita física me pude percatar la falta de esencia que este local tenia, desde elementos básicos como la vajilla hasta el branding completo de su marca como restaurante. Tenia elementos aleatorios que no concordaban con el principal objetivo de representar el estilo rustico peruano.

Opté por crear un branding completo y proponer una remodelación interior que vaya acorde con la nueva terraza. Usando nuevos materiales y tonalidades que vayan acorde a las intenciones del local de representar una identidad peruana.

Diseño de Evento Octavo ciclo - 2022-02 35

Propuesta - Inaugaración de Terraza

Trabajo Parcial

Se realizó el evento de inauguración de la nueva terraza y la adición de nuevos postres peruanos a su carta preexistente, con invitados seleccionados e invitados especiales. Asimismo, se acompañó el evento con música en vivo con canciones típicas peruanas para ambientar el evento.

36
Escenario Demostrativo Terraza del Evento Bar y Zona Social Terraza del Evento Ingreso a la Terraza Terraza del Evento

Creación de un Evento Trabajo Final

El trabajo final consistía en la creación de una nueva marca en un espacio ya existente dentro del Paisaje de la Luz, en este caso dentro del Parque del Retiro, Madrid – España. Además, teníamos el reto de que el espacio y la fecha seleccionada tenia que estar ligada a nuestra propuesta de marca e idea del evento.

Se comienza a pensar en la marca, los elementos gráficos, la temática del evento, los invitados, las actividades, el itinerario, etc. Sin embargo, antes de pensar en detalles del evento se tiene que definir el branding que le dará la identidad. LATINO, ya que es una exposición de trajes y danzas típicas latinoamericanas en Europa.

1ERA EDICIÓN

EXPOSICIÓN DE TRAJES TÍPICOS

Lorem ipsum dolor sit amet, consectetuer adipiscing elit, sed diam nonummy nibh euismod

Lorem ipsum dolor sit amet, consectetuer adipiscing elit, sed diam nonummy nibh euismod Lorem ipsum dolor

Lorem ipsum dolor sit amet, consectetuer adipiscing elit, sed diam nonummy nibh euismod Lorem ipsum dolor sit amet, consectetuer adipiscing elit, sed diam nonummy nibh euismod Lorem ipsum dolorm ipsum dolor m ipsum dolor m ipsum dolor m ipsum dolor

Lorem ipsum dolor sit amet, consectetuer adipiscing elit, sed diam nonummy nibh euismod Lorem ipsum dolor sit amet, consectetuer adipiscing elit, sed diam nonummy nibh euismod Lorem ipsum dolor

Diseño de Evento Octavo ciclo - 2022-02 37
Branding de la marca Branding de Latino
#074256 Variación del logo #731422 Variación del logo #AF4825 Variación del logo #323F2B Variación del logo

EXPOSICIÓN DE TRAJES TÍPICOS

P.º de Venezuela, 2, 28001 Madrid

29 ABR

29 MAY

VIVE LA EXPERIENCIA DE RECORRER LATINOAMERICA JUNTO A NOSOTROS

La primera edición de lATiNO, exposición de Trajes Típicos de Danzas Latinoamericanas te espera con las puertas abiertas desde el día 29 de Abril hasta el 29 de Mayo, desde las 11:00 am hasta las 6:00pm. El acceso es gratuito y hasta llenar aforo.

¿QUÉ ENCONTRARÁS EN NUESTRA PRIMERA EDICIÓN DE LATINO - EXPOSICIÓN DE TRAJES TÍPICOS?

En lATiNO encontrarás diversos trajes de Danzas Peruanas, Cubanas, Brasileras y Panameñas. Estos estarán exhibidos de maneras bastante dinámicas para hacer de tu visita una experiencia única. Esperamos que la puedas disfrutar al máximo.

38
Flyer del Evento Elemento Gráfico

Vistas Finales de la Propuesta Trabajo Final

LAtINO es una marca dedicada a exponer las danzas y trajes típicos de diferentes partes de Latinoamérica en Europa y en diferentes partes del mundo, para que puedan ver y reconocer nuestro arte. Para ello, contamos con el apoyo de los ministerios de cultura que también buscan expandir el arte de nuestros países.

LAtINO tendrá más ediciones, donde se podrán ir variando los países que se presentan en la exposición. Para el proyecto final teníamos que crear un evento, el cual fue la primera edición de la LAtINO, donde se presentaron cuatro países.

Ubicado en El Palacio de Velásquez, dentro del Parque del Retiro. Es un espacio destino para exposiciones y cuenta con las dimensiones perfectas. Por otro lado, en cuanto a la fecha de la primera edición opté por seleccionar el día de la danza, ya que se podrá vincular con la exposición de trajes típicos de danzas latinas.

En el evento se visitará cuatro países, donde verás y aprenderás de sus trajes y danzas típicas, degustarás de un aperitivo y una bebida de cada país y disfrutarás de un show en vivo con una danza típica seleccionada por cada uno de ellos.

Diseño de Evento Octavo ciclo - 2022-02 39
40
Paneles digitales Exposición de Cuba Moodboards Exposición de Brasil Trajes expuestos Exposición de Panamá
¨El contenido precede al diseño. no es diseño, es El contenido precede al diseño. diseño, JEFFREY 20
diseño. Diseño sin contenido es decoración diseño. Diseño sin contenido es decoración¨ ZELDAMN 08
Collage rhinoceros Curso Aplicación Digital
KIARA MORALES HUPIU KM
2023
PORTAFOLIO

Turn static files into dynamic content formats.

Create a flipbook
Issuu converts static files into: digital portfolios, online yearbooks, online catalogs, digital photo albums and more. Sign up and create your flipbook.