UPN Taller de Arquitectura 4 - Análisis de Casos Internacionales

Page 1

za a pr or dad de a v da n e or de ed cio

UBICACIÓN 1

EMPLAZAMIENTO 1

PRINCIPIOS ORDENADORES Y ORGANIZADORES

Edificio Costa Blanca

TOPOGRAFIA 1

CLIMA 1

s de eq kp m entos como c e e á e de r b o co ec o e c q e b sc n

ILUMINACIÓN Y VENTILACIÓN 1

VIAS VEHICULARES-PEATONALES 1

Forma y volumen del edificio 1

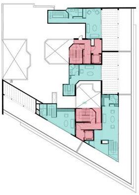
ZONIFICACIÓN 1

1 CONCEPTO E IDEA RECTORA

q q d ó as de ha a se en un con a dea de of ece á t p d p ó d endo mayor con ort os hué pede Desde e y g t q p h d

PRINCIPIOS ORDENADORES Y ORGANIZADORES

MATERIALIDAD 1

UBICACIÓN 1

MODULACIÓN ESTRUCTURAL 1

1

ZONIFICACIÓN 1

CLIMA

VIAS VEHICULARES-PEATONALES 1

CIRCULACIONES Y RECORRIDOS ESPACIALES

Forma y volumen del edificio

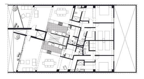
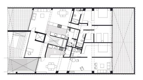
INTEGRANTES: Adriana Quiñones - Daniela Polo - Kimberly Picon - Anilú Rojas - Khrystall Verano DOCENTE : ARQ OMAR WINCHO CHILQUILLO / ARQ MARICIELO BRENIS GUTARRA E ed ic o Atenea p opuesto por K+M Arqu tectura y Urban smo cons ste en un edi ic o de 6 v v endas pa a os m embros de una organizac ón cu tural cuenta con un á ea de 2950m2 ubicados en a ca e Los Ge an os cuadra 1 en L nce Lima- Perú UBICACIÓN 1 A R ES TO JIRÓNLOSJAZMINES ORQUIDEAS F t g d b d t g d b C p g èt p p g V p p p l pip d ió p d La dea de este proyecto en a como f na dad p omover una v da en comun dad Es po e o que se f t g p t L h d d t p d d f y d amb entes comunes que busca conso dar un área de n egrac ón sem pub ca que re uerce e p t d t d d t p p t d d f y b q d h i cuya achada en a
SUSTRACCIÓN a) Armon a Los espac os se re ac onan de mane a cont gua mp a b E E - E engua e unc ona sta -Emp eo de ormas geométr cas s mp es y es uc ura egu ares -T d d ó Es a ed cac ón de se s p sos resa ta mucho po su gran achada Ten endo es recha re ac ón con su a rededo DESCRIPCIÓN DEL ESPACIO Buena propo c ón de espac os Ent ada de uz natura Espac os más amp os y cómodos D st ibu do de muy buena manera tan o en as v v endas po o t como en os espac os de comun dad Es e pa o o rece una
ádem
área
dad ent e C RCULAC ÓN VERTICAL DEPARTAMENTOS C RCULAC ÓN HORIZONTAL ÁREAS COMUNES CIRCULACIONES Y RECORRIDOS ESPACIALES 1 TRAMA ESTRUCTURAL EMPLAZAMIENTO 1 POSICIONAMIENTO 1 TOPOGRAFIA 1 CLIMA 1 VIAS VEHICULARES-PEATONALES 1 Forma y volumen del edificio 1 1 REPETICIÓN S METR A CONCEPTO E IDEA RECTORA 1 PRINCIPIOS ORDENADORES Y ORGANIZADORES 1 ZONIFICACIÓN 1 MATERIALIDAD 1 1 COMPOSICIÓN ARQUITECTÓNICA 1 d TALLER DE ARQUITECTURA 4 6728 07/09/2023 1 ANÁLISIS DE CASOS EDIFICIO ATENEA EDIFIC
se ie de espac os de encuent o a ravés de pas os anchos momentos de es
conso da un
de nteg ac ón púb ca que a men e y refuerce e esp r tu de co ect v
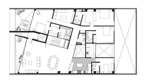
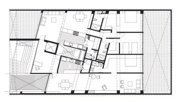
429 UBICACIÓN 1 1247 A P M f P d L EMPLAZAMIENTO 1 nf rado TOPOGRAFIA 1 CLIMA 1 E M f t y b d o nv erno on cor os r os secos pa c a men e nub ados Du ante e ranscurso de año a temperatu a g d 2 C 15 C y b d -1 C b á d 18 C VIAS VEHICULARES-PEATONALES 1 Av Vasco Nuñez de Ba boa Av La paz C Juan Fann ng J José Gonza es Forma y volumen del edificio 1 Un ma co pr nc pa en vo ad zo const tu do p p h t uperpue os de ne a magen de a p p t ORIENTACIÓN 1 hac a e su oe e DESCRIPCIÓN DEL ESPACIO CIRCULACIONES Y RECORRIDOS ESPACIALES
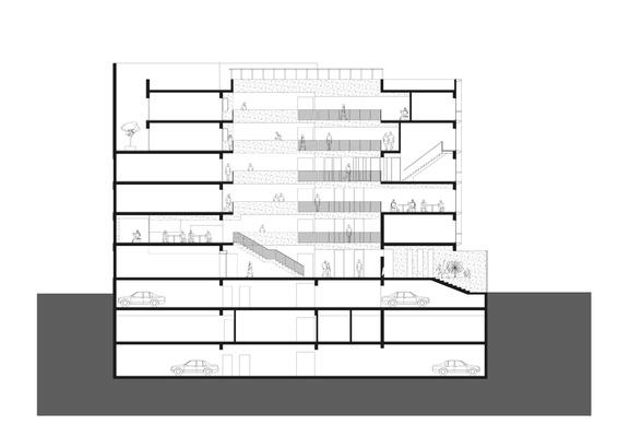
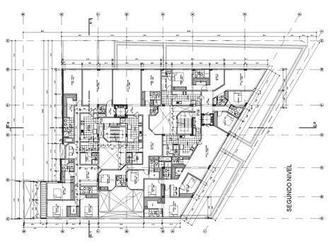
CONCEPTO E IDEA RECTORA ZONIFICACIÓN C d d d Mé Mé t d y p y En C udad de México a temporada de l y b d y p d cómoda y parc a men e nub ada Durante e t anscurso de año a temperatu a genera mente var a de 6 C a 27 C y b d 3 C b á C as mé r co e e p t ó 1 t 2 p p 8 p an a 1 p t SERV C O E d ó presen a 8 n ve es a 7 y 8 p an a son d p p p d estac onam en o ene espac os pequeños p d ó ver ca d p t serv c os c rcu ac ón ho zonta n erna reco do nea d ace o t Esta ed cac ó es a odu ada po 16 e e es uctu a e Su s ema estruc ura es a a base de v gas y d y V as pr nc pa es V d Ub cac ón PEATONALES Tem stoc es 12 es un ed c o sob e un er eno de o ma rec angu a como muchos o ros en a co on a Po anco C d q d y d g hac a a ca e y o man dos vo úmenes que componen a achada Todos os depa tamen os enen una e raza regu ar hac a e f en e d d d d y d d h p f d d d a a achada bacones perm endotambénque as o hacae e ero S STRACCÓN NDAD SOCAL SERVCO NTIMO CRCULACÓN VERTICAL RECORRIDO CIRCULACIONES Y RECORRIDOS ESPACIALES 1 DESCRIPCIÓN DEL ESPACIO 1 cubo de um nac ón y ven ac ón a cen ro se u za amb én para a esca era que sube os 5 n ve es y 8 d p y p h ú t Vd o Conceo Mayo um nac ón M y ó Debdoa ao en acónde h d p p CARACTERÍSTICAS DEL TERRENO 1 Te reno p ano de o ma rectangu a 5 n e e 8 d p P t g L ssm h p p d En Oporto cómodos mayormen nv ernos son r os mo ados y parc a men e nub ado Du an e e t an cu so de año a tempe atura genera men e va a de 6 C a 24 C y ra a vez ba a a menos de 1 C o sube a más de 30 C L G d é p p d es denc a e con fachadas con nua y árbo es rondo os Hemo a u ado a vo ume r a de nues o p y d f d p d g E p q d c os t s as pa c a s a a onaprvada crc acón C Q CU TA NTA NTA NTA concretoo curopara ex ero bl p E dseño de o ba cones drge e d haca e O éa o At ántco p rmt do ambé q g d e ta as e te da as áreas soca e d d h t PRINCIPIOS ORDENADORES Y ORGANIZADORES p ó ó CAREAONSTRUIDA 815m2 RELACIONES ESPACIALES 1 espacio contiguo

Turn static files into dynamic content formats.

Create a flipbook
Issuu converts static files into: digital portfolios, online yearbooks, online catalogs, digital photo albums and more. Sign up and create your flipbook.