Portafolio Arquitectónico 2024

Page 1

POR TA FOLIO

ARQUITECTÓNICO 2024

Katia Shelyak Betancourt De Limas

Katia Shelyak Betancourt De Limas

Soyestudianteproactiva,resilienteycon

sentidoderesponsabilidaddel8vo semestredelacarreradearquitecturaen elTecnológicodeMonterrey,Campus CiudaddeMéxico.

Buscoampliarmisconocimientos,asícomo compartirlosmíosyalmismotiempo, adquirirexperienciaenelámbito profesional.

LOGROS

Menciónhonoríficaenproyectoarquitectónicode3ersemestre "Parasol"EAADIn-site.Diciembre2021.

Premioa"Mejorsoluciónalproyecto"porproyectoarquitectónico realizadoen5tosemestre"CastilloSantaLucía".EAADIn-site. Diciembre2022.

Mencióndeproyectodemodelado"As-Built"realizadocon Liverpoolen6tosemestre.In-site.Junio2023.

Premioa“MejorProyecto”porproyectoarquitectónicorealizadoen 7mosemestre“CentrodeInvestigaciónCiudaddeMéxico”.EAAD Insite.Diciembre2023.

APTITUDES

Trabajoenequipo

Comunicación

Creatividadparapresentar propuestasinnovadoras

Responsabilidadydedicación

ConocimientodegestiónBIM

IDIOMAS

Español(idiomanativo)

InglésnivelB2(Certificación LinguaskillBusiness)

SOFTWARE

Photoshop AutoCAD 3DS PowerPoint
Word Project AdobeIllustrator Excel Navisworks Revit GoogleEarthPro

CONTENIDO

02

01
CASA-JIB CASTILLOSANTA LUCÍA
03
BUILT”
MODELADO“AS-

CASA-JIB

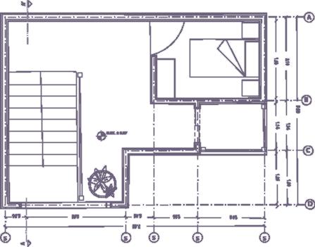
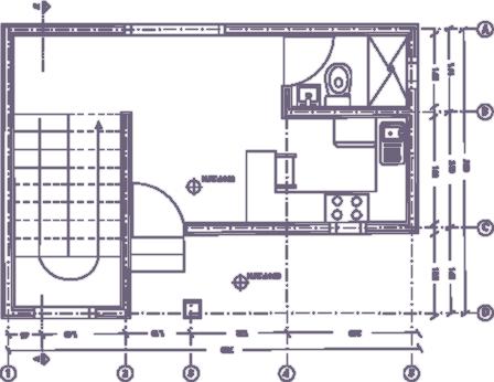
01

Casa-JIB

PRIMER NIVEL

Viviendaunifamiliarquecontienelasmedidas mínimas,cuentaconunáreade35m2.

Ubicación CalleTransmisiones#156,Tlalpan,CDMX
PLANTABAJA
PLANTAS
CORTETRANSVERSALA-A’
CORTE

02 CASTILLO SANTA LUCÍA

Castillo Santa Lucía Conjuntodepartamentalqueplanteala construcciónde466departamentosdivididos en3tipologías,másamenidades.Eldiseñose rigiómedianteelusodelaformahexagonal.

Ubicación Av.Tamaulipas#64,Col.SantaLucía,

CDMX
PLANTABAJA
CORTE
CORTELONGITUDINALA-G’

FACHADA

FACHADAOESTE

03 MODELADO “AS-BUILT”

MODELOESTRUCTURAL

MODELOARQUITECTÓNICO

Liverpool
Modelado“As-Built”delalmácendeLiverpool, ubicadoenGaleríasPerisur.
AnilloPeriféricoSur#4690,Col.Ampliación, JardinesdelPedregaldeSanÁngel,Coyoacán, CiudaddeMéxico,CDMX
Perisur
Ubicación

SECCIONES A DETALLE

DULCERÍA

PERFUMERÍA

NIVELES

SÓTANO

1ERNIVEL

3ERNIVEL

MUEBLEDE CAJAREGISTRADORA

ECAY
AXONOMÉTRICO
CONTACTO Katia Shelyak Betancourt De Limas katiasbdl@gmail.com A01659747@tec.mx MX +52 833 437 0167

Turn static files into dynamic content formats.

Create a flipbook
Issuu converts static files into: digital portfolios, online yearbooks, online catalogs, digital photo albums and more. Sign up and create your flipbook.