

![]()



1
SANCTUARY STUDIOS
PAGES 3-6
2
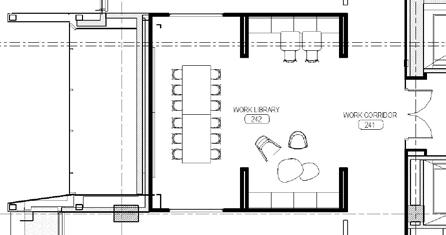
CONF. GAMING CLIENT WORKPLACE PAGES 7-10
HOSPITALITY
4
CONF. TECH CLIENT WORKPLACE PAGES 15-18
WORKPLACE
5
UCI VERANO 8 PAGES 19-23
WORKPLACE
3
CONF. TECH CLIENT WORKPLACE PAGES 11-14
6
EDUCATION / HOUSING
UCSD NUEVO PAGES 24-27

SEATTLE, WA 2,633
COMPLETED FALL 2019
GRAY AWARDS 2020 - INTERIOR DESIGN, COMMERCIAL
GENERAL CONTRIBUTIONS /
/ DEVELOPMENT OF CONCEPT, COLOR, AND FEEL FOR SANCTUARY’S FIRST STUDIO PROTOTYPE
/ PRESENTATION TO AND COLLABORATION WITH THE CLIENT
/ MATERIAL AND HARDWARE SELECTION
/ 3D DEVELOPMENT OF INTERIOR MODEL
/ CONSTRUCTION ADMINISTRATION
/ SEE FOLLOWING PAGES FOR ADDITIONAL CONTRIBUTIONS


CONTRIBUTIONS / / 3D REVIT MODELING AND RENDERING
/ DRAWING DOCUMENTATION
/ COLOR AND MATERIAL SELECTION
/ HARDWARE SELECTION
/ COORDINATION WITH LIGHTING CONSULTANT / ARTICULATION OF CLIENT NEEDS AND CONCEPT



CONTRIBUTIONS /
/ COLOR AND MATERIAL SELECTION
/ COORDINATION WITH TECHNOLOGY
CONSULTANT
/ REVIEW SUBMITTALS AND RFIS
/ FINAL PUNCH









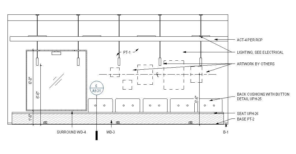
CONTRIBUTIONS / / COLOR AND MATERIAL SELECTION
/ HARDWARE AND PLUMBING FIXTURE SELECTION
/ RCP COORDINATION
/ 3D REVIT MODELING AND RENDERING
/ CASEWORK DESIGN AND DRAWINGS

BELLEVUE, WA 13,726
COMPLETED NOVEMBER 2023
GENERAL CONTRIBUTIONS /
/ PLANNING FROM BLOCKING DIAGRAMS TO FINAL WALL LAYOUT
/ SELECTION OF FINISHES AND LIGHTING
/ DESIGN AND DETAILING OF CASEWORK.
/ COLLABORATION WITH FURNITURE & ART VENDORS ON SCOPE, LAYOUT, AND FINISHES
/ COORDINATION WITH GC AND SUBS TO BRAINSTORM SOLUTIONS TO TRICKY EXISTING CONDITIONS
/ PROCESSING OF ALL CONSTRUCTION ADMINISTRATION DOCUMENTS.
/ SEE FOLLOWING PAGES FOR ADDITIONAL CONTRIBUTIONS















CONTRIBUTIONS / / CONCEPT TRANSLATION / COLOR & MATERIAL SELECTION / DESIGN & DETAILING OF CASEWORK / DESIGN, SELECTION, AND COORDINATION OF ALL LIGHTING AND CEILING ELEMENTS / SCREEN STUDIES AND DESIGN OPTIONS DURING VALUE ENGINEERING / COORDINATION WITH HORTICULTURE

CAFE ISLAND & SEATING
CONTRIBUTIONS / / DESIGN OF FLOOR GRAPHIC / ON SITE DECISIONS ON HOW TO WORK AROUND OR FIX EXISTING CONDITIONS / CLIENT GUIDANCE THROUGH CONSTRUCTION CONTINGENCY BUDGET AS PROJECT PROGRESSED / DIRECT COORDINATION WITH STRUCTURAL FOR SEIMIC ENGINEERING OF CLOUD CEILING










CONTRIBUTIONS / / SPACE PLANNING FOR A TRICKY SHAPED BUILDING / DEVELOPED QUESTIONAIRES FOR POST-OCCUPANCY STUDIES FROM PREVIOUSLY COMPLETED CLIENT PROJECTS / TOOK FEEDBACK FROM QUESTIONAIRES TO INFORM PLANNING & DESIGN CHANGES / COLLABORATION IN FURNITURE SELECTION & FINISHES FOR DURABILITY AND FLEXIBILITY / COORDINATION OF FURNITURE INSTALLATION & PLACEMENT


SEATTLE, WA 320,000 COMPLETED JANUARY 2020
GENERAL CONTRIBUTIONS / / DEVELOPMENT AND CONSTRUCTION ADMINISTRATION OF ENVIRONMENTAL GRAPHICS PACKAGE / FURNITURE SELECTION, FURNITURE MATERIAL SELECTION, SPECIFICATION, AND DEALER COORDINATION / ARTWORK SELECTION AND COORDINATION / SEE FOLLOWING PAGES FOR ADDITIONAL CONTRIBUTIONS






CONTRIBUTIONS / / DEVELOPMENT OF ENVIRONMENTAL GRAPHIC CONCEPTS AND FILES / GRAPHIC ITERATION BASED ON CLIENT FEEDBACK / DETERMINED PROPER MATERIALS AND INSTALL METHODS WITH SUB / REVIEWED SUBMITTALS FOR CUSTOM WALL COVERINGS
















CONTRIBUTIONS / / CUSTOM TABLE AND SOFA SHOP DRAWING REVIEW / FURNITURE SELECTION / CONSIDERATION OF FURNITURE STANDARDS AND WARRANTIES / FURNITURE FABRIC SELECTION / FURNITURE PUNCH


/ SELECTION OF ARTWORK AND FRAMING
/ COORDINATION OF SITE ART INSTALLATION
/ FURNITURE SELECTION
/ CONSIDERATION OF FURNITURE STANDARDS AND WARRANTIES
/ FURNITURE FABRIC SELECTION
/ FURNITURE PUNCH
















AUSTIN, TX
APPROX 300,000 SF
UNDER CONSTUCTION - TO BE COMPLETED FALL 2024
GENERAL CONTRIBUTIONS /
/ DEVELOPMENT OF CONCEPT, GRAPHICS, AND ILLUSTRATION STYLES FOR ENVIRONMENTAL GRAPHICS & SPECIALTY SIGNAGE
/ COORDINATION WITH INTERNAL INTERIORS TEAM ON PLACEMENT, SCOPE, COLOR SCHEMES
/ COLLABORATION WITH LIGHTING DESIGNER AND SIGNAGE INSTALLER ON BUILDABILITY
/ CONSTRUCTION DETAILING AND MATERIAL SELECTION FOR GRAPHICS & SIGNAGE
/ SEE FOLLOWING PAGES FOR ADDITIONAL CONTRIBUTIONS

LOBBY ACOUSTICAL MURAL
CONTRIBUTIONS / / DEVELOPMENT OF ENVIRONMENTAL GRAPHIC CONCEPTS AND FILES / GRAPHIC ITERATION BASED ON CLIENT FEEDBACK / DETERMINED PROPER MATERIALS AND INSTALL METHODS WITH SUB / REVIEWED SUBMITTALS FOR CUSTOM WALL COVERINGS







CONTRIBUTIONS / / DEVELOPMENT OF ENVIRONMENTAL GRAPHIC CONCEPTS AND FILES / GRAPHIC ITERATION BASED ON CLIENT FEEDBACK / DETERMINED PROPER MATERIALS AND INSTALL METHODS WITH SUB / REVIEWED SUBMITTALS FOR CUSTOM WALL COVERINGS GRAPHIC CONCEPTS (PER FLOOR) /





CONTRIBUTIONS / / DEVELOPMENT OF ENVIRONMENTAL GRAPHIC CONCEPTS AND FILES / GRAPHIC ITERATION BASED ON CLIENT FEEDBACK / DETERMINED PROPER MATERIALS AND INSTALL METHODS WITH SUB / REVIEWED SUBMITTALS FOR CUSTOM WALL COVERINGS


IRVINE, CA 497,000 AUGUST 2022
GENERAL CONTRIBUTIONS /
/ HEAD INTERIOR DESIGNER IN CHARGE OF MOST MATERIAL DIRECTION, ROOM PLANNING, AND DESIGN DIRECTION
/ CURRENTLY WORKING THROUGH FURNITURE SELECTION, CONSTRUCTION ADMINISTRATION, AND DEVELOPMENT OF ENVIRONMENTAL GRAPHICS
/ DIRECT COORDINATION WITH CONTRACTORS AND CONSULTATIONS THROUGHOUT THE DESIGN BUILD PROCESS
/ WORKED THROUGH DESIGN AND VE EXERCISES TO MAINTAIN TIGHT BUDGET
/ SEE FOLLOWING PAGES FOR ADDITIONAL CONTRIBUTIONS











/











CONTRIBUTIONS / / MATERIAL SELECTION AND DESIGN / ENSCAPE RENDERING / RCP LAYOUTS AND ELECTRICAL COORDINATION / PROGRAM INTEGRATION / FURNITURE SELECTION / CONSIDERATION OF FURNITURE STANDARDS AND WARRANTIES


CONTRIBUTIONS / / CORRIDOR MATERIAL SELECTION AND DESIGN
/ INTEGRATION OF CONCEPT WITHIN CORRIDOR DESIGN
/ COLLABORATION WITH ARCHITECTS AND SUB-CONTRACTORS FOR UTILITY AND RCP COORDINATION / ENSCAPE RENDERING














CONTRIBUTIONS / / UNIT MATERIAL SELECTION AND DESIGN / COORDINATION WITH CASEWORK SUB THROUGH DESIGN, DETAILING, AND SHOP DRAWINGS OF KITCHEN AND VANITY CASEWORK / CODE REVIEW OF UNIT LAYOUTS

SAN DIEGO, CA 1,160,000 SF (WOWZA)
COMPLETED SPRING 2020
GENERAL CONTRIBUTIONS /
/ ASSISTED IN DESIGN, MATERIALS, AND DOCUMENTATION OF 2 CAMPUS EXPANSION PROJECTS
/ LED FURNITURE SELECTION AND ORGANIZED A CLIENT SIT TEST IN MITHUN’S LOS ANGELES OFFICE
/ COORDINATED DIRECTLY WITH CONTRACTORS AND CONSULTATIONS THROUGHOUT THE DESIGN BUILD PROCESS
/ WORKED THROUGH DESIGN AND VE EXERCISES TO MAINTAIN TIGHT BUDGET
/ REVIEWED SUBMITTALS AND RFIS AND MADE VISITS TO THE SITE TO CHECK ON CONSTRUCTION PROCESS
/ SEE FOLLOWING PAGES FOR ADDITIONAL CONTRIBUTIONS



CONTRIBUTIONS / / ASSISTED IN DESIGN OF RECEPTION DESK / DETAIL DEVELOPMENT FOR RECEPTION DESK AND LIGHTED SURROUND / MATERIAL SELECTION / LIGHT FIXTURE SELECTION AND COORDINATION / SITE VISITS TO VERIFY PROGRESS OF INTERIOR WORK / SUBMITTAL AND RFI REVIEW




CONTRIBUTIONS / / CUSTOM TABLE AND BENCH DESIGN, DETAILING, AND SHOP DRAWING REVIEW / FURNITURE SELECTION / CONSIDERATION OF FURNITURE STANDARDS AND WARRANTIES / FURNITURE FABRIC SELECTION / ASSISTED IN SELECTION OF BUILDING MATERIALS



CONTRIBUTIONS / / DESIGN AND RECONFIGURATION OF UNITS TO MEET CODE / APPLICATION OF CODE FOR KITCHEN AND BATHROOM CASEWORK AND ACCESSORIES / ROOM FURNITURE SELECTION, SPECIFICATION, AND COORDINATION / ASSISTED IN SELECTION OF BUILDING MATERIALS / LIGHT FIXTURE LAYOUT AND ELECTRICAL COORDINATION


