Portafolio+CV 2025

Page 1


Portafolio
ARQUITECTO
KARINA MAZZONE

https://www.behance.net/karinamazzone https://www.linkedin.com/in/karinamazzone/

Kitchen 2025| Proyecto de remodelación

Creating Value/ Apartment Redesing | Proyecto de remodelación

El Quincho | Proyecto construido

Living room | Proyecto de re-decoración

| Proyecto

01

K i t c h e n 2 0 2 5

2025

Caracas, Venezuela

Arq. Sarahí Morales equipo

Diseño y visualización

Proyecto de remodelación y diseño interior

rol tipo estado

Obra en construcción

descripción año ubicación

El cliente requería del diseño de una cocina donde el objetivo era que fuera de estilo moderno, de lineas limpias y formas geométricas sencillas, siempre manteniendo la pulcritud en el mismo.

Plano planta de la cocina.

Plano de gabinetes superiores de la cocina.

Plano de gabinetes inferiores de cocina.

Render hacia la fachada norte y este de la cocina.

Fachada lado este gabinetes de la cocina.

Plano de demolición

Isometrías del diseño de los gabinetes de la cocina.

Isometría de la cocina con sus respectivos gabinetes.

El proyecto constó del diseño de una cocina cuya distribución permite mantener la fluidez constante y funcionalidad sin perder el confort que este espacio necesita. Se utilizó una paleta de colores de tonos claros utilizando principalmente cremas, grises y blancos dándole a su vez contraste con la textura de la madera utilizada en los gabinetes inferiores y en los detalles de metal negro que se encuentran en distintas partes de algunos elementos que la componen como las luminarias.

Render hacia la fachada oeste y norte de la cocina
Vista hacia la fachada oeste
Vista hacia la fachada este

Kitchen 2025 | Proyecto de remodelación | 2025 Render hacia el espacio de la cocina

02

C r e a t i n g V a l u e / A p a r t m e n t R e d e s i n g

año

2024

ubicación

Roma, Italia

Arq. Sarahí Morales equipo

rol

Diseño y visualización

Proyecto de remodelación y diseño interior

tipo estado

Ganadoras 2do lugar del concurso. Finalizado

descripción

El proyecto constó del rediseño de un apartamento ubicado en Roma, el cliente solicitó estrategias para aprovechar al máximo el espacio para finalmente generar un aumento en su valor, además de modernizar el estilo del mismo.

En espacios como la sala de estar y la cocina, el principal objetivo era el de crear un concepto abierto y de comunicación constante y directa entre ambas áreas. Por otro lado, en las habitación principal, las habitaciones secundarias y en ambos baños el objetivo era el de aprovechar el espacio para aumentar la funcionalidad de los mismos sin perder el confort y fluidez dada entre las distintas areas del apartamento.

DORMITORIO PRINCIPAL VESTIER

BAÑO PRINCIPAL

SEGUNDO DORMITORIO

SALA DE ESTAR Y COMEDOR

DORMITORIO PRINCIPAL

COCINA TERCER DORMITORIO/ESTUDIO

BAÑO SECUNDARIO

Plano de demolición

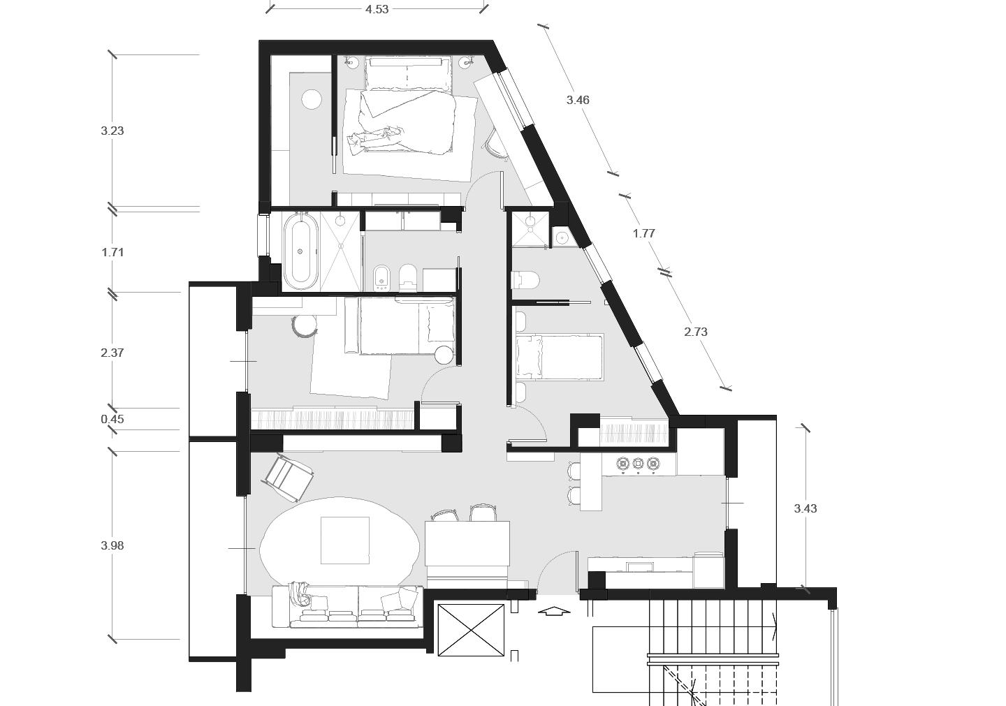
La nueva distribución del apartamento nace del trazo de movimientos especificos y reducidos que finalmente permiten diseñar espacios más funcionales, que generen una transición fluida y que a su vez sea agradable visualmente y cómodo, dando como resultado una sala de estar, un comedor, un baño principal, un segundo baño más amplios y optimizados. Como adición, la nueva distribución del apartamento ofrece tres dormitorios y para aprovechar el espacio existente la tercera habitación diseñada también puede ser convertida en un estudio.

Plano de planta

Esquema de mobiliario diseñado a la medida

DORMITORIO PRINCIPAL VESTIER A MEDIDA

DORMITORIO SECUNDARIO MUEBLE A MEDIDA

SALA DE ESTAR MUEBLE A MEDIDA

COMEDOR

MUEBLE A MEDIDA

DORMITORIO PRINCIPAL ESCRITORIO A MEDIDA

BAÑO SECUNDARIO MUEBLE A MEDIDA

COCINA A MEDIDA

La adición de muebles personalizados optimiza los espacios, ayuda a aprovechar los ángulos y las dimensiones particulares de cada habitación y le da un carácter único a las diferentes áreas del apartamento.

Mueble de la sala con paneles delizantes cerrados.
Recorrido visual de concepto abierto desde la sala de estar hacia la cocina
La sala de estar y área del comedor
Mueble de la sala con paneles delizantes abiertos.

abiertos. A la izquierda se logra visualizar el comedor y la cocina.

La sala, comedor y cocina son reconocidos como los espacios de mayor relevancia y actividad en el aptartamento. En este caso la Sala-Comedor está en relación directa con la cocina ya que se desarrolla a lo largo del espacio en un recorrido longitudinal, se genera por medio de un concepto abierto una comunicación visual constante entre las tres áreas.

En la sala se incorpora uno de los muebles diseñados a medida, utilizando madera de tonos oscuros para generar contraste con el resto de la paleta de colores manejada en los espacios, siendo este un elemento que destaca en el mismo. Cuenta con dos paneles deslizantes en la zona central que ayudan a darle dinamismo y movimiento, además de ofrecer almacenamiento extra.

Área Sala- Comedor- Cocina
Espacio de la entrada, barra y muebles de la cocina.
Espacio de la entrada y zona del comedor.
Recorrido visual de concepto abierto desde la cocina hacia la sala de estar.
Cocina lado de electrodomésticos

En el extremo contrario a la sala y el comedor se encuentra el espacio destinado para la cocina, la cual tiene incorporada una barra, alacena, gabinetes inferiores y gabinetes superiores que fueron diseñados a medida.

Área Cocina- Comedor- Sala

Habitaciones: principal y secundarias

Habitación dormitorio principal

Habitación dormitorio secundario n° 1

Habitación dormitorio secundario n° 1

Habitación dormitorio principal

Habitación dormitorio secundario n° 2 con posibilidades

Con un total de tres habitaciones en el apartamento se diseñan dos dormitorios y un tercer dormitorio cuyo espacio también puede convertirse para funcionar como un estudio.

Todas las habitaciones cuentan con muebles a medida que aseguran el aprovechamiento del espacio ya sea con closets customizables o con escritorios que otorgan un carácter único a cada una de estas áreas. En algunos casos tambien se utilizan puertas corredizas ocultas para la optimización del espacio como es el caso de las puertas del closet del dormitorio principal y el acceso al baño secundario desde el segundo dormitorio secundario.

Baño principal
Baño principal
Baño secundario

03

E l Q u i n c h o

año

2023

ubicación

Santiago de Chile, Chile.

rol

Diseño y visualización

tipo

Proyecto de remodelación y diseño interior

estado

Obra construida y finalizada

descripción

El proyecto constó del diseño de una terraza techada con un programa destinado a tener un área para el quincho, un comedor y una zona de estar. Se trabajó con un concepto abierto para permitir un flujo visual y auditivo constante en el espacio de manera tal que permita una interacción sin interrupciones para los propietarios, sus visitas y el paisaje que se desarrolla en el entorno.

En el jardín se incorpora un canto rodado con el que se bordea al mismo y que a su vez permite establecer una transición entre la terraza y el patio, y mitigar las filtraciones en la superficie. Se contempló el diseño de una gran jardinera lateral y cortavistas perimetrales con el fin de ofrecer un mejor acabado a las paredes divisorias entre parcelas y mayor privacidad. Se instalan luminarias bidireccionales en los paneles y puntos focales de iluminación en el canto rodado.

Vistas desde diferentes puntos del proyecto de la terraza techada.

El Quincho | Proyecto construido

Fotografía de la obra finalizada. Área de comedor y quincho

El Quincho | Proyecto construido

Fotografía de la obra finalizada. Terraza techada desde el jardín

L i v i n g R o o m

año

2021

ubicación

Estados Unidos

equipo

Arq. Victoria Briceño y Arq. Laura Angarita

rol tipo

Diseño y visualización

Proyecto de re-decoración

estado 04

Finalizado

descripción

El proyecto constó en el diseño de interiores de una sala de estar sin necesidad de hacer cambios de alto impacto en el espacio.

Se incorporó un panel divisor de madera para brindar privacidad al interior-exterior del salón y con el fin de enmarcar el acceso/salida mediante efectos de luz-sombra proyectados en el pasillo por medio de los paneles.

Se propone el uso de estanterías de piso a techo que generen mayor espacio de almacenamiento adosados a las paredes.

La selección de los muebles y demás elementos decorativos forman parte de una paleta de colores neutrales que permiten generar un contraste con el piso pre-existente.

Distribución de mobiliario en planta

Corte Longitudinal B-B renderizado
Corte Transversal A-A renderizado
Corte Longitudinal C-C renderizado
Vista hacia el mueble de la TV
Vista hacia la sala desde los paneles de madera

V i s u a l i z a c i ó n

año

2024

rol

Visualización

tipo 05

Proyecto de visualización

descripción

El objetivo era el de hacer un trabajo de representación gráfica desde la planimetría necesaria hasta producir una representación gráfica sobre una casa de estudio a escogencia.

En este caso, la casa seleccionada para el trabajo de modelado y visualización fue la Residência na Barra do Sahy, obra de Nitsche Arquitetos ubicada en Brasil.

gracias!

Turn static files into dynamic content formats.

Create a flipbook
Issuu converts static files into: digital portfolios, online yearbooks, online catalogs, digital photo albums and more. Sign up and create your flipbook.