Portfolio - Konstantinos Doukas

Page 1

PORTFOLIO Selected Works 2018-2020 Konstantinos Doukas doukaskostantinos@gmail.com

TABLE OF CONTENTS

Academic Works

A1 Blocks 73015•73016•73022•73023•73024

Revised Urban Scenarios-Metaxourgio-Athens

5th Academic Year

Diploma Thesis

Individual Work

Supervisor: Dimitrios Antoniou

October 2019

A2 Palimpsest

4th Academic Year

Architectural Design Sudio 7

2-Person Group Work, with V. Lagou

Supervisor: Panos Dragonas

February 2018

Professional Works

P1 Restoration of Agios Donatos Watermill

With “Stavros Mamaloukos - Anastasia Kampoli & Associates”

August 2018

P2 Bioclimatic Indoor Sports Center - Panionios B.C.

With “OM Meletitiki”

November 2020

Place of Birth: Marousi, Attica, Greece

Date of Birth: 18 December 1996

Diploma degree in Architectural Engineering Department of Architecture, University of Patras

MSc in Architecture, Urbanism and Building Sciences

Faculty of Architecture and the Built Environment, TU Delft

BLOCKS 73015•73016•73022•73023•73024

REVISED URBAN SCENARIOS-METAXOURGIO-ATHENS Metaxourgio, Athens, Greece

ACADEMIC INDIVIDUAL PROJECT

DIPLOMA THESIS

SUPERVISOR:

antonioud@upatras.gr

10th SEMESTER

5th ACADEMIC YEAR

OCTOBER 2019

The project concerns the redevelopment of an area near the central district of Athens (Metaxourgio). It includes blocks 73 015, 73 016, 73 022, 73 023, 73 024, bounded by streets Achilleos and Lenorman and Konstantnoupoleos avenue. The intervention site is 34,340 m2.

The project’s point of departure was exploring the revitalization of the area, meaning the transformation of a central urban area, a neighborhood. This transformation will serve as an example of transition to a state of semi-self-sufficiency as part of a future network of complementary urban units.

The reason I chose this specific area as the subject of my project, was its central location and distinguishing history combined with its significant inactive-undeveloped spatial and building morphology. The region alters significantly over time, yet maintains signs of all those transformations. The urban space which is the subject of the dissertation is defined by three high streets and that has a unifying impact. An additional reason for choosing this region is its spatial form, as there are blocks since the 60s and ‘70s, a few neoclassical buildings and some buildings constructed after 2000. This phenomenon is typical in many districts of Athens and Greece in general.

The presentation drawings are a combination of freehand sketches and design software

The aim of this architectural intervention is to upgrade and strengthen the original structure of the area, without dispossessing or removing its residents and businesses, while maintaining the area’s quality and character. This architectural approach takes into account the city scale, the original urban tissue and the idiosyncrasy of the place, in order to solve local environmental issues and improve the quality of life

A1

Athens Central Railway Station

Study Area

Omonoia Square

Agricultural University of Athens

Technopolis

The dissertation methodology includes:

a) Identification and analysis

▪ Bibliography on the history and urban planning development of the area (picture of Metaxourgio). The region was urbanized in the 19th century, after the construction of Metaxourgio: a silk processing large-scale workshop. Other workshops and handicrafts followed, resulting in the development of a new district near the historic center of Athens.

▪ Survey of the existing urban land uses based on topographic maps ( drawing No. x), traffic survey ( drawing No. x), survey of condition of the building stock and of available open spaces (both public and private).

▪ Building facade and topographic surveys

Proposal

Study Area Analysis Diagrams School
Current State Main Roads Auxiliary Roads
the study
Blocks
Greek Parliament Single Houses Abandoned Storage housescar repair shops Stores - Offices
Circulation in
area Apartment
Boulevards

Parallel objectives of the project are:

▪ Cohesiveness in urban fabric via controlled density and mixed uses, dispersion of public facilities.

▪ Optimising accessibility

▪ Improvement of public spaces, increase in public open spaces

▪ Energy upgrading and aesthetic improvement of existing buildings and reuse of vacant or abandoned building lots.

▪ Restoration of preserved buildings

b) Identification of problems, advantages and possibilities of the project area.

The area is degraded, as it includes old, abandoned buildings, workshops, residences, wholesale stores and spaces of random use. The traffic load is large and the level of pedestrian accessibility is low, especially in the central area. Moreover, both the infrastructure and cultural functions of the area are poor. There is high possibility that the situation will further deteriorate. An important advantage, however, is the centrality of the area, as it is close to other city functions (university, recreational areas, venues etc.).

c) Project implementation plan

▪ Selection of buildings to be preserved based on their condition, use and cultural-aesthetic value.

▪ Selection of buildings to be energetically and aesthetically upgraded, when deemed economically feasible.

▪ Demolition of buildings that are unapproved, abandoned, in very poor condition and have no cultural value.

▪ Functional unification of private, semi-private and public open spaces.

Ceramic Handicrafts Workshop
New Building Restoration Empty
Municipal Library Housing Municipal Library Bar
Current State Existing buildingEnergy upgraded
Proposal Proposal

Ceramic Handicrafts Workshop

Reinforcement of the secondary production sector

Existing Buildings

Energy upgraded, the roofs combine green spaces and constructions for sun protection and solar energy production

New Apartment Blocks

Municipal Theater and Meeting Room

Attraction of visitors by creating cultural landmarks

Municipal Library

Incorporating a listed building - cultural landmark

Unification of private, semi-private and public open spaces

3D printing lab

Reinforcement of the secondary production sector

Underground parking lot entrance

Urban Agriculture Research Facilities

Introduction of primary production sector

Axonometric of proposal

The proposal combines the redevelopment of the area with mixed uses, incorporation of open spaces and communal functions. The “new” buildings of the proposal are integrated in the built and social context of the urban area, but also stand out with the scale, and clarity of their form. It is a proposal of balance between the integration into the urban fabric and the emergence of of the architectural entity of each building. At the same time, the energy response of the existing buildings is improved and an important step towards urban self-sufficiency is made, with the location of a hydroponic cultivation center in the area.

c) Project implementation plan

▪ Selection of spatial positioning and a combination of uses that will regenerate the region:

1. Strengthening the secondary sector, that traditionally existed in the area (a small ceramic industry and a 3D printing industry)

2. Building residential complexes and an underground parking lot (located below the square, the entrance is visible on the floor plan – See map). Encouraging cultural functions: attracting users, creating “landmarks” by constructing a municipal library .

3. “Introducing” the primary sector by building a complex, where urban agriculture will be researched and implemented. The complex will belong to the Agricultural University of Athens, whose campus is located nearby. Topic of the research will be hydroponic farming, which is not affected by soil conditions or pollution of the urban environment. On the contrary, hydroponic farming can flourish indoors. The ground floor will be used for revenue influx through product sales and for advertising. The top floor will serve as accommodation for visitors and researchers.

4. As the revitalization progresses, public realm and cultural uses are enhanced by the construction of a small public theater-meeting place.

3D Printing Lab Municipal Theater Offices Current State
Proposal Proposal New Building Restoration Empty Existing buildingEnergy upgraded 1 2
Current State Municipal Theatre Housing Complex Housing Complex

The systematic elaboration of movement and the desire for the interpenetration of open and closed spaces were fundamental elements of the composition.

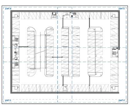
Ground floor plan of proposal Municipal Theater and Meeting Hall New Apartment Blocks Ceramic Handicrafts Workshop Urban Agriculture Research Facilities 3D Printing Lab Municipal Library

The inspiration behind this architectural proposal was the concept of urban metabolism in conjunction with my personal interest in the idea of self-sufficient and autonomous cities. Urban self-sufficiency can have many positive effects on all aspects of sustainability, contributing to energy transition, social cohesion, saving resources, boosting productivity, adaptability and empowering individuals and local communities. This approach of urban sustainability, which includes the concepts of resilience and self-sufficiency, results in the combination of production and consumption in the same space: the urban space. The production of energy, the making of products and foods in cities, contributes to the independence and empowerment of local community and economy as well.

Urban Palimpsest

Patras, Greece

ACADEMIC

2-PERSON GROUP WORK WITH VASILIKI LAGOU

ARCHITECTURAL DESIGN STUDIO 7

SUPERVISOR:

Panos Dragonas panos.dragonas@gmail.com

7th SEMESTER

4th ACADEMIC YEAR

FEBRUARY 2018

Each group of students was asked to select an urban block in the city of Patras and then to propose a strategy for urban regeneration and / or reconstruction, according to the team’s options.

We chose an urban block in the historic center of Patras, in a place that will be able to present the history of the city through the layers of its architecture, as palimpsest. In this area, according to the research, we know that there is a sphendone of the roman stadium, under the modern city layer.

The proposal aims to improve the urban fabric with the integration of the archaeological site and the findings in it. The emergence of the monument, will strengthen the city’s identity, contributing to the qualitative advancement of the urban center.

The main project idea concerns: temporal variability, flexibility, the possibility of transformations, in combination with the “demonstration” of the process of archaeological excavation and the findings of the monument. A key aspect of the concept is the temporal evolution, the proposal will not be implemented at once but will be executed with methodical steps that will follow the archaeological research, the excavations of the site and the changing needs of local community.

Author: Konstantinos Doukas
A2

The urban block is also located in the current city center, close to King George Square and is adjacent to the Roman Odeon, while at short distance is the byzantine fortified citadel. The ancient stadium (1st century AD during the reign of Emperor Domitian), has an ellipsoid shape with two semicircular sphendones. Its dimensions are estimated at 200 m long and 90 m wide. So far two of the entrances have been discovered after excavation in nearby sites.

Neoclassical buildings (1) of the early 20th century, altered from their original use as residences, currently occupied bars, restaurants etc., morphologically sustaining their exterior architectural elements.

Small scale residential buildings of the 80s (2), without any architectural significance and most of them are in poor condition or abandoned.

Residential buildings of the 00s (3), morphologically insignificant, still keeping their use as residences

Multistorey building of the 70s (4), residencies and offices

Project Implementation: Demolition

Phase A. In the first phase of “cleaning” the urban block, all the walls of the newer buildings are demolished as well as the newer interior interventions of the neoclassical ones.

Phase B. Subsequently, those buildings that do not have social, cultural and architectural significance and the small private-arbitrary interventions are demolished and the open spaces are unified.

1 3 4 2 1 1 1 2 1 2 3 3 2 2 4
1. Study Area 2. King George’s A’ Square 3. Roman Odeon 4. Roman Stadium Remains Axonometric View of study area Author: Konstantinos Doukas Author: Konstantinos Doukas Author: Konstantinos Doukas Author: Konstantinos Doukas

Project Implementation: Construction phase 1

Containers / housing units are placed on the low floors in the concrete frames, while changeable / adaptable constructions of leisure and commercial use are assembled in the shells of the neoclassical buildings. At the same time, the first phase of archaeological excavation begins in the integrated open space.

Author: Vasiliki Lagou Author: Konstantinos Doukas Author: Konstantinos Doukas Sketch of the basic concept

Project Implementation: Construction phase 2

A crane is installed to assist with the work both at the archaeological site and at the placement of the housing units on the higher floors. The first outdoor pedestrian corridors are created at the archaeological site.

We chose not to change the uses that exist in the urban block and prevail in this part of the center, because there are not incompatible, there is multifunctionality and mobility throughout the day. Thus the project will include residences, offices, commerce, recreation, cultural and public spaces. The individual buildings are spatially connected by pedestrian routes and semi-public spaces, from where there is the opportunity to interact (visual contact, passage, observation, perception) with the archaeological site.

1. Own an “open” space

2. Follow the instructions

3. Live there

4. Work there

Project Implementation: Construction phase 3

In the final stage, all the previous functions have been adjusted to the new sites and a lively connection has been created between open public space and the archaeological site.

The corridors above the archaeological excavation give a visitor the ability to experience the multi layered space formed over the centuries, and better understand the history of the city.

Authors: Konstantinos Doukas, Vasiliki Lagou Author: Konstantinos Doukas

The intention is for the other blocks (where we already know that Roman ruins are located) to follow the same course, enhancement of ancient monuments and their integration in the city center. The palimpsest of historicity was approached in conjunction with the complexity of modern conditions, leaving room for upcoming changes. It is a dynamic proposal both in terms of history and the future.

Authors: Konstantinos Doukas, Vasiliki Lagou Authors: Konstantinos Doukas, Vasiliki Lagou

Restoration of Agios Donatos Watermill

Souli, Greece

PROFESSIONAL PROJECT

COLLABORATION WITH “Stavros Mamaloukos - Anastasia Kampoli & Associates”

SUPERVISOR:

Dr. Stavros Mamaloukos, architect, restorer

SMamaloukos@geam-mnimeio.gr

ROLE:

Intern (the internship took place after selection by a University Committee)

CONTRIBUTION:

Participation in the architectural surveying and mapping of the surrounding area, designing most of the current-state drawings, those of the proposal and construction details.

AUGUST 2018

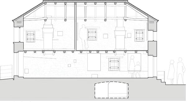
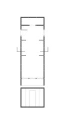
The two-storey complex that includes a watermill and mechanical equipment located on the ground floor (in situ), a fulling tub and one beamhouse, has been designated as a historical and preserved monument by the Hellenic Ministry of Culture. The importance of this monumental ensemble is great, as it not only preserves units of pre-industrial technology but also reveals the economic life and social organization of the area during 18th and 19th century. This ensemble is the only one that has survived out of seven similar buildings that existed in the region.

The project has been approved by the Hellenic Ministry of Culture and has received co-funding by the European Union program CLLD / LEADER 2014-2020.

This particular project has been a significant professional experience for me, as I am personally interested in the conservation of historic buildings and sites. Moreover, I had the opportunity to participate in all stages of studying a 200-year-old building. It was, also, important that I took part in a project with a tight 2-month deadline (July - August 2018).

© Stavros Mamaloukos
P1

Study procedure:

• Complete architectural surveying of the monument and its mechanical equipment.

• Identification of the various problems of the monument (structural, construction, aesthetic and functional problems, difficulty of highlighting its historical and archaeological value).

• Proposal to restore the monument and landscape the surrounding area.

1. Unformed path

2. Modern (1985) concrete flume in moderate condition

3. Modern (1985) fulling tube

4. Modern (1985) concrete staircase in poor condition

5. Location of damaged wooden flume

6. Semi-damaged bed of wooden beamhouse

7. Semi-damaged flume

8. Wayside shrine in poor condition

9. Retaining wall made of dry stone

1 2 4 9 1 5 6 7 3 3 8 8 9 9
Author: Konstantinos Doukas Surveying and mapping: Stavros Mamaloukos, Michael Papavarnavas, Konstantinos Doukas Author: Konstantinos Doukas Author: Konstantinos Doukas Watermill floor plans before restoration

A series of architectural interventions is proposed in the surrounding area of the laboratory complex. On the one hand, visitors will have a safer and easier access to the area and on the other hand, the promoting of the monumental ensemble will be significantly assisted.

Fulling Tub

1. Dismantling of a modern (1985) fulling tub from concrete and construction of a new wooden tub of traditional form

2. Dismantling of a modern flume (chute) from reinforced concrete and construction of a new wooden one

3. Oxidized steel guardrail construction (COR-TEN)

4. Construction of wooden installation for the placement of fabrics

1. Path formation with improved alignment and construction of a cobblestone deck

2. Oxidized steel guardrail construction (COR-TEN)

3. Construction of a new retaining wall from dry stone

4. Preservation and maintenance of a drystone retaining wall with extensive local reconstruction interventions

5. Construction of a new galvanized steel floor above the flume

6. Construction of a new flume with new bed formation and construction of masonry walls

7. Dismantling of modern (1985) staircase from concrete and construction of a new one in its place

8. Preservation and maintenance of an old flume with extensive local reconstruction interventions

9. Construction of a new wayside shrine from semi-carved stone structure

10. Formation of new vegetable gardens in place of the old ones

Beamhouse

1. Reconstruction of a wooden beamhouse mechanism

2. Reconstruction of a wooden flume

3. Restoration of a wooden flume bed by cleaning its surface from sediment deposits

4. Flume restoration by clearing the embankments and remodeling the flume bed and its walls in the natural semi-rocky soil

“TSAGARIOTIKO” STREAM FULLING TUB WATERMILL BEAMHOUSE WAYSIDE SHRINE FOOTBRIDGE VEGETABLE GARDENS Slate Cobblestone path Wooden deck Information signs Author: Konstantinos Doukas 1 1 3 3 3 2 2 2 1 1 1 4 4 4 2 2 2 1 3 4 6 3 7 8 1 2 5 2 5 2 1 4 4 10 Section Section Front View Front View Top View Top View
Water Stream & flume

Aims of the project:

• Dealing with construction problems successfully

• Aesthetically upgrading and showcasing the complex

• Promoting the historical and archaeological value of those buildings, the watermill especially, by improving the “readability” of their construction history.

• Optimizing the accessibility and functionality of the monument ensemble

1. Path formation with improved alignment and construction of a cobblestone deck

2. Oxidized steel guardrail construction (COR-TEN)

3. Preservation of the natural landscape, with clearings from vegetation and scattered rocks

4. Placing of information sign

5. Dismantling of modern (1985) staircase from concrete and construction of a new one in its place

6. Dismantling of a modern (1985) fulling tub from concrete and construction of a new wooden tub of traditional form

7. Dismantling of a modern flume (chute) from reinforced concrete and construction of a new wooden one

8. Reconstruction of a wooden beamhouse mechanism

9.Reconstruction of a wooden flume

10. Construction of a new wayside shrine from semi-carved stone structure

11. Construction of a new footbridge

12. Construction of a new retaining wall from dry stone

Author: Konstantinos Doukas Author: Konstantinos Doukas
1 2 3 11 12 2 10 4 1 10 12 11 4 8 9 3 2 1 5 4 6 7
Watermill floor plans after restoration

1. Reconstruction of wooden floor from sawn or oak wood

2. Preservation and maintenance of joints with local supplements after the dismantling of modern repairs

3. Reconstruction of a roof with a wooden supporting body of local traditional form from yew or oak wood and covering with slate

4. Construction of reinforced concrete molding

5. Preservation and maintenance of an original fireplace with minor interventions

6. Preservation and maintenance of the wall with limited interventions (local joint additions and application of local grouts)

7. Dismantling of a modern floor from unreinforced concrete and construction of a new floor from pressed lime mortar after the floor shaping works

8. Preservation and maintenance of cornice of slab limestone with local minor interventions (additions of stones and joints)

9. Preservation and maintenance of a built flume (chute) with local interventions

10. Reconstruction of a wooden hatch

11. Reconstruction of watermill grinder mechanism

12. Reconstruction of a watermill kinetic mechanism

13. Preservation and maintenance of stone stairs with local interventions (additions of stones and joints)

14. Maintaining the foundation as it is

15. Construction of a drainage ditch

Author: Konstantinos Doukas

Author: Konstantinos Doukas
Wooden window - Construction detail Fireplace construction detail 4 2 3 3 9 15 5 7 1 10 13 11 12 2 4 8 15 5 8 1 6 7 14 Exterior View Top View Top View Front View Section Side View Section Interior View
Watermill Section 1 Watermill Section 2

Author: Konstantinos Doukas, Michael Papavarnavas

Author: Konstantinos Doukas, Michael Papavarnavas

The Watermill is planned to be restored to its original state and provided with its traditional equipment, so that it can be used as a museum. This exhibition space will display both its initial function and the history of the laboratory complex relating to Souli.

Author: Konstantinos Doukas, Michael Papavarnavas

Museum space

Author: Konstantinos Doukas, Michael Papavarnavas

Author: Konstantinos

Wooden hatch construction detail

1. Wooden hatch

2. Floor planking from oak boards 2.5 cm x 15-17 cm x 2 to 2.5 m.

3. Floor beams from lightly processed sawn or oak wood of circular cross-section of 13-14 cm.

Α
Plan 2
Plan 1 Section Β Α Α Β Β
Section
Floor
Floor
2 2 2 6 2 2 2 1 2 3 2 1 5 1 3 2 2
Doukas 1. Model of the watermill 2. Information plate 3. Scale 4. Chest 5. Bed 6. Wooden hatch

Horizontal parts

1. Overlay with slate

2. Elastomeric asphalt cloth

3. Planking from wooden boards 2,5 x12 mm

4. Ridge beams 8x10 cm.

5. Rafter ties 10x12 cm.

6. Hidden reinforced concrete formwork

7. Beam U 15/10 cm made of galvanized steel to support the floor beams

8. Floor planking from oak boards 2.5 cm x 15-17 cm x

2 to 2.5 m.

9. Floor beams from lightly processed sawn or oak wood of circular cross-section of 13-14 cm.

10. Pressed lime mortar 4-5 c.

11. Lightly reinforced concrete 5-7 c.

12. Geotextile

Inclined parts

13. Gravel 5-10 cm.

14. Natural soil

15. Soil

16. Coating with waterproofing AQUAFIN – DS

17. Drainage membrane with cones (HDPE)

18. Riprap

19. Perforated PVC drainage pipe (16cm)

20. Lightly reinforced concrete

21. Oxidized steel guardrail construction (COR-TEN)

22. Flume wall covering with local slab limestones

23. Flume bed coating with pressed lime-cement mortar

24. Construction of a new galvanized steel floor above the flume

Author: Konstantinos Doukas, Valantis Basoukos
1 1 6 5 4 2 3 4 5 6 2 3 4 5 7 8 9 10 21 22 23 24 15 15 16 17 18 19 20 11 12 13 14 6
Author: Konstantinos Doukas, Michael Papavarnavas
Construction Detail - Section
Roof Structure Supports - Construction Details
Section

Bioclimatic Indoor Sports Center - Panionios B.C.

Nea Smyrni, Athens, Greece

PROFESSIONAL PROJECT

COLLABORATION WITH “OM Meletitiki” Architecture Firm

SUPERVISOR: George Stathopoulos

g.stathopoulos@om-meletitiki.gr

CONTRIBUTION:

Preparation of construction drawings for the technical/detailed design stage, under the supervision of the project architect

NOVEMBER 2020

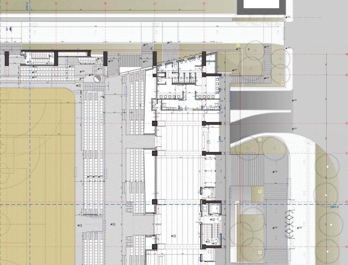
The Region of Attica and Nea Smyrni Council, jointly committed to constructing a new multi-purpose sports and entertainment arena, and home court of the Panionios Basketball Club, on municipality land in the city centre.

The building has a multifunctional character and will house sports activities: Basketball, Volleyball, Handball, Football 5x5, Tennis, Trampoline, Martial Arts - Tae Kwon Do, Gymnastics, Paralympic Sports etc. and cultural and social activities: gatherings, events, concerts, theatrical performances, etc. The indoor sports arena will be built on a plot of 16,540 m2 and has a capacity of 3,500 seats.

The design approach embedded sustainability principles, accessi-

bility and inclusion for people with disabilities, fire safety strategy and compliance with requirements concerning the conduct of games and competitions in accordance with the regulations of the General Secretariat of Sports and the International Federations.

Starting June 2020, I took part in the development of the implementation study to be delivered to construction partners. The objective was to resolve technical details, include and specify every element of the design. I participated in the cooperation between structural and building services engineers, in order to find the best functional and aesthetic solution, concerning feasibility and the interfaces between different elements of the design.

Courtesy of OM MELETITIKI
P2

Author: Konstantinos Doukas

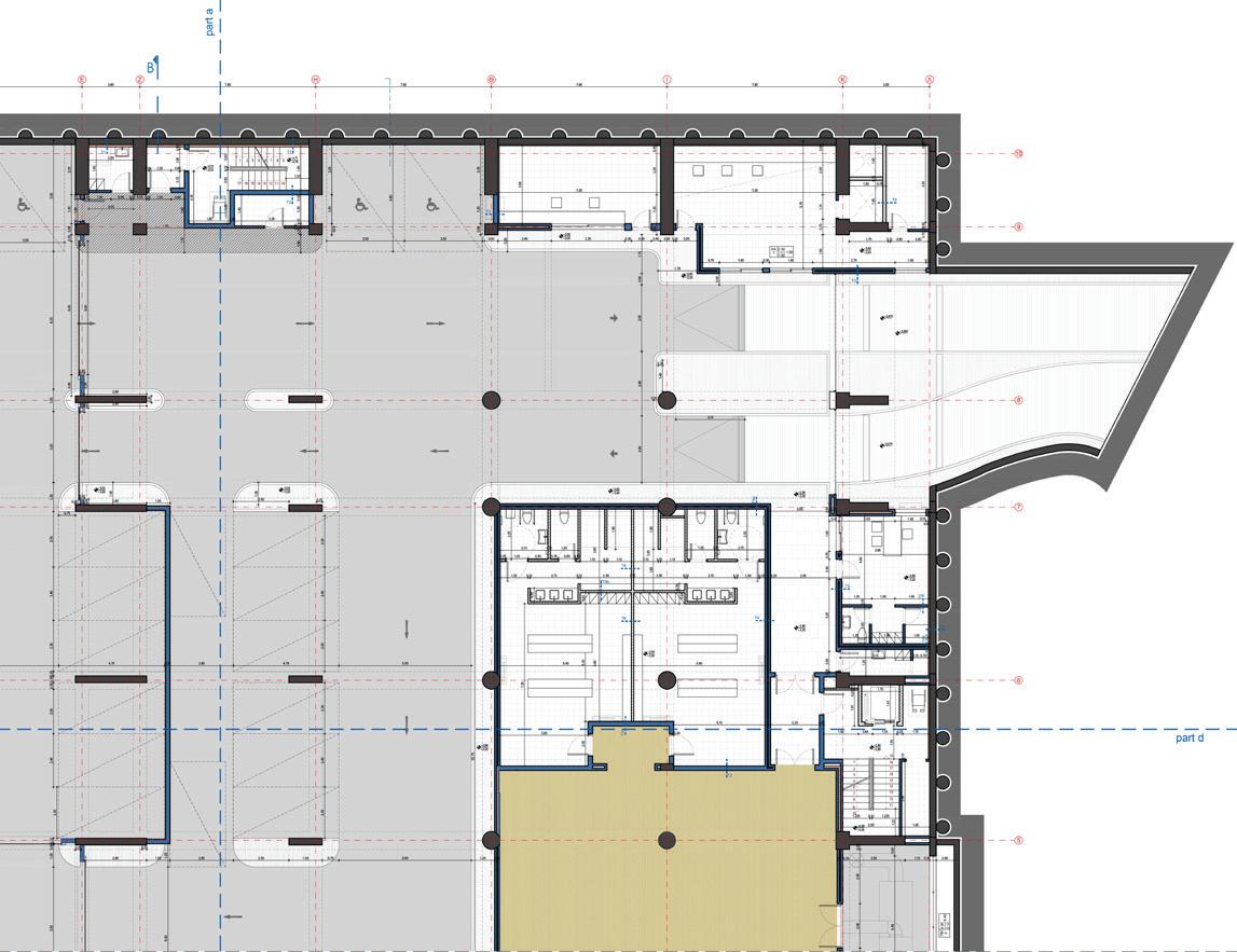
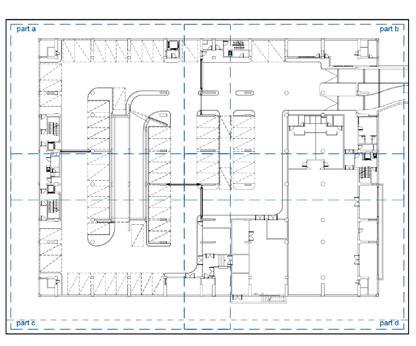
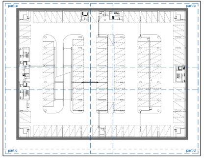
Basement Floor Plan D

Basement Floor Plan C

Part B of Basement Floor Plan B

Τ1. Bearing Structure - Extruded Polystyrene – Coating

Τ1a. Bearing Structure - Extruded Polystyrene – Coating – Tiles

Τ2. Brickwork 10 or 20 cm with coating on both sides

Τ2a. Coating - Brickwork 20 cm. - Tiles

Τ3. Brickwork 9 cm. – Extruded Polystyrene 5 cm. – Brickwork 9 cm. - Coating

Τ4a. Brickwork 9 cm. – Extruded Polystyrene 5 cm. – Brickwork 9 cm. - Tiles

Τ4b. Tiles - Brickwork 9 cm. – Extruded Polystyrene 5 cm. – Brickwork 9 cm. - Tiles

Basement Floor Plan B

Author: Konstantinos Doukas, Konstantina Dimitrakaki, Yota Kyriakopoulou

T5b. Double Plasterboard – Framework with Mineral Wool 5 cm. - Waterproof Plasterboard - Tiles

T6. Tiles – Waterproof Plasterboard – Framework with Mineral Wool – Waterproof Plasterboard - Tiles

T8. Double Fire-Resistant Plasterboard – Framework with Stone Wool 10 cm. – Double Plasterboard (Fire resistance 90’)

CLEANING SUPPLIES STORAGE ROOM PARKING CAPACIY OF 60 SEATS (8 SEATS FOR THE DISABLED) ANTECHAMBER T4α ATHLETES’ STAIRCASE STORAGE ROOM CONTROL ROOM WORKSHOP SANITARY FACILITIES AND WASHROOMS ATHLETES’ LOCKER ROOMS SANITARY FACILITIES AND WASHROOMS SANITARY FACILITIES CORRIDOR MAINTAINER’S OFFICE ATHLETES’ LOCKER ROOMS AIR DUCT SHAFT STORAGE ROOM STORAGE ROOM STORAGE ROM STAIRCASE T1a T1 T2α T5b T2 T4b T4α T3 T2 T3 T2 T8 T6 T1a T6

Basement A - Ground Floor A Plan

Ground Floor B Plan

Top Level Floor Plan

Part B of Ground Floor B Plan

T1. Bearing Structure - Extruded Polystyrene – Coating

T5b. Double Plasterboard – Framework with Mineral Wool 5 cm. - Waterproof Plasterboard - Tiles

T6. Tiles – Waterproof Plasterboard – Framework with Mineral Wool – Waterproof Plasterboard - Tiles

T8. Double Fire-Resistant Plasterboard – Framework with Stone Wool 10 cm. – Double Plasterboard (Fire resistance 90’)

T8a. Double Fire-Resistant Plasterboard – Framework with Stone Wool 10 cm. – Fire-Resistant Plasterboard – Tiles (Fire resistance 90’)

T12. WC Dividers from HPL Formica

T15. Sound Absorbing Panel – 1 Fire resistant & 1 simple Plasterboard panels – Framework with Stone Wool 10 cm. - 1 Fire resistant & 1 simple Plasterboard panels

Authors: Konstantinos Doukas, Konstantina Dimitrakaki, Yota Kyriakopoulou

T16. Fiber Reinforced Cement Board with Frame of total thickness 10 cm. – Cement Board – Framework with Stone Wool 10cm. Waterproof Plasterboard - Tiles

T17a. Wooden Panel with Framework of total Thickness 10 cm. – Cement Board –Framework with Stone Wool 10 cm. – Double Plasterboard

T17b. Wooden Panel with Framework of total Thickness 10 cm. – Cement Board –Frame with Stone Wool 10 cm. – Waterproof Plasterboard - Tiles

T18a. Double Plasterboard – Double Framework with Stone Wool – Plasterboard –Cement Board

T18b. Tiles - Plasterboard – Double Framework with Stone Wool – Plasterboard –Cement Board

ATHLETES’ STAIRCASE PUBLIC WOMEN’S RESTROOM PUBLIC MEN’S RESTROOM INFORMATION BOOTH PUBLIC FOYER MAIN ENTRANCE SPORTS HALL WINDBREAK STAIRCASE TICKET OFFICE TICKET OFFICE RESTROOM ANTECHAMBER AIR DUCT SHAFT AUDIENCE ENTRANCE T1 T15 T18b T8 T1 T16 T8a T8a T8 T8 T8 T8 T8 T16 T14 T8 T14 T17b T18b T5b T5b T14 T14 T14 T18b T17b T17b T17a T17a T7b T17a T16 T6 T12 T6 T12 AUDIENCE ENTRANCE
Author: Konstantinos Doukas

South-West View

Authors: George Stahopoulos, Konstantinos Doukas, Konstantina Dimitrakaki, Yota Kyriakopoulou

1. Exposed concrete from planed boards

2. Facade panel, fiber reinforced cement board colored dark gray

3. Aluminum Frames (Curtain Wall) with Thermal Break

4. Aluminum Frames with Thermal Break - color RAL 7015

5a. Metal Frames – color RAL 3003

5b. Metal Frames – color RAL 7015

6. Aluminum Blinds – color RAL 7015

7. Metallic roof covered with polyurethane panel, color RAL 9007

8. Metal canopy covered with SECURIT sandblasted coating glass, color RAL 7015

9. Metal Railings, color RAL 7015

10. Metallic Ventilation blinds, color dark gray

11. Metal Ventilation Pipe, color RAL 9007

12. Metal Drainpipe, color RAL 9007

13. Stainless Steel Boiler Chimney

14. Metallic Basement’s Ventilation blinds, Ø210, color RAL 9007

15. Gutting Element made of prefabricated concrete

Section

Authors: George Stahopoulos, Konstantinos Doukas, Konstantina Dimitrakaki, Yota Kyriakopoulou

1 2 12 5b 12 15 3 11 13 14 10 7 1 4 6 1 9 5a 2 3 3 2 1 8 9 4

1. Exposed concrete from planed boards

2. Coating with cement mortar ARTIFICIEL, gray color

3. Coated Cement Board

4. Facade panel, fiber reinforced cement board colored dark gray

5. Front Panel with Wood Covering

6. Aluminum Frames (Curtain Wall) with Thermal Break

7. Aluminum Frames with Thermal Break - color RAL 7015

8. Aluminum Blinds – color RAL 7015

9. Double Energy Glass with exterior Sandboard

10. Metal canopy covered with SECURIT sandblasted coating glass, color RAL 7015

11. Metal Railings, color RAL 7015

12. Metal garage roll-up door, color RAL 7015

13. Metallic Ventilation blinds, color RAL 7015

14. Metallic Ventilation blinds, color dark gray

15. Metal Ventilation Pipe, color RAL 9007

16. Metal pipe Ø 270, color RAL 7015

17. Metal Drainpipe, color RAL 9007

18. Metallic roof covered with polyurethane panel, color RAL 9007

Detail D1

Authors: George Stahopoulos, Konstantinos Doukas

1. Extruded Polystyrene Heat Insulation 100 mm.

2. Mineral Wool 45 mm. κ =0,037 watt / mk

3. Double Plasterboard

4. Stone Wool Heat Insulation 100 mm. κ = 0,036 watt / mk and 115-120 kg / m³

5. Grid Frame Steel Structure

6. Beams HEA 220

7. Wall (Reinforced Concrete)

8. Aluminum profile 2 mm.

9. Protection Sheet 1,5 mm.

10. Waterproofing Membrane

11. Polyurethane Panel 100 mm.

12. Girt 140 mm.

13. Finishing Sheet 1,5 mm.

14. Metal trapezoidal polyurethane roof panel

15. Girt 180 mm.

South-East View

Authors: George Stahopoulos, Konstantinos Doukas, Konstantina Dimitrakaki, Yota Kyriakopoulou

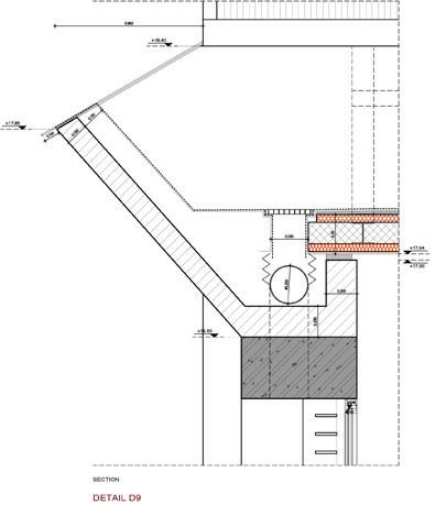
Detail D2

Authors: George Stahopoulos, Konstantinos Doukas

1. Perforated Drainage Pipe Ø 200

2. Quarry Material 20 cm.

3. lean concrete C12 / 15, 10 cm. (footing mix)

4. Embankment with Excavation materials

5. Gravel and Crashed Rocks 20 cm.

6. Industrial Floor 8 cm.

7. Coating with Epoxy Paint

8. Retaining Wall

9. Drainage membrane with cones (HDPE)

10. Waterproofing with bentonite membrane with geotextile on both sides

11. Exposed Concrete with formwork

Authors: George Stahopoulos, Konstantinos Doukas, Konstantina Dimitrakaki, Yota Kyriakopoulou

4 4 14 14 15 9 5 5 13 13 16 15 6 10 9 8 1 4 11 17 18 9 9 7 6 7 12 3 7 2
1 7 7 6 6 5 3 2 1 8 9 10 11 3 4 6 5 7 13 15 14 12 11 10 8 9 2 3
D1 D2 Section

Detail D4

Author: Konstantinos Doukas

1. Metal Drainpipe Ø 250

2. Elastic Tube

3. Gutting Element made of prefabricated concrete

4. Rubber 40mm

5. Plasterboard Framework with Mineral Wool 50mm

6. Stone Wool 10 cm.

7. HEA 140 per 3.58 m.

8. Polyurethane Panel 50 mm.

Detail D3

Author: Konstantinos Doukas

1.

2.

3.

4.

5.

6.

7.

8.

9.

10.

9.

10. Rainwater Grill

11. Galvanized Metal Sheet

12. Bitumen (asphalt) saturated Felt

13. Double Plasterboard

14a.

14b.

15. Filling vacuum with a slope of 1.5%

16. Metal Plate 170/100/3 connection with Grid Frame Steel Structure

17. Grid Frame Steel Structure - HEA 260

18. Panel Girt 140 mm.

19.

Detail D5

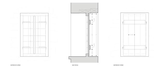
Exterior window.

Aluminum curtain wall, color RAL 7015

1. Panel from Aluminum metal sheet

2. Aluminum Section (Curtain wall)

3. Aluminum hollow Beam with Polyurethane foam

Author: Konstantinos Doukas

11.

20.

12.

21.

13.

22.

1 1 6 6 3 4 2 4 5 6 7 8 9 10 20 17 16 14b 8 6 7 13 14a 22 11 19 18 12 11 9 13 5 7 8 15 1 6 7 8 9 10 9 8 7 6 11 10 12 13 2 3 5 4 5 3 1 2 4 12 11 3 2 1 5 7
4. Aluminum water drip edge, 2 mm. 5. Polyurethane Panel 100 mm. 6. Girt “C” 140 7. Metal trapezoidal polyurethane roof panel Rubber 20 mm. Square Aluminum Tube 100/100/8 Square Aluminum Tube 100/100/3 Triangle Girt Support Plate to HEA 140 Girt “Z” 80 mm. Metal trapezoidal polyurethane roof panel Finishing Aluminum Profile 2 mm. Wool Cotton, 10 cm. Double Plasterboard Plasterboard Framework RHS 100/100/5 Wool Cotton, 3 cm. Wooden Synthetic Panel, 3 cm. Waterproofing Membrane Square Aluminum Tube 100/20/2 Angle bracket 80/40 x 3 x 100 Aluminum water drip edge, 2 mm. Steel Reinforced Concrete Slab Aluminum Section (Curtain wall) with Heat break, color RAL 7015 Glass Pane 23 mm. 3/3-12-5
D5 D3 D4 SECTION C - C SECTION B - B INTERIOR INTERIOR EXTERIOR EXTERIOR SECTION A - A VIEW SECTION

1. Pillar from reinforced concrete – exposed concrete surface

2. HEA 180

3a. Rubber

3b. Rubber 5 cm.

4. Metal trapezoidal polyurethane roof panel

5. Adhesive Sealing tape EPDM-BUTYL

6. Finishing Aluminum Profile 2 mm.

7. Metal tube Ø 270

8. Metal plate connecting HEA 220 with the pillar

9. HEA 220

10. Polyurethane Panel 50 mm.

11. Polyurethane Panel 100 mm.

12. HEA 120

13. Girt “C” 140 mm.

14. Girt “Z” 180 mm.

15. Metal Plate 200/200/6

16. Metal Bolt Pin

17. Metal plate connecting HEA 220 with Curtain wall framework

18. Aluminum Water drip edge 2mm.

19. Aluminum cover strip profile 2mm.

20. Aluminum Section (Curtain wall) with Heat break

21. Polyurethane Foam

22. Glass Pane 23 mm. 3/3-12-5

23a. Aluminum Sheet 2 mm.

23b. Aluminum Sheet 3,5 mm.

23c. Bent Aluminum Sheet 3,5 mm.

24. Waterproof Mastic

25. Square Aluminum Tube 100/20/2

26a. Angle bracket 80/40 x 3 x 100

26b. Angle bracket 40/40 x 3

27. Wooden Synthetic Panel, Thickness 3 cm. Width 30 cm.

28. Cement Board Coating

29a. Cement Board

29b. Double Plasterboard

30. Stone Wool

31. Bent Metal Sheet 3,5 mm.

32a. CHS 6’’/10

32b. CHS 4’’/10

33a. Metal Plate 8 mm.

33b. Metal Plate 10 mm.

34. Suspension Cable 10 KN

35. Trapezoidal Metal Plate 260/140/10

36a. Bent Metal Sheet “L” 45/45/6

36b. Bent Metal Sheet “L” 30/30/5

36c. Bent Metal Sheet “L” 30/50/5

37. Triplex Sandblasted Glass

38a. Metal Plate 250/400/16

38b. Metal Plate 8 mm. width

39. Composite Metal Plate of 8 mm. and 6 mm. Rear canopy support - Gutting

40. Drainpipe Ø 50

18 20 22 18 21 20 15 16 17 20 14 13 11 12 10 9 8 7 6 1 23a 28 29a 30 26a 25 26b 27 32α 36a 36b 3α 36c 37 35 33α 34 31 5 22 20 5 38a 36a 33b 32b 35 36b 37 36c 38b 39 43 31 24 20 21 23b 23b 23b 21 1 20 23c 5 4 3a 2 18 3b 19 20 5 31 29b 30 26a 25 26b 27 28 29a 30
Author: Konstantinos Doukas
D6 D7
Author: Konstantinos Doukas Detail D6 Detail D7

Turn static files into dynamic content formats.

Create a flipbook
Issuu converts static files into: digital portfolios, online yearbooks, online catalogs, digital photo albums and more. Sign up and create your flipbook.