

PORTAFOLIO

PORTAFOLIO CONTACTO
+52 81 8670 6477 mejiajuanmarco@gmail.com linkedin.com/in/mejiamiranda

Arquitecto originario de San Salvador, El Salvador. Graduado en junio de 2023 del Tecnológico de Monterrey, Campus Monterrey, como arquitecto con concentración en arquitectura avanzada. Ejerciendo actualmente en el área de diseño arquitectónico y construcción. Apasionado por la creación de espacios y proyectos innovadores, llamativos y funcionales. Principal interés en diseño arquitectónico residencial, de usos mixtos, instalaciones públicas, comerciales, etc. Habilidades en diseño conceptual, proyectos esquemáticos y ejecutivos, modelado 3D, renderizado, gestión de proyectos, ejecución y comunicación con clientes. Experiencia profesional y académica en San Salvador, Ciudad de México y Monterrey. Perspectiva cultural amplia y abierta a nuevas ideas, procesos y trabajo en equipo.
PROGRAMAS
AutoCad
Lumion
Sketchup
Enscape
Adobe Illustrator
Adobe Photoshop
Adobe Lightroom
Office 365
Rhinoceros
Vray
Revit
INDICE
Aura Place II
Arca
Casa QM
Parroquia San Benito
Manzanares 501
Hostal Cacique
Libu
Dracula Studio
Avanzado
Avanzado
Avanzado
Avanzado
Avanzado
Avanzado
Avanzado
Avanzado
Avanzado
Avanzado
Intermedio







PARROQUIA SAN BENITO MANZANARES 501 HOSTAL CACIQUE
AURA PLACE II
ARCA CASA QM
AURA PLACE II
Diseño de Terra Integral
Arquitectos: Arq. Carlos Narvaez, Arq.Virginia Mendez
Colaboradores: Ing. Francisco de Pablo, Arq. Juan Marco Mejía Saltillo, Coahuila, México
Agosto 2024 - Agosto 2025
Diseño para Sagon Desarrollos de parte del despacho Terra Integral bajo la dir Carlos Narvaez y Arq.Virginia Mendez.
Aura Place II es un proyecto de usos mixtos (vivienda + comercio), segunda fase de desarrollo de Sagon Desarrollos en Saltillo, Coahuila, México. Aura Place proyecto del master plan, este, ya se encuentra actualmente terminando construcción.
Aura Place II comenzo su etapa de diseño a finales del 2024. A diferencia de A cuenta con una oferta mas grande de vivienda y comercio, teniendo 87 diferentes vivienda y una planta baja puramente de comercio.
Como lider de proyecto para Aura Place II, tuve la responsabilidad de coordinar del diseño arquitectónico con los equipos de BIM, estructura, instalaciones directa con el cliente Embarcamos un proceso extenso desde el diseño esquemático, modelado 3D, diseño de detalles constructivos, soluciones distribución de espacios, diseño de amenidades, propuesta de iluminación interior coordinación de la entrega ejecutiva del proyecto, entre otras responsabilidades.

*En este apartado se incluyen los renders ya publicados por el desarollador, información adicional de apartamentos, distribuciones, amenidades, etc. estan sujetas a privacidad del cliente

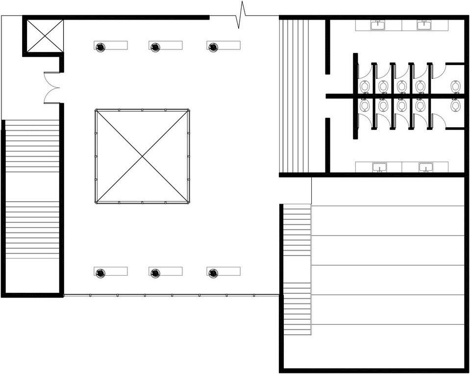
ARCA: CENTRO DE INVESTIGACIÓN Y PROTECCIÓN DE AVES SILVESTRES
Tecnológico de Monterrey - Kinetica Group
En colaboración con Arq. Miguel Urdiales
Oaxaca de Juárez, México
Enero - Julio 2022
Programas: Revit, Grasshopper, Rhinoceros, Lumion, AutoCad, Adobe Illustrator, Adobe Photoshop
Conforme al Objetivo de Desarrollo Sustentable #15 de la ONU, referente a la conservación de la vida silvestre, se concibió un Centro de Investigación y Protección de Aves Endémicas.
En colaboración con el Arq. Miguel Urdiales, se lideró el desarrollo conceptual y el diseño arquitectónico integral. Bajo el apoyo de Kinetica Group como socio formador, con sede en Monterrey, Nuevo León, México.
Se priorizó la integración de elementos naturales del entorno, como la topografía escalonada y la orientación solar, para maximizar la eficiencia energética y confort global del proyecto. Se estableció un hábitat simbiótico entre aves y humanos, utilizando los techos del proyecto como recorridos dentro del aviario, algunos parcialmente enterrados para resaltar la prominencia de la cubierta, elemento central del diseño.
Cada sección de la cubierta cuenta con paneles de control lumínico para modular la temperatura, permitiendo ajustes microclimáticos sin alterar el hábitat natural. Un prototipo de estos paneles cinéticos fue concebido y materializado como parte del proceso de desarrollo y estudio del proyecto.
GANADOR DE MEJOR PROYECTO DE ARQUITECTURA AVANZADA EN GALERÍA
PROYECTA OCTUBRE 2022
Monterrey, Nuevo León, México
Instituto Tecnológico y de Estudios Superiores de Monterrey, Campus Monterrey
Galería Proyecta Octubre 2022





PANEL CINÉTICO
PANEL CINÉTICO
MARCO ESTRUCTURAL DE PANEL
SOPORTE CENTRAL DE PANEL INDIVIDUAL
CONTROL DE PODER DEL SISTEMA & ESTABILIZADOR
ESTRUCTURA CUBIERTA

TORNILLOS DE FIJACIÓN
MOSQUETON FIJO DE SEGURIDAD MALLA (POLIETILENO RECICLADO)
PANEL CINÉTICO
ESTRUCTURA CUBIERTA
CUBIERTA GEODÉSICA (ACERO CABKOMA REVESTIDO DE FIBRA DE VIDRIO)
MALLA (POLIETILENO RECICLADO)



MODULO RECEPCIÓN RECEPCIÓN
SALA DE ESPERA
SERVCIOS SANITARIOS
SALA DE GUARDIAS
CUARTO DE MAQUINAS
BODEGAS
MODULO ADMINISTRATIVO OFICINAS
SALA DE CONVIVIENCIA
SALAS DE CONFERENCIAS
SERVICIOS SANITARIOS
MODULO LABORATORIOS
LABORATORIOS
QUIRÓFANOS
SALA POST OPERATORIA
JAULAS
SERVICIOS SANITARIOS
BODEGA
SALA DE CONVIVIENCIA
MODULO RECREATIVO AREA INTERACTIVA
SERVICIOS SANITARIOS
AUDITORIO

MODULO RECEPCIÓN
RECEPCIÓN
SALA DE ESPERA
SERVCIOS SANITARIOS
SALA DE GUARDIAS
CUARTO DE MAQUINAS
BODEGAS

MODULO ADMINISTRATIVO OFICINAS
SALA DE CONVIVIENCIA
SALAS DE CONFERENCIAS
SERVICIOS SANITARIOS


MODULO LABORATORIOS
LABORATORIOS
QUIRÓFANOS
SALA POST OPERATORIA
JAULAS
SERVICIOS SANITARIOS
BODEGA
SALA DE CONVIVIENCIA
MODULO RECREATIVO
AREA INTERACTIVA
SERVICIOS SANITARIOS
AUDITORIO


CASA QM
Colonia San Benito, San Salvador, El Salvador Febrero 2024
Programas: AutoCad, Sketchup, V-Ray, Adobe Illustrator, Adobe Photoshop
Ubicada en un centro urbano en rápido crecimiento en San Salvador, El Salvador, Casa QM es un proyecto residencial de 500 metros cuadrados que prioriza la privacidad y la interacción social para los usuarios y sus invitados.
El diseño está inspirado en la arquitectura contemporánea latinoamericana y mexicana, con una mezcla de estética europea y escandinava. Se tomó inspiración de arquitectos mexicanos como Luis Barragán en la incorporación de espacios de transición tenues, terrazas abiertas sociales, concreto aparente, texturas rugosas limpias y minimalistas.
El diseño prioriza la funcionalidad sin dejar atrás la estética confortable y amigable de un hogar. Se crea una transparencia a través de cristales y ventanales que permiten la entrada de luz natural con patios internos que dan apertura natural sin comprometer la privacidad. Esta transparencia igualmente vincula los espacios, no solo en planos horizontales sino en planos verticales de la vivienda.
Algunas de las necesidades del proyecto incluyeron diversos espacios habitables, tres dormitorios diferentes, terrazas en la azotea y la incorporación de estrategias bioclimáticas para la iluminación, ventilación y funcionalidad.





PRIMER NIVEL
COCHERA
BLANCOS Y LAVANDERÍA
BAÑO VISITAS
RECIBIDOR
SALA
COMEDOR COCINA
SITE
PATIOS INTERIORES
SEGUNDO NIVEL
HABITACIÓN PRINCIPAL
BAÑO PRINCIPAL
HABITACIÓN 2
BAÑO 2
HABITACIÓN 3
BAÑO 3
SALA
BIBLIOTECA
TERRAZA
TERCER NIVEL / AZOTEA
AZOTEA / ESPACIO POLIVALENTE




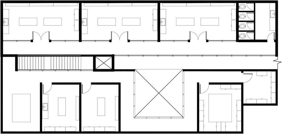
PARROQUIA SAN BENITO
López Hurtado / Ingenieros y Arquitectos
San Salvador, El Salvador
Junio 2022
Programas: Sketchup, AutoCad, Lumion, Adobe Illustrator, Adobe Photoshop
El proyecto consiste en la remodelación del salón polivalente de la actual Parroquia San Benito ubicada en la capital de El Salvador, en la Colonia San Benito.
Parte de las necesidades del programa del proyecto era la integración de salones multiusos para diferentes grupos de oración de la comunidad de la iglesia y un salón polivalente que permita aumentar la capacidad de usuarios para las ceremonias y misas llevadas a cabo en la parroquia. Se optó por el uso de paredes móviles que se puedan abrir y cerrar en los diferentes salones y crear espacios más abiertos o cerrados dependiendo de la necesidad que se necesite.
Dentro del proceso de diseño de la remodelación se buscó acoplarse al edificio existente, respetando el protagonismo de la iglesia, una entidad emblemática de la ciudad. La implementación de elementos triangulares dentro del diseño fue importante para respetar el lenguaje original del arquitecto y la identidad de este Vista en planta, el nuevo salón polivalente se incorpora a la iglesia formando la silueta de la cruz de San Benito, añadiendo valor religioso y cultural al sitio.
Actualmente el proyecto se encuentra en un proceso de recaudación de fondos para comenzar la construcción. Responsable del diseño arquitectónico junto el director de arquitectura del despacho, el Arq. Francisco Hurtado.



SALÓN POLIVALENTE
OFICINAS ADMINISTRATIVAS BODEGAS
HABITACIÓN No. 1
BAÑO PRIVADO No. 1
ELEVADOR
ESCALERAS PRIVADAS CONFESIONARIOS
PLANTA TIPO I COCHERA BAÑOS


HABITACIÓN No. 2
BAÑO PRIVADO No. 2
HABITACIÓN No. 3
BAÑO PRIVADO No. 3
COCINA/COMEDOR
BAÑOS
SALAS DE ESTAR TERRAZA EXTERIOR SALONES MULTIUSOS ELEVADOR
PLANTA TIPO II


PLANTA TIPO III HABITACIÓN No. 4
BAÑO PRIVADO No. 4
LAVADERÍA
BAÑOS
SALAS DE ESTAR SALONES MULTIUSOS ELEVADOR



MANZANARES 501
Tecnológico de Monterrey
En colaboración con Arq.Tomás Adams
San Pedro Garza García, Nuevo León, México
Enero - Febrero 2023
Programas: Sketchup, AutoCad, Enscape, Adobe Illustrator, Adobe Photoshop
Ubicada en Río Manzanares dentro de Centrito Valle en San Pedro Garza García, Manzanares
501 es un complejo de usos mixtos, habitacional multifamiliar + comercio que busca brindar vivienda accesible para jóvenes trabajadores de la zona.
El proyecto busca la funcionalidad y eficiencia, creando módulos de apartamentos semejantes de fácil construcción, fácil instalación y confort para el usuario. Se prevee la incorporación de patios internos para iluminación natural en todos los módulos.
Dentro del proyecto se encuentran 84 unidades. Los departamentos propuestos dentro del diseño van dirigidos a dos tipos de perfiles: adultos independientes solteros y adultos independientes casados o con compañeros de cuarto.
36 Departamentos de 40 m²
48 Departamentos de 80 m²
5,256 m² de vivienda en total
Dentro de la propuesta igualmente se incorporan 20 Locales comerciales de 40 m². El plan de negocios propone que los locales servirán como ingreso para subsidiar los servicios y parte de la renta de los departamentos, creando una vivienda más accesible para los usuarios en el Centro Valle de San Pedro.


ISOMÉTRICO


PRINCIPAL

SECCIÓN TRANSVERSAL

SECCIÓN LONGITUDINAL



PLANTA TIPO I
PLANTA TIPO II


PLANTA TIPO III
PLANTA TIPO IV


PLANTA TIPO V PLANTA TIPO APARTAMENTO

HOSTAL CACIQUE
Tecnológico de Monterrey
En colaboración con Arq.Tomás Adams Monterrey, Nuevo León, México
Agosto - Diciembre 2022
Programas: Sketchup, AutoCad, Enscape, Adobe Illustrator, Adobe Photoshop, Revit
Se basó el proyecto en un predio en el centro de Monterrey con dimensiones retadoras, teniendo aproximadamente 6 metros de ancho por 50 metros de profundidad.
Se determinaron por parte del Socio Formador las necesidades del hostal y con base en esto se desarrollaron propuestas estructurales, arquitectónicas, de instalaciones y finalmente se determinaron los costos de este.
Igualmente, se desarrolló una propuesta alrededor de la neuroarquitectura para obtener emociones y reacciones específicas de los futuros usuarios. Estas se fueron midiendo usando diferentes estrategias estadísticas.
El diseño busca adaptarse al entorno clásico que se ve presente en el centro de la ciudad, usando elementos y tonos que se ven presentes en los alrededores
Con una distribución de módulos específica, se buscaron crear patios centrales que permitieran la entrada de luz y viento a todos los espacios dentro del edificio, abasteciendo las necesidades de los usuarios.
Todo el diseño igual se basó en incorporar el edificio existente dentro del predio, que en este caso fue utilizado como el lobby del hostal.



PLANTA TIPO I
LOBBY PRINCIPAL
ÁREAS VERDES
SERVICIOS SANITARIOS HABITACIONES
PASILLO
ÁREA DE LAVADERÍA
CUBOS DE INSTALACIONES
BODEGAS
ESTANCIA DE TRABAJADORES
ESCALERA DE EMERGENCIAS
RESTAURANTE
COCINA
ESCALERAS
ELEVADOR
CLOSET DE BLANCOS

PLANTA TIPO II HABITACIONES
CUBOS DE INSTALACIONES
ESCALERAS
PASILLO
ESCALERAS DE EMERGENCIAS
CLOSET DE BLANCOS

PLANTA TIPO III
HABITACIÓN SUITE
HABITACIONES
ESCALERAS
ELEVADOR
ESCALERA DE EMERGENCIAS
CLOSET DE BLANCOS
ÁREA SOCIAL / TERRAZA

PLANTA TIPO IV
ROOFTOP / ÁREA SOCIAL BODEGA
ESCALERA
ELEVADOR
HABITACIÓN
ESCALERA DE EMERGENCIAS




FACHADA PRINCIPAL CORTE TRANSVERSAL PROPUESTA DE INSTALACIONES

LIBU
Diseño en colaboración con Dracula Studio
Ciudad de México, México
Verano 2020
Programas: Adobe Illustrator, Adobe Photoshop, Adobe Lightroom
Enfoque: Diseño de marca, diseño de logo, diseño gráfico
Responsable de la adaptación y diseño de marca, junto al diseño del empaque del producto.
Diseño en colaboración con el director creativo de Dracula Studio, Eduardo Samayoa.
Se buscó un diseño contemporáneo, enfocado para un mercado joven y apelando al lado ecológico del producto.
Se mantuvo el diseño limpio, usando un contraste llamativo en diferentes factores del diseño como la tipografía y la paleta de colores.
Paso a paso, igualmente se trabajó en la presentación del producto para tener un aspecto llamativo al cliente, así como la presentación de este en la página web de Drácula Studio para futuros clientes.
https://www.dracula.mx/libu


DRACULA STUDIO
Diseño en colaboración con Dracula Studio
Ciudad de México, México Verano 2020
Programas: Adobe Illustrator, Adobe Photoshop Enfoque: Diseño de logo, diseño de pagina web
Responsable del diseño de los íconos de los servicios ofrecidos por Dracula
Studio, así como los íconos del proceso creativo y de trabajo del despacho: idea, visión y creación.
El diseño de estos íconos tenía que ser perceptible y entendible al público, ya que eran destinados para la página web e imagen gráfica del despacho.
Para el diseño se buscó una estrategia monocromática, simple y moderna, ajustándose a la estética de Dracula Studio y a su trabajo
https://www.dracula.mx/team

