

JOHANNA SCHWEITZ

Epost: johanna.schweitz@gmail.com
Telefon: +46 73 789 11 65



1 2 5


4
KAFFE-SCENERIET (2018) Kulturbyggnad med rörlig funktion

FREIBAD KOLONNADE (2022) Träkolonnad vid pool i Tyskland Genomförtprojekt
7

FABRIKSHALLARNA (2020) Transformation av Yllefabrik Kandidatarbete
3


6

PROBIOSIS (2021) Tävling, Affordable Housing Förslagetblev“shortlisted”
DELAT PÅ TAKET
Bakgrund
Bostäder i storstäder har blivit en svårtillgänglig lyxvara. Bostadsbyggen där sker ofta på bekostnad av tillgängliga grönytor, vilket bromsar ner arbetet för en hållbar stad. Länsstyrelsen skriver i sin bostadsrapport från 2021 att det råder kraftig brist på bostäder med rimlig hyra. Som bostadsmarknaden ser ut idag, med vinstdrivande byggbolag tillsammans med dyr mark, går problemet enligt rapporten inte att lösa utan förändring.
En alternativ bostadsmarknad utifrån byggemenskap
Detta examensarbete söker efter ett alternativt sätt att bo, där de boende tar kontroll över sin boendesituation. Utgångspunkten är att hitta en annan plats att bygga på än det traditionella, att öka mängden tillgängliga grönytor och att inte involvera byggbolag. En
bostadsmarknad utifrån byggemenskap på platta tak i Stockholms innerstad tar form: Delat På Taket
Ett urbant och ett småskaligt perspektiv
Examensarbetet består av två delar. Med inspiration från Rotterdams program för sina platta tak undersöksoch kartläggs platta tak i Stockholm. Det resulterar i en katalog, som blir ett verktyg och hjälpmedel för bostadsmarknaden. I ett mindre perspektiv undersöks det delade boendet och avslutas i bostäder på ett valt platt tak.
Syfte
Min förhoppning är att ge upphov till tankar och diskussion för hur framtidens bostadsmarknad kan se ut och väcka funderingar kring hur delat ett delat boende kan vara.




































Delat på taket: 10 steg
1. Bli medlem





































Mot en avgift blir man medlem i DelatPåTaket. Avgifterna finansierar utredningarna i punkt 5 och 6.
2. Hitta dina blivande grannar
Medlemmar får tillgång till ett forum där de kan hitta andra som vill bo på ett liknande sätt
3. Hitta ett tak
Med hjälp av katalogen, beskriven på nästa sida, hittar den blivande byggemenskapen sitt tak.
4. Vad vill fastigheten ha?
Byggemenskapen och fastigheten den kommer stå på inleder en relation, där byggemenskapen får vara på taket mot att den ger något tillbaka till fastigheten.
5. Utred fastighetens hållfasthet
En kritisk punkt för varje projekt är om byggnaden klarar av laster från en påbyggnad. En förstärkning av fastigheten kan bli kostsam.































6. Utred kostnader för att tillgängliggöra taket
Finns hiss och trapphus eller måste det läggas till? Vad blir kostnader för el- och rördragning? Om det är lönsamt att bygga på valt tak ”paxas” taket i katalogen.
7. Bilda byggemenskapen
De blivande grannarna grundar sin byggemenskap. Den drivs som en förening som i sin tur kommer att äga bostäderna.
8. Ta ett subventionerat lån
Byggemenskapen får ta ett förmånligt lån tack fördelarna som bostäderna ger till staden. Projekten berör brist på grönytor och bostadsbrist.
9. Rita bostäderna
Delat På Taket jobbar med en arkitekt som följer varje projekt. Bostäderna ritas tillsammans med de boende utifrån en inventering av takets visuella kopplingar.
10. Nu byggs det När bostäderna står färdiga uppdateras katalogen med bilder och ritningar. Projektet får ett namn.
Flytta in
Totalt 704 platta tak har identifierats. Av dessa väljs knappt hundra ut och får en plats i katalogen.

Katalogen finns både i fysiska exemplar och digitalt.
Katalogen
Katalogen blir en växande informationsbank och ett verktyg för
Delat På Taket. Hundra platta tak är dokumenterade i katalogen och medlemmarna kan fylla på med mer information och material.
Här delas idéer, ritningar, tillvägagångssätt, tips och erfarenheter med varandra.

Genom att själv uppleva olika platta tak kunde jag ta fram en strategi för hur ett tak upplevs bäst. Bild från taket till parkeringsgaraget vid DN-skrapan.
Inventering av visuella kopplingar i fyra steg
Att påminnas om att man befinner sig på ett tak är utgångspunkten för varje tak, och ett verktyg i fyra inventeringssteg har tagits fram. Alla bostäder i Delat På Taket utgår från dessa under gestaltningsskedet. Varje tak får ett privat område med bostäder och ett område till fastigheten som även är öppet för allmänheten.

1. Tempot på taket
Finns idag en lugnare respektive stökigare del? Lugn sida passar bäst som bostadsområde, stökig för offentlig del.

2. Utkiksplatser
Hitta takets bästa utsikter. Siktlinjer längsmed- och tvärsöver taket förstärker känslan av att vara på ett tak.

3. Kroppsposition
Var vill man passera, stanna kvar, titta upp, titta ner eller titta ut? Varje utkiksplats en kroppsposition: ligga ner, sitta, stå eller gå.

4. Spången
För att ytterligare uppmana till specifik förflyttning leder spångar en runt på taket mellan utsiktspunkterna längs siktlinjerna.
Norra Stationsgatan SKÅLEN 24

Rålambsvägen
CAMPUS KONRADSBERG


FOLKSAMHUSET
MIMER 7

Vanadisvägen
KVARTERET GRÄSET
VANADISGÅRDEN
TIDNINGSHUSEN, GARAGET




HÄRDEN
LANTMÄNNEN, KV. FRISTADEN
DELAT PÅ TIDNINGSHUSET
Vid Marieberg ligger Tidningshusens
parkeringsgarage. Taket kan bära bilarnas laster och går att nå från trapphuset. Det blir Delat På Taket’s första bostadstak.

Ett ännu mer delat boende
Att använda eller låta bli att använda dörren och väggen tänjer på gränserna för det delade hemmet. Genom att förflytta sig mellan två rum i en S-rörelse kan siktlinjer mellan två rum brytas.
En bruten siktlinje blir en ny typ av dörr.

Två väggar var
Varje hushåll får två väggar var som genom att byta vinkel och riktning skapar olika grader av privata och delade rum.






Garagetaket består av två halvplan med 1,4 meters höjdskillnad. Detta ger de lägre halvplanets hushåll sovloft med en takhöjd på minst 1,4 meter.





Genom att variera sinusplåt, korrugerad plast eller bara takets egna struktur får byggemenskapens tak olika grader av transparens - ett lapptäcke av ljus och mörker.






Hushållen
Baserat på vilken energinivå personerna upplever att de har kopplat till aktiviteterna de prioriterar sätts hushållen ihop.
Fika Fika
Hänga Hänga
Spelkväll Spelkväll
Meka med cykeln
Yoga/träna
Laga mat/baka Laga mat/baka Läsa & bokbyte Äta Äta
Hushållet: Kompisarna Andreas, Mert, Cassandra och Sara.
Energinivå: Mellanlugn, stökig
Hänga
Hänga
Se en film/serie
Hushållet: Nadine, Robert och paret Lucia och Trine.
Energinivå: mellanlugn, stökigt
Rita & måla
Hänga Fika
Sy Spelkväll
Leka/spela spel
Laga mat/baka Laga mat/baka
Hushållet: Lars, Berit och Stein & Lisa.
Energinivå: lugn, stökig
Hushållet: Familjen Nygård.
Energinivå: Stökigt, mellanlugnt
Jobba vid skrivbord
Laga mat/baka
Hushållet: Greger, Maj, och paret Susanne & Tim.
Energinivå: lugn, mellanlugn


Hos familjen Nygård gör man sig i ordning för att gå till skola och jobb.





Susanne jobbar vid stora bordet. Lars kommer förbi för att få jobbsällskap.





Andreas mekar med sina cyklar. Lucia jobbar i verkstan innan det är dags för grillning vid 19.















Berit och hennes barnbarn ser en film. Nadine och några fler ansluter.

Grillning i sommarköket. Stein kommer med nyskördade grönsaker.





har


Sociala utmaningar
En bostad utan dörrar innebär att man för det mesta hör varandra, vilket kommer med sociala utmaningar. I hushåll där personerna inte känner varandra väl eller har olika rutiner är sannolikheten stor att man sätter upp dörrar. När någons livssituation ändras kanske inte denna typ av boende längre passar. Då kan en byggemenskap på ett annat tak passa bra.
Familjen
picknick i det andra uterummet.
flyttar in för att äta ost och spela spel.

Sektion B-B. Skjutdörrar mellan hushållen kan öppnas upp för nya rumsanvändningar. Här öppnas två hushåll mot varandra för ett födelsedagskalas.

Sektion C-C. Två hushåll har öppnats upp för ett tillfälligt storkök.

Två gavlar blir ryggen åt ett nytt torg och ger platsen en stark siluett. Här skymtas kvarterets innergård med kommunikationsspångar och växtlighet. Den ena fasaden förses med en skärm som visar film, konstverk eller information.
KV. BANGÅRDEN
I Tullholmsviken i Karlstad låg förut Tullholmssågen, ett sågverk som var verksamt fram till 1928. 2021 anordnades en markanvisningstävling där, och vi tog fram ett förslag på ett kvarter som fokuserar på social hållbarhet och gemenskap. Gestaltningen grundar sig i en tillbakablick i platsens historia med tegel och trä som relaterar till den gamla industribyggnaden och dess verksamhet.
Kvarteret består av tre huskroppar med olika karaktär och riktningar. Invändiga kommunikationsstråk lyfts ut ur byggnaden och sker istället längs innergårdens fasader. Det bidrar till ett levande kvarter med många mötesplatser och rörelse åt alla håll, synligt för förbipasserande.

Entréplan. Tack vare utvändiga trapphus och kommunikation kan lägenheterna vara genomgående med ljusinsläpp från två väderstreck. I entréplan finns stora cykelrum och kommers blandat med mindre lägenheter.

Kvarterets huvudentré.

På taken finns odling och lekplatser med utsikt in mot staden och ut mot Klarälven. Sadeltaket förses med solceller i bästa väderstreck. Kvarteret certifieras enligt Miljöbyggnad Silver.

FÖRSKOLAN LYKTAN
Västerbro är ett industriområde i Lund från 60-talet som planeras till att bli en ny stadsdel. I den norra delen, intill Qvantenborgsparken, får Förskolan Lyktan sin plats. Det ger verksamheten närhet till grönyta och bra kommunikationsmöjligheter med cykel, buss och till fots.
Ett rikt naturligt ljusinsläpp står i fokus då dagsljus stödjer kreativitet och inlärningsförmåga. Det resulterar i förskolans karaktäriserande taklandskap, vars former kan ses som en förlängning av Qvantenborgsparkens böljande landskap. I byggnadens kärna finns ett atrium. Det blir en mötesplats mellan avdelningarna och ett lek- och läranderum utomhus där barnen tydligt kan följa årstidernas gång.
Verksamheten har en kreativ inriktning med ateljéer för konst- och vattenprojekt. Dessa rum delas med kvällskurser för att minska antal timmar som byggnaden står oanvänd. Byggnaden är ett passivhus och får en miljöklassificering enligt Miljöbyggnad 3.0.


Ateljéerna vetter mot norr för ett mjukare ljus. Fönster är placerade på olika höjder som ger utsikt till både stora och små.

Rummens olika färger ökar orienterbarheten inomhus.
Naturlig ventilation genom fönster på lämplig höjd.
Mekanisk ventilation kompletterar den naturliga ventilationen.
Alla rum får ljus från minst två håll.

För optimalt ljusinsläpp och minskade solvärmelaster har fönster olika storlek beroende på väderstreck.
Stomme av KL-trä och isolering av cellulosafibrer.
Konstruktionsdelar med låga U-värden, t.ex. spektralglas i fönstren.

1. Vindfång 2. Kapprum 3. WC 4. RWC 5. Torkrum
6. Torg
7. Småförvaring
8. Allrum
9. WC/skötrum

10. Vilrum
11. Ateljé
12. Förråd
13. Dusch
14. Personalentré
15. Personalrum
16. Passage för leveranser
17. Installationsrum
18. Atrium
19. Rutschkanor
20. Gungor
21. Sandlåda
22. Utesovplatser
23. Qvantenborgsparken



KAFFE-SCENERIET
Bakgrund
Mitt i centrala Lund ligger Hemgården, ett kulturhus för föreningar och ungdomar. Här intill ligger en gård som idag fungerar som parkering. Entrésituationen hit är otydlig och det är svårt att förstå vad som är privat och offentligt. Som förbipasserande är det lätt att missa Hemgårdens existens.
Café, scen och galleri
Med en ny byggnad, vars program
Arbetsgrupp
Schweitz, Ida Wengholt
relaterar till omgivande verksamheter, kan gården få en annan funktion med tydliga ingångar. Resultatet blev Kaffe-Sceneriet, som varierar mellan café, scen och galleri beroende på årstid och tillfälle.
Fasaden mot söder går att öppna upp för att förlänga huvudrummet ut till gården. Genom att låta taket sticka ut en bit över trottoaren väcker det nyfikenhet hos förbipasserande. Skissmodell

Fasad mot sydost. Byggnadens fasader har olika riktningar med intentionen att de ska upplevas som olika framsidor.


1. Kaffe-Sceneriet. 2. Lundaböcker. 3. Hemgården. 4. Lunds Stadsteater. 5. Stortorget. 6. Rådhuset. 7. Lunds Domkyrka. 8. Domkyrkoplatsen. 9. Domkyrkoforum.


Den smala passagen mellan Kaffe-Sceneriet och Lundaböcker leder besökarna mot gården.




Källarplan. Här finns toaletter och plats för förvaring.


Kolonnaden blir områdets nya entré och leder besökarna från gatan in mot poolen. Den är inte bara en passage utan ett avlångt rum för aktiviteter. Här spelar man pingis, äter sin matsäck eller tar skydd från solen. Kiosken integreras med kolonnaden och får en ny plats utanför poolområdet för att göra den tillgänglig även för förbipasserande.
FREIBAD KOLONNADE
I kursen Freibad Kolonnade ritade och byggde studenterna en träkolonnad i anslutning till en utomhuspool. Vi delades in i tre grupper som jobbade med varsitt förslag, där min grupps valdes ut för realisering. Vi jobbade tillsammans med hela processen från idé till ekonomi och bygglov. Slutligen byggde vi allt på plats i Rippershausen under två veckor i juli.
Till kolonnaden byggde vi ett sommarkök av överblivna träbitar ochtillverkadeterrazzobänkskivorav återbrukatmaterialfrånskolområdet. I universitetets träverkstad och betongverkstad prefabricerade vi alla delar. Sammanfogningen av träet är inspirerat av Rietvelds stol Red And Blue.


Kolonnadens entré. På lyktstolpen framför fäste vi bokstäver i metall.

PROBIOSIS
Bakgrund
Buildner, tidigare Bee Breeders, anordnar årligen idétävlingen Affordable Housing Challenge. Detta år baserades den i Berlin. Hyrorna i Berlin har stigit snabbt samtidigt som lönerna nästan är kvar på samma nivå. Staden efterfrågar ett stort antal bostäder med lägre hyressättning på kort tid.
Vårt förslag
Vår idé bygger på Snabba Hus-principen att använda ”väntande tomter”, d.v.s. tomter med planerade byggprojekt som ännu inte startat.
ProBiosis-bostäderna är temporära med kommers i markplan som genererar pengar till bostäder på fler andra väntande tomter.
En grundmodul kombineras på olika sätt för att ge olika storlekar på lägenheterna. Varje lägenhet når minst ett delat utrymme. Kommunikation inom byggnaden sker genom kommunikationsmoduler som även fungerar som gemensamhetsutrymmen. Förslaget ger flexibla bostäder som går att anpassa efter behov och hushåll.
Johanna Schweitz, Amanda Lagerqvist,Amir Ebrahimian & Carlota De Haan



Självbärande isolerad stålmodul: 3,6x7,2x3m.

När tomten ska användas till annat flyttas modulerna till en ny tomt.

Väggar och golv för butiker, caféer verksamheter adderas på grundstrukturen.
Dessa prefabriceras i fabriker nära Berlin.
Sedan transporteras de till tomten.

Varje tomt fylls med en 6m hög grundstruktur av stål som byggs på plats.
Modulerna staplas sedan ovanpå stålstrukturen.

ProBiosisbyggnaderna är hybridbyggnader med publika rum, bostäder och parker.
Modulerna kombineras på olika sätt för att skapa olika bostadstyper och rum.
Slutligen adderas balkongmoduler och kommunikationsmoduler.



Modulerna kan öppnas upp mot varandra för att skapa större lägenheter.
Bostäderna kan byggas som utfyllnad mellan två byggnader eller som en fristående byggnad.
MetzerStraße

Inspirerande för Fabrikshallarnas program har varit Alma Löv Museum of
FABRIKSHALLARNA
Bakgrund
Yllefabriken i Marieholm är en nedlagd textilfabrik.
I kandidatstudion Tid och Rum var uppgiften att genom transformation ge en av fabriksbyggnaderna en ny funktion.
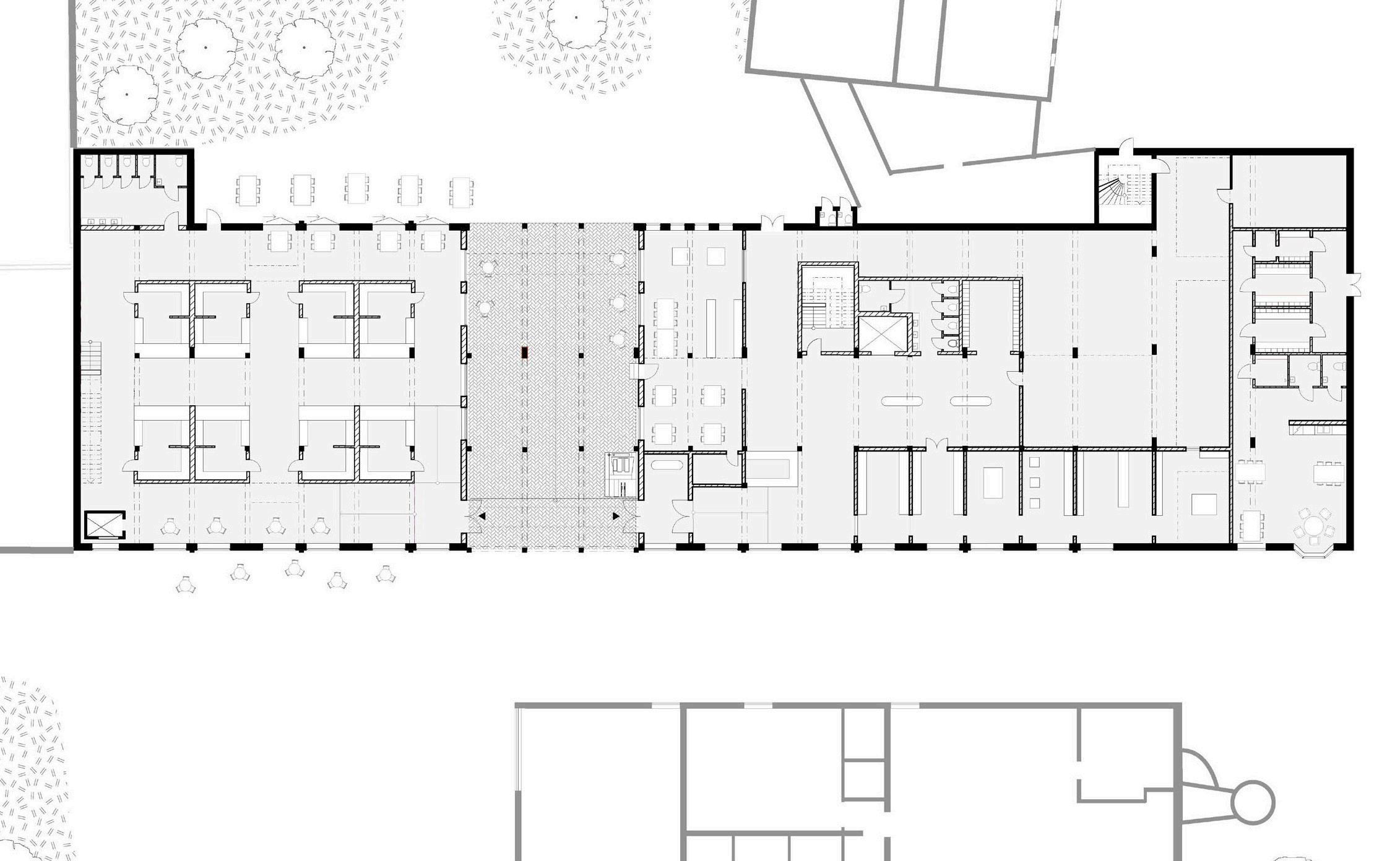
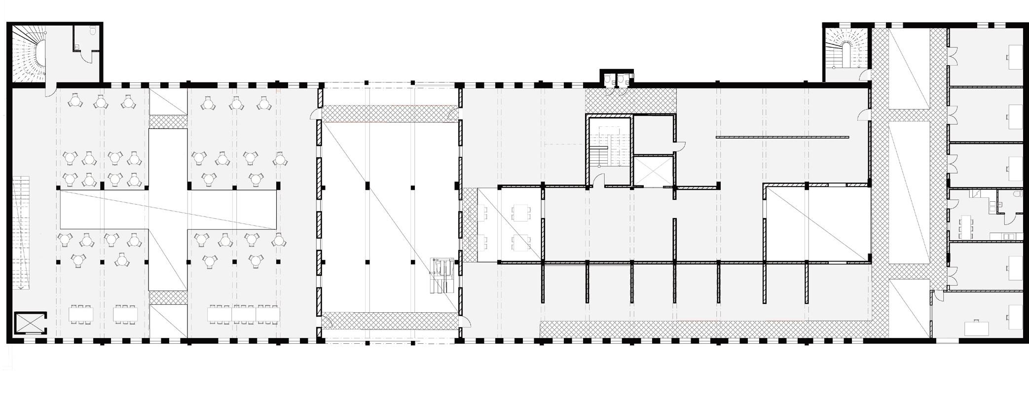
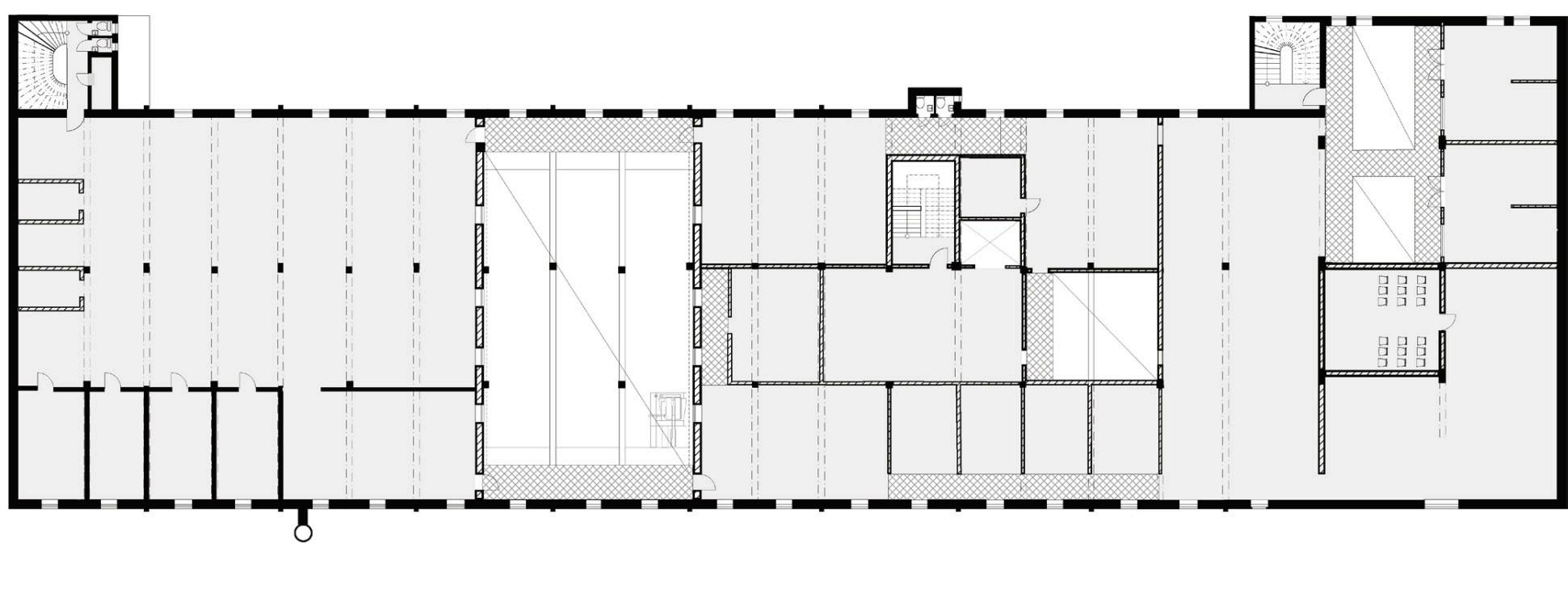
Konsthall & saluhall
Huvudbyggnaden får nytt liv genom att transformeras till en konsthall med ateljéer och samspelar med en saluhall i markplan. Konsthallen visar temporära utställningar med utomstående konstnärer och ateljékonstnärerna. Här får både etablerade och oetablerade konstnärer ställa ut.
Medverkande
Schweitz När Sjätte terminen

Unexp. Art, Vandalorum och Giardini della Biennale.
Johanna
Vad
Textilfabrik transformerad till konsthall och saluhall
Var Marieholm

Transformationen
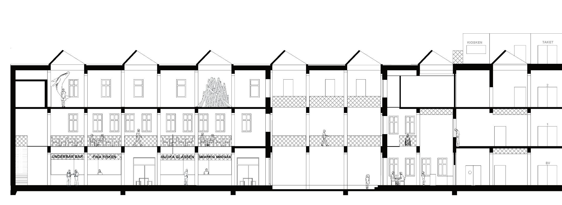
För att koppla områdets huvudgata till innergården öppnas en passage upp tvärsigenom byggnaden. Det rivna teglet återbrukas som markbeläggning och de nya väggarna får en trästomme. Genomgående i gestaltningen används gallerdurk och streckmetall, som med sin vävliknande struktur blickar tillbaka i textilfabrikens anda.
För att släppa in ljus och skapa rum med olika rymd öppnas bjälklaget upp på vissa ställen. Den bärande strukturen förblir intakt.




Transformation av fasaden. Det borttagna teglet återbrukas som markbeläggning.





























