Provincial Department of Buildings Northern Province

Page 1

9'-2" 7'-10" 1' 3"1" 5" 1" 3" 1"2"1" 6" 1" 1'-4" 6" 4" 1'-3" 1' 9'-2" 1'-8" 7'-10" 1'-4" 1' 6" 1' 6" 1' 6" 2" 7" 1' 2" 4" 2" 1" ALLRIGHTRESERVEDTEMPLATEFILE-DESIGNOFFICE,DEPARTMENTOFBUILDING,NORTHERNPROVINCE,SRILANKA. rhp epfh khdk f TITLE SHEETNO SCALE DRGNO Design fl;llq;fs;jpizf;fsk; DEPARTMENTOFBUILDINGS tlf;Fkhfhzk NORTHERNPROVINCE designproposalforcouncilchamberdoor @provincialcouncil A1079/J 02/03 1:20 FRONTVIEW SIDEVIEW ARCHITECT DRAWN DIRECTOR DATE DEPUTYDIRECTOR(Design) 21.06.2019 D.O.A A.Nixon
DETAIL ALLRIGHTRESERVEDTEMPLATEFILE-DESIGNOFFICE,DEPARTMENTOFBUILDING,NORTHERNPROVINCE,SRILANKA. rhp epfh khdk f TITLE SHEETNO SCALE DRGNO SketchDesign fl;llq;fs;jpizf;fsk; DEPARTMENTOFBUILDINGS tlf;Fkhfhzk NORTHERNPROVINCE designproposalforcouncilchamberdoor @provincialcouncil A1079/J 03/03 1:5 DETAIL ARCHITECT DRAWN DIRECTOR DATE DEPUTYDIRECTOR(Design) 21.06.2019 D.O.A A.Nixon

Education Environment Improvement Project

IN KILINOCHCHI DISTRICT

Kilinochchi Weather

On average, the temperatures are always high. A lot of rain (rainy season) falls in the month: October, November and December.

Design Consideration

 USER REQUIREMENT

 ORIENTATION AND LOCATION OF THE BUILDINGS

 USER COMFORT AND NATURAL LIGHT AND VENTILATION

 ENCOURAGING LOCAL AND ECO FRIENDLY MATERIAL

 INSPIRING SPATIAL EXPERIENCE TO BE A MAGNET TO ATTRACT STUDENTS

Design Concept

 CREATING THE MICROCLIMATE

 REVITALIZE THE TRADITIONAL ARCHITECTURE

 CREATES THE COMFORTABLE AND SUITABLE CONDITIONS FOR ANY ACTIVITIES

 CIRCULATES THE AIR PROTECTING THE INHABITANTS FROM HARMFUL EFFECTS OF STORMY WINDS, HOT WEATHER, AND DUST WINDS.

 CASTS SHADOWS FROM ALL SIDES, WHICH CREATES A DEEPER SHADOW, WHICH PROTECTS THE WALLS AND THE SPACES ARRANGED BEHIND THEM BY PREVENTING THEM FROM OVERHEATING

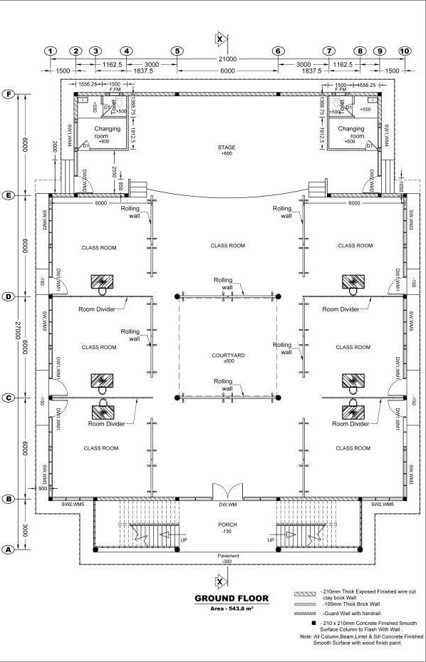
Class room building as convertible assembly hall

PLAN
LAYOUT

Class room building as convertible assembly hall

DETAIL

Class room building as convertible assembly hall

PERSPECTIVE

Single storey assembly hall

PERSPECTIVE

Single storey assembly hall

DETAIL

Single storey assembly hall

PERSPECTIVE

Design Concept

 CLIMATIC CONSIDERATIONS INSPIRED THE VOLUME AND FACADE

 CROSS-VENTILATION HELPS TO GUIDE THE HUMID AND HOT AIR AWAY

 THE GENERAL FORM IS THE RESULT OF A STRUCTURAL LOGIC, DERIVED FROM THE MATERIAL CHOICE

 WALLS PERFORATIONS IN THE BRICK PATTERNING, OPEN TO AIR AND LIGHT, AS WELL AS PROTECTING THE CLASSROOMS FROM EXCESSIVE SOLAR EXPOSURE.

 “HALLWAY PORCH” IS A SPACE PROVIDES A SHELTER FROM HEAVY RAINS AND HARSH SUN.

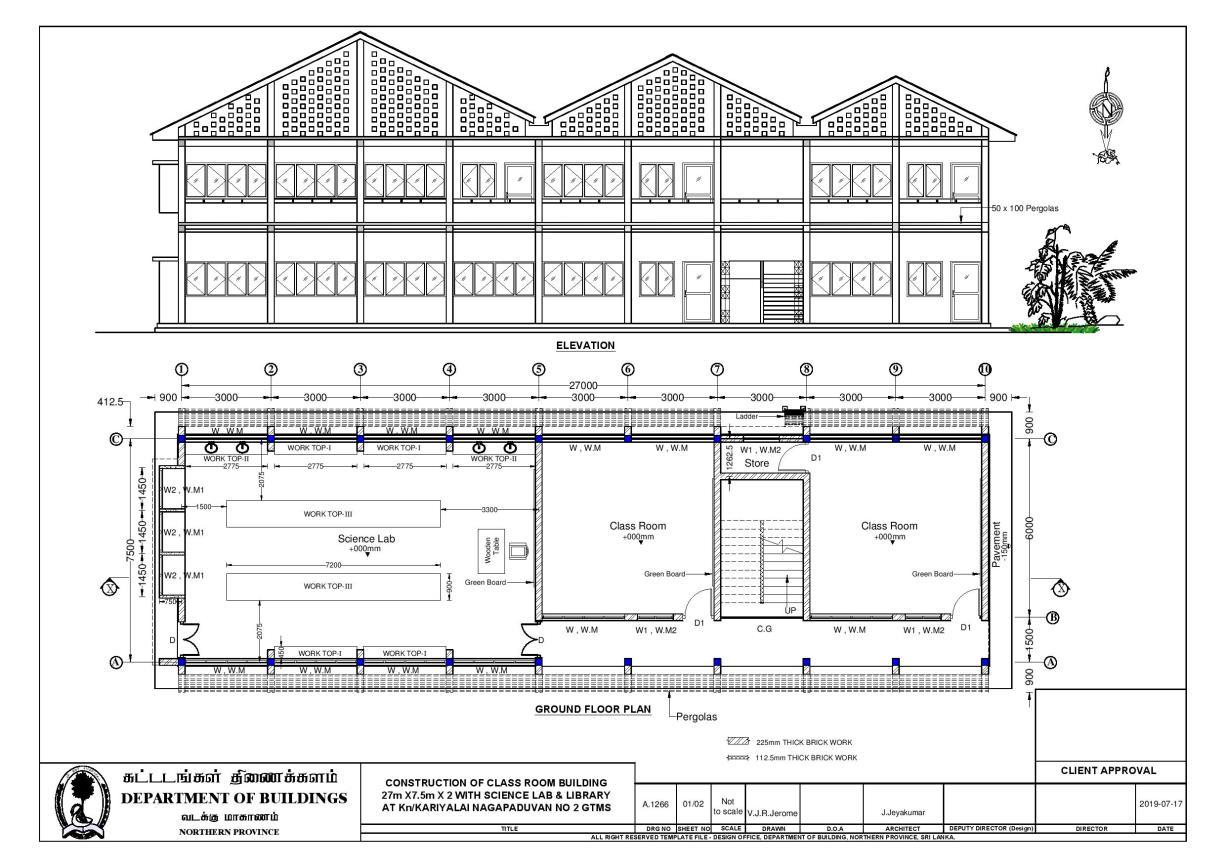
Class room building with Science Lab and Library

LAYOUT PLAN

Class room building with Science Lab and Library

DETAIL

Class room building with Science Lab and Library

PERSPECTIVE

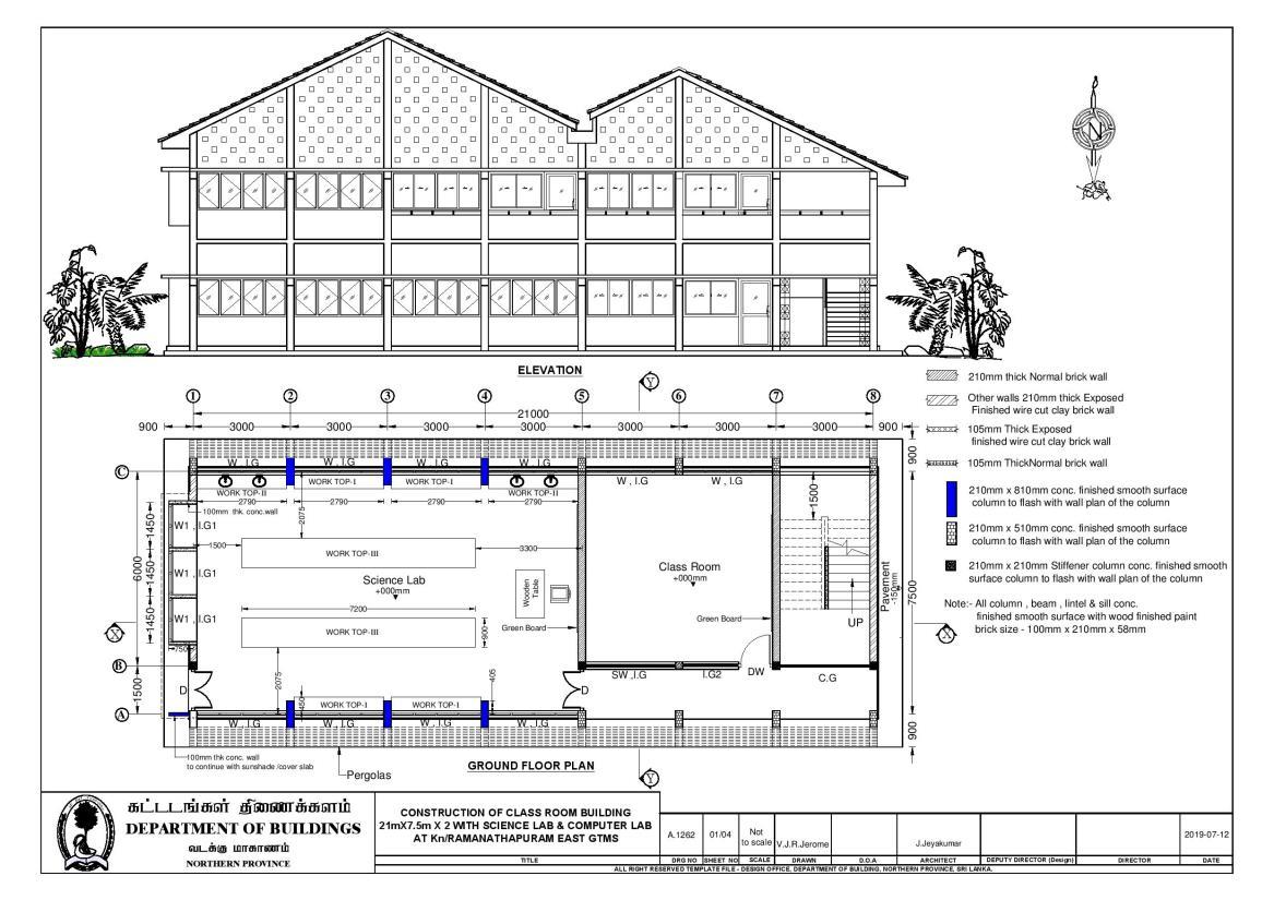
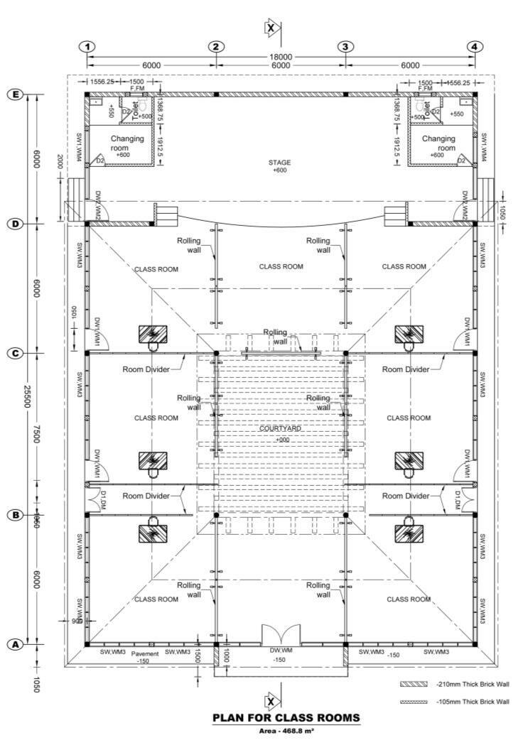
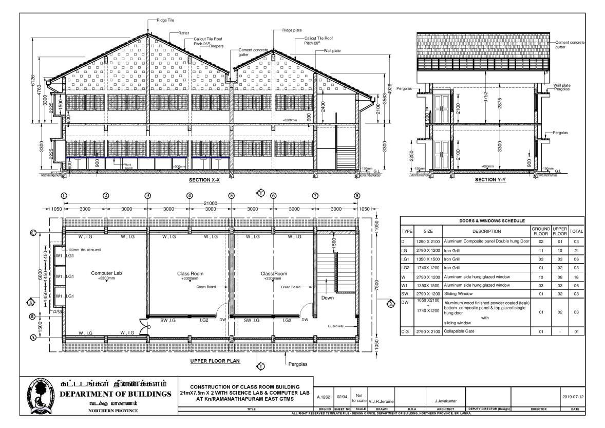
Science Lab and Computer Lab with 3 classrooms

PLAN
LAYOUT

Science Lab and Computer Lab with 3 classrooms

DETAIL

Science Lab and Computer Lab with 3

classrooms

PERSPECTIVE

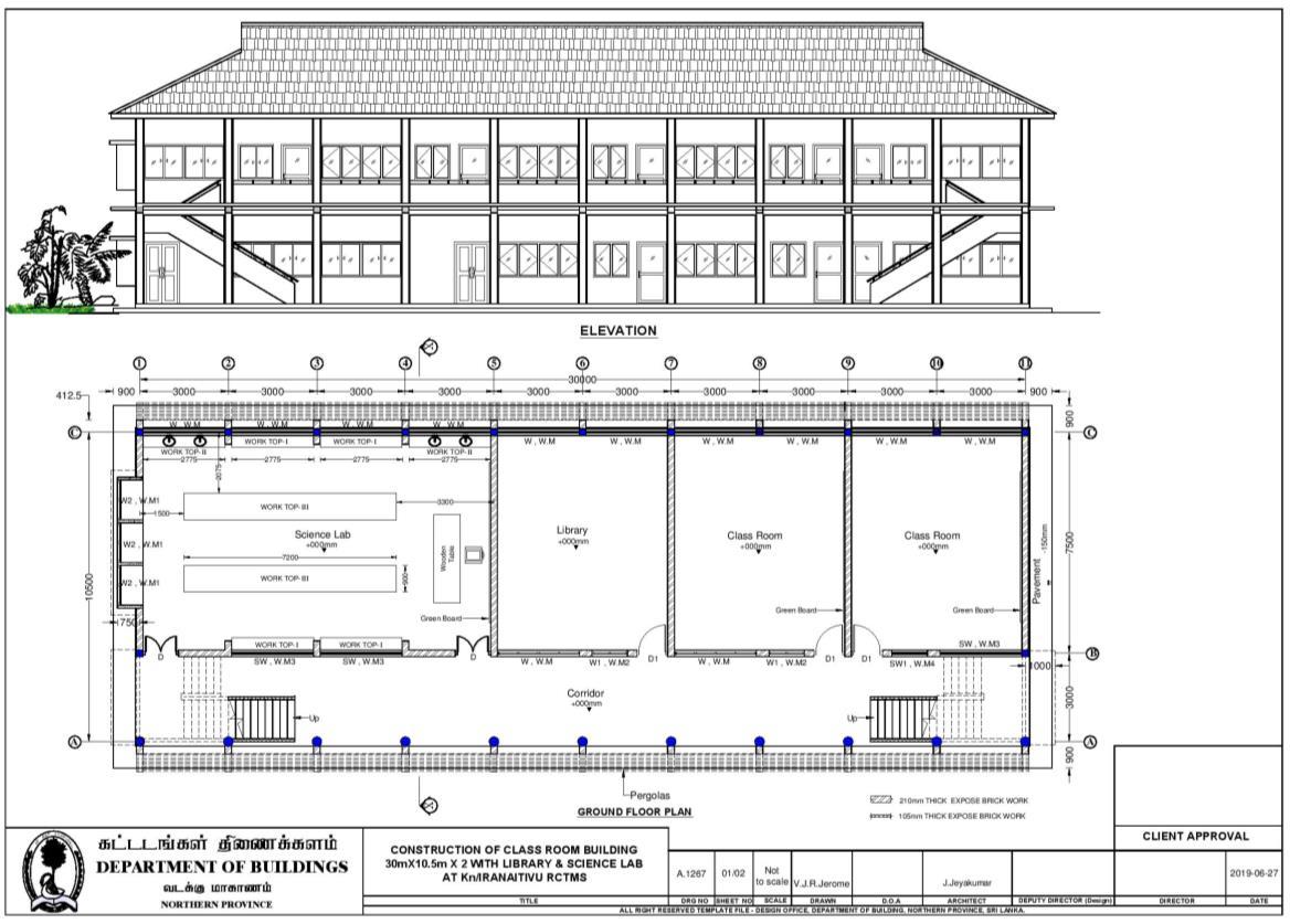
Science Lab and Library with 5 classrooms

LAYOUT PLAN

Science Lab and Library with 5 classrooms

DETAIL

Science Lab and Library with 5 classrooms

PERSPECTIVE

Turn static files into dynamic content formats.

Create a flipbook
Issuu converts static files into: digital portfolios, online yearbooks, online catalogs, digital photo albums and more. Sign up and create your flipbook.