Portfolio

Page 1

ARCHITECTURE

JEAN-MARC JUSTON
PORTFOLIO
P5 722 ASH ST P29 LE LIEN P33 L’ECRAN P15 UNITÉ P17 NUNEMAKER P23 THE MAZE P25 FRAGMENTS P31 LA FAILLE P37 V.I.&A. P35 L’ECRAN* P41 CONTRAST

722 ASH ST

En réponse au besoin de densi昀椀cation de la ville de Lawrence au Kansas, notre projet, 722 Ash Street, répond à la nécessité de réduire l’étalement urbain dans la partie Nord de la ville tout en étant la quintessence du caractère charmant du quartier. Le site se trouve en lien direct avec le sentier qui longe la digue et le Riverfront Park. Les commodités de

SURFACE NEEDEDDISTINCTIONRATIONALISATIONDIVISIONCONFORTCONNECTION

la maison doivent permettre un style de vie moderne, étant donné les règlements de zonage uniques et la proximité de la nouvelle ZAC à venir à environ 1 kilomètre de là. Le zonage RS7 permet d’aménager sur la parcelle une extension ou logement annexe à la

résidence principale dans le but de contribuer à la densi昀椀cationdelaville.Ilpeutégalementêtreutilisé comme moyen de revenu supplémentaire pour les propriétaires. Trois pignons modernes, pourtant caractéristique d’un langage local vernaculaires, s’élèvent dans l’air au-dessus d’une clôture de béton qui en plus de sa fonction apporte une certaineintimitéauprojet.Lespignons,chaleureux, revêtus de bois, se détachent de la dureté des murs en béton qui les entourent. La haie de béton crée une frontière qui fait écho à l’esprit de la ferme traditionnelle du Midwest, vernaculaire, tout en maintenantunsentimentd’intimitépourl’utilisateur. La résidence principale d’environ 145 mètres carrés, contient deux chambres, une salle de bain, unesalled’eau,unegrandepiècecombinantséjour et cuisine. Une extension de 50 mètres carrés avec un bar, une salle de bain et un espace 昀氀exible y est attachée. Ensemble, ces composantes créent une

propriété moderne axée sur la forme, la fonction, la durabilitéetlaconnectivité.LeStudio804étaitpour moi le meilleur moyen d’en apprendre davantage sur tous les aspects du processus de conception et de construction qui ne sont pas abordés dans un cursus conventionnel. Ces nouvelles connaissances m’ont permis d’appréhender l’architecture sous un autre angle et de mieux comprendre ce qui mène à l’aboutissement d’un projet. Sur ce projet je me suis principalement intéressé à la charpente du dessin des plans en passant par l’ancrage direct de la charpente aux fondations à l’érection de toute la structure. J’ai appris, en me basant sur le PLU de la ville et les normes de construction résidentielle international. En plus de toutes les connaissances techniques que j’ai acquises cette année, ce studio a été toute uneexpériencehumaine.Celaarenforcémonesprit d’équipe et m’a aidé à devenir un meilleur leader.

5
[RH Thread] [LH Thread] [RH Thread] [LH Thread] 0' - 3 31/32" 0' - 3 31/32" 0' - 4" 0' - 4" 3/4" Clevis Pin Cleveland Forge Clevis Cleveland Forge Part No. CL20 5/8" Threaded Steel Rod Cleveland Forge Part No.RTF008 3/16" 3/16" Turnbuckle body Cleveland Forge Part No.TB09 8' - 1 1/2" 7/16" 16' - 9" 8' - 1 1/2" 7 Steel Cross Tie (4 Cross tie Public - 3 Cross tie ADU) ORIGIN ORIGIN ORIGIN 1/2" Gypsum 2x12 Rafter 1/4" Steel Plate 0' - 0 5/8" Clevis Cleveland Forge Part No. CL20 5/8" Threaded Steel Rod Cleveland Forge Part No.RTF008 3/4" Clevis Pin Cleveland Forge 1/8" Steel Cover 0' -4" (4) 5/8" Hex. Bolt 2" O.C. 0 '111/4 " d] 0' -81/16" 1/8" = 1'-0" 1 Wall Framing Plan Up Steel Cross Ties Connection
Blown-In
2x12
1/2"
1/2"
Vapor
1/2"
S-5U
Exterior
2"
1/2"
2x4
2x2
Exterior
2x12
Custom 4"
1/2"
2x4
Vapor
2x6
Blown-In
1/2"
12" Concrete
2" Rigid Insulation No. 4 Rebar 4" Gravel 4" Concrete Turn
Anchor Bolt 2x6 Treated Sill Plate Exterior Cladding 2x2 Treated Batten 2x4 Treated Furring Vapor Barrier 1/2" OSB 2" Rigid Insulation 1/2" OSB 2x6 Stud Blown-In Celluose Insulation 1/2" Gypsum 1" = 1'-0" 1" = 1'-0" 2 Wood Frame Wall Roof Connection 1" = 1'-0" 1 Wood Frame Wall Foundation Level 1 0' - 0" Ceiling 8' - 0" Foundation -3' - 0" A501 1 A501 2 Level 3 1/2" = 1'-0" 3 Wood Frame Wall Typ. 7
Celluose Insulation
Rafter
OSB 3" Rigid Insulation
OSB
Barrier 1
Standing Seam Metal Roof
Clip 1x1 Galvanized HSS Steel Tube Batten
Cladding
Rigid Insulation
OSB
Treated Furring
Treated Batten
Cladding
Rim Board
Gutter
OSB
Double Top Plate
Barrier
Stud
Celluose Insulation
Gypsum
Foundation
Down Slab

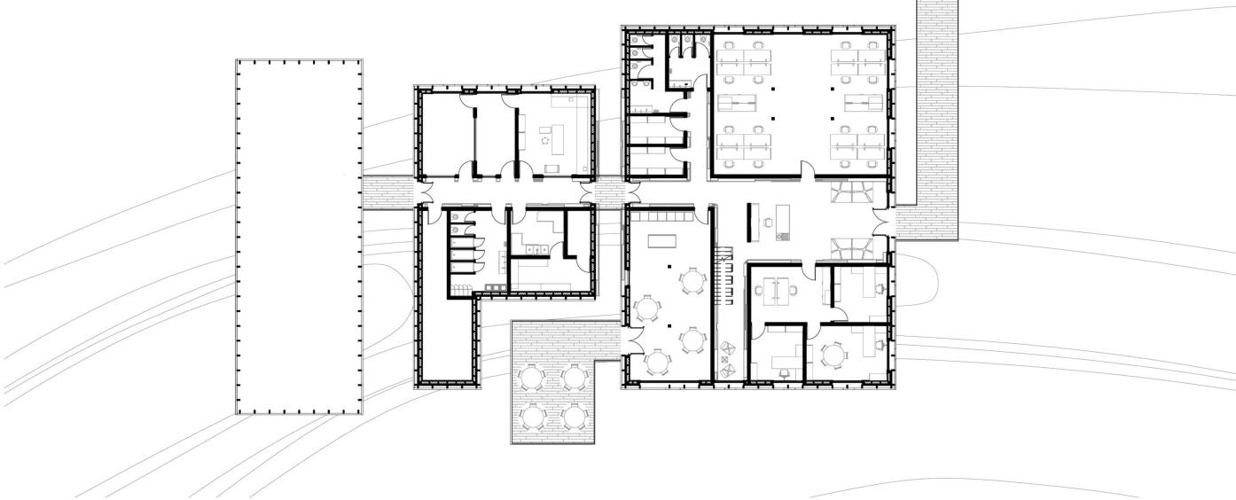
UNITÉ

Année : 3ème de Licence

Logiciels : Revit / Photoshop / Illustrator

Principalement connu pour son marché au puces, la municipalité de Saint-Ouen, envisage de donner à la ville une image plus modernea昀椀nd’o昀昀rirauxpuces le nouveauvisagequi luigarentirait sa renommée internationnale.

Parmi les di昀昀érents projets que la municipalité envisage de mettre en place, elle propose un complex d’activités d’usage mixte comportant, un espace de co-working, un hôtel, et des services en relations avec ces activités comme, un restaurant mais aussi une AMAP.

La façades du projet est réaliséeenbriquesa昀椀nde permettre à la structure de se fondre dans ce contexte industrielque représente la ville de Saint-Ouen.

Le projet o昀昀re aux usagerslapossibilité de s’évader de de la ville grâce à un coeur végétal protégé de toute nuisance.

15
FACADE SUDFACADE EST
AVANT
RENOVATION DE NUNEMAKER

Prix : The Architecture Masterprize Honorable Mention in Architectural Design for Educational Buildings ( Restoration & Renovation )

Client : Programme d’Honneur de The University of Kansas

AVANT
19

Year : 1st year of Master

Situées dans le centre Nunemaker, siège du programme d’honorifique de The University of Kansas, les deux salles de classe rénovées étaient des endroits austère, peu inspirants pour apprendre. Le personnel de Nunemaker à fait appel à Dirt Work Studio pour repenser et créer un tout nouveau lieu stimulant pour les étudiants du programme.

La plus grande salle de classe avec un rapport d’échelle 1/2 était à l’origine dépourvue de lumière naturelle. Elle est adjacente à un atrium et ne possède aucune différenciation des bureaux qui la bordent. L’intérieur de la salle était composé de cloisons sèches, une moquette usée, un faux plafond de dalles acoustique et de panneau avec éclairage fluorescent. La petite salle de classe quant à elle possédait les mêmes

NUNEMAKER RENOVATION
ENVELOPPE
ÉTISME SECTION
MIM

STRUCTURE

FONCTION

DÉPLACEMENT

caractéristiques bien qu’elle bénéficiait de lumière naturelle et une d’une structure plus simple.

Inspiré par l’ordre géométrique du bâtiment existant et avec le désir d’augmenter l’éclairage naturel, le rapport intérieur/extérieur des salles de classe.

Mais aussi d’améliorer la signalisation tout en ajoutant du caractère aux salles de classe, le studio a choisi d’ouvrir les salles sur l’atrium grâce à de larges baies vitrée. Le bardage d’érable qui enveloppe les salles d’Est en Ouest leur apport une complexion singulière tandis que le mur restant revêt des panneaux de verre blanc pour être utilisé comme tableau.

NUNEMAKER CONTRIBUTION

Pour faire écho au bardage en érable qui enveloppe les salles de classe, deux étudiantes et moi avons conçu un pupitre avec une façade mimiquant topographie du campus. Tous les éléments en bois ont été découpé à l’aide d’une fraiseuse numérique.

21
Ville imaginaire. Logiciels : Grasshopper / Rhinocéros / Lumion

THE MAZE

23

FRAGMENTS

Année : 2ème de Licence

Logiciels : Revit / AutoCAD / Twinmotion / Enscape / Photoshop

Dans le cadre du réaménagement écologique d’une ancienne gravière située à Pérignat sur Allier nous avons travaillé sur ce programme a昀椀n de nous sensibiliser à la nature.

L’intention de ce projet est principalement sa mise en relation avec la temporalité du site, notamment autour de l’eau et celle de la fragmentation qui permettra de répartir les di昀昀érents programmes de ce projet. L’édi昀椀ce a été implanté dans une zone qui o昀昀re des vues panoramiques sur tout le site a昀椀n que les chercheurs et les visiteurs puissent étudier les di昀昀érentes espèces d’oiseaux depuis l’observatoire.

Pour symboliser l’éclatement d’un grand volume en petites unités, deux traitements de façade di昀昀érents sont misenplacedontunquifaito昀케ced’enveloppe,enbardage bois horizontal qui va donner de la vibration aux façades, 昀椀ltrer le regard et o昀昀rir des vues moisées. Et un autre traitement de façade fait d’un bardage bois en relief qui va de l’intérieur vers l’extérieur entre deux blocs et qui par son relief marque bien le côté éclaté du volume. L’observatoire qui accueille la passerelle qui s’étale sur tout le site souligne l’entrée du parcours autour de l’eau dédié aux visiteurs.

VOLUME CAPABLE RÉPARTION PROGRAM. RATIONALISATION PUBLIC / PRIVÉ 25

Maquette de Détail 1/20

Mise en avant du relief entre deux parties du bardage qui exprime le coté fragmenté du bâtiment. Aussi l’arrivée delapasserelledelaposturecommune dans cette maquette permet de voir la mise à distance qui est faite entre elle et les bureaux du centre de recherche.

Maquette de Détail 1/50

Evolution du projet dans laquelle l’observatoire acceuille la passerelle delaposturecommune.L’observatoire marqueunseuild’entréedansleprojet du centre de recherche mais aussi le début du parcours autour de l’eau qui mène au centre pédagogique et à la maison de site.

VOLUME CAPABLE DU PLU

JARDIN

TERRASSES

REPARTITION SPATIALE

ECRANS

ECRIN

DISTRIBUTION

TRANSPARENCE

STRUCTURE

LE LIEN

Année : 3ème de Licence

Logiciels : Revit / Photoshop / Sketchup / Illustrator

A昀椀n d’o昀昀rir un lieu d’échange, un endroit de rencontre mais aussi un espace d’apprentissage et de pratique des arts, lavilledeClichyàinitiéunprojetdecentre social dédié aux habitants de la ville.

Pour que ce lieu soit entièrement au service de la communauté, la municipalité à opté pour la mise en place de deux salles de réception, une salle de danse, une salle de gym, un studio de musique, un atelier de dessin, deux salles de classe et deux bureaux.

La principale intention de ce projet est de donner aux riverains un lieu chaleureux dans lequel ils voudraient passer de bons moments avec leurs proches.

A travers sa façade, le projet se démarque des habitations avoisinantes, en s’ouvrant sur la rue et enoffrantauxregardsdes passantslespectacledes interractions des usagers du lieu grâce à une circulationmonumentale danslaquelleilspeuvent serencontrer.

29

LA FAILLE

Année: 1ère de Master

Logiciels : Revit / Illustrator / Photoshop

Projet à été réalisé durant mon échange à l’internationnal avec l’université du Kansas aux Etats-Unis, dont le but était de revitaliser et densi昀椀er Iowa Street, l’une des principale artère de la ville de Lawrence dans laquelle on retrouve principalement des magasins et des espaces vides crés par les parkings.

Enplusdefairerevivrelesite,leprojetavaitaussipour but de créer un lien le long de Iowa Street à travers un parcours continu qui relirait tous les futurs projets.

Situé sur une parcelle entourée par des commerces, un parking, des friches et un bassin, ce projet o昀昀re une connectionhabitéeentreleprecédentprojetetlesuivant. Lebutdecettefailleestdecréeruneforteintercommunauté entre les riverains du lieux mais aussi o昀昀rir un espace partagé qui invite le monde extérieur à venir le visiter.

Les équipements dans le programme d’usage mixte proposent de nombreuses activités comme un centre de sport, un espace de co-working et des espaces de

COMMERCES/LOGEMENTS

PUBLIC SQUARE

LUMIÈRE
PARTIES COMMUNESJARDINS PRIVES
REZ-DE-CHAUS2EE 31
COUPE PERSPECTIVE
HAUT VUE EN ELEVATIONCOUPE TRANSVERSALE VUE EN PLAN RDC VUE EN PLAN R+1

Année : 3ème de licence

Logiciels : Revit / AutoCAD / Illustrator / Twinmotion / Photoshop

La première partie du semestre de L3 étaitconsacréeàlaréalisationd’unprojet IN ABSTRACTO tout en traitant de l’épaisseur . Ce projet serait ensuite intégré dans un site qui est actuellement repensédansladynamiqueduGrandParis.

Dans la continuité des références étudiées ce projet est caractérisé par l’extrusion d’une parcelle carrée qu’on va modeler par la soustraction de matière comme une pierre brute de laquelle on va venir creuser. Pour créer une cour qui sera à la fois une coupure avec la ville mais surtout un espace chaleureux pour les habitants. Cette cour sera reliée à la ville par de grandes failles dans lesquelles se trouvent les circulations verticales.

L’ECRAN COEUR
CONNECTION
33
BLOCK
BR

L’ECRAN*

Année : 3ème de licence

Logiciels : Revit / AutoCAD / Illustrator / Twinmotion / Photoshop

La deuxième partie du semestre de L3 était consacrée à la réalisation du projet IN SITU tout en gardant cette notion d’épaisseur . Le site du projet se trouve êttre la ZAC de la plaine de l’OURCQ à Noisy-le-sec.

Dans la continuité de la phase un où j’avais un volume cubique avec une cour et des failles, ce projet est l’évolution du premier volume duquel j’ai à retiré un des côté a昀椀n que le projet puisse s’ouvrir pour dialoguer avec les projets avoisinant et rentrer dans une logique d’aménagement de la ZAC. Les intentions pour l’aménagement de cette ZAC tournaient autour d’un front bati très marqué du côté du boulevard très bruyant avec des axes qui mènent vers le canal de l’ORUCQ où on retrouve un bati plus ponctuel avec des plots. Cette façon d’amenager la parcelle vise à repondre à une volonté d’avoir transition vers un coeur végétalisé qui se trouve être le centre du projet.

JARDINS SUSPENDUS
POINT DE VUE COEUR MASSE
BRÈCHES

Nouvelle civilisation dans l’espace, inspiré par le 昀椀lm Interstellar

VERS L’INFINI ET AU-DELÀ

Projet de Réalité Virtuelle

Logiciels : Grasshopper / Rhinocéros / Unreal Engine / Infraworks / 3DS Max / Photoshop

CONTRAST
Salt Lake Institute
Louis Khan San-Diego, CA

Parc de Mozac, Mozac

Dessin 20.19x16.93 cm

Feutre Rotring

Quartier de la gare, Clermont-Ferrand

Dessin 16.54x11.69 cm

Feutre rotring

BAIE

DE FORT-DE-FRANCE MARTINIQUE

Turn static files into dynamic content formats.

Create a flipbook
Issuu converts static files into: digital portfolios, online yearbooks, online catalogs, digital photo albums and more. Sign up and create your flipbook.
Portfolio by justonjean.marc - Issuu