
Asking Price: £96,000. 40% Shared Ownership

![]()

Asking Price: £96,000. 40% Shared Ownership

A stylish and spacious modern home in a sought-after coastal village perfectly positioned for contemporary living and community charm. Own 40% and enjoy 100% of the lifestyle.
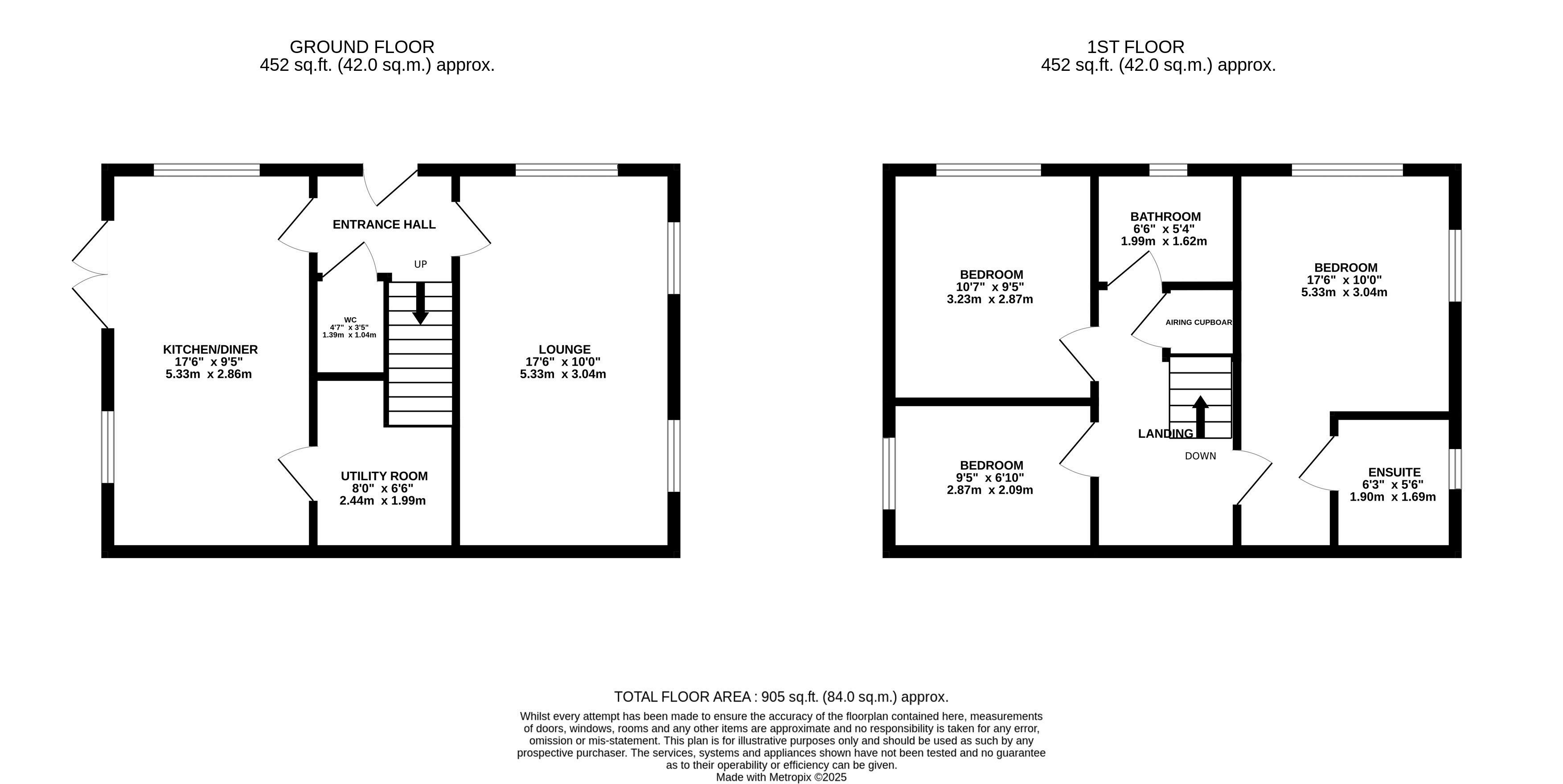
This beautifully presented detached home on Alder Avenue offers a generous and well-balanced layout across two floors, ideal for modern family life. The ground floor welcomes you with a bright entrance hall leading to a spacious lounge and a sleek kitchen-diner with direct access to the rear garden. A separate utility room adds practicality, while a downstairs WC enhances convenience. Upstairs, three well-proportioned bedrooms include a main bedroom with ensuite shower room, alongside a contemporary family bathroom and ample storage throughout.
To the front, the property enjoys a neat landscaped setting with a covered porch and private parking. The rear south facing garden is accessible via patio doors from the kitchen-diner, offering a secure and sunny outdoor space ideal for relaxing or entertaining. The home is part of a well-maintained residential development with a peaceful suburban feel.
Located in the highly desirable village of Humberston, this property benefits from a coastal lifestyle with excellent local amenities. Families will appreciate the proximity to well-regarded schools, while commuters enjoy easy access to Grimsby town centre and Cleethorpes seafront. The area offers a blend of countryside walks, beachside leisure, and a strong sense of community. With nearby shops, eateries, and transport links, Humberston combines convenience with charm—making it one of North East Lincolnshire’s most sought-after postcodes.



















