Architecture Portfolio

Page 1

PORTFOLIO

CURRICULUM VITAE - TRACCIARE L’ACCOGLIEN -

ZA - DOGANA VECCHIA e CONVENTO DI SAN FERMO - WATER.FORM.PROJECT - LANDSCAPE ECOLOGY

Favaro Federico

Curriculum Vitae

EDUCAZIONE

Ott 2020 - Mar 2024

Mar 2022 - Lug 2022

Nome - Cognome Federico Favaro

Data di nascita 03/06/1997

Nazionalità Italiana

Residenza Treviso

Telefono +39 3319579799

Email ff.favarofederico@gmail.com

Ott 2017 - Set 2020

Sett 2019 - Feb 2020

Giu 2016

Laurea Magistrale in Architettura

“Università IUAV di Venezia”

Programma Erasmus+

Corso Magistrale in Architettura

“Faculdade de Arquitectura da Universidade de Lisboa”

Laurea Triennale in Architettura

“Università IUAV di Venezia”

Programma Erasmus+

Corso Triennale in Architettura “Universidad de Zaragoza”

Istruzione Secondaria Superiore

“I.I.S. Andrea Palladio” Diploma in Costruzione, Ambiente e Territorio

ESPERIENZA PROFESSIONALE

Sett 2022 - Dic 2022

Giu 2015 - Lug 2015

Giu 2014 - Lug 2017

Carlana Mezzalira Pentimalli - Treviso (TV)

Studio di Architettura - Lavoro di progettazione e ultimazione di un edificio pubblico museale per un concorso in stato di seconda fase. Modellazione tridimensionale di un edificio scolastico per un concorso in stato di prima fase.

Impresa CEV s.p.a. - Treviso (TV)

Impresa edile - Redazione di disegni esecutivi in cantiere. Rilievo di un edificio storico.

Studio di Ingegneria - Treviso (TV)

Redazione di disegni tecnici impiantistici

WORKSHOP

Giu 2023

Mar 2023

Ott 2021

Giu 2021- Lug 2021

Giu 2020 - Lug 2020

Giu 2019 - Lug 2019

Giu 2018 - Lug 2018

New European Bauhaus Radical Labs

Università IUAV di Venezia - Unione Europea

Reuse the Nynphaeum - Reuse Italy

Competizione Internazionale di Architettura

TAU 2021 “Territorios Concertados” Universidad Nacional de San Martìn (ARG)

W.A.Ve 2021 “Islands. Architecture and landscapes of water”

Prof. Manuel J. Feo Ojeda

W.A.Ve 2020 “Post-Covid Scenarios” Lukas Fuster Arquitecto

W.A.Ve 2019 “Venice Sustainable City”

Corinne Vezzoni et Assciés

W.A.Ve 2018 “Italian Beauty”

Rica Studio Architects

Italiano Madre lingua

Inglese B2

Spagnolo B2.2

Portoghese B1

Adobe Photoshop, Illustrator, Indesign AutoCAD 2D

Sketchup, Rhino.

QGis

BIM Specialist Architecture, Autodesk Revit.

Musica, Arte pittorica, Cinema, Fotografia

LINGUE CAPACITÀ INTERESSI

Tracciare l’Accoglienza

Un progetto per persone con background migratorio.

Tesi Magistrale in Architettura

Relatore: Professore Jacopo Galli

Flussi migratori

Il sistema di gestione dell’accoglienza in Italia affronta un costante flusso di arrivi di persone migranti sia via mare che via terra. L’offerta di posti disponibili nel territorio dipende dalla tipologia dello status assegnato all’entrata e dalla durata dell’iter di riconoscimento del titolo. Ciò implica una richiesta di alloggi che è rapida ma di breve durata. Le amministrazioni o le Prefetture, responsabili della gestione dei flussi, avviano progetti di acco-

glienza con il supporto di enti privati del terzo settore e dei servizi sociali pubblici, che mirano a garantire l’integrazione attraverso dei percorsi personali che spaziano da servizi sociali al reperimento di un alloggio. Il progetto proposto si prefigge di tracciare un sistema modulare, flessibile e versatile all’interno del Comune di Treviso, con la possibilità di declinarsi successivamente in più realtà urbane, integrandosi all’edificato esistente, migliorandone le prestazioni tecnologiche e fornendo un supporto al sistema di accoglienza. A beneficiarne saranno così sia le persone accolte che la popolazione residente.

Le Rotte nel Mediterraneo
Ripartizione regionale 250 km 500 N
Primo Intervento 2 m 10
Unità di Intervento Schema ripartizione fondi 1 m 3
Intervento Finale 2 m 10
Vista Intervento Finale

Dogana Vecchia Verona

Convento di San Fermo

Laboratorio integrato di Composizione, Restauro e Strutture

Studenti: Cesare Sartori, Chiara Chiasera, Federico Favaro

Schizzi di Dettaglio

COMPLICATUS deriva da plicatus, plicare, cioè piegare. La portata del progetto si presenta nella sua complessità, data dal palinsesto delle varie epoche storiche che si sono succedute, a partire dall’epoca romana fino alla ricostruzione post-bellica e ai restauri moderni degli anni Sessanta, che non deve essere semplificato (cioè privato delle sue pieghe), ma esplicitato: occorre leggerlo, interpretarlo e trarre il semplice dalle pieghe,

non eliminarle, conservandone il significato. Il progetto è inoltre strutturato in modo da riorganizzare gli spazi destinati alla Soprintendenza di Stato (compresi gli spazi dell’archivio) e all’Accademia di Belle Arti, preservando la stratificazione della storia, del carattere e della materialità. L’inserimento di un nuovo volume a scopo funzionale e distributivo ha aggiunto una nuova “piega” al documento storico.

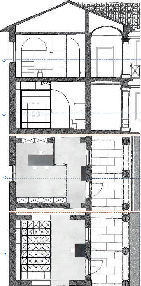
Pianta Primo Piano m A’ B’ B C’ C 5 20 N A

Sezione A-A’

Sezione B-B’

Sezione C-C’

m m 5 5 20 20 m 5 20

Partito Architettonico San Fermo - Accademia

Partito Architettonico Dogana Vecchia m m 1 1 4 4

Planivolumetrico m 5 20 N
Vista interna. La nuova “piega” Vista esterna. Entrata Accademia

Water.Form.Project

The Trasformation of Quarteira’s margin

Urbanistica

Diagramma di studio Laboratorio di

Il progetto si sviluppa nella località di Quarteira (PT), città balneare e di villeggiatura estiva, lungo la linea di costa (Marginal) che separa la spiaggia dal centro storico, commerciale e residenziale. Il flusso turistico sempre crescente e la richiesta di nuovi spazi alberghieri, rischia di cancellare le ultime tracce di una città che per secoli ha vissuto in stretto rapporto con il mare: basti pensare al porto e alle vecchie case dei pescatori ancora in vita. L’intervento vuole partire da una rilettura del tessuto urbano pregresso e attraverso la tecnica

della “sovrapposizione” ricostruire gli assi che lo caratterizzavano. È stato quindi creato un percorso per ricostruire spazi aperti e piazze con l’ausilio di portici e di una torre, mantenendo ed enfatizzando gli accessi al mare che diventano elementi ritmici. Il progetto architettonico del Kindergarden si innesta sul fronte mare, cercando, cubo dopo cubo, di spezzarlo e raggiungerlo; crea due piazze, una più intima per i bambini e una più grande e multifunzionale.

A promenade to the sea

Foto: Artur Pastor; Collage di Progetto
Modello urbano; Foto: Artur Pastor; Modello Architettonico A kindergarten
m 20 80 Planimetria N
Vista Interna. Passato e futuro

Landscape ecology

È possibile ripristinare l’equilibrio idrico nella Valle del Sebaou?

Laboratorio integrato di Composizione e Urbanistica

Studenti: Cesare Sartori, Chiara Chiasera, Federico Favaro

Regione d’Intervento

Il sistema idrico circolare della valle del Sebaou, in Algeria, è andato in cortocircuito. L’agricoltura, principale fonte di reddito e di sostentamento della popolazione, sta affrontando una crisi idrica dovuta allo sfruttamento delle risorse idriche sotterranee e, nonostante le abbondanti precipitazioni, la ricarica naturale dell’acqua è insufficiente a bilanciare il prelievo. Le città si stanno espandendo, rischiando di cementificare più del necessario senza alcuna regolamentazione. Il fiume

perenne che attraversa la valle è inquinato sia dai rifiuti urbani sia dall’uso eccessivo di fertilizzanti in agricoltura. Il progetto, che mira a raggiungere un sano equilibrio nella valle, è stato concepito come una serie di piccoli interventi che coinvolgono gli elementi del territorio: i campi, le città e il fiume. Ogni singolo elemento è stato riprogettato per essere il più possibile autosufficiente, per lavorare in un sistema integrato che mitiga lo stress della valle.

Vista “Business as Usual” Vista al 2100

I “Campi”

Le “Città”

Il “Fiume”

Situazione attuale

Situazione di progetto. 100 anni dopo

Driver di intervento La fine(?)

Turn static files into dynamic content formats.

Create a flipbook
Issuu converts static files into: digital portfolios, online yearbooks, online catalogs, digital photo albums and more. Sign up and create your flipbook.
Architecture Portfolio by favaro.federico.ff - Issuu