2025-f.u.n.k A-Portfolio

Page 1


f.u.n.k A

PORTFOLIO

Table des matières Coordonnées

Approche, Références & Compétences

Équipe, Moyens, Partenaires & Activité

5 PROJETS

WICKED ONE MUAY THAI GYM Actualités

Né le 11 avril 1982 à Orléans, France

M : studio@funka.fr

Tel : +33 7 67 94 47 65

Mail : info@funka.fr

Site : www.funka.fr

https://fr.linkedin.com/in/eddy-montonati- 265b04114

Architecte D.E H.M.O.N.P Diplômé d'État et Habilité à la Maîtrise d'Oeuvre en son Nom Propre de l'Ecole Nationale Supérieure d'Architecture de Paris-Belleville, Paris

Eddy Montonati
Architecte fondateur

ARCHITECTURE

approche

EMPORIUM 2

Centre commercial EMPORIUM 2, Bangkok

BALI CHAPEL

Chapelle de mariage à Bali

AFS

Aéroprt de Ouagadougou, Burkina Faso

DGA

Base militaire à Vert-Le-Petit

SDIS

Caserne de pompiers à Dôle

EQUIPEX Sense City

Mini-ville climatique, Champs-sur-Marne

BCB

10 Commerces bio en France et en Suisse

f.u.n.k A voit l˙Architecture comme l˙expérimentation des possibles. Ce studio d˙architecture veut créer, construire, inventer avec chaque intervenant du projet. Réfléchir et édifier, au sein d˙un corpus de professionnels, est l˙essence de ce studio. Constituer un savoir ensemble, pour faire de l˙Architecture, est la raison que ce studio veut défendre.

Nous voulons transcender les concepts, les programmes, les typologies et l˙acte de bâtir. références

compétences

f.u.n.k A se nomme ainsi : fundamental & universal network of knowledge to do Architecture > (traduction en français) réseau de connaissances fondamentales et universelles pour faire de l˙Architecture

Observer

Ancré dans une pratique exigeante et pugnace, f.u.n.k A se veut visionnaire. L˙objectif est de créer de nouvelles typologies, de trouver et de théoriser des usages. f.u.n.k A veut anticiper aussi ! Ce studio questionne le contexte géographique, historique et culturel du projet.

Construire est un acte important, ainsi l˙existant, source d˙informations utiles et complexes, doit être connu et analysé pour insérer un bâtiment dans son environnement. Faire resurgir ce déjà-là, ne peut que, asseoir l˙acte de bâtir et lui donner une légitimité.

Projeter devient alors, un moteur pour comprendre un site et faire un projet.

Ne pas confondre vitesse et précipitation

Maître du temps, f.u.n.k A n˙hésites pas à prendre du recul pour élucider chaque problème, le but étant d˙obtenir le maximum de variables, de rechercher des solutions ; d˙être flexible et de s˙adapter.

Proposer, dialoguer, écouter et acter

Le processus de réflexion fonctionne étape par étape, une pédagogie est mise en place auprès du groupement afin de transmettre tous les niveaux de lecture d˙une pensée. Il faut concevoir avec des sachants, voici notre stratégie !

Responsabiliser

Nous sommes déterminés à communiquer pour gagner et se battre ensemble afin d˙ériger des idées. Construire demande un effort, c˙est une action commune où chacun est conscient de la tâche à accomplir.

Nous agissons dans un cadre où l˙humain est considéré, chaque personne a son importance, son mot à dire pour avancer ensemble.

Expliquer et convaincre

L˙architecte est un chef d˙équipe, diplomate et libertaire, il concerte et fédère.

Nous prônons le fait d˙être droit et loyal. Nous possédons un sens de l˙honneur développé, nous sommes sincèrement fidèle dans notre conduite morale. Nous respectons nos engagements pour innover.

Construire

f.u.n.k A veut constamment apprendre.

Ce studio est à la recherche du détail car conscient du fait que, le travail du détail définit le projet architectural, le finalise et conclue une pensée, qui d˙une échelle à l˙autre est tenue.

f.u.n.k A veut des challenges. f.u.n.k A veut convier les arts et les talents de la construction pour faire de l˙Architecture.

Multiples expériences de maîtrise d'oeuvre à Paris, à Bangkok et en Suisse dans la conception et le suivi de chantier.

Réalisation de projets importants en Europe, en Asie et en Afrique.

Une activité architecturale voulue et dédiée au simple fait de concevoir des projets dans différents domaines: logement, culturel, exposition, religieux, équipement public, médical, tertiaire, industriel, transport, commercial, ingénierie et urbain.

Chef de projet Missions complètes.

Connaissances de la réglementation technique de la construction en France et en Suisse.

Direction et coordination de la maîtrise d'oeuvre (architectes, ingénieurs structure, sécurité et accessibilité, acoustique, bureau d'études, chefs de chantier, compagnons,..)

Direction et organisation des études et des travaux.

Gestion et coordination de différents lots techniques comme l'électricité, l'éclairage, la plomberie, la climatisation, la réfrigération, les monte-charges et ascenseurs, les revêtements de sols, le gros-oeuvre et le second-oeuvre, la peinture, la métallerie, la télésurveillance, merchandising, l'ameublement et les enseignes.

Gestion du planning, du suivi économique du projet, édition des descriptifs travaux, dépôt de dossiers administratifs lié à la construction d'un projet.

Gestion et définition des contrats d'architectes hors de France

Tempérament à relever les défis, à solutionner les problèmes grâce à une rigueur, une analyse engagée, un savoir pour s'entourer d'acteurs déterminants, un sens du leadership, fondé sur une exigence du détail.

ÉQUIPE

1 Architecte

3 Architectes d'intérieurs indépendantes

3 Dessinateurs projeteurs indépendants

1 Service administratif indépendant

MOYENS

Équipements

1 IMAC 27"

1 Macbook 15"

1 IPad pour le suivi de chantier

1 Imprimante Brother A4/A3

1 Télémètre laser

1 Perforelieur A4 / A3

1 Plastifieuse A4 / A3

Logiciels

ARCHICAD

Artlantis Studio AUTOCAD

Adobe Suite

Microsoft Office

Merlin Project

O'team

PARTENAIRES

Maîtrise d'Ouvrage

BALYO

OGEC

WICKED ONE

Monveto

Association Jean Cotxet

Entreprises

FANDI

GMT

CLEAN SOLS - Groupe Andy CMI

EVOLOFFICE ETNAFRANCE

Bureau d'études monbureaud'études.com

Architectes d'intérieurs

Unlimited Design Lab

DLArchitecture

OnebuyOne

MALHERBE PARIS

Economiste de la construction

Opérateur Coordinateur de chantier

Daniel LORAND

Sophia SAINT-JUST

Dessinateur Projeteur

LeBonPLanConcept

Aunis PLANS

Cyril LIBEAU Dessinateur

Paysagiste

Armelle Claude

Thomas DUGUÉ - TMS

370 PROJETS

PROGRAMMES

HABITAT : 340

283 - Maison neuve

32 - Extension de maison 02 - Appartement 12 - Bâtiment d'habitation collectif 11 - Surélévation

SPORT : 02

02 - Complexe sportif de boxe thaïlandaise

ENSEIGNEMENT : 02

01 - 2 classes élémentaires 01 - Ecole de Design

RESTAURATION : 02

01 - Restaurant japonais

01 - Restaurant Dîner Concert

SANTÉ : 07

02 - EPHAD

01 - Cabinet Dentiste

04 - Clinique Vétérinaire

TERTIAIRE : 01

01 - Co-working

INDUSTRIEL: 06

03 - Entrepôt de stockage 03 - Usine

INGÉNIERIE : 04

04 - Station de recharge électrique

COMMERCE : 06

06 - Surface commerciale

STATUT

13 - Études

24 - En cours

333 - Réalisé

293 - Construction neuve :

77 - Rénovation / Réhabilitation

LOCALISATION

368 - FRANCE 002 - THAÏLANDE

Montreuil, France

PROGRAMME

Rénovation complète d'un loft

Réhabilitation d'une toiture

Construction d'une verrière

MAÎTRISE D'OUVRAGE

Marché privé

SURFACE HABITABLE

110 m2

BUDGET

255 000 € HT

1. Confort

Cette ancienne imprimerie est devenue une copropriété comprenant 4 logements.

Le projet consiste à réhabiliter la toiture de la copropriété, à rénover entièrement le loft de la maîtrise d'ouvrage.

La terrasse existante sera transformée en salon suite à la construction d'une verrière type atelier.

12 mètres de vitres type atelier métallique sont à déposer. Ce linéaire sera donc remplacé par des vitres type atelier en aluminium à rupture de ponts thermiques.

L'ensemble de la toiture de la copropriété en tôle ondulée métallique sera déposée et remplacée par des panneaux sandwich autoportants, finition zinc joints debouts.

L'espace jour sera complètement réaménagé.

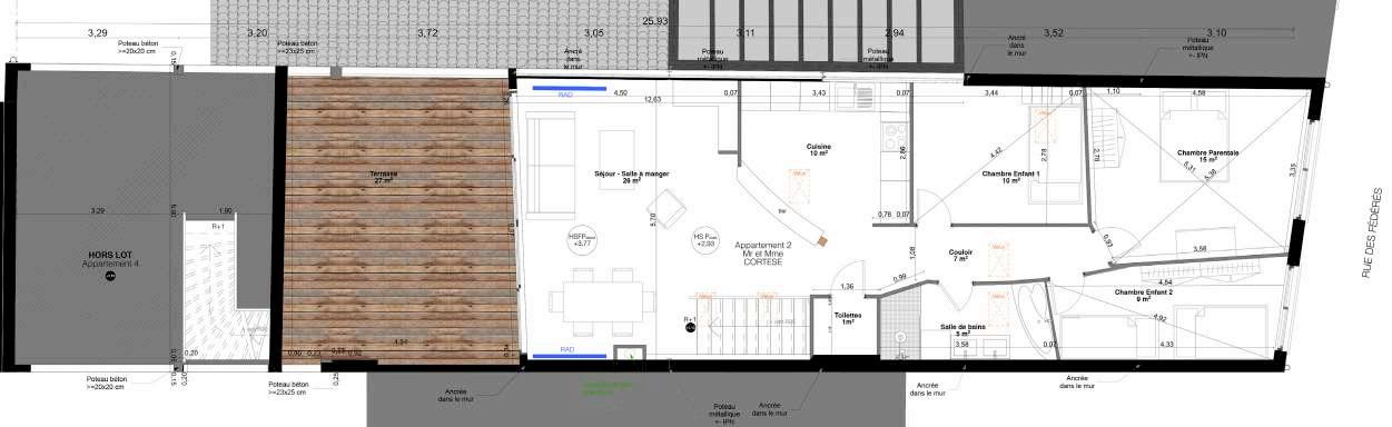
Photos - État Actuel
Plan du loft - État Actuel

Perspectives - État Projet

Plan - État Projet

Une entrée est dessinée, un séjour est défni. La salle à manger et la cuisine s'articule parfaitement. Ces espaces forment un tout homogène et fonctionnel.

L'espace jour et nuit sont bien disctincts.

Le toilette bénéficie d'une entrée plus discrète qui donne lieu à une buanderie lié au couloir.

Le mobilier sur-mesure définit les espaces, renforce l'horizontalité du lieu, joue avec la lumière naturelle.

2. Clarté

Antony, France

PROGRAMME

Construction d'une extension de maison

Rénovation complète du salon, salle à manger et de la cuisine de l'existant

MAÎTRISE D'OUVRAGE

Marché privé

SURFACE HABITABLE

107 m2

BUDGET

100 000 € HT

1. Voir

La maison existante fait partie intégrante d'un cadre végétal agréable.

Les arbres et plantes, qui ont été plantés au fil des années, est un spectacle que la maison ne met pas en scène. La maison est comme renfermée sur elle-même.

La relation avec l'extérieur n'existe pas. Le rez-de-chaussée est un étage technique, l'étage noble est au premier.

La cuisine, la salle à manger et le salon sont orientés vers le Sud-Est, donc vers le jardin arboré.

Les baies de ces espaces de vie apportent seulement de la lumière naturelle, sans permettre une vue claire et appréciable sur le ciel et la végétation.

Le projet consite à construire une extension qui ouvrira ces lieux de vie en commun vers le jardin et à offrir une relation intérieure - extérieure forte.

Cette construction devait intégrer un ascenseur de maison pour que le propriétaire puisse vivre dans sa maison avec aisance.

Photos de l'existant
Façade Sud-Ouest - État Actuel
Façade Sud-Ouest - État Projet

2. S'asseoir et penser

L'extension marque un passage vers l'extérieur.

Cette habitation s'ouvre pour embrasser et accueillir en son sein, le ciel, les arbres, la lumière.

Les deux arches en briques engagent le lien entre l'existant et le projet.

Le rez-de-chaussée de cette extension cré un lieu abrité, ouvert sur la nature.

Les deux façades latérales présentent deux systèmes de filtration de la lumière, un moucharabieh en briques pleines au Sud-Ouest et un claustra composé de lames verticales métalliques au Nord-Est.

L'extension apporte une profondeur de champ, de nouveaux plaisir de vie en extérieur ainsi que plusieurs jeux avec la lumière naturelle afin d'enrichir les journées passées dans ce nouvel intérieur.

Ce projet définit clairement les 3 points fondamentaux du programme de la maison : Voir, s'asseoir, penser.

Plan du R+1 - État Projet
Vue depuis le coin lecture
Vue de la façade Nord-Est
Vue de la façade Sud-Est

AI117

Ivry-sur-Seine, France

PROGRAMME

Démolition de 3 bâtiments

Rénovation et Réhabilitation d'une maison

Construction de 2 appartements

Construction d'un bâtiment d'habitat collectif

MAÎTRISE D'OUVRAGE

Marché privé

SURFACE HABITABLE

860 m2

BUDGET

2 600 000 € HT

1. Densifier

La parcelle est composée d'une maison en briques, d'une première extension de maison puis d'une deuxième extension, d'une dépendance et d'un double garage.

La première phase du projet consiste à démolir les deux extensions de maison (1), la dépendance (2) et le double garage (3).

La maison en briques est considérée comme une maison de caractère, elle sera conservée.

La deuxième phase sera de creuser 3 m en dessous du sous-sol de la maison, pour y construire 2 appartements.

Puis, un bâtiment d'habitat collectif de 5 logements sera à ériger. Au total, la parcelle accueillera 8 logements.

Ce projet est complexe et très technique. Il est surtout important pour la doyenne de la famille qui souhaite construire une habitation pour l'ensemble de ses enfants.

Un héritage qui sera transmis de son vivant.

Photos de l'existant
Plan masse - État démolition
Plan masse - État projet

2. Révéler un site

L'articulation entre l'existant et le projet est minutieuse.

Le sentier qui borde la limite de propriété au Nord-Ouest reprend, grâce à ce projet, son caractère d'espace public.

Les entrées des deux appartements sous la maison en briques donnent sur le sentier.

Le jardin commun, qui se trouve à moins six mètres sous la rue principale, s'ouvre sur le sentier. De cette manière, le projet s'intègre à son environnement et offre des percées visuelles sur la végétation à venir. Le fait que les 2 extensions de maison seront démolies, cela permet un meilleur ensolleillement pour les deux maisons en contre-bas de la rue principale.

Ce projet vient répondre aux attentes importantes de la maîtrise d'ouvrage, tout en permettant au voisinnage et à la ville d'obtenir un passage public agréable et vivant.

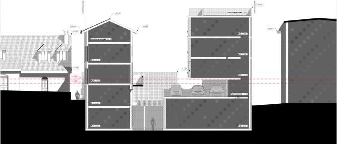
Coupe transversale - État Actuel
Coupe transversale - État Projet
Perspectives- État Projet

Franconville, France

PROGRAMME

Développement d'un concept

Construction d'un supermarché avec une boucherie

MAÎTRISE D'OUVRAGE

Marché privé

SURFACE HABITABLE

625 m2

BUDGET

600 000 € HT

1. Concept

Le Studio d'Architecture f.u.n.k A a été mandaté pour concevoir un concept de supermarché avec une boucherie.

La maîtrise d'ouvrage avait pour but de créer une chaîne de supermaché de ce type sur le territoire français.

Nous devions construire le premier de cette enseigne.

L'agence MALHERBE Paris et OnebuyOne ont développé le concept pour le compte de la maîtrise d'ouvrage.

Le Studio d'Architecture f.u.n.k A a permis à ce concept d'exister en se confrontant au contexte particulier d'un rez-de-chaussée d'une copropriété exigeante.

Le Studio d'Architecture f.u.n.k A a développé et enrichit le concept afin de répondre à l'ensemble des contraintes techniques et sanitaires pour le confort du personnel et de la clientèle. Le Studio d'Architecture f.u.n.k A a créé un supermarché et une boucherie répondant aux attentes de la maîtrise d'ouvrage.

Photos de l'existant Photos / Phase 1 des travaux

2. Savoir-faire

L'aménagement de la boucherie a présenté une difficulté technique, sanitaire et fonctionnelle.

Le concept de la boucherie a été revu entièrement.

La boucherie se compose de neuf espaces qui ont un rôle déterminant pour réceptionner la viande, la réfrigérer, la préparer, puis la servir et ensuite pour la conditionner.

Il y a un enchaînement précis à suivre afin que la chaîne du froid et l'ensemble des règles sanitaires soient respectées à la lettre.

Aucune évacuation gravitaire n'a pu être réalisée pour cette boucherie, ainsi le sol de chaque espace a été dessiné spécialement avec des pentes afin de pouvoir entretenir la boucherie efficacement.

Un travail sur le détail constructif a été mené pour que chaque matériau cré une harmonie et une facilité d'usage.

Photos du projet

WICKED ONE

MUAY THAI GYM

Ratchaburi & Pattaya, Thaïlande

PROGRAMME

Développement d'un complexe sportif pour la boxe thaïlandaise

MAÎTRISE D'OUVRAGE

Marché privé

SURFACE HABITABLE

1 500 m2

BUDGET

Confidentiel

1. Créer

La maîtrise d'ouvrage a pour désir de créer des camps de boxe thaïlandaise au pays du Siam.

Cet entraîneur et promoteur,connu et reconnu dans ce sport de combat, s'est associé à la marque WICKED ONE pour développer des complexes sportifs autour du Muay Thaï. Chaque camp accueillera au rez-de-chaussée : un espace de training, un espace de fitness, des chambres pour les coachs, le bureau du directeur du camp, un restaurant, un mini-market, une laverie et le magasin de vêtement et d'équipement de sport de la marque WICKED ONE.

A l'étage, il y aura les chambres avec salle de bains des boxeurs professionnels et des amateurs.

L'ensemble de ce complexe sportif est ouvert totalement sur l'extérieur.

Trois projets ont été dessinés sur trois sites différents afin de peaufiner et d'améliorer le concept.

2. S'implanter

Le studio d'Architecture f.u.n.k A a proposé 3 projets qui ont leurs particularités et leurs similitudes.

Ce programme offre des manières de vivre multiples, l'intérêt de ces complexes sportifs étant de faire parler de la marque WICKED ONE et de proposer des lieux capables de susciter un engouement profond pour le Muay Thaï.

Ce sont des projets qui apportent un cadre sportif mais qui en s'insèrant parfaitement dans le quotidien du quartier qui les accueille, cré un tissu social fort autour de ce sport.

Ce sont des lieux ouverts à tous.

Ce sport est une culture, une tradition qui parle à tous.

L'architecture engage un dialogue, elle met en scène la pratique de cette boxe.

ACTUALITÉS

AC556

Programme

Construction de 2 Maisons accolées (90 m2 + 450 m2)

Localisation

Ile de France

Budget

1 500 000 € HT

Maîtrise d'ouvrage / Marché Privé

Confidentiel

AN125

Programme

Construction d'une maison (72 m2 )

Localisation

Gers

Budget

210 000 € HT

Maîtrise d'ouvrage / Marché Privé

Confidentiel

AY464

Programme

Restaurant japonais (120 m2 )

Localisation

Gers

Budget

60 000 € HT

Maîtrise d'ouvrage / Marché Privé

Confidentiel

A69

Programme

Surélévation de 4 étages d'un bâtiment d'habitat collectif (900 m2)

Localisation

Ile de France

Budget

2 250 000 € HT

Maîtrise d'ouvrage / Marché Privé

Confidentiel

AK280

Programme

Construction d'un bâtiment d'habitat collectif (150 m2 )

Localisation

Ile de France

Budget

260 000 € HT

Maîtrise d'ouvrage / Marché Privé

Confidentiel

AJ168

Programme

Rénovation de 80 chambres d'un EPHAD (1 440 m2 )

Localisation

Ile de France

Budget

2 160 000 € HT

Maîtrise d'ouvrage / Marché Privé

Confidentiel

Turn static files into dynamic content formats.

Create a flipbook
Issuu converts static files into: digital portfolios, online yearbooks, online catalogs, digital photo albums and more. Sign up and create your flipbook.