EUNBI JUNG INTERIOR DESIGN PORTFOLIO

Page 1

LIOTFOPORDESIORINTERIGN2022

“ DESIGN INTELLIGENCEISMADEVISIBLE”-ALINAWHEELER 02

04 JUNGEUNBI 2022 TABLE CONTENTSOFDESIGNERSTATEMENT06-07LIVING&CO.08-27WHEELOCKINC28-51COMMUNITYCENTRE52-75

JUNGEUNBI

INTERIOR DESIGN affects the lives of people indirectly, no matter where you are. Bad and good choices help affect the environment where people work, rest or play, and that’s the reason design has been an attractive idea to me since I started to gain an interest in INTERIOR DESIGN. Meeting the needs of other people that needs my input has inspired me to learn how to solve problems and express creativity at the same time. Creativity is my strong suit. It is where my passions are and how I express myself and my thoughts. INTERIOR DESIGN is a outlet of my designing creativeness and how I connect with everyone else.

06 07

COMMERCIALHYBRIDRETAILDESIGN 09 DESIGNEDLIVING&CO.BYEUNBIJUNG

11 10 VANCOUVERGASTOWNLIVING&CO.LOCATION

FLOOR PLAN 6.5.4.3.2.1.LEGENDMAINENTRANCERETAILSPACERETAILCOUNTEROFFICESTAFFBREAKROOMSTORAGEROOM123456 7 98 121110 7. WASHROOM 8. CAFE COUNTER 9. CAFE KITCHEN 10.CAFE BAR 11.CAFE LOUNGE AREA 12.CAFE ENTRANCE LIVING & CO.AESTHETIC 13

STORAGE

14 15

DRAFTDIAGRAMPLAN

BUBBLE

PRIMARY UNDESIREDSECONDARYADJACENCYADJACENCYADJACENCY

BREAKSTAFFAREA

CAFE BAR RETAILCAFECOUNTERCAFESPACE WASHROOMUNIVERSAL DISPLAYRETAILFRONTCOUNTER OFFICE LOUNGECAFE

SKETCHES

16 17

FRONT ELEVATION

18 19

LEFT ELEVATION

20

FRONT CASH DESK

REDUCEREDUCEELEMENTSWOODENHELPSTRESSTHATCANHELPTHESTRESSOFSHOPPINGANDPLANTTHEIDEAOFWANTINGTOSTAYATTHESTOREALONGERAMOUNTOFTIMEWHICHBENEFITSANDINCREASESMORECHANCESOFCUSTOMERSTOBUYPRODUCT.THETEXTUREWILLALSOVARYBECAUSETREETRUNKTEXTUREARE

THE DESIGN CONCEPT OF LIVING & CO. WILL BE THE TREE TRUNK CIRCLE OF GROWTH WHICH ARE CALLED ANNUAL RINGS. FIRST, THE CIRCULAR SHAPES OF THE TREE ANNUAL RINGS WILL BRING INTO CONSIDERATION WHEN DESIGNING THE STORE. THE CIRCULAR AND ROUND EDGED SHAPES INCORPORATE THE SOFT, FRIENDLY, CALM, AND ALSO UNITY OF THE STORE. IT WILL BRING A SENSE OF COMMUNITY WHERE PEOPLE FEEL SAFE AND A PLACE THEY CAN DWELL TO LOOK AROUND TO BROWSE THROUGH THE FURNITURE AND RELAX AT THE CAFÉ. THE WOODEN MATERIAL WILL ALSO BRING NATURE INTO THE STORE. THE NATURE

ALL DIFFERENT AND HAVE DIFFERENT AESTHETICS WHICH CAN BE BENEFICIAL. THE VARIOUS TEXTURE IN DIFFERENT ZONES CAN HELP DIFFERENTIATE ZONES AND TO MAKE MOVEMENT TO THE EYES WHICH KEEPS VISITORS INTERESTED.

22 23 AREADISPLAY

25 24 SPACERETAIL

26 27 DESKCASHCAFE

28 29 LOUNGECAFE

COMMERCIALOFFICEDESIGN 31 DESIGNEDWHEELOCKINCBYEUNBIJUNG

YALE VANCOUVERTOWNWHEELOCKINC 33 LOCATION

34 35 2.1.LEGENDRECEPTIONPROPERTY GALLERY 3. COLLAB AREA 4. MEETING ROOM 5. CONFERENCE ROOM 6. GENERAL MANAGER 7.OFFICEMARKETING TEAM OPEN OFFICE 8. MARKETING MANAGER 9. 10.ELECTRICALSTORAGE ROOM 11.BREAK AREA 12.ADMIN TEAM OPEN 13.ADMINOFFICE MANAGER 14.COPYOFFICE AREA FLOOR 1PLAN 3 2 4 6 5 7 9 8 1210 11 13 14

COLLABAREA

36 37

MEETINGPRIVATEAREA

BUBBLE DIAGRAM

SPACE PLANNINGCONFERENCEROOM PUBLIC ZONE SUPPORT ZONE PRIVATE ZONE DIRECT ADJACENCY INDIRECT ADJACENCY ENTRY COPYAREA PROPERTYGALLERY RECEPTION SKETCHES ROOMELEC.OFFICEADMINOFFICEITACCOUNTOFFICEADMINMANAGEROFFICE PA OFFICE BREAKSTAFFAREAG/MOFFICEMARKETINGEXEC.OFFICE

OFFICEETINGMARK

MANAGERETINGMARKOFFICE

38 39 DRAFT MODEL

DRAFT MODEL

40 41

ALSO, COMMUNITY IS NOT FORMED OVER SHORT TERM. IT IS BUILT ON TRUST, SUPPORT, A “WE BEFOREMINDSET,ME” AND PLANNING FOR A BETTER FUTURE FOR THE BEST OF EVERYONE INVOLVED IN THE COMMUNITY. A COMMUNITY THAT HAS BEEN AROUND FOR A LONG TIME HAS MORE WHEELOCKRESOURCES,EXPERIENCE,STRONGLEADERSHIP,ANDALARGERPURPOSE,WHICHISWHATPORTRAYSASACOMPANYANDSHOULDREFLECTINTHEIRINTERIORTHATWILLGIVECLIENTS,PARTNERS,ANDEMPLOYEESTHEASSURANCE

CONCEPT FOR THIS PROJECT IS COMMUNITY THAT STRIVES IN LONGEVITY. THE COMMUNITY MEANING OF FELLOWSHIP THAT SHARES COMMON INTEREST AND GOALS SUIT WHEELOCK’S COMPANY VISION THAT REACHES TO DIFFERENT LEVELS AND FIELD OF BUSINESS. WHEELOCK HAS BEEN AROUND FOR A LONG TIME SERVING ANDDEVELOPING DIFFERENT SUBSTANTIAL INTERESTS ACROSS A SPECTRUM OF BUSINESS. COMMUNITY BRINGS A SENSE OF SAFE, RELIABLE, SHARING COMMON INTERESTS OR GOALS, AND A POSITIVE AESTHETIC TO THE COMPANYIMAGE.

42 RECEPTION

THEY WANT AND NEED TO TRUST AND BE A PART OF WHEELOCK PROPERTIES INC.

44 45 ERYGALLERTYPROP-

46 47 AREACOLLAB

48 49 AREABREAK

50 51 ROOMRENCECONFE-

COMMUNITYCENTREDESIGN 53 DESIGNEDBARGETHEBYEUNBIJUNG

ENGLISHVANCOUVERBAYTHEBARGE 55 LOCATION

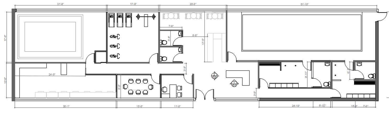
56 57 FLOOR10.9.8.7.6.5.4.3.2.1.LEGENDRECEPTIONCAFEAREASMALLOFFICEMEETINGROOMWEIGHTROOMGYMLIBRARYLOCKERS/WASHROOMSWIMMINGPOOLELECTRICALROOMPLAN 9 67 4 3 2 5 1 8 10

58 59

RECEPTION

BUBBLE DIAGRAM WALL ELEVATIONS

SKETCHES ROOMSWASHAREACAFE WEIGHTROOOMCOMMONAREAMEETINGROOM LIBRARYOFFICESGYM ROOMELEC.SHOWERAREAWASHROOM-POOL RECEPTIONJANITORCLOSET LOCKERS POOL1” PANELS1”ELSGLASSFROSTEDPANGRANITE

60 61 SECTION ELEVATION

62 63

FRONT ELEVATION

FRONT ELEVATION

64 65

66 67

ISOMETRIC VIEW

EXPLODED VIEW

ANDANDCREATINGROLLINGGENTLYANDROUNDEDSHAPESBUTONTHEOTHERHAND,THEYCANBECOMESHARP,STRONGMAJESTICWITHDIFFERENTSHAPESIZESWHENTHESTORMHITS.THEMAINHIGHLIGHTOFTHECONCEPTWOULDBETHEFLOORTOCEILINGWINDOWSALLAROUNDTHECENTERWHICHWILLALLOWNATURALLIGHTTOBRIGHTENUPTHEBUILDINGWHILEPERCEIVINGTHEVIEWOFTHESEA.THEWINDOWSWILLBEASYMBOLOFTHEWINDANDTIDEBECAUSETHEYDON’TPRODUCEANYCOLORSANDMOSTLYTRANSPARENT.THEOVERALLINTERIOROFTHEBUILDINGWILLCONSISTOFCURVATURESHAPESTHATMOCKTHEIDEAOFTHEROLLINGWAVESMADEBYTHETIDES,WHILEENFORCING

68

THE IDEA OF WIND WITH WAVY AND ROUND FIXTURES AND DROP CEILINGS.

RECEPTION

BECAUSE THE BARGE AND THE AREA SURROUNDING IT WAS DESTROYED BY THE WIND AND HIGH TIDES, THE CONCEPT WILL BE BASED ON WIND AND TIDE. WIND AND TIDE HAVE A COMMON GROUND WHICH IS THAT THEY BOTH DON’T HAVE A PARTICULAR SHAPE. THEY CAN FEEL LIKE A SOFT BREEZE OR THE WATER

70 71 AREACAFE

LIBRARY

72 73

74 75

LOCKERSHOWER

76 PORTFOLIO 2022NGJUINBEU

Turn static files into dynamic content formats.

Create a flipbook
Issuu converts static files into: digital portfolios, online yearbooks, online catalogs, digital photo albums and more. Sign up and create your flipbook.