Portfolio

Page 1


PORTFOLIO

Eugénie

Hanoï, une ville faite de fragments de campagne

En arrivant à Hanoi en octobre 2017, j’ai été surprise par la cohabitation harmonieuse entre le rural et l’urbain. J’avais en mémoire les projets d’agriculture urbaine qui m’avaient inspirée pour rédiger mon diplôme de fin d’étude mais durant cette année de réflexion, jamais je n’aurais pu imaginer à quel point une ville peut être agricole.

La terre est cultivée à toutes les échelles : de la fosse de plantation à la parcelle inconstructible en passant par la digue qui sépare la ville du Fleuve Rouge. Il est fréquent de tomber par hasard, au détour d’une ruelle sur un champ de fleurs ou de légumes et de quelques bananiers. Les paysans viennent en ville pour vendre euxmêmes leur production chargée sur de petites mobylettes. Il n’est pas rare que les bouis-bouis de rue tue un poulet sous vos yeux pour préparer votre déjeuner.

Ces petites scènettes frappent à chaque coin de rue et à chaque instant de la journée. Elles s’expliquent par la transformation très rapide de la ville. Jusque dans les années 80, l’extension de la ville d’Hanoï était interdite et sa ceinture agricole était préservée pour que les produits alimentaires gagnent rapidement le centre. La ville de Hanoi s’est d’abord densifiée sur elle-même la rendant ainsi très complexe et depuis une trentaine d’années, la ville s’étend, accueillant des nouveaux ubains qui apportent avec eux leurs coutumes rurales.

HANOI
MOC CHAU
THANH HOA
VINH
BAO LOC
HO CHI MINH VILLE
LONG XUYEN

EXPÉRIENCES EN FRANCE

2024 2021 VILLE DE SAINTES

FRANCE

AMÉNAGEMENT URBAIN

Aménagement des rues Eugène Pelletan, des Curés et impasse de la Cure

ÉTUDE URBAINE

Aménagement du parvis de l’Église Protestante Unie de Saintes

ÉTUDE PÉRI-URBAINE

Aménagement du giratoire de la route de Rochefort

2020 EXIT

BORDEAUX, FRANCE

AVP BASE DE LOISIRS POUR LA VILLE DE SAINT-NICOLAS-DE-PORT

Comment créer un espace ouvert à tous ?

RÉPONSE À DES CANDIDATURES ET APPEL D’OFFRES

2017 URBICUS

PARIS, FRANCE

SCHÉMA D’AMÉNAGEMENT POUR UN PORT INDUSTRIEL

Comment intégrer un port industriel dans la ville ?

ESPACES PUBLICS D’UNE ZAC

Un nouveau quartier pour la ville de Verne-sur-Seiche

EXPÉRIENCES AU VIETNAM

2019 DE-SO ASIA

HO CHI MINH VILLE, VIETNAM

COEUR D’ILÔT POUR UNE OPÉRATION DE 1800 LOGEMENTS, HÔ CHI MINH VILLE

Comment créer un jardin dense dans un espace restreint

COMPÉTITION POUR LE NOUVEAU PLAN D’URBANISATION DE BAO LOC

Comment révéler l’identité d’un paysage fertile d’une ville moyenne ?

LE MÉMORIAL DU PRÉSIDENT HO CHI MINH, VINH

Comment créer un centre culturel à la mémoire de l’Oncle Ho ?

ÉTUDE PRÉLIMINAIRE POUR LE FUTUR MASTERPLAN DE HAM RONG - NUI DO, THANH HOA

Une ville entre héritage culturel et développement croissant

DÉFINITION D’UN MASTERPLAN POUR UN NOUVEAU QUARTIER, VINH

Un espace public central pour un quartier moderne

2018 HANOI, VIETNAM AREP SOUTH-ASIA

SCHÉMA DIRECTEUR DE LA VILLE DE MOC CHAU

Comment développer une ville agricole en montagne ?

SCHÉMA DIRECTEUR POUR LA VILLE DE LONG XUYEN

Comment protéger une ville du delta du Mékong d’un risque d’inondation?

AMÉNAGEMENT URBAIN

Aménagement des rues Eugène Pelletan, des Curés et impasse de la Cure

À la recherche d’une histoire

Valoriser l’espace public

Créer une continuité piétonne

Végétaliser l’espace public

Plan d’aménagement pour une nouvelle vie de quartier

Calendrier & Budget

2021 2022 janv fév mars avril mai juin juill août sept oct nov déc nov déc

EFFACEMENT DES RÉSEAUX

DIAGNOSTIC

CHANTIER PRÉVU PRINTEMPS 2023

lettres aux administrés acquisition foncière archéologie préventive production graphique

présentation interne terrain

ESQUISSE

présentation interne présentation élus concertation production graphique

SURFACE 2500 M²

LINÉAIRE PROJET

M

Réalisation du chantier

ÉTUDE URBAINE

Aménagement du parvis de l’Église Protestante Unie de Saintes

Valoriser la façade d’un monument historique

Calendrier & Budget

Études

Validation en conseil de majorité

Présentation à nos partenaires

Vote du budget

Autorisation d’urbanisme

Commande des pavés

Chantiers

Périmètre total du projet : 80 m

Surface du projet : 200 m² béton désactivé : 100 m²

pavé en pierre naturelle : 80m²

bande enherbée : 20 m²

Travaux préparatoires

Trottoir en pavé en pierre

Autres travaux de revêtements

000 €

000€

000 €

Mobilier urbain 5 000 €

000 €

Détails techniques

ÉTUDE PÉRI-URBAINE

Aménagement du giratoire de la route de Rochefort

Une butte de terre monumentale

5 m de haut hauteur estimée

7 000 m3 volume de terre estimé

ralentir

visibilité bruits

3 scénarios proposés

projet

Esquisse 1

Un horizon de vigne

budget investissement

gestion

Esquisse 2

Une vigne qui souligne la butte

Esquisse 3 Une prairie fleurie en pied de butte

€ / an

Une prairie fleurie en pied de butte

gestion au fil des années

BOSQUET

1ère année n+4 n+8 n+12

8 ans 12 ans 16 ans 20 ans

arrosage taille ponctuellement tous les 3 ans

JACHÈRE

FLEURIE

10 jours ouvrés

coûts de gestion

1 500 € / an

faux semis semer floraison tous les ans fauche

AVP POUR LA CRÉATION D’UNE BASE DE LOISIRS EN PLEIN AIR

Comment requalifier un espace public existant grâce à de nouveaux usages ?

Plan général pour la préparation d’un PRO

La base de loisirs de la ville de Saint-Nicolas-de-Port (54) est ouverte à tout type de public et s’adapte à chaque mobilité. Pour le rendu AVP, j’ai travaillé pour la réalisation de différents plans techniques comme : un plan de nivellement pour s’assurer que les pentes du projet soient compatibles avec l’accueil du public, un plan de revêtements des sols et un plan de plantation pour faire un premier chiffrage en vue de la phase PRO.

ZOOM SUR L’ORGANISATION SPATIALE DES ELLIPSES

Différentes ambiances végétales

lisière forestière strates progressives

prairie humide

PRAIRIE HUMIDE ET LISIÈRE FORESTIÈRE

jardin potager

pétanque, pique-nique verger verger verger

VERGER CONSERVATOIRE ET JARDINS FAMILIAUX

lisière

lisière prairie fleurie prairie fleurie cheminement

PRAIRIE FLEURIE

Comment révéler des paysages protégés ?

Des paysages naturels aux paysages touristiques

Le Conservatoire du littoral a pour mission de protéger les milieux naturels et les paysages littoraux. Ces protections jouent un rôle majeur pour le développement durable, il permet de conserver des habitats naturels fragiles et de lutter contre des évènements climatiques extrême en conservant un espace tampon entre l’océan et les espaces habités. Cette étude propose d’analyser et de comprendre les dynamiques qui ont façonné les paysages de 7 sites situés sur le littoral de la Guadeloupe et de trouver des solutions pour améliorer l’accueil du public sur ces sites.

APPEL D’OFFRE POUR L’AMÉNAGEMENT D’UNE VOIE VERTE

Comment valoriser des paysages emblématiques ?

Les mobilités douces aux services d’un tourisme tourné vers les espaces ruraux

Le projet d’aménagement de voie verte dans le périmètre d’Opération Grand Site du Havre du Payré est ambitieux, il s’inscrit dans un contexte géographique remarquable et sensible. Il s’agit d’enjeux majeurs sur la question du développement d’un territoire. Ce territoire est composé d’une mosaïque de paysage façonnée par des conditions géographiques particulières (géomorphologie, variabilités des sols, gradients de salinités, climatologie…) et transformé par la main de l’homme grâce à un savoir-faire ancestral (marais aménagés par les moines, développement de l’ostréiculture…). Cette diversité de paysage apporte une richesse d’espèces animales et végétales qui constituent un grand intérêt écologique pour le site. Le projet de voie verte traversera une zone de prés-salés qu’il faudra valoriser mais aussi protéger au vu de sa sensibilité.

ChenalduPayré àTalmont

LE TERRITOIRE DU HAVRE DU PAYRÉ : UNE MOSAÏQUE DE PAYSAGES À RÉVÈLER

LES MOTIFS NATURELS LES MOTIFS ANTHROPIQUES RÉSEAU DE PISTE CYCLABLE

Massif forestier

Système hydrologique

Estuaire

Agriculture

Marais salant

Bâti

Route

Vélodyssée

Sentier cyclable

Tracé actuel en voie partagée

Itinéraire projeté

TALMONT-SAINT-HILAIRE
JARD-SUR-MER
Plage du Veillon
Marais Bourg Daillon Havre du Payré
Château du Veillon
Plage de la Mine LePayré
LA GUITTIÈRE N

COEUR D’ILÔT POUR UNE OPÉRATION DE 1800 LOGEMENTS

Comment créer un jardin dense dans un espace restreint ?

Principes généraux : d’une forêt tropicale à la définition d’une promenade

Les citadins cherchent à se rapprocher de la nature, qu’il est difficile de trouver dans un contexte urbain de plus en plus dense. Dès les premières intentions, le projet s’est inspiré de la généreuse nature qu’offre le Delta du Mékong. S’incrivant entre 2 bâtiments qui, à terme, accueilleront 1800 logements, le projet se définit comme une promenade ponctuée d’activités pour animer l’espace. Pour ce projet, j’ai été en charge de la définition du guideline et du choix des matériaux en concertation avec l’architecte du projet. J’ai aussi dessiné certains détails en vu de la phase PRO du projet.

La forêt à façonner La promenade à définir Fragmentation du paysage

Masterplan

HO CHI MINH VILLE

Du concept à la phase PRO

Définir la typologie des espaces publics

Recherche des matériaux pour la promenade

Recherche des matériaux pour les stationnements

Coupes détaillées pour préparer la phase PRO du projet

COMPÉTITION POUR LE NOUVEAU PLAN D’URBANISATION

Comment réveler l’identité d’un paysage fertile d’une ville moyenne ?

Un territoire principalement agricole

Une agriculture stratifiée suivant la topographie 1 2 3

Au-dessus de 900 m d’altitude, on trouve uniquement de la forêt de production. L’altitude, les conditions climatiques et la pente sont favorables à la production de bois.

Entre 700 m et 800 m d’altitude, les pentes et les conditions climatiques sont favorables à la production de thé, café et fruits. Bao Loc est connu à travers le Vietnam pour son thé. Cette identité doit être conservée et valorisée.

Forêt

Petits arbres : thé, café et fruitiers

Cours d’eau

La ville de Bao Loc s’est développée sur un plateau qui est à 700 m d’altitude, grignotant peu à peu les terres agricoles. La ville nécessite d’être structurée et doit posséder son caractère propre.

20% Forêt de production
71% Petits arbres (thé, café et fruitiers)
BAO LOC

Une production de thé et café majoritaire

TOTAL : Petits arbres Thé Café Fruits

Autres

ha

ha

ha

ha

ha

Comparaison entre Bao Loc et Da Lat

Bao Loc Da Lat

tonnes

tonnes

tonnes

tonnes

103,3 millions vnd (environ 4,000€) 734,1 millions vnd (environ 30,000€)

La superficie moyenne des terres agricoles de Da Lat est bien moindre que celle de Bao Loc et pourtant le revenu agricole y est 7 fois plus important. La région de Da Lat est très connue au Vietnam grâce à sa production de grande qualité et respectueuse de l’environnement, elle est à l’image de notre région PACA, riche en maraîchage et petits éleveurs. Aussi, si la ville de Bao Loc veut développer son activité agricole, elle doit la diversifier et produire du thé de très haute qualité (label) afin de le valoriser.

LE MÉMORIAL

DU

PRÉSIDENT HO CHI MINH

Comment créer un centre culturel à la mémoire de l’Oncle Ho ?

Trois grands axes de réflexion pour la construction du projet

1. Créer un centre culturel moderne guidé par une ligne immatérielle et symbolique

Le projet va tendre une ligne imaginaire entre les 2 montagnes qui émergent du site. Le centre culturel se situera au milieu de cette ligne.

2. Aménager les entrées de chaque site et lier les reliques entre elles.

Les parents de Ho Chi Minh sont originaires de Kim Lien et le village a conservé les habitations traditionnelles. Le projet améliorera l’aménagement des entrées en proposant un espace public de qualité.

3. Définir une stratégie pour les futures constructions dans les villages.

Valoriser les vides agricoles entre chaque village en limitant les nouvelles constructions. Dessiner de nouvelles franges urbaines pour marquer les entrées de villages

1. Forêt de pins
Montagne Chung
2. Paysage de rizière
3. Village de Hoàng Trù
4. Site d’étude : village de Kim Lien et rizières
5. Village Nam Giang
6. Montagne Dong Trang
VINH

La ligne immatérielle se transforme en promenade

A

Cheminement de 6 m de large : Piétons et cyclistes

Double alignement d’arbres de chaque côté

B

Cheminement de 6 m de large : Piétons et cyclistes

Simple ligne d’arbre d’un côté

C

Cheminement de 4 m de large : Piétons uniquement

Suppression des arbres

ÉTUDE PRÉLIMINAIRE POUR LE FUTUR MASTERPLAN DE HAM RONG

Une ville entre héritage culturel et développement croissant

Comment valoriser l’héritage naturel, historique et culturel d’une région ?

Un paysage sublimé par ses horizons

Préserver le patrimoine agricole De nombreux sites archéologiques à valoriser

«Le paysage, c’est l’endroit où le ciel et la terre se touchent»

Michel Corajoud

THANH HOA

Ham Rong - Nui Do est composé de villages agricoles situés au nord de la ville de Thanh Hoa, le long de la rivière Ma. L’architecture et l’urbanisation traditionnelles ont créé un paysage caractéristique et remarquable qui doit être conservé.

La mise en œuvre d’un règlement d’urbanisme et de gestion architecturale guidera le développement futur de ces villages et contribuera à gérer les enjeux liés à la modernisation.

C’est un lieu de patrimoine culturel important, présent sous de nombreuses formes : géographie, paysage rural (agriculture et architecture caractéristique à la région), culturel, artisanat traditionnel, villages archéologiques. Le projet consiste à valoriser un territoire au patrimoine fascinant dans le contexte du 21e siècle.

Décliner 3 stratégies de développement

Développement résidentiel

Créer de nouveaux quartiers résidentiels denses en continuité avec l’urbanisation existante.

Encadrer les nouvelles constructions afin que l’urbanisation soit homogène.

Travailler les franges rurales pour valoriser le paysage agricole.

Développement touristique

Définir un circuit touristique qui valorisera la région.

Valoriser les canaux et la rivière pour qu’ils deviennent un nouveau lieu touristique.

Créer de nouveaux services liés aux tourisme : centre culturel, musée, restaurants et hôtels.

Développement agricole

Sensibiliser le public aux pratiques agricoles de la région.

Créer un label typique de Thanh Hoa et former les agriculteurs à des pratiques plus vertueuses pour l’environnement.

Sensibiliser les locaux pour qu’ils préservent leur héritage culturel.

3 Lieux d’investissements prioritaires

Đông Cuong 3

Thieu Khánh

Tào Xuyên

1 - TAO XUYEN : Un nouveau quartier ouvert sur la rivière

Une nature à conserver

Empêcher l’urbanisation des montagnes 1

Créer un espace public le long de la rivière 2

3 Valoriser les points de vue sur Ham Rong

Développer un nouvel espace urbain

Créer des espaces publics 4

Créer un centre culturel qui deviendra le symbole de ce nouveau quartier 5

6 Intégrer le tissu urbain existant

Améliorer les mobilités

7

Construire un pont pour connecter Tao Xuyen à Ham Rong

Créer un axe principal de développement pour le futur quartier 8

9 Anticiper l’augmentation du trafic et proposer de nouvelles connexions pour Thanh Hoa

2 - DONG CUONG : Une poche agricole aux portes de la ville et un futur pôle urbain

Une nature à conserver

Empêcher l’urbanisation des montagnes 1

Conserver des espaces agricoles qui participent à la valorisation des montagnes 2

Créer un centre dynamique autour de la prochaine gare

Créer un pôle agricole pour valoriser l’agriculture de Thanh Hoa 4

Créer un centre sportif qui fera le lien entre la ville et la zone protégée 5

3 Valoriser les points de vue sur le petit Éléphant 6 Créer un nouveau quartier

Améliorer les mobilités

Anticiper l’arrivée de la nouvelle gare 7

Anticiper le futur trafic 8

3 - THIEU KHANH : Un espace rural à valoriser pour l’héritage de Ham Rong - Nui Do

Une nature à conserver

Créer un parc agricole ouvert sur la rivière 1

Conserver les rizières, vecteur d’économie 2

3 Valoriser les points de vue sur Ham Rong

Valoriser la campagne de Ham Rong

Préserver l’authenticité des villages 4

Promouvoir un tourisme vertueux et proposer des activités en lien avec le territoire

Améliorer les mobilités

Anticiper le futur trafic, élargir les routes et développer les transports en commun

Créer un nouveau pont pour rejoindre facilement l’autre rive de la rivière Ma

Proposer des parkings à l’extérieur des villages pour limiter les voitures

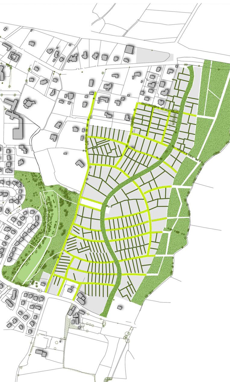
DÉFINITION D’UN MASTERPLAN POUR UN NOUVEAU QUARTIER

Un espace public central pour un quartier moderne

Comment connecter et valoriser un petit quartier dans l’ombre d’une grande ville ?

Les pôles urbains et les axes de transports

60 % Agriculture et bassins d’aquacultures 20% Routes existantes 13% Eau 12 % Habitations

Système hydrologique

Constructions existantes

4 grandes entités paysagères remarquables :

Routes existantes

Zones agricoles

LE SYSTÈME HYDROLOGIQUE est complexe : sur le territoire, il est présent de manière naturelle mais aussi sous forme de nombreux canaux drainants; environ 50 ha : rivière principale (10 ha) et zone de drainage des crues (40 ha).

L'ESPACE VILLAGEOIS : La commune de Hung Hoa est principalement constituée de petites exploitations agricoles qui cultivent les terres avoisinantes; environ 80 ha de superficie.

LES ROUTES RURALES, peu développées à l'exception de la digue.

LES TERRES AGRICOLES : rizières ou étangs piscicoles; environ 230 ha : 220 ha de rizières et 10 ha d'étangs.

VINH
Vinh
2 km
KIM LIEN
BA CO
MOUNTAIN QUYET
Vinh railway
Vinh airport
CUA LO
CITADEL
Vinh : Une ville connectée et facilement accessible
QH 46A
QL1
To Ha Noi

Le projet s’inscrit en continuité du tissu résidentiel existant et crée une transition harmonieuse entre maisons traditionnelles et architecture moderne au sein du futur quartier résidentiel.

Le projet valorise le réseau hydrologique existant et propose un plan permettant aux futurs habitants de bénéficier de ces éléments naturels dans un espace urbain. Un grand parc, qui répond aux demandes des investisseurs, sera le déversoir des crues potentielles. Ce parc est le lien entre le futur quartier résidentiel et la rivière à travers un espace ouvert pour tous.

Penser le projet à l’échelle globale du méandre pour une cohésion territoriale.

Intégrer les routes du masterplan général afin de renforcer le système de routes existant et le lien avec la ville de Vinh.

Penser une trame verte accompagnant la trame bleue existante qui sera le support des crues potentielles.

Option 1 : Un quartier articulé autour d’un espace de loisir

Option 2 : Une île urbaine entourée d’eau

Option 3 : Un futur quartier intégré dans un parc agricole

SCHÉMA DIRECTEUR DE LA VILLE DE MOC CHAU

Comment développer une ville agricole en montagne ?

Entre les montagnes et les plaines : comment la ville s’organise-t-elle ?

Altitude < 600 m

Altitude 600 - 900 m

Altitude > 900 m

Plateau 950 m - 1100 m

La ville de Moc Chau est située dans la région montagneuse du nord-ouest du Vietnam. Cette ville se caractérise par sa production agricole et son développement urbain contraint par la topographie. La diversité agricole s’organise en fonction de l’altitude et le dénivelé. Sur le plateau est, ce sont les plantations de thé, l'élevage laitier et l'arboriculture. Alors qu'à l'ouest, où l'altitude est moyenne et la plaine fortement irriguée, l'agriculture est variée de type maraîchage et entrenue par des minorités éthniques. La ville de Moc Chau est aussi caractérisée par son climat tropical avec une période de mousson assez longue, d’avril à octobre, entrainant de fortes précipitations.

Afin de concevoir le nouveau schéma directeur de la ville, il est important de comprendre le flux des eaux de pluie et de prendre en compte l’artificialisation des sols.

Flux principal des eaux pluviales (EP)

Flux secondaire des eaux pluviales

Cheminement pour l’évacuation des EP Limite de l’urbanisation

Zone à risque d’inondation

VINH

Des paysages sublimés par l’agriculture

Urbanisation existante

Forêt

Plantation de thé

Pâturages

Agriculture maraîchère

Cours d’eau

1 km N

SCHÉMA DIRECTEUR DE LA VILLE DE MOC CHAU

Comment développer une ville agricole en montagne ?

Afin de protéger l’identité culturelle de Moc Chau, il est important que le schéma directeur respecte ses spécificités et guide l’urbanisation du territoire, pour que les futures constructions s’intègrent dans ce paysage typique du nord-ouest du Vietnam.

Grâce à une évaluation fine, nous avons pu identifier 4 enjeux majeurs pouvant orienter l’urbanisation :

• La valorisation de l’architecture et du patrimoine culturel de la ville.

• La préservation des entités agricoles qui créent le paysage de Moc Chau.

• Respecter les limites du cadre naturel en montagne.

• Respecter l’écoulement des eaux pluviales et conserver des sols perméables sur cette trajectoire.

Comment définir un plan d’urbanisation ? Urbanisation existante Zone favorable à

La zone favorable à l’urbanisation résultante est représentée sur cette carte.

Valoriser le patrimoine bâti existant

Préserver l’agriculture

Protéger les paysages naturels

Éviter les zones à risque d’inondation

Respecter le dénivelé

SCHÉMA DIRECTEUR POUR LA VILLE DE LONG XUYEN

Comment protéger une ville du delta du Mékong d’un risque d’inondation?

Concevoir la ville de Long Xuyen avec la gestion de l’eau

La ville de Long Xuyen s’est coconstruite avec l’agriculture.

La future trame verte et bleue du schéma directeur.

Comme toutes les villes du delta du Mékong, Long Xuyen est une ville agricole. Les rizières sont omniprésentes. Cette agriculture existe grâce aux inondations annuelles lors de la saison des pluie. Les sols sont drainants et permettent une absorption rapide de l’eau lors des inondations.

L’équilibre entre les inondations et l’agriculture est important pour gérer l’absorption des eaux de pluie. Cet équilibre permet de construire une ville durable et de limiter les inondations dans la ville.

Extrait du schéma directeur proposé
LONG XUYEN

SCHÉMA D’AMÉNAGEMENT POUR UN PORT INDUSTRIEL

Comment intégrer un port industriel dans la ville ?

Le schéma d’aménagement et de développement durable ou SADD vise à planifier les interventions des Ports de Paris sur le port de Bonneuil-sur-Marne. Il prend en compte les exigences du développement durable et les évolutions du territoire à venir. Il s'agit d'un document opérationnel, d'un guide, qui sert de référence sur la base d'un diagnostic territorial. L'étude est synthétisée par un travail de cartographie.

Recherche sur la valorisation des industries grâce à une mise en couleur

Profil de la route principale

ESPACES PUBLICS D’UNE ZAC

Un nouveau quartier pour la ville de Verne-sur-Seiche (agglomération de Rennes)

La ville de Verne-sur-Seiche accueillera un nouveau quartier de 700 logements neufs construits sur d'anciennes terres agricoles. Le projet désire conserver l’identité agricole des terres. De part et d'autre de cette future ZAC, deux parcs, l'un naturel et l'autre agricole, accompagneront le développement de la vie collective.

L’AGRICULTURE

POUR

VALORISER LE PAYSAGE D’UNE VILLE

Comment cultiver Marseille ?

Entre les montagnes et la mer Méditerranée : comment la ville s’organise-t-elle ?

Comment un paysagiste s’empare-t-il de la question de l’agriculture urbaine ? Comment l’agriculture peut-elle valoriser et entretenir les paysages d’une ville ? Pour mon travail de fin d’étude, je suis partie à la rencontre d’une grande ville : Marseille. Durant un semestre, j’ai arpenté cette ville et étudié ses dynamiques géomorphologiques. À travers sa trame verte et bleue, je me suis inscrite dans son paysage afin d’introduire au mieux une agriculture au service de la ville.

Cette ébauche de projet s’incrit au nord de la ville de Marseille. Comme de nombreux endroits en France les entrées de villes sont maltraitées et ne portent aucune identité territoriale : que l’on soit au nord ou au sud de la France, les paysages sont les mêmes : de vastes zones commerciales. J’ai travaillé sur les 30 hectares qui entourent un des plus grands centres commerciaux de Marseille pour donner à ce lieu une identité forte qui passe par la construction d’un paysage agricole. L’agriculture permet une gestion privée du site et favorise les émulations sociales grâce à des ateliers pédagogiques.

massif de la Nerthe
chaîne de l’Étoile
mer Méditerranée tâche urbaine
le Garlaban
massif Saint-Cyr
massif des Calanques

Un autre terrain d’étude se situe dans les quartiers nord de Marseille. L’urbain y est dense et très bétonné, ouvrir des terrains privés et abandonnés pour offrir plus d’espace public me semblait pertinant. Les terrains de ce cloître peuvent devenir un lieu de rencontre, de divertissement ou de détente. L’activité agricole permet ici d’avoir un cycle économique pour faire vivre un restaurant et des formations au service de la vie de quartier.

Madame Eugénie Faisant 4, l'Hermitage 16370 Cherves-Richemont.

Le 26 juillet 2020

Attestation de travail

Je soussigné Olivier SOUQUET atteste que Eugénie FAISANT paysagiste a travaillée avec nous à notre agence Vietnamienne de HCMV au Vietnam entre Mars 2019 et Janvier 2020.

Nous avons travaillé ensemble sur les projets urbains de Vinh, Thanh Hoa, et du mémorial HCM à Kim Lien.

Nous avons aussi travaillé sur les préconisations paysagères de 1850 logements à Ho Chi Minh Ville en cours de Basic Design

Eugénie nous donné toute satisfaction dans son travail et je la recommande à ses futurs employeurs . Nous n’avons pas pu continuer notre collaboration en raison de la crise du Covid 19 qui sévit au Vietnam.

Eugénie sait animer une équipe et prendre les ini tiatives sur un projet en relation avec les clients.

Sa maitrise des outils informatique et du dessin, nous as donné toute satisfaction dans les études de diagnostiques réalisées.

De même son sens critique sur les projets a été bénéfique dans l’élaboration des propositions

Fait pour valeur ce que de droit

DE-SO ASIA DESIGN CONSULTANT JSC

HCMC 28 Thao Dien District 2

HA NOI 24 Hoa Ma District Hai Ba Trung

T. +84 28 6685 5683 F.+84 28 3820 2056

Email : contact@deso-asia.com

DE-SO ARCHITECTES-URBANISTES S.A.S

PARIS 10 rue des Bluets 75011

T. +33 155 43 97 07 F. +33 1 55 43 97 06 contact@de-so.com . www.de-so.com

Turn static files into dynamic content formats.

Create a flipbook
Issuu converts static files into: digital portfolios, online yearbooks, online catalogs, digital photo albums and more. Sign up and create your flipbook.