Portafolios de Taller: UNAL 2018-2023

Page 1

Los ejercicios de maquetación fueron fundamentales a la hora de comprender el problema a resolver, espacios de circulación y permanencia, paradigmas fundamentales y luego la relación interiorexterior, cánones oblicuos de una arquitectura abstracta y meramente compositiva La fragmentación del espacio genera las permanencias y recorridos, fluidez y movimiento mediante principios de orden

El ejercicio Relación-Composición-orden Evalúa las posibilidades formales al ubicar 7 filas generando una matriz abstracta en donde antes que arquitectura se exploran las cualidades espaciales de la matriz

El siguiente ejercicio corresponde a Abstracción-arquitectura y texto De la literatura se desprendió la resolución de este nuevo paradigma de circulación y permanencia, esta vez extruyendo horizontalmente las 7 franjas anteriores, ahora el espacio se recorre de arriba abajo, una nueva evolución de los principios de orden

Las directrices geométricas establecen relaciones de estereotomía, los planos se doblan y crear particulares estancias, una forma económica de resolver el espacio

P-I PROYECTO I

2018-1

Las relaciones de orden establecieron la creación de diferentes espacios de permanencia, con la obligación de crear un espacio de mayor jerarquía, estas jerarquías espaciales creativamente se enlazan mediante escaleras y recorridos laberinticos, arquitecturas mínimas y abstractas que nacen desde la obviedad de 7 trazos paralelos

Este proyecto corresponde al tercer ejercicio, en donde se abordaron temas referentes a forma y ejecución geométrica, esta propuesta corresponda a un volumen estereotómico conformado por planos que gradualmente intercambian sus dimensiones para generar una experiencia a partir de la sombra

Circunstancialmente, en un terreno rectangular, se inscriben horadaciones obtusas y ángulos filosos, usando como referente la más avanzada arquitectura contemporánea, se recrea una espacialidad sin uso especifico, solamente una consecución de planos con cortes que se hacen cada vez más pequeños, una inscripción en el suelo complejiza el recorrido de abajo arriba

El ejercicio final titulado Arquitectura y lugar, establece la primera relación con un lugar real, la entrada de la calle 26 de la Universidad será el escenario de un nuevo sistema de acceso, construido a partir de todos los aprendizajes de estancia y recorrido

La propuesta es un sistema complementario de trama y urdimbre, un plano rectangular se dobla para generar un pórtico de acceso casi rupestre, el pórtico se enreda con la horadación en el terreno, generando espacios de permanencia

Las axonometrías enseñan el andamiaje interior de la propuesta, espejos de agua complementan la experiencia del peatón, que a la altura de su ojo solamente vera los planos del pórtico saliendo del suelo, al aproximarse se revela la excavación que conduce mediante rampas a un espacio de permanencia

P-I PROYECTO 1
ESTEBAN CASTAÑEDA BAEZ 2018-1

El primer ejercicio fue un acercamiento a la estereotomía total, la horadación de un volumen de plastilina dio lugar a las permanencias y las circulaciones

Ejercicio II

Las plantas revelan como los rezagos entre los grandes machones de masa, proporcionan espacios de diferentes jerarquías, la operación formal es la horadación, no solamente en una masa de terreno, sino en un volumen compuesto, ahora la masa revela interesantes fachadas y recorridos arbitrarios

P-II PROYECTO II

2018-2

El segundo ejercicio tuvo como implantación las cercanías a la capilla del campus de la Universidad Nacional, ahora la operación de horadación es sobre el terreno desde la cota 0

Los machones suspendidos como horadación en el abstracto terreno rectangular generar imponentes juegos de luz y espacios de 3 jerarquías, un recorrido que flanquea dos patios hasta llegar finalmente a una capilla circular subterránea, era un requisito que existiera una rampa y una escalera con pendientes específicas

Ejercicio I

El ejercicio llevado a maquetas proporcionó un acercamiento todavía más honesto a la luz que el mismo software y planimetrías, la obligación de construir una maqueta seccionada en un punto, evidenciaba con la escala del modulor la espacialidad creada con ayuda de la horadación cuidadosa del terreno

Ejercicio final, Parque Republica de Portugal

El más grande desafío en este caso era la implantación conflictiva, un terreno en su mayoría longitudinal, enmarcado entre grandes volúmenes de vivienda construidos a su alrededor, un cambio drástico de nivel generaba dificultades en su accesibilidad,un reto para generar espacios de permanencia

La composición geométrica lograría resolver el paradigma de recorrido, tratándose de un elemento de masa ubicado en un repentino cambio de altura, la propuesta debía respetar las alturas circundantes, y no competir con el contexto urbano existente

El recinto de mayor jerarquía y espiritual es una capilla circular con apenas una ligera entrada de luz cenital, la maqueta hizo evidentes la búsqueda de contrastes entre masa, oscuridad y horadación

El cambio de nivel fue abordado desde la estereotomía, esculpiendo la masa de terreno inclinada para generar arquitectura

Cuatro volúmenes paralelos en voladizo desde la cota más alta, una línea recta hasta una circunferencia y finalmente otra línea recta serian la sencilla resolución compositiva de la propuesta

El resultado final evidencia los trazos compositivos vueltos dos recintos de gran valor espiritual, se trata de un complemento a los templos católicos del lugar El circuito funerario consta de una capilla de recepción en la parte alta y un cenotafio en la parte intermedia, se accede desde cualquier flanco, y la pendiente es resuelta mediante dos rampas

P-II PROYECTO II
ESTEBAN CASTAÑEDA
2018-2
BAEZ

I. La Habitación:

El primer paso para desentrañar los paradigmas de la vivienda en serie comienza con la resolución de un habitáculo sencillo, el primer reto fue interpretar en planos nuestra propia habitación

Paulatinamente a lo largo del primer corte, el habitáculo muta al expandirse sus usos y con esto las posibilidades de organización y distribución de las estancias, lo siguiente es añadir un espacio de trabajo a la estancia de la cama y un baño, luego aparecerán condicionamientos climáticos y de orientación

La habitación personal es sometida a un riguroso análisis de asoleación para comprender las limitaciones y posibilidades del habitáculo, como célula primigenia

Diversos intentos de organización evidencian la dificultad de organizar estancias en serie, dispuestas con un acceso de pasillo lateral

II. La agrupación:

Luego la célula se expandirá para conformar los primeros intentos de agrupación, diversos paradigmas modernos son aplicados en esta búsqueda, especialmente los de Le Corbusier

Luego de diversas condiciones obligatorias de ubicación, orientación, capacidad y usos, se proponen tipologías de barra con usos mixtos

La conformación de la esquina fue un elemento rector de la organización exterior de las unidades, los recorridos y circulaciones están específicamente calculados

P-III PROYECTO III
2019-1

Como su nombre lo indica, esta tipología desarrolla una red de células propagadas, las unidades se disponen de diversas maneras para generar recintos, patios y espacio público a lo largo de un terreno rectangular

La agrupación luego se sistematiza a partir de una tipología consolidad entre los 50s y 60s, se trata de arquitectura de vanguardia experimental que proponía expansiones y propagaciones

Este ejercicio expande las posibilidades anteriormente estudiadas con la barra y plataforma, expandiendo la propagación de las células en vertical, generando de esta manera una torre de vivienda dispuesta alrededor de un núcleo general La agrupación de nodos constriñe las posibilidades y presenta un desafío a la hora de ubicar las células en el lote

IV. Ejercicio Final: Intervención en Sagrado Corazón

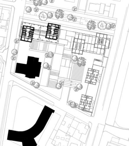
Finalmente, todos los paradigmas de agrupación son aplicados en una situación real, en el que fue un corazón urbano en los 50s El sector de Sagrado Corazón a la altura de la calle 7 fue el lote escogido para desarrollar una propuesta de residencias estudiantiles, oficinas y comercio

El desarrollo realizado en equipos pretende articular 3 propuestas individuales mediante la utilización de barras y plataformas, esta propuesta destacó por la consolidación de un espacio público permeable pero aislado de la avenida, el manejo de alturas de igual forma garantiza armonía con el contexto urbano circundante

P-III PROYECTO III
III. La agrupación y el MatBuilding:
ESTEBAN CASTAÑEDA BAEZ 2019-1

Los bosquejos originales consideraban la articulación de un eje transversal al triangulo para generar espacio público

La necesidad de descongestionar el alto tráfico y densidad construida de la zona invita a la separación del volumen de la propuesta arquitectónica de todos los frentes de tránsito vehicular, privilegiando siempre al peatón, y generando perspectivas arquitectónicas de monumentalidad

La situación urbana es de una inmensa riqueza y potencialidad, se evaluó la existencia de futuros hitos urbanos de escala metropolitana como el nuevo museo de memoria

La intersección entre la Cra 30 y la avenida de las Américas es un punto coyuntural de grandes tensiones urbanas de flujo peatonal y vehicular

Intervención urbana en el triángulo de Bavaria:

Los esquemas de circulación vehicular son sencillos y pretender permitir el libre flujo desde cualquier flanco del lote, sin embargo, las extensas zonas no construidas desarrollan la idea de ciudad - parque

Desde la concepción inicial del planteamiento urbano se consideró la posibilidad de un elemento longitudinal de gran jerarquía

Como resultado se obtienen grandes manzanas de usos mixtos, consolidando una especie de ciudadela aislada de las grandes avenidas Los usos van desde hotelería, oficinas, vivienda, comercio y diferentes clases de edificios administrativos, todo cordialmente articulado por un parque central

PVF Proyecto Vertical De Forma 2020-1

Equipamiento de Escala Metropolitana: BibliotecaNacionalde lasArtes

Diferentes hitos modernos, edificios administrativos masivos y referentes contemporáneos, fueron la base de esta biblioteca longitudinal, un monumento al aprendizaje de las bellas artes

El corte evidencia la naturaleza estructural de los elementos suspendidos, dos núcleos de circulación vertical constituyen la estructura portante principal

El elemento suspendido sobre columnas de concreto armado es una gran viga Wierendel que alberga pasillos de lectura y salas colectivas

Los espacios relatan siluetas monumentales, machones y voladizos, una experiencia de cobertura que obliga a la contemplación

El siguiente elemento fundamental es un patio enterrado en la topografía que genera las dependencias y áreas administrativas, así como un espacio de tránsito y contemplación

El alzado refleja la búsqueda de delimitar un volumen legible e icónico para la ciudad, un faro de atracción al público, que no deja de ser una venia delicada a la técnica, el manejo del acero estructural y la búsqueda de la mayor riqueza de espacio colectivo

PVF Proyecto VERTICAL DE FORMA
Espejos de agua, rampas, escaleras y mobiliario urbano componen el paisaje de la propuesta La sección enseña el patio enterrado poblado de vegetación
ESTEBAN FELIPE CASTAÑEDA 2020-1

La solemnidad del recorrido, la connotación natural, el clima y la gama natural de colores del paisaje supera con creces a la arquitectura humana, los edificios solo se insertan silenciosamente en el panorama que ya existe y que está en constante transformación

La situación espacial de un proyecto no solo reverencia aspectos formales, sino éticos, el lugar no solo es un emplazamiento o las determinantes de una implantación, sino el espíritu concreto de un evento natural y geográfico

La excusa arquitectónica en este caso fue la planta de la hacienda colonial, tanto por su distribución interna como por su escala en relación al paisaje

Intervención en San Antonio del Tequendama:

El planteamiento general invita a un recorrido lo menos trabajoso posible, un terreno de gran pendiente es flanqueado por medio de pasajes agrícolas establecidos en circunferencias que mitigan la dificultad del terreno

La tipología de hacienda es una lección de armonía, un breve discurso al insertar un programa arquitectónico en un entorno primordialmente vegetal, abierto e impredecible

Proyecto
Lugar Urbano
PVLU
Vertical De
2020-2

Los patios internos implementan humedales artificiales funcionales para el tratamiento de aguas lluvias

La implantación ubica 3 grandes complejos arquitectónicos correspondientes a un centro de hospedaje para investigadores, laboratorios de investigación y un museo

El desarrollo técnico es tan sencillo como los referentes, arquitectura histórica, cimentaciones ciclópeas y muros de bloques en tierra

Las secciones evidencian el trabajo con el terreno, los laboratorios se insertan en la montaña generando plataformas de observación de la cordillera, arboles, animales e investigación se congregan en espacios de diferentes jerarquías

PVLU Proyecto VERTICAL DE LUGAR URBANO
ESTEBAN FELIPE CASTAÑEDA 2020-2

I. Análisis del lugar:

La ubicación elegida resulto de la búsqueda de un espacio idóneo para el desarrollo de un monumento, el espacio fue ideal para la realización dadas sus condiciones de deterioro y poca actividad, se trata del frente urbano de la calle 26

El esquema de llenos y vacíos relaciona la predominante actividad de vivienda y edificaciones de baja densidad con el amplio vacío generado por la presencia de la calle 26, Destaca el carácter ritual de la zona, en donde se ubican hitos arquitectónicos de importancia metropolitana, como el cementerio central, el cementerio de los pobres, el cementerio alemán y el nuevo centro de memoria

II. Propuesta base y Análisis de Referentes:

El planteamiento general propone la disposición de elementos de masa alrededor de un eje radial, el módulo seria la interrogante a resolver, y posteriormente a partir de este se crearía la espacialidad o atmosfera, palabra clave en el desarrollo del taller

El módulo principal es una masa de un material indeterminado izada con cables tensores, el segundo una veleta a base de una membrana arquitectónica, un poste y tensores

Posteriormente se realizó la primera implantación de los módulos sobre un lote baldío en el frente deteriorado de la calle 26

El monumento memorial de Steilneset de Peter Zumthor en Noruega, este proyecto involucra elementos rituales y técnicos, desde los cables y tensores hasta la naturaleza conmemorativa y de homenaje del proyecto

Fue necesario construir un detalle constructivo propio del referente para entender de forma más precisa sus determinantes

PVT Proyecto Vertical De Técnica 2021-1

Los polígonos de mármol suspendidos tienen inscripciones de nombres de víctimas del conflicto armado, actuando como grandes lapidas de homenaje

III. Ejercicio

Final:

Monumento a las víctimas del conflicto.

Finalmente, el material elegido para el módulo corresponde a mármol de cantera, este seria izado mediante cables de acero galvanizado, eslingas, postes y estrobos

Diferentes elementos metálicos como platinas, uniones ojo a ojo Fueron clave para la resolución del marco técnico del monumento

El muro de contención de la galería subterránea actúa como una gran zapata, siendo la estructura de cimentación

La finalidad del proyecto entre otras era la creación de diferentes atmosferas sucedáneas al recorrido de la intervención, en este caso el andamiaje resuelto de cables y elementos suspendidos genera un recinto cerrado con gradas en el interior para diferentes usos

PVT Proyecto VERTICAL DE TECNICA
Proyecto VERTICAL DE TECNICA ESTEBAN FELIPE CASTAÑEDA 2021-1

La casa fue concebida específicamente desde el corte y el alzado, esta perspectiva construyó la denominación final de la casa, un espacio de reunión colectivo, más exactamente un auditorio para Florence y sus invitados

El programa constituye los usos básicos para una casa de un solo individuo, un elemento fundamental fue la necesidad de hacer de la cocina un espacio de reunión, la casa auditorio representa el papel de la estancia como un espacio de conversación entre un interlocutor y una audiencia

II. Unidad Auditorio:

Paulatinamente, el habitáculo muta al expandirse sus usos y con esto las posibilidades de organización y distribución de las estancias, lo siguiente es añadir un espacio de trabajo a la estancia de la cama y un baño, luego aparecerán condicionamientos climáticos y de orientación

I. Casa para Florence Thomas:

El primer ejercicio corresponde a una propuesta de vivienda para la socióloga francesa Florence Thomas luego de una conversación desde su perspectiva del habitad

La evolución de la casa para Florence es la expansión del concepto de la primera vivienda a un conjunto habitacional de escala intermedia

La axonometría revela el terreno en pendiente, la posibilidad en corte y alzado de realizar un espacio público contenido

Una plaza permeable retoma al auditorio como un espacio de conversación y confrontación

Vertical Horizontal Transversal (Actividad)

2019-2

Los nodos o células comparten una escala semejante pero su distribución interior cambia para generar distintas relaciones en metros cuadrados

Los nodos se reparten variando su altura

Luego de diversas condiciones obligatorias de ubicación, orientación, capacidad y usos, se proponen tipologías de hábitats con usos mixtos

La maqueta evidencia la relación entre los nodos habitacionales y la plazaauditorio, de igual forma las células se levantan sobre pilares para hacer el conjunto enteramente permeable

VHT

Como se evidencia en el alzado, la topografía permite el desarrollo de escaleras que servirán como mobiliario del espacio público

El programa restringía el número máximo de unidades habitacionales, uno de los desafíos fue lograr la ubicación de las unidades manteniendo la escala del conjunto

III. Ejercicio Final: Intervención en San Martin.

La última evolución de la casa de Florence es la expansión de los nodos habitacionales del segundo ejercicio, esta vez en un escenario real en el centro de Bogotá

El lote a desarrollar es un lote longitudinal en el sector de San Martin sobre la Calle 8va

El bosquejo original de la propuesta procuraba generar dos franjas de espacio público, una a nivel de la calle y otra suspendida en medio de las unidades

4 núcleos suspendidos albergan auditorios y galerías

Este desarrollo hipotético explora las posibilidades de consolidar nuevas formas de espacio público por fuera del contacto del edificio con el nivel de acceso, estos elementos suspendidos extienden las posibilidades del espacio abierto de abajo, la franja suspendida como una extensión publica de usos estáticos, y la franja inferior como un auditorio abierto y permeable al igual que la casa de Florence

El corte evidencia la naturaleza estructural de los elementos suspendidos, las diferentes franjas se desarrollan en base al nivel en corte

Todos los paradigmas de agrupación son aplicados en una situación real, en el que fue un corazón urbano en los 50s El sector de San Martin a la altura de la calle 8 fue el lote escogido para desarrollar una propuesta de residencias, oficinas y comercio

Las unidades son una evolución de las presentadas en el primer ejercicio, esta vez las células se fusionan dejando circulaciones intermedias y aumentando potencialmente la densidad habitacional, no solamente en morfología y cantidad, sino estudiando cuidadosamente la posible consolidación sociológica y humana de cada nodo, de esta forma se presentan distintas propuestas de habitantes para cada unidad

La maqueta enseña la calidad de la franja inferior de espacio publico, permeable y flexible

VHT Proyecto VERTICAL HORIZONTAL TRANSVERSAL
ESTEBAN FELIPE CASTAÑEDA 2019-2

El proyecto responde a la necesidad de un equipamiento de alcance metropolitano en la localidad de Puente Aranda, una zona configurada aleatoriamente por el paso del tiempo Se observa la concentración de museos en localidades como Santa Fe, en el centro de la capital La intervención sería un museo en la antigua fábrica de Cerveza Andina

I. Análisis de la localidad:

La localidad a trabajar fue Puente Aranda, luego de un riguroso análisis se observa una marcada carencia de equipamientos culturales

II. Propuesta base y Desarrollo Museológico:

La zona de influencia rescata el movimiento histórico del triángulo de Bavaria, especialmente sus frentes de acceso restringido frente a la línea de ferrocarril, donde se ubicaría la línea de Regiotram de Occidente

El planteamiento general propone un museo repartido en tres focos fundamentales: el pasado, presente y futuro de la industria colombiana, luego de un vasto análisis museológico, se consideró organizar esto en un flujo cíclico que posteriormente se convertiría en áreas programáticas

I Énfasis Tecnológico I

2021-2

El primer paso fue realizar un diagnóstico del estado de las instalaciones a la fecha actual, se consultaron diversos documentos oficiales e historicos

El diagnostico correspondía especialmente a evaluar el estado de la estructura, para identificar que porciones de ella serian utilizadas para el nuevo modelo, que pretende proponer la menor cantidad de edificios nuevos, así como alteraciones a los bloques existentes

Se evaluó la condición del espacio público existente en las cercanías de la fábrica, para proponer soluciones de accesibilidad y permeabilidad que no afectaran el patrimonio

ET
El primer planteamiento propone un espacio densamente vegetado en la mitad del complejo, manteniendo el aspecto construido del complejo hasta su cierre definitivo en los años 90s

Se organizaron 8 bloques principales para alojar el plan museológico propuesto

Los bloques organizan la temática primordial del plan, disponen áreas administrativas y privilegian la permeabilidad y tránsito peatonal por el complejo, que pretende ser una ciudadela-museo

III. Ejercicio Final: Museo Industrial de Colombia.

Como resultado final se observa una planta prolija que mantiene la mayor cantidad de estancias originales de la fábrica, en adición a estas nuevas salas de exposición, se suman, un auditorio, sótanos de parqueo y un bloque subterráneo

La búsqueda de provocar una experiencia espacial relativa al antiguo uso de la edificación permitió implementar elementos plásticos de ladrillo, así como patrones, gamas de material y color

El nuevo complejo retoma la materialidad original en mampostería proponiendo nuevas estructuras en acero negro para marcar el precedente de su nuevo uso

Para evaluar el estado de muros, pañetes y fachadas se contó con diferentes recursos bibliográficos de diagnóstico como el de la plaza de toros La Santamaria realizado por la Universidad Nacional

La volumetría resultante respeta las alturas predominantes del complejo, teniendo como bandera la creación de la mayor cantidad de espacio abierto transitable como anexo de las estancias de exposición

ET I ENFASIS TECNOLOGICO I
Proyecto VERTICAL DE TECNICA ESTEBAN FELIPE CASTAÑEDA 2021-2

I. Arquitectura y acabados:

Durante el segundo semestre de énfasis se terminó todo lo relativo a la arquitectura, exteriores, espacio público y acabados

La iluminación exterior fue uno de los puntos más importantes a desarrollar, considerando que es esta la que invitaría al público a destacar el espacio y reconocerlo, otro punto fundamental fue el desarrollo de sistemas sostenibles y sustentables en cuanto al manejo de aguas lluvias, energía solar y recuperación estructural

II. Desarrollo estructural:

Se resolvió a partir de armazones exteriores de acero, así como reforzamiento en fibra de carbono para vigas y viguetas

La cimentación se resolvió a partir de micropilotes alrededor de los dados originales de cimentación

Las diagonales estructurales de rigidizacion se desarrollaron como mitigación sísmica de la estructura original

ET II Énfasis Tecnológico II

2022-1

La ambientación de los espacios se abordó desde un punto de vista técnico, resolviendo luminarias y estructura a la vista como apariencia primordial de las salas de exposición

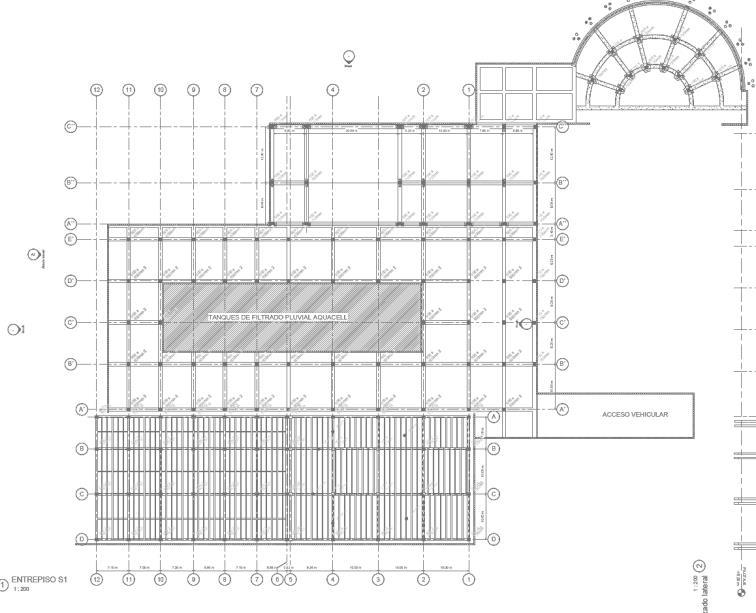
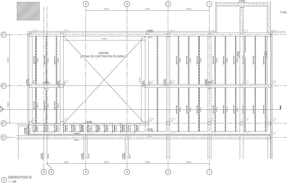
La estructura e instalaciones fueron coordinadas mediante practicas BIM y modelado de ductos y tuberías que constan principalmente de un sistema de recirculación de aguas recogidas mediante AquaCell para sistemas contra incendio y de aguas crudas

III. Instalaciones hidráulicas, eléctricas y de ventilación.

Los planos de detalle evidencian el desarrollo de la estructura nueva, un muro de contención rodea los sótanos propuestos, al que se suman unidades estructurales con estructuras combinadas de pórticos en acero y concreto

Adicionalmente los conos de mampostería de la galería de exposición implementan celdas fotovoltaicas para alimentar los aparatos de la unidad

Las celdas AquaCell se ubican debajo de las zonas de vegetación de todo el proyecto y se Re infiltran mediante equipos de presión, los patios enterrados que también ahorran el consumo de energía en las plantas enterradas, así como aprovechar el agua lluvia

La ventilación se alimenta de los mismos conos que actúan como chimeneas de aire, el aire de impulsión es llevado a los espacios mediante ductos convencionales ubicados en las cubiertas

ET II ENFASIS TECNOLOGICO II
ESTEBAN FELIPE CASTAÑEDA 2022-1

Turn static files into dynamic content formats.

Create a flipbook
Issuu converts static files into: digital portfolios, online yearbooks, online catalogs, digital photo albums and more. Sign up and create your flipbook.