PRUEBA

Page 1

Cruz del Defensor Vive diferente.
DHOMË
2020 2021 2022
2023
DHOMË
MUY PRONTO
Cruz del Defensor
LOCALIZACIÓN DHOMË Cruz del Defensor CENTRO DE ASUNCIÓN FERNANDO DE LA MORA San Lorenzo LUQUE LAMBARE AVDA. ESPAÑA AVDA. MCAL. LOPEZ AVDA.EUSEBIOAYALA AVDA. FERNANDO AVDA. GRAL SANTOS AVDA.STA.TERESA AVDA. MADAME LYNCH AVDA. RCA. ARGENTINA EJE CORP. STA. TERESA 10min EJE CORP. villamorra 5min 30min 15min 15min 15min 25min

UBICACIÓN

cruz del defensor camposcervera biggies colegio las almenas

toribiopacheco

est. de servicio shop. mcal. lopez shop. villamorra

super real

DHOMË

Cruz del Defensor

avda.rca. argentina avda. san Martin

hosp. bautista colegio campoalto la cuadrita

dr.guidoboggiani avda.mcal.lopez

est. de servicio

super 6

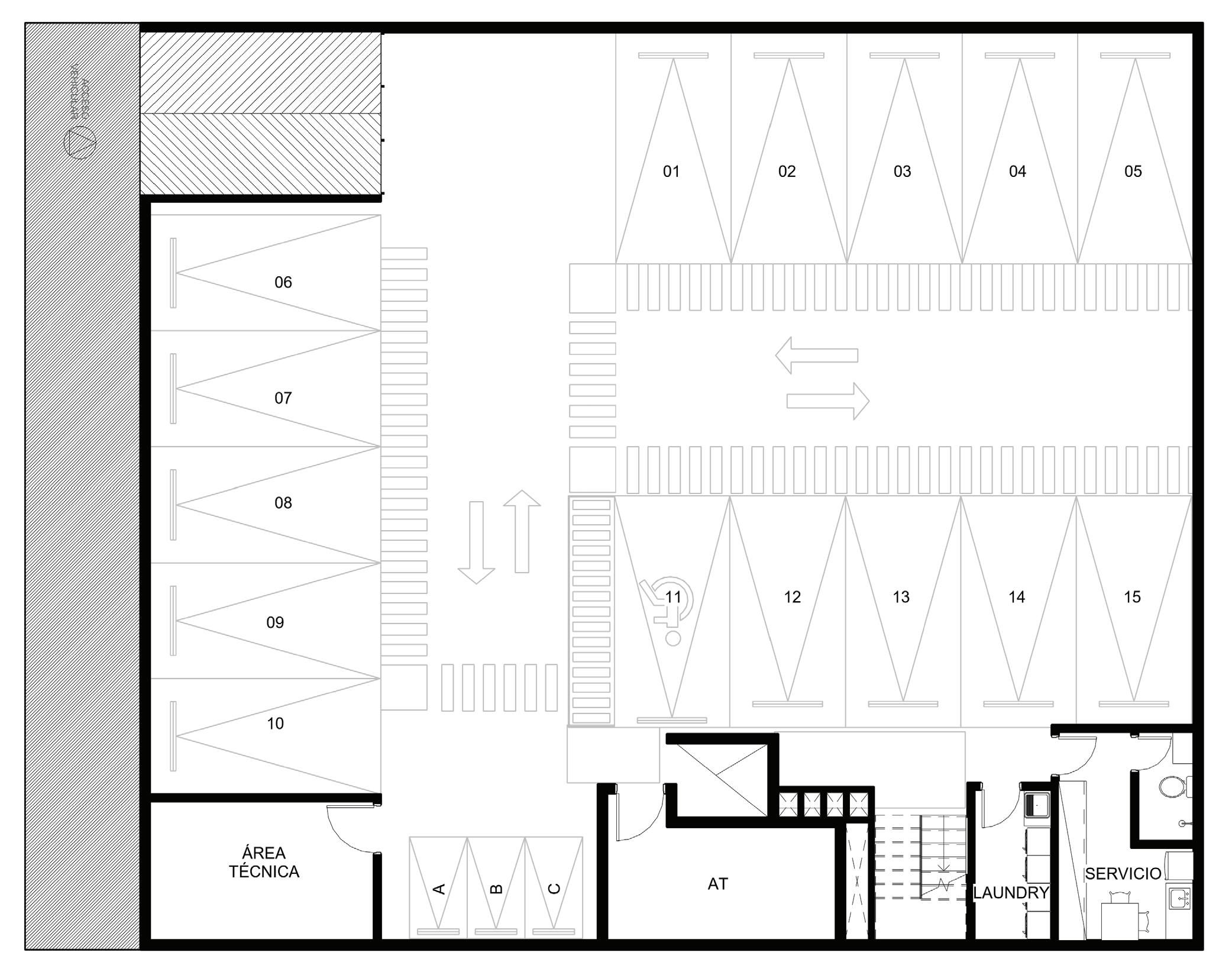
15

unidades de estacionamiento

- Palier de Ascensores

- Laundry

- Áreas Técnicas

CRUZ DEL DEFENSOR

SEMI -SUBSUELO
PLANTA

PLANTA BAJA

13

unidades de estacionamiento

- Lobby

- Lounge

- Área de servicio

- Áreas Técnicas necesarias

CRUZ DEL DEFENSOR

25 unidades de departamentos

- 2 dormitorios 67m²

- 1 dormitorio de 38m²

CRUZ DEL DEFENSOR

5 niveles
PLANTA TIPO

PLANTA AZOTEA

+3 unidades de departamentos

- 1 dormitorios 38m²

- Monoambiente de 33m²

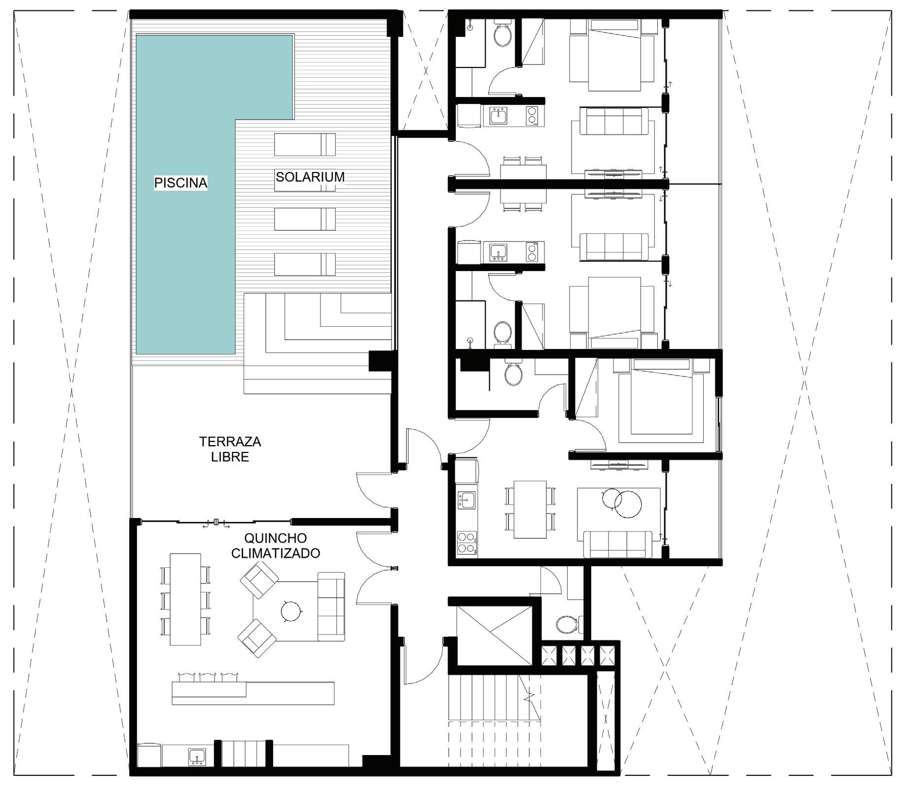
AMENITIES

CRUZ DEL DEFENSOR

- Piscina

- Solarium - Quincho

- Coworking

- Laundry

PLANTA TIPO

BALCÓN

ESTAR / COMEDOR

TIPOLOGÍAS
38 M² 1
DORMITORIO
COCINA BAÑO DORMITORIO

PLANTA TIPO

BALCÓN

DORM. EN SUITE

DORM. SECUNDARIO

ESTAR / COMEDOR

COCINA

BAÑO SUITE

BAÑO FAMILIAR

67 M²

Monoambiente

MONOAMBIENTE

BAÑO

TIPOLOGÍAS
BALCÓN
33 M²
PLANTA AZOTEA

Donde la conveniencia se convierte en tu nuevo vecino

plan de negocios

RENDIMIENTO

MONTO DE INVERSION 1.600.000 DOLARES AMERICANOS jun-24 ago-24 sept-24 oct-24 nov-24 dic-24 ene-25 feb-25 mar-25 abr-25 may-25 un-25 jul-25 ago-25 sept-25 oct-25 TOTALES CAPITAL 320 000 85 000 85 000 85 000 85 000 85 000 85 000 85 000 85 000 85 000 85 000 85 000 85 000 85 000 85 000 90 000 1 600 000 CAPITAL INTERES 64 000 17 000 17 000 17 000 17 000 17 000 17 000 17 000 17 000 17 000 17 000 17 000 17 000 17 000 17 000 18 000 320 000 INTERES % UTILIDAD 20% 20% 20% 20% 20% 20% 20% 20% 20% 20% 20% 20% 20% 20% 20% 20% TOTAL MENSUAL ANUAL INT. MENSUAL 1,00% 1,05% 1,11% 1,18% 1,25% 1,33% 1,43% 1 54% 1,67% 1,82% 2,00% 2,22% 2,50% 2,86% 3,33% 4,00% 30,29% 1,51% 18 17% 36 35% ANTICIPO 300 000 D OLARES 15 CUOTAS MENSUALES 80 000 D OLARES ENTREGA D E ANT CIPO jun-24 COMPRA D E PROPIED AD jun-24 INGRESO D E PLANOS D EMOLICION jun-24 INGRESO D E PLANOS MUN CIPALES jun-24 INGRESO D OCUMENTOS MAD ES jul-24 INICIO D E OBRA ago-24 DEVOLUCION DE CAPITAL A LOS 20 MESES CR ONOGR AMA DE ACCIONES

RENTA

TIPO m2 VALOR x m2 PRECIO FINAL 45 D OLARES AD MI NI STRACI ON 1 D ORM 38 1 500 57 000 45 D OLARES EXPENSAS COCHERA 16 000 25 D OLARES I VA ALQUI LER TOTAL INVERSION 73.000 115 TOTA L MENSUA L VALOR D E ALQUI LER MENSUAL 600 1.380 VA LOR A NUA L VALOR D E ALQUI LER ANUAL 7 200 5 820 TOTAL INGRESO ANUAL LIBRE RENTA BRUTA 9,86% 8,0% RENTABILIDAD ALQ. TRADICIONAL OPCION ALQUILER TRADICIONAL ESTIMACIONES DE RENDIMIENTO TRADICIONAL RENTA NETA VALORES DE GASTOS MENSUALES ALQ. TRADICIONAL 60 DOLARES VALOR DIARIO 216 D OLARES AD MI NI STRACI ON 20 D AS DE OCUPACION 45 D OLARES EXPENSAS 1 200 TOTAL MENSUAL 55 D OLARES I VA ALQUI LER 316 GASTO S MENSUALES 316 TOTA L MENSUA L 884 sa d o men su a 12 meses 10 608 TOTAL ANUAL 11,81% RENTABIL DAD ANUAL RENDIMIENTO ARNB - OBRA TERMINADA VALORES DE GASTOS MENSUALES ARNB ESTIMACIONES DE RENTA SOBRE OBRA TERMINDA RENTA NETA TIPO m2 VALOR x m2 PRECIO FINAL 45 D OLARES AD MI NI STRACI ON 1 D ORM 38 1 890 71 820 45 D OLARES EXPENSAS COCHERA 18. 000 25 D OLARES I VA ALQUI LER TOTAL INVERSION 89.820 115 TOTA L MENSUA L VALOR D E ALQUI LER MENSUAL 600 1.380 VA LOR A NUA L VALOR D E ALQUI LER ANUAL 7 200 5 820 TOTAL INGRESO ANUAL LIBRE RENTA BRUTA 8,02% 6,5% RENTABILIDAD ALQ. TRADICIONAL ESTIMACIONES DE RENDIMIENTO TRADICIONAL RENTABILIDAD NETA VALOR DE VENTA FINAL - OBRA TERMINADA RENTA SOBRE VALOR DE VENTA FINAL - OBRA TERMINADA valor entrada % rentabilidad monto en U$ valor de salida 5% com. inmo venta final 1500 20% 300 1800 90 1890
ITEM RUBRO IM PORT E DE PRESUPUEST O IM PORT E M ES 1 M ES 2 M ES 3 M ES 4 M ES 5 M ES 6 M ES 7 M ES 8 M ES 9 M ES 10 M ES 11 M ES 12 M ES 13 M ES 14 M ES 15 1 OBRAS PREVIAS 138 513 500 40 000 100% 100,0% 2 EXCAVACIÓN y MOVIMIENTOS DE TIERRA (Incluye re�ro de �erra) 76 536 340 9 600 100% 50 0% 50,0% 3 ESTRUCTURA 3.617.988.806 505.600 100% 10,0% 15,0% 25,0% 25 0% 15 0% 10 0% 4 MAMPOSTERIA 552.627.563 111.200 100% 5 0% 10,0% 20 0% 30 0% 20 0% 10,0% 5,0% 5 REVOQUES 452 233 305 84 800 100% 5,0% 10 0% 20,0% 30,0% 20,0% 10,0% 5,0% 6 CONTRAPISOS, CARPETA Y BANQUINAS 166 018 575 24 800 100% 1 0% 5,0% 10 0% 15 0% 19 0% 19,0% 15,0% 10 0% 5,0% 1% 7 AISLACIONES 238 397 018 31 200 100% 1,0% 5,0% 10,0% 15 0% 19,0% 19,0% 15,0% 10 0% 5,0% 1% 8 REVESTIMIENTOS 131.787.405 15.200 100% 5,0% 10 0% 20,0% 30,0% 20,0% 10,0% 5,0% 9 CIELORRASOS 114.071.480 20 800 100% 1% 5,0% 10,0% 15,0% 19,0% 19,0% 15,0% 10,0% 5 0% 1% 10 PISOS 304 730 411 44 000 100% 1% 5 0% 10,0% 15,0% 19,0% 19,0% 15 0% 10,0% 5 0% 1% 11 ZOCALOS 67 968 450 10 400 100% 1% 5 0% 10,0% 15,0% 19,0% 19,0% 15 0% 10,0% 5 0% 1% 12 PINTURA 393.891.883 67.200 100% 1% 5,0% 10,0% 15,0% 19,0% 19,0% 15,0% 10,0% 5 0% 1% 13 MARMOLERIAS 103 245 002 19 200 100% 20% 30% 30% 20% 14 CARPINTERIAS 721 146 938 151 200 100% 1% 5,0% 10,0% 15,0% 19,0% 19,0% 15,0% 10,0% 5 0% 1% 15 METALURGICA 269 554 594 36 000 100% 20% 30% 30% 20% 16 ARTEFACTOS SANITARIOS 140.029.125 21.600 100% 20% 30% 30% 20% 17 GRIFERIAS Y ACCESORIOS 128 162 500 20 800 100% 20% 30% 30% 20% Pisc na 800 100% 30,0% 30,0% 20% 20% 18 INSTALACION ELECTRICA 950 000 000 152.000 100% 1,0% 2,5% 4,0% 8,0% 12,0% 15,0% 15,0% 15,0% 12 0% 8 0% 4% 3% 1% 19 CLIMATIZACION - INSTALACION Y MONTAJE DE EQUIPOS INCLUYE PROV S ON DE EQUIPOS DE AA 255 375 701 42 400 100% 1,0% 2,5% 4,0% 8,0% 12,0% 15,0% 15,0% 15,0% 12 0% 8 0% 4% 3% 1% 20 INSTALACIONES SANITARIAS 487.945.946 77.600 100% 1,0% 2,5% 4,0% 8,0% 12,0% 15,0% 15,0% 15,0% 12 0% 8 0% 4% 3% 1% 21 INSTALACIONES DE SEGURIDAD (PC ) 284.656.957 29.600 100% 1,0% 2,5% 4,0% 8,0% 12,0% 15,0% 15,0% 15,0% 12 0% 8 0% 4% 3% 1% Mobil ar o 21 600 100% 20% 30% 30% 20% 22 VARIOS 586 923 800 62 400 100% 4,0% 8,0% 8,0% 8,0% 8,0% 8,0% 8,0% 8,0% 8,0% 8 0% 8,0% 8,0% 8,0%
PLAZO DE OBRA : 15 MESES
1.600.000
CRONOGRAMA FISICO CRONOGRAMA FISICO FINANCIERO
PLAZO DE OBRA : 15 MESES ITEM RUBRO IM PORT E DE PRESUPUEST O IM PORT E 1 OBRAS PREVIAS 138.513 500 40.000 2 EXCAVACIÓN y MOV MIENTOS DE T ERRA (Inc uye re�ro de �erra) 76 536 340 9 600 3 ESTRUCTURA 3 617 988 806 505 600 4 MAMPOSTERIA 552 627 563 111 200 5 REVOQUES 452 233 305 84 800 6 CONTRAPISOS, CARPETA Y BANQUINAS 166 018 575 24 800 7 AISLAC ONES 238 397 018 31 200 8 REVESTIMIENTOS 131 787 405 15 200 9 CIELORRASOS 114 071 480 20 800 10 PISOS 304.730 411 44.000 11 ZOCALOS 67 968 450 10 400 12 PINTURA 393 891 883 67 200 13 MARMOLERIAS 103 245 002 19 200 14 CARP NTER AS 721 146 938 151 200 15 METALURG CA 269.554 594 36.000 16 ARTEFACTOS SAN TARIOS 140 029 125 21 600 17 GR FERIAS Y ACCESORIOS 128 162 500 20 800 Piscina 800 18 INSTALACION ELECTRICA 950 000 000 152 000 19 CLIMAT ZAC ON - INSTALACION Y MONTAJE DE EQU POS INCLUYE PROVISION DE EQU POS DE AA ANTICIPO 0 ANTICIPO 20% MES 1 MES 2 MES 3 MES 4 MES 5 320 000 40 000 - - -4 800 4 800 - -- - 50 560 75 840 126 400 126 400 - - - 5 560 11 120 22 240 - - - - - 4 240 - - - 248 1 240 2 480 - - - - 312 1 560 - - - - -- - - - - 208 - - - - -- - - - -- - - - - 672 - - - - -- - - - - 1 512 - - - - -- - - - -- - - - -- - - - -- - - 1 520 3 800 6 080 - - - 424 1 060 1 696 - - - 776 1.940 3.104 - - - 296 740 1 184 - - - - -- - - 2 496 4 992 4 992 DESEMBOLSOS MENSUALES 44.800 55.360 87.160 151.604 176.368 ACUMULATIVO 44.800 100.160 187.320 338.924 515.292 20% 320.000 SALDO A PAGAR DURANTE OBRA CUOTERO MENSUAL 85.000 85.000 85.000 85.000 85.000 1 280 000 138 513 40 000 y (Inc uye re ro erra) 76 536 340 505 600 4 REVOQUES 452.233 305 84.800 166 018 575 7 31 200 CIELORRASOS 114.071 480 20.800 304 730 67 968 450 67 200 CARP NTER AS 721.146 938 151.200 17 INSTALACION ELECTRICA 950.000 000 152.000 CLIMAT ZAC ON INSTALACION Y MONTAJE DE EQU POS INCLUYE PROVISION DE EQU POS DE ANTICIPO 0 4 800 4 800 -4.240 248 1 240 2 480 1.512 1 520 3.800 6.080 1.060 1.696 1 - - - - -DESEMBOLSOS ACUMULATIVO 20% 320.000 CUOTERO MENSUAL 85.000 85.000 85.000 85.000 85.000 1.280.000 CRONOGRAMA FINANCIERO 20 INSTALACIONES SANITAR AS 487 945 946 77.600 INSTALACIONES DE SEGURIDAD (PCI) 284 656 957 29 600 Mob l ario 21 600 VAR OS 586 923 800 62 400 1.600.000 CRONOGRAMA FISICO FINANCIERO
MES 6 MES 7 MES 8 MES 9 MES 10 MES 11 MES 12 MES 13 MES 14 MES 15 VERIFIC 1.600.000 - - - - - - - - - - 40 000 40 000 - - - - - - - - - - 9 600 9 600 75 840 50 560 - - - - - - - - 505 600 505 600 33 360 22 240 11 120 5 560 - - - - - - 111 200 111 200 8 480 16 960 25 440 16 960 8 480 4 240 - - - - 84 800 84 800 3 720 4 712 4 712 3 720 2 480 1 240 248 - - - 24 800 24 800 3 120 4 680 5 928 5 928 4 680 3 120 1 560 312 - - 31 200 31 200 760 1 520 3 040 4 560 3 040 1 520 760 - - - 15 200 15 200 1 040 2 080 3 120 3 952 3 952 3 120 2 080 1 040 208 - 20 800 20 800 440 2.200 4.400 6 600 8 360 8.360 6.600 4.400 2.200 440 44 000 44 000 104 520 1 040 1 560 1 976 1 976 1 560 1 040 520 104 10 400 10 400 3 360 6 720 10 080 12 768 12 768 10 080 6 720 3 360 672 - 67 200 67 200 - - - - - 3 840 5 760 5 760 3 840 - 19 200 19 200 7 560 15 120 22 680 28 728 28 728 22 680 15 120 7 560 1 512 - 151 200 151 200 - - - - - 7.200 10.800 10.800 7.200 - 36 000 36 000 - - - - - 4 320 6 480 6 480 4 320 - 21 600 21 600 - - - - - 4 160 6 240 6 240 4 160 - 20 800 20 800 - 240 240 - - - - 160 160 - 800 800 12 160 18 240 22 800 22 800 22 800 18 240 12 160 6 080 3 800 1 520 152 000 152 000 3 392 5 088 6 360 6 360 6 360 5 088 3 392 1 696 1 060 424 42 400 42 400 6.208 9.312 11.640 11 640 11 640 9.312 6.208 3.104 1.940 776 77.600 77.600 2.368 3.552 4.440 4 440 4 440 3.552 2.368 1.184 740 296 29 600 29 600 - - - - - 4 320 6 480 6 480 4 320 - 21 600 21 600 4 992 4 992 4 992 4 992 4 992 4 992 4 992 4 992 4 992 4 992 62 400 62 400 166.904 168.736 142.032 140.568 124.696 121.360 99.528 70.688 41.644 8.552 682.196 850.932 992.964 1.133.532 1.258.228 1.379.588 1.479.116 1.549.804 1.591.448 1.600.000 85.000 85.000 85.000 85.000 85.000 85.000 85.000 85.000 85.000 90.000 1.280.000 PAGO DE CUOT AS 320.000 ANT ICIPO 1.600.000 T OT AL GENERAL DE PAGOS CRONOGRAMA FINANCIERO MES 6 - - - - - - -8.480 16.960 25.440 4.240 84.800 84.800 3 720 4 712 4 712 3 720 2 480 1 240 248 31 200 31 200 1.040 2.080 3.120 3 952 3 952 3.120 2.080 1.040 208 20.800 20.800 2 200 4 400 8 360 6 600 4 400 2 200 1 1 1 1 1 1 67 200 67 200 7.560 15.120 22.680 28 728 28 728 22.680 15.120 7.560 1.512 151.200 151.200 4 4 - - - - - - 20 800 20 800 12.160 18.240 22.800 22 800 22 800 18.240 12.160 6.080 3.800 1.520 152.000 152.000 3.392 5.088 6.360 6 360 6 360 5.088 3.392 1.696 1.060 400 400 77 600 77 600 2 368 3 552 4 440 3 552 2 368 1 184 - - - - - 320 6 480 6 480 320 - 21 600 21 600 85.000 85.000 85.000 85.000 85.000 85.000 85.000 85.000 85.000 90.000 1.280.000 PAGO DE CUOT 320.000 ANT ICIPO 1.600.000 OT GENERAL PAGOS
FINANCIERO
CRONOGRAMA
DHOMË Cruz del Defensor +595 994 911000 +595 994 229999
www.buildinginnovations.com.py @buildinginnovations

Turn static files into dynamic content formats.

Create a flipbook
Issuu converts static files into: digital portfolios, online yearbooks, online catalogs, digital photo albums and more. Sign up and create your flipbook.