
Eric Tran
![]()

Eric Tran
Phone number:
Email:
Linkdlin: (226) 637-1299 eric.tran5005@gmail.com
https://www.linkedin.com/in/hien-eric-tran/
About Technical Skills
I am a Registered Building Technologist with AATO - Graduated Advanced Diploma in Architecture Technology from Fanshawe College and LEED General Associate with expertise in innovative and sustainable design practices that enhance the built environment and improve quality of life.
AutoCad
Sketchup
Revit
2024
Junior Structural Technologist
Objective Enginnering Inc.
Provided technical support to architects on existing buildings by reviewing plans for code compliance and providing recommendations for improvements.
2022-2023
Engineering Technician
Rowan Williams Davies & Irwin Inc.
Created graphics and layouts with maximum visual appeal and followed marketing requirements using a high proficiency and working knowledge in computer applications with experience in AutoCAD, Revit, SketchUp and Rhino programs.
2021
Drafting Technician
Ezequote Vietnam
Provides technical drawings and specification documents for the Conceptual Design Phase, Schematic Design Phase, and/or the Detailed Design Phase of a project
Advanced Architecture Technologist
Fanshawe College
Honors: Dean’s Honour Roll, Ontario Building Officials Association - Southwestern Chapter AwarArchitectural Technology, International AwardWinter 2021, Class Representative.
2020
Drafting Technician
Ho Chi Minh City University of Technology Center of Computer Engineering
Honors: The top 2 out of 50 students in the Diploma of Drafting Technology program.
OBC Achievements
Certificate: WHISM, AATO – Registered Building Technician, Third Trophy for STEM Woman in U.S. Embassy.
Volunteer: Habitat for Humanity
Dear Hiring Team,

Eric Tran
I am a Registered Building Technician (AATO) and LEED general associate with a passion for architectural design and technology. With a strong foundation in creating detailed 3D and 2D models, I have developed my skills in diverse environments, including urban and construction site contexts. My expertise lies in leveraging tools like AutoCAD, Autodesk Revit, SketchUp, and Adobe Creative Suite to produce high-quality drawings and models that meet and exceed project expectations.
My experience spans supervising architectural technical staff, analyzing technical documents, and ensuring compliance with building codes and specifications. I take pride in my attention to detail, organizational skills, and ability to perform under pressure, which I have consistently demonstrated in design development, project coordination, and construction supervision.
As a collaborative professional, I am dedicated to finding innovative solutions that marry creativity with functionality. My work is driven by a commitment to enhancing spaces through thoughtful and sustainable design. I thrive in interdisciplinary teams and enjoy contributing to projects that inspire and positively impact communities.
Outside of work, I engage in volunteering with organizations like Habitat for Humanity Canada and Frog Leap, where I contribute to meaningful initiatives that align with my passion for building better environments for people.
Thanks,
Eric Tran
2020
Vietnam
Provides technical drawings and specification documents for the Conceptual Design Phase, Schematic Design Phase, and/or the Detailed Design Phase of a project
2021-2024
Fanshawe College
2017-2019
Architect School
Van Lang University
2022
Assistant Estimator
Bird Construction
Providing accurate estimating and subcontractor costing for significant projects ranging from budgeting and estimating to contract letting and planning, including stipulated sum/hard bid, Design Build, and Cost Plus

2022 - 2023
Rowan Williams Davies & Irwin Inc.
Created graphics and layouts with maximum visual appeal and followed marketing requirements using a high proficiency and working knowledge in computer applications with experience in AutoCAD, Revit, SketchUp and Rhino programs.
Objective Enginnering Inc.
Provided technical support to architects on existing buildings by reviewing plans for code compliance and providing recommendations for improvements. Conducted field measurements and prepared as-built drawings. Researched code requirements and assisted with the development of construction budgets and schedules. Experienced with Canadian/Ontario and other relevant codes and standards (OBC, AODA, NBC).

The renovation of the villa house in Vietnam harmonizes modern functionality with cultural and climatic adaptability. Vietnam’s tropical climate, characterized by high humidity, heavy rainfall, and intense sunlight, strongly influenced the design approach such as wide eaves and terracotta tiles, to provide shade and efficient rainwater runoff.
To address heat and maintain ventilation, the roof system features multi-layered insulation and continuous airflow channels, reducing heat buildup while ensuring a comfortable indoor environment. Skylights and strategically placed windows with operable louvers are incorporated to maximize natural light while allowing cross-ventilation, a traditional strategy for cooling.


The room’s color palette includes warm earth tones and soft neutrals, complemented by textiles in traditional patterns. Subtle decor, such as woven baskets and locally sourced artwork, completes the look, making the master bedroom a harmonious retreat that respects its Vietnamese heritage while providing modern comfort.









Innovation Townhouse Village in London, Ontario.
The layout of the community interaction while ensuring privacy for each residence. The three blocks are strategically positioned to create shared spaces that foster a sense of neighborhood while maintaining clear boundaries between public and private areas. These communal areas include landscaped courtyards and pathways that serve as extensions of the homes, offering opportunities for residents to connect and engage.
The site planning optimizes land use while preserving natural elements, seamlessly integrating the village into its surrounding environment. Each block has been designed to respond to its context, whether through maximizing sunlight exposure, capturing scenic views, or enhancing accessibility.


Key design elements include:
• Open-Concept Living Spaces
• Private Outdoor Areas
• Energy-Efficient Features

Key features:
• Rectilinear Volumes:
• Dynamic Facades: The exteriors incorporate a mix of materials such as wood, brick, and glass, creating visual interest through textural contrasts. Cantilevered elements and recessed balconies add depth and provide shaded areas to enhance energy efficiency.
• Angled Roofline
The shape of the townhouses is driven by modern architectural principles, with a clean and minimalist aesthetic that emphasizes geometric clarity. The twostory structures are designed to maximize space efficiency while maintaining a sleek, contemporary look.


The furniture arrangement is an integral part of the design, ensuring the interiors feel spacious and purposeful. Each room is designed with flexibility in mind, allowing homeowners to adapt furniture placement to their needs.
One of the key challenges in the Innovation Townhouse Village was designing functional and aesthetic sloped roofs. To maximize interior space, vaulted ceilings and dormer windows were introduced, creating open, airy rooms with ample natural light. The roof system features multi-layered insulation and continuous ventilation channels, ensuring energy efficiency and preventing moisture buildup. A concealed gutter system and carefully calibrated roof pitch manage rainwater effectively while maintaining the sleek architectural profile. Durable metal panels and green roof sections were selected for sustainability and longevity, blending practicality with a modern design ethos.



The rainwater management system is seamlessly integrated into the roof structure, with concealed gutters and downspouts directing water efficiently to an underground drainage network. Ventilation channels run continuously between the roof sheathing and insulation, promoting airflow to extend the roof's lifespan and prevent moisture buildup.










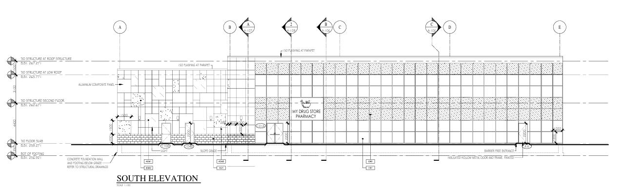
The renovation of the retail warehouse integrates a new addition with the existing structure, creating a cohesive and functional space. A key challenge in this project was managing the roof drop-out connection between the old and new sections.




For the renovation, geographic research was essential to address wind loads and solar exposure due to the building’s extensive glass facades surrounding the vertical greenhouse and market. The design accounts for local wind patterns by reinforcing the structure with a robust frame and aerodynamic features to reduce wind pressure on the glass surfaces.
the design thoughtfully combines the traditional brick structure of the old building with modern, glass-enclosed elements to create a harmonious blend of old and new.


Key design elements include:
• Material Fusion:
• Sustainable Design Elements
• Mixed-Use Functionality






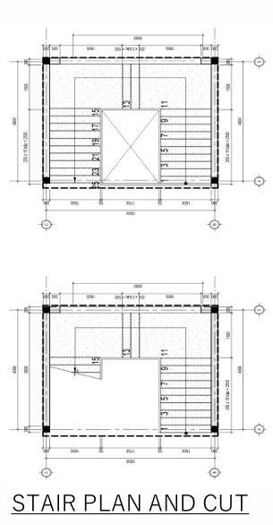
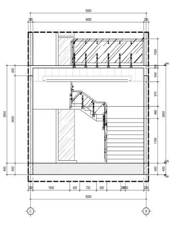
The exit stair and elevation design of the renovated Eden Green Garden focuses on both functionality and aesthetic integration with the surrounding architecture. The exit stair, located near the main entrance, is designed to meet modern safety standards while maintaining visual openness. The stairwell features open risers and a minimalist railing system, made of steel with clear glass panels, ensuring unobstructed views and maintaining the transparency of the glass-enclosed market and greenhouse. The layout of the stair ensures a smooth flow of people during busy market hours, while its central location offers convenient access to both the upper levels of the mixed-use building and the rooftop garden.

One of the key design challenges was addressing the lighting plan for the market, which is surrounded by glass on all sides. The abundance of natural light can be a blessing, but it also presents the risk of glare and temperature fluctuations, particularly during peak sunlight hours. To resolve this, the design incorporates adjustable shading systems and solar control glass to regulate the amount of light entering the space. This helps create a comfortable, glare-free environment for shoppers and vendors, while still benefiting from the natural daylight.










Concept focuses on optimizing sun exposure to the interior of the site, while maintaining a lively presence along Dundas. The site benefits from a municipal parking lot towards the south for commercial uses.




To maximize natural sunlight for both commercial and residential areas, the building is strategically oriented with a ship boat shape, a design approach that allows for an optimal flow of daylight into all levels. The shape of the building ensures that the southern-facing facades, which receive the most sunlight throughout the day, are maximized for large windows and open spaces, while minimizing shadows cast on adjacent properties.
Embark on a journey of architectural innovation with our groundbreaking design for a 7-story mixuse building, uniquely shaped like a majestic boat. This visionary structure seamlessly merges form and function, offering a distinctive silhouette that captures attention and sets the building apart in the urban landscape. The boat-inspired design not only pays homage to maritime heritage but also symbolizes progress and forward-thinking.


The wind direction was a key consideration in the design. The building’s slanted roof and strategic positioning allow for the natural flow of prevailing winds, facilitating passive cooling and improving air circulation. By aligning the commercial floors with the wind direction, the design ensures that natural ventilation reduces the need for mechanical cooling, creating a more energy-efficient building.





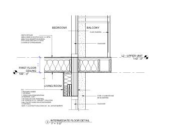
One of the most challenging aspects of the 7-story mixed-use building design was addressing the thermal break in the balconies and the structural integration of the full glass handrails along the building's perimeter. Balconies, which extend outward from the main structure, present a unique problem in terms of thermal bridging, as they can conduct heat from the interior to the exterior, leading to energy inefficiency and potential discomfort for residents.














Handrawings & Freelance



To respect company’s policy, the file have been blurred


To respect company’s policy, the file have been blurred





