Architetctural Portfolio


Emily McCranie
Architectural
Designer, Jacksonville, FL

Summary:



With a recent Master’s degree from the University of Arizona, I bring five years of extensive experience in the design industry, encompassing both building design and production. I hold a Bachelor of Design degree from the University of Florida, with a specialization in Architecture and a minor in Sustainability.
Personal Skills:
As a people-oriented team player, I thrive in collaborative environments, fostering strong relationships and a positive atmosphere. My high energy and outgoing personality make it easy for me to engage with colleagues and contribute to a dynamic workplace. Being a multitasker and thorough in my work, I ensure that all tasks are completed efficiently and accurately, without compromising quality. My attentiveness to detail helps prevent errors and enhances the overall output of the team. With strong problem-solving abilities and adaptability, I can navigate challenges effectively and provide innovative solutions. Additionally, my quick learning ability allows me to grasp new concepts rapidly, ensuring that I stay up-to-date with evolving workplace demands. Above all, my commitment to excellence ensures that I am dedicated to achieving the best outcomes for my team and organization.
Technical Skills:








Education:
Arizona State University
Master of Architecture - MArch, Architecture · (August 2022 - May 2024)
University of Florida
Bachlors of Design , Architecture · (2013 - 2018)
Experience:
Group 4 Design
Project Coordinator
August 2018 - June 2023
Jacksonville, Florida
Honors & Awards:
Phi Theta Kappa Honors Society
University of Florida, Cum Laude
Symbiotic Deisgn: Multimedia-Hub
Urban Integration: Microhousing


Educational Center: Agri-school
Adaptive Reuse: Marketplace


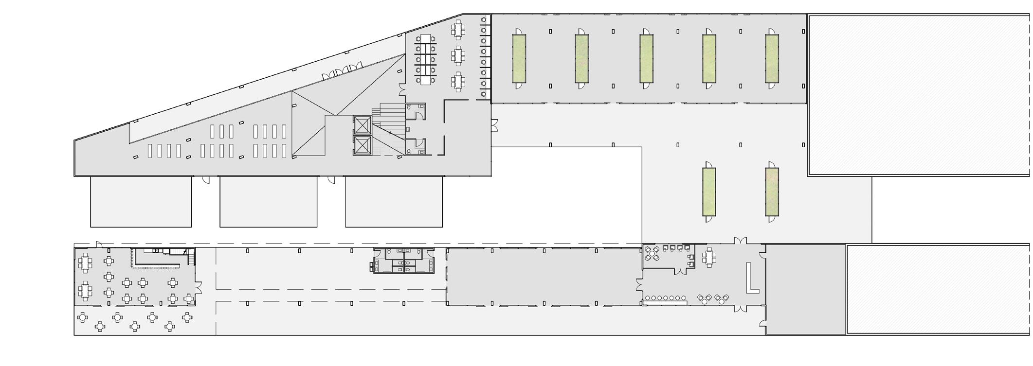
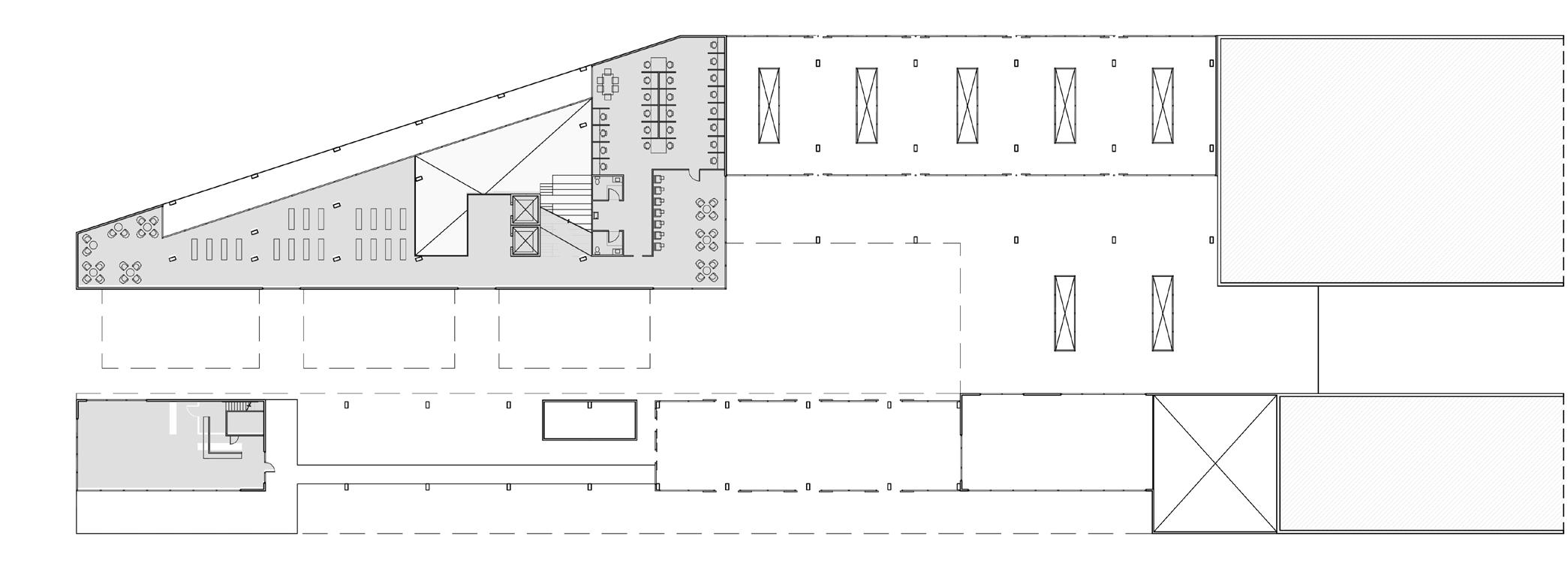
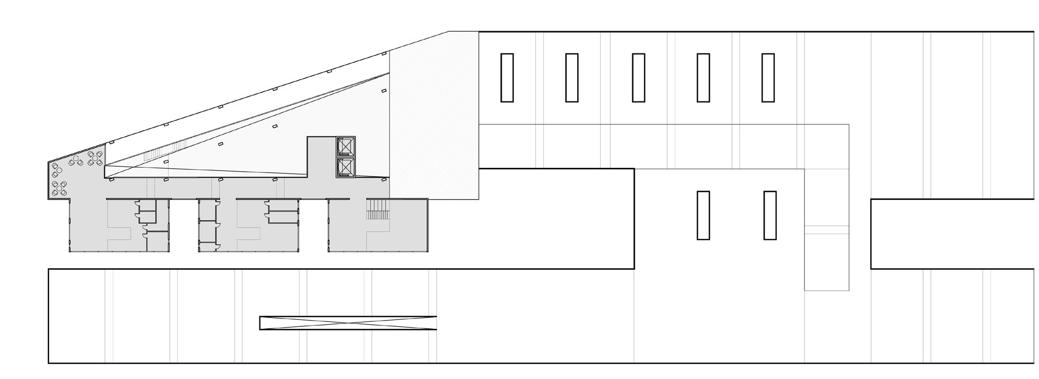
Kinetic Market
Advanced Architecture Studio 1 | Arizona State University




Chicago’s population boom challenged the city to produce enough agriculture and livestock to feed its residents, leading to its establishment as a key meat-packaging district in the US. The Freight House, now vacant, once served as a vital hub for importing food and goods into Chicago. The program of the Market was assigned with the intent of paying homage to the existing freight house and continuing its legacy to provide essential provisions to the city and its inhabitants. My vision for the Adaptive Reuse Market preserves the historic brick and window layout while creating a kinetic, foldable, and seasonally adaptive facade and roof that envelops the warehouse structure, establishing a rhythmic sequence of entry throughout the market.



Today, the United States is a major contributor to food waste, discarding one-third of its food annually. The Market aims to combat this by promoting education and minimizing waste. It includes indoor and outdoor community gardens to unite neighbors, including lower-income families, interested in growing their own food. Additionally, it provides a space for local urban farms to interact with the community.




The facade’s origami-like structure draws inspiration from delicate natural forms such as wing structures, grass blades, plant cells, and leaf veins. This adaptive design allows the facade to fold back during the peak of summer, promoting natural ventilation as shown above, and gradually unfold to block wind and cold air as winter approaches.
Due to its local enviornment, the Market site grapples with a history of flooding and drought, presenting the challenge of harmonizing with the environment while meeting community needs. Its innovative roof design includes pitches that enable rainwater harvesting for agricultural use in the gardens and provide potable water for use in its facilities. Beyond its practical purposes, the Market also functions as an educational hub where residents learn about the importance of water resources, highlighted through architectural features celebrating water, and actively participate in community enrichment efforts.




























The El Segundo Barrio area of El Paso has historically been a poorer neighborhood, with only 3.5% of adults having graduated college, a rate lower than many other American cities. This underscores a critical need for higher education and an opportunity to inspire young students in the area to pursue advanced learning. In response, I believe the ideal solution for my site in El Segundo Barrio is a vocational school that provides students with this opportunity.
Research highlighted the neighborhood’s primary occupation is farming, influencing my decision to propose an Agricultural Institute. This institute would focus on supporting research and education for agricultural producers, along with studies in agribusiness and nutrition. This initiative aims to address local needs and foster educational and economic growth within the community.








The building strategy leverages architectural design to balance shading, sunlight exposure, and aesthetic engagement with the surrounding landscape, optimizing views, natural light, and wind flow to create an environmentally harmonious and comfortable learning environment. The building is arranged in a segmented pattern, with gaps between segments creating shaded outdoor spaces for learning, separated by lecture halls. The orientation of the building series minimizes solar heat gain, featuring overhangs above windows on the south, east, and west facades. The greenhouses extend panoramically from the north face of the building, allowing plants to receive sunlight throughout the day.
The design incorporates passive cooling strategies by utilizing thermal mass with reclaimed brick as the structural exterior of lecture halls, along with green roofs and a cooling courtyard at second level above the cafe. Elevated operable windows are featured in both agricultural greenhouses and lecture halls to enhance ventilation. To mitigate the impact of frequent dust storms, these windows are strategically placed above the second level. The building’s orientation encourages wind movement throughout the interior and exterior halls, while the design creates shaded indoor and outdoor recreation spaces between buildings.






Rumi Arts & Microhouse
Advanced Architecture Studio 3 | Arizona State University






Chicago has experienced significant climate impacts, including extreme fluctuations in Lake Michigan and the Chicago River due to intense rainfalls, leading to increased local flood risks, such as the major flooding along the river in 2020. To mitigate these risks, the microhousing apartments feature an elevated colonnade-style first floor, protecting residents from potential flooding.
For year-round accessibility, interior elevators extend only to the second floor, with ramps connecting the first and second floors directly to the city’s pedway system. This design not only ensures accessibility but also creates open public space on the first floor, maintaining pedestrian access from Lower Wacker Drive to the riverfront.



Chicago’s urban grid offers a unique opportunity for growth along the riverfront, fostering artistic gatherings and local community events. The project aims to integrate microhousing, shesheds, and art studios into a central urbanized building framework along the riverwalk. Rumi Arts & Microhouse is designed to seamlessly blend living spaces with workspaces, galleries, and community engagement areas, facilitating a vibrant hub where resident artists and local neighbors can interact and express themselves.
This project also serves as a public platform for artistic expression with a political undertone. The design of the facade pays homage to the Potawatomi Indians, who originally inhabited and traversed this land before being displaced by settlers. Inspired by Potawatomi art, the mesh facade covering the elevated promenade features vibrant hues—greens, reds, yellows, and oranges—drawn from traditional Potawatomi paintings. This artistic approach not only raises awareness of the city’s complex history but also honors the memory of the Potawatomi people.























