


EMILY POTENZA
portfolio
emilypotenza@gmail.com 1023 Old Huntingdon Pike, Huntingdon Valley, PA, 19006 215-941-9559
![]()



emilypotenza@gmail.com 1023 Old Huntingdon Pike, Huntingdon Valley, PA, 19006 215-941-9559
JEFFERSON UNIVERSITY
(Philadelphia University + Thomas Jefferson University), Philadelphia, PA
Bachelor of Architecture, Graduation: May 2021
GPA: 3.8 Dean’s List: Spring 2017 - Spring 2020
BEAM Lighting Design Feb 2021 - Pres.
Staff Lighting Designer
• Assist with lighting layouts, control zones, and presentations of designs.
• Review luminaire specifications and produce luminaire schedules and lighting manuals.
• Organize lighting rep visits and expand product library.
• Assist in marketing to support represenation of the firm and gaining future business.
Tevebaugh Architecture June - Oct 2021 Architectural Designer
• Develop construction drawings.
• Support project managers towards project goals.
• Set up drawings and organize Revit layouts.
Bill Curran Design
Intern Project Coordinator
Jun-Aug 2019 Jun-Aug 2020
• Complete drawings and problem solve for small design errors.
• Work in steel fabrication shop: polishing, waxing, cutting + drilling steel.
• Visit clients for information intake on projects.
• Correspond with vendors to purchase materials.
Iron Hill Brewery May 2019 – Dec 2021 Expeditor
• Organize all food before it leaves kitchen.
• Act as link between kitchen staff and FOH staff.
Head Hostess
• Coordinate seating for customers + reservations.
• Work closely with managers to problem solve.
PROGRAMS:
Microsoft Office
Photoshop
Illustrator
Indesign
Rhinoceros 5
AutoCAD
Revit
AGi32
Bluebeam Revu
ABILITIES:
Conceptualization
Hand Drafting Time Management
Organizational Skills Customer Service
• Events Coordinator for The American Institute of Architecture Students Jefferson - Chapter, 2018-present
• National Society of Leadership and Success, 2017-present
• Philadelphia University Orientation Leader, Summer 2018
• LEAD Program, Spring 2018
• Emerging Leaders Program, Spring 2017
• Jefferson C_ABE Glass Competition, 1st Place, Spring 2019
• Jefferson C_ABE 3rd Year Lighting Competition, 1st Place, Fall 2018
• Jefferson C_ABE Cabin Competition, Finalist, Fall 2017
• Jefferson Accepted Students Day Challenge, 2nd Place. Spring 2016

pg 05 - 12
A library that caters to the unqiue community of ranchers and artists who reside in Marfa, Texas.
An alternative incarceration center located in Center City Philadelphia
pg 13-18
An education center for children focused on teaching about water consveration. Located in Blue Bell Park, Philadelphia pg 19-24

A calming luminare with a single light source made with stuffing and fiberoptics.
An interactive glass screeing wall that attracts the community of East Falls 24 hours a day.
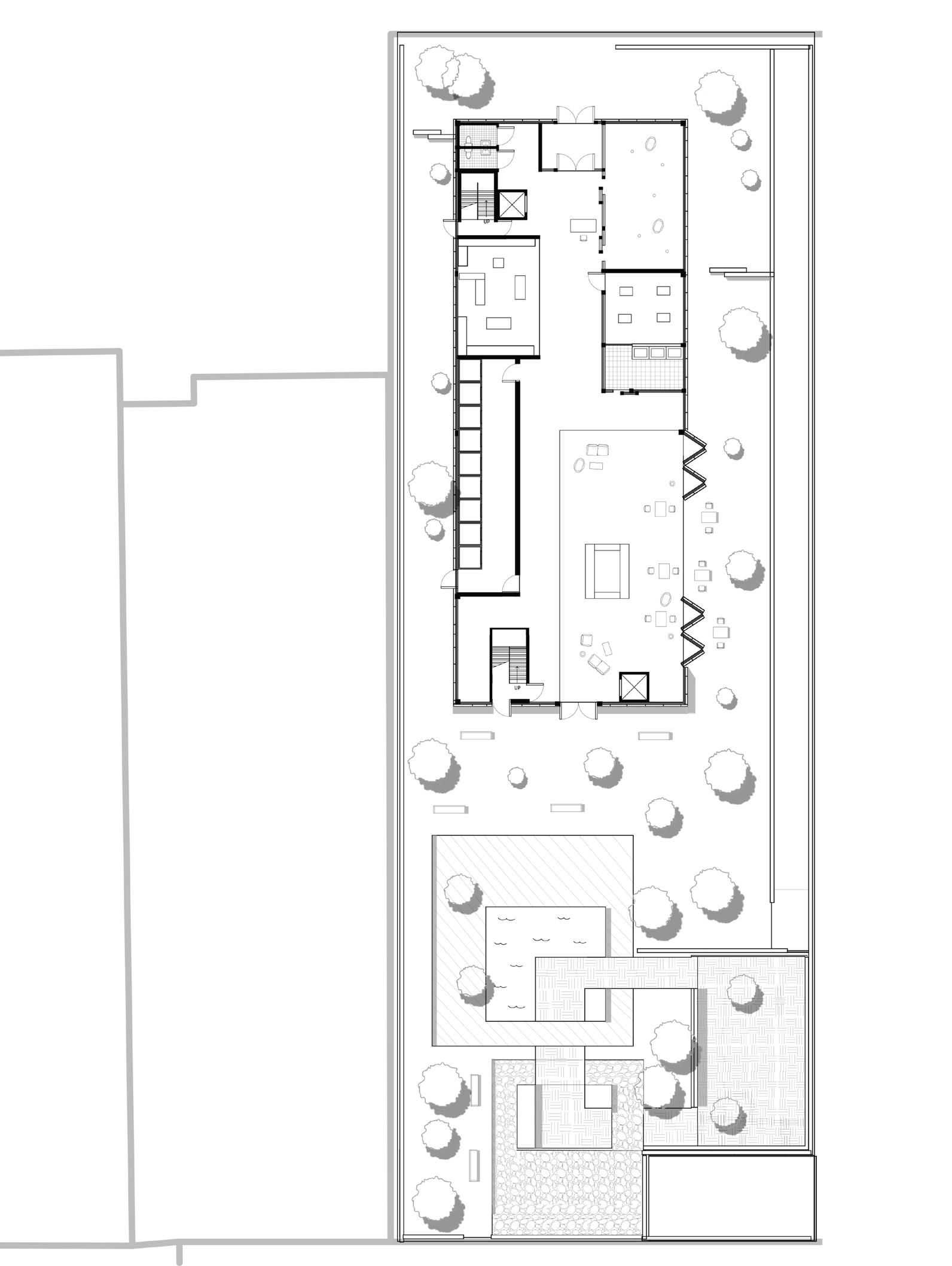
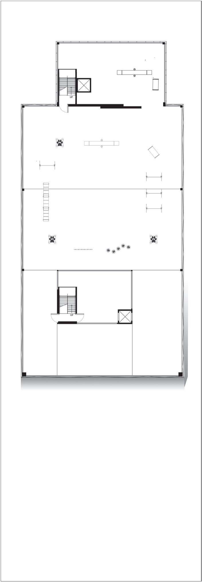
Linking Lives is an alternative incarceration center focused on the rehabilitation of those charged with repeat misdemeanor offenses. It is located in center city Philadelphia. The center takes in the countless dogs threatened by euthanasia in the Philadelphia area and has the charged persons train them to service the disabled or for basic obedience to then be adopted to the public.
The center includes residential space for the charged persons and their paired canine with services, such as kitchen and dining, a gym, a game room, counseling, a doctor’s office, and a veterinarian. Integration between the community, charged persons, and the dogs lies within a dog park, dog daycare, dog grooming, and training classes for basic obedience and agility.
The form comes from the verb and noun “link”, which lead to defined programmatic spaces which link and overlap with each other. This created a variety of indoor and outdoor spaces which could be defined as public or private. Through Linking Lives, charged persons learn valuable life lessons that help them to be reintegrated into society, while also improving the lives of sheltered dogs and the surrounding community of center city, Philadelphia.

This project was a month long process where the class spent initial time researching prisons and the system of incarceration within America. Individually, each student chose a means of rehabilitation for the users, Linking Lives being focused towards the action of training dogs. Discovery consisted of reaching out to dog trainers and those who were expert in working with charged persons and these dogs. Furthermore research extended to beyond this design class and to an ethics class where more detailed exploration on the prison system in America was consummated. The last couple of weeks consisted of fast paced form making and organization of program that seamlessly connected with supporting research, including a high level of detail within spaces and their use.

Fall 2018 Final Design Project




A different grain of mesh is on each link and is chosen based off of the privacy of the program inside.
Terraces allow for immediate outdoor space for dogs.
Light filters through each mesh at different levels depending on private vs public space.
Each terrace includes greenery and materials such as grass for dogs. They can also act as dog runs.
Exposed stairwell for faster access through floors.
Storage for training space to hold furniture and mock household objects. These are used to train the dogs on opening doors, turning on and off lights and bringing their owner something.
Dog run lowers in ground to avoid close contact with passing pedestrians.
Basement includes mechanical fixtures and extra storage

Indoor-outdoor space is provided by use of the mesh and glass walls for dogs in quarantine.
Flexible walls to create small to large training space.
Some outdoor spaces include a layer of mesh, protecting from natural elements.
Space where links intersect can serve as observational spaces for charged persons without being immersed.
Underground parking in available for employees and visitors.

RESIDENT LINKS
-DOUBLE ROOMS
-OUTSIDE TERRACING
-SECURITY AND CHECK IN LOCATED ON EACH FLOOR
BREAK SPACE LINKS
THESE SPACES ARE ISOLATED SPACES. THEY ARE AVAILABLE FOR BOTH PERSONS AND DOGS FOR WHEN THERE NEEDS TO BE A SEPERATION BETWEEN OTHERS.
SERVICE LINKS
-COUNCELING
-DOCTOR
-VETERINARIAN
-DOG QUARANTINE
-LIBRARY
-GYM
-KITCHEN/DINING
-OFFICES
-COMPUTER LAB
-AUDITORIUM
COMMUNITY LINKS
-PRIVATE TRAINING
-OFFICES
-PUBLIC TRAINING SPACE
-DOG RUN/DOG PARK
-GROOMING
-DAYCARE
-PET BOUTIQUE
-DIY DOG WASH
-LOBBY


1) Lobby 2) Showroom
3) Dog Boutique 4) Grooming
5) DIY Dog Washing
6) Daycare Kennel
7) Cafe
8) Dog Park
9) Dog Run
Dog run sloped down to avoid dogs from barking at pedestrians.
Ground changes levels and consists of different surface materials to adjust dogs to new textures.
Ground slopes down towards sidewalks to avoid dogs on same level as pedestrians.
Below ground parking entrance

All of the agility obstacles teach dogs and owners to have fun, while also teaching confidence.






- patience Weave poles - accuracy - patience A -frame - height - patience
Flexible space is designed so spaces can become smaller for private or smaller group lessons.

1) Library
2) Outdoor terrace
3) Dog break space
4) Occupant’s Break Space
5) Vet Clinic - Check in
6) Patient room
7) Vet’s Office
8) Quarantine
9) Running Space for quarantined dogs
10) Viewing space

Check up spaces for charged persons and their partned dog

Quarantine space is convenient for when dogs come from shelters with kennel cough. This also allows occupants to check in with their partnered dog.

Security located by entrances and exits to check people in and out.
Each room has a cage and bed for the dog. Double rooms are for those training to service the disabled.
Frosted glass is placed on bedrooms to allow the light that is coming in from the exterior mesh facade.
1/32 scaled Study Model - 3D printed
This form proved to create indoor/ outdoor spaces. Terraces were needed for the dogs, on all levels of the building. The form also created private spaces that were quick to access for both unstable dogs and humans.



There are only two moments where a piece of the link may differ in width or size. When this happens the mesh wraps to hide this difference creating a breezway.

This model experimented with lighting and tranpareny of the mesh facade. Each link has a different mesh pattern corresponding to the program it holds inside. Some links repeat, as long as they do not touch.



1/16 scaled Main Model
The shadows casted by the model further highlight the variety of transparencies that each of the links have.


This library is located in a unique town of Texas called Marfa. The town’s residents mainly consist of ranchers who created the foundations of the place, and artists who migrated there for the expansive environment. This library creates a space for both ranchers, artists, and other residents to come together and support their unique connection based off of this fascinating landscape that attracted them. The form reacts to this unique landscape and the grid that holds Marfa’s community.
This project was nearly a semester long and involved a group process with two fellow peers, Chase Halter and Olivia Birritteri. This time allowed for a greater attention to detail and technical aspects to be experimented with. Included are technical drawings of the gridded wood roof structure and model images, one being of a technical model representing our rammed earth wall, made of soil, sand and water. Multiple iterations of the mixture for the wall was completed to prove structural integrity.
2019 Final Group Design Project



RANCHERS PROVIDE RECORDS FROM THEIR LAND. THIS INCLUDES INFORMATION ON VEGETATION AND SOIL QUALITY OVER PERIODS OF TINE.

ARTISTS PROVIDE CULTURAL AND EXPERIENTIAL INFORMATION THROUGH THEIR ARTWORK.
LIBRARY SERVES AS A DATABASE THAT STORES THE INFORMATION PROVIDED BY THE COMMUNITY.
INFORMATION LEARNED FROM THE LIBRARY HELPS TO MAINTAIN THE MARFA’S PHILOSOPHY OF THE PRESERVATION OF THE LANDSCAPE.



WOOD GLULAM BEAM ROOF STRUCTURE
CONCRETE CAST
BOND BEAM
RAMMED EARTH WALLS 18” THICK
CHASE WALL 18” THICK
GLASS CURTAIN WALL
CONCRETE RETAINING WALL 2’ THICK
ZOOMED IN AXON OF INTERIOR STUDIO SPACE




VIEW TO AUDITORIUM VIEW


This Educational Environmental Center is meant to serve the Philadelphia Urban community by providing a learning experience and respite for anyone visiting Blue Bell Park. The learning experience is specifically focused on the subject of water conservation as the roof splits open, not just to allow daylight in but to also have moments of water collection waterfalls within. This water collection is continued to the exterior following circulation paths and signifying areas of respite with reflecting pools. The meandering, explorative circulation of a visitor walking through the park was the inspiration for the building’s massing as it takes multiple rectangular shapes, representing a straight path, and rotated, to represent the changing of direction. Furthermore, the building strives to have users filter between interior and exterior space in addition with roof overhangs and porch systems.
The project was first completed as a final project in a landscape studio, however, with support of the professor, Ivano D’Angella, the project’s development was continued into the summer. The form was updated with changes to the interior to improve the experience of the concept and more detailing was established. New methods of drawing and representation were practiced, combining hand drafting and computer programs, such as Photoshop. After reflecting on the project with this new development, the project was submitted by D’Angella to the Studio Prize Competition of 2018.


Spring 2018 Final + Submission to 2018 Studio Prize
SITE ANALYSIS
Cityscape-Known
Naturescape-Unknown
Accessibility
SITE PLAN

KEY-LOCATIONS
Pavilions-Project 1
Existing Pavilion
Class Playscape Trail
Playscapes-Project 2
Softball Field

Initial Experience + Circulation

Circulation turned to massing
Massing is cut where building turns


The roof is sloped to allow access for children + includes alternating heights.

The roof is then split and fragmented to let light + air into the interior.


Plantings are placed on a railing on the roof to help blend nature with manmade.
Nature + water is present inside the building when the roof splits open to let light + air in.
The Ampitheater seating creates a ledge along the pathways + waterways next to the entrance.
Outdoor walkways offer covered outdoor circulation.

Water is directed through channels on the roof flowing in the direction of the slope.

Shallow pools allow children to walk through water.
A trench is created next to building to create a pathway of water children can follow to the bottom of the slope .





SECTION PERSPECTIVE OF EXHIBIT
This project was created in an industrial design studio where various materials were experimented with in order to create a pendant luminaire. A multitude of materials were explored such as camera film, jewelry, and fall leaves. The chosen materials were stuffing with fiber optics and acrylic tubes running through the stuffing. These fiber optics and acrylic tubes allowed light to travel through and illuminate the stuffing. This is what created a night time effect with it seeming that the moon is hiding behind the clouds and stars peeking out. Only one bulb was to be used to illuminate the material and a spider ring was used to provide structure. A lot of the experimentation and alteration was done during construction, with the product eventually being further developed over the summer in result to a positive reaction from the class.






Poly-fil stuffing was used as the “cloud” material and was sewn to the metal spider ring that held the bulb in the center of it.
Fiber optics were first tied to the spider ring to aim them towards the light, then they were sewn to the stuffing themselves as tying them to the spider ring proved to not be stable enough. As more fiber optics were added, a spray adhesive was used to strengthen the hold between stuffing pieces and the fiber optics.


This version was updated with a better housing that could hold remote LEDs and held fiberoptics into tubes that led to the housing and LED diodes. A wire structure was designed to create a more circular and enclosed form of the cloud also providing a fast and inexpensive construction. This updated design allowed for more effects of color changing and dynamic LEDs, while also providing to be a permanent luminaire.
Multiple luminaires were made for purchase where part of the funds were donated to the Equal Justice Initiative, a nonprofit organization that provides legal representation of those who were unfairly sentenced, illegally convicted, and may have been abused within jail and prison.




Two Hundred years ago there was the sound of rushing waterfalls emanating from East Falls, Philadelphia. This created the neighborhood’s namesake and these beautiful elements were what made the members of the community so proud. However, in order to gain a proper supply of drinking water, a dam was built, which submerged the falls. According to the stories, the falls provided exciting and beautiful sights for the residents and visitors.
This proposal for a screening device, re-creates these sights and attractions with glass panels creating a falling water effect. To reference the strong engagement of the East Falls community, this wall is interactive. When viewers walk, drive, or ride by, they will notice the motion of falling water. At night the wall becomes even more engaging, by incorporating lights with sensors that respond to motion.

This was a 2 week process and included developers proposing the project to the architecture class. Multiple iterations and experimentation had to be completed to achieve the illusion of water falling among the glass panes. Then fast paced development of technicalities, successful drawings, and representation, with an interactive model, was developed before the final deadline.

BRINGING BACK THE FALLS
Spring 2019 ~ 1st Place in C_ABE Glass Competiton






An underwater effect shines on the ground in front of the wall, when lighting is placed behind the glass. In motion - this will activate the effect.e effect
Fiberoptics and twinkling LEDs are layered behind the glass panes where light travels through them in a waterfall motion.




Senors in the lights react when people move by the walls, alowing the reflection on the ground to ripple.
Light senors are placed in the fiber optics and LEDs in order to react to the speed and motion of people aand cars passing. This achieves a falling water motion that works with the glass illusion.


This walkway is hortizontal to the wall to allow viewers to see the waterfall efect of the glass in motion.
Dogwoods, River Birch, and Magnolia trees are all native to the Philadelphia region and bloom beautiful colors in the Spring.
Fiber optics are used behind the glass panes at night to emphasize the vertical motion of falling water. Twinkling halogen bulbs shine to the ground showcasing the pattern the glass makes when light shines from behind.
Two panes of glass with diagonal casting creates the falling motion of water.
The first layer of glass (water effect) is attached with small steel rods to the piece behind it. This allows the glass to stand freely with limited distraction to how it is connected.


A clear sealent is applied between the panels and their framing structure to attach them.
A rock face is attached to a steel rod. This stone texture breaks up the glass “waterfall” for aesthetic purposes.
This steel trellis allows crossvine to grow and hang. This plant is native to the NE area and was once used by native americans for medical purposes. It lasts all year turning a burgandy in the winter, and in the summer attracts humming birds and butterflies. Has low maintance and is not invasive.

Rocks are placed in front of the glass panels to block how the system is contructed. It also avoids damage from the ground level and they can provide seating.
The ground level of the dog park is lowered by 3’ and sloped. Lowering the ground blocks views of pedestrains for the dogs, therefore to avoid barking and unwanted interaction.




Emily Potenza is a Lighting Designer at BEAM ltd and a graduate of Jefferson University with her Bachelor of Architecture and Minor in Lighting Design. She originally entered Philadelphia University School of Design as an Interior Design major but has been drawn towards Architecture and was re-accepted into the five-year architecture program. Besides having a passion for designing spaces, she also has interests in psychology, sustainability, physics, and theatre. Having attended high school at the Arts Academy at Benjamin Rush as a theatre major, Emily developed a fascination for psychology as well as social issues. Emily was also an avid science student in high school where she took an elective in Environmental Science and won an award for her performance in AP Physics. Her experience with these classes has ignited a desire in her to design and create with solutions in mind.
Emily has had success in classes at Jefferson and is supported by her professors to pursue her future in Architecture. Emily’s favorite design project was Linking Lives. The concept and research done was the strongest focus in this project. This led to an outstanding project with well-done architectural moves, despite the limited time to work on them. A supervising attorney from the Philadelphia District Attorney’s office was a critic of the project and promoted its achievement because of successful precedents that also use dogs to help rehabilitate the incarcerated. In addition to her passion of designing for social justice, Emily also has a strong interest in lighting design and formed her custom minor around the subject. Light supporting Architecture and its concept is extremely important to Emily and can be represented in her project, Bringing Back the Falls, where a combination of architecture and lighting worked in unison to support the essence of the community.
Emily now looks forward to incorporating her varied interests and aptitudes into working towards a degree and eventually a career in Architecture. She looks forward to serving her community by creating spaces that satisfy a variety of needs while addressing climate change, sustainability, mental health, and enhancing quality of life. Her ultimate goal is to learn how to create not just buildings that serve these purposes, but spaces that are also beautiful and enjoyed by all.