Selected works booklet
ELEONORA BENETTI
Architecture & Interior Design
• CARRIED OUT IN 2020 Academic Projects
QT8 MARKET REDEVELOPMENT MILAN, ITALY
• ACADEMIC PROJECT
• POLITECNICO DI MILANO
SCHOOL FOR SUSTAINABILITY, TURIN, ITALY
• ACADEMIC PROJECT
• POLITECNICO DI TORINO
• CARRIED OUT IN 2021
LAKE COMO MUSEUM COMO, ITALY
• ACADEMIC PROJECT
• POLITECNICO DI MILANO
• CARRIED OUT IN 2020
Professional Projects
CATALAN MASIA RENOVATION, BEGUES, SPAIN
• PROFESSIONAL PROJECT
• ENRICA MOSCIARO STUDIO
• CARRIED OUT IN 2021
KYT, KYTHIRA, GREECE
• PROFESSIONAL PROJECT
• ENRICA MOSCIARO STUDIO
• CARRIED OUT IN 2021
WESTLAKE RESIDENCE INTERIORS, AUSTIN, USA
• PROFESSIONAL PROJECT
• LUCA LANZETTA GROUP
• CARRIED OUT IN 2024
RIMADESIO SHOWROOM, LOS ANGELES, USA
• PROFESSIONAL PROJECT
• LUCA LANZETTA GROUP
• CARRIED OUT IN 2025
About Me
I am a curious and proactive architect, open to new challenges and always eager to learn. My passion for architecture lies in its ability to shape environments that bring people together, create community, and foster meaningful interactions. I am especially drawn to designing for the hospitality sector, where spaces are inherently dynamic and become part of people’s experiences and journeys.
What excites me most about architecture is the opportunity to create environments that are both functional and inspiring—spaces that respond to the unique needs of their users while telling a story about the places they inhabit. I take pride in being detail-oriented and strive to craft thoughtful, tailored solutions that harmonize with the character of each location and the expectations of the client.
I enjoy following a project through every stage, from initial concept development to fabrication and installation. This end-to-end process allows me to combine creativity with precision, ensuring that every detail contributes to the overall vision. I thrive in collaborative settings where ideas can be exchanged openly, believing that the best outcomes emerge when different perspectives come together to shape a project.
To me, architecture is about creating spaces where people feel a sense of belonging andconnection. My adaptability, creativity, and enthusiasm for problemsolving make me eager to contribute to projects that are as inspiring as theyarepractical.
Academic Projects
These first three projects were developed during my Bachelor's in Architecture at the Politecnico di Milano and my Master's in Sustainable Design at the Politecnico di Torino. This education provided me with a strong foundation in technical, creative, and historical aspects of architecture, with a focus on sustainability. Working in international teams improved my teamwork, coordination, and problem-solving skills, while the demanding deadlines strengthened my time management and organizational abilities. These experiences shaped my approach to design, combining creativity, precision, and a commitment to impactful, sustainable solutions.

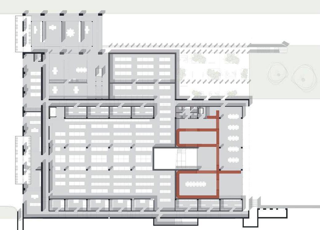
01 | QT8 Market Redevolpment

DESCRIPTION
The aim of the project is to redesign the internal spaces of the abandoned market of the QT8 neighbourhood in Milan, transforming it into the archive for the CASVA foundation, dedicated to the study, research, and preservation of visual arts, architecture,anddesign.
The concept is based on a metaphorical line that runs through the building, transforming it while respecting the existing design matrices. This line takes on different forms: a volume, a pavement, a seat, a boundary, or a connection.

This is an interior design project where the internal spaces were reimagined with custom elements and personalized furniture tailored to meet the needs of their new function. New functions have also been introduced, including an auditorium, a library, a literary café, an outdoor exhibition space, and a multifunctional greenhouse. These spaces are designed with flexibility in mind, allowing for varied uses throughout the day and by different users. Another key feature is the seamless connection between indoor and outdoor spaces, achieved through the use of permeable structures such as an external porch and glass casings, which provide visual continuity.
P ORT FOLIO 2025




P ORT FOLIO 2025




DESCRIPTION
The main interventions on the existing building include the creation of a symmetrical main entrance, designed to establish a formal and balanced access point to the structure. A new vertical connection has been introduced, which not only enhances circulation but also functions as an auditorium, integrating multiple uses within the same space. To improve the flow and usability of the interior, selected internal walls have been demolished, and new partitions have been introduced, carefully positioned to facilitate circulation and better define the spatial layout. Custom-designedfurniturewascreatedtoalignwiththeconceptofa"transformingline,"seamlesslyintegratingfunctionalitywiththearchitecturalvisionandtailoredtothespecificneedsofthenewprogram. Externally, two new volumes have been added to complement the building’s original structure: one constructed in glass, providing transparency and a visual connection between the interior and exterior, and the other in wood, introducing a warm, natural element that contrasts with the existing materials while maintaining harmony with the overall design. These interventions collectively aim to enhance the building’s functionality, aesthetics, and adaptability, creating a space that is both cohesive and innovative.
ROLES
This academic project was carried out by a group of three, where we collaborated throughout all phases, from initial concept development to the final submission. We worked closely on refining the design concept and producing the required deliverables. My contributions were diverse and integral to the project’s success. I was responsible for conducting research and gathering references, as well as developing the conceptual design centered around a linear element that traverses and revitalizes the building. Additionally, I took part in creating technical drawings, including floor plans and sections, as well as generating a detailed 3D model and rendering views of the design. Finally, I played an active role in constructing a physical scale model that represented the final project. This comprehensive involvement allowed me to engage with various aspects of the designprocess,showcasingbothcreativeandtechnicalskills.
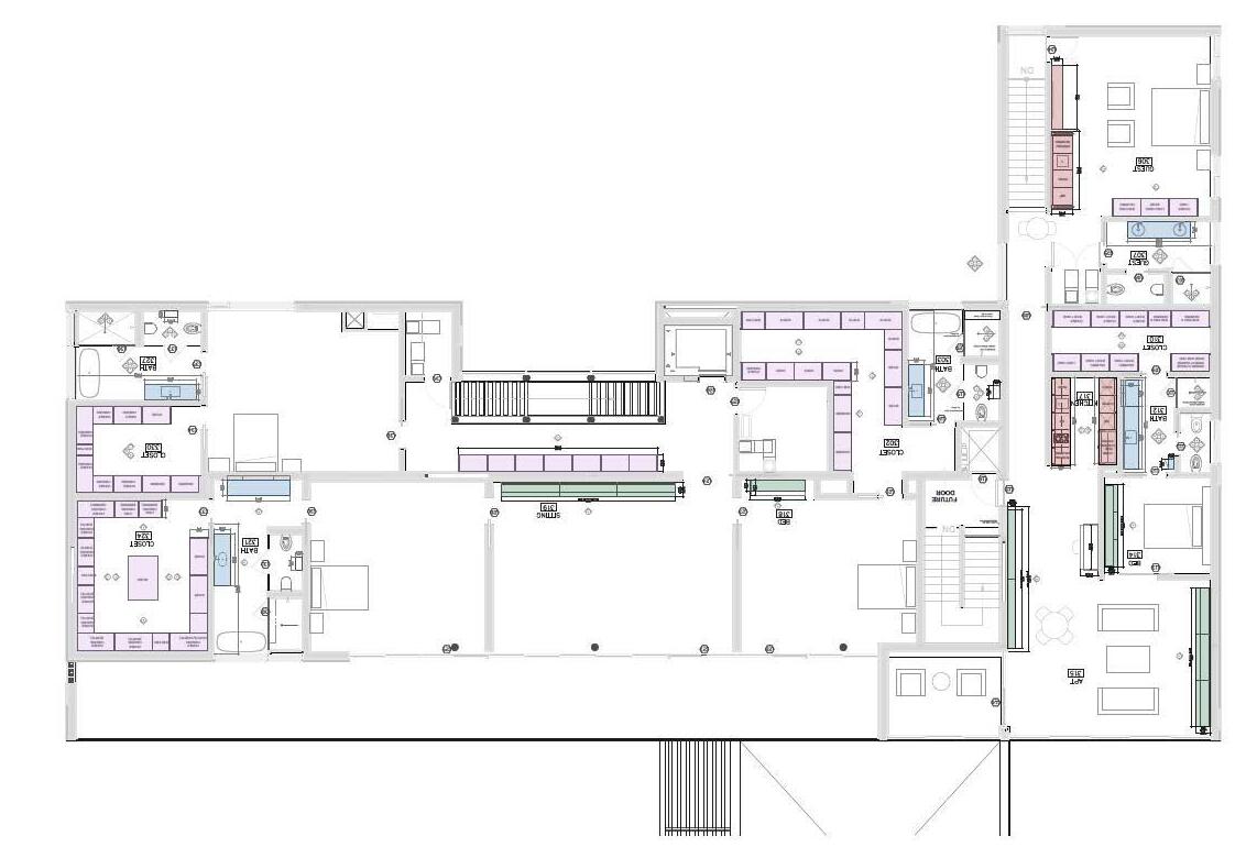
02 | Lake Como Museum
The project envisions the redevelopment and transformation of the eastern curve of the stadium in the city of Como. This transformation includes the integration of new stands, the creation of a vibrant shopping gallery, a museum dedicated to the Rationalist architecture movement, characteristic of the Como region, a modern theater, and a multifunctional auditorium. Furthermore, the proposal emphasizes the creation of a pedestrian and cycle path that seamlessly traverses the city of Como. This pathway servesas a connection
betweenthe Rationalistarchitecturallandmarks ofthearea,effectivelyformingacohesiveand open“widespreadmuseum.”
The conceptual foundation of this project draws inspiration from several iconic architectural matrices, including the Church of San Vitale in Ravenna, the Church of Santa Maria Immacolata in Longarone, and the Palazzo delle Poste in Ostia (Italy). These structures are celebrated for their articulation of the central plan, which serves as a guidingprincipleforthisintervention.
The design establishes a close dialogue with the architectural heritage of the past while proposing a new landmark that redefines theculturalandurbanidentityofComo. By integrating these elements, theintervention aspires to enhance the culturalfabric of the city, creating a space that notonly acknowledges its historical roots but alsopositions itself as a contemporary focal pointforart,leisure,and communityinteraction.
DESCRIPTION
The building consists of two interlocking volumes connected by a central staircase. The ground floor features separate entrances, while the upper floors are linked by a walkway. The circular central volume houses the Museum of Rationalism, distinguished by a full-height circular ramp. Adjacent to the stadium is a two-level gallery of shops, accessible via the walkway, while the stands facing the football field have a separate entrance on the upper floor. The design seamlessly integratesfunctionalitywithRationalistarchitecturalprinciples.

ROLES
Thisacademic projectwascompleted aspartofateam offour,where we collaborated through all stages, from concept development to final submission. My contributions included conducting research, developing the concept based on a linear element revitalizing the structure, and producing technical drawings, a 3D model with renderings, the masterplan, material selection, and spatial layout. This experience allowed me to apply both creative and technical skills while strengthening my ability to collaborate effectively within ateam.



03 | School for Sustainability
DESCRIPT IO N
This project aims to revitalize a Brutalist-style elementary school by enhancing its sustainability and creating a more inviting space for students. The concept centers on the idea of the "limit," representing a boundary or threshold, explored through architecture as a boundary, threshold, and interstitial space. Key interventions focus on outdoor areas, with custom wood and steel structures designed for children's safety and interaction. The building’s exterior is reimagined to improve energy efficiency, including shading systems, a greenhouse for educational purposes, a roof garden, and upgraded windows. A new glass atrium maximizes natural light and reduces energy use. The project enhances the school's environmental performan aconnectionbetweenarchitecture,sustainability,andeducation.
Status
Conceptual
Project type
Academic
Location
Turin, Italy


The outdoor spaces are organized by a hierarchy of boundaries: trees serve as impermeable margins, pavilions act as thresholds that can be opened or closed for access, and interstitial areas provide spaces for activities. The pavilions, made from recycled wood and flowing shapes, contrast with the school's geometry. All external structures are custom-designed to meet the children'sneeds,followingaunifiedconcept.








This academic project was completed as part of a five-person team during the COVID period, working remotely with colleagues from Colombia, Vietnam, and Iran. It was a challenging yet valuable experience, teaching me how to collaborate across cultures. I contributed to all stages, from concept development to final submission, including research, creating a revitalization concept based on a linear element, producing technical drawings, a 3D model with renderings, the masterplan, material selection, and spatial layout. This experience strengthened mycreative,technical,andteamworkskills.

Ventilation ral



Protection
COLLECTION SYSTEM





P ORT FOLIO 2025
ProfessionalProjects
DESCRIPT IO N
This section highlights the key projects I’ve worked on during my time at Enrica
Mosciaro Studio in Barcelona and Lanzetta Group in Los Angeles. At Enrica Mosciaro Studio, I was involved in every aspect of architectural projects, from building design to designing custom furniture and selecting lighting, and accessories. At Lanzetta Group, I focused on interior design, specializing in custom furniture systems like kitchens, wardrobes, bathrooms, and wall paneling, working closely with Italian brands. I managed the entire process, from design to logistics, product ordering, and installation. In both roles, I prepared presentations, managed client relationships, and coordinated allprojectstageswithGCandvariousteams.

04 | Catalan Masia Renovation

Status
Completed
Project type
Professional Location
Begues, Spain
Enrica Mosciaro Studio
DESCRIPTION
Masterplan
This building made up of various structures, has evolved over three centuries to cater to the needs of its inhabitants. Its primary function has always been residential, historically housing field workers. As a collection of distinct buildings, each space had its own separate entrance and varying floor levels. The goal of the project is to unify the ground level, requiring excavation in certain areas both inside and outside. In the late 19th century, the building was converted into a glass furnace, during which a striking brick arch was added. To bring the residence up to modern living standards and improve sanitation, the entire existing structure has been preserved, with the exception of a central space left open. This space has been transformed into a courtyard, providing light, air, and privacy to the home. This approach minimizes changes to the building’s exterior, maintaining its character as a simple agricultural dwelling while highlighting the beauty of the brick arch, which marks the building’s transition from residentialtoindustrialuse.
ROLES
I joined Enrica Mosciaro Studio when this project was already in its final stages, so I contributed to the last phases of its development. Specifically, I was responsible for reworking and post-producing the technical drawings, participating in the final selection of furniture products, and designing custom-made system solutions. Additionally, I worked on the design of the externalpergolaandthestudyoftheoutdoorpool.









05 | Hotel Kyt

Status
Completed
Project type
Professional Location
Kythira, Greece
Enrica Mosciaro Studio
DESCRIPTION
The existing buildings, constructed with locally available materials such as earth and stone, were in a dilapidated and chaotic state. The uneven terrain and modifications made over time required a thorough analysis to understand the spatial hierarchies and the relationship between the interior and exterior. Our goal was to restore the buildings' essence, focusing on a simple, unadorned architectural style. The design employs a limited selection of materials used with precision and simplicity, both in form and construction. The new floor plan is organized along horizontal and vertical axes that establish a new order for the outdoor spaces. Patios and successive terraces guide visitors from the street level to a long, narrow pool, creating a journey that slowly reveals both the architectureandthelandscape.
ROLES
I joined this project after it was already underway, and my contributions were diverse and impactful. I developed several proposals for the exterior, focusing in particular on designing a metal staircase set on a stone base. I contributed significantly to refining interior design solutions and reimagining the spatial layout of the rooms to enhance both functionality and aesthetic appeal. I also proposed integrated furniture designs and custom pieces tailored to the project’s specific needs, including masonry furniture elements that seamlessly complemented the architectural configuration and reflected Mediterranean design principles. Additionally, I worked on post-producing the floor plans and revising technical drawings to align with the updated design direction. Thisholisticapproachallowedmetoengageinboththeconceptualandtechnicaldimensionsoftheproject.





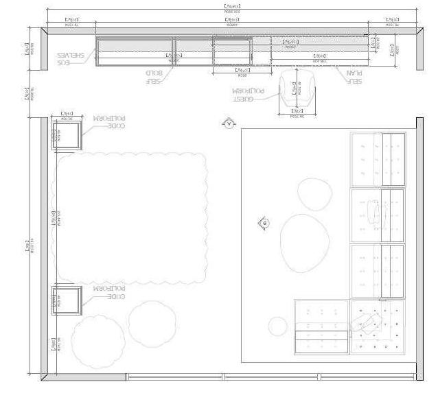
06 | Westlake Residence Interiors





Status
Completed
Project type
Professional Location
Austin, USA
Luca Lanzetta Group
DESCRIPTION
This project involves the design and construction of a newly built residential villa, where the studio managed every aspect of custom furniture design and development. The team also oversaw the selection of suppliers for flooring, tiles, and interior surfaces. The floor plan highlights the studio’s specific approach, showcasing all areas of millwork designed in-house, ordered from Italian fabricators, and procured directly by the studio.
The design is characterized by a clean, modern aesthetic achieved through collaborations with renowned Italian brands such as Rimadesio, Antoniolupi, Ernestomeda, Molteni, Poliform, and many others. The ultimate goal was to deliver a high level of detail and customization tailored to the unique needs and preferencesoftheclient.




In this project, I was responsible for the design and selection of furniture for the specific area shown in the drawings. My work included designing a custom desk system with integrated drawers and shelves, crafted in collaboration with the brand Rimadesio, as well as selecting additional furnishings from Poliform. This process involved creating detailed graphic drawings, presenting proposals to the client to align with their needs, and customizing elements to ensure a tailored solution. I also managed the order placement with the factory in Italy, worked closely with production managers to assess feasibilityandtechnicalspecifications,andoversawthedeliveryandinstallationphasestoensuretheproject’ssuccessfulcompletion.


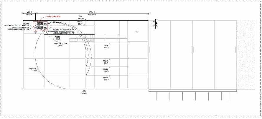
07 | Rimadesio Showroom

Los Angeles, USA
Luca Lanzetta Group
DESCRIPTION
Located in the heart of Beverly Hills, this project involved the complete remodeling of a commercial white-box space into a high-end showroom for the Italian luxury brands Rimadesio and Antoniolupi.
The renovation included the development of spatial layouts, finish and product selections in collaboration with Rimadesio, and the design of custom display areas. Permit drawings were prepared with updated electrical, HVAC, and plumbing plans in coordination with an engineering firm.
The construction phase spanned approximately six months and required coordination with a wide range of subcontractors, including Italian specialists for the installation of custom cement plaster flooring and seamless cement plaster wall finishes. The final stage involved the installation of imported furnishings, lighting systems, and accessoriestocompletetheshowroomsetup.




I was responsible for the complete technical coordination and site management of the project. My work began with an on-site survey and precise measurement of the existing space, followed bythedevelopment offloorplansandtechnicaldrawings.IcollaboratedcloselywiththeRimadesioteamtoensureaccurate integration ofall products,finishes, andsystemswithin thedesign layout.
I created the full set of construction documents, including electrical plans, blocking diagrams, lighting layouts, and framing drawings to support the General Contractor’s work on site. Throughout the six-month construction phase, I acted as the project manager—overseeing all aspects of execution, coordinating subcontractors and suppliers, and ensuring that timelines, budgets, and deliverables were met.
From initial framing to final inspection, I served as the main point of contact, ensuring a high level of detail and quality throughout. I also produced technical installation drawings for all custom products, including doors, closets, vanities, wall panels, integrated lighting systems, and accessories. This project allowed me to deepen my knowledge of construction detailing and gainvaluableexperienceinmanagingcomplex,high-endinstallationswithprecisionandcare.








