Armita Eghbali - Architectural Portfolio

Page 1


R T F O L I O

ARMITA EGHBALI

ARCHITECT | INTERIOR ARCHITECT

Armita Eghbali

eghbaliarmita@gmail.com

+ Education

MA - Rhode Island School of Design, RI, USA

Interior Architecture – Adaptive Reuse (2023-2024)

MS - University of Tehran, Tehran, Iran

MS in Restoration and Regeneration of Historical Buildings and Fabrics (2019 – 2022)

Ranked 1st in Iran according to U.S. news

BS - Azad University, Tehran, Iran

BS in Architectural Engineering (2014 – 2018)

+ Work Experience

Architectural Designer for Medical centers

ARCHMED Consulting Engineers, Tehran, Iran (20212023)

Digital Representation Course Teaching Assistant

Rhode Island School of Design, RI, USA (2024)

Lecturer: Yaminay Chaudhri

Revit Architecture Teaching Assistant

Iran Software School, Tehran, Iran (2017)

Lecturer: Amir Karami

Biennial and Grad Show Curating Team Member

Rhode Island School of Design, RI, USA (2023 -2024)

Freelance Renovation Designer

Office Units (2020)

Intern

ARCHMED Consulting Engineers, Tehran, Iran (20182020)

High Rise Regeneration Research and Design Team Project | 28 state street - Boston - USA - 2024

Reuse Heritage Building Information Modelling (HBIM) | Mofakham Complex - Tehran - Iran - 2022

Industrial Site Master Planning and Adaptive Reuse | Central Silo Complex of Tehran - Tehran - Iran - 2022 Extension Building Archive and Research Center | Tomaquage Museum - Rhode Island - USA - 2023 K-12 Revitalization Community Driven Design | Mount Pleasant Highschool - Rhode Island - USA - 2024 Healthcare Design | Ofoq Beauty Clinic and Day Surgery Center - Tehran - Iran - 2018 Higher Education Design | Art and Architecture School - Studio Design 3 - Tehran - Iran - 2017 Archaeological Preservation | Management and Master Planning - Rey - Iran - 2021

1

High Rise Regeration Adaptive Reuse

Research and Design Team Project

28 State St - Boston - USA - 2024

Office vacancy is a serious issue in major cities, including Boston. 28 State St, a 40-story commercial high-rise in the heart of the financial district, is experiencing vacancies despite being an iconic building with a unique 360-degree view. As a group of six students in the Master of Arts program at the Rhode Island School of Design, we developed a multifaceted proposal to address this problem and presented it at Boston City Hall.

Our project analyzed the surrounding area and zoning regulations in Boston, considering urban requirements and restrictions. We also conducted wind, shadow, and view analyses using specialized modeling programs such as Autodesk CFD and Twinmotion.

In terms of functional regeneration, we proposed several programming options, ultimately selecting a combination of residential and special-use spaces. The residential floors include small, medium, and large duplex units, along with service areas, a fitness center, a co-working space, and a conference room. Twenty percent of the units are designated as affordable housing. Revenue from the special-use spaces will help maintain these affordable units.

The special-use spaces are integrated vertically with the residential units. The lower floors feature a sports complex with courts and an e-sports auditorium, while the top floors are designated for public activities, including an event space, dance floor, panoramic swimming pool, and city viewing platform.

Our proposal also addresses the building’s high energy consumption. In addition to retrofitting the facade and mechanical systems, we suggest generating energy with wind turbines located on the top floors and in the plaza in front of the building. These custom-designed wind turbines are carefully positioned based on detailed calculations. Visitors can tour the wind turbine galleries at different parts of the building and the plaza.

RISD MA Studio

Trubines cover 50% of the buildings energy needs. Providing 100% of affordable housing utility bills.

24h Battery storage

Piezoelectric panels with solar panels generate energy while visualizing the wind.

Revit + Illustrator

Residential floor plan, co-working space, and virtual tour

Revit + Twin Motion + PS + Kuula
Rhino + Adobe Fresco
Revit + Twin Motion + PS
Panaromic pool
Lockers and service
Wind turbine sculptures
Wind turbine gallery
Main lobby
Auditoriom
Curling court
Rowing pools
Picke ball
Badminton
City viewing platform
Turbine viewing platform

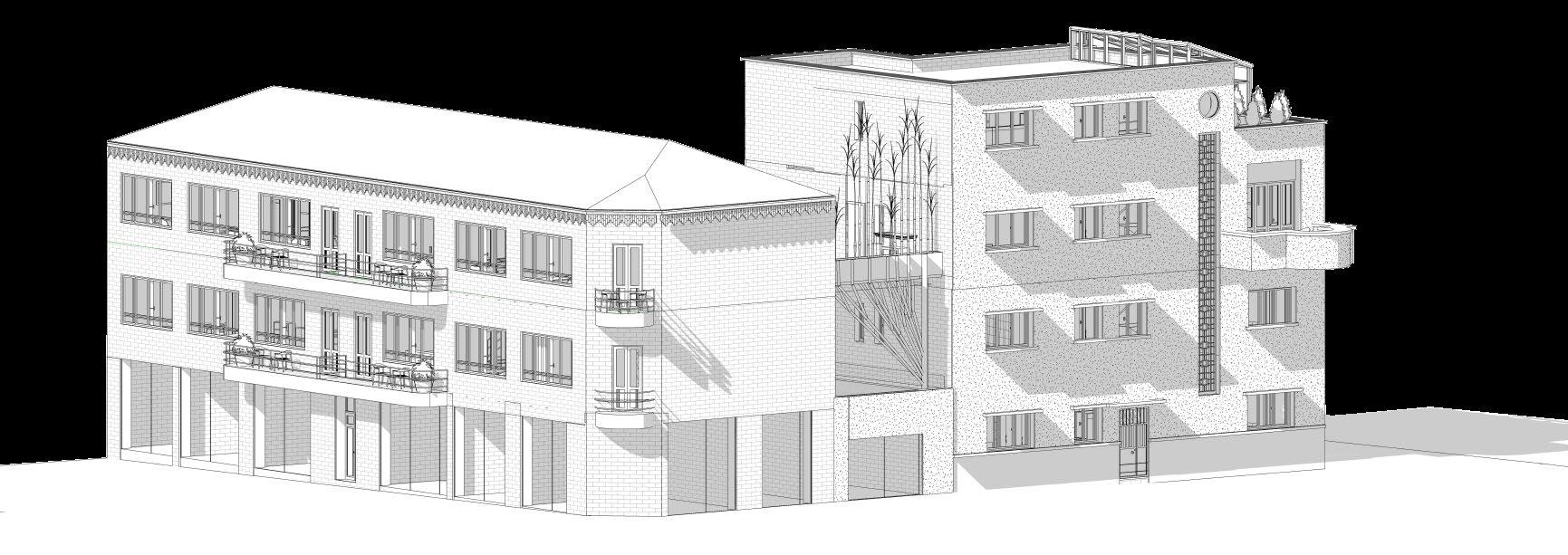
2 Adaptive Reuse

Heritage Building Information Modelling (HBIM)

Mofakham Complex - Tehran - Iran - 2022

Mofakham is a residential complex that was built almost a hundred years ago. This two-block complex was abandoned and only used for storage by local vendors, even though it boasts magnificent attributes of contemporary Iranian architecture. I surveyed the blocks using photogrammetry and processed the photos in AgiSoft Metashape. The result was a point cloud that could be transferred to Revit Architecture. This allowed me to model all the elements in a parametric manner. After analyzing several attributes, which are detailed on the following page, I concluded that a mixed-use function with an emphasis on hospitality and cultural aspects would be the most appropriate choice.

Cultural Center + Boutique Hotel

Residential and Service

Restaurant and Organic Products Store (Greenhouse)

Residential and Service

Residential and Service

Existing Shops

Reception, Adminstrative, Residential, and Service

Conference Hall, Spa, Laundry, and Service

Block B Vertical Access

Staircase and Elevator

Block A and B Horizental Access Metal Bridge

Outdoor egress for both blocks Metal Staircase

Block A Verical Access Staircase

Block A
Irandokht Cutural Center
Block B

Greenhouse - additions

Black galvanized Iron (Bases and Shades)

White cement

Filling decay with dark gray cement mortar

Black Marbel

Greenhouse detailing

Brick flooring with firebricks

Dry construction with anchoe rods

Arc welding with shelding gas and metal electrode

Rows of metal square bars

various x 60 x 20 mm

Thickness: 3 mm

Metal square bars

900 x 25 x 25 mm

Thickness: 3mm

Metal square bars

various x 70 x 70 mm

Thickness: 3mm

Metal square bars

7700 x 100 x 100 mm

Thickness: 5mm

The two blocks were constructed separately in two different phases, with no connection between them. To plan the desired circulation, I designed a metal bridge that serves as a common outdoor area and as an emergency evacuation route. This area includes comfortable sofas, a fireplace, and a linear plant box to create a cozy atmosphere.

Revit + AutoCAD + Lumion + PS

Metal Bar
Base Plate
Conctere Foundation
Cement
Mortar
Anchor Rod

Art Shop and Exhibition Center

Within the cultural centers, artists have spaces for creating their masterpieces in various forms, including music, graphic and video design, sculpture, painting, and fashion design. Additionally, researchers can delve into cultural studies at the library within the complex to foster the integration of culture and art, leading to fruitful exhibitions.

Special provisions have been made for presenting the artists’ works through the Art Shop and Exhibition Corridor. The design of the Exhibition Corridor draws inspiration from Persian vaults from different eras, with screens set along this path and personalized headsets for visitors.

Boutique Hotel Room Interior Design

During the renovation process, I chose to preserve the original flooring, doors, and windows due to their authentic appearance. Additionally, the gypsum layer of the ceiling is removed, revealing the brick surface and wooden gables. These vintage materials added a warm and cozy ambiance to the spaces. As for the furniture, I opted for a fairly traditional style with a natural texture.

Revit + Lumion + PS

Wind Analysis

Tubular Daylighting and Photovoltaic System Placement 9:00 AM

Summer

Winter

With a comprehensive analysis of sun exposure and shading patterns during both summer and winter, the optimal locations for implementing tubular daylighting systems and photovoltaic (PV) panels were found. Noon 4:00 PM

Revit

In the quest for heightened energy efficiency and sustainability, a comprehensive retrofitting strategy is employed to upgrade the building envelope. This meticulous process focuses on insulating and retrofitting the walls, windows, and gable roof using sustainable materials, resulting in a significant improvement in the R-value from 18 to over 35.

Regeneration and Adaptive Reuse

Industrial Heritage

Central Silo Complex - Tehran - Iran

The main silo of Tehran is an extensive industrial complex that holds national recognition as an industrial heritage site. This complex was constructed in the aftermath of the First World War, which caused a devastating famine in Iran. Iranian and foreign engineers were mobilized to build this vast complex, housing various industrial and service components, as detailed here.

Some parts of the complex, such as the silos, storage facilities, and administrative buildings, are still in use. However, the grain factory and other sections have been abandoned for over 50 years.

During the second studio design phase of my master’s program, we thoroughly evaluated the characteristics and disciplines of this case study. Subsequently, we developed a plan for the regeneration and revitalization of the entire complex, envisioning it as a mixed-use industrial, recreational, and cultural center in the southern region of Tehran.

Following our analytical survey, we crafted a narrative, outlined future perspectives, and devised strategies in the form of a strategy plan, which can be found on the following sheet.

For my design project, I selected the Pahlavi Storage building for adaptive reuse. After considering various options, we decided that co-working spaces with various types of offices and workshops would be the most compatible function.

Adaptive Reuse

Co-working space

Conference room

Dinning hall

Multi-functional hall

Workshops

Painting workshop

Wood workshop

Co-working space

Adminstrative

Printing, laser cut, 3d print

Dinning hall

Kids hub

Adminstrative

Bakery Cafe

Eateries

Open reading space and library
Sleeping capsules
Private offices
Wellness room

For maximizing the natural light, three atriums have been used, and by planting compatible plants in them, the users can enjoy the presence of plants in the workspace and recreational environment. These atriums are designed at points that establish maximum visual communication with different parts. The roof of this building has not been used in all periods, but in this design, installations, game roon, and an ourdoor cafe have been designed with a nice view over the museum garden and the train station.Also, the children’s playground on the outdoor dinning platform allows parents to have visual communication with their children while having meals.

4 Extension Building Archive and Research Center

Tomaquage Museum - Rhode Island - USA

Tomaquag Museum is building a new museum to be located in Kinston, Rhode Island on lands leased by the University of Rhode Island (URI). A four building campus that includes a museum exhibition building, the Indigenous Empowerment Center building, and an Education center whose design has been already laid out. The fourth building is to be an archival/research/collection storage center with 10,000 square feet of interior space. The studio operated in close collaboration with representatives from the Tomaquag Museum who will act as ‘clients’ to achieve a design proposal that fits in their expectation. The building is to be a resting place for cultural belongings and archival materials with a public research library, additional areas for exhibition, and office spaces. Tomaquag envisions this new campus as a welcoming space for tribal members, students, teachers, artisans, entrepreneurs, toursts, researchers, and of course our cultural bearers.

Library

The featured library has a playful charechteristic with natural and atrificial lights. The pendant soap stone tiles fitler the light and the readers can take advantage of indirect light. Also, soapstone is chosen for the ceiling pendant tiles that is popular among Narragansetts. The modular furniture includes shelves and desks in sigle circular components, These modular furniture can easily rotate on in-built rails.

Includes sliding modular paper racks and a work station.

Flat Belongings Storage

Including sliding wire storage and sliding rack storage.

Sliding wire storage with pegboards (20cm between each textile panel and 60cm from the floor)

Sliding rack storage with wire screening for frames

Community Driven Design 5

K-12 Revitalization

Mount Pleasant Highschool - Rhode Island - USA

Former Student:

The lobby is amazing! there is this part of the hallway in the first floor, where there are the sconces in archways and beautiful carvings and paintings on the ceilings.

I think a viable solution would be having nonprofits rent some space because of declining enrollment numbers. That would bring in more money to maintain the square footage and take the space that‘s not needed anymore instead of tearing 300.000 ft2 down and adding too much embodied carbon to landfills.

Speacial education teacher:

They are not constructing a new building for the school, they are building a new school for less population. In this perticular programm there are a lot of space requirements. We have a three class in the new layout. there is no place for students with special needs.

Mt Pleasant Student:

I want courses that make sense. Why cannot we have cosmetology classes? I will never need math and history.

Former teacher and local artist neighbor:

This is one of the most beautiful structures in providence and look at the value that is placed on it. Nobody has been caring for this building.

I a proud of the way it looks. My grandmother‘s uncle was the bricklayer. We havent forgoten that this was part of us. This was built in a desperate time of 1938. People had nothing but they put their all into a public work project.

My grandmother was one of the first cohorts. It‘s a major part of Rhode Island culture, and I can‘t watch it be replaced on a whim of an education commissioner.

A full demolition would be hartbraking, only keeping the front entrance would be way to mutilating.

Mt Pleasant Student:

It feels like a prison from the outside. It‘s dirty and sad. I like the right side becuase it has been remodeled. And there are cracks in the hallway floors.

The building, a historical edifice constructed in 1938 in Providence, Rhode Island, was part of a collaborative study course my groupmate and I undertook with the Providence Preservation Society. Despite its rich history, the building had fallen into disrepair, and the students using it were experiencing numerous issues. Authorities proposed demolishing it to construct a smaller, more modern school. However, our project’s objective was to save and rebrand the building, which had garnered a poor reputation among locals. The first stage involved gathering feedback from current users to understand the necessary functions and identify problems. Among the feedback, students expressed a significant concern about the lack of courses that could aid in their future professional lives. Our team ultimately devised a plan to integrate offices and workshops within the school. This approach would enable students to gain practical skills through workshops, while local businesses could rent space at affordable rates. This innovative solution aimed to rejuvenate the building and transform it into a vibrant community hub, addressing both educational and professional development needs.

Revit + PS

Student Hub

The student hub is a warm and welcoming space for students to interact during the cold days in Providence. Students can watch the office activities through the soundproof glass wall while chatting with their friends about their future careers during lunchtime. The skylight and colorful exterior facade create a light-filled, lively space for the students.

Revit + PS

Office-spaces for lower rent are provided for small local businesses. In exchange, these professionals can offer students a glimpse into there work one day a week, providing students with real life experience and teaching them new and practical skills. This would also offer an additional source of budget for the academic purposes of the school.

Heathcare Design 6

Ofoq Beauty Clinic and Day Surgery Center - Tehran - Iran

Ofoq Beauty and Day Surgery Clinic is located in Tehran 22 district. It provides the hole package and skin-care services and restoratice procedures. Also, plastic surgeries could be operated there if it’s low-risk. Vast feasibility study on this project created hopeful prospective for this it. Starndard design contributes infection control in this center and also thoughtful lanscape designing hepls healing process acceleration. The huge atrium among the building directs natural light into all the spaces of building. On the other hand, seprating medical and residential entraces results in relax atmosphere for patients. This beauyt Clinic is located in the most wonderful place of the city, Chitgar Lake. In the designing process I imagined the simple building like a stone near the lake, by the passage of time, wild waves create the shape of the stone like a sedimentary rock. In fact the waves play the best role of an architect in this project :)

2nd Floor
3rd Floor
1st Floor
Revit + Vray + PS

Higher Education Design

Art and Architecture School - Studio Design 3 - Tehran - Iran

The university of art and architecture is a place for growth and bloom of talents of young people who are interested in art subjects and a great atmosphere for developing their creativity.

In the “Artist’s way” book of Julia Cameron, combination and interaction of 2 elements namely “Raise of knowledge and awareness” and “Conservation of freshness and happiness” will cause the raise of creativity. By graphical combination of these two factors, I have attained the primary concept. By rotating the primary shape I reaced the desired form. The central atrium is the suitable space for vertical and superficial connection. The two wings of the building with long length are preparing desired light and beautiful view. The appropriate spaces for developing the students’ creativity are ateliers and workshops, and also suitable spaces for education, training, and research as well as library and computer sites. Finally, a big restaurant, theater platos, permanent and temporary exhibitions, and university yard have been designed for students communication.

The basement is cinema students zone; ground floor is designed for music students; first floor is painting students zone, amphitheater, administration, and extracurricular spaces; and finally the galleries and restaurant are located in the second and third floor. The site of this building has no neighbor and it benefits from sufficient light and lake view. Also, direct connection on main square of the neighbourhood makes transportation easier. The parking of this complex is located in the campus and thick trees act as shields for parking.

Revit + Enscape + PS

Archaeological Preservation Management and Master Planning 8

Bahram Fire Temple - Ray- Iran

The ancient area of Ray in the central part of the Iranian plateau is a valuable place of natural human history sequences in the desert bed with valuable natural resources, which is of interest to history experts, archaeologists and native and non-native tourists. The natural historical site of Ray fire temple or the ancient hill of Mill is located in Ray city and 12 kilometers southeast of Ray city. This ancient site on top of a high hill next to the historical village of Ghaleno is one of the important natural ancient sites in this desert region. Varamin Plain and Mill Hill area is an alluvial-sedimentary plain.

Mill Hill: The height of Mill Hill is 18 meters above the surrounding plain and around this high hill there are smaller low hills that overlook them, this complex includes an area of about 800 x 900 meters. The central building is located on top of a wide hill and consists of a porch, four steep walls and two parallel corridors and a high eastern staircase that leads to a corridor surrounded by cells. This building is made of stone, mortar, clay and mud, and according to many archaeologists, it dates back to the Sassanid era.

The central building in most of the sources of this building with high arches is called fire temple, but archaeologists have not given a uniform and decisive opinion about the use of this building. Some believe that this building was a barracks and some believe that it was a hut. Some of them claim that although this work was not used as a fire temple, there was a fire temple in it.

Turn static files into dynamic content formats.

Create a flipbook
Issuu converts static files into: digital portfolios, online yearbooks, online catalogs, digital photo albums and more. Sign up and create your flipbook.