PORTAFOLIO ARQ. BENITES DAVILA EDUARDO

Page 1

2023
TA
EDUARDO BENITES
POR
FOLIO

CV

PRESENTACION

Laideadelaarquitecturahoy en día esta presentada como facetas artísticas es por ello que les presento uno de los tantos trabajos dentro de la facultad e independientes que he tenido que he desarrollar a lo largo deestos2últimosaños.

DISEÑO ARQUITECTONICO

CASA CRISANTO CASA MALDONADO REMODELACION CASA LEON MUSEO DE SITIO PARQUE PUERTO PIZARRO

postproducción

VIVIENDA unifamiliar

Vivienda multifamiliar

Proyecto de salud plot plan

01 02 CONTENIDO
PRESENTACION
03

DATOS DECONTACTO

DarwinEduardoBenitesDávila

972840447- 015064359

eduardobeni19@gmail.com

EduardoBenites

01
RESUMEN CV PERFIL ARQUITECTO

VIVIENDA crisanto

Vivienda unifamiliar, ubicado en el distrito de Nuevo Chimbote –Ancash, un proyecto con dos niveles y azotea, un área de 108 m2,, se diseño la vivienda con un estilo arquitectónico moderno . El proyecto incluye :

1. Planimetrías por niveles

2. Elevaciones 3. Renders interiores y exteriores

VIVIENDA LEON PLANIMETRÍA

02
HERRAMIENTAS UTILIZADAS
1 ° NIVEL ESC : 1:100 2 ° NIVEL ESC : 1:100

DEPARTAMENTO

ELEVACIONES – VISTA EXTERIORES

02
HERRAMIENTAS UTILIZADAS

VISTAS 3D INTERIORES

UTILIZADAS

HERRAMIENTAS
02

VISTAS 3D INTERIORES

HERRAMIENTAS UTILIZADAS

02

VISTAS 3D INTERIORES

HERRAMIENTAS UTILIZADAS

02

VIVIENDA maldonado

Vivienda unifamiliar, ubicado en la ciudad de Puerto Maldonado –Madre de Dios, un proyecto con dos niveles y azotea, un área de 330 m2,, se diseño la vivienda con un estilo arquitectónico moderno respondiendo a todos los requerimientos del cliente . El proyecto incluye :

1. Planimetrias por niveles

2. Elevaciones

3. Renders interiores y exteriores

PLANIMETRIA INTERIORES

03
HERRAMIENTAS UTILIZADAS 1 ° NIVEL
: 1:100 2
3
ESC
° NIVEL ESC : 1:100
° NIVEL ESC : 1:100

VISTAS 3D

ELEVACION - VISTA 3D EXTERIOR

UTILIZADAS

03
HERRAMIENTAS

VISTAS 3D INTERIORES

HERRAMIENTAS
03
UTILIZADAS

VISTAS 3D INTERIORES

HERRAMIENTAS
03
UTILIZADAS

VISTAS 3D INTERIORES HERRAMIENTAS UTILIZADAS

03

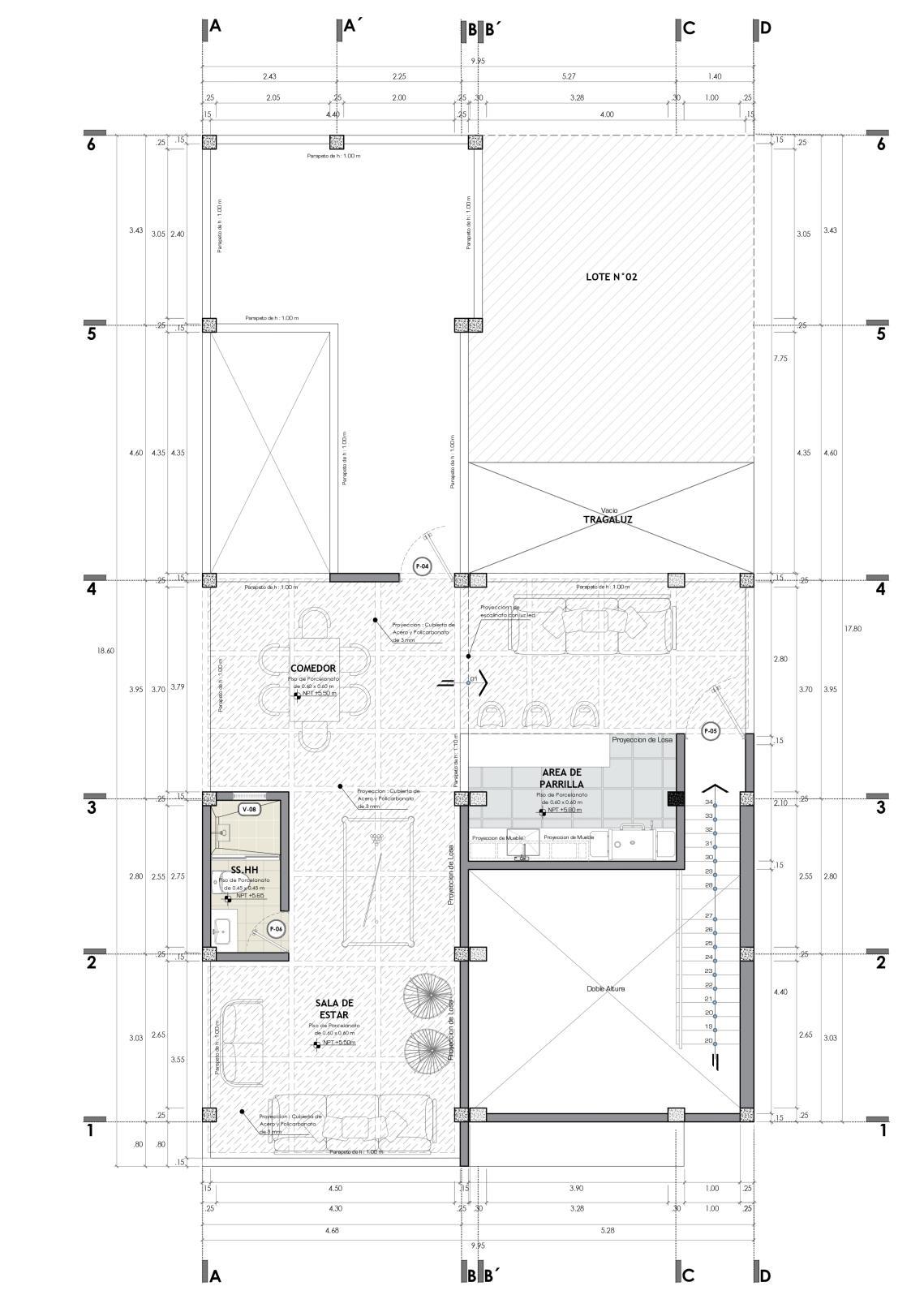
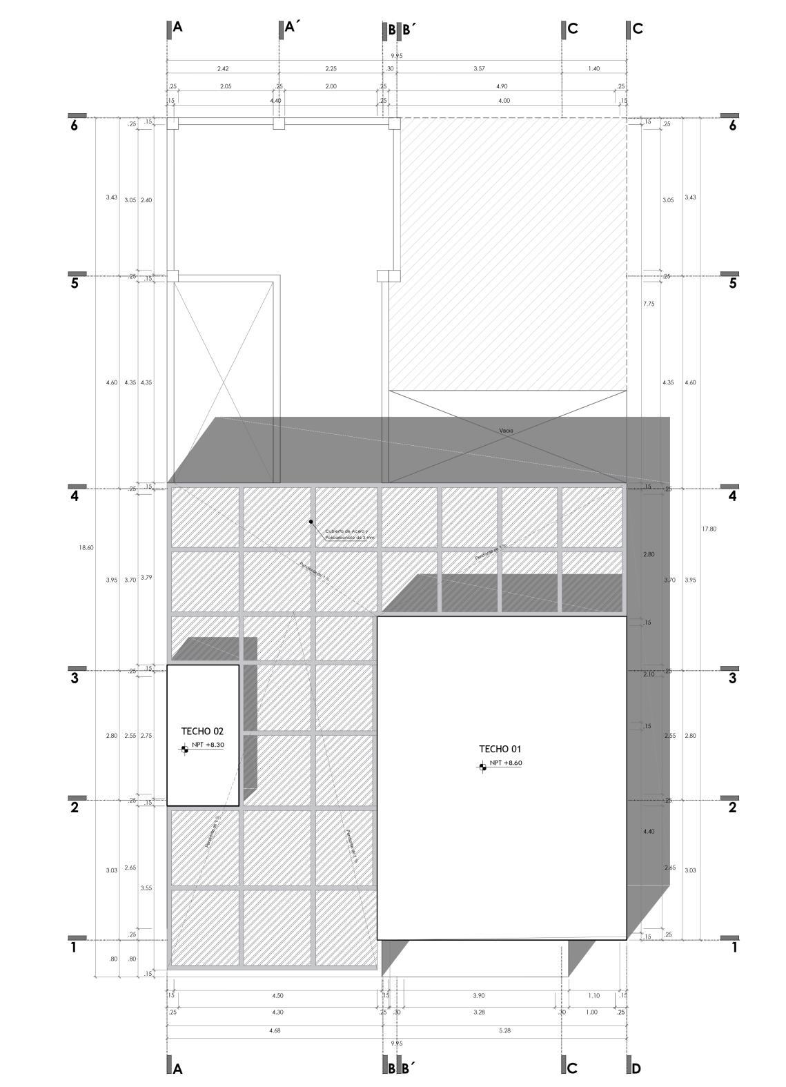
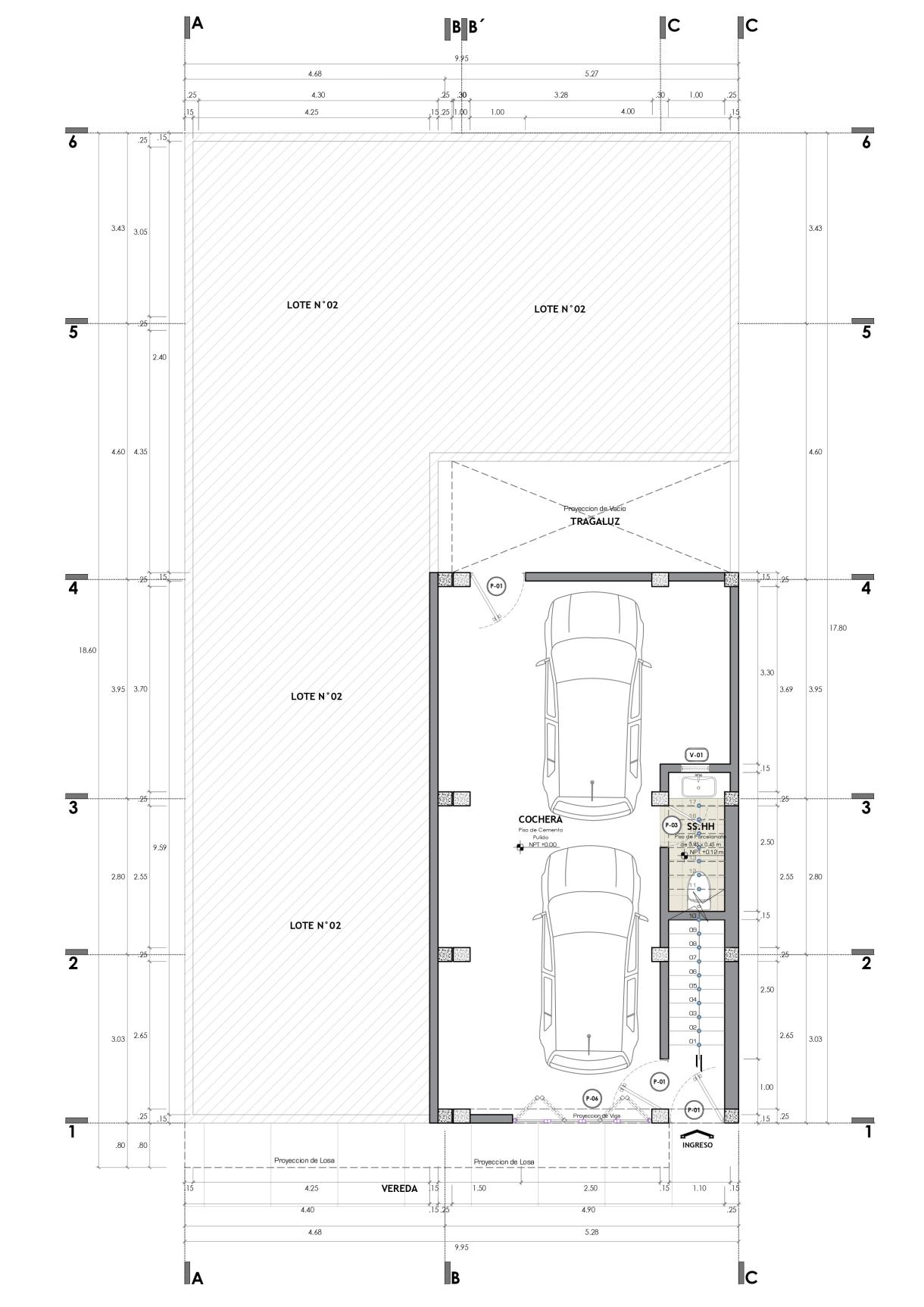
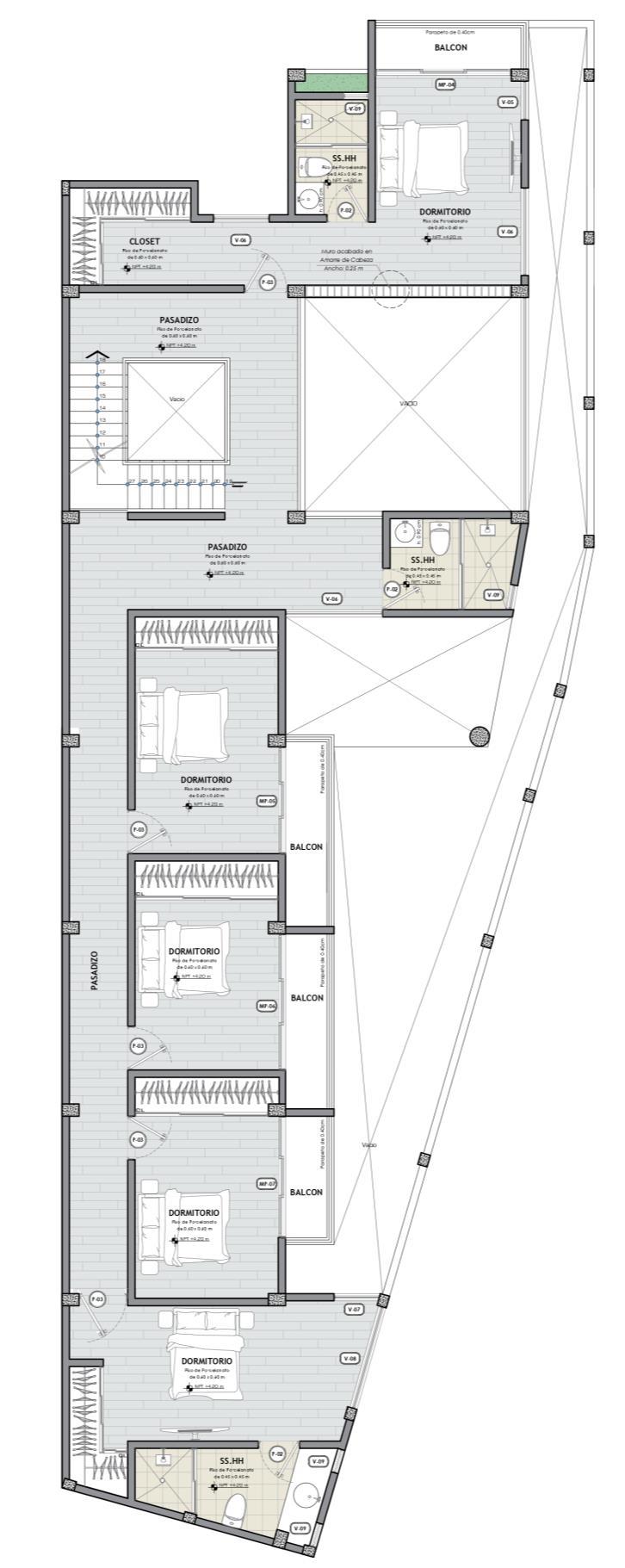
Remodelación VIVIENDA león

Vivienda unifamiliar, ubicado en la ciudad de Puerto Maldonado –Madre de Dios, un proyecto con dos niveles y azotea, un área de 175.50 m2,, se diseño la vivienda con un estilo arquitectónico moderno respondiendo a todos los requerimientos del cliente . El proyecto incluye :

1. Planimetrias por niveles

2. Elevaciones

3. Renders interiores y exteriores

PLANIMETRIA INTERIORES

HERRAMIENTAS UTILIZADAS 04
1 ° NIVEL ESC : 1:100 2 ° NIVEL ESC : 1:100

PLANIMETRIA INTERIORES

HERRAMIENTAS UTILIZADAS 04
3 ° NIVEL ESC : 1:100 3
TECHOS
°
ESC : 1:100

VISTAS 3D ELEVACION

HERRAMIENTAS
04
UTILIZADAS

VISTAS 3D

VISTA 3D- EXTERIOR

HERRAMIENTAS
04
UTILIZADAS

VISTAS 3D INTERIORES

HERRAMIENTAS
04
UTILIZADAS

PARQUE PUERTO PIZARRO TUMBES

LEVANTAMIENTO Y VISTAS 3D

VISTAS AEREA 3D EXTERIORES

HERRAMIENTAS
06
UTILIZADAS

VISTAS AEREA 3D EXTERIORES

HERRAMIENTAS
06
UTILIZADAS

VISTAS 3D EXTERIORES

HERRAMIENTAS
06
UTILIZADAS

POSTPRODUCCION

• Vivienda unifamiliar 01

• Vivienda multifamiliar 02

• Proyecto hospital nivel volumétrico y master plan

VIVIENDAUNIFAMILIAR PLANIMETRÍA

Vivienda unifamiliar, ubicado en el distrito de Cieneguilla – Lima, un proyecto con tres niveles y un área de 143 m2, lote con un frente de 9 4 m, se diseño la vivienda con un estilo arquitectónico moderno y una arquitectura introspectiva.

07
HERRAMIENTAS
UTILIZADAS

VIVIENDA UNIFAMILIAR

SECCIÓN Y ELEVACION

SECCION Y ELEVACION V. UNIFAMILIAR - CIENEGUILLA

08
HERRAMIENTAS UTILIZADAS

VIVIENDA UNIFAMILIAR

PLANIMETRÍA 0 2

09
PRIMER NIVEL SEGUNDO – TERCER- CUARTO NIVEL QUINTO NIVEL HERRAMIENTAS UTILIZADAS

PROYECTO DE SALUD PLANIMETRÍA

VISTAS ISOMETRICAS

10
HERRAMIENTAS
UTILIZADAS

PROYECTO DE SALUD

MASTER PLAN

11
HERRAMIENTAS
UTILIZADAS
EDUARDO BENI. TES PORTAFOLIO CONTACTO 972840447 - 01 5064359

Turn static files into dynamic content formats.

Create a flipbook
Issuu converts static files into: digital portfolios, online yearbooks, online catalogs, digital photo albums and more. Sign up and create your flipbook.