
SQUATTING THE MARVELLOUS CITY how
can squatted buildings (re)activate downtown rio?
![]()

can squatted buildings (re)activate downtown rio?
how can squatted buildings (re)activate downtown Rio?
The past six months have been a whirlwind. To write my master thesis centred on the exploration of my hometown, after years abroad, has to be the perfect ending to my studies in architecture.This work owns its success to the unwavering support and encouragement of several individuals, and it is with deep gratitude that I acknowledge their contributions.
To my family, for supporting my decision to continue my architectural education abroad and extend the duration of my studies. Their encouragement, both emotional and practical, has been indispensable to the completion of my master’s degree.
To my mother, Mônica Barbosa, for going beyond lengths to support my professional and personal growth. Despite being oceans away, her steadfast presence and belief in me have been a constant source of strength.
To my sisters, Daniela and Alessandra Orofino, whose advocacy for social justice has not only shaped my worldview, but also inspired me to ultimately make it the focus of my master thesis.
To my supervisor, Andres Lepik, for sparking my interest in a critical approach to architecture. His trust in my research and the platform he provided to explore this theme have been invaluable.
To Andjelka Gojnic, for her unwavering assistance throughout the thesis process, her patience, prompt responses, and overall support.
To Maíra Martins and Felipe Nin, for the eye-opening conversation on a rainy Wednesday evening, which particularly shaped the approach to field research on this work.
To Marcelo Edmundo, one of the national coordinators of CMP, for bridging the gap between myself and the residents of Vito Giannotti. For the enriching discussions on social equity and openness in answering my questions.
To all residents of Vito Giannotti, for warmly welcoming me into their homes and for the meaningful discussions. A special mention to Hugo Parra, who first invited me into the squat, for taking the time in sharing his insights and guiding me through the building.
To my friends in Munich, for being my home away from home (yes, kitschig, I know). A special thank you to Amelie Pretsch, Anthony Butcher, Victoria Singleton and Betina Albrecht, for their assistance, constructive criticism, and emotional support in shaping the conclusion of this master thesis.
Lastly, I am grateful to all professionals and students I have encountered over the years, who one way or another have contributed to my development as an architect.
This master thesis critically examines the potential of squatting as a transformative mechanism for reactivating downtown Rio de Janeiro. It begins with a comprehensive exploration of Centro‘s history, from its vibrant past as a cultural and economic epicentre to its subsequent decline. By analysing the socio-political forces and urban dynamics shaping the area over time, the study provides a nuanced understanding of the challenges faced by marginalised communities in accessing affordable housing. It also discusses how grassroots movements advocate for housing rights amidst rising inequality. Furthermore, it evaluates the limitations and complexities of governmental housing programs, notably Minha Casa, Minha Vida, and its implementation in Rio de Janeiro. The focal point of the study is squat Vito Giannotti, which is portrayed in detail to illustrate squatting‘s transformative potential. By delving into its origins, dynamics, and community life, the thesis showcases how squatted buildings can contribute to the (re)activation of downtown Rio and promote more just and inclusive forms of urban development. Overall, this research adds empirical evidence and theoretical insights to the discourse on urban informality, housing rights, and self-governance.
Eduarda Barbosa Poubel Wissenschaftliche Arbeit zur Erlangung des Grades M.A. Architektur an der Technische Universität München
Betreuer Univ. Prof. Dr. phil. Andres Lepik
Lehrstuhl für Architekturgeschichte und kuratorische Praxis März 2024
porto maravilha & reviver centro
01 the centro of rio de janeiro 02 the “housing
social movements for housing rights & self-management housing
program minha casa, minha vida and its specificities in rio de janeiro
program minha casa, minha vida - entidades

* All presented interviews and sources originally in Portuguese have been freely translated into English by the author.
* Urban plans have used Rio de Janeiro‘s 2013 Cadastral as a reference.
1 Interview given by Marcelo Edmundo, one of the national coordinators of Central de Movimentos Populares (CMP), involved in the squatting of Vito Giannotti. Available at: Lutas Pela Moradia No Centro Da Cidade, June 28, 2018, in Is Rio de Janeiro Still Beautiful? produced by Émilie B. Guérrete, https:// youtu.be/CrddgMYjm5c?si=LAQ9MxdPLaPkuzhZ , 01:59-02:29
2 Engl.: Brazilian Social Security Institut.
3 Engl.: Celebration Day.
4 A nationwide platform for popular and trade union‘s communication.
Fig. 1: Picture by Pablo Vergara. Available at: Pablo Vergara, “Ocupaciones verticales: sobrevivir en la región portuaria de Río de Janeiro“, El País, April 29, 2023, https://elpais.com/planeta-futuro/2023-04-30/ocupaciones-verticales-sobrevivir-en-la-region-portuariade-rio-de-janeiro.html#?prm=copy_link (last accessed on March 6, 2024)
“Despite all the attacks we have been suffering, (…) the people of the region keep resisting. They have resisted since the slave ships, in favelas and cortiços, through samba and capoeira, they keep resisting in squats. It is our only way to preserve our history in this region. If we don’t resist, we die. While we struggle, we live in the hope of changing things.“1
In the early hours of January 15th, 2016, squatters gathered in the Novo Rio Bus Terminal, less than one kilometre away from their final destination. After being divided into smaller groups, they were guided to Rua Sara 85, a street in Morro do Pinto, in the neighbourhood of Santo Cristo, Rio de Janeiro. The building, previously a hotel and then property of Instituto Nacional de Seguro Social2 (INSS), had been vacant since the 1990s, and was entered with little resistance, marking officially the squat’s Dia de Festa3 - given name to the date of occupation of an abandoned building.
A decade earlier, it was decided the edification should be destined for social housing purposes by decree INSS/PRES nº21, de 16 de Agosto de 2006, yet it remained empty. This inertia prompted three distinct social movements - Central de Movimentos Populares (CMP), União por Moradia Popular (UMP) and Movimento de Lutas nos Bairros, Vilas e Favelas (MLB) - to unite forces. Their collective goal: to pressure the government into fulfilling the resolution and ultimately plan the building’s occupation. The newly formed squat received the name Vito Giannotti (OVG), in homage to the Italian immigrant, worker and educator of the same name, founder of Núcleo Piratininga de Comunicação4 (NPC), who would have celebrated his 73rd birthday on the same day as the building’s occupation. By naming the building after an important personality of the worker’s movement, attention is drawn to the resistance of historically marginalised groups in (re)occupying the central area of Rio de Janeiro. Simultaneously, it addresses the region’s high vacancy and tackles the housing crisis in Brazil. Fast forward to the present day, and the old hotel has become home to 28 families from diverse social backgrounds, collectively managing
the building and, through mutual care, seeking for its long-term functionality.
In 2006, American journalist Robert Neuwirth published the book Shadow Cities: A Billion Squatters, A New Urban World, shedding light on urban squats worldwide. Drawing from a two-year immersive research experience living in squatted communities across various metropolises, Neuwirth offers profound insights into the resourcefulness and organisational levels of these communities. He argues that informal settlements are an integral part of urbanisation and cannot be disregarded. Neuwirth captures the essence of squatting succinctly, stating
“They are excluded so they take (..) but they are not seizing an abstract right, they are taking an actual place: a place to lay their heads. This act - to challenge society’s denial of a place by taking one of your own - is an assertion of being in a world that routinely denies people the dignity and validity to inherent in a home.”5
While the act of squatting abandoned or unoccupied land has always existed, as argues author Colin Ward6, organised forms of occupation, meaning supported or inspired by social movements, is a relatively newer phenomenon. In The Autonomous City, Alexander Vasudevan (2017) reconstructs the history of “organised squatting” across European and North American cities, with first stories dating back to the 1960s. Vasudevan highlights the movement’s significance in shaping urban spaces and questioning the capitalist logic of housing as a commodity.
“Housing is no longer seen as a basic social need. It has become an instrument of profit-making transforming today’s cities into sites of intense displacement and inequality, exploitation, and poverty.”7
While Europe was witnessing emancipatory movement in cities such as Amsterdam London and Berlin, Brazil lived under military dictatorship until 1985. Populations in cities such as Rio de Janeiro and São Paulo were skyrocketing, and insufficient housing policies and high rent costs drove the country into a massive housing crisis. With nowhere to go, processes of occupation on the fringes and slopes of cities intensified, forming new entire neighbourhoods made from informal settlements - the favelas8
5 Robert Neuwirth, Shadow Cities: A Billion Squatters, A New Urban World (New York, London: Routledge, 2016), chap. 10, https://www.perlego.com/ book/2192784/shadow-cities-a-billionsquatters-a-new-urban-world
6 “Squatting is the oldest mode of tenure in the world, and we are all descended from squatters. This is as true of the Queen with her 176,000 acres (710 km2) as it is of the 54 percent of householders in Britain who are owner-occupiers. They are all the ultimate recipients of stolen land, for to regard our planet as a commodity offends every conceivable principle of natural rights.“ Colin Ward, “The early squatters”, in Squatting: The Real Story, ed. Nick Wates and Christian Wolmar (London: Bay Leaf Books, 1980), 104
7 Alexander Vaseduvan, The Autonomous City (New York, London: Verso, 2017), Introduction, https:// www.perlego.com/book/731022/theautonomous-city-a-history-of-urbansquatting
8 The Brazilian Portuguese word favela is used to describe slums. Its origin lies on the name of Brazil‘s first slum, named Morro da Favela, known today as Morro da Providencia, in the harbour region of Rio de Janeiro. While favelas have been an urban phenomenon since the early twentieth century, they rapidly multiplied with Brazil’s industrialization process and population growth, especially during the second half of the century.
9 Engl.: Dream of homeownership.
10 Marcelo Edmundo, E-Mail to student, 2007.
11 David Harvey, “The Right to the City“, New Left Review 53, Sep-Oct 2008, 23.
In response, organised squats emerged in São Paulo in the beginning of the 1980s, initially focused on producing new housing units, inspired by Uruguay‘s self-management housing project - the Cooperativas de Vivivenda por Ayuda Mutua. However, they swiftly shifted their focus to abandoned buildings, due to high vacancy rates in central areas. Unlike their European counterparts, the Brazilian squatting movement primarily originated from the urgent need for housing and later evolved into a progressive agenda. Additionally, it is closely intertwined with the Brazilian „sonho da casa própria”9, a deeply ingrained cultural aspiration in Brazil, where owning a home is often seen as a significant life achievement and a symbol of stability and success.
“The house has a very strong symbolism: if we have an address, we are someone, and if we are someone, we have rights, and if we have rights, we can and should demand them, and that‘s where the danger lies for the eyes of the ‘powerful’.“10
Moreover, the Brazilian squatting movement is intrinsically linked to the country’s history of slavery and colonialism, which forcibly displaced black and indigenous populations from their homes. In this sense, more than a housing movement, they collectively reclaim their agency in shaping an urban landscape built upon exclusion, embodying David Harvey’s right to the city.
“It (the right to the city) is a right to change ourselves by changing the city. It is, moreover, a common rather than an individual right since this transformation inevitably depends upon the exercise of a collective power to reshape the processes of urbanization.”11
Rio de Janeiro, hailed throughout history as the “marvellous city”, the “Paris of the tropics”, the “Olympic city”, presents a paradoxical reality: a city that strove to mirror the project of a modern, europeanised Brazil; at the same time, a city shaped by inequality, where a quarter of its population lives in favelas, and its city centre prevails under a narrative of urban decay How could a growing city continuously have its central area decrease in population? How did the heart of the once country’s capital “fail into oblivion”? Surely there have been several attempts to revitalise, refurbish, renew, reactivate the region: but all sidelining lower-income populations in favour of corporate and commercial interests, exacerbating social inequalities. In light of
these failed urban strategies, the question arises: could urban squats offer a viable alternative in reactivating Rio‘s downtown area?
The choice to analyse the impacts of squatted buildings in this region is deeply personal. Growing up in Rio de Janeiro, I have witnessed first-hand the glaring disparities in the citythe result of high inequality and segregation. These disparities have prompted my desire to understand and address urban challenges faced by marginalised communities, often relegated to precarious living conditions on the city‘s periphery. Moreover, the repeated pledges from politicians to revitalise downtown Rio, including initiatives like Porto Maravilha, have piqued my curiosity regarding the efficacy of such urban redevelopment efforts. With the forced evictions leading up to the Olympic Games, which displaced several squatting communities in the downtown area, I have come to develope a deep admiration for squatters and their organising entities. By reclaiming a space historically denied to marginalised communities, squatters offer a bottom-up alternative for addressing housing challenges and urban redevelopment, one that prioritises community empowerment and inclusivity.
As we dive into the text, the subsequent chapters will unfold in two parts. The initial chapters will draw upon existing literature to delve into the background of urban squatting in Rio de Janeiro. The first chapter will focus on understanding the downtown area, exploring its borders, significance to the black movement, and current urban plans. The subsequent chapter will focus on the housing crisis in Brazil, touching upon the notion of “housing apartheid“ and the responses of housing rights movements, culminating in an examination of the nationwide housing policy, Programa Minha Casa, Minha Vida (PMCMV), initiated by President Luís Inácio Lula da Silva12 in 2009. The second part of this study will serve as an intermezzo: moving away from written sources of knowledge to focus on a case study, Vito Giannotti. Drawing from three months of field research conducted in Brazil between November 2023 and February 2024, this chapter will unfold around visuals, including photographs, floor plans, and oral interviews. Through these first-hand accounts, the story of the squat will be retold by the very individuals who made it happen.
12 Luiz Inácio Lula da Silva, or Lula, is a Brazilian politician and one of the founders of Partido dos Trabalhadores (PT) (engl.: Worker’s Party). He has been President of Brazil between 20032011 and was once again re-elected, in 2023. While his governance has been met with great polarisation among the Brazilian population, he remains one of the most influential politicians in the country.
Fig. 2 (next page): Picture by Pablo Vergara. Available at: Pablo Vergara, “Ocupaciones verticales: sobrevivir en la región portuaria de Río de Janeiro“, El País, April 29, 2023, https://elpais. com/planeta-futuro/2023-04-30/ ocupaciones-verticales-sobrevivir-enla-region-portuaria-de-rio-de-janeiro. html#?prm=copy_link (last accessed on March 6, 2024)
Squat Vito Giannotti stands as just one example amidst numerous squats dotting the central area of Rio de Janeiro. As a prominent emblem of organisation and accomplishment, it serves as an ideal showcase for the potential role of squats in redefining the downtown region of the city, with the same people and stories historically denied this space.


“Cidade maravilhosa
Cheia de encantos mil Cidade maravilhosa
Coração do meu Brasil”13
The history of Rio de Janeiro begins in 150214, when the initial contact between the Portuguese and the indigenous peoples inhabiting the region took place. However, because the area was not originally perceived as strategic by the Portuguese, mainly due to their interest in Brazilwood – which was scarce in the region, the city was only founded in 1565. Rio’s topography, nestled between the mountains and the sea, made it ideal for the establishment of a fortified centre and harbour, which contributed to the city’s rapid growth as a colonial port city and to its pivotal role in securing control over the colony. Moving swiftly into becoming the main point of slave trade in colonial Brazil, to being capital of Portugal’s empire and subsequent the capital of an independent Brazil, Rio de Janeiro was the beating heart of the country, bearing witness to its evolution through a palimpsest of architectural styles15. From colonial townhouses to belle-époque landmarks, and from Modernist high-rises to contemporary structures, the cityscape reflects the many phases of Brazil throughout history. However, Rio’s hegemony began to fade in the twentieth century, catalysed by the transfer of the capital to Brasília, in the 1960s. This shift marked a turning point in Rio’s trajectory, as its national importance diminished. Today,
“Rio’s city centre configurates a place of dispute, cyclically undergoing periods of investment, degradation (from the elite’s perspective) and renovation, when those interested in profiting from the (re)production of space emerge.”16
13 Engl.: Marvellous city / Full of a thousand charms / Marvellous city / Heart of my Brazil. Originally written in 1934, by Antonio André de Sá Filho, the song quick became one of the most popular carnival marches in Rio. In 1960, it was adopted as the city’s official anthem, being recognized by the local government in 2003, by Lei 3.611 de 12 de Agosto de 2003 O Globo, “’Cidade Maravilhosa’: Expressão que deu Nome ao Hino Carioca tem Origem Misteriosa”, March 1, 2021, https://oglobo.globo.com/cultura/ cidade-maravilhosa-expressao-quedeu-nome-ao-hino-carioca-tem-origemmisteriosa-24904185.
14 Here I refer to the history of Rio as a city, as the area had been previously occupied by tupinambas, indigenous people that inhabited Brazil’s coast before the arrival of the Portuguese.
15 Irene de Queiroz Mello, Trajetórias, Cotidiano e Utopias De Uma Ocupação No Centro Do Rio de Janeiro (Rio de Janeiro: Letra Capital, 2015), 59.
16 Mello, Trajetórias, Cotidiano e Utopias, 44.
Fig. 3: Picture by Leando Ciuffo, September 8, 2012. Available at: Flickr, https://www.flickr.com/photos/ leandrociuffo/7958684150/in/set72157624814401801 (last accessed on March 6, 2024)

Due to its peculiar topography, characterised by mountains that cut through the city, Rio de Janeiro’s urbanisation process has followed a unique trajectory. Unlike cities like Munich or São Paulo, which experienced radial urban expansion, Rio’ growth has been predominantly linear. The city began its development along the shores of Baía de Guanabara17, developing into two major stripes – south and north of the Tijuca Massif, which also encompasses the Tijuca National Park18. Consequently, Rio’s historic city centre finds itself somewhat displaced within the city’s geography, situated in the southeast part of the metropolis, where the first harbour was constructed. As a result, considerable distances of up to 70 kilometres can separate the newly developed neighbourhoods in the west from the city centre in the east.
17 Engl.: Guanabara Bay.
18 “One of the largest urban forests in the world, was established in 1861 by Emperor Pedro II to reforest the area affected by deforestation caused by sugarcane and coffee cultivation.“ Riotur, “Tijuca Florest”,https://riotur.rio/ en/que_fazer/tijucaforest/.
Fig. 4: The urban development of Rio de Janeiro. Drawing by author.
Urban development of Rio de Janeiro and the 4 zones of the city (topography lines every 200 meters).

19 “Pertaining to the city of Rio de Janeiro, capital of the state of Rio de Janeiro, or a native or inhabitant thereof. Origin: ETIM (1560) tupi kari‘oka, prov. from tupi kara‘ïwa ‚white man‘ + ‚oka ‚house‘” Oxford Languages, s.v. “carioca”, accessed March 10, 2024, https://www.oed.com/dictionary/ carioca_n?tl=true.
Fig. 5: Rio de Janeiro‘s planning areas. Drawing by author.
Fig. 6: Rio de Janeiro‘s AP1.Drawing by author.
Fig. 7 (next page): Figure plan of the referred neighbourhoods. Drawing by author.
The city’s administrative structure is organised into five primary Planning Areas (APs), further subdivided into Administrative Regions (R.A.), and neighbourhoods. The central area of the city corresponds to the first Planning Area (AP1) and is divided into administrative Regions I, II, III, VII, XXI and XXIII. Although only the R.A. II bears the name of Centro, this title is used by the cariocas19 to refer to a broader area, partially expanding into the R.A. I (Portuária). For this reason, the title Centro will be used herein to encompass the neighbourhoods of Gamboa, Saúde, Santo Cristo, Centro, and Lapa, transcending conventional administrative nomenclatures.
SAÚDE
plan of the referred neighbourhoods:
The central area holds significant historical importance in the development of Rio de Janeiro, tracing back to the city’s foundation in 1565. It was here that Portuguese colonisers first settled in the region, establishing a vital hub for the export of Brazilian goods, particularly sugar, which were shipped off to Portugal, while import materials, especially that from labour coming from African colonies, arrived. Although some sugar plantations were to be found in the adjacent areas to Rio, they were mostly located around Salvador20, in the northeast. It was only in the eighteenth century, with the discovery of gold in today’s equivalent area to Minas Gerais21, that Rio saw its economy flourish and became the hub for the export of gold and other minerals. This newfound wealth elevated Rio to capital of the colony, in 1753, prompting the construction of new buildings and infrastructure. Amidst Brazil’s golden age, workforce’s demands also increased, intensifying slave trade activities. Appalled by the sight of enslaved Africans in the city‘s political, economic, and religious centre, the local elite urged the government into relocating the commerce to a different area.
“The parade of half-naked, squalid and pestilential blacks in the political, economic, administrative and religious centre of the city, which had Paço dos ViceReis (today, Praça XV) as its epicentre, certainly brought embarrassment and fear to the elites, who were afraid of being contaminated by their diseases. Because of this, they had to be relocated far away, to a place with less exposure and visibility, where they wouldn‘t pose a threat or cause so much discomfort.”22
Thus, in 1774, Cais do Valongo is born - a wharf set apart from Rio’s urban core, in today’s equivalent neighbourhood of Gamboa. Surrounding the wharf, new constructions emerged to support the commercial activity, such as Cemitério dos Pretos Novos23 and Largo do Depósito24, shaping the region into a hub for slave trade activities. Here, an estimated one million African slaves arrived25 until its deactivation in 183126, marking Cais do Valongo as the largest gateway for forced black labour in the Americas27. Yet, even after its closure, the area continued to be occupied by freed slaves, who kept on working and living in the region, forging a community known as Pequena África28 - an enclave of Afro-Brazilian culture. It was also here, where Brazil’s first favela, Morro da Providência, took root, with first settlements dating from 1897.
20 Brazil‘s first capital, located in the state of Bahia, in the northeast region.
21 Neighbouring state to Rio de Janeiro, also in the southeast region of the country.
22 Tânia Andrade Lima et. al “Em Busca Do Cais Do Valongo, Rio De Janeiro, Século XIX”. Anais Do Museu Paulista: Estudos De Cultura Material 24 (January-April 2016), n.pag.
23 Burial place for those who did not survive the crossing and died on their way to Brazil.
24 Place where slaves were brought to gain weight, before being taken back to Valongo, to be sold to the local elite.
25 Slave Voyages, Transatlantic Database, accessed on March 5, 2024, https://www.slavevoyages.org.
26 Consequence of the prohibition of slave trade across the Atlantic, in 1831. The activity continued in illegal harbours.
27 Research conducted by the University of Emory, in Atlanta, USA, estimates that roughly 4.8 million slaves arrived in Brazil. This number is much higher than the original 3.6 million estimative by Maurício Goulart, published in his book African slavery in Brazil, in 1949. Another fact that draws attention is 2.5 million arrivals in southeastern Brazil alone, with 90% being in Rio. Available at: Slave Voyages, Transatlantic Database, accessed on March 5, 2024, https://www.slavevoyages.org.
28 Engl.: Little África
Fig. 8: “Valongo ou Mercado de Escravos no Rio“, drawing by Augustus Earle, etching by Edward Finden, April 5, 1824. Available at: Wikipedia, https:// pt.wikipedia.org/wiki/Ficheiro:Augustus_ Earle_-_Rua_do_Valongo.jpg (last accessed on March 5, 2024).

29 Settlements founded by African runway slaves who escaped and resisted the regime. Today, quilombos still exist in Brazil as a place ethnic, political and cultural resistance.
Fig. 9: The transfer of harbour activities. Drawing by author.
Fig. 10: Afoxé group Filhos de Gandhi at Pedra do Sal. Picture by unknown. Available at: Rio Antigo (@ rioantigo), Instagram, November 20, 2019, https://www.instagram.com/p/ B5GcRrxHGp0/?epik=dj0yJnU9dHVEa3FzSjc2c3BXbjNjQ2lINTNXemlCdjRZZndzdkkmcD0wJm49UnVOVjVXT051a0tmb2lmcE5sWnpXUSZ0PUFBQUFBR1huaFJj
Fig. 11 (next page): Casa da Tia Ciata, at Rua Visconde de Itaúna 119. The house served as refugee for many samba composers in the beginning of the twentieth century, but was eventually demolished. Today, Casa da Tia Ciata gives name to a cultural centre to honour her name, also in the Pequena África. Picture by Augusto Malta. Available at: Arquivo Geral da Cidade do Rio de Janeiro.
Fig. 13 & 14 (p.32): First esvacations for the Cais do Valongo, 2011. Picture by: Tânia Lima Andrade et al. Available at: Andrade et al, “Em busca do Cais do Valongo“, n. pag. (last accessed on March 5, 2024).
Fig. 15 (p.33): Cais do Valongo after escavation. Picture by unknown. Available at: Maria Monteiro, „Cais do Valongo, principal porto de entrada de escravos no Brasil, classificado pela UNESCO“, Público, July 10, 2017, https://www.publico.pt/2017/07/10/ culturaipsilon/noticia/cais-do-valongoprincipal-porto-de-entrada-de-escravos-no-brasil-classificado-pela-unesco-1778558 (last accessed March 5, 2024)
However, a mere twelve years after its deactivation, Cais do Valongo was covered to make way for Cais da Imperatriz, a new harbour constructed to receive Princess Teresa Cristina, wife of Brazil’s at-the-time Emperor, Dom Pedro II. Several decades later, the structure faced yet another layer of transformation. This time, it was covered as part of Pereira Passos’ ambitious urban renewal efforts, which expanded the harbour area towards Baía de Guanabara through the creation of artificial embankments. It was only in 2011 that construction crews discovered the ruins of Cais do Valongo, under preparation works for the 2016 Rio Olympic Games. The double layering of this historical wharf carries with itself profound symbolism, representing the ongoing erasure of black communities in this region, who, from the beginning of the twentieth century, also suffered with diverse evictions policies, justified by the hygienist and modernist movements. In this sense, the Pequena África emerged as a symbol of resistance. While the population residing in this area has dwindled over time, landmarks such as quilombo29 Pedra do Sal and Casa da Tia Ciata continue to be cherished and frequented by Rio’s African Diaspora population, serving as reminders of their heritage and resistance in the region.
Left: Transfer of slave-trade activities from Praça XV to Cais do Valongo, in 1774.
Highlighted, the area known as Pequena África.





In the mid-nineteenth century, Brazil found itself amidst great transformation, its cities experiencing a significant population surge. Following the abolition of slavery in 1888, and the influx of new working-force coming from Europe, lower-income groups gathered in overcrowded tenement houses, known as cortiços - typical housing typology during the late nineteenth and early twentieth centuries. Unlike European tenement houses, they were usually established in already existing structures, mainly bourgeois houses that were later subdivided into small apartments. In parallel to the housing crisis, Rio de Janeiro grappled with rampant epidemics, including yellow fever and tuberculosis, largely attributed to unsanitary living conditions and rapid population growth. Both housing and sanitary crises unfolded almost in tandem, with the central are as its epicentre, where disordely and dense cohabitation proliferated on an increasingly large scale 30 .
In response, cortiços were singled out as hotbeds for disease transmission and were gradually demolished. Among the most remarkable episodes during this period is the implosion of Cabeça de Porco31, a cortiço in Rio’s harbour region, with approximately 2 thousand inhabitants32. Its demolition in 1893, marked the beginning of a series of evictions, forcing displaced residents to seek housing in the city’s outskirts. It also initiated a series of urban reforms, such as the expansion of the city to other areas, norms for the construction of hygienic houses, opening of big avenues and squares, forestation, among others33
The turn of the century was marked by an even more accelerated population growth, and Rio de Janeiro struggled to find its place among other international capitals. With the country’s economic growth and presence in the international market, there was a need for a modernised capital, one that symbolised the “new Brazil”34. This, coupled with the still recurring epidemics in the city and concerns over public health, culminated in Pereira Passos’ Urban Reform, in 1903.
“(…) the city‘s growing importance in the international context did not fit in with the existence of a central area that still had colonial characteristics, with narrow and shady streets, and where the seats of political and economic power were mixed with carts, animals and cortiços.”35
30 Jaime Larry Benchimol, Pereira Passos: Um Haussmann Tropical - A Renovação Urbana da Cidade do Rio de Janeiro no Início do Século XX (Rio de Janeiro: Secretaria Municipal de Cultura, Turismo e Esportes, 1992), 124.
31 Engl.: Pig‘s head.
32 Cabeca de Porco”, Rio Memórias, https://riomemorias.com.br/memoria/ cabeca-de-porco/.
33 Benchimol, Pereira Passos: Um Haussmann Tropical, 117.
34 Maurício A. Abreu, A Evolução Urbana do Rio de Janeiro (Rio de Janeiro: Publicações Pereira Passos, 2022), 81.
Fig. 16: : Cover of Revista Illustrada (local newspaper) announcing the demolition of cortiço Cabeça de Porco, in 1893. Available at: Revista Ilustrada, n 656, February, 1893 quoted in Abreu, A Evolução Urbana do Rio de Janeiro, 68.
Fig. 17: Charge of Oswaldo Cruz cleaning-up the Morro da Favela,.” Available at: O Malho n 247, June 8, 1907, https://commons.wikimedia. org/wiki/File:Oswaldo_Cruz_passa_o_ pente_fino_da_“Delegacia_da_ Hygiene%22_no_Morro_da_Favela.jpg (last accessed on March 3, 2024).
35 Abreu, A Evolução Urbana do Rio de Janeiro, 81.

Announcement of Cabeça de Porco‘s demolition at the local lewspaper “Revista Illustratada“, in 1893.

Charge of Oswaldo Cruz cleaning up the Morro da Favela.
“An indispensable cleanup. Hygiene is going to clean up Morro da Favela, next to the Central Railway. To do so, it has ordered residents to move out in ten days“
During this time, two major Reforms took place in Centro: one on the federal level, carried out in the harbour area by President Rodrigues Alves, and the other by mayor Pereira Passos, which focused on the old colonial urban fabric of the city. Besides matters of insalubrity, Passos’ project aspired to the aesthetic of European cities, and many of its key ideas were taken from Georges-Eugène Haussmann’s Reform, which less than a century before drastically changed the image of Paris.
Central to the initiative was the demolition of collective housing complexes, considered by public authorities unfit and the focus of several diseases, and the creation of wide avenues to accommodate vehicular traffic and pedestrian flow36. Under the veil of public health measurements, roughly twenty thousand people lost their homes to the project37, disproportionally affecting lower-income communities - who, until this point, had always lived in the central area of the city, especially in the harbour region. This led both mayor and in motion reform to be popularly known as Bota-Abaixo38. Besides the spatial changes that took place during this period, one of the first measurements of mayor Pereira Passos was the prohibition of informal trading, which directly affected the lower-income population of the city, that very much relied in this type of work. Concurrently, it increased profit from merchants39, accentuating the pre-existing economic gap in Rio de Janeiro. It is also worth mentioning, that very few new popular housing complexes were built, in order to reallocate the evicted populations of Centro40
“… it (Centro) was gradually losing its picturesque and unmistakable appearance as a great Portuguese villa. The ugly, heavy colonial buildings had been modified and archaic commercial uses had been banished. She had abandoned her unflattering clothes forever, as if in a gesture of repulsion from a lady of high distinction. She wanted to be young and beautiful, with cars whetting her craving for a full and comfortable life.”41
Although the Bota-Abaixo was successful in diminishing the incidence of several diseases, the reform had a strong impact in the social-spatial organisation of Rio de Janeiro until this day. Passos’ Reform is held as one of the primary reasons for the accelerated process of favellisation42 that took place from 1900s onwards, as evicted marginalised groups sought for housing alternatives in the outskirts or slopes of the city.
36 Schumtzler Abrahão, “O “BotaAbaixo” De Pereira Passos: Transformação Urbana Como Artifício Civilizatório?”, Trabalhos De Antropologia e Etnologia, 2022, 162.
37 Lucas Faulhaber & Lena Azevedo, SNH: As Remoções No Rio de Janeiro Olímpico (Rio de Janeiro: Mórula, 2015), 36.
38 Engl.: to demolish.
39 Lessa, O Rio de Todos os Brasis, 2000 quoted in Abrahão, “O “BotaAbaixo” De Pereira Passos”, 162.
40 Abreu, A Evolução Urbana do Rio de Janeiro, 86.
41 Francisco Agenor Noronha Santos, Meios de Transporte no Rio de Janeiro 1934 quoted in Abreu, A Evolução Urbana do Rio de Janeiro, 86.
42 From the Brazilian Portuguese favelização, it is the spatial process of forming a favela.
43 Schumtzler Abrahão, “O “BotaAbaixo” De Pereira Passos”, 163.
44 Abreu, A Evolução Urbana do Rio de Janeiro, 100.
45 Abreu, A Evolução Urbana do Rio de Janeiro, Abreu, 100.
Fig. 18: “Alargamento da Rua Uruguaiana“, picture by Augusto Malta, 1905. Available at: Enciclopédia Itaú Cultural de Arte e Cultura Brasileira, https://enciclopedia.itaucultural.org. br/obra19714/alargamento-da-ruauruguaiana (last accessed on March 8, 2024)
Fig. 19: „Desmonte do Morro do Castelo“, picture by Augusto Malta, 1922. Available at: Enciclopédia Itaú Cultural de Arte e Cultura Brasileira, https://enciclopedia.itaucultural.org. br/obra19718/desmonte-no-morrodo-castelo (last accessed on March 8, 2024)
Fig. 20: Picture by unknown. Available at: Arquivo Geral da Cidade do Rio de Janeiro.
Fig. 21: Picture by unknown. Available at: Arquivo Geral da Cidade do Rio de Janeiro.
Fig. 23: Cover of O Globo (local newspaper), at August 1, 1936. Available at: Cronologia de Augusto Malta, Brasiliana Fotografica, January 6, 2021, https://brasilianafotografica. bn.gov.br/?p=20908 (last accessed on March 8, 2024)
“(…) as they were forbidden to work and move around the city centre, stigmatised in a profile of potential risk of contagion and bad habits and customs, they had the alternative of migrating to the outskirts of the city or to steep hills in search of affordable but precarious places to live.”43
In the subsequent years, additional urban interventions reshaped Rio’s central area. In 1922, mayor Carlos Lacerda sanctioned the implosion of Morro do Castelo, hill where the city was first founded. Despite its historical importance, the hill had become home to working-class families, and the decision was justified by the improvement of air circulation in the area44. Also, the houses at the foot of the hill were demolished, making space for the International Exposition celebrating 100 years of independence45. With the growth of the city towards the South and North Zones, the spatial segregation became even more pronounced. Public funds flowed predominantly to the new South Zone, catering to the elite, while the North Zone became characterised by popular housing complexes and industrial zones. Slowly, Rio de Janeiro witnessed its bustling downtown centre being shaped and transformed into a political and economic symbol, only to subsequently decline in the ensuing years.




While cortiços kept on being teared down at sea level, the hills of the city were slowly occupied by rudimentar dwellings. Images of Pereira Passos‘ Bota-Abaixo, in 1905 and the implosion of Morro do Castelo, in 1922. At the bottom, first settlements at Morro da Favela, today Morro da Providência, in the harbour region.


Cover of local newspapers celebrating the urban renewals by mayor Pereira Passos. At the top, text reads: “Pereira Passos orders the demolishment of colonial Rio: With the new mayor pereira passos, it becomes clear that Rio de Janeiro will no longer be a fetid, disease-ridden city. In place of the ‘cemetery of europeans‘, an unflattering nickname that the capital of the republic had earned, the city will be reborn as the grandest example of the tropical belle époque.“
The urban reforms of the early 1900s strove for a Rio de Janeiro comparable to major European centres, with the central area mirroring the city’s status as the federal district, cultural and political hub of Brazil. However, this vision underwent a significant shift in the 1960s with the transfer of the country’s capital to Brasília, resulting in the loss of one of Rio’s main economic driving forces. Concurrently, other regions of the country underwent industrialisation, diminishing Rio’s economic significance46. As a direct consequence, the downtown area experienced an increase in vacant buildings and a decline in overall relevance. This trend was further exacerbated by the suburban expansion, drawing not just the middle classes towards the South Zone, but also attracting industries and working-class to the North and West Zones of the city. This is also explained by the production of housing complexes in neighbourhoods such as Realengo, Bangú and Marechal Hermes 47 .
In 1976, a decree48 accelerated this process even further, by prohibiting the construction of residential buildings in nearly the entire central region - influenced by Modernism’s functionalist ideology, prevalent in Brazil’s urban planning. This policy lasted until 1994, a period where the population in Centro further decreased in 23% (and 33% in the harbour area), while Rio de Janeiro had a demographic increase of 40%49.
The cumulative urban changes throughout the twentieth century have profoundly shaped Centro’s current composition. In 2021, program Centro para Todos (CPT) released a mapping of abandoned buildings within the central area50, focusing on the perimeter between Lapa, Cruz Vermelha and Praça XV. Out of over four thousand buildings analysed, 549 were found to be vacant, 329 were subtilised (with either only the ground floor or the upper floors) and 53 were in ruins. The study also identified 82 vacant plots, concentrated around the areas of Lapa, Saara and Cruz Vermelha. Following the collapse of a townhouse in Praça XV in October 202351, Centro’s subprefecture conducted another survey52, identifying 158 vacant buildings at risk of collapsing. Although both surveys offer some insight into the current situation of Centro, precise data regarding the total number of abandoned buildings across the entire central area (AP1) remains elusive. Nonetheless, it is reasonable to suppose this pattern extends to non-analysed regions.
46 Matheus da Silveira Grandi, “Práticas Espaciais Insurgentes e Processos De Comunicação: Espacialidade Cotidiana, Política De Escalas e Agir Comunicativo No Movimento Dos Sem-teto No Rio de Janeiro” (master thesis, Universidade Federal do Rio de Janeiro, 2010), 168.
47 Nelson da Nóbrega Fernandes, „Capitalismo e Morfologia Urbana Na Longa Duraçao: Rio de Janeiro (Século XVIII-XXI)“, Diez Años de Cambios en el Mundo, en la Geografía y en las Ciencias Sociales, 2008, n.pag.
48 Decree Lei nº322, de 3 de Março de 1976
49 Ivan Zanatta Kawahara, “O Papel do Estado Na Promocao Da Segregacao Na Cidade do Rio de Janeiro, XVI ENANPUR: Espaco, Planejamento E Insurgencias, 2015, 18.
50 DATA RIO Programa Centro Para Todos - Survey And Mapping Of Empty And Underused Properties In The Centro Area, accessed on February 25, 2024, https://www.data.rio/documents/646eb634f98b447098b9a98f45da1955/explore
51 Beatriz Perez, “Caminho Fechado: Desabamento De Casarão Interdita o Arco Do Teles e Ameaça Estruturas”, O Dia, October 20, 2023, https://odia.ig.com.br/ rio-de-janeiro/2023/10/6727455caminho-fechado-desabamento-decasarao-interdita-arco-do-teles-eameaca-estruturas-vizinhas.html
52 Luiz Ernesto Magalhães, “Centro Do Rio Tem 158 Imóveis Abandonados. Saiba Quais São As Ruas Com Prédios Em Pior Estado”, Extra, October 18, 2023, https://extra.globo.com/rio/ noticia/2023/10/centro-do-rio-tem-158imoveis-abandonados-saiba-quais-saoas-ruas-com-predios-em-pior-estado. ghtml
Fig. 24: Concentration of vacant buildings. Drawing by author, based on map from CPT‘s 2021 study. Available at: DATA RIO Programa Centro Para Todos - Survey And Mapping Of Empty And Underused Properties In The Centro Area, https://www.data.rio/ documents/646eb634f98b447098b9a98f45da1955/explore (last accessed on February 25, 2024).
Right: Incidence of vacant buildings in the R.A. II, 2021.









53 Grandi, “Práticas Espaciais Insurgentes”, 168.
54 Rafael Galdo & Selma Schmidt, “Cidade Do Rio Tem 1.123 Imóveis Públicos Em Nome Dos Extintos Estados Da Guanabara e Prefeitura Do Distrito Federal”, O Globo, September 26, 2021, https://oglobo.globo.com/ rio/cidade-do-rio-tem-1123-imoveispublicos-em-nome-dos-extintos-estadoda-guanabara-prefeitura-do-distritofederal-25213244.
Guanabara was a short-lived Brazilian state that emerged as an outcome of the transfer of Brazil‘s capital to Brasília, in 1960. The former federal district was transformed into the state of Guanabara, with Rio de Janeiro as its capital. 15 years later, Guanabara was absorbed into the state of Rio de Janeiro.
55 Grandi, “Práticas Espaciais Insurgentes”, 168.
56 Predicted in Articles 182 and 186 of Brazil’s 1988 Federal Constitution.
Fig. 25: Different headlines on Centro‘s high vacancy over the last 10 years. Collage by author.
Another facet concerning Centro’s vacancy is the prevalence of empty buildings owned by the State, many of which coming from old administrative purposes, or acquired by public entities through debt payments53. Additionally, there are 1.123 edifications across Rio de Janeiro which are still property of the dissolved Federal District of Rio de Janeiro and State of Guanabara54, with the transfer of ownership to the current State of Rio de Janeiro not occurring automatically. This complicates efforts to refurbish and preserve these structures, which all too often end up empty. Other remaining buildings are associated with the port’s industrial activities and are kept vacant by companies for speculative purposes and as capital reservoir55.
In this context, empty buildings will be understood as housing possibility, and their higher presence in Centro will contribute to the argument of reoccupying central areas by historically marginalised populations. Social movements for housing rights demonstrate a special interest in state-owned buildings, viewing their vacancy as a direct contradiction to the social function of property56 and the government’s obligation to provide adequate housing for all citizens.
Despite undergoing a population decline over the twentieth century, Centro never truly lost its vitality. The shift in the city’s development towards other areas led to an abandonment of the central region by the local elite, who established new shopping hubs in the South Zone and Barra da Tijuca57. Nevertheless, Centro endured as a commerce and services hub, largely fuelled by informal trade which became officially recognised within Rio‘s urban economy in the 1980s58. The central area also kept on as an important business and political centre, housing most of Rio de Janeiro’s state apparatus and the second-large business district in the country, the Área Central de Negócios do Rio de Janeiro59 .
In this narrative, despite efforts to gentrify and purge residential life from Centro, lower-income groups persistently returned, occupying the region through informal settlements. This is evident by the significant population surge experienced in Centro between 2000 and 2010, particularly in the R.A. Portuária (Fig. 26), crossed with the overall income decline of the region’s residents (Fig. 27).
This development will be perceived by the local elite as further evidence of “degradation”, which summed with the high number of vacant buildings, prompted a series of urban plans for the region throughout the twentieth-first century. To validate such initiatives, the discourse of “urban decay” assumes vital importance, as portraying Centro as a
“(…) degraded central region, relegated to a ‘marginal’ population (street vendors, beggars, prostitutes, homeless people, abandoned minors, and the poor in general), already includes a solution. Since it has become a recognisably ‘lifeless’ space, it needs to be ‘revitalised’: ‘It’s a double movement: making the Centro viable as a place of poverty in order to return it to its former place of wealth”60
Amidst this backdrop, various strategies were drawn with the premise of revitalising the region and boosting overall tourism in the city, thus regaining the “lost image” of the cidade maravilhosa61. This led to several measurements taken by the local government, such as programs Rio-Cidade62 and FavelaBairro63. Moreover, Rio pursued the bid to host the 2004 Olympic
57 Mello, Trajetórias, Cotidiano e Utopias, 44.
58 Mello, Trajetórias, Cotidiano e Utopias, 57.
59 Mello, Trajetórias, Cotidiano e Utopias, 56.
60 Edson Miagusko, 2008 quoted in Mello, Trajetórias, Cotidiano e Utopias, 45.
61 Engl.: Marvelous city
62 Rio-Cidade was an urban program sanctioned by mayor Cesar Maia (19931997) and continued over the following years. It aimed on improving the overall infrastructure of the city, such as sewage, lightining and rainwater dreinage.
63 Favela-Bairro was a program institutionalised during Cesar Maia‘s tenure (1933-1997), with the main goal of urbanising favelas - safer constructions, sewage infrastructure, leisure spaces and so on. The program was discontinued in 2010 and replaced by Eduardo Paes‘ Morar Carioca - and re-activated in 2017 (now in its IV phase).
Fig. 26: Population according to the Planning Areas (Aps) and Administrative Regions (R.A.)1991/2010. Source: Adapted to english from Mello, Trajetórias, Cotidiano e Utopias, 65.
Fig. 27: Average income according to housing situation - in R$. Source: Adapted to english from Mello, Trajetórias, Cotidiano e Utopias, 65.
Population according to Planning Areas (APs) and Administrative Regions (R.A.) - 1991/2010 Average income according to housing situation - in R$ -
Administrative Regions
House owner (paid-off) House
(monthly instalments)
64 Named Rio Sempre Rio, this urban plan was the first strategic plan for a city in the south hemisphere. In the document, the project of the city is based on two main characteristics: the urban space should be competitive and welcoming. Released in 1995, the plan has been reviewed and redrafted every four years.
65 In the context of “rediscovery“ of Rio‘s colonial city centre, SAGAS aimed on preserving historical buildings in the harbour region of the city.
66 A more detailed description of the project and the political machinations that ensured its realisation is available at: Betina Sarue, “Quando grandes projetos urbanos acontecem? Uma análise a partir do Porto Maravilha no Rio de Janeiro”, Dados 61, 2018.
Games, which, although unsuccessful, prompted the drafting of the First Strategic Plan for the City of Rio de Janeiro64. Aligning with the global trend of redeveloping harbour areas across the world, exemplified by projects such as London’s docklands, and Baltimore’s Inner Harbour, Rio’s local government explored ideas for the R.A. Portuária as early as 1983, with initiatives like SAGAS65 (Saúde, Gamboa, Santo Cristo), and Porto do Rio, in 2001.
However, it wasn’t until the coordination with mega-events like the 2014 World Cup and 2016 Rio Olympic Games, that sufficient resources on a federal and private level, coupled with consensus among Rio’s citizens, coalesced into the Porto Maravilha project66 - a consortium between private and public capital, with federal, state, and municipal investments. Backed up by “successful stories”, such as the Port Olímpic, in Barcelona, and Puerto Madero, in Buenos Aires, Porto Maravilha aimed to transform Rio’s “degraded harbour region” into a cultural, touristic, leisure, and business centre. Key urban developments within the scope of Porto Maravilha include (i) the demolition of the Elevado da Perimetral, a crucial thoroughfare linking various parts of the city, to enable visual and physical connection with the coastline; (ii) the construction of two museums, Museu de Arte do Rio (MAR) and Museu do Amanha, from architect Santiago Calatrava; and the (iii) implementation of a LRV (Light Rail Vehicle) system, connecting the neighbourhoods in the harbour region and the bus terminal, with Centro neighbourhood and the Airport Santos Dumont.
67 Detailed information on the evictions under the Porto Maravilha project are available at: Faulhaber & Azevedo, SNH: As Remoções No Rio de Janeiro Olímpico
68 Letícia de Carvalho Giannella, A produção histórica do espaço portuário da cidade do Rio de Janeiro e o projeto Porto Maravilha”, Espaço e Economia 3, 2013, 11.
69 Felipe Litsek et al., “Programa Reviver Centro “turbinado”: a expansão da lógica do mercado na requalificação da região central carioca”, Observatório das Metrópoles, April 13, 2023, https:// www.observatoriodasmetropoles.net. br/programa-reviver-centro-turbinadoa-expansao-da-logica-do-mercadona-requalificacao-da-regiao-centralcarioca/
Fig. 28: Porto Maravilha. Drawing by author.
Fig. 29: Picture by unknown, 2013. Available at: G1, Fotos: Demolição do Elevado da Perimetral, November 24, 2013, https://g1.globo.com/rio-dejaneiro/fotos/2013/11/fotos-demolicaodo-elevado-da-perimetral-.html (last accessed on March 8, 2024)
Fig. 30: Picture by Brenno Carvalho, 2020. Available at: Selma Schmidt, Zona Portuária: Uma Região de Contrastes, O Globo, February 2, 2020, https://oglobo.globo.com/ rio/zona-portuaria-uma-regiao-decontrastes-24210821 (last accessed on March 8, 2024)
Fig. 31: Rendering by Aflalo & Gasperini Arquitetos. Available at: Alison Furuto, “Trump Towers Proosal / Aflalo & Gasperini Arquitetos”, Archdaily, January 17, 2013, https://www. archdaily.com/317905/trump-towersproposal-aflalo-gsperini-arquitetos.(last accessed on March 8, 2024)
To ensure these measures and remove the region from its place of “decadence”, numerous forced evictions were carried out in the vicinity of the 2016 Rio Olympic Games67. Notable examples include Casarão Azul (2009), Flor do Asfalto (2011), Guerreiros do 510 (2009), Machado de Assis (2012) and Zumbi dos Palmares (2011) - all urban squats in the central area of the city. While the displaced families received social rent until being reallocated to social housing units, these were predominantly situated in the AP5, approximately 70 km away from their original homes and lacked adequate urban mobility infrastructure. In the more residential and historically significant parts of the harbour region, such as Morro do Pinto, Morro da Conceição and Morro da Providência, efforts focused on urbanisation and promoting tourism, while aiming to preserve the cultural identity and memories of the local population. However, “similar revitalisation projects have led to a sort of museification, that ends up driving out local populations and replacing them with a middle-class population eager to experience living or launching commercial ventures in a bucolic and charming environment”68. Evictions were also underway in these areas, justified by claims of hazardous conditions posing risk to resident’s lives.
With Brazil’s economic and political crisis from 2013 onwards, many investors withdrew from the project, leaving the area with underutilised urban infrastructure. In 2020, a study depicted that during the first decade of the program (2010-2020), only 77 new establishments were licenced in the whole harbour region, including the reform of existing buildings, a very small amount considering the plan’s coverage area69. Today, Rio’s harbour region grapples with emptiness, as Porto Maravilha did not prioritise residential or affordable housing. Instead, the focus was on attracting private investments for corporate buildings and tourism-related facilities, resulting in a population density that fluctuates with working hours and holidays.
Left: Porto Maravilha‘s coverage area and main urban works of the program.



Rendering of the Trump towers, in the harbour area. Complex would be the biggest corporate centre in Brazil, with 38-floors across 5 buildings. The first two towers should had been completed in time for the 2016 Olympic Games, but construction works never started. The area destined for the project had been partially occupied by squat Quilombo das Guerreiras, evicted in 2014.
Corporate complexes, glass facades and high-rise buildings were part of the moodboard for a new, revitalised harbour area.
In 2021, re-elected mayor Eduardo Paes70 launched a new plan for the central area of the city: Reviver Centro. Unlike its predecessor Porto Maravilha, which also took place under Paes’ administration, the project focuses on strategies for the refurbishment and preservation of historical buildings in Centro and multifamily housing. This approach gained heightened significance following the Covid-19 Pandemic, as the low housing density in the region and absence of mixed-use buildings left the streets of Centro deserted even during daylight hours, contributing to increased criminality and stigmatisation by the population.
“The Reviver Centro Program aims to attract residential use, promote different income brackets, change the perception of Centro, and implement lasting revitalisation, bringing a more dynamic lifestyle to Centro. In this sense, the program aims to protect and expand residential areas, encourage the retrofitting of buildings with benefits, improve public services, promote culture, and present the centre as a modern and dynamic region.” 71
Although preservation and investment in central areas are crucial and warrant further exploration, there remains a persistent risk that processes of gentrification comes concealed under terms such as revitalisation. This concern is particularly pertinent for Centro, given the region is predominantly inhabited by lower-income groups in informal settlements, such as favelas, squats and cortiços72,making them more susceptible to urban transformations. In the case of Reviver Centro, several aspects of the program raise concern regarding its inclusivity for the existing population73. These include the (i) project coverage area, which exclude Morro da Providência and Caju, and is not aligned with previous Porto Maravilha74; (ii) lack of an action plan regarding the 2015 approved Plan for Social Housing in the Harbour Region (PHIS)75; (iii) oversight of cortiços; and (iv) deficiency of popular participation76.
Following the wave of evictions that took place under Porto Maravilha, current urban plan Reviver Centro once again fails to address the needs of current inhabitants, focusing solely on attracting new residents to the area. Although increasing housing density is a commendable goal, it must be pursued in collaboration with the existing population, as to avoid inadvertently displacing lower-income classes through gentrification.
70 Eduardo Paes is a politician from Partido Social Democrático (PSD). He was first elected mayor of the city of Rio de Janeiro in 2009, position he occupied until 2017. In 2021, he was once again elected and is current mayor of the city.
71 Oscar et. al, “O Programa Reviver Centro E Sua Proposta Para Mitigar Problemas Urbanos.” XIX Encontro Nacional de Tecnologia do Ambiente Construído, 2022, 6.
72 A 2021 Study by Observatório das Metrópoles points out there are at least 155 cortiços in Centro, with approximately 2.638 inhabitants. About 100 of those are in the Reviver Centro coverage area. Available at: Observatório das Metrópoles, “Projeto Prata Preta: levantamento de cortiços da área portuária do Rio de Janeiro”, June 4, 2019, https://www. observatoriodasmetropoles.net.br/ relatorio-corticos-na-area-central-do-riode-janeiro/.
73 Tarcyla Fidalgo et al., “Reviver O Centro. Para Quem? Análise Preliminar Sobre O Programa Apresentado Pela Prefeitura do Rio de Janeiro”, Observatório das Metrópoles, May 20, 2021, https:// www.observatoriodasmetropoles. net.br/reviver-o-centro-para-quemanalise-preliminar-sobre-o-programaapresentado-pela-prefeitura-do-rio-dejaneiro/.
74 In the article by Fidalgo et al. the coverage area also does not include the neighborhoods of Santo Cristo, Saúde and Gamboa, which are all part of the R.A. Portuária. However, the official website of the project does mention the area, which leads to believe that the plan suffered alterations since its launch in 2021. Regardless of such, only R.A. Centro is under direct administration of the City of Rio de Janeiro, while R.A. Portuária lays under the administration of Companhia de Desenvolvimento Urbano da Região do Porto (CDURP).
75 The Porto Maravilha Social Interest Housing Plan (PHIS) was designed to be a social counterpart to the public investment coming from the FGTS Fund for the consortium urban operation of Rio de Janeiro‘s port region. However, until 2017, the Porto PHIS has only delivered 24 housing units, out of a target presented by Rio City Hall of around 5,000 units. Mariana Werneck, “Habitação Social no Porto Maravilha: Cadê?”, Observatório das Metrópoles, May 24, 2017, https://www. observatoriodasmetropoles.net.br/ habitacao-social-do-porto-maravilhacade/.
76 Fidalgo et al., “Reviver O Centro. Para Quem?”, Observatório das Metrópoles
77 Fidalgo et al., “Reviver O Centro. Para Quem?”, Observatório das Metrópoles
78 One of the proposed mechanisms by the plan is, for example, the so-called interconnected operation - where construction companies receive incentives to build in other valued areas across the city, such as Copacabana, Ipanema, Lagoa, and others.
79 Litsek et al., “Programa Reviver Centro “turbinado”, Observatório das Metrópoles.
80 Litsek et al., “Programa Reviver Centro “turbinado”, Observatório das Metrópoles
81 Litsek et al., “Programa Reviver Centro “turbinado”, Observatório das Metrópoles.
82 Porto Maravilha Social Interest Housing Plan.
83 Marcelo Edmundo, WhatsApp Message to author, March 1, 2024.
Fig. 32: Picture by author, taken on December 2, 2024.
Fig. 33: Reviver Centro. Drawing by author.
“(…) even if the public authorities don‘t remove people, the program presented could start a process of gentrification, with the indirect expulsion of the poorest population, increasing the prices of living in the central region and changing the uses of spaces. Despite providing for the development of programs, such as Social Rental and Assisted Housing, the project does not make it clear how they will work.”77
In 2023, the plan was revised and altered by Lei Complementar n 109/2023, increasing the incentives and concessions to the real state sector, as to boost transformations in the area78. This confirms the already observed logic of the market which permeates the urban plan, with the danger of construction companies and real state dictating and shaping the area to their own interests79. In the two years of program, there has also been an observed tendency of endeavours composed by studio apartments, with a maximum of 30 square metres each80. This excludes lower-income population and families, prioritising units for seasonal rental, such as Airbnb’s81. Also important to note is the lack of public participation in the project, which had already been the case during the Porto Maravilha.
“There was no participation! We even asked for it and nothing happened! The movements and not even the local residents and organisations. Zero participation. (…) Unfortunately, these projects did not bring any improvements to the population living in the region, especially in terms of housing. (...) There are more than 6 thousand housing units being built in the harbour region and not one, not one is destined to social housing (HIS), even though they are predicted in the harbour’s PHIS82 plan.”83
While it is premature to ascertain the long-term repercussions of Reviver Centro, there is a risk that the plan may mirror the observed trend from Porto Maravilha and other urban projects since the late nineteenth century, gradually displacing the local population of Centro, to accommodate middle-class housing and corporate developments. Thus, erasing the historical memory of slaves and working class, who have shaped, resided, and laboured in the area throughout Rio’s history. And who share deep sense of belonging with the region, especially concerning the Pequena África.

Portuguese arrive in Rio de Janeiro.
Colony (1500-1822)
Official foundation of the city. Transfer of the capital from Salvador to Rio de Janeiro. Construction of Cais do Valongo. Royal family arrives in Brazil. Rio de Janeiro is elevated to capital of Portugal‘s Empire.
Declaration of Independence. Rio becomes capital of Brazil.
Empire (1822-1889) Republic (1889-1964)
Prohibition of slave-trade in the Atlantics. Cais do Valongo is deactivated.
Implosion of cortico Cabeca de Porco.
Pereira Passos‘ urban reform (coverage of Cais do Valongo, mass evictions).
1502 1565 1763 1774 1808 1822 1831 1893 1903
Rio de Janeiro as capital of the country
Republic (1889-1964)
Implosion of Morro do Castelo.
Military dictatorship (1964-1985)
Transfer of the capital to Brasília
Sanction of decree prohibiting new residential buildings in the central area
1st urban plan for the harbour region: SAGAS 1976‘s decree is revogated. Population decreased 23% in Centro (33% in the harbour region)
Democracy (1985-today)
Porto Maravilha. Brazil‘s Worldcup. Rio Olympic Games Reviver Centro
The right to housing is ensured in Brazil’s 1988 Federal Constitution (article 6)81, as well as in the World Charter for the Right to the City82. Nevertheless, access to adequate housing remains one of the most pressing urban challenges in the country. As previously mentioned, Brazil’s rapid urbanisation in the twentieth century led to a significant shortfall in housing supply compared to the growing urban population. This produced a housing crisis, characterised by overcrowded tenement houses and the proliferation of informal settlements, the favelas, on the outskirts and slopes of cities.
In this period, the number of informal settlements in Brazil skyrocketed, with approximately 16 million people currently residing in favelas83, constituting roughly 11% of the country’s entire population. The “problem of the favela”84 has become emblematic of urban life in Brazilian cities, often referred to as the Brazilian “housing apartheid”85. This term underscores the significant spatial segregation and socio-economic disparities that persist in urban areas, largely attributed to inadequate housing policies and systematic government displacement efforts. Although not an enforced segregation, the high levels of inequality in Brazil exacerbate the difficulties faced by lower-income families in accessing the “formal city”. This is amplified by the country’s history of slavery, with poverty rates disproportionately affecting black populations. In 2022, the proportion of poor individuals among white Brazilians stood at 18.6%, compared to 34.5% among black Brazilians and 38.4% among pardos86 87 .
“The process of intense migration to large cities, capitals, and their peripheries, combined with the population‘s high birth rates and the absence and inadequacy of urban and housing policies in Brazil, contributed to a wave of explosion of the peripheries by working class families who, without counting on help or support from the state, were forced to build their own homes, neighbourhoods, and infrastructures under intense and lasting sacrifices.”88
81 “Art. 6 Social rights are education, health, food, work, housing, transport, leisure, security, social security, protection of motherhood and childhood, assistance to the destitute, in the form of this Constitution.“ BRASIL. Const. 1988. Art. 6.
82 The Charter was first elaborated in the Social Forum of the Americas in 2004 and “aims to gather the commitments and measures that must be assumed by civil society, local and national governments, members of parliament, and international organizations, so that all people may live with dignity in our cities“ World charter for the right to the city, 2004, https://www.uclg-cisdp. org/sites/default/files/documents/ files/2021-06/WorldCharterRighttoCity. pdf (last accessed on March 6, 2024)
83 IBGE / CENSO 2022, accessed on March 5, 2024, https://censo2022.ibge. gov.br.
84 Favelas will be regarded as problematic by urban policies in Brazil and have been since the twentieth century the centre stage of multiple eviction policies.
85 João Vargas makes use of the term in the article “Apartheid brasileiro: raça e segregação residencial no Rio de Janeiro”, Revista de Antropologia v.48, n1, 2005. The term has also been widely used in the media.
86 Engl.: mixed-race. The term pardo is one of the 5 used by Brazil’s Statistic Centre to describe Brazil’s population. Although officially utilized, the term has suffered criticism by black movement activists, as it may indirectly lead to an whitening of the population.
87 IBGE / CENSO 2022, accessed on March 6, 2024, https://censo2022.ibge. gov.br
88 Maricato, 1975 quoted in Francisco Comarú, Benedito Barbosa, Movimentos Sociais e Habitação (Bahia: UFBA, 2019), 15.
Fig. 34: Picture by Pablo Vergara. Available at: Pablo Vergara, “Ocupaciones verticales: sobrevivir en la región portuaria de Río de Janeiro“, El País, April 29, 2023, https://elpais. com/planeta-futuro/2023-04-30/ ocupaciones-verticales-sobrevivir-enla-region-portuaria-de-rio-de-janeiro. html#?prm=copy_link (last accessed on March 6, 2024)

The lack of access to housing worsened in Brazil from the late 1970s, coinciding with the period of military dictatorship. Economic instability, characterised by a negative GDP growth and rise in unemployment rates directly exacerbated the situation. As overall salaries failed to keep pace with escalating rent costs, thousands of workers were left without viable housing options89. Concurrently, processes of urbanisation in major Brazilian cities kept on at full speed, with informal settlements playing a pivotal role in shaping the urban fabric. For instance, in São Paulo, the surge in favelados was almost ten times greater than the population growth90, and precarious tenement houses became a sough-after housing solution amidst skyrocketing land values in the metropolitan region. In this climate, the “aspiration of ‘not paying rent’”91 became a necessity, as homeownership emerged as the primary defence against escalating rent costs.
While squatting had long been a reality in Brazilian cities, exemplified by the proliferation of favelas nationwide, it assumed a different character in the 1980s. Community groups such as Comunidades Eclesiais de Base92 and neighbourhood’s associations emerged as focal points for discussing the housing crisis and possible solutions, serving as base for the articulation of first housing rights movements. Within this context, organised land squats start to appear, as for instance in Campo Limpo in 1981, followed by several others across the state of São Paulo, summing up to 61 squats and over 10.000 families by 198493
Meanwhile, in Vila Maria, a district in the state of São Paulo, residents of cortiços also began pressuring the government to address the high rent costs. Frustrated by the lack of support from existing social programs such as PROMORAR, which focused solely on people residing in favelas, they sought alternative solutions. Eventually, they engaged with engineer Guilherme Coelho, who had just been back from Uruguay. Having observed first hand the success of Uruguay’s mutual aid cooperatives, the Cooperativas de Vivienda por Ayuda Mútua (FUCVAM), the engineer sought to start a similar project in São Paulo94. There, over 10.000 housing units had been built by cooperatives and mutual aid initiatives, with construction works and administration being done by future dwellers themselves.
89 Nabil Bonduki, Habitação & Autogestão: Construindo territórios de utopia (Rio de Janeiro: Fase, 1992), 22.
90 Taschner, 1978 quoted in Bonduki, Habitação & Autogestão, 24.
91 Bonduki, Habitação & Autogestão, 26.
92 Engl.: Basic Ecclesial Communities.
93 Bonduki, Habitação & Autogestão, 28.
94 Bonduki, Habitação & Autogestão, 35.
95 Bonduki, Habitação & Autogestão, 35.
96 Bonduki, Habitação & Autogestão, 36.
97 Created in 1965, Cohab is a state company dedicated to public housing policies. It finances the construction of houses to low-income classes.
98 Bonduki, Habitação & Autogestão, 36.
99 For example, the Banco Nacional de Habitação
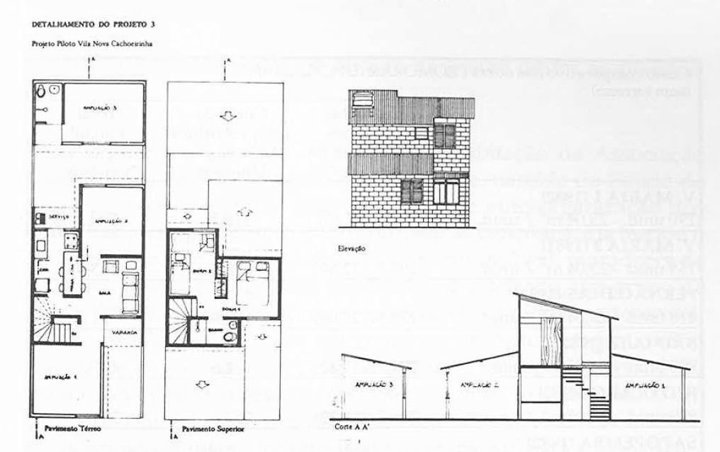
Fig. 35 (next page): Architectural drawings for Vila Nova Cachoeirinha. Drawing by unknown. Available at Bonduki, Habitação & Autogestão, 37
Fig. 36 (next page): First built units at Vila Nova Cachoeirinha. Picture by unknown. Available at Bonduki, Habitação & Autogestão, 37.
“In Uruguay, more than 10,000 housing units had been built through mutual aid co-operatives. This is a significant number in the face of a population of just over two million. In this system, the construction work and administrative management is done by the future residents (self-governance). The organisation acquired by the groups during the construction works led the residents to tackle other common social problems collectively. Health centres, crèches, libraries, consumer cooperatives - some of which were also self-managedemerged, helping to create community living spaces and improve the living conditions of the residents. Initially, some pilot experiments showed the potential of the system in 1966 and, in 1968, the National Housing Law regulated the proposal.”95
Inspired by the success of the Uruguayan project, the 400 families at Vila Maria submitted a housing proposal to the local government, securing a plot of land at Vila Nova Cachoeirinha96. Similar to the Uruguayan case, future residents dedicated a technical team separate from governmental entities, actively participating in the project’s planning phase and construction. This collective effort resulted in the construction of a prototype house, showcasing the cooperative’s potential in creating superior and more affordable housing through communal effort, in contrast to units built under the management of Cohab97 98 .
The case of Vila Nova Cachoeirinha marks the beginning of self-managed housing in Brazil, which remains a cornerstone of housing rights movements to this day. This model upends the conventional approach to social housing in Brazil, which relied on privatised production financed by public resources99. Instead, self-managed housing challenges market logic by emphasizing collective action, shared responsibilities, active participation, and mutual assistance among residents. At this point, the movement was also very much attached to the idea of self-construction (of new units) as a guiding principle to self-management housing, as it reflected a proactive response to the acute shortage of affordable accommodation.


& the right to the centre
Following Brazil’s re-democratisation in 1985, the political landscape became more conducive to social movements. The frustration with public housing policies, such as Banco Nacional de Habitação (BNH)100, prompted housing activists to also tackle the public sphere. The BNH was implemented during the Military Dictatorship, in 1964, and had as main objective addressing the country’s housing deficit, through funding of housing units for lower-income classes and attracting financial capital to the housing sector. Despite contributing to the construction of millions of housing units, the plan faced criticism for excluding the lowestincome sectors of society, as it did not contemplate families with an overall income of ≤ 3 minimum wages, and was surrounded by fraud scandals until its closure in 1986. In this context, movements began advocating for policy reforms, navigating two different fighting frontiers: the direct action through squatting, and the claim of action, through pressure and grassroots mobilisation101. These efforts culminated in the 1988 Federal Constitution102, which institutionalised several social rights in motion until today. One of the main achievements regarding the document are articles 182 and 183103, known as Pela Política Urbana, which defined the social function of urban property, as well as the juridic instruments of usucapion, key arguments when squatting vacant buildings. The Federal Constitution was also the first time the urban reform was addressed in Brazil, and although not all requests were covered by the document, it was an important step on the fight for the right to the city.
Still in the 1980s, first organised land squats also began to appear in Rio de Janeiro, as housing rights movements gained traction in the city. Additionally, as movements evolved, they began to recognise the untapped potential of vacant buildings as a viable housing option. Thus, principles of self-governance gradually adapted to suit the dynamics of urban squats in central areas. This was catalysed by the election of President Lula in the early 2000s, as several statements made by the President advocated for the repurposing of empty properties for social housing made the conjuncture even more favourable for squatting vacant buildings. This empowered housing movements against eviction104, and underpins their actions until today.
“There are buildings that can be turned into housing. There are buildings that we must sell and use the money to do something else. There‘s land, land and land that we can donate so that the price of housing is cheaper for the people (…) If it’s of no use for INSS (referring to the
100 Engl.: National Housing Bank.
101 Bonduki, Habitação & Autogestão, 33.
102 The 1988 Federal Constitution is Brazil’s currently active constitution. It was drafted during the process of re-democratization, after the ending of Brazil’s military dictatorship in 1985.
103 BRASIL. Const. 1988. Art. 182 & 183.
104 Matheus da Silveira Grandi, “Práticas Espaciais Insurgentes e Processos De Comunicação: Espacialidade Cotidiana, Política De Escalas e Agir Comunicativo No Movimento Dos Sem-teto No Rio de Janeiro” (master thesis, Universidade Federal do Rio de Janeiro, 2010),174.
105 Given Interview by President Lula, December 2023.Available at: CNN Brasil, “Governo terá programa para destinar prédios nao usados pela União a moradia popular, diz Lula”, December 22, 2023, https://www.cnnbrasil.com.br/ politica/governo-tera-programa-paradestinar-predios-nao-usados-pelauniao-a-moradia-popular-diz-lula/ .
106 Engl.: City Statute.
107 Engl.: Special Zones of Social Interest. The ZEIS defines urban areas to be destined to social housing, either being those already occupied by informal settlements and should be regularised, or still unoccupied plots close to urban infrastructure.
108 Irene de Queiroz Mello, Trajetórias, Cotidiano e Utopias De Uma Ocupação No Centro Do Rio de Janeiro (Rio de Janeiro: Letra Capital, 2015), 19.
109 Engl.: Ministery of Cities. The Ministério das Cidades is responsible for Brazil‘s housing policy and has as one of its main objectives to provide access to decent housing with minimum standards of sustainability, safety and habitability with a view to reducing Brazil‘s housing deficit.
110 Engl.: National Fund for Affordable Housing.
111 Engl.: National Social Housing Sytem.
112
113 Mello, Trajetórias, Cotidiano e Utopias, 26.
3.000 vacant buildings owned by the institution), it is for the people who need somewhere to live, to study.”105
In this scenario, squats began to proliferate in Centro, exemplified by initiatives such as Chiquinha Gonzaga, Zumbi dos Palmares and Quilombo das Guerreiras, spearheading a movement by housing activists to reclaim the central area of the city. This new focus towards vacant structures also represents a shift on the pledges made by social movements, who began to depict the right to housing as beyond mere shelter provision, including access to leisure, infrastructure, and ultimately - to the city.
Simultaneously, the activism and further establishment of housing movements continued affecting public housing policies. In 2001, after years of deliberation in the National Congress, the Estatuto da Cidade106 was finally approved, complementing the provisions of the 1988 Constitution, and representing a significant achievement for the urban reform. The document established various instruments to regulate land use, such as Zonas de Especial Interesse Social107 (ZEIS) in consolidated and empty areas, expropriation of land for popular housing and the capture of surplus value108. This was then followed by the establishment of Ministério das Cidades109 in 2003, alongside the institutionalisation of the Fundo Nacional de Moradia Popular110 (FNHIS) and Sistema Nacional de Habitação de Interesse Social111 (SNHIS), both sanctioned in the early 2000s.
“The SNHIS was seen as a great victory by the movements because it is governed by the principle of social control over the criteria for distributing housing resources, since its composition includes councils made up of representatives of the state and civil society, such as the FNHIS’ Management Council and the National Council of Cities (ConCidades), on which the four national movements112 have a sit. Thus, the councils are spaces for disputes between actors with different interests.”113
However, such initiatives had a relatively short life, facing challenges over the following years due to economic reasons and weaking of Ministério das Cidades. In this context, a new housing program is announced in 2009, based on public-private partnerships with construction companies - the Minha Casa, Minha Vida.




The program Minha Casa, Minha Vida (PMCMV) was first introduced in 2009, with the aim of addressing multiples challenges facing Brazil at the time. These challenges included mitigating the impacts of the Global Financial Crisis (GFC), addressing the country’s significant housing deficit, and also boosting President Lula’s popularity during his second term. By targeting the housing deficit, the program also intended to stimulate the construction industry, thereby supporting related sectors, and generating employment opportunities. The PMCMV is not merely a housing program, but rather a comprehensive brand encompassing various housing initiatives tailored to different segments of the population. It is broadly divided into two main modalities: urban and rural, with additional subprograms such as -Entidades and -Cidades emerging under its umbrella. These initiatives all share the common goal of fulfilling the “sonho da casa propria”.
To apply for a unit in the urban modality, applicants must meet specific criteria, including a maximum monthly family income of up to 8.000 reais, not owning a house or having any existing financing under their name, nor having benefited from any previous governmental social housing program114. They are then categorised into three income brackets, each with access to different government subsidies and interest rates, enabling them to purchase the designated housing unit. Another scenario involves homeowner families, often evicted from their homes under the guise of infrastructural works or due to living in hazardous areas, being forcibly enrolled in the program. They are usually relocated to one of the program’s housing complexes, often far away from their previous neighbourhood.
Thus far, the program has undergone four phases, with the current one coinciding with President Lula’s re-election and branded as Novo Minha Casa, Minha Vida (New PMCMV). This phase followed a suspension during Jair Bolsonaro’s115 governance, who replaced PMCMV with the Casa Verde e Amarela program. In its initial phase (2009), PMCMV 1 aimed to deliver 1 million housing units, followed by PMCMV 2 (2011) targeting 2 million units, and PMCMV 3 (2016) again aiming for 2 million units, making it the most expansive housing program in the country. However, all of these goals were determined without taking it into consideration whether previous targets had already
114 Parameters for the year of 2024. Available at: CAIXA, accessed on March 6, 2024, https://www.caixa.gov. br/voce/habitacao/minha-casa-minhavida/urbana/Paginas/default.aspx.
115 Jair Bolsonaro is a Brazilian Politian and former military. He is affiliated with the Partido Liberal (PL) and was President of Brazil from 2019 to 2022, by the Partido Social Liberal (PSL). He had been previously federal deputy from Rio de Janeiro. His governance was characterized by a strong affiliation with militaries and extreme-right policies.
116 Lula, “13 anos do MCMV, o maior programa habitacional da história“, March 25, 2022, https://lula.com. br/13-anos-do-mcmv-o-maior-programa-habitacional-da-historia-do-brasil/?__cf_chl_tk=XkYCZwlEXf6O42i5LqFAro95iQehWpB_c3DJt4UVpa4-1708770604-0.0-3602
117 Santo Amore, “Minha Casa, Minha Vida Para Iniciantes”, Chap. 1 in Minha Casa.. E a Cidade? Avaliação do Programa Minha Casa, Minha Vida Em Seis Estados Brasileiros, ed. João Baptista Pinto (Rio de Janeiro: Observatório das Metrópoles, 2015), 18.
been achieved. For instance, before its suspension in 2018, PMCMV had only delivered 2,3 million housing units116, well below the pre-defined targets. This suggests that while PMCMV contributed to housing production, it has also been used primarily as a political tool during re-election campaigns.
Still during its implementation phase, the program faced criticism for rather oversimplifying the question of housing in Brazil, when compared to previous planned policies, which offered a more diverse strategy tailored to different urban typologies.
“The danger of repeating the recognized mistakes of the BNH, of peripheral production in places poorly served by urban infrastructure, was already mentioned, given the disarticulation of housing production in relation to urban matters, in relation to municipal actions to regulate land use and occupation (...) The issue of land, the knot of Brazilian urban policy, and socio-spatial segregation were finally pointed out as the main bottleneck that Minha Casa Minha Vida did not address, with consequences that were still difficult to predict.”117
Nevertheless, the simplified structure, with absence of public prosecution, and high degree of standardisation contributed to its fast implementation and consequent high approval rates by the Brazilian population. Simultaneously, it jeopardized the program, as it lacked an articulation with public urban policies and its reliance on public-private partnerships prevailed under a capitalist logic of maximising profit. This approach resulted in the selection of cheaper land, mostly located in the peripheries of cities, and low-quality buildings. Moreover, the program’s standardised production often fails to consider the diverse urban, social, and cultural contexts of different regions, resulting in monofunctional housing complexes lacking in public infrastructure. For example, in this comparison between different PMCMV projects (Fig. 4043), the overall typology of units looks blatantly similar, although they are situated two thousand and six hundred kilometres away from each other, respectively. In a country with continental dimensions such as Brazil, it becomes urgent he need for more tailored and regional solutions, specific to the climates and social parameters of each region.
“(…) construction techniques, spatial arrangements and unit programmes, environmental performance and comfort and implementation standards do not correspond to the urban, bioclimatic, social, cultural or technological diversities of regions, municipalities or neighbourhoods. The programme‘s production standards, imposed by the logic of the industrial scale sought by large companies, override local conditions and any guidelines specific to the design processes that are developed on the basis of specific situations.”118
The search for low-price land also led to most housing complexes being located in the outskirts of cities, in areas where the infrastructure is insufficient for the upcoming residents, thus enhancing processes of urban sprawl. With the unstopped growth of Metropolitan Areas, the program exacerbated processes to conurbation119, particularly observed in the connecting stripe between São Paulo and Rio de Janeiro - the Presidente Dutra highway120
“It can be said that the programme has reinforced the logic of conurbation, due to the growing acceptance of the metropolisation of the deficit, with the implementation of developments in the municipalities furthest from the core, ensuring greater gains for the private sector
118 Maria Beatriz Cruz Rufino, “Um Olhar Sobre a Produção do PMCMV a Partir De Eixos Analíticos” Chap. 3 in Minha Casa.. E a Cidade? Avaliação do Programa Minha Casa, Minha Vida Em Seis Estados Brasileiros, ed. João Baptista Pinto (Rio de Janeiro: Observatório das Metrópoles, 2015), 65.
119 Ruffino, “Produção do PMCMV a Partir De Eixos Analíticos”, 60.
120 The President Dutra highway connects Sao Paulo to Rio de Janeiro, the two biggest cities in Brazil. It is considered the most important highway in the country, as it cuts through one of the most economically important areas of Brazil, the Vale do Paraíba.
Comparison on PMCMV‘s complexes across different Brazilian contexts. The similarity of each project underscores their lack of adaptation to the different environmental and social dynamics of each region.




through the appropriation of cheaper land and subjecting lower-income families to live in regions further away from jobs, commerce, services, public facilities and to commute daily for long periods and long distances.”121
Hence, this urban approach proves only to uphold the given status-quo, where lower-income families are consistently marginalised to the outskirts of cities. Moreover, the inadequacy of public transportation in large urban areas exacerbates the situation by hindering their access to central areas, resulting in increased inequality with fewer employment opportunities and lower-paying jobs. Thus, the Minha Casa, Minha Vida can be understood as a tool that inadvertently legitimises spatial segregation, all under the guise of democratising access to homeownership.
Fig. 40-43: Pictures by LabHabitat DARQ-UFRN, Labcam, FAU-UFPA, Práxis, EA-UFMG, LabCidade, FAU USP. Available at: Ruffino, “Produção do PMCMV a Partir De Eixos Analíticos”, 63.
121 Ruffino, “Produção do PMCMV a Partir De Eixos Analíticos”, 60.
122 Luciana Corrêa do Lago, “Introdução” in Autogestão Habitacional no Brasil: Utopias e Contradições (Rio de Janeiro: Letra Capital, 2012), 8.
“It is a violent process sustained and legitimised by an ideological apparatus, both state and business, which puts the “house ownership“ back as the first and urgent necessity. In the name of the urgency to eliminate the much calculated and recalculated “housing deficit“, thousands of homes are built on the urban frontiers or beyond them, where the city has not yet arrived, but with the government‘s promise that it will soon. There is no urban thinking guiding these building actions; what there is is the denial of the city.”122
In Rio de Janeiro, the impacts of PMCMV are even more alarming. Despite the program’s constrains of allowing a maximum of 50% of built units to be designated to resettlement policies, it is estimated that around 90% of Rio’s PMCMV contingent ended up serving this purpose123. This situation became even more evident during the construction works for the 2014 World Cup and 2016 Olympic Games, with mayor Eduardo Paes evicting more people than previous Carlos Lacerda and Pereira Passos, both historically known for their strong eviction policies124. Moreover, 67% of PMCMV units designated to the lowest-income bracket of the program were built in the West Zone of the city125, the furthest away from Rio’s downtown area. This, combined with Rio’s insufficient public transport infrastructure and high concentration of work opportunities in the central areas, left West Zone residents to endure up to 6 hours of commuting a day to access work opportunities and services, mostly in overcrowded trains and buses, and subjugated to expensive transportation tickets.
Furthermore, the Minha Casa, Minha Vida program had minimal impact on improving Rio de Janeiro’s housing deficit, as most families contemplated by the program were evicted homeowners, rather than prioritising unhoused people. The strategic displacement and the remote location of housing units supports the argument that the PMCMV has been utilised as a tool for spatial segregation, directly impacting the depopulation of Rio’s downtown area.
123 Adauto Lucio Cardoso et al., “A implementação do Programa Minha Casa Minha Vida na Região Metropolitana do Rio de Janeiro: agentes, processos e contradições” Chap. 4 in Minha Casa.. E a Cidade? Avaliação do Programa Minha Casa, Minha Vida Em Seis Estados Brasileiros, ed. João Baptista Pinto (Rio de Janeiro: Letra Capital, 2015), 78.
124 Paes‘ administration evicted 67.000 people (2009-2013) in comparison to Lacerda‘s 30.000 (1961-1965) and Pereira Passos‘ 20.000 (1902-1906). Faulhaber & Azevedo, SMH 2016: Remoções no Rio de Janeiro Olímpico, 36.
125 Faulhaber & Azevedo, SMH 2016: Remoções no Rio de Janeiro Olímpico, 67.
Fig. 44: Evicted favelas x Minha Casa, Minha Vida‘s housing complexes. Available at: Faulhaber & Azevedo, SMH 2016: Remoções no Rio de Janeiro Olímpico, 67.


The election of a President from the Worker’s party, who had been previously involved in trade unions and hailed from a lower-income background was met with great enthusiasm by social movements. Housing activists saw in President Lula the possibility of urban reform, and the advances made in the beginning of his mandate, such as forementioned Ministério das Cidades, further fuelled these expectations. In 2004, Brazil established its first housing program dedicated to self-managed initiatives, known as Programa Crédito Solidário (PCS). This marked a significant shift in Brazil’s housing policy, reflecting a growing recognition of the importance of community-led initiatives. However, PCS fell short of meeting existing demands, as only a small fraction of proposed projects were selected for implementation126. In response to this shortfall and under pressure from housing rights movements, the government introduced the Ação de Produção Social da Moradia (APSM), in 2008. This program brought about several changes compared to PCS, including the utilisation of government assets for social housing projects, marking a continuous evolution in Brazil’s approach to addressing housing needs127
However, less than a year after the sanction of APSM, the Minha Casa, Minha Vida program was launched, receiving significant criticism from housing rights’ activists. They perceived the program as contradictory to the core goal of urban reform, which had been a cornerstone of social movements since the 1980s. The PMCMV, while amplified access to housing for lower-income populations, was seen as undermining the policies and achievements of Lula’s previous administration128, placing the right to housing within the market logic, controlled by major construction companies.
In this context, housing rights movements advocated for a parcel of PMCMV to be allocated to self-managed housing or cooperatives, resulting in the creation of Minha Casa, Minha Vida - Entidades (PMCMV-E). This subprogram allocates public funding to groups organised by entities, such as a housing rights movements, labour union, or cooperative, targeting individuals within the lowest income bracket of the program (monthly family income of up to 2.640 reais129).
However, the subprogram faces fundamental challenges. One significant issue is its meagre share of funding compared to
126 684 out of 2.782 proposals being selected for implementation. Silva, “Os interesses em torno da Política de Habitação Social no Brasil: a autogestão no Programa Crédito Solidário“, (master thesis), 2009 quoted in Camilla D’Ottaviano, Habitação, Autogestão & Cidade (Rio de Janeiro: Letra Capital, 2021), 51.
127 This decision also contributed to justifying the squatting of vacant structures, especially those property of the government. If the structure is vacant and does not fulfill its social function, and there is a housing program which predicts government assets to be destined to social housing, how come squatters do not have the right to stay in the building?
128 President Lula’s first mandate went from 2003-2006, and second mandate from 2007-2010.
129 Value for 2024.
130 The organising entity can choose between four different construction regimes: self-management through self-construction, collective taskforces or direct administration, or co-management, partnering with a construction company. By all selfmanagement alternatives there is a deduction of 8% of the overall budget. D’Ottaviano, Habitação, Autogestão & Cidade, 48.
131 D’Ottaviano, Habitação, Autogestão & Cidade, 51.
132 Luciana Côrrea do Lago, O associativismo produtivo na periferia urbana: novos conflitos em pauta, 2012 quoted in D’Ottaviano, Habitação, Autogestão & Cidade, 48.
the total budget of PMCMV, up to 2%, leading to constraints in execution and amount of selected projects. Furthermore, entities are indirectly pressured into hiring construction companies to access full-fledged funding, as opting for a full self-managed regime for construction works often results in a reduction in the overall budget allocated to the project130. This goes directly against one of the core principles of the self-management model, where construction taskforces are believed to be a crucial part of the process. Moreover, only 0,70% of PMCMV’s budget is indeed relocated to -Entidades, percentage significantly below the designated 2%131. The lack of urban planning accompanying the program also contributes to disparities in land prices for future projects, disadvantaging entities against big construction companies.
“The release of large public funds for housing provision is not accompanied by a municipal policy to reserve urbanised land for low-income housing, which is a prerequisite for effective planning and control of urban expansion and land speculation by the public authorities. In the absence of this control, areas with some degree of urbanisation are disputed by residents‘ organisations and construction companies, with considerable advantages for the latter“132
Despite these challenges, it is essential to recognise the importance of -Entidades as an attempt to provide a nationwide platform for co-operative housing. PMCMV-E played a crucial role in refurbishing numerous squatted buildings across the country, such as squat Manuel Congo in Rio de Janeiro, and Cambridge in São Paulo. The program represents a possibility in turning these squats into long-term social housing units, guaranteeing residents the right to inhabit in the building and providing them the possibility of purchasing a unit. Thus, the PMCMV-E is vital in the struggle for legitimisation faced by urban squats, being the ultimate goal of social movements involved in occupied buildings.
Nevertheless, the bureaucratic constrains and rigid parameters of the program limit its ability to foster innovative housing solutions. The structure of the program, grounded in the business logic of PMCMV, compromises the emancipatory goals of selfmanagement and equitable access to housing. As a result, the actions of housing movements are often constrained by the program‘s operational complexities, hindering their ability to enact meaningful change.
“If, on the one hand, the quality and differentiation achieved by many of the projects made possible by the Minha Casa Minha Vida - Entidades Program is undeniable, on the other hand, the present market logic, which permeates the entire programme, has compromised the emancipatory goals that animated the struggle for self-management and access to a popular housing fund. In the way it has been structured, based on the business logic of the PMCMV, the MCMV-Entidades guarantees selfmanagement but makes the actions of the movements diffuse. In making the projects possible, they are trapped in the programme‘s operational tangle.”133
133 D’Ottaviano, Habitação, Autogestão & Cidade, 76.
Colony (1500-1822)
Portuguese arrive in Rio de Janeiro.
Official foundation of the city. Transfer of the capital from Salvador to Rio de Janeiro.
Construction of Cais do Valongo. Royal family arrives in Brazil. Rio de Janeiro is elevated to capital of Portugal‘s Empire.
Declaration of Independence. Rio becomes capital of Brazil.
Empire (1822-1889)
Prohibition of slave-trade in the Atlantics. Cais do Valongo is deactivated.
Implosion of cortico Cabeca de Porco.
Pereira Passos‘ urban reform (coverage of Cais do Valongo, mass evictions).
(1889-1964)
1502 1565 1763 1774 1808 1822 1831 1893 1903
Rio de Janeiro as capital of the country
Republic (1889-1964)
Military dictatorship (1964-1985)
Democracy (1985-today)
1964 1986 1981 2003 1997 2009 1988
Sanction of nationwide BNH
First organised squats in SP
Implosion of Morro do Castelo.
Transfer of the capital to Brasília
Sanction of decree prohibiting new residential buildings in the central area
Extinguishment of BNH
Brazil‘s Federal Constituion First squat in Rio‘s downtown area
1st urban plan for the harbour region: SAGAS
1976‘s decree is revogated. Population decreased 23% in Centro (33% in the harbour region)
Establishment of Ministério das Cidades
Sanction of nationwide program Minha Casa, Minha Vida
Porto Maravilha.
Brazil‘s Worldcup. Rio Olympic Games
1922 1960 1976 1983 1994 2009 2014 2016 2021
“enquanto morar for um privilégio, ocupar é um direito“
Upon beginning this research, my initial goal was to analyse the phenomenon of squatting across various building typologies, aiming to discern the specific strategies adopted within each context. In this scenario, the urban backdrop would have played a secondary role, with the presented work evolving towards analysing the diverse appropriation strategies and the resourcefulness of dwellers inhabiting squatted buildings. Nonetheless, as I delved deeper into the topic, the complex urban landscape of Rio de Janeiro’s central area and prevailing housing policies demanded a more throughout investigation. Thus, this master thesis evolved to encompass not only purely architectural aspects, but also the intricate interplays between urban squats and the city‘s fabric.
As outlined in the first chapter, Rio’s downtown area has long been a stage for urban reforms. From Pereira Passos to Reviver Centro, all these plans have consistently displaced lower-income communities to the city’s fringes in the name of revitalisation. Thus, in the process of writing this thesis, the avoidance of such term when discussing the central area became essential, as a way to challenge the prevailling narrative regarding the region. Instead, I embraced the concept of reactivation, seeing potential in apropriating existing structures, rather
* Throughout the text, the names of interviewed residents have been omitted to respect their privacy. Residents only identify themselves when introducing both themselves and their apartments.
135 The exact number on squats in the central area diverge widely. Housing activists and researchers will claim anything to up to 60 squatted buildings being present in the region. In conversation with Marcelo Edmundo, he shared the Central de Movimento Populares and Observatório das Metrópoles are currently working on mapping all existing squats in Rio de Janeiro, but no results have been published until the conclusion of this work.
136 This mapping was based on field observations and the works of Ramos, 2012 ipud Irene de Queiroz Mello, Trajetórias, Cotidiano e Utopias De Uma Ocupação No Centro Do Rio de Janeiro (Rio de Janeiro: Letra Capital, 2015), 67 & Andressa de Lucca, “Ocupar O Centro: Métodos e Processos Para Reconversao De Imóveis Em Moradia”. (undergraduate thesis, 2021), 22-23.
Fig. 45 (next page): Urban squats in the central area, 2024. Drawing by author.
than continously approaching the area with conventional plans for urban development.
When first researching on the number of squatted buildings in the central region, I was met with no comprehensive data on the matter135. This phenomenon could be attributed to both governmental oversight, as to not inadvertently legitimise the movement, and as a protective measures taken by squatters themselves, against possible evictions. Nonetheless, the lack of precise information on the topic underscores the marginalised status of these communities, further perpetuated by historical patterns of exclusionary urban policies. This is symbolised by episodes such as the coverage of Cais do Valongo and demolition of cabeça de porco.
To address this gap in knowledge, I embarked on mapping existing squats in the central area, aiming to shed light on the extent of this phenomenon and the communities it sustains136. The results were striking, contradicting the prevailing narrative of emptiness, and revealing a significant population living within these spaces. Yet, the social profile of these inhabitants clashes with corporate interests, highlighting the underlying tensions shaping Centro’s urban landscape. This raised the question: Is it legitimate to expel Centro‘s current population to address the problem of emptiness? And to what extent is the area truly empty or just „falsely occupied“?
Squatting the marvellous city
Quilombo das Guerreiras (2006-2014)
Machado de Assis (2008-2012)
Mariana Crioula (2008-today)
Quilombo da Gamboa (2009-today)
Vito Giannotti (2016-today)
Flor do asfalto (2006-2011)
Hotel Bandeirantes (?-today)
Chiquinha Gonzaga (2006-today)
Joana D‘Arc (?-today)
SAÚDE
Casa Almarinda Gama (2022-today)
Casarao Azul (2006-2009)
Zumbi (?-today) (evicted & reoccupied)
Guerreiros do 510 (2006-2009)
Edith Stein (2013-today)
Panorama of current & evicted squats in the central area of Rio de Janeiro, 2024.
Gilberto Domingos (2023-today) (2x evicted & reoccupied)
Luiz Gama (2022)
Manuel Congo (2007-today) reconverted in 2019
Joao Candido (2021-2023)
MORRO DA CONCEIÇÃO
MORRO DA CONCEIÇÃO
Many of these occupations arose out of sheer necessity, characterised as “spontaneous squats”137, and primarily serve the immediate need for shelter, often in deplorable conditions amidst trash and open sewage. In these instances, grassroots mobilisations are absent, leaving squatters vulnerable to the influence of what is known as Poder Paralelo138, which includes entities like the Militia and drug dealing Gangs. While these spontaneous occupations are a direct response to Rio de Janeiro’s housing crisis and the alarming rates of homelessness, which stood at 7.865 people living on the streets in 2022139, their susceptibility to illicit organisations further exacerbates the negative perception surrounding urban squats. As one resident at Vito Giannotti remarked, the common assumption is often one of shock and apprehension, with misconceptions about squats perpetuating stigma.
“We bring university students here (to Vito Giannotti), we had an event with the Instituto Marielle, and people said ‘Oh my god, I thought I was going to get there and there would be people smoking crack, walking around in bras’. Its impactful”.140
“Because most squats are, let’s say, spontaneous. People don’t organize themselves. Where there’s drug dealing, right? We understand that the worse it is, the better it is for them, because they sell more drugs.”141
137 This expression has been used by housing activists during multiple conversations to describe squats with no support from social movements; the ones that happen “organically”.
138 The expression “Poder Paralelo” (engl.: parallel power) is used in Brazil to describe power spheres parallel to the regular constituted state.
139 DATARIO Censo População de Rua 2022, accessed on March 5, 2024, https://censorua-pcrj.hub.arcgis.com/
140 Resident 3, Interview conducted by author, January 26, 2024.01:05:5701:06:20
141 Resident 4, Interview conducted by author, January 26, 2024. 01:06:2201:06:40
Conversely, squats organised by social movements transcend mere shelter provision, embodying a holistic approach that emphasizes broader community engagement, urban regeneration, and the pursuit of sustainable solutions to the housing crisis. These initiatives serve as impactful tools for empowering marginalised residents to reclaim their space in the heart of the city, actively shaping its development trajectory. For this reason, I narrowed the scope of my research to focus specifically on “organised squats”.
Given the constant threat of eviction, illustrated by the relentless displacement policies that unfolded under Porto Maravilha, gaining access to an occupied building, crucial for conducting a comprehensive master’s thesis on the topic, was not without its challenges. The question of access, when dealing with the private space of the home, especially those inserted under illegal conditions, appeared as central to this work, at times redirecting the research and providing information differently than the originally expected. As to initiate this process, I met with Marcelo Edmundo, a national coordinator of Central de Movimentos Populares representing the state of Rio de Janeiro. At the time, my interest still layed in comparing various squatting initiatives, including Vito Giannotti, Quilombo da
Gamboa and Mariana Crioula. Marcelo, who was involved in the conception of the first two squats, kindly invited me to an event at Quilombo da Gamboa, at the following week.
The visit to Quilombo da Gamboa was my first experience inside an urban squat. In this case, rather than a building, the squat is located on an empty plot, in the harbour region, where 10 small houses, their structure made of wood, serve as temporary dwelling for a parcel of the group. The whole squatting movement, composed by more than 100 people, advocate for the construction of a social housing complex in the terrains, and await further directions from the local government since 2009. There, I had the opportunity to get to know Hugo Freile, a Chilean immigrant and resident of Vito Giannotti, who invited me to visit the building.
In the beginning of December 2023, approximately a month after arriving in Brazil, I made my first visit to Vito Giannotti. At the time, the building had just secured funding to construct a larger kitchen on the ground floor, and construction works were underway. This initial visit provided me with a fundamental understanding of the building’s spatial layout and social organisation, with Hugo graciously guiding me through the
collective areas and welcoming me into his home. Rather quickly, this squat stood out due to its high level of organisation and the trajectory of its occupation, offering a rich context for a comprehensive analysis spanning all phases, from Dia de Festa to the submission and approval of the building’s rehabilitation project through Minha Casa, Minha Vida - Entidades.
Subsequent visits further deepened my understanding of the dynamics at play within the squat. During this process, it was vital to me to approach the research from a bottom-up perspective, ensuring that the individuals involved in the process of squatting were the protagonists in telling their own stories. When conducting individual questionnaires with the dwellers, I encountered some varying degrees of openness among residents, with some readily agreeing to participate in the research and share their experiences, while others remained more reserved. This divergence posed challenges in collecting social data, for example. Interestingly, I observed that the population of the squat could be divided into two groups: activists and non-activists142, with the former more receptive to research inquires and committed to broader goals of the squatting movement, while the latter primarily sought homeownership. This division will also be attributed to some of the difficulties within the squat, as we will
see later on in this text. Consequently, the reports and narratives presented in this work predominantly reflect the perspectives of activists.
After returning to Germany, in February 2024, I was able to take a step back and reflect on the collected material. As the object of study is embedded in the present, new information and decisions kept on influencing the final look of this workwhich made me alter and reflect on the findings until not much before concluding this text. The outcome of the following pages, is a portrait on squat Vito Giannotti throughout its phases, illustrating the potentials of squatted buildings in the area, as to challenge prevailing perceptions on urban development.
Established in 2016, through collaborative efforts of housing rights movements CMP, UMP and MLB, the old hotel structure is nestled within the residential enclave of Morro do Pinto, in the neighbourhood of Santo Cristo, and is currently home to 28 families. Situated in the harbour area of the city, Morro do Pinto’s history dates back to 1875, when working class families were drawn to the region by employment opportunities associated with harbour activities. Today, the hill retains much of its original flair, with an urban fabric characterised by single-family homes from the twentieth century and newer residential buildings spanning two to three stories high. In a way, the area feels stuck in time, resembling the suburbs of the city and standing in strong contrast to the nearby waterfront, dominated by towering high-rises and industrial warehouses.
Fig. 46: Picture by author, taken on December 2, 2023.
Fig. 47 (next page): Building‘s main facade. Picture by Pablo Vergara, taken on March 14, 2023. Available at: Midia Ninja (@MidiaNINJA), “Hoje, moradores da Ocupação Vito Giannotti penduram faixa no prédio clamando Justiça por Marielle e Anderson no marco dos 5 anos sem respostas.“, Twitter, March 14, 2023, https://twitter.com/MidiaNINJA/ status/1635677934622060545.
Fig. 48 (p. 98-99): Situation plan. Drawing by author.


In recent years, Morro do Pinto has undergone notable transformations, spurred by the establishment of important cultural landmarks such as Fábrica da Bhering, a repurposed factory complex, occupied by art galleries, ateliers, cafes, and restaurants. Similarly, the Centro Cultural Capiberibe 27 has emerged as a cultural hub, hosting exhibitions, concerts and rodas de samba. Despite not being directly within the touristic boarders of the Pequena África, Santo Cristo stands in its close proximity, unmistakably influenced by the area. At the foot of the hill, the warehouses have also been transformed, now serving as venues for events and art exhibitions, and giving place to new residential complexes, as a result of the urban project Reviver Centro. While the area has seen substantial investment and efforts to promote urban renewal, they are met with apprehension by squatters, who fear the gentrification may price them out of their homes.
“We know there is a side to it, that when that purchasing power arrives, we run serious risks”143
Another resident underscored the urgent need for proactive measures to safeguard the neighbourhood’s cultural heritage and preserve its social fabric amidst rapid urban development.
“Commerce is already being revitalised, a lot of space, warehouses that were closed are already opening their doors, they are already being rented out. Soon people who can’t afford it, won’t be able to afford to live here. People in social housing won’t be able to stay here. If you don’t have social quota, if you don’t have a good family structure, you won’t be able to stay.”144
143 Resident 3, Interview conducted by author, January 26, 2024, 02:26:4902:27:02.
144 Resident 4, Interview conducted by author, January 26, 2024. 02:25:3602:26:15.
Fig. 49: Situation plan. Drawing by author.

145 During President Jair Bolsonaro’s tenure in 2018, the temporary measure MP 852/18 was sanctioned, authorising the transfer of INSS’ assets to the federal government. This stirred concern among social movements, who feared it would allow for the federal government to sell INSS assets to private investors, potentially exacerbating gentrification in certain areas. However, the measure also streamlined processes for the OVG, as it became the federal government’s responsibility to provide a letter of consent. Fast forward to 2024, after the annulment of the INSS repossession lawsuit by the MPF, the awaited letter was finally submitted (Felipe Nin, Oral Information to author, 2024).
146 Brasil De Fato, “Decisão da Justiça garante destinação social de prédio do INSS ocupado por 30 famílias no Rio de Janeiro”, January 25, 2024, https:// www.brasildefato.com.br/2024/01/25/ decisao-da-justica-garante-destinacaosocial-de-predio-do-inss-ocupado-por30-familias-no-rio-de-janeiro.
Fig. 50: Picture by author, taken on December 2, 2023.
Fig. 51 (p.106-107): Frames extracted from video “Ocupação Vito Giannotti“, January 15, 2016. Available at: AlayePercussion, January 17, 2016, in Ocupação Vito Giannotti, https://www. youtube.com/watch?v=QH1X9wbIEeM
There had already been two frustrated attempts in occupying the building, both resulting in eviction within 24 hours, before the successful 3rd occupation, that continues to this day. Since then, Vito Giannotti has struggled with the bureaucracy for converting the building into social housing, as predicted in the 2006’s decree. The owner of the building, INSS, filed two requests for repossession, adding to the challenges and insecurities faced by squatters. However, in the early weeks of 2024, the Federal Justice (MPF) finally ruled in favour of allocating the edification for social housing purposes, reaffirming the decree issued over two decades earlier145 146. This milestone marks the culmination of an arduous 8-year struggle for the inhabits of the squat, who have lived under the constant threat of eviction until this pivotal decision. With the legal battle resolved, squatters eagerly anticipate the commencement of construction works under the scope of Minha Casa, Minha Vida - Entidades, slated to begin by the end of 2024.
1970s
1990s 2006
2006-2015
Jan.15th 2016
The hotel is built.
The building becomes vacant.
The building is destined to social housing purposes; decree INSS/PRES nº21, de 16 de Agosto de 2006.
Two non-successful squatting attempts. Squatters were evicted less than 24 hours later.
The social movements, along 26 families, break into the building.
Jan.15th 2016 INSS (building‘s owner) files for repossession.
July 2016
Sept. 2016
2016
Repossession is reversed in the court‘s second instance, with the request of prioritising a mutual agremment between OVG and INSS.
OVG pressures CEDAE into reconnecting the water supply from the street, with the help of the Engineer‘s Union (Senge-RJ).
OVG applies for the Minha Casa, Minha VidaEntidades.
2016 President Dilma suffers impeachment
2016 President Temer suspendes applications for PMCMV-E
2017
Begin of collaboration between OPPHUS from EAUUFF and OVG for the elaboration of a proposal for the building‘s refurbishment into social housing.
2017 In Brasília, social movements for housing rights pressure the government into a new call for projects from PMCMV-E
Oct. 2018
Nov. 2018
Jan. 2019
A new call for projects is published.
The 3 social movements, apply for technical consultancy funding from CAU-RJ. The application is accepted.
OVG is selected by PMCMV-E, with UMP-RJ as the main organising entity.
Jan. 2019 The mandate from President Bolsonaro begins.
Feb. 2019
Feb. 2019
Nov. 2019
2019-2023
May 2023
May 2023
June 2023
Jan. 18th 2024
All documents for the legalisation are submitted by OVG.
A change in the contracting process suggests the project should be financed only during the construction phase, leaving entities in charge of all costs for the executive projects and construction licences..
Executive projects are completed without funding from PMCMV and submitted. INSS‘ documentation of ownership is not delivered.
OVG waits for a response regarding INSS‘ documentation of ownership.
MPF gives favourable recommendation in destining the building for social housing purposes.
INSS files once again for repossession.
MPF denies INSS‘ request.
Union delivers a letter of consent, guaranteeing the continuity of PMCMV-E‘s process.
2024 Construction works are predicted to begin.
15th, 2016
































“I arrived at the bus station, there were a bunch of people with backpacks, I said, ‘my God’. I stopped the Kombi; they started throwing everything in. Then six people got into my Kombi, and I was driving. I was shaking like crazy. I still wasn‘t very good at driving uphill. I said to myself, I‘m going to have to go uphill, what if I can‘t? Then we got here, and they cut the padlock. As soon as they cut the padlock, there were already people taking things out of the Kombi and putting them outside, and I had to leave immediately so as not to attract the attention of the neighbourhood.”148
It‘s been 8 years since squatters at Vito Giannotti have a reason to celebrate. On January 15th, 2016, future tenements met at the Novo Rio Bus Terminal, unaware of the building they were about to occupy. This secrecy was part of the strategic move by the housing right’s organisations, to prevent information leaks before the planned occupation. Unsure of the address they were heading into, the group arrived at Rua Sara, 85 at dawn, and upon breaking the padlock, entered the building. On the inside, they found a television switched on, suggesting potential surveillance, but encountered no one. It was later revealed that this was a tactic employed by INSS, to give the impression the structure was being guarded.
“When we went in, there was a guard, but he wasn‘t there at the time, because it seemed like they came in, switched on the television, and left. Just to give the impression that someone was there.”149
On the same day, INSS filed for repossession, sparking the 8-year battle for the building. As to avoid police repression and secure the building, squatters remained inside, utilising a makeshift “first aid kit”, containing food, cooking supplies and water brought during the break-in. By arguing that the building failed to fulfil its social function as mandated by Article 182150 of the Federal Constitution, the housing rights movements avoided eviction orders, allowing restoration efforts to commence.
“There was so much rubbish, rats, cockroaches, everything. When we went in, there was nowhere for us to stay. The toilets were all clogged, there was no water, nothing. We all slept in a row downstairs in the Coletivo.”
148 Resident 4, Interview conducted by author, January 26, 2024. 42:59-43:55.
149 Resident 5, Interview conducted by author, January, 29, 2024, 25:11-25:29.
150 “Urban property fulfils its social function when it meets the fundamental requirements of city planning expressed in the master plan.” BRASIL. Const. 1988. Art. 182, § 2.
151 The Portuguese term Coletivo (engl.: collective) has been repeatedly used by dwellers of Vito Giannotti and by social movements. It encompasses not only the shared spaces within the squat, but also refers to the squatting group itself and the broader social interactions and dynamics associated with collective living.
152 Resident 5, Interview conducted by author, January 29, 2024, 24:44-25:10.
153 Resident 5, Interview conducted by author, January 29, 2024, 54:51-55:23.
Fig. 52-56 (p. 110-114): Picture by Renan Otto, taken in 2016. Available at: author‘s personal archive.
Fig. 57 (p.115): Picture by unknown, taken in 2016. Available at: Ferreira, “Práticas Autogestionárias de Produção” 249.
Fig. 58-59 (p. 116, 117): Picture by Renan Otto, taken in 2016. Available at: author‘s personal archive.
“We met at the bus station. Then we walked round, up Rua Santo Cristo, up Rua Sara and arrived here. (…) So, I‘m very happy to have gone through the whole process and still be here, strong, alive, and well. And I get emotional when I think, people, everything we‘ve been through, and people don‘t believe us.”153







The rooms were very deteriorated and the tapestry-walls covered with mould,


After colletive efforts, the courtyard was recovered.
Although the initial break-in occurred in January, it wasn’t until June that the group was able to permanently move in, as they spent the intervening months cleaning and assessing the structure. However, as the building could not be left unattended, future residents took turns spending the night, with tents and matrasses distributed across the garage; later converted into a communal area. During this phase of the occupation, the group formed various working teams, including those responsible for infrastructure, cleaning, and cooking.
Concerned about health risks and water leakage, they replaced the entire water system with new PVC pipes. While this work was ongoing, water was collectively sourced from a neighbouring squat and transported in gallons and buckets to Vito Giannotti. This illustrates how the concept of collective living expands beyond the dependencies of the building, forming a network among squatting communities in the region. Nine months later, after the competition of the new water system, the housing rights movements contacted CEDAE, Rio de Janeiro’s water company, and with assistance from the Engineering’s Union (Senge-RJ), successfully pressured them into reconnecting the water tanks to the main water supply from the street.

Fig. 60: Picture by author, taken on December 2, 2023.
Fig. 61: Pictures by unknown, taken in 2016. Available at: Ferreira, “Práticas Autogestionárias de Produção”, 250.
Fig. 62 (next page): Picture by Renan Otto, taken in 2016. Available at: author‘s personal archive.



Originally designed to be a hotel, the edification at Rua Sara 85 is a 3-storey high structure, with an open terrace at the top floor. Its architectural layout revolves around a central courtyard, designed to facilitate natural light and airflow throughout all interior spaces. The structure is made of concrete slabs and brick walls, not following any particular structural grid. While the exact construction date remains elusive, architecture cues such as the distinctive round windows and ceramic facade, suggest the edification dates to the 1970s. This would also explain the need for a hotel in this region, coinciding with the inauguration of Novo Rio Bus Terminal in 1965, and the recent completion of renovations at Central do Brasil, Rio’s main train station, both in the surrounding areas to the building.

In its original configuration, the ground floor of the building was divided into two distinct sections. The southern part housed the main entrance, reception area, circulation spaces, a storage room, and bathrooms. Meanwhile, the northern section primarily served as a garage, featuring an open layout with concrete pillars and direct access to the courtyard.
Upon occupying the building, squatters opted to close off the car entrance with a partition wall, repurposing the garage into a communal space equipped with a laundry facility and small kitchen, which expands into the communal room. A portion of the garage‘s rear section, situated on the western side of the building, was initially transformed into a bar before being baptised “caverna”154, serving as a storage area and bicycle parking space for all residents. In 2023, construction works also began for the cozinha produtiva155, a project financed by Jubileu Sul156, a larger kitchen where residents can prepare and sell quentinhas157, to generate additional income. In the southern end of the building, alterations were more subtle, with the reception area converted into a concierge room, where residents take turns in guarding the building’s entrance. Additionally, the hallways were adorned with communal bookshelves and mailboxes assigned to each apartment.
154 Engl.: cave.
155 Engl.: productive kitchen.
156 A collective of diverse social movements, whose main frontier is fighting inequalities triggered by high debt internal and external debt.
157 Brazilian Portuguese word used to describe to-go meals served in a foil container.
Fig. 64: Ground floor plan. Drawing by author based on OVG‘s archive.
Fig. 65-73 (p.126-133): Pictures by author, taken on December 2, 2023.

The old reception was adapted as a concierge room. Here, dwellers take turns sleeping and guarding the building‘s entrance.


There is no division between the communal area and the courtyard.


The collective kitchen. Because the room is not very spacious, the preparation of food usually expands into the communal room.






Due to the building’s hotel typology, not many alterations were necessary in order to accommodate housing units. Initially, the building comprised 44 suites of approximately equal size spread across two floors. Upon moving in, families were allocated one or two rooms, with those having children given priority for the larger accommodations. Over time, some families opted to merge adjacent rooms, creating interconnected living spaces. Additionally, certain dwellers repurposed one of the rooms‘ bathrooms into a private kitchen. Studio units, on the other hand, are typically situated near one another and share either a small kitchenette on the same floor or utilise the communal kitchen located on the ground floor. Furthermore, two suites were repurposed into guest accommodations, providing lodging for visitors from social movements across Brazil. The walls, which were originally covered in tapestry fabric, were applied fresh coats of white paint, and squatters also invested in new flooring and customised apartment doors. To enhance the ambiance, plants and select furniture pieces were strategically placed throughout the common areas, contributing to a cosy and inviting atmosphere.









158 Resident 6, Interview conducted by author, January 31, 2024, 11:20-12:37.
When discussing the apartment transformations, many residents expressed how the looming threat of eviction instilled a sense of uncertainty and reluctance to invest in refurbishments. One resident, reflecting on his apartment, shared
“I don‘t know if it was fear (of being evicted), but I was always insecure. I never thought we‘d get this far. It‘s been eight years now. You see, I never thought about putting up glass in my window. There‘s just a curtain and some plants outside. And I put up a tarpaulin so the water wouldn‘t get in. But I never put the window up, firstly because you never feel cold in this country, and secondly because you never know when you‘re going to be evicted, and I didn‘t want to make that investment. Some people did, but I improvised.”158
The building’s open terrace is, today, the heart of the squat. Named after activist Marielle Franco159, it serves as a communal gathering space, where residents come together to socialise, children play, and laundry dries in the sun. When first entering the building, the roof was completely deteriorating, due to the long years of abandonment. This was especially problematic due to climate comfort, as residents faced constant problems with damp and infiltration. For this reason, in 2018 the squat partnered with Casa Fluminense160, and partially recovered the roof, improving the overall life quality of dwellers161
The terrace hosts various collective activities such as theatre and capoeira classes, sewing workshops, and more. Additionally, the space is available for rental to other initiatives and frequently hosts parties and birthday celebrations. One resident described its significance, saying
“On the weekends, usually there‘s nowhere to go, let‘s go up, let‘s have a barbecue. Then there‘s that little group, usually one neighbour or another, one friend or another, but it‘s no more than 10 or 15 people. You stay there, have a barbecue and enjoy it. There‘s no reason not to use it. We go up at night, it‘s hot. Then we don‘t go to play music, but we stay there having a beer, chatting, watching the roda de samba at Bar do Omar, and I often watch it here (pointing to Capiberibe 27).”162
Fig. 83: Terrace floorplan. Drawing by author based on OVG‘s archive.
159 Sociologist, human rights activist, and politician, who was brutely murdered on March 14, 2018. The crime was never solved.
160 Non-governmental organization based in the state of Rio de Janeiro.
161 Felipe Nin in interview given to Casa Fluminense. Available at: Casa Fluminense, October 16, 2022, “Fundo Casa Fluminense:: Ocupação Vito Giannotti”, https://www.youtube.com/ watch?v=MeP3KpYbPic.
162 Resident 2, Interview conducted by author, January 25, 2024, 30:10-30:39.
Fig 84-86 (p.150-155): Pictures by author, taken on December 2, 2023.






One of the particularities of squat Vito Giannotti is the cooperation among three distinct social movements for housing rights - Central de Movimentos Populares (CMP), União Nacional por Moradia Popular (UNMP) and Movimento de Luta nos Bairros, Vilas e Favelas (MLB). This cooperation stemmed from a shared vision to broaden the discourse on housing activism across different grassroots organisations and utilise the squat’s premises as a hub for their coordination. While all involved movements have shared goals and principles, they diverge in their focus, strategies and organisational structures.
The Central de Movimentos Populares (CMP), as the name indicates, is a congregation of multiple grassroots organisations, trade unions and community groups, spanning across 19 Brazilian states. The organisation was founded in 1993 during the Congresso Nacional de Movimentos Populares, in Belo Horizonte, as an outcome of the 1980s social movements. Structurally, it comprises a National Directory, Executive Directory (on a regional level) and Plenary, where national and regional representatives converge to delineate key advocacy fronts. While housing rights constitute a pivotal aspect of its agenda, the CMP advocates for a broader spectrum of rights, encompassing women’s, black’s, worker’s, and land reform.
On the other hand, the União Nacional por Moradia Popular (UMP), founded in 1988 and solidified in 1993 during the 1st Encontro Nacional por Moradia Popular, centre its efforts exclusively on housing rights, particularly in favelas, cortiços and squats. Its organisational framework heavily draws from Comunidades Eclesiásticas de Base, operating at micro-levels within neighbourhoods, squats, and favelas, which coalesce at municipal, regional, and national levels. What differs the UMP from the other social movements is the emphasis on self-management housing as a primary advocacy frontier. Meanwhile, the Movimento de Luta nos Bairros, Vilas e Favelas (MLB) emerged in the late 1990s in response to the precarious living conditions experienced by residents in favelas and lowincome neighbourhoods. It was founded with a specific focus on addressing the unique struggles of these communities.
163 Resident 6, Interview conducted by author, January 31, 2024. 10:16-10:39.
Fig. 87 (next page): Picture by unknown, taken on July 27, 2016. Available at: David Robertson, Vito Giannotti Occupation in the Port Region Wins Legal Right to Remain, Rio on Watch, https://rioonwatch.org/?p=31101 (last accessed on March 10, 2023).
Fig. 88 (next page): Picture by unknown, taken on July 27, 2016. Available at: David Robertson, Vito Giannotti Occupation in the Port Region Wins Legal Right to Remain, Rio on Watch, https://rioonwatch.org/?p=31101 (last accessed on March 10, 2023).
Within the building, each movement appointed a local representative tasked with bridging the gap between the organisations and the squat’s inhabitants. These individuals are also part of the state coordination of the social movements. Furthermore, regular monthly meetings are held, focusing on political and legal issues that transcend the physical boundaries of the squat.
As to foster collaboration among the different social movements, the selection process for the initial residents of the building was based on activism and dedication to the human rights causes. As one resident noted
“(…) the CMP, and I believe the other groups too, tried to nominate (in the beginning) people with a certain social sensitivity, social and community experience, with a certain commitment to the left. Closer to that profile. It wasn‘t just any family.”163
nationaL coordination (rio representatives)
Lívia Angela sociaL movements
Edmundo Marluce Renan
state coordination (ovg representatives) vito giannotti
Juliete Pantoja Adrian


When the squatting group first entered the building, it comprised approximately 60 individuals164 . Today, the squat’s population consists of 42 people, distributed into 28 families. Still during the first year of Vito Giannotti, Hugo Parra Freile, who resides in the building, conducted a survey as part of his Geography studies at the Universidade Federal Fluminense (UFF). His research focused on 21 families, totaling 42 individuals, revealing important demographic insights. Among them, 12 were children, 14 were teenagers attending school, and only 7 were aged 60 or above. Notably, there was an absence of women between the ages of 5 and 20, with a higher prevalence of men aged 30 to 34 and women aged 50 to 54165, resulting in a majority male population at 59.52%166.
Regarding education levels, nearly half of the residents had only completed primary or middle school. However, 30% had access to university education, with the majority successfully completing their courses. This access to higher education has likely increased over time, facilitated by the building‘s proximity to educational institutions and the financial relief from rent payments. All families resided within the salary range of 0 to 2 minimum wages (R$1,414 in January 2024167), reflecting their low-income status. As one resident shared
“Of course, we still run the risk of being evicted, right? But it was a risk that at least wasn‘t about money, about paying rent. Of the landlord coming to take you away at a moment‘s notice. I thought I‘d have more peace of mind here. And thanks to the squat, I was able to study, take the Enem (Brazil’s National Exam) and pass. And today I‘m studying Literature at UFF. I will finish at the end of this semester.”168
While most of the population identified themselves as white (59,52%), there was a prevalence of 35,7% of black people and 4,8% of indigenous populations169. Notably, 2 families came from Chile and 14 families originated from states outside Rio de Janeiro, highlighting the internal migration patterns within Brazil170. The concentration of employment opportunities in the southeast region attracts migrants from the north and northeast, following the promise of “a better life”. The in-land migrations taking place inside of the country can be explained through the industrialisation processes and urbanisation the southeast
164 Oral information taken from Interview given by Zélia, former dweller of Vito Giannotti. Available at: Lutas Pela Moradia No Centro Da Cidade, June 28, 2018, in Is Rio de Janeiro Still Beautiful?, produced by Émilie B. Guérrete, https:// youtu.be/CrddgMYjm5c?si=LAQ9MxdPLaPkuzhZ , 02:50-03:08.
165 Hugo Parra Freile & Talles Adriano dos Reis, „A Ocupação Vito Giannotti: caracterização de uma população em luta” (unpublished manuscript, 2017), 8.
166 Freile & dos Reis, “A Ocupação Vito Giannotti”, 8.
167 Freile & dos Reis, “A Ocupação Vito Giannotti”, 9.
168 Resident 5, Interview conducted by author, January 29, 2024, 12:59-13:40.
169 Freile & dos Reis, “A Ocupação Vito Giannotti”, 9.
170 Freile & dos Reis, “A Ocupação Vito Giannotti” (unpublished manuscript, 2017), 9.
Fig. 89: Age distribution of Vito Giannotti, 2017. Adapted to English from Freile & dos Reis, “A Ocupação Vito Giannotti”, 8.
Fig. 90: Level of education at Vito Giannotti, 2017. Adapted to English from Freile & dos Reis, “A Ocupação Vito Giannotti”, 9.
Fig. 91: Origin of families at Vito Giannotti, 2017. Adapted to English from Freile & dos Reis, “A Ocupação Vito Giannotti”, 9.

Age distribution at Vito Giannotti, 2017.

Access of education at Vito Giannotti, 2017.

Origin of families at Vito Giannotti, 2017.
kindergarden
eLementary
schooL
middLe
schooL
high schooL (incompLete)
high schooL (compLete)
higher education (incompLete)
higher education (compLete)
region of the country experienced since the twentieth century, where today more than half of Brazil’s total GDP is concentrated. These people will also suffer social exclusion and be marginalised in the southeast, especially in the great centres such as São Paulo and Rio de Janeiro.
In the years following the occupation, many families found other solutions for their housing needs or got discouraged by the constant delay in the legalisation process, eventually moving out of the squat. This dynamic constantly altered the demographic makeup of the building and makes it difficult to get a full picture of the population residing today at Vito Giannotti. Of the original 60 squatters, only 9 remain today, and the current population of 42 residents consists of 35 adults, 5 children, and 2 teenagers171.As previously discussed, some dwellers have chosen to maintan a level of privacy and opted not to participate in research efforts. Consequently, obtaining more specific demographic data on the current inhabitants of the squat was not possible. One resident reflected on this shifting dynamic, stating
“So, when I was getting used to one type of person, the person would say I don‘t want to stay anymore, I don‘t have the health to put up with it, I‘ll go to a relative‘s house, I‘ll give up. Then I‘d even get discouraged: am I going to give up one day too? But time went by, and I resisted, and now we‘ve made it.”172
The residents of Vito Giannotti play a pivotal role in the building‘s functioning. Their experiences and stories offer valuable insights into life within the squat, showcasing the resilience and diversity of the community. In the following pages, residents will share their individual journeys and backgrounds, shedding light on their lives prior to joining the squat173.
171 Resident 2, Interview conducted by author, January 25, 2024, 26:45-28:13.
172 Resident 5, Interview conducted by author, January 29, 2024, 37:56-38:20.
173 The stories showcased in the following pages were gleaned from conducted interviews. Information was extracted from various points within the interviews, curated and edited by the author for clarity and sake of storytelling.
“My name is Ângela Maria, I‘m from Barra do Piraí, in the countryside of Rio de Janeiro. I came to Rio when I was 18 to work in a family home. I spent three or four years working in one house. (…) Then one weekend I was travelling and a friend of mine, who worked for my boss‘s sister, overheard the two of them talking, saying, “She‘s full of good stuff in the cupboard, there must be someone paying for it”. But in my little maid‘s room, the cupboard was mine alone. What did you have to do in my cupboard? So the next weekend I went away and left a note on the door of my cupboard, like „please, this is just my personal stuff, don‘t touch it“. Then she went through the cupboard again because she found the note, you know? Then she got very angry, fought with me and so on. Then she gave me a holiday (…) and hired someone else. After she sent me away, I went to this place (a studio in Copacabana ). Then a friend worked as a market trader at the Ipanema market. She said, „Don‘t you want to work at the market with me? There‘s a place in Largo do Machado , so at first, I can put the material there and you get a commission”. With the money I got from my job, I bought a few things and put them together with hers. (…) So I’ve been working as a street vendor since I left that house. Then I left Copacabana and moved closer to where I worked, which was Largo do Machado. Then came the time of the World Cup, the Olympics, that revamping of the city, that rent boom. (…) Then the rent became very expensive. (…) So I went to live in this favela, (…) where there are no guns, there are drugs, but no weapons. (…) Then I met a street vendor, who took part in a squat nearby, Quilombo das Guerreiras. (…) So I went (on the meeting). (…) Then there was an event on September 7th, the Grito dos Excluídos , I went and I felt really good. I started taking part, you know? I was on a waiting list, and then they started talking about a space here at Rua Sara. (…) They asked me if I could help, and I said fine. (…) The rent got more expensive. (…) And then there was still a vacancy here, right? (…) As soon as the water was regularised, I moved in.”




Fig. 93: Picture by author, taken on January 25, 2024.
Fig. 94: Picture by author, taken on January 26, 2024.
Fig. 95: Picture by author, taken on January 31, 2024.
Fig. 96 (next page): Picture by Bruno Martins. Available at: Bruno Martins Imagens (@Brunomartinsimagens), November 29, 2017, Instagram, https://www.instagram.com/ brunomartinsimagens/(last accessed on March 11, 2024)
Fig. 97 (next page): Picture by author, taken on January 26, 2024.
“My name is Lívia, I‘m 43 years old, and I‘m part of the União de Moradia Popular (UMP). I‘m the state coordinator of the movement. I‘m from Rio de Janeiro, born and raised. (...) I have lived in Campo Grande , I worked in Campo Grande too, but I was born in Senador Camará . I came here (to Vito Giannotti) in 2019, just before the pandemic, because I used to live in a rented house. Then I lost my job and joined the Almirante João Cândido group, which is another housing project. Then the coordinator there, Claudinho, told me about here. I got interested, because I no longer had a job, I was living in rent. I came here, I liked it, I fell in love with it because I saw how organised it was (…) So, I came here. I‘d already finished my university degree, which I did in engineering, so when I came here, I was shown how the space worked and everything here, deciding collectively and finally, I came. Then my daughter came, and I got her a school here, and my daughter also joined the Mangueira project. She did rhythmic gymnastics and we managed to establish ourselves here. And that was my arrival at Vito. Nowadays I‘m working, I teach in Maricá , on a course. And then we‘re in this struggle to exist and hoping to get housing.”
“My name is João, I‘m 65 years old and work as an electrician. I was born in Campo Grande and I‘ve always lived in Rio de Janeiro. I‘m an activist for the União de Moradia Popular (UMP). We have several squats across Brazil, I think we‘re the organisation that has built the most houses in the country - independent housing with collective participation. I‘ve been an activist since I was 18. I started being an activist with the church, with the Juventude Trabalhista Crista . Then I moved on to other movements, trade unions, until I met this movement. And I fell in love with it. Sometimes I‘m disappointed by some things, but it‘s given me the strength to keep on living. I got in touch with the squat through the União (de moradia popular), because I had split up and moved out of my ex-wife‘s house. As I was already an activist and couldn‘t afford to pay rent, I met up with them and as they had a space here (at Vito Giannotti), they recommended me. That‘s how I ended up here.”
“I‘m Hugo. I‘m from a working-class neighbourhood on the outskirts of Santiago, Chile. As we say here, I‘m cria from the periphery. My parents are crias, my whole family. Latin American malandragem is in my blood. Carioca malandragem is very similar to Chilean malandragem. I think it has to do with the survival of the poor in Latin America (…) I‘ve been living in Brazil for 15 years, between Rio de Janeiro and Niterói, travelling back and forth between the two cities. I have a 17-year-old son, I work as a painter and I‘m studying for a public exam to be a geography teacher. I‘m on the run, painting to earn my living and studying to secure my future. I arrived in Brazil on 5th March 2009, with a two-year-old son. With a son and my son‘s mum, the three of us, family. I expected to stay for two or three years (…) We stayed from 2009 to 2012 in Botafogo . It was on the way up to the Santa Marta favela. I thought it was a favela, but for the favela people, it wasn‘t a favela because my house had a postcode. But my life was in the favela, I did everything in the favela. That was 2009, coincidentally the period when the pacification policy began, and Santa Marta was the first. Until 2012, when we split up and fate made me stay here. I had the chance to go to Chile or anywhere else in the world, but I decided to stay. My values included being a present father, so I stayed. And I went to live in Niterói . I lived in Niterói until 2016, until I joined the squat, because we occupied in January, but we moved in permanently in June, July. Then I left my house in Niterói and took over here as my home. And this has been the place where I‘ve lived the most in these 15 years in Brazil.”
“My name is Sônia, I‘m 59 years old, I’m married, I have two children and a grandson. I was born in Minas Gerais and came to Rio de Janeiro in search of treatment for my son, who was ill. He had four diseases detected in his stomach, one that I remember was a hernia in his stomach, and this treatment was not available in my city, and as we have many relatives here, we came in search of this treatment. Then we stayed and the children grew up. The treatment lasted longer, and we stayed. But with the expensive rent, we started looking for other housing options, other forms of living. In Minas Gerais, I was already involved in movements, in politics. I‘ve always liked taking part. So, as I had my own place to live in Minas, with my family, which was my family‘s, I helped other people to get a house, I wasn‘t thinking about myself. So, when I came here, I already had a friend who was in the União Nacional and was from my town. Then he referred me to the União (de moradia popular). (…) And then I started going to the meetings. At that time, I was also working, sewing patchwork. After I moved here, it was always my dream to go to university. With my children too, I was concerned about them studying, about always trying to grow. So, my first son, he graduated in Business Administration and Hugo, when we came here, he was still at secondary school and then went on to study Anthropology. And thanks to the squat, I was able to study, take the Enem and pass. And today I‘m studying Literature at UFF. I finish at the end of this semester.”


“ My name is Giovanna, but I like to be called Vânia. I‘m part of the Uniao de Moradia Popular. My career didn‘t start here in the harbour area, it goes back many years, in the West Zone of Rio, in Campo Grande (…) I work with recycling in Rio de Janeiro, and I joined the Partido dos Trabalhadores 30 years ago, I’m also part of the Party’s state directory. That‘s when I started to get involved in social movements, but it wasn‘t housing. My issue at first was recycling. (…) I also worked at the State Human Rights Secretariat for five or six years, and my area was social rent, which is very controversial (…) At that time, I started to take an interest in issues, because I thought the form of eviction that came into my hands was absurd, you know? And I was responsible for this issue. And when I arrived at the situation and saw those desperate families, with things on the street, with children, many women crying, many of them single mothers. And I arrived as a state authority, with that waistcoat. And I‘d say to you, you have to get out of your house, you have to vacate, because we are going to knock it down with a tractor? At that time, which unfortunately was my job because I had to support myself, I began to see it differently, you know? I said, this is inhumane. You take someone away from so many years of construction, they put all their dreams there, all their money. Because I also suffered matrimonial violence and that‘s why I ended up at Vito. (…) So, after I left the human rights area, I came to housing. I started my activism in the West Zone, fighting for decent housing. I lived in decent housing, in a very, very, very comfortable house. But what happened? I was married for 20 years to someone and I built my castle in that person‘s space. And when I realised that my marriage wasn‘t going to work anymore “You leave. Aren‘t you the one who wants to leave? The one that wants to split up? You leave” (…) And then I saw myself in the place of those people I‘d witnessed and seen on the street. And what‘s worse, I didn‘t even leave with any furniture. I left with my clothes and shoes in a black bin bag. And then I went to live with my son (..) and then I went home to my mum again (…) It was a critical process in my life. But anyway, thank God, because I‘m a fighter, I kept working on the housing issue, in the coordination of the West Zone. Then friends, comrades, invited me to meet Vito.“
From the first months inside of the squat, until the completion of the refurbishment works and ongoing maintenance, cooperation, and collective decision-making shape the dynamics inside of the building. Every week, residents meet to discuss matters within the squat, while monthly assemblies with the organising social movements, provide a platform for debating political and legal matters. As discussed on the second chapter, the concept of selfmanaged housing is deeply intertwined with the right to the city. Residents actively participate in housing production, challenging the status quo, and reclaiming the central urban space.
“Self-management proposes improving the economic, social, and political capacities of grassroots sectors. The definition of self-management in housing refers to actions in which the production of housing, or the urbanisation of an area, takes place with the control of public resources and work by grassroots movements, associations, and cooperatives. (...) This form of action consists not only of housing construction or urbanisation, but has as its backdrop the questioning of social and economic structures, of social injustices, as an integral part of the economic system and of the preponderance given to the capitalist private production of built space and the city. (...)”189
Principles of self-governance extend to various aspects of daily life within the squat. Residents collectively organise cleaning task forces and share utilities’ costs equitably. As there is no individual key to the main entrance190, residents take turn overseeing access, with each person assigned a four-hour shift each. Additionally, rules regarding noise levels and communal area usage are established and upheld collectively. Major decisions concerning events and construction projects are made during weekly assemblies. Initially, there was also a monthly fee of R$50,00, to support the cleaning of common areas and necessary repairs, this practice was later discontinued. Moreover, with the candidature of OVG for the PMCMV-E, assemblies were crucial in the participative design process, facilitating workshops and discussions among residents, architects, and social movements’ coordinators. This participatory approach will also be evident during the construction phase, with residents organised into working groups for refurbishment efforts.
189 Evaniza Rodrigues, “A estratégia fundiária dos movimentos populares na produção autogestionária da moradia“, (master thesis, Universidade de São Paulo, 2013), 20.
190 The decision was taken for security reasons.
Fig. 98: Picture by Renan Otto, taken in 2016. Available at: author‘s personal archive.
Fig. 99 (next page): Picture by Pablo Vergara, taken on January 15, 2019. Available at: Flora Castro, No Rio, Ocupação Vito Giannotti completa três anos de luta por moradia digna, Brasil de Fato, January 19, 2019, https://www. brasildefatorj.com.br/2019/01/19/no-rioocupacao-vito-giannotti-completa-tresanos-de-luta-por-moradia-digna (last accessed on March 10, 2024).
Fig. 100-102 (p. 173-175): Pictures by author, taken on December 2, 2024.


Assemblies with the social movements take place once a month.


All expenses and income are made public and displayed in the

Some general rules include silence hours between 22h-8h, use of the terrace until 22h and no-consumption of alcoholic drinks during gatekeeping shifts.
As to improve the social condition of squatters and foster a broader community engagement, Vito Giannotti hosts a variety of collective activities, either organised by residents themselves or in collaboration with external initiatives. These are also open to the public, working as a mediator between the squat and the neighbourhood and promoting cultural exchange. For instance, every Tuesday evening, the initiative Escola de Teatro Popular offers Theatre of the Oppressed classes on the terrace of Vito Giannotti, democratising the access to theatre for marginalised communities. Additionally, weekly capoeira angola191 workshops were organized by residents in 2023, providing opportunities for physical activity and cultural expression. Many of these activities also serve as income-generating opportunities for residents. With the screen printing workshops, offered by Pablo, residents can produce and sell t-shirts with the squat’s motive, also increasing visibility against possible evictions. Through Angela, squatters can also take part in workshops at Oficinas Harmonia, a sewing and embroidery initiative in the harbour area. She hopes to one day organise the Mulheres Artesãs da Vito collective, where women residing at the squat could gain financial independence through handicraft.
“Screen printing plays a very important role here in the occupation. We sold a lot of Vito (Giannotti) T-shirts, as well as a drawing by a child from the occupation who made it. And it was a way of supplementing income here, for the Coletivo, right? And the end was very positive, (...) it was a way of publicising the project, the occupation‘s identity.”192
The terrace of Vito Giannotti serves as a multifunctional space, not only for the enjoyment of its residents but also as a means of generating additional income and fostering community engagement. Residents leverage the terrace by offering it to external initiatives for organising events, such as cultural performances, workshops, and gatherings. In exchange for using the space, residents typically sell food and beverages, with a portion of the proceeds contributing to the collective fund of the squat. This revenue-sharing model ensures that the benefits of such activities are distributed equitably among the residents, reinforcing a sense of solidarity and communal ownership. With the completion of the cozinha produtiva, they will also be able to increase the production of quentinhas, with a portion of profits allocated to support the entire squat community.
191 Type of Brazilian Martian Arts, heritage of enslaved Africans and native Brazilians.
192 Pablo Vergara, Whatsapp Audio Message to author, February 29, 2024.
Fig. 103 (p.172-173): Birthday celebration in the courtyard. Picture by unknown. Available at: David Robertson, Vito Giannotti Occupation Continues Renovating and Plans to Develop Housing in the Port Region, Rio on Watch, March 14, 2016, https:// rioonwatch.org/?p=27378(last accessed on March 14, 2024).
Fig. 104-106 (p.172-173): Photography Workshop. Picture by Coletivo Fotoexpandida. Available at: Coletivo Fotoexpandida, Facebook, September 6, 2016, https://www.facebook.com/ ColetivoFotoexpandida/ (last accessed on March 10, 2024).
Fig. 107 (p.172-173): The squat runs classes and activities for children. Picture by unknown. Available at: David Robertson, Vito Giannotti Occupation in the Port Region Faces Uncertainty, Legal Pressure, Rio on Watch, May 13, 2016, https://rioonwatch. org/?p=28781(last accessed on March 10, 2024).
Fig. 108 (p.172-173): Residents cook together in the Coletivo. Picture by Moonjay. Available at: Luize Sampaio, Movimento social estruturou moradia popular no Centro do Rio para 25 famílias, Casa Fluminense, December 16, 2021. https://casafluminense. org.br/movimento-social-estruturoumoradia-popular-no-centro-do-rio-para25-familias/ (last accessed on March 10, 2024).
193 Resident 4, Interview conducted by author, January 26, 2024, 01:31:0101:31:05.
Fig. 109 (p.172-173): Brewery Workshop. Picture by Cervejaria Queerbar. Available at: Cervejaria Queerbar, Facebook, July 9, 2017, https://www.facebook.com/queerbeerbr (last accessed on March 10, 2024).
Fig. 110 (p.172-173): Residents fix the roof of the building. Picture by Moonjay. Available at: Luize Sampaio, Movimento social estruturou moradia popular no Centro do Rio para 25 famílias, Casa Fluminense, December 16, 2021. https://casafluminense. org.br/movimento-social-estruturoumoradia-popular-no-centro-do-rio-para25-familias/ (last accessed on March 10, 2024).
Fig. 111 (p.174-175): Poster for Theatre of the Opressed classes. Available at: Escola de Teatro Popular (@ escoladeteatropopular), Instagram, January 31, 2024, https://www. instagram.com/escoladeteatropopular/ (last accessed on March 10, 2024).
Fig. 112 (p.174-175): Poster for 3 year celebration of the squat. Available at: archive OVG.
Fig. 113 (p.174-175): Poster for Festa Junina celebration in the squat. Available at: archieve OVG.
“And the cultural activities we do in the space are to bring money into the squat. Nobody earns anything, we go, we prepare the party and so on, we sell drinks, and the money that comes in stays with the occupation. The residents organise the event.”193
By actively engaging with the broader community through these initiatives, Vito Giannotti effectively challenges the stigma often associated with urban squats. The squat‘s commitment to inclusivity and community-building helps break down barriers and fosters understanding and acceptance among neighbours. Looking ahead, the squat aims to expand its community engagement efforts by opening the terrace to the public on Sundays and establishing a shop on the ground floor to sell handmade crafts and other goods produced by residents, further integrating Vito Giannotti into the fabric of the neighbourhood.












Poster for Theatre of the Opressed classes, every Tuesday, 7pm.
Invitation for squat Vito Giannotti‘s 3rd birthday celebration. Conversation groups, art exhibition, food and drinks.

While collective living embodies the strength of Vito Giannotti, it also poses challenges to its overall functioning. On one hand, squatting is fundamentally a collective endeavour, offering a counter-narrative to the prevailing individualistic norms of the capitalist society. However, this collective ideal can clash with individual needs and desires, especially when reuniting individuals with diverse backgrounds, motivations, and expectations under one roof.
“Our main challenge is to free ourselves (all of us) from the references of a society that is definitely not for everyone, but whose values are often impregnated in all of us: individualism and dependence on the prevailing order and the spectre of property as a fundamental value.”194
In a place where everything is collective, the need to reaffirm private spaces becomes stronger and is eventually reflected in the physical space of the building. This can be observed in the dedication and effort given to individual apartments, rather than shared spaces. The door, understood as an architectural element, becomes a symbol of this dichotomy, representing the boundary between collective and individual spheres.
As the squat evolved, tensions emerged between those dedicated to upholding a collective ethos (the activists), and those more focused on personal interests and unfamiliar with the self-management model (the non-activists). Conversations with residents showed that this can be attributed to the selection process of new residents. While at first, future residents were selected based on their commitment to housing rights movements and social causes, this criterion shifted later on - giving space towards urgency for housing and direct recommendations from existing residents. This change drew criticism from some squatters who felt it led to the inclusion of individuals not fully aligned with the principles of selfmanagement and collective decision-making. Collectivism x individualism
194 Marcelo Edmundo, Whatsapp Message to author, March 3, 2024.
195 Resident 6, Interview conducted by author, January 31, 2024, 23:16-23:49.
Fig. 114-116 (next page): Pictures by author, taken on December 2, 2024.
“(…) community life is really intense, always being there to help others. But inside a building, it‘s even more intense. Because here you open the door and you‘re in a collective space.”195

Special attention is given to the entrance to each apartment. Sign reads “Welcome, but bring beer.“
Right, residents use the door‘s surface to express political opinions and personal beliefs. It effectively markers the boarder between the collective and individual spheres. Additionally, certain hallways have been adorned with new flooring tiles, either donated or taken from construction sites.


“(...)it was supposed to be just about activists, people started joining, who had nothing to do with activism. Someone needs to move, someone needs a house, and so-on. But the person arrives here totally disconnected from what the movement is, from what the collective is, and arrives here to live their individual life.”196
“And then people who, because they want to help, because someone needs a place to live, bring in random people who don‘t participate. Sometimes they don‘t even know what the fight for housing means.”197
“So for me the negative point is this, the lack of understanding on the part of some people, of how many people there have been working to help us. There are people doing water projects, sewage projects, a whole series of things. It‘s not as easy as it looks, the guys work so that the money comes in later. You have to have a lot of trust in each other. And that‘s nice. So that (this lack of understanding) upsets me.”198
Also mentioned as a contributor to the problem was the lack of articulation between the organising social movements. As mentioned on the previous page, the squat was initially conceived as place of articulation among the diverse housing rights movements. Nevertheless, with the constant changes in the population of the squat, this strategy eventually backfired and affected the decision processes, with movements, at times, not achieving a consensus.
“But I see this as a mistake on the part of the movements. Because when we come here, we come aware of everything we have to comply with, the rules (…) And the movements started like this: you have to get together, you have to do it. So if I go to make a demand, I‘m the most hated person in the building, you know?”199
However, amidst these challenges, residents remain optimistic about the potentials of collective living. Proposed solutions, such as organising introductory meetings and appointing a main coordinator, aim to increase community engagement and streamline communication.
196 Resident 4, Interview conducted by author, January 26, 2024, 00:50-01:12.
197 Resident 3, Interview conducted by author, January 26, 2024, 02:10-02:29.
198 Resident 1, Interview conducted by author, January 23, 2024, 16:37-19:12.
199 Resident 4, Interview conducted by author, January 26, 2024. 04:21-05:09
200 Resident 5, Interview conducted by author, January 29, 2024, 38:57-40:16.
201 Resident 5, Interview conducted by author, January 30, 2024, 46:08-46:42.
202 Resident 1, Interview conducted by author, January 23, 2024, 33:13-35:07.
Fig. 117 (next page): Picture by Pablo Vergara. Available at: Flora Castro, “No Rio, Ocupação Vito Giannotti completa três anos de luta por moradia digna”, Brasil de Fato, January 19th, 2019, https://www.brasildefatorj.com. br/2019/01/19/no-rio-ocupacao-vitogiannotti-completa-tres-anos-de-lutapor-moradia-digna (last accessed on March 5, 2024).
“In my opinion, there could be more meetings, to really teach, meetings to engage, to go deeper into the movement, to go deeper into our rights, so that we better understand what has to be done for something bigger to happen. Because people come from different places, and we don‘t have one person to coordinate the day-to-day running of the squat. Everyone has the same right to a voice, just as I can call a meeting, so can someone else. There are people who look on it favourably, but I think there should be someone to coordinate things, with more fixed rules.”200
Moreover, the interviewed residents also strongly emphasised the positive aspects of collective living, such as mutual aid and support among neighbours.
“(…) we help each other. We have a lot of that here. If one of us gets ill, the other helps, you know? We never let the other person down. If someone comes in who‘s had a bit too much to drink, we help them too. If someone needs to borrow some beans or something, we help them too. There‘s a lot of that.”201
“We have young people here who, if it wasn‘t for here, if they hadn‘t lived here, wouldn‘t be doing university. (..) But why? Because she went out to work, and the others took 100 per cent care of the children. If the mother went out to work, they would feed the child. So everyone takes care of the children. See the difference? And she says that. If it wasn‘t for the squat, how would she go out to work? (…) And that‘s where the collective comes in.”202


While Vito Giannotti stands as a prime example of how minor modifications can transform vacant structures into liveable spaces, there exists no inclination from the part of squatters or housing rights movements to maintain it solely as an interim use. The primary objective of urban squats in Brazil is to secure funding through Minha Casa Minha Vida - Entidades, with the aim of refurbishing the building into permanent social housing. Only through this process can residents acquire ownership of their units and safeguard themselves against eviction threats.
For OVG, this process started almost as early as the Dia de Festa, when the involved movements were granted a six-month window to revise a conversion proposal for the building203 However, the political instability in the country, including the ousting of President Dilma Rousseff204 in the same year, led to significant delays in the process. Despite these challenges, the movements decided to forge ahead independently. In 2017, they began collaborating with Professor Ronaldo Brilhante and his students from the School of Architecture at Universidade Federal Fluminense (UFF)205. The first advances regarding the architectural project for the squat are, thus, achieved through exercises and workshops held at Brilhante’s course on Social Housing. Various floor plan possibilities were explored between 2017 and 2018206, with a decision made to preserve most of the existing walls due to the unavailability of a proper structural analysis at the time207. During this period, the group stumbled upon an existing project for the building by the Secretaria de Habitação208. However, since it lacked collective areas, they opted not to pursue it further209
In 2018, UFF students began organising weekly assemblies and conducting interviews with squat residents. Subsequently, with a publication of a new call for projects by PMCMV-E, in October of that year, Vito Giannotti was selected to take part in the program, two months later. However, a change in the contracting process suggested the project should be financed only during the construction phase, leaving entities in charge of all costs for the executive projects and construction licences. This obstacle was overcome with the assistance of a technical consultancy team funded by the Conselho de Arquitetura e Urbanismo do Rio de Janeiro (CAU-RJ). The executive project was led by architect Carolina Kroff, who had already been involved with the squat through Brilhante’s course, Felipe Nin, also architect and at the
203 Andressa de Lucca, “Ocupar O Centro“, 67.
204 Brazilian Politician who successed President Lula, in 2011. Also from the Partido dos Trabalhadores (PT), Dilma‘s administration was met with great criticism and resistance by the Brazilian population. She was impeached in 2016, on charges of fiscal mismanagement, making room for vice-President Michael Themer to assume office.
205 De Lucca, “Ocupar O Centro”, 67.
206 De Lucca, “Ocupar O Centro”, 68.
207 De Lucca, “Ocupar O Centro”, 82.
208 Engl.: Housing Department. he proposal was possibly drafted as the building had already been destined to social housing purposes in 2016.
209 De Lucca, “Ocupar O Centro”, 68.
210 De Lucca, “Ocupar O Centro”, 81.
211 De Lucca, “Ocupar O Centro”, 82.
212 Engl.: Letter of consent.
Fig. 118 (next page): Picture OPPHUSUFF. Available at: De Lucca, “Ocupar O Centro”, 82.
Fig. 119 (next page): Picture OPPHUSUFF. Available at: De Lucca, “Ocupar O Centro”, 83.
Fig. 120 (next page): Picture by OVG Technical Consultancy‘s Team. Available at: De Lucca, “Ocupar O Centro”, 97.
Fig. 121-123 (p.194-196): Submitted proposal to PMCMV-E. Drawings by author, based on archive OVG.
time resident of Vito Giannotti, and two scholarship holders. Building upon the groundwork laid by the students between 2017 and 2018, the team encountered challenges imposed by the program’s requirement, necessitating alterations to the project. Notably, the program required that all units have private kitchen and laundry areas, meaning the proposed collective kitchen would be only used for events and exchange with the neighbourhood, instead of being daily used by squatters210 Additionally, there was a shift in focus from collective housing aspects to accommodate resident preferences for either more units or larger living spaces, often at the expense of communal areas designated for income generation, such as workshops and stores211
The executive project was successfully submitted in 2019, comprising 18 one-bedroom and 10 two-bedroom apartments, totalling 28 housing units. For accessibility reasons, some units are located on the ground floor, leaving nearly all communal areas, apart from one multi-use space, on the terrace. This space counts with a playground, workshop, gym, collective laundry and kitchen, refectory, and meeting room, complemented by a small vegetable garden and balcony. Despite the completion of the project, residents awaited ownership documents from INSS since 2019. However, INSS once again denied the request and initiated repossession proceedings in 2023. The resolution of this issue only recently occurred, with the submission of a Carta de Anuência212 by the Union on January 18th, 2024.
Despite the challenges encountered in securing funding through PMCMV-E, the project’s development for Vito Giannotti stands as a good example of participative design, with future residents actively engaged in the decision-making process. Notably, the project was only made possible through an articulation between students and social movements, as it did not receive any funding from PMCMV for the completion of the executive project. This underscores the difficulty in replicating similar initiatives, as the completion of the executive project relied heavily on the support provided by CAU-RJ, which funded the technical consultancy team.

Working models elaborated by students from UFF, to discuss the architectural project with residents at Vito Giannotti.

Right: Assembly to discuss the project for the garden and organise cleaning taskforces for the area.

current situation
coletivo (communal room)
meeting area
laundry area
eating area
shared kitchen
shared bathroom
caverna (bicicletary/deposit)
secretary trash deposit
pmcmv-e project
multiuse space bicicletary secretary trash 3x 2-bedroom apartments
Left: Comparison on distribution of uses on current vs. PMCMV-E project
current situation
kitchnette
small laundry area
children‘s room
2x guest accomodations
11x studio apartments
3x one-bedroom apartments
pmcmv-e project
9x one-bedroom apartments
3x two-bedroom apartments
Left: Comparison on distribution of
Left: Comparison on
During the process of this research, I was faced multiple times with the question: Until what point does architecture go? Is it limited to the confines of traditional design practices and formal structures, or does it encompass more unconventional forms of spatial practice, such as squatting? From a personal perspective, architecture transcends the mere act of designing new buildings; it encompasses a broader spectrum of spatial interventions. It has the power to shape urban dynamics, acting as both an inclusion or segregation tool, either connecting or dividing spaces. However, architecture only truly holds value when its occupied and inhabited by people. Squatting, while often viewed as an act of defiance or desperation, can, thus, be understood as a form of architectural expression - a means for marginalised communities to reclaim space, challenge societal norms, and advocate for their right to the city. Guided by this perspective, this research explored the potential of urban squats as a spatial practice and investigated its role as catalysts for reactivating Rio’s downtown area.
The squatting movement in Rio, and indeed throughout Brazil, transcends mere physical occupation of buildings; it permeates the very fabric of the city. Architecture, typically regarded as apolitical and impartial, is unavoidably intertwined with the socio-political dynamics it inhabits. How impartial is it, then, to erect monofunctional social housing blocks in areas where infrastructure is deficient? How impartial is the construction of high-rise office buildings in locales steeped in the history of slave trade and subjected to repeated eviction policies?
Yes, the abundance of abandoned buildings in Centro is alarming, signalling an urgent need for a redevelopment strategy in the area. However, contemporary plans such as Porto Maravilha and Reviver Centro seem to perpetuate exclusionary policies as those observed since the early twentieth century. They systematically disregard the existing population in the region, who majorly reside in squats, whether organised or “spontaneous“, whether on land (favelas) or within buildings (urban squats), If evictions were instrumental in creating the problem of emptiness in the first place, we must ask ourselves: is it logic to continuously displace squatting communities in order to “revitalise” the central region?
Stepping back from the microcosm of the central area, a broader examination of Brazil’s housing policies revealed crucial insights
into the ongoing fight for housing. In the second chapter, we delved deeper into the trajectory of housing initiatives, notably the Minha Casa, Minha Vida program. While held as an important milestone in housing provision, this program fell short of significantly reducing the country‘s housing deficit. Instead, it exacerbated urban sprawl by establishing new housing complexes on the city‘s outskirts. In Rio de Janeiro, the program served as an instrument to further displace lowerincome populations, particularly evident in the lead-up to major events like the 2016 Olympic Games. Moreover, the profit-driven nature of the program led to the construction of low-quality buildings, disregarding the unique characteristics of each region. Against the backdrop of a climate crisis, with the building industry standing as a major CO2 producer, we must rethink the strategy of further construction of new residential complexes as a means to combat the housing crisis. If there is a pool of vacant buildings in the central area awaiting to be repurposed, wouldn‘t it be more prudent to utilise these structures for social housing, thereby mitigating the housing crisis, Centro’s emptiness, and environmental concerns?
I firmly believe urban squats are integral to a more holistic approach to these matters. Unlike the conventional top-down strategies of government-led initiatives, they embody grassroots activism and collective empowerment, and challenge the prevailing norms in Brazilian cities. Focusing specifically on Vito Giannotti, the squat draws attention to the failure of public organisations to fulfil their social obligations, shedding light on the pervasive issue of abandoned buildings scattered throughout Rio’s Centro. By squatting the hotel structure, residents actively change this reality, transforming a symbol of speculation into much needed housing. The squat also succeeds in its integration within the neighbourhood. Through collective activities, cultural events, and income-generating initiatives, residents have sought to integrate the squat into the fabric of the community, while challenging stereotypes associated with urban squats. By opening its doors to the public and fostering partnerships with local organisations, Vito Giannotti promotes exchange between the squat and the neighbourhood, promoting a community engagement beyond the building’s perimeter. As one resident noted himself
“To occupy for me means giving life, encouraging participation. To occupy is to give life to an unoccupied space, in the sense of death, of not having life, not participating, not being active.”213
Furthermore, the journey of Vito Giannotti exemplifies the pivotal role of cooperativism across various stages. From the collaborative efforts of architects, students, and social movements in developing the executive project to the ongoing struggle for legalisation and recognition, the squat stands as a testament to the power of collective action in reclaiming and reimagining the urban landscape. While the Minha Casa, Minha Vida - Entidades has offered a glimmer of hope for self-managed initiatives, bureaucratic hurdles, political instability, and funding constraints have led to significant delays, leaving residents in a state of uncertainty and vulnerability. This situation also presents a challenge for other urban squats aiming to follow a similar path, as Vito Giannotti’s executive project relied on outsourced funding. Hence, a comprehensive revision of the program is imperative, in order to enable greater flexibility in architectural proposals and allocate a more substantial portion of funding to these initiatives.
The urgency of recognising the potentials of urban squats and vacant buildings is reflected in ongoing discussions on public policies. On February 26, 2024, a few weeks prior to the completion of this work, a new decree from the Federal Government came to light. President Lula unveiled a new program targeting vacant buildings for the conversion into social housing, educational facilities, public health centres, and other social purposes214. This project had been under public scrutiny since September 2023, and with this pivotal decision, the first 264 buildings were selected for the program. One of the first ones to be mentioned? Squat Vito Giannotti. With this decision, movements expect smoother legalisation processes for future building conversions, representing a further victory in the fight for a more equitable city.
All in all, squatters persistently challenge systemic inequalities and advocate for a more inclusive and equitable urban environment, through resilience, creativity, and collective action. Having witnessed the transformative power of community solidarity and grassroots activism, I strongly believe in the potential of urban squats to rewrite Rio’s history and empower marginalised communities. In a city where the striking reality of “so many people without a home, so many homes without people“ prevails, urban squats offer a compelling solution to the housing crisis and have the potential to reactivate Rio’s downtown area.
213 Resident 6, Interview conducted by author, January 31, 2024, 33:44-34:56.
214 Renan Monteiro and Alice Bravo, “Lula Lança Programa Para Destinar Imóveis Abandonados da União Para Moradia“, O Globo, February 26, 2024, https://oglobo.globo.com/ economia/noticia/2024/02/26/lulalanca-projeto-para-destinar-prediosabandonados-da-uniao-para-moradia. ghtml?giftId=01d62595c5b491c&utm_ source=Whatsapp&utm_ medium=Social&utm_ campaign=compartilharmateria
Abreu, Maurício de A. A Evolução Urbana Do Rio De Janeiro. 5.Ed. Rio de Janeiro: Publicações Pereira Passos, 2022.
Barbosa, Benedito and Francisco Comarú. Movimentos Sociais e Habitação. Salvador: UFBA, Escola de Administração; Superintendência de Educação a Distância, 2019.
Benchimol, Jaime Larry. Pereira Passos: Um Haussmann Tropical - A Renovação Urbana da Cidade do Rio de Janeiro No Início Do Século XX. Rio de Janeiro: Secretaria Municipal de Cultura, Turismo e Esportes, 1992.
Bonduki, Nabil. Habitação & Autogestão: Construindo Territórios De Utopia. Rio de Janeiro: Fase, 1992.
Cardoso, Adauto L., Irene de Queiroz e Mello, and Samuel Thomas Jaenisch. “A Implementação Do Programa Minha Casa Minha Vida Na Região Metropolitana Do Rio De Janeiro: Agentes, Processos, Remoções.” Chap. 4 In Minha Casa… E a Cidade? Avaliação Do Programa Minha Casa Minha Vida Em Seis Estados Brasileiros, edited by Caio Santo Amore, Lúcia Zanin Shimbo and Maria Beatriz Cruz Ruffino, 73-102. Rio de Janeiro: Letra Capital, 2015.
Côrrea do Lago, Luciana. “Introdução” in Autogestão Habitacional no Brasil: Utopias e Contradições, edited by Luciana Côrrea do Lago, 7-16. Rio de Janeiro: Letra Capital, 2012.
Costa Vargas, João H. “Apartheid Brasileiro: Raça e Segregação Residencial No Rio De Janeiro”. Revista De Antropologia 48, n. 1 (2005): 75-131, https://doi.org/10.1590/S003477012005000100003.
Cruz Ruffino, Maria Beatriz. “Um Olhar Sobre a Produção do PMCMV a Partir De Eixos Analíticos.” Chap. 3 In Minha Casa… E a Cidade? Avaliação Do Programa Minha Casa Minha Vida Em Seis Estados Brasileiros, edited by Caio Santo Amore, Lúcia Zanin Shimbo and Maria Beatriz Cruz Ruffino, 51-70. Rio de Janeiro: Letra Capital, 2015.
De Lucca, Andressa. “Ocupar O Centro: Métodos e Processos Para Reconversão De Imóveis Em Moradia”. Undergraduate paper, Pontifícia Universidade Católica do Rio de Janeiro, 2021.
D’Ottaviano, Camila. “O Programa Minha Casa Minha Vida Entidades”. Chap. 1 In Habitação, Autogestão & Cidade, edited by Camila D’Ottaviano, 31-80. Rio de Janeiro: Letra Capital, 2021.
Faulhaber, Lucas and Lena Azevedo. SMH 2016: Remoções No Rio De Janeiro Olímpico. Rio de Janeiro: Mórula 2015.
Fernandes, Nelson da Nóbrega. “Capitalismo e Morfologia Urbana Na Longa Duração: Rio de Janeiro (Século XVIII-XXI).” Paper presented at Diez anos de cambios en el Mundo, en la Geografia y en las Ciencias Sociales, 1999-2008. Actas del X Coloquio Internacional de Geocrítica, Barcelona, May 26-30, 2008. Place of publication: http://www.ub.es/geocrit/-xcol/144. htm
Fidalgo, Tarcyla, Beatriz Terra, and Orlando Santos Junior. “Reviver O Centro. Para Quem? Análise Preliminar Sobre O Programa Apresentado Pela Prefeitura do Rio de Janeiro”. Observatório das Metrópoles, May 20, 2021, https://www. observatoriodasmetropoles.net.br/reviver-o-centro-paraquem-analise-preliminar-sobre-o-programa-apresentado-pelaprefeitura-do-rio-de-janeiro/
Fraile Parra, Hugo, and Talles Adriano dos Reis. “A Ocupação Vito Giannotti: Caracterização De Uma População Em Luta”. Unpublished manuscript, 2017. Pdf file.
Giannella, Letícia de Carvalho. “A Produção Histórica do Espaço Portuário Da Cidade Do Rio De Janeiro e o Projeto Porto Maravilha.” Espaço e Economia 3 (2013), https://doi.org/10.4000/ espacoeconomia.445
Grandi, Matheus da Silveira. “Práticas Espaciais Insurgentes e Processos De Comunicação: Espacialidade Cotidiana, Política De Escalas e Agir Comunicativo No Movimento Dos Sem-teto No Rio de Janeiro.” Master thesis, Universidade Federal Do Rio de Janeiro, 2010.
Harvey, David, “The Right To The City”, New Left Review 53 (September-October 2008), 23-40.
Lima, Tânia Andrade, Glaucia Malerba Sene, and Marcos André Torres de Souza, “Em Busca Do Cais Do Valongo, Rio De Janeiro, Século XIX”. Anais Do Museu Paulista: História E Cultura Material 24 (January-April 2016), 299–391, https://doi. org/10.1590/1982-02672016v24n0111.
Litsek, Felipe, Breno Serodio, Vicente Brêtas, Taísa Sanches, Bruna Ribeiro, Tarcyla Fidalgo, Orlando Santos Junior, et al., “Programa Reviver Centro ‘turbinado’: a Expansão Da Lógica Do Mercado Na Requalificação Da Região Central Carioca.” Observatório das Metrópoles, March 13, 2023, https://www. observatoriodasmetropoles.net.br/programa-reviver-centroturbinado-a-expansao-da-logica-do-mercado-na-requalificacaoda-regiao-central-carioca/
Lutas Pela Moradia No Centro Da Cidade, “O Rio De Janeiro Continua Lindo? / Is Rio De Janeiro Still Beautiful?,” July 28, 2018. https://www.youtube.com/watch?v=CrddgMYjm5c.
Mello, Irene de Queiroz e. Trajetórias, Cotidiano e Utopias De Uma Ocupação No Centro Do Rio De Janeiro. Rio de Janeiro: Letra Capital, 2015.
Neuwirth, Robert. Shadow cities: A Billion Squatters, A New Urban World. London and New York: Routledge, 2006. Perlego. https://perlego.com/book/2192784/shadow-cities-a-billionsquatters-a-new-urban-world-pdf/?utm_medium=share&utm_ source=perlego&utm_campaign=share-book
Nin Ferreira, Felipe. “Práticas Autogestionárias De Produção De Moradia Popular: Uma Memória Da Atuação Da União Por Moradia Popular Do Rio De Janeiro - UMP RJ”. Master thesis, Universidade Federal Do Rio De Janeiro, 2023.
Oscar Costa, Luiz Henrique, Karolinne Galvao Bastos, Amanda Vieira Guimarães, Clara Rocha da Silva, and Eduardo Linhares Qualharini. “O Programa Reviver Centro E Sua Proposta Para Mitigar Problemas Urbanos.” Paper presented at XIX Encontro Nacional de Tecnologia do Ambiente Construído, Porto Alegre, 2022, https://doi.org/10.46421/entac.v19i1.2185
Ruffino, Maria Beatriz Cruz. “Um Olhar Sobre a Produção do PMCMV a Partir De Eixos Analíticos” Chap. 3 in Minha Casa… E a Cidade? Avaliação Do Programa Minha Casa Minha Vida Em Seis Estados Brasileiros, edited by Caio Santo Amore, Lúcia Zanin Shimbo and Maria Beatriz Cruz Ruffino, 51-70. Rio de Janeiro: Letra Capital, 2015.
Santo Amore, Caio. “Minha Casa, Minha Vida Para Iniciantes” Chap. 1 In Minha Casa… E a Cidade? Avaliação Do Programa Minha Casa Minha Vida Em Seis Estados Brasileiros, edited by Caio Santo Amore, Lúcia Zanin Shimbo and Maria Beatriz Cruz Ruffino, 11-27. Rio de Janeiro: Letra Capital, 2015.
Sarue, Betina. “Quando Grandes Projetos Urbanos Acontecem? Uma Análise a Partir Do Porto Maravilha No Rio de Janeiro.” Dados 61, no.3 (2018): 581-616, https://doi. org/10.1590/001152582018168
Schmutzler Abrahão, João Vitor. “O ‘Bota-Abaixo’ De Pereira Passos: Transformação Urbana Como Artifício Civilizatório?”. Trabalhos de Antropologia e Etnologia (2022), 155-174.
Vasudevan, Alexander. The Autonomous City. New York, London: Verso, 2007. Perlego, https://www.perlego.com/book/731022/theautonomous-city-a-history-of-urban-squatting-pdf.
Ward, Colin, “The Early Squatters”, Chap. 8 In Squatting: The Real Story, edited by Nick Wates and Christian Wolmar,104-109. London: Bay Leaf Books, 1980.
Ximenes, Luciana Alencar. “Ocupações Na Zona Portuária Do Rio De Janeiro: Soluções De Moradia E Ações De Resistência No Contexto Do Projeto Porto Maravilha”. Master thesis, Universidade Estadual Do Rio De Janeiro, 2017.
Zanatta Kawahara, Ivan. “O Papel do Estado Na Promoção Da Segregação Na Cidade Do Rio De Janeiro”. Paper presented at XVI ENANPUR: Espaço Planejamento E Insurgências. Belo Horizonte, 2015, Place of publication: https://anais.anpur.org.br/ index.php/anaisenanpur/article/view/2308/2287
