Eduarda Barbosa Poubel: Architectural Portfolio 2025

Page 1


eduarda barbosa poubel architectural portfolio 2025

personal information

Eduarda Barbosa Poubel born at 14.08.1997 in Rio de Janeiro, Brazil

Elvirastraße 13, 80636 Munich, Germany 0172 4679784 eduardapoubel@gmail.com

education

2021 - 2024 Master of Arts | Architecture Technical University of Munich (TUM)

2019 - 2020

2017 - 2019

2017

2015 - 2017

Exchange year (M.A. Architecture) Technical University of Munich (TUM)

Integrated Masters in Architecture Faculdade de Arquitectura da Universidade de Lisboa (FAUL)

University transfer from Rio de Janeiro to Lisbon

Bachelor in Architecture & Urban Planning Pontifícia Universidade Católica do Rio de Janeiro (PUC-RJ) no degree

professional experience

04.25 - current Teaching position | Chair of History of Architecture and Curatorial Practice Technical University of Munich

12.24 - 02.25 Freelancer Fink + Jocher

05.24 - 11.24 Junior Architect bogevischs buero

10.23 - 04.24

10.21 - 08.23

07.22 - 03.23

10.20 - 10.21

03.17 - 06.17

Student Assistent of the Parity Board Technical University of Munich

Student trainee bogevischs buero

Student Assistent of the Diversity Board Technical University of Munich

Full-time Internship bogevischs buero

Student trainee Erika Duarte Arquitetura

2004 - 2014

achievements

School Education Colégio Santo Agostinho Leblon (CSA)

2023-2024 Deutschlandstipendium recipient

11.23-02.24 DAAD PROMOS scholarship

2023 Mies van der Rohe YTA Nominee for the project Auch das ist das Land

languages

Portuguese Native

English C1

2015: Cambridge Certificate in Advanced

English (CAE)

02.2017: TOEFL ibt Test (109/120)

German C1

12.2020: Goethe Zertifikat B2

French B1/A2

Spanish B1/A2

softwares

Grapisoft Archicad - Vectorworks - AutoCAD - Rhino - 3D

Max - Adobe Creative Cloud - SketchUp - Microsoft Office

extracurricular activities

Guest lecture | Parity Jour Fixe no 35 „Hearing Unheard Voices: Oral History in Architectural Research“ 12.24

Parity Jour Fixe no 29 | „Code of Studio“ organization und moderation 06.23

04.23 Guest lecture | Architect‘s Council of Europe „Architecture Discriminates“ New European Bauhaus: Upskilling x (Education + Practice)

Symposium „Curriculum Comedy“ | TUM organization und moderation 11.22

2022 Architektur Jahresaustellung | TUM core team: exhibition concept 04.22 - 10.22

SOFT: School of Transformation founding of the collective 09.22

Guest lecture and study trip | KTH 09.22

7. BDA Architekturwoche Satellite „*innenaussen“ 06.22

Nexture+ 2022 Workshop facilitator 06.22

Intervention: Arcisstraße | TUM 05.22

Chair of Gossip (seit 09.22 unter SOFT) founding of the group 04.22

Parity Board der TUM member 02.22 - heute

Workshop Curriculum | TUM participation 12.21

Student council Architecture 2015.2 | PUCRJ participation 08.15 - 12.15

Events team | CSA 2014

studio projects

kollektive stadt munich, germany

auch das ist das land kloster vessra, germany

built to last rotterdam, netherlands

competitions progeno | neufreimann munich, germany

o canto das lágrimas oleiras, portugal

master thesis

squatting the marvellous city rio de janeiro, brazil

miscellaneous

soft: school of transformation munich. germany

kollektive stadt transformation of munich‘s branntweinareal

technical university of munich

lehrstuhl für städtische architektur prof. dietrich fink

munich, germany summer 2022

team

amelie pretsch

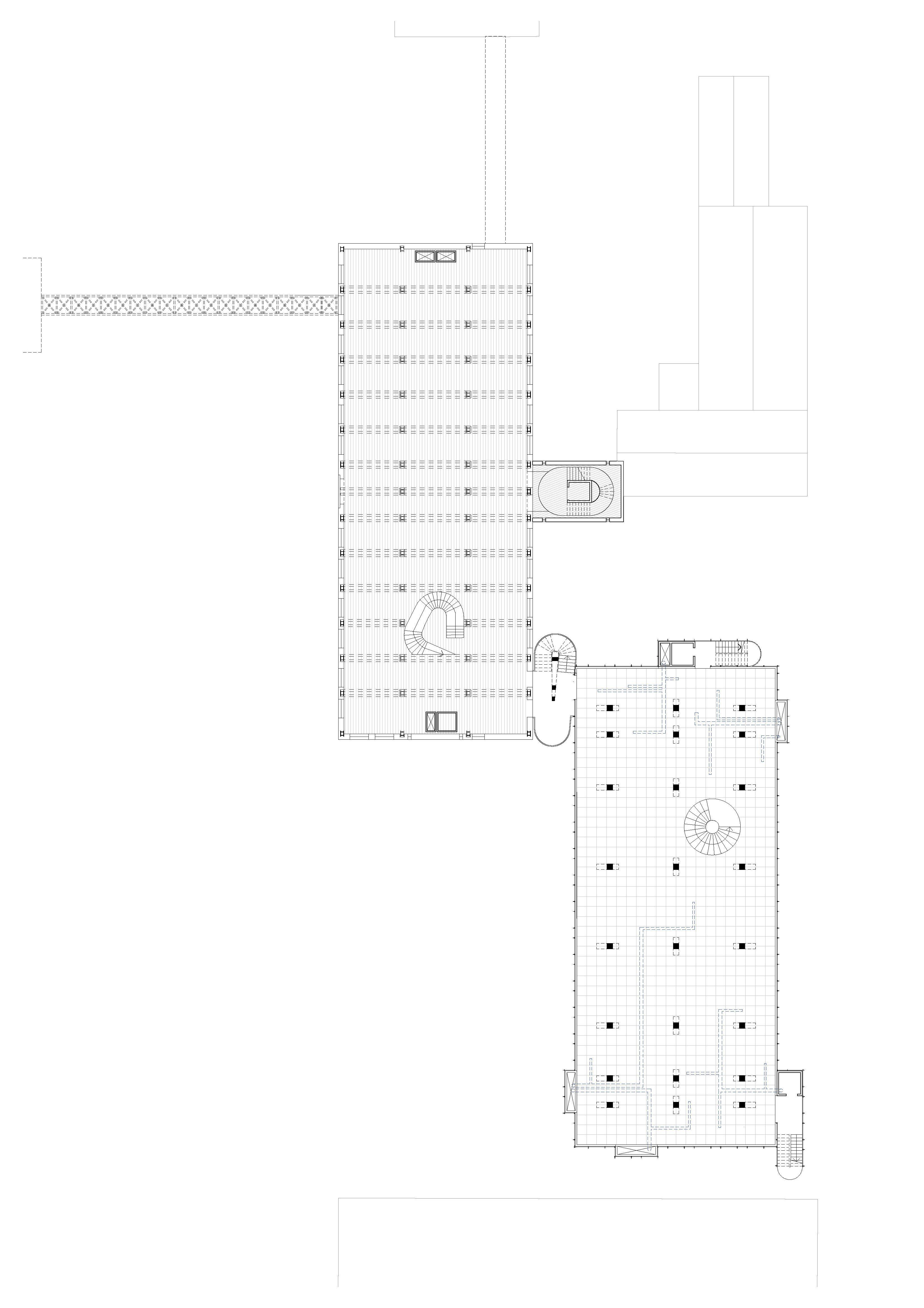
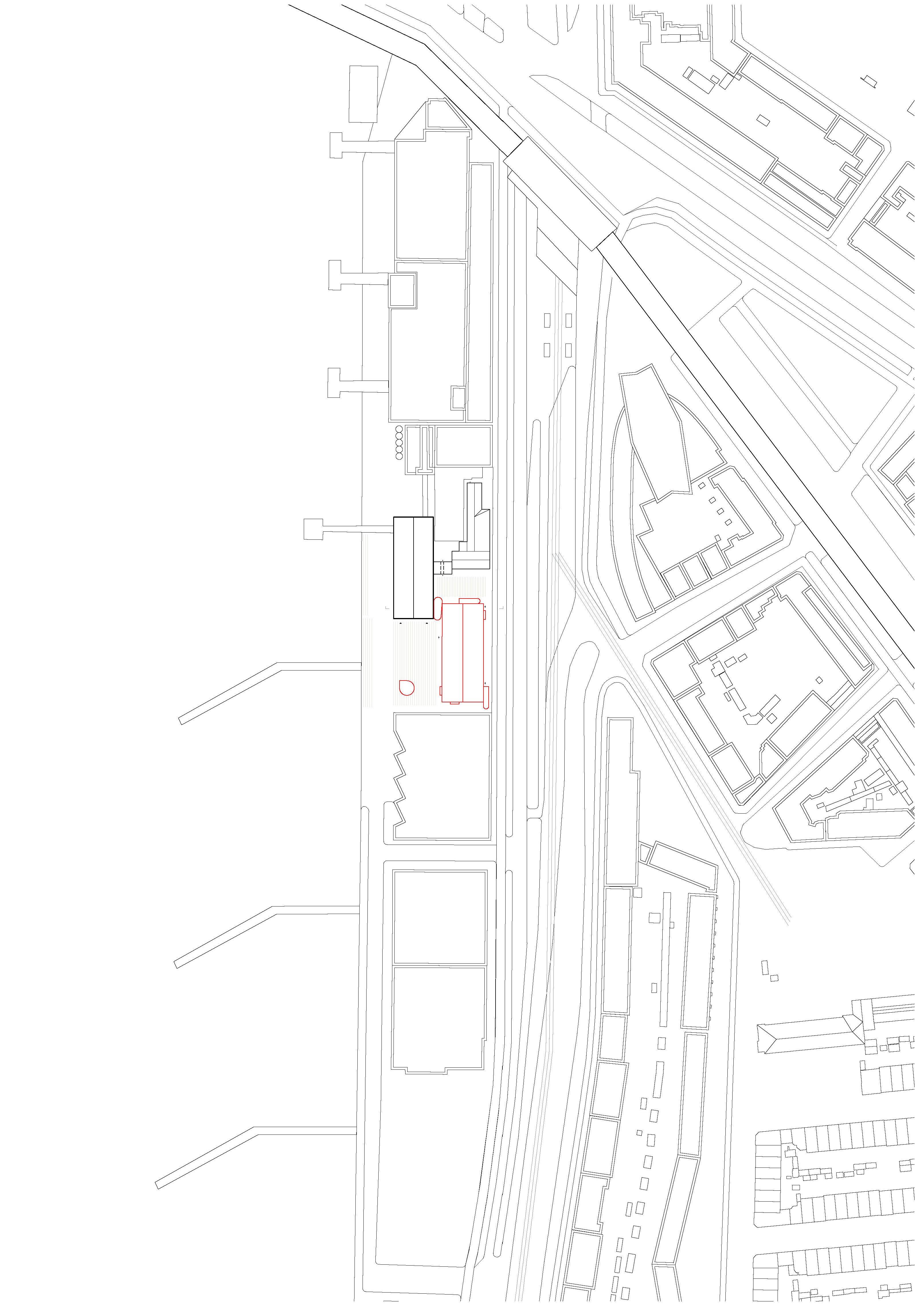
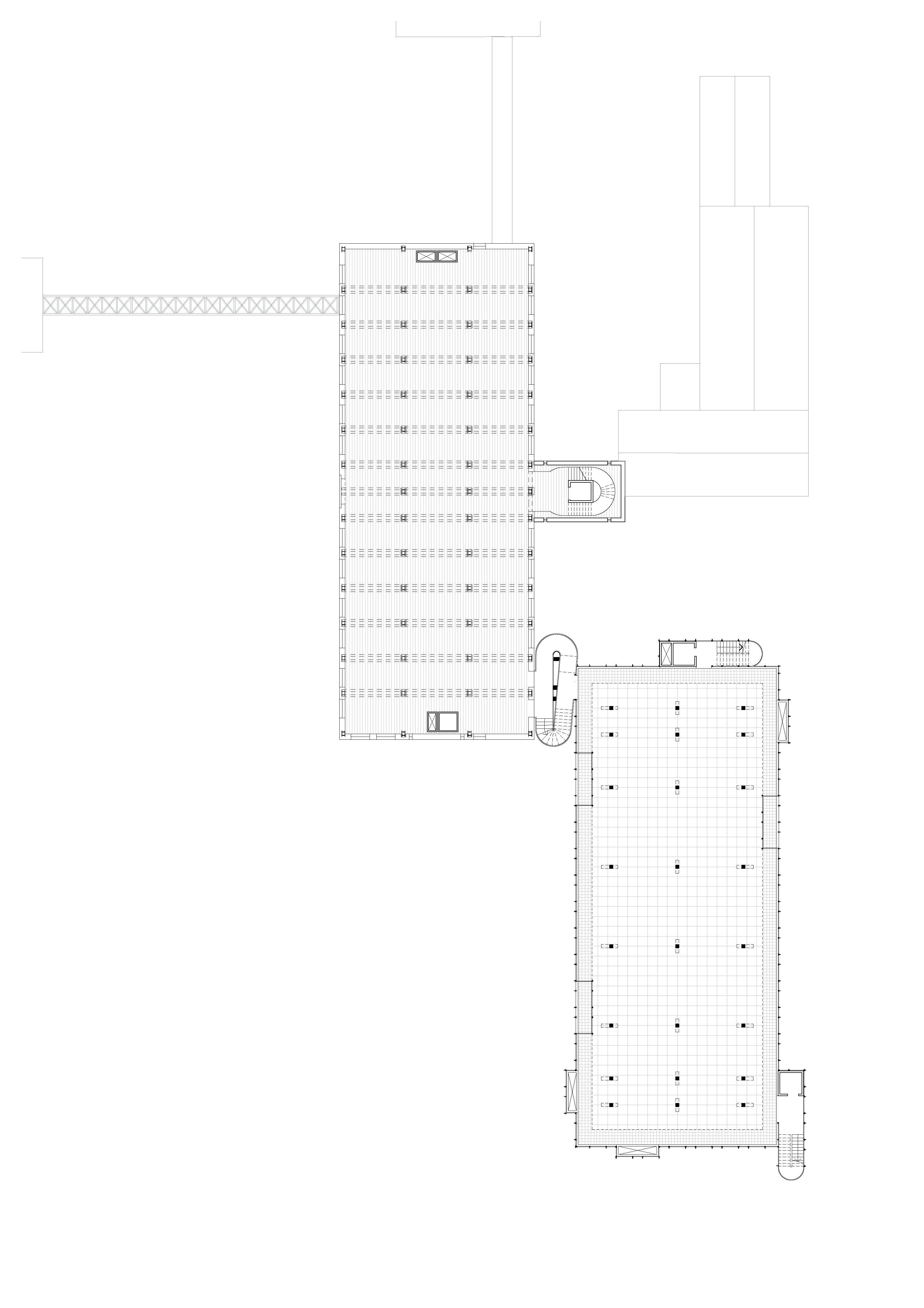
The branntwein areal, now vacant for several years, is one of the last large production facilities in the city’s eastern center. In the context of severe housing shortages and rising rent costs, the city of Munich is considering long-term plans to transform this site into a densely populated urban area. Meanwhile, the artists’ collective “common ground” is exploring short-term development with an interim utilization concept. Both approaches aim to create commercial, cultural, workshop spaces, and housing outside the capital-driven market.

The site features various vacant buildings—warehouses, silos, a machine tower, residential units, and a loading station—that needed evaluation for preservation or demolition. The heavily trafficked Leuchtenbergring divides the site, creating challenges with noise pollution, connectivity, and dilapidated structures.

The design preserves three existing buildings and proposes seven new ones, each with unique residential forms. The new buildings are positioned around the existing ones, forming diverse open spaces. Key existing structures (the pagoda, machine tower, warehouse) will be repurposed as collective, rentable, or neighborhood spaces, serving as focal points for the new buildings. The new structures, with varied typologies and smallscale architecture, create a human-scaled environment with pavilions and kiosks.

Based on a standardized grid and construction principle, the buildings use combinations of standard components to facilitate long-term adjustments and maintenance. Each new residential building features communal areas and caters to seven different living arrangements—classic flats, shared apartments, duplexes, cluster apartments, flexible living, studios, and temporary studios. This diverse offering brings together various living realities and, combined with urban space programming, creates a collectively used, character-rich area.

building blocks’ catalogue, part 1

building blocks’ catalogue, part 2

auch das ist das land

technical university of munich studio gründer / guest professor prof. anika gründer nominee mies van der rohe‘s young talent award 2021

kloster veßra, germany winter 2021 team anika janda

In recent years, eastern Germany has witnessed a troubling rise in far-right movements, particularly in rural areas like southern Thuringia. In this context, the design studio “Auch das ist das Land” aimed to explore the role of architecture in tackling political matters, by asking the question: How can creative and dynamic spatial processes promote the development of democracy in rural areas? And what is the role of architecture in extreme political environments?

As a response to this question, the project focusses on revitalising the village through small-scale architectural interventions that enhance everyday encounters and strengthen community ties. Historically, small structures in the village served as communal gathering points, but over time, they became more private and functional. Thus, the proposal seeks to reintroduce these spaces as centers of social interaction.

Key interventions include the construction of five new microarchitectures, starting with a bus stop relocated to the village center near the new marketplace, serving as a welcoming point for visitors. The monastery’s walls are also removed to create a more open space, connecting the village with the surrounding areas via a new bike path. Another significant element is the enhancement of the “Refektorium,” a small restaurant which openly confronts the village’s far-right Wirtshaus directly across the street. This is done by promoting local traditions such as cooking over an open fire, similar to the historic communal bakehouses. A new contemporary “Tanzlinde” (dance tree) appears in the center of the marketplace, providing a venue for traditional dances and other community events, reinforcing the village’s cultural identity and social cohesion. Through these interventions, the project offers alternatives to the divisive narratives in the village, promoting inclusivity and community engagement.

corner point, detail drawing

corner point at evening

point, detail drawing

structural axonometric

rain protection

solar protection

grandstand upper structure

clam connection with supporting shoe on steel disk

skelet construction

grandstand bottom structure

flooring dancing area

column base with H-supports 115x115 mm set in concrete blocks

connection of weather protecting elements with skelet construction

secondary structure dance floor

built to last resilient buildings in rotterdam

technical university of munich

studio krucker bates / chair for urban design and housing

prof. bruno krucker, prof. stephan bates

rotterdam, netherlands winter 2022

team

livia nowak

theresa zöllner

The project aims to reactivate a historic rice peeling factory in Rotterdam’s Maashaven by designing a complementary extension building. A careful exploration of the relationship between the existing building itself and its new partner raises a variety of questions on resilience beyond technical aspects. What building practices from the past can be utilised, how can what is already there be used or modified? What is the relationship between old and new? Which parts of a building are destined to last?

The design concept revolves around the themes of tolerance and adaptability, exploring how a building can remain open to change while retaining its character. The existing structure, or “skeleton,” is considered permanent, with asymmetrical pillars and varying ceiling heights that serve both structural and ornamental purposes. These elements allow for a broad range of uses within the building. In contrast, the facade is treated as an ephemeral, service-oriented layer that wraps the building and unfolds to create shafts and balconies.

The proposed extension complements the historic host building while embracing its own identity. The facade of the new structure folds inward to create entrances, bringing the colors and elements of the exterior into the interior spaces. Vertical connections and infrastructure are placed along the facade, leaving the interior open for future adaptations. The connection between the old and new is marked by a staircase, designed as an object trouvè, linking the two buildings.

Inside the host building, the ground floor’s high ceilings allow for mezzanines or expansive atelier spaces, while the upper floors offer intimate, domestic atmospheres with loggias and warmer window frames. The contrast between the freeform staircases in the host and the more structured design of the new building highlights their synergy, emphasizing the relationship between permanence and change, old and new.

In sum, this project balances historical preservation with modern adaptability, creating a resilient architectural space that honors its past while remaining flexible for the future. The building is envisioned as a platform capable of adapting to changing functions and contexts over time, ensuring that it remains relevant in an evolving urban environment.

site model, 1:200

model picture: fassade folds forming building’s entrances

model picture: infrastructure runs freely through the structure and is collected in the fassade’s layer

model picture: fassade folds forming an in-between layer with loggias

o canto das lágrimas sleeping pods on a cliff

free competition entry

oleiros, portugal winter 2020

team

felix kruthaup muriel lippert

anthony butcher

“Picture yourself walking barefoot, standing in the muddy waters as they lean downwards the hills, the mountains, the relief on your face as you look up into the cloudy sky. Maybe you are enchanted by nature when in solitude, maybe solitude could be your partner in recreation, maybe solitude is where you find yourself.

Trust, shelter begins where wildlife takes a breath. Shelter is found between and in the trees. It’s cozy, where the apricots grow. It’s cozy, when the walls still smell like the cork forest and the freshly built-up resin of the pines.

Nesting in between the trees, the step inside the dry reveals a cascade of terracotta glazing the impluvium. Thin layers of linen shiver delicately in the soft billows rustling the leaves outside. You might decide to sit next to the protective wall or take a few steps to the middle. In chantepleure, when you enter the atrium, while the outside is ardent at its best.

The dripping on the ceiling is rhytmic, the dropping off the jutted edges into middle plays like a melody. It’s like a song when you listen closely, everything opens up and the celestial enters the nest of somnus.

“O canto das lágrimas” leads you back to a life more basic and less hectic. Even during the dry and busy summer, it acts as a seatdy reminder of the need for solitude in community, the benefits of attentiveness, the necessity of water.”

neufreimann wa 11

competition entry with bogevischs buero 1st prize

munich, germany summer 2023

team

magdalena müller

laura ingermann

johannes prünte matthias stuffer

The project, located in Munich’s Bayernkasern area, is designed to create a cohesive and vibrant community through the development of two distinct yet complementary buildings. These buildings are carefully conceived to respond to various structural and typological needs, resulting in a design that divides the overall mass into two parts. While the buildings share a similar form, they differ in typology, construction, and facade design, creating a dynamic and nuanced urban presence.

The buildings are connected by a network of access balconies, terraces, and rooftop gardens, which seamlessly unify them into a single, interconnected living environment. Each building organizes its residential units into three zones: communal areas that face the courtyard, private spaces oriented outward, and a central zone that houses bathrooms, entrances, and storage areas. This zoning allows for flexibility in living arrangements and fosters a sense of community within the buildings.

The southern building, situated along the ring road, features a corridor typology that encourages both community engagement and private retreat. In contrast, the northwest building is more compact, with apartments designed to be expanded through flexible room layouts. The upper floors of this building offer maisonette apartments intended for families, complete with private front gardens and airy interiors that enhance the living experience.

The compact design of the apartments allows for the creation of extensive communal spaces. Shared terraces and rooftop gardens serve as social hubs, supporting activities such as urban gardening and outdoor gatherings. Additionally, the ground floor includes community facilities that open up to the wider neighborhood, further enhancing the project’s integration with its urban context.

homogenous block

height graduation

communal areas through substraction

fassadenbeg ünung am aubengang

construction concept

konstruktion und gestalt

connecting bridges

joker staircase
joker terrace

dach pv über dachbegrünung extensiv abd chtung b tumenbahn gefä ledämmung 150mm dämmung 200mm trennlage hbv-decke 240mm

decke obergeschosse parkett eiche 15mm trittscha ldämmung 30mm heizestr ch 70mm hbv-decke 240mm

außenwand obergeschosse

holz attung weißtanne 24mm lattung 24mm konterlattung 24mm dämmung 60mm holzständerwand 240mm zel ulosedämmung recycelt osb-platte 12mm insta lationssch cht 40mm gk doppe t beplankt 25mm

decke erdgeschoss parkett eiche 15mm trittscha ldämmung 30mm heizestr ch 70mm dämmung 100mm hbv-decke 240mm unterdeckendämmung zur tg 120mm

außenwand erdgeschoss kunstste np atten 30mm tragsystem verdecke 50mm dämmung 80mm holzständerwand 300mm zel ulosedämmung recycelt osb-platte 12mm insta lationssch cht 40mm gk doppe t beplankt 25mm

fenster: holz -a u-fenster 3-fach- sol erverglasung

squatting the marvellous city: how can squatted buildings (re)activate downtown rio?

technical university of munich chair of history of architecture and curatorial practice prof. andres lepik

rio de janeiro, brazil winter 2023

master thesis

For decades, the historic center of Rio de Janeiro has been a central site of social struggles over housing and the right to the city. While political measures and large-scale urban development projects have increasingly gentrified and depopulated the area, urban squats offer an alternative form of spatial appropriation. This work examines the extent to which squatted buildings serve not only as housing for marginalized groups, but also as a social and political practice that renegotiates urban development from bottom up.

Based on an analysis of the historical, social and political development of the city center, the work shows how programs such as Minha Casa, Minha Vida and revitalization projects such as Porto Maravilha have contributed to the progressive displacement of low-income groups. The case study of the squat Vito Giannotti is used to examine how self-management and collective organization are established as resistance strategies against these processes. Oral histories and field research are the choosen methodology to examine the spatial configuration of the Vito Giannotti squat, as well as questions of self-management, collective decision-making and the transformation of urban spaces.

The master’s thesis combines perspectives from architecture, urban research and politics in order to illustrate that urban squatting should not only be understood as an expression of housing shortages, but also as an active shaping of urban spaces and resistance to exclusive urban development.It thus contributes to the debate on social justice in urban space and the role of informal forms of housing in an increasingly segregated urban landscape.

Full book at: https://isu.pub/mt9FWR5

extracts from book „squatting the marvellous city“
view from squat vito giannotti
view from inside the squat
extracts from book „squatting the marvellous city“

soft: school of transformation

technical university of munich munich, germany since 2022

architecture collective founding member

SOFT – School of Transformation – is a self-organized collective of students and professionals in Munich’s architectural field. It critically examines space through intersectional-feminist, anticlassist, decolonial, and anti-racist perspectives, advocating for more inclusive and equitable practices in education and the profession.

Founded in 2022, SOFT emerged from the merger of two initiatives: Chair of Gossip, a student-led group spanning all years of architecture studies, and Chair of Unlearning, a project rooted in a bachelor thesis at the Chair of Urban Design. By uniting their efforts, the collective seeks to challenge the structural shortcomings of architectural curricula and work environments.

Recognizing the discipline’s deep-rooted Eurocentrism and exclusionary tendencies, SOFT actively works to dismantle these biases. Through regular meetings, conferences, urban interventions, and a newsletter, the group fosters critical dialogue and engagement. SOFT also initiated the “Code of Studio”, an open dialogue document advocating for better academic and workplace conditions. Since its publication, it has sparked discussions among students and faculty, pushing for meaningful reform.

As a dynamic and evolving collective of students and recent graduates, SOFT envisions architecture as a tool for social change—one that challenges power structures, amplifies diverse voices, and redefines the built environment through a more just and inclusive lens.

the code of studio is a collaborative effort by soft, students, assistants, and professors, shaping a shared guideline for fostering a better studio culture. as a living document, it remains open to updates and refinements. since 2023, it has been distributed to all first-year students at tum, serving as a foundation for a more inclusive and supportive learning environment.

parity jour fixe no.29: code of studio – workshop organized by soft, july 2023

guest lecture | „architecture discriminates“ architect‘s council of europe | new european bauhaus: upskilling x (education + practice) april 2023, together with elena spatz full lecture at https://www.schooloftransformation.eu

the curriculum comedy was a three-day symposim, organized by soft and meike schalk, in november 2022. divided into three themes (s. poster), the event debated the future of architecture curricula, with students and practicioners.

eduarda barbosa poubel

eduardapoubel@gmail.com

+49 172 4679784

Turn static files into dynamic content formats.

Create a flipbook
Issuu converts static files into: digital portfolios, online yearbooks, online catalogs, digital photo albums and more. Sign up and create your flipbook.
Eduarda Barbosa Poubel: Architectural Portfolio 2025 by Eduarda Barbosa Poubel - Issuu