CONTENU

École Jean XXIIl, concours et avant-projet
(p. 1-4)
(projet professionnel chez B612architectes)

Piers, Concours pour rénovation
(p. 13-16)
(projet professionnel chez B612architectes)

Pole Limbourg, phase d’adjudication et suivi de chantier
(p. 5-8)
(projet professionnel chez B612architectes)

Green & Blue Market, Clinique ArqDis
(p. 17-20)
(projet collaboratif avec la clinique ArqDis)

Rue haute, concours pour rénovation
(p. 9-12)
(projet professionnel chez B612architectes)

Marché couvert de San Luis, Projet de fin d’études
(p. 21-28)
(projet académique)

Naska Digital, Projet certification Revit
(p. 29-32)
(projet certification Revit)
Jean XXIII School, concours
et avant-projet
2023-2025
Concours et avant-projet développés dans le cadre de mon travail chez © B612architectes
En pleine croissance et expansion, l’école Jean XXIII de Bruxelles a lancé un concours pour la rénovation, le réaménagement et l’extension de ses installations.
Pendant le concours et les travaux ultérieurs de l’avant-projet (après la sélection des lauréats), j’étais principalement responsable de la conception et du suivi du projet du nouveau bâtiment préscolaire, la rehausse du bâtiment secondaire et la renovation du bâtiment patrimonial administratif. J’ai assuré la coordination et l’étroite collaboration avec les responsables de l’école et les ingénieurs en stabilité et techniques spéciales.
Compte tenu de la complexité du fonctionnement de l’école existante, du plan directeur aux différentes sections, le défi était de taille. Nous avons dû faire face aux contraints de programme complexes, à un terrain en pente, à des difficultés d’accessibilité des terrains, à la sécurité des élèves et à une réglementation incendie stricte. Tout cela avec la responsabilité de préserver le bon fonctionnement de l’école pendant les travaux d’agrandissement et de rénovation.
Phase d’avant projet terminé (juin 2025). Les images et dessins présentés appartiennent à la phase d’avantprojet.
Used software
Vectorworks, Lumion


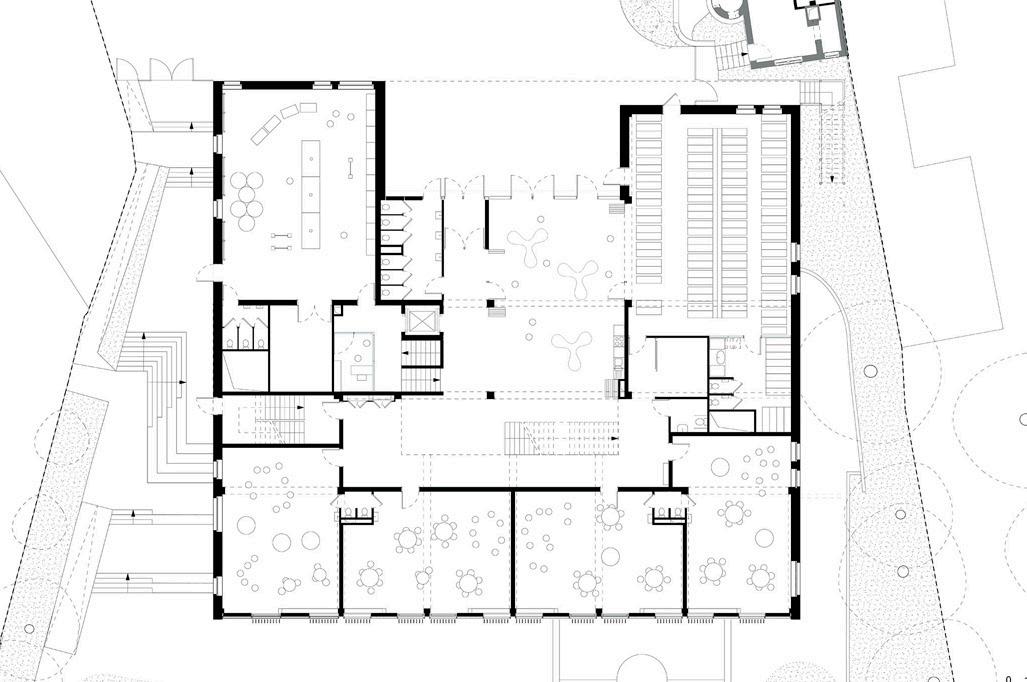
Plan directeur
Axonométrie générale du nouveau plan directeur de l’école qui comprend le nouveau bâtiment préscolaire proposé (1), l’extension d’un étage au-dessus du lycée existant (2) et la rénovation du bâtiment administratif patrimonial (3)






Cour des primaires
Maternelles


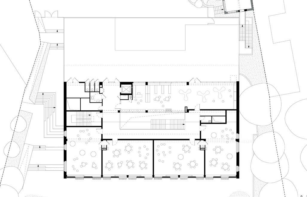
Le bâtiment préscolaire proposé tire parti du relief du site existant. Sur son côté le plus élevé se trouve la cour de récréation de l’école maternelle, d’où l’on accède aux deux niveaux de classes (RDC et 1). Au niveau inférieur (-1), le bâtiment fait face à la cour de récréation de l’école primaire, donnant accès à la salle de sport de la section des plus grands.





École primaire/secondaire
L’intervention consiste en l’ajout d’un ascenseur et d’un ensemble de passerelles dans les patios intérieurs pour rendre accessible aux PMR les niveaux existants (actuellement reliés uniquement par des escaliers) et l’extension du bâtiment d’un niveau pour augmenter sa capacité.











toit

passerelle + rehausse
existing
Villa (administration)
L’intervention vise à redonner de la visibilité à ce bâtiment patrimonial et à rénover ses intérieurs.


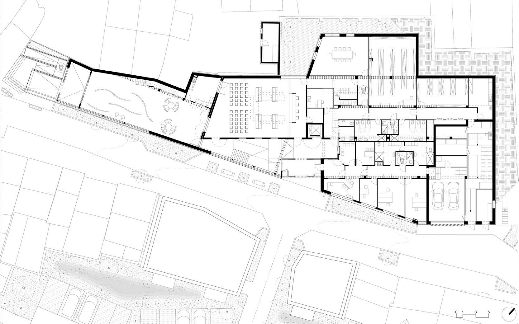
Pole
Limbourg,
phase d’adjudication et suivi de chantier
2024 - 2025
Dossier d’adjudication et suivi de chantier lors de mon travail chez © B612architectes
Projet pour la réalisation du nouveau Pôle Administratif à Limbourg, Belgique. Le bâtiment comprend des services communaux, un espace culturel-bibliothèque, un espace justice de paix, l’ONE, et les bureaux de police.
Le bâtiment et ses espaces exterieurs donneront un nouveau visage à la place principale de Dolhain, et de nouveaux espaces de qualité pour se rencontrer et développer des activités pour les citoyens.
Il s’agit d’un nouveau bâtiment qui donnera un air contemporain à la ville, en respectant le contexte urbain avec l’utilisation de la brique, un matériau traditionnel de la région.
J’ai travaillé dans le cadre de la phase d’adjudication, notamment sur le dessin et développement des détails techniques, la communication avec les forniseurs et la réalisation des rendus intérieurs et extérieurs. Ulterieurement, j’ai suivi les premières étapes de construction et la communication avec les BET, le client et l’entrepeneur.

Used software
Autosdesk Revit, Photoshop, Lumion, Illustrator


Implantation











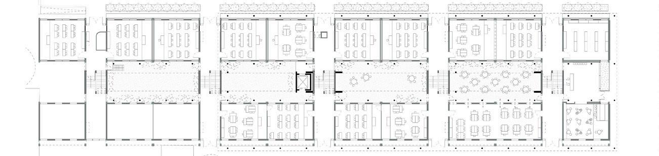
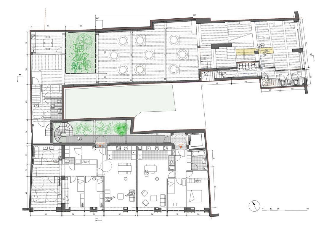
Rue haute, Concours pour rénovation
2024
Concours développé dans le cadre de mon travail chez © B612architectes , en collaboration avec Vanden Eeckhoudt-Cref arch.
Projet pour la rénovation et transformation d’un ensemble de bâtiments situés rue Haute et rue Notre-Seigneur à Bruxelles, en minimum 13 logements de transit et 1 commerce.
Ce projet vise à valoriser le patrimoine architectural existant tout en améliorant la qualité des espaces et leur insertion dans le tissu urbain. Il prévoit une organisation claire des accès, la création de logements traversants lumineux, la conservation des structures existantes, et la revalorisation du centre d’îlot par la démolition partielle de murs aveugles. Le projet inclut également l’aménagement de patios pour apporter de la lumière naturelle, l’orientation des pièces de vie vers la rue, ainsi que le développement de la biodiversité via des toitures végétalisées et des patios.
Dans le cadre de ce projet, j’ai participé à la conception architecturale, la coordination des aspects techniques avec les BET ainsi qu’à la production des documents graphiques (plans, coupes, élévations, rendus) pour la mise en page dans la note d’intention.

Rhinoceros, Photoshop, Illustrator Used software

Schéma des fonctions

Axonométrie des appartements





Haut: Appartement deux chambres / Bas: Commerce au RDC


Deuxième étage

Façade


Coupe du bâtiment Rue Haute


Piers, Concours pour rénovation
2024
Concours développé dans le cadre de mon travail chez © B612architectes
Projet pour la réalisation d’une extension de la Maison des Cultures et de la Cohésion Sociale (Molenbeek Saint-Jean) sur le site de l’ancien complexe scolaire de l’Athénée Serge Creuz composé de trois maisons (à démolir) et d’un bâtiment d’atelier (à conserver et réhabiliter).
Ce projet architectural cherche à harmoniser le développement du quartier en renouvelant l’image de la rue Piers avec un bâtiment contemporain qui respecte l’architecture locale, préserve le patrimoine industriel du site, désenclave le cœur d’îlot grâce à ses circulations fluides et à des aménagements végétalisés, et qui favorise un environnement inclusif et évolutif renforçant les liens entre habitants, usagers et visiteurs.
Mon travail a commencé par une analyse approfondie de la structure existante à conserver, menée en étroite collaboration avec les équipes de BET, afin d’envisager une réhabilitation cohérente intégrant une nouvelle extension. Par la suite, j’ai contribué au développement des plans, rendus et schémas explicatifs permettant de présenter clairement le projet.
Used software
Vectorworks, Lumion




Préservé
Démoli
Façade préservé



Premier étage

Façade rue Piers

Façade intérieure

Deuxième étage

Coupe à travers le nouveau passage rue - centre d’îlot






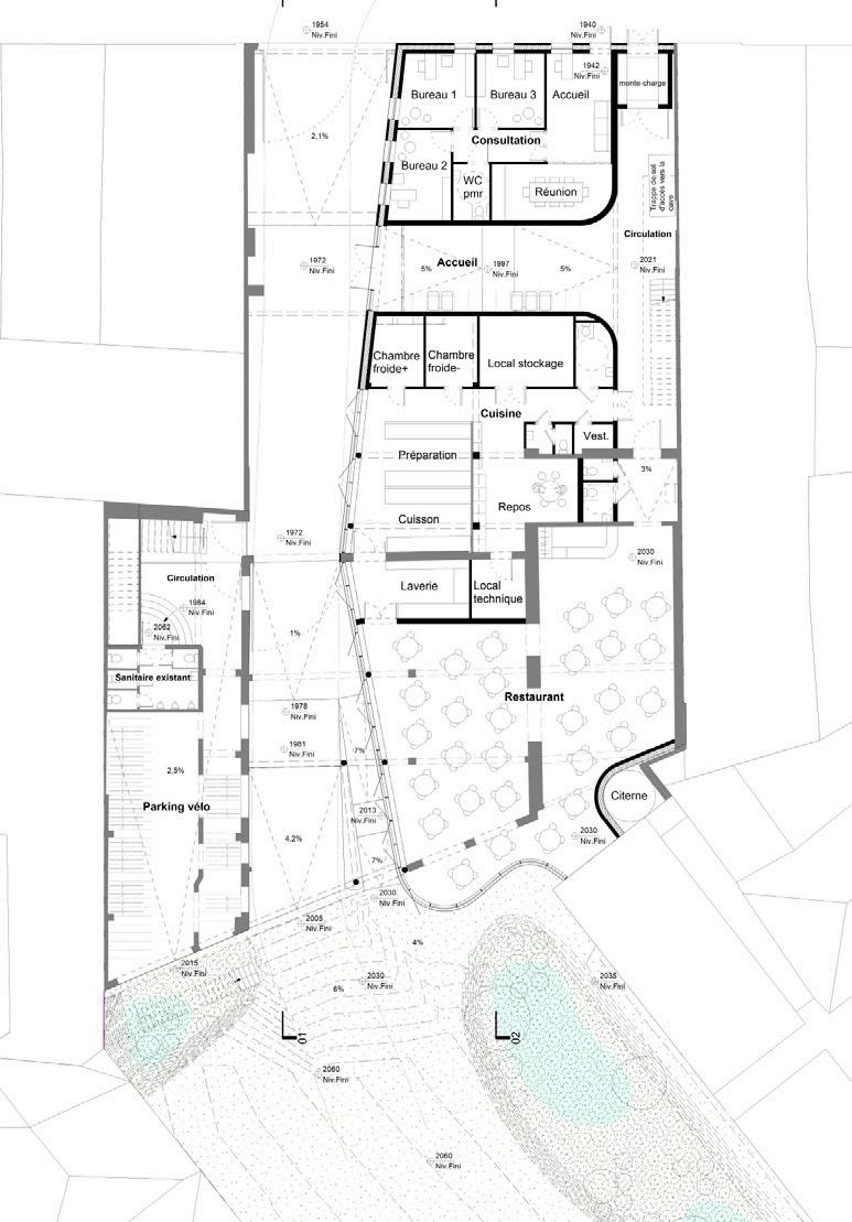
Green & Blue Farm, fish & arts Market, ArqDis Clinic
Projet de travail communautaire, 2021
Projet developpé lors de mon travail à la © Clinique d’Architecture et Dessin, Faculté d’architecture et de design, Université des Andes.
Au cours du premier semestre 2021, j’ai eu l’opportunité de travailler à la clinique ArqDis, où j’ai collaboré avec des professeurs et des étudiants de la faculté en faveur de la communauté de pêcheurs de l’île de Providencia.
Le syndicat des pêcheurs de Providencia manquait d’espace pour faciliter sa chaîne de production sur l’île. Nous avons donc collaboré avec les pêcheurs, sur un projet visant à renforcer leurs activités, la croissance économique et le tourisme sur l’île. Nous avons élaboré le schéma directeur d’un marché où seraient organisés la transformation, le stockage et la vente du poisson. Des espaces ont également été prévus pour la vente de produits agricoles, d’artisanat et de plats préparés. Par ailleurs, l’utilisation des traditions architecturales et des matériaux locaux, acquis au contact direct des communautés, a joué un rôle essentiel dans le projet.
J’ai personnellement été responsable de la conception, de la modélisation et de la communication avec les habitants.
Used software
Autosdesk Revit, Photoshop, Lumion, Illustrator

Objectifs du projet


Maintenir la tradition Impliquer la communauté


Coexister avec la nature Générer de la croissance économique
Organigramme

Le marché serait situé sur un terrain du secteur de San Luis, près de la côte. Il comprendrait un quai de débarquement à côté d’un bloc couvert pour la réparation des bateaux. Au nord du terrain, l’activité du marché serait concentrée, avec un bloc principal abritant le stockage du poisson, la cuisine, la vente et l’administration du marché. On y trouverait également un module de service plus petit et des modules pour la vente de produits agricoles et d’artisanat.
FLUJOS
Deux voies de circulation indépendantes seraient aménagées au départ du quai. La première serait destinée aux pêcheurs, qui déchargeraient leurs produits et les transporteraient jusqu’à la zone de réception, de transformation et de stockage. De l’autre côté, le long de la côte, un autre chemin serait aménagé pour les touristes ou les visiteurs, qui arriveraient directement à la zone de vente et de restauration. 0.60

AREA DE CONSTRUCCION



Accès depuis l’intérieur de l’île



Pour la structure du module principal, deux conteneurs maritimes existants de 200,000 litres seraient utilisés, adaptés en chambres froides et servant de points d’appui à une structure en bois complémentaire.
La structure, les finitions et la toiture suivraient le modèle de l’architecture vernaculaire insulaire. Ce modèle témoigne de la tradition constructive de Providencia et est conçu pour résister aux tempêtes et aux ouragans qui frappent la région.

Marché couvert de San Luis, Projet de fin d’études
2022
Tuteur du projet de fin d’études :
Andrés Martínez Dávila
Sur la base d’une analyse de la chaîne d’approvisionnement alimentaire et d’une compréhension générale du site d’intervention (quartier de San Luis, Bogotá, dans le secteur de la route Bogotá-La Calera), j’ai trouvé l’opportunité de proposer et de concevoir un marché couvert.
De plus, le marché couvert est complété par d’autres usages qui exploitent le lieu, son activité et son flux important de personnes pour en faire un lieu d’intérêt gastronomique, culturel et touristique.
Le projet englobe le marché couvert, des restaurants de cuisine locale et traditionnelle, des bars pour la vie nocturne, des ateliers pour les artisans locaux et un espace modulable pour les expositions d’art ou les événements organisés par la communauté.
Logiciel
Rhinoceros 3D, Photoshop, Illustrator


La pente du terrain est utilisée pour générer des plateformes dans le sol, avec une différence de hauteur d’un mètre entre elles.

Le programme est subdivisé en cinq blocs. Un bloc abrite également l’église et le centre médical (bâtiments préexistants, rénovés).

La zone de déchargement/services et le parking visiteurs sont situés à un étage inférieur aux blocs 1 et 2 de la halle du marché.

Les circulations sont constituées de deux axes principaux-couloirs qui descendent avec la topographie et relient les différents blocs, à partir de deux places d’accès qui relient la route principale et le quartier.

J’ai proposé une structure à ossature en béton armé avec plafond voûté. La structure est adaptée aux usages de chaque bloc.

Je propose des jardins qui descendent avec la topographie et accompagnent les circulations extérieures.

Rez-de-chaussée
VíaBogotá-LaCalera
5 0 15 m
Au rez-de-chaussée, on peut observer les différents blocs du programme, les jardins qui accompagnent les circulations et la relation des places avec les chemins piétonniers qui relient l’intérieur du quartier de San Luis.
Zoom in Bloc 1 Marché couvert

Zoom in Bloc 3 Marché artisanal



Au deuxième étage, les différentes parties du programme sont également reliées par des circulations extérieures donnant sur les jardins du premier étage. Les deux blocs de la halle (en haut à droite) présentent une double hauteur au lieu d’un deuxième étage.
Au sous-sol du bloc 1 se trouvent la zone de déchargement, les entrepôts et les espaces de repos du personnel. Le premier niveau de stationnement visiteurs se trouve au sous-sol du bloc 2, avec une rampe d’accès.
0 Aire de restauration
1 Bar / terrasse
0 Marché artisanal
1 Ateliers d’artisans
Couloir principal (0) partant de la place d’accès
pvc 4" (aguas pluviales)
Banco concreto
Luminaria empotrada en muro
3.0 m
0.66 m
Muro contención
Muro contención
4.0 m
Capa de concreto de compresión (17cm)
Ladrillo (25,0 x 12,5 x 6,0 cm)
Recebo compactado 1.75
Capa de concreto de compresión (17cm)
Ladrillo
Concreto pobre (13 cm)
Baldosa cerámica 20x20cm
Concreto pobre (7 cm)
Aislamiento de poliuretano (8 cm)
Losa de concreto armado (10 cm)
Détail de voûte
Concreto pobre (13 cm)
Concreto pobre (7 cm)
Aislamiento de poliuretano (8 cm)
Losa de concreto armado (10 cm)
Concreto pobre (7,0 cm)
Baldosa barrio cocido (20,0 x 20,0 cm)
Concreto pobre (13,0 cm)
Baldosa cerámica (20,0 x 20,0 cm)
Concreto pobre (7,0 cm)
Losa de concreto armado (15,0 m)
Lamina de polietileno (impermeabilizante) (1,0 cm)
Losa de concreto armado (15,0 m)
Lamina de polietileno (impermeabilizante) (1,0 cm)
Recebo compactado
Systèmes de biorétention d’eau

Façade (nord)
Il y a un rythme généré par les colonnes et les murs porteurs qui s’étirent ou s’élargissent dans les différents blocs, en respectant toujours la grille et les rythmes des voûtes.

Façade (est)
La structure détermine la spatialité, ses rythmes et la relation avec l’extérieur. L’extension de l’activité vers l’extérieur est recherchée à chaque instant, que ce soit à travers les terrasses ou les places du projet.

Marché couvert
Couloir central de la halle du marché, un espace haut et lumineux plein de vie.

Jardins et couloirs extérieurs
La flore et la faune endémiques génèrent une atmosphère pleine de vie et de couleurs dans les couloirs du projet.

Atelier artisanal
La matérialité cherche à générer une harmonie avec la structure et avec la nature autour du projet.

Terrasse de l’aire de restauration
Activité qui s’étend vers l’extérieur, profitant de la vue sur les collines et Bogotá.
Projet certification Revit BIM, Naska digital
2020
Formation sur Autodesk Revit et la méthodologie BIM
Le diplôme Bim Revit pour l’architecture accrédite l’utilisation du logiciel Revit pour la génération de projets selon la méthodologie BIM, à travers la modélisation d’un projet existant sélectionné.
Pour cette formation, j’ai choisi le projet NIU
Coliving du cabinet d’architectes CRAFT. Grâce à sa modélisation, j’ai pu obtenir une documentation détaillée, réaliser des analyses solaires et énergétiques, générer des options de conception et de phase, générer des tableaux de quantification et de qualification des éléments et des matériaux, réaliser des simulations constructives via NAVISWORKS, des rendus, et concevoir des familles paramétriques, entre autres outils proposés par le programme.
L’achèvement de la formation (110 heures) donne droit à un diplôme accrédité internationalement par Autodesk.
Logiciel
Revit, Navisworks, Enscape.

























































Le projet de modélisation utilisé est NIU Coliving, un immeuble résidentiel de 3 500 m² situé au Mexique, qui vise à créer un esprit communautaire grâce à l’espace habité. Cet objectif est atteint grâce à la combinaison de chambres indépendantes et de divers espaces partagés favorisant l’interaction et les échanges sociaux. L’objectif est de créer un sentiment d’appartenance et d’appropriation de l’espace habité.
Le développement de la modélisation et l’application des outils appris dans Revit, dans le cadre du projet NIU Coliving, ont été particulièrement intéressants concernant la modulation des espaces, la gestion initiale des groupes pour la répétition des éléments des logements, l’application de différents matériaux, couleurs et textures. L’aménagement des structures des murs et des sols, le développement de familles en harmonie avec les espaces, ainsi que le développement de la façade modulaire qui confère de la personnalité au bâtiment et aux espaces intérieurs, ont également été abordés.
Modèle de contexte






























Modèle structurel




































































Conception et personnalisation des familles
Diseñador:
Proyecto:
Ubicación:
Plano:


































