PROPUESA DE RESTAURACIÓN - MUSEO DE CULTURAS PERUANAS

Page 1

CASA DE LA FAMILIA ANGULO ALVAREZ LAIZATERÀN MARQUINAVERA TANDAYPAN BAZÀN PELAEZBACILIO GUERRAAVALOS LOYOLACAMPOS MENDEZRAMIREZ CONTRERASROMERO GUEVARAPEREZ INTEGRANTES 2022 CONSERVACIÓNDE PATRIMONIO ARQMIKYTORRESLOYOLA
CURSO: CONSERVACIONDELPATRIMONIO CULTURAL DOCENTE: MG.ARQ.TORRESLOYOLA ELMERMIKY INTEGRANTES: CONTRERASROMEROMARICARMEN GUERRAAVALOSLISBETH GUEVARAPEREZANGEL LAIZATERANDANIEL LOYOLACAMPOSCRISTIAN MENDEZRAMIREZJAHNN PELAEZBACILIADAVID TANDAPANBAZANJHON SEMESTRE: 2022-II GRUPO: 02 N°LAMINA: 01 ESCUELADEARQUITECTURAYURBANISMO LOS AUTORES CASA DELAFAM. ANGULOALVAREZ Tandaypan Bazán Jhon Méndez Ramírez Jhan Guevara Pérez Ángel Laiza Terán Daniel

GENERALIDADES

GENERALIDADES

INTEGRANTES:

CONTRERASROMEROMARICARMEN GUERRAAVALOSLISBETH GUEVARAPEREZANGEL LAIZATERANDANIEL

LOYOLACAMPOSCRISTIAN MENDEZRAMIREZJAHNN PELAEZBACILIADAVID TANDAPANBAZANJHON

Plano 01: Ubicación y Localización Fuente: Elaboración propia

SEMESTRE: 2022-II GRUPO:

CURSO: CONSERVACIONDELPATRIMONIO CULTURAL DOCENTE: MG.ARQ.TORRESLOYOLA ELMERMIKY
02
°
01 ESCUELADEARQUITECTURAYURBANISMO
DELAFAM.
N
LAMINA:
1 .
CASA
ANGULOALVAREZ

1 . GENERALIDADES

VIABILIDAD Y ACCESOS

Dentro del entorno mediato del predio, encontramos una vía arterial (Av. España), la cual es la vía principal que conectan los diferentes sectores. Asimismo esta rodeada de vías colectoras, las cuales dan accesos a los diferentes predios, siendo el Jr. Orbegozo la vía colindante a la entrada principal del recinto,

LEYENDA:

Figura 01: Vialidad Trujillo Fuente: Elaboración Propia / Base: Plano de Trujillo

INTEGRANTES:

CONTRERASROMEROMARICARMEN GUERRAAVALOSLISBETH GUEVARAPEREZANGEL LAIZATERANDANIEL

LOYOLACAMPOSCRISTIAN MENDEZRAMIREZJAHNN PELAEZBACILIADAVID TANDAPANBAZANJHON

SEMESTRE: 2022-II GRUPO:

CURSO: CONSERVACIONDELPATRIMONIO CULTURAL
DOCENTE: MG.ARQ.TORRESLOYOLA ELMERMIKY
02
°
02 ESCUELADEARQUITECTURAYURBANISMO
N
LAMINA:
VIAS COLECTORAS: Av España VIAS ARTERIALES: Jr Ayacucho Jr Bolívar Jr Diego de Almagro Jr Orbegozo
CASA DELAFAM. ANGULOALVAREZ

HISTORIA DE LA VIVIENDA

2 . HISTORIA DE LA VIVIENDA

MÁS QUE UNA CASA … , UNA HISTORIA DE LA FAMILIA

Por la palabra del Sr. Angulo, quien amablemente nos recibió en su vivienda donde mientras tomábamos medidas y levantábamos los datos de la vivienda, nos iba comentando cómo ha ido evolucionando su vivienda, los cambios más significativos que ha tenido, y fechas a su criterio fueron más notorios, y como los desastres naturales fueron dañando junto al tiempo, la vivienda que desde su creación ha sido parte de su familia.

La historia de esta edificación inicia con su construcción en el año 1850, perteneciendo desde entonces a la Familia Angulo, empezando por la descendencia del actual propietario, quienes vivieron en ese domicilio hasta su fallecimiento, por lo que la vivienda sigue la línea de herencia, recayendo entonces la propiedad en los hijos, y nietos de esta familia lo mismo con sus hijos hasta llegar al propietario actual, el economista Roger Angulo Álvarez.

Esta propiedad tiene el mérito de haber sobrevivido al terremoto ocurrido el 31 de mayo de 1970, sin embargo, no se libró de sufrir averías quedando con daños graves que requirieron reconstrucciones, por lo que la familia Angulo se trasladó a otra vivienda hasta hace unos años en que volvieron a habitarla.

Tras su reconstrucción, la vivienda fue alquilada a una imprenta, que durante años usó este inmueble para realizar sus actividades comerciales, hasta que nuevamente la familia Angulo esta vez encabezada por el señor Roger Angulo, regresarán a habitar en esta vivienda, quienes fueron los encargados de financiar las remodelaciones de algunas zonas de la casa.

CONSERVACIONDELPATRIMONIO CULTURAL

DOCENTE: MG.ARQ.TORRESLOYOLA ELMERMIKY

INTEGRANTES:

CONTRERASROMEROMARICARMEN GUERRAAVALOSLISBETH GUEVARAPEREZANGEL LAIZATERANDANIEL

LOYOLACAMPOSCRISTIAN

MENDEZRAMIREZJAHNN

PELAEZBACILIADAVID

TANDAPANBAZANJHON

GRUPO:

CURSO:
SEMESTRE: 2022-II
02 N°
03 ESCUELADEARQUITECTURAYURBANISMO
LAMINA:
Figura 02: Familia Angulo Alvarez Fuente: Fotografía Propia CASA DELAFAM. ANGULOALVAREZ

2 . HISTORIA DE LA VIVIENDA

Principalmente de las áreas sociales como las Salas principal y secundaria, además de los baños y habitaciones, el tratamiento en el que se hizo mayor énfasis durante las renovaciones, fue en los revestimientos de paredes y pisos, utilizando cerámicas para los pisos del baño y de los ambientes que se alquilan; los ambientes principales del segundo nivel, son los que menos renovaciones han recibido pues hasta ahora se mantiene el piso de madera de cedro.

Posteriormente las galerías delanteras fueron alquiladas nuevamente, esta vez a dos ópticas y una empresa de computación, hasta el año 2015 en el que estos ambientes fueron ocupados en su totalidad por ópticas.

Esta vivienda se vio afectada por los huaycos ocasionados por el fenómeno El Niño, ocurrido en el año 2017, la zona más afectada fue la parte trasera de la edificación: la cocina, el almacén, la lavandería, el baño y el patio central. Este evento ocasionó que fueran necesarios nuevos trabajos de renovación, que no afectaron la materialidad de este inmueble, pues hasta la actualidad se mantiene el adobe y la madera como principal sistema constructivo.

Una de las consecuencias más resaltantes que dejó la inundación de la parte trasera de la casa tras los huaycos del 2017, fue la clausura del pozo mariposa, de 5m de profundidad, y 1m de radio que se encontraba en el patio principal desde la construcción de este inmueble; ahora este pozo fue reemplazado por una cisterna subterránea de solo 3 m de . Actualmente esta edificación se mantiene en funcionamiento, aun sirviendo de domicilio para la familia Angulo, quienes siguen alquilando los ambientes delanteros a diferentes ópticas.

INTEGRANTES:

CONTRERASROMEROMARICARMEN GUERRAAVALOSLISBETH GUEVARAPEREZANGEL LAIZATERANDANIEL

LOYOLACAMPOSCRISTIAN

MENDEZRAMIREZJAHNN

PELAEZBACILIADAVID

TANDAPANBAZANJHON

CURSO: CONSERVACIONDELPATRIMONIO CULTURAL DOCENTE: MG.ARQ.TORRESLOYOLA ELMERMIKY
02 N°
04 ESCUELADEARQUITECTURAYURBANISMO
SEMESTRE: 2022-II GRUPO:
LAMINA:
FAM.
CASA DELA
ANGULOALVAREZ
Figura 03: Lienzo de Fachada Fuente: Elaboración Propia

HISTORIA A CONTAR

3 . HISTORIA- IDEA A CONTAR

MUSEO DE EXPOSICIÓN DE LAS CULTURAS DEL PERÚ.

El Perú tiene una inmensa cantidad de culturas que son muy importantes para todos por sus restos arqueológicos y por sus construcciones antiguas o legados en perfecto estado de conservación. Entre ellas, seleccionaremos algunas que serán expuestas en el museo:

C. Chavín: Se desarrolló entre 1200 a.c. – 500 a.c. Tuvo como centro la ciudad de Chavín de Huántar, a 2 km de los ríos Huachecsa y Mosna, en el departamento de Ancash. Influyendo en las demás culturas, por sus construcciones piramidales sobrepasando los 10 metros de altura y sus esculturas de figuras antropomorfas con rasgos de felinos y serpientes en sus templos.

C. Tiahuanaco: Se desarrolló entre 200 a.c. – 1000 d.c. Reconocido por su arquitectura en la Portada del Sol, ubicado en el altiplano andino del lago Titicaca, entre Perú y Bolivia. Sus agricultores construían sus plataformas elevadas para el campo de cultivo de sus cosechas dividiéndolo por canales de regadío.

C. Nazca: Se desarrolló entre 100 a.c. – 500 a.c. tuvo como centro a Cahuachi, al lado del río Grande, en Ica. En lo que más destacaron esta cultura fueron los trazos en las pampas de Jumana, conocidas como Líneas de Nazca, que representan figuras humanas, animales y plantas plasmadas a una gran escala y con mucha precisión en los trazos de estas figuras, sus construcciones de templos fueron en adobe y se dedicaban a los centros ceremoniales.

C. Moche: Se desarrolló entre 100 a.c. – 700 d.c. en los valles de la costa norte entre Huarmey y Piura, Fueron reconocidos por sus centros ceremoniales, grandes complejos monumentales para sus cultos, área administrativa y urbana de esta cultura, entre ellas tenemos a la Huaca del Sol y la Luna en La Libertad, el Señor de Sipán, ubicado en Chiclayo, y la Señora de Cao en Lambayeque . Sus construcciones fueron hechas con adobe como materia prima. Sus edificaciones importantes eran templos, urbes y palacios, que eran recubiertos por muros altos que lo rodeaban, estos muros presentaban relieves y pintados con colores naturales.

CONSERVACIONDELPATRIMONIO CULTURAL

DOCENTE: MG.ARQ.TORRESLOYOLA ELMERMIKY

INTEGRANTES:

CONTRERASROMEROMARICARMEN GUERRAAVALOSLISBETH GUEVARAPEREZANGEL LAIZATERANDANIEL

LOYOLACAMPOSCRISTIAN MENDEZRAMIREZJAHNN PELAEZBACILIADAVID TANDAPANBAZANJHON

SEMESTRE: 2022-II

GRUPO:

LAMINA:

CURSO:
02
°
05 ESCUELADEARQUITECTURAYURBANISMO
N
CASA DELAFAM. ANGULOALVAREZ

3

. HISTORIA- IDEA A CONTAR

C. Huari: Se desarrolló entre 600 d.c. y 1200 d.c. Esta cultura es reconocida por su gran expansión que tuvo durante estos años, llegando hasta el sur a Acarí, por el norte hasta el valle Santa y por la sierra hasta el Callejón de Huaylas. Además, tuvieron sus cerámicas con influencia de la cultura Tiahuanaco. En su textilería destacan por usar como materia prima el algodón, lana de alpaca y vicuña para fabricar la indumentaria de los rituales funerarios.

C. Chimú: Se desarrolló entre 1000 d.c. – 1470 d.c. en la costa norte del Perú desde Tumbes hasta Lima. Esta cultura destacó por su Arquitectura para la construcción de sus templos y ciudades, como Chan-Chan, además destacaron en la metalurgia y en la textilería, además de contar con la pesca que obtenían con los caballitos de totora para conseguir variedad de peces y moluscos. En Arquitectura sus palacios para sus gobernantes fueron construidos con adobe y recubiertos con paredes para protegerse, estas tenían decoraciones con relieves zoomorfas de animales o peces, y los aldeanos vivían en habitaciones pequeñas de quincha.

Imperio Inca: Se desarrolló entre 1438 d.c. – 1533 d.c. Fue el imperio más extenso, abarcando la selva amazónica desde el río Ancasmayo (Colombia) hasta el río Maule (Chile). El imperio inca cuando comenzó su expansión logró la máxima aprehensión de cultura, tecnología y ciencia. La arquitectura de este imperio se basó en el uso de la piedra como principal material por ser resistente y duradero, se destacaron por la creación de los andenes, un sistema de regadío para sus cosechas en las partes altas y bajas de los cerros donde cultivaban, además crearon fortalezas de piedras como Machu Picchu, Sacsayhuamán, sus templos como: Templo del Sol, Templo de la Luna, etc. Sus viviendas tenían puertas y ventanas de forma trapezoidal, utilizando varias técnicas constructivas como arcilla especial para movilizar los bloques de granitos, planos inclinados para ascender las piedras de toneladas a ciertas alturas. En las edificaciones tenemos centros administrativos, construcciones religiosas, construcciones militares y Arquitectura de élite.

CURSO: CONSERVACIONDELPATRIMONIO CULTURAL

DOCENTE: MG.ARQ.TORRESLOYOLA ELMERMIKY

INTEGRANTES:

CONTRERASROMEROMARICARMEN GUERRAAVALOSLISBETH GUEVARAPEREZANGEL LAIZATERANDANIEL

LOYOLACAMPOSCRISTIAN MENDEZRAMIREZJAHNN PELAEZBACILIADAVID TANDAPANBAZANJHON

SEMESTRE: 2022-II

GRUPO:

LAMINA:

02
°
06 ESCUELADEARQUITECTURAYURBANISMO
N
CASA DELAFAM. ANGULOALVAREZ
CURSO: CONSERVACIONDELPATRIMONIO CULTURAL DOCENTE: MG.ARQ.TORRESLOYOLA ELMERMIKY INTEGRANTES: CONTRERASROMEROMARICARMEN GUERRAAVALOSLISBETH GUEVARAPEREZANGEL LAIZATERANDANIEL LOYOLACAMPOSCRISTIAN MENDEZRAMIREZJAHNN PELAEZBACILIADAVID TANDAPANBAZANJHON SEMESTRE: 2022-II GRUPO: 02 N°LAMINA: 07 ESCUELADEARQUITECTURAYURBANISMO 3 . HISTORIA- IDEA A CONTAR CASA DELAFAM. ANGULOALVAREZ LÍNEA DE TIEMPO A EXPONER EN EL MUSEO DE LAS CULTURAS DEL PERÚ. Figura 04: Línea De Tiempo Culturas Fuente: Elaboración Propia/ Transcripción Internet

JUSTIFICACIÓN

4. JUSTIFICACIÓN DE PROPUESTA

Figura 05: Formato de Encuestas Fuente: Fotografía Propia

Se uso la ENCUESTA como método investigativo de conocimiento mixto, pues buscando datos, y registros cuantitativos, para darle validez y aceptación a nuestra propuesta de museo con temática cultural referente al Perú, también se entablaba una conversación con nuestra población objetiva, para conocer sus gustos, ideas y requerimientos, así como la posición que adoptan frente a la conservación y puesta en valor de las casas solariegas de nuestro centro histórico de Trujillo.

El recojo de datos fue realizado el domingo 4 de diciembre, en alrededores de nuestra vivienda propuesta y todo su contexto, a mediados de las 4 de la tarde, con culminación a las 8 de la noche.

Figura 06: Evidencias de Encuestas Fuente: Fotografía Propia

CURSO: CONSERVACIONDEL
-II
02 N°
08 ESCUELADEARQUITECTURAYURBANISMO
PATRIMONIO CULTURAL DOCENTE: MG.ARQ.TORRESLOYOLA ELMERMIKY INTEGRANTES: CONTRERASROMEROMARICARMEN GUERRAAVALOSLISBETH GUEVARAPEREZANGEL LAIZATERANDANIEL LOYOLACAMPOSCRISTIAN MENDEZRAMIREZJAHNN PELAEZBACILIADAVID TANDAPANBAZANJHON SEMESTRE: 2022
GRUPO:
LAMINA:
CASA
LAFAM.
DE
ANGULOALVAREZ

4. JUSTIFICACIÓN DE PROPUESTA

1. Edades de los Encuestados: 2. ¿Estaría interesado en visitar un museo que revalorice y exponga de manera tangible la historia de las culturas del Perú?

Gráfico 01: Grupos Etarios Fuente: Elaboración Propia

Gráfico 02: Interés De Visitar La Propuesta Fuente: Elaboración Propia

INTEGRANTES: CONTRERASROMEROMARICARMEN GUERRAAVALOSLISBETH GUEVARAPEREZANGEL LAIZATERANDANIEL

LOYOLACAMPOSCRISTIAN MENDEZRAMIREZJAHNN PELAEZBACILIADAVID TANDAPANBAZANJHON

CURSO: CONSERVACIONDELPATRIMONIO CULTURAL DOCENTE: MG.ARQ.TORRESLOYOLA ELMERMIKY
02
°
09 ESCUELADEARQUITECTURAYURBANISMO
SEMESTRE: 2022-II GRUPO:
N
LAMINA:
FAM.
CASA DELA
ANGULOALVAREZ Se Obtuvo 108 Respuestas, concluyendo:
CURSO: CONSERVACIONDELPATRIMONIO CULTURAL DOCENTE: MG.ARQ.TORRESLOYOLA ELMERMIKY INTEGRANTES: CONTRERASROMEROMARICARMEN GUERRAAVALOSLISBETH GUEVARAPEREZANGEL LAIZATERANDANIEL LOYOLACAMPOSCRISTIAN MENDEZRAMIREZJAHNN PELAEZBACILIADAVID TANDAPANBAZANJHON SEMESTRE: 2022-II GRUPO: 02 N°LAMINA: 10 ESCUELADEARQUITECTURAYURBANISMO 4. JUSTIFICACIÓN DE PROPUESTA CASA DELAFAM. ANGULOALVAREZ Se Obtuvo 108 Respuestas, concluyendo: 3. ¿Considera que se debe pagar ingreso para seguir conservando la casona?: 4. ¿Cuánto podría pagar por el ingreso a este museo? Gráfico 03: Pago por Entrada Fuente: Elaboración Propia Gráfico 04: Precio Por Entrada Fuente: Elaboración Propia
CURSO: CONSERVACIONDELPATRIMONIO CULTURAL DOCENTE: MG.ARQ.TORRESLOYOLA ELMERMIKY INTEGRANTES: CONTRERASROMEROMARICARMEN GUERRAAVALOSLISBETH GUEVARAPEREZANGEL LAIZATERANDANIEL LOYOLACAMPOSCRISTIAN MENDEZRAMIREZJAHNN PELAEZBACILIADAVID TANDAPANBAZANJHON SEMESTRE: 2022-II GRUPO: 02 N°LAMINA: 11 ESCUELADEARQUITECTURAYURBANISMO 4. JUSTIFICACIÓN DE PROPUESTA CASA DELAFAM. ANGULOALVAREZ Se Obtuvo 108 Respuestas, concluyendo: 5. ¿Le gustaría participar en la restauración de la casona? 6. ¿Con cuantas personas crees que podrías ir acompañado? Gráfico 05: Apoyo a Restauración Fuente: Elaboración Propia Gráfico 06: Cantidad de Acompañantes Fuente: Elaboración Propia
CURSO: CONSERVACIONDELPATRIMONIO CULTURAL DOCENTE: MG.ARQ.TORRESLOYOLA ELMERMIKY INTEGRANTES: CONTRERASROMEROMARICARMEN GUERRAAVALOSLISBETH GUEVARAPEREZANGEL LAIZATERANDANIEL LOYOLACAMPOSCRISTIAN MENDEZRAMIREZJAHNN PELAEZBACILIADAVID TANDAPANBAZANJHON SEMESTRE: 2022-II GRUPO: 02 N°LAMINA: 12 ESCUELADEARQUITECTURAYURBANISMO 4. JUSTIFICACIÓN DE PROPUESTA CASA DELAFAM. ANGULOALVAREZ Figura 06: Evidencias de Encuesta Fuente: Fotografías Propias

REFERENTES

5. REFERENTES DE LA PROPUESTA

MUSEODEARTEASSIS CHATEAUBRIAND DESÃOPAULO

Arquitecto: Lina Bo Bardi

Año de Construcción: 1956-1968

Ubicación: Sao Paulo, Brasil

Ubicado en el centro de la ciudad en la Avenida Paulista, el MASP (Museo de Arte Assis Chateaubriand de São Paulo) es uno de los museos más importantes del hemisferio sur y una de las postales más importantes de la ciudad. Está catalogado como uno de los diez principales atractivos turísticos de São Paulo y alberga un acervo de casi ocho mil obras. A durante el año se realizan exposiciones nacionales e internacionales de arte contemporáneo, fotografía, diseño y arquitectura, acercando al público el mundo de las imágenes. Los visitantes siempre pueden encontrar algo nuevo cuando visitan el sitio.

02 N°
13 ESCUELADEARQUITECTURAYURBANISMO
CURSO: CONSERVACIONDELPATRIMONIO CULTURAL DOCENTE: MG.ARQ.TORRESLOYOLA ELMERMIKY INTEGRANTES: CONTRERASROMEROMARICARMEN GUERRAAVALOSLISBETH GUEVARAPEREZANGEL LAIZATERANDANIEL LOYOLACAMPOSCRISTIAN MENDEZRAMIREZJAHNN PELAEZBACILIADAVID TANDAPANBAZANJHON SEMESTRE: 2022-II GRUPO:
LAMINA:
CASA DELAFAM.
ANGULOALVAREZ Figura 07: Museo de Arte Assis – Lina Bo Bardi Fuente: ArchDayli
Promotor: MASP Diseñado: 1956

REFERENTES DE LA PROPUESTA

FUNCIÓN

LEYENDA

Cocina Hall de entrada Colecciones Baños Plaza de alimentación Fundaciones / Base Tienda

LEYENDA

Span / Losa abierta Administración Colecciones Pasillos Baños Exposiciones

LEYENDA

Depósitos Sala vacía Exposiciones Pequeño auditorio Baños Teatro Pasillos

LEYENDA

Span / Losa abierta Exposiciones

Cubierta LEYENDA

CURSO:
CONSERVACIONDELPATRIMONIO CULTURAL DOCENTE: MG.ARQ.TORRESLOYOLA ELMERMIKY INTEGRANTES:
CONTRERASROMEROMARICARMEN GUERRAAVALOSLISBETH GUEVARAPEREZANGEL LAIZATERANDANIEL
02
°
14 ESCUELADEARQUITECTURAYURBANISMO
LOYOLACAMPOSCRISTIAN MENDEZRAMIREZJAHNN PELAEZBACILIADAVID TANDAPANBAZANJHON SEMESTRE: 2022-II GRUPO:
N
LAMINA:
5.
CASA DELAFAM. ANGULOALVAREZ
Spa / Losa abierta LEYENDA SUBSUELO DOS SUBSUELO UNO NIVEL 0 NIVEL 3 NIVEL 1 NIVEL 2
Función
de Arte
Bo
Figura 08:
Museo
Assis
Lina
Bardi Fuente: ArchDayli

DE

02 N°
15 ESCUELADEARQUITECTURAYURBANISMO
CURSO: CONSERVACIONDELPATRIMONIO CULTURAL DOCENTE: MG.ARQ.TORRESLOYOLA ELMERMIKY INTEGRANTES: CONTRERASROMEROMARICARMEN GUERRAAVALOSLISBETH GUEVARAPEREZANGEL LAIZATERANDANIEL LOYOLACAMPOSCRISTIAN MENDEZRAMIREZJAHNN PELAEZBACILIADAVID TANDAPANBAZANJHON SEMESTRE: 2022-II GRUPO:
LAMINA:
FAM.
Conexión
(Directa) Conexión
Conexión
USOS Figura 09: Función Museo de Arte Assis – Lina Bo Bardi
5. REFERENTES
LA PROPUESTA CASA DELA
ANGULOALVAREZ Este museo cuenta con conexiones bien definidas tanto en los ambientes públicos como en los mas privado. Estas conexiones generan que los ambientes enmarquen e invita a los ciudadanos a formar parte del museo. Por otro lado este museo crea una vista directa a la zona norte de la cuidad. Depósitos Sala vacía Exposiciones Pequeño auditorio Baños Teatro Pasillos LEYENDA
Necesaria
Deseable
Innecesaria Sin Conexión LEYENDA FUNCIÓNY
Fuente: ArchDayli

5. REFERENTES DE LA PROPUESTA

MUSEONACIONAL DECULTURAPERUANA

Arquitecto: Ricardo Jaxa de Malachowski.

Propietario: Tume Sernaqué Luz Anita

Año de Creación: 30 de marzo 1946

Año de la edificación: 1924

Ubicación: Av. Alfonso Ugarte Cuadra 6 - Lima

El Museo Nacional de la Cultura del Perú es uno de los museos más icónicos del Perú ya que desde su apertura ha presentado diferentes expresiones del arte tradicional de todo el Perú a través de diversas exposiciones. Inaugurado en 1946, el Museo Nacional de la Cultura del Perú, ubicado en el distrito de Lima, alberga actualmente más de 8.000 piezas de la colección. Basado en su colección, el museo presenta una fachada inusual inspirada en la antigua cultura peruana. También tiene un área muy interesante donde puedes encontrar una colección de objetos artesanales de carácter religioso hechos en diferentes partes del país, especialmente en las montañas.

INTEGRANTES:

CURSO: CONSERVACIONDELPATRIMONIO CULTURAL DOCENTE: MG.ARQ.TORRESLOYOLA ELMERMIKY
CONTRERASROMEROMARICARMEN GUERRAAVALOSLISBETH GUEVARAPEREZANGEL LAIZATERANDANIEL LOYOLACAMPOSCRISTIAN MENDEZRAMIREZJAHNN PELAEZBACILIADAVID TANDAPANBAZANJHON
02 N°
16 ESCUELADEARQUITECTURAYURBANISMO
SEMESTRE: 2022-II GRUPO:
LAMINA:
CASA DELAFAM. ANGULOALVAREZ
Figura 10: Museo Nacional de Cultura Peruana Fuente: ArchDayli

5. REFERENTES DE LA PROPUESTA

FUNCIÓN

Este museo funciona correctamente, debido que desde su fachada nos da la sensación de lo que nos quiere mostrar.

Presenta ambientes que permiten realizar un recorrido fluido, especialmente en las salas de exposición donde nos muestra infinidad de piezas de la cultura Peruana.

Por cuenta con un patio de recuerdos que se ha convertido en un espacio que atrapa al visitante antes de que continue su recorrido al segundo piso..

CURSO: CONSERVACIONDELPATRIMONIO CULTURAL

DOCENTE: MG.ARQ.TORRESLOYOLA ELMERMIKY

INTEGRANTES:

CONTRERASROMEROMARICARMEN GUERRAAVALOSLISBETH GUEVARAPEREZANGEL LAIZATERANDANIEL

LEYENDA

Ingreso Hall

Boletería Salas de Exposición

Jardín Talleres Baños Depósitos de administración Núcleo de la escalera

Eje Circulación

Circulación para una sala con vitrinas y estantes Ubicación de Ventanas d

LOYOLACAMPOSCRISTIAN MENDEZRAMIREZJAHNN PELAEZBACILIADAVID TANDAPANBAZANJHON

Figura 1: Función Museo Nacional de Cultura Peruana Fuente: ArchDayli

LAMINA:

GRUPO:

SEMESTRE: 2022-II
02
°
17 ESCUELADEARQUITECTURAYURBANISMO
N
CASA
LAFAM.
DE
ANGULOALVAREZ

5.

REFERENTES DE LA PROPUESTA

FUNCIÓN

El museo nacional de cultura peruana sus recorrido son tan interesantes ya que permite al visitante transportarse a su ritmo.

Por otro lado este museo cuanta con un área pública bien definida, que se complementa con el área de servicios y el área privada, logrando que se convierta en un edificio muy interesante funcionalmente.

CURSO: CONSERVACIONDELPATRIMONIO CULTURAL

LEYENDA Biblioteca Salas de Exposición Administración

Hall

Eje Circulación

Visión para una sala con cuadritos chicos Circulación para una sala con vitrinas y estantes Ubicación de Ventanas d

Figura 12: Función Museo Nacional de Cultura Peruana Fuente: ArchDayli

DOCENTE: MG.ARQ.TORRESLOYOLA ELMERMIKY

INTEGRANTES:

CONTRERASROMEROMARICARMEN GUERRAAVALOSLISBETH GUEVARAPEREZANGEL LAIZATERANDANIEL

LOYOLACAMPOSCRISTIAN MENDEZRAMIREZJAHNN PELAEZBACILIADAVID TANDAPANBAZANJHON

SEMESTRE: 2022-II

GRUPO:

LAMINA:

02
°
18 ESCUELADEARQUITECTURAYURBANISMO
N
CASA DELAFAM. ANGULOALVAREZ

ESTADO ACTUAL

CURSO: CONSERVACIONDELPATRIMONIO CULTURAL DOCENTE: MG.ARQ.TORRESLOYOLA ELMERMIKY INTEGRANTES:
GUEVARAPEREZANGEL LAIZATERANDANIEL
SEMESTRE: 2022-II GRUPO: 02 N°LAMINA: 19 ESCUELADEARQUITECTURAYURBANISMO
CASA DELAFAM. ANGULOALVAREZ Plano 02: Plot Plan Vivienda Fuente: Elaboración Propia
PLAN
CONTRERASROMEROMARICARMEN GUERRAAVALOSLISBETH
LOYOLACAMPOSCRISTIAN MENDEZRAMIREZJAHNN PELAEZBACILIADAVID TANDAPANBAZANJHON
6. ESTADO ACTUAL DE VIVIENDA
PLOT

6. ESTADO ACTUAL DE VIVIENDA

CURSO: CONSERVACIONDELPATRIMONIO CULTURAL DOCENTE: MG.ARQ.TORRESLOYOLA ELMERMIKY
SEMESTRE: 2022-II GRUPO: 02 N°LAMINA: 20 ESCUELADEARQUITECTURAYURBANISMO
INTEGRANTES: CONTRERASROMEROMARICARMEN GUERRAAVALOSLISBETH GUEVARAPEREZANGEL LAIZATERANDANIEL LOYOLACAMPOSCRISTIAN MENDEZRAMIREZJAHNN PELAEZBACILIADAVID TANDAPANBAZANJHON
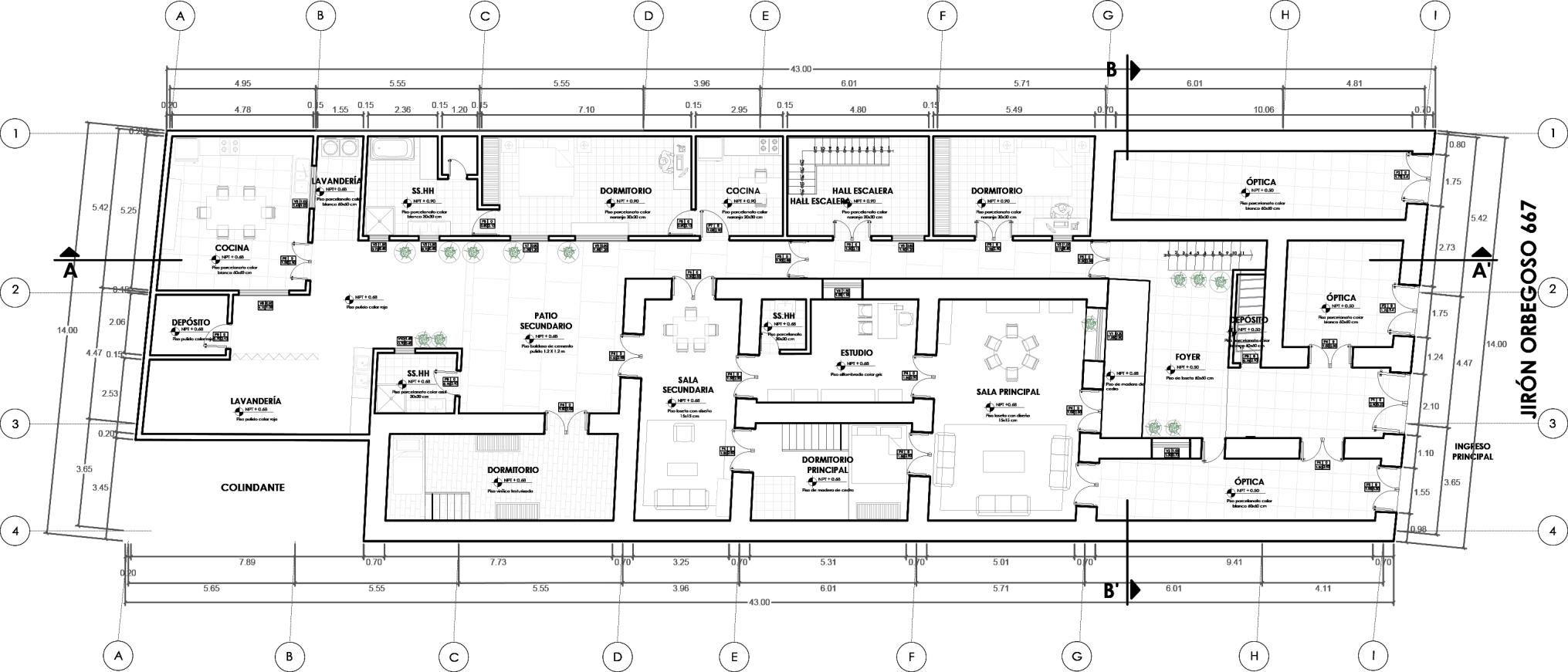
CASA DELAFAM. ANGULOALVAREZ Plano 03: Primer Nivel Vivienda Fuente: Elaboración Propia
1ERNIVEL

6. ESTADO ACTUAL DE VIVIENDA

2DONIVEL

CURSO: CONSERVACIONDELPATRIMONIO CULTURAL DOCENTE: MG.ARQ.TORRESLOYOLA ELMERMIKY INTEGRANTES: CONTRERASROMEROMARICARMEN GUERRAAVALOSLISBETH GUEVARAPEREZANGEL LAIZATERANDANIEL
02
°
21 ESCUELADEARQUITECTURAYURBANISMO
LOYOLACAMPOSCRISTIAN MENDEZRAMIREZJAHNN PELAEZBACILIADAVID TANDAPANBAZANJHON SEMESTRE: 2022-II GRUPO:
N
LAMINA:
CASA DELAFAM. ANGULOALVAREZ Plano 04: Segundo Nivel Vivienda Fuente: Elaboración Propia

6. ESTADO ACTUAL DE VIVIENDA

NIVELTECHOS

CURSO:
CONSERVACIONDELPATRIMONIO CULTURAL DOCENTE: MG.ARQ.TORRESLOYOLA ELMERMIKY INTEGRANTES: CONTRERASROMEROMARICARMEN GUERRAAVALOSLISBETH GUEVARAPEREZANGEL LAIZATERANDANIEL
02
°
22 ESCUELADEARQUITECTURAYURBANISMO
LOYOLACAMPOSCRISTIAN MENDEZRAMIREZJAHNN PELAEZBACILIADAVID TANDAPANBAZANJHON SEMESTRE: 2022-II GRUPO:
N
LAMINA:
LAFAM.
CASA DE
ANGULOALVAREZ Plano 05: Techos de la Vivienda Fuente: Elaboración Propia
CURSO: CONSERVACIONDELPATRIMONIO CULTURAL DOCENTE: MG.ARQ.TORRESLOYOLA ELMERMIKY INTEGRANTES: CONTRERASROMEROMARICARMEN GUERRAAVALOSLISBETH GUEVARAPEREZANGEL LAIZATERANDANIEL LOYOLACAMPOSCRISTIAN MENDEZRAMIREZJAHNN PELAEZBACILIADAVID TANDAPANBAZANJHON SEMESTRE: 2022-II GRUPO: 02 N°LAMINA: 23 ESCUELADEARQUITECTURAYURBANISMO
ESTADO ACTUAL
VIVIENDA CASA DELAFAM. ANGULOALVAREZ Plano 06: Secciones Vivienda Fuente: Elaboración Propia
6.
DE

ELEVACIÓN

CURSO: CONSERVACIONDELPATRIMONIO CULTURAL DOCENTE: MG.ARQ.TORRESLOYOLA ELMERMIKY INTEGRANTES: CONTRERASROMEROMARICARMEN GUERRAAVALOSLISBETH GUEVARAPEREZANGEL LAIZATERANDANIEL LOYOLACAMPOSCRISTIAN MENDEZRAMIREZJAHNN PELAEZBACILIADAVID TANDAPANBAZANJHON SEMESTRE: 2022-II GRUPO: 02 N°LAMINA: 24 ESCUELADEARQUITECTURAYURBANISMO
CASA DELAFAM. ANGULOALVAREZ Plano 07: Elevación Frontal Vivienda Fuente: Elaboración Propia
6. ESTADO ACTUAL DE VIVIENDA

6. ESTADO ACTUAL DE VIVIENDA

MEMORIADESCRIPTIVA

La casa de la familia Angulo Álvarez se encuentra localizado en el distrito y provincia de Trujillo Ubicado en el centro histórico de Trujillo, colindante con una vial arterial importante, exactamente el Jr. Orbegozo, calle muy transitada para, usada como conexión a diferentes establecimientos dentro de la ciudad.

El actual propietario, es el señor Roger Angulo Alvarez, un economista egresado de UNT, quien recibe esta casa como herencia familiar, la vivienda cuenta con un total de 600 m², de los cuales los lados más largos mide 43 metros, y el frente como el lado colindante, son de 14 metros.

La vivienda solo es solventada por su dueño, por lo cual ha decidido convertirla en una vivienda mixta, de uso comercial y residencial también, en las galerías más cercanas a la calle funciona una serie de ópticas, siendo 3 en total que generan ingresos para el mantenimiento de la vivienda

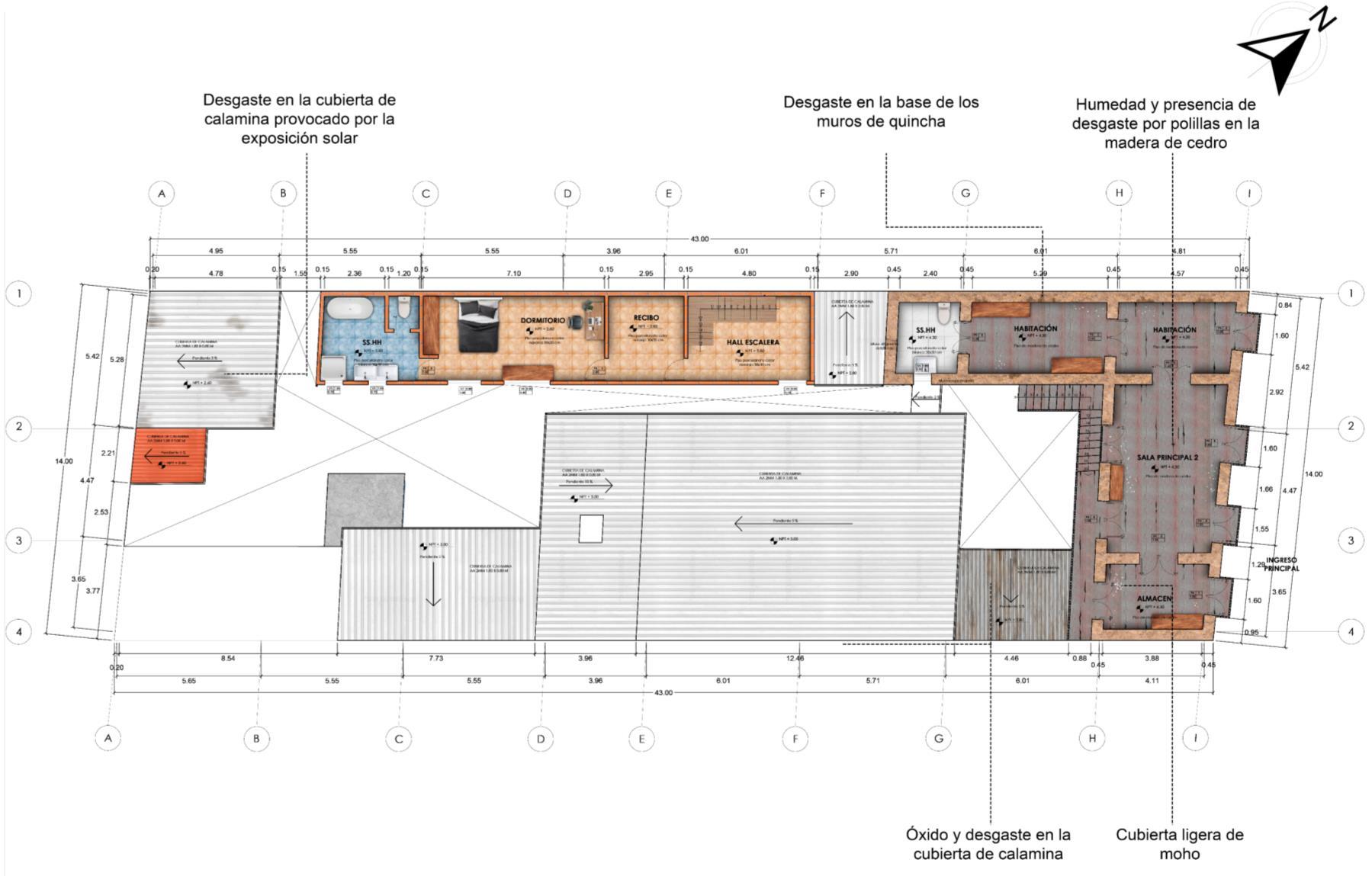
ESTADO DECONSERVACIÓN

La casa de la familia Angulo Álvarez paso por diversos problemas en su infraestructura, como el terremoto de 1970, que causó fuertes daños como el derrumbe de una parte de la casa, y hasta ahora algunos muros no han sido reparados, también el fenómeno del Niño de 2017 dejándolo con grandes problemas, que se tuvieron que sanar modernizando parte de la infraestructura, que influyen en la habitabilidad de la familia, así como con la estética y seguridad de la vivienda.

Figura 13: Autores y Dueño de la Vivienda Fuente: Fotografía Propia

CURSO: CONSERVACIONDELPATRIMONIO CULTURAL

DOCENTE: MG.ARQ.TORRESLOYOLA ELMERMIKY

INTEGRANTES: CONTRERASROMEROMARICARMEN GUERRAAVALOSLISBETH GUEVARAPEREZANGEL LAIZATERANDANIEL

Figura 14: identificación de Daños en Sección

Fuente: Fotografía Propia

LOYOLACAMPOSCRISTIAN MENDEZRAMIREZJAHNN PELAEZBACILIADAVID TANDAPANBAZANJHON

02 N°
25 ESCUELADEARQUITECTURAYURBANISMO
SEMESTRE: 2022-II GRUPO:
LAMINA:
CASA
DELAFAM. ANGULOALVAREZ

ESTADO ACTUAL DE VIVIENDA

PLANOS ACTUALES

En el proceso de adaptación al nuevo uso propuesto, la edificación tuvo ciertos procesos evolutivos..

PLANOS PROPUESTOS

Construcción de muro

Rompimiento de muro Rompimiento de muro

:

Rompimiento de muro

Rompimiento de muro Eliminación de vanos

INTEGRANTES:

CONTRERASROMEROMARICARMEN GUERRAAVALOSLISBETH GUEVARAPEREZANGEL LAIZATERANDANIEL

Rompimiento de muro Rompimiento de muro

LOYOLACAMPOSCRISTIAN MENDEZRAMIREZJAHNN PELAEZBACILIADAVID TANDAPANBAZANJHON

Eliminación de vanos

Figura 15: Proceso Evolutivo de la Vivienda Fuente: Elaboración Propia

CURSO: CONSERVACIONDELPATRIMONIO CULTURAL DOCENTE: MG.ARQ.TORRESLOYOLA ELMERMIKY
02
°
26 ESCUELADEARQUITECTURAYURBANISMO
SEMESTRE: 2022-II GRUPO:
N
LAMINA:
6.
CASA DELAFAM. ANGULOALVAREZ
:

FICHASPATOLÓGICAS

Degradación del revestimiento por el paso del tiempo originado por la humedad de las lluvias, por la falta de mantenimiento o algunas veces por la misma temperatura del ambiente y las características propias del material

A pesar de no ser una patología peligrosa, ocasiona un aspecto estético deficiente en el interior de la edificación.

MANTENIMIENTO

Mantenimiento donde se evidencian este daño para controlar la exposición continua ante la aparición de futuros desprendimientos

Ficha 01: Ficha Patológica Desprendimientos Fuente: Elaboración Propia

CONTRERASROMEROMARICARMEN GUERRAAVALOSLISBETH GUEVARAPEREZANGEL LAIZATERANDANIEL

CURSO:
CONSERVACIONDELPATRIMONIO CULTURAL DOCENTE: MG.ARQ.TORRESLOYOLA ELMERMIKY INTEGRANTES:
02 N°
27 ESCUELADEARQUITECTURAYURBANISMO
FAM.
LOYOLACAMPOSCRISTIAN MENDEZRAMIREZJAHNN PELAEZBACILIADAVID TANDAPANBAZANJHON SEMESTRE: 2022-II GRUPO:
LAMINA:
6. ESTADO ACTUAL DE VIVIENDA CASA DELA
ANGULOALVAREZ
1. TIPO
DAÑO DESPRENDIMIENTO DEL REVESTIMIENTO INTERIOR 2. DESCRIPCION DEL DAÑO A RESTAURAR 3.
DE
PRE DIAGNOSIS 4.

FICHASPATOLÓGICAS

DETERIORO DE LA MADERA

Las paredes de las habitaciones son de madera, las cuales presentan daños debido a la humedad, radiación solar y lluvias, así como por microorganismos.

Encontrar productos que salven dichos daños Asimismo se podría reemplazar la madera deteriorada por una nueva considerando las mismas dimensiones y detalles.

MANTENIMIENTO

Aplicar barniz sobre la madera y aceite rojo con un paño suave de manera uniforme, cada vez que notemos un posible deterioro o la descoloración de la madera.

Ficha 02: Ficha Patológica Deterioro Madera Fuente: Elaboración Propia

CONTRERASROMEROMARICARMEN GUERRAAVALOSLISBETH GUEVARAPEREZANGEL LAIZATERANDANIEL

CURSO: CONSERVACIONDELPATRIMONIO CULTURAL DOCENTE: MG.ARQ.TORRESLOYOLA ELMERMIKY INTEGRANTES:
02 N°
28 ESCUELADEARQUITECTURAYURBANISMO
LOYOLACAMPOSCRISTIAN MENDEZRAMIREZJAHNN PELAEZBACILIADAVID TANDAPANBAZANJHON SEMESTRE: 2022-II GRUPO:
LAMINA:
6. ESTADO ACTUAL DE VIVIENDA CASA DELAFAM. ANGULOALVAREZ
1. TIPO DE DAÑO 2. DESCRIPCION DEL DAÑO A RESTAURAR 3. PRE DIAGNOSIS
4.

ESTADO

FICHASPATOLÓGICAS

CORNISA EXPUESTA Y DETERIORADA

Se sitúa en los techos que tiene vista a los patios internos de la vivienda, por ende se encuentra expuesta al medio ambiente, trayendo consigo que con el tiempo se deteriore. En la actualidad se encuentra en mal estado

Elemento arquitectónico que da valor histórico a la vivienda, por ende se le debe restaurar en las parte que se encuentran en mal estado

MANTENIMIENTO

Realizar inspecciones de la materialidad a usar para su restauración cada cierto tiempo, para controlar nuevos degastes que se puede presentar.

Ficha 03: Ficha Patológica Deterioro Cornisa Fuente: Elaboración Propia

INTEGRANTES:

CONTRERASROMEROMARICARMEN GUERRAAVALOSLISBETH GUEVARAPEREZANGEL LAIZATERANDANIEL

CURSO: CONSERVACIONDELPATRIMONIO CULTURAL DOCENTE: MG.ARQ.TORRESLOYOLA ELMERMIKY
02
°
29 ESCUELADEARQUITECTURAYURBANISMO
LOYOLACAMPOSCRISTIAN MENDEZRAMIREZJAHNN PELAEZBACILIADAVID TANDAPANBAZANJHON SEMESTRE: 2022-II GRUPO:
N
LAMINA:
6.
ACTUAL DE VIVIENDA CASA DELAFAM. ANGULOALVAREZ
1.
2. DESCRIPCION
3. PRE
TIPO DE DAÑO
DEL DAÑO A RESTAURAR
DIAGNOSIS 4.

ESTADO ACTUAL DE VIVIENDA

FICHASPATOLÓGICAS

GRIETAS EN MUROS INTERIORES

Se puede dar por diferentes motivos: SUCIEDAD: Por desgaste en los muros estructurales

DESGASTE: Exposición al sol y contacto con muros colindantes.

Patología con gran peligro estructural, al ser progresivas pueden provocar daños graves en la estructura de la edificación.

MANTENIMIENTO

Se debe limpiar con paños húmedos el polvo y cualquier impureza presente y aplicar el nuevo material en la pared.

CONTRERASROMEROMARICARMEN GUERRAAVALOSLISBETH GUEVARAPEREZANGEL LAIZATERANDANIEL

CURSO: CONSERVACIONDELPATRIMONIO CULTURAL DOCENTE: MG.ARQ.TORRESLOYOLA ELMERMIKY INTEGRANTES:
02 N°
30 ESCUELADEARQUITECTURAYURBANISMO
CASA
LAFAM.
1. TIPO DE DAÑO 2. DESCRIPCION DEL DAÑO A RESTAURAR 3. PRE DIAGNOSIS
LOYOLACAMPOSCRISTIAN MENDEZRAMIREZJAHNN PELAEZBACILIADAVID TANDAPANBAZANJHON SEMESTRE: 2022-II GRUPO:
LAMINA:
6.
DE
ANGULOALVAREZ Ficha 03: Ficha Patológica Agrietamientos Fuente: Elaboración Propia
4.

PROPUESTAS Y SOLUCIONES

7. PROPUESTAS Y SOLUCIONES

REPARACIÓN DE PISO – S/. 9600 SOLES

Ruptura del piso de porcelanato y exposición del piso de cemento.

Vestigios de conexiones de tuberías y parchado de cemento

Procesos para restauración:

1. Remover el piso dañado actual

2. Instalaciones por especialidad y resanados.

Desgaste y ruptura de las baldosas de cemento pulido rojo.

Pisos a Demoler

Piso Buen Estado

3. Reparación de los pisos.

98 m²

Se procede a retirar los pisos viejos , luego de ello se procede a desechar los residuos, consideramos precios en el centro de Trujillo:

MANO DE OBRA: S/.2000

TRANSPORTE DE RESIDUOS: S/. 300

CURSO: CONSERVACIONDELPATRIMONIO CULTURAL

98 m²

Se procede a reparar las tuberías, además de agregar las nuevas instalaciones necesarias para cada ambiente:

MATERIALES: S/.1400

* Tubos – Pegamento - Resanes

MANO DE OBRA: S/.2000

TRANSPORTE DE RESIDUOS: S/. 100

DOCENTE: MG.ARQ.TORRESLOYOLA ELMERMIKY

INTEGRANTES:

CONTRERASROMEROMARICARMEN GUERRAAVALOSLISBETH GUEVARAPEREZANGEL LAIZATERANDANIEL

98 m²

Unificar las texturas de los pisos, en este caso cerámico 60x60 después de haber reparado las instalaciones, y llenar los contrapisos, etc

MATERIALES S/ 3500

MANO DE OBRA: S/. 2500

TRANSPORTE DE RESIDUOS S/. 200

Ficha 05: Restauración Pisos Fuente: Elaboración Propia

LOYOLACAMPOSCRISTIAN MENDEZRAMIREZJAHNN PELAEZBACILIADAVID TANDAPANBAZANJHON

SEMESTRE: 2022-II GRUPO:

02
31 ESCUELADEARQUITECTURAYURBANISMO
N°LAMINA:
CASA DELAFAM. ANGULOALVAREZ

7. PROPUESTAS Y SOLUCIONES

REPARACIÓN DE MUROS – S/. 6000 SOLES

Necesidad de nuevos ingresos y permeabilidad para la propuesta.

Supresión de espacios no usados o no se acomodan a la propuesta.

Procesos para restauración:

1. Remover completamente las paredes a demoler.

2. Levantar las paredes proyectadas

Desgaste y ruptura de muros improvisados para delimitar algunos espacios.

Muros a demoler

Se procede a levantar las paredes en donde se ubicaran los baños, por lo que se necesita diferenciar espacios, y lo logramos mediante muros de ladrillo, para continuar con la materialidad:

168 m²

Se procede a retirar los muros viejos o con problemas detectados, luego de ello se procede a desechar los residuos, consideramos precios en el centro de Trujillo:

MANO DE OBRA: S/.4000

TRANSPORTE DE RESIDUOS: S/. 700

CURSO: CONSERVACIONDELPATRIMONIO CULTURAL

DOCENTE: MG.ARQ.TORRESLOYOLA ELMERMIKY

INTEGRANTES:

CONTRERASROMEROMARICARMEN GUERRAAVALOSLISBETH GUEVARAPEREZANGEL LAIZATERANDANIEL

MATERIALES

S/ 700 • Ladrillo – Agregados – Cemento • Terrajeo – Acabado

MANO DE OBRA: S/. 500 TRANSPORTE DE RESIDUOS: S/. 100 15 m²

Ficha 06: Restauración Paredes Fuente: Elaboración Propia

LOYOLACAMPOSCRISTIAN MENDEZRAMIREZJAHNN

PELAEZBACILIADAVID TANDAPANBAZANJHON

SEMESTRE: 2022-II GRUPO:

02
32 ESCUELADEARQUITECTURAYURBANISMO
N°LAMINA:
CASA DELAFAM. ANGULOALVAREZ
CURSO: CONSERVACIONDELPATRIMONIO CULTURAL DOCENTE: MG.ARQ.TORRESLOYOLA ELMERMIKY INTEGRANTES: CONTRERASROMEROMARICARMEN GUERRAAVALOSLISBETH GUEVARAPEREZANGEL LAIZATERANDANIEL LOYOLACAMPOSCRISTIAN MENDEZRAMIREZJAHNN PELAEZBACILIADAVID TANDAPANBAZANJHON SEMESTRE: 2022-II GRUPO: 02 N°LAMINA: 33 ESCUELADEARQUITECTURAYURBANISMO 7. PROPUESTAS Y SOLUCIONES CASA DELAFAM. ANGULOALVAREZ ESTUDIO 43.00 14.00 1 2 3 4 Pisoalfombradocolorgris SALA SECUNDARIA NPT 0.68 Pisolosetacondiseño COCINA NPT 0.68 Pisoporcelanatocolor DORMITORIO PRINCIPAL NPT 0.68 Pisodemaderadecedro NPT 0.90 Pisoporcelanatocolor naranja30x30cm COCINA NPT 0.90 Pisoporcelanatocolor naranja30x30cm PATIO SECUNDARIO NPT 0.68 pulido1.2 1.2 DORMITORIO NPT 0.68 Pisovinílicotexturizado DORMITORIO A 4.95 3.96 6.01 5.71 6.01 NPT 0.68 Pisodemadera cedro Pisodeloseta60x60cm FOYER INGRESO PRINCIPAL DEPÓSITO 4.81 C 5.55 5.55 DORMITORIO NPT 0.90 Pisoporcelanatocolor naranja30x30cm ÓPTICA ÓPTICA ÓPTICA DEPÓSITO LAVANDERÍA 5.42 4.47 SS.HH NPT 0.68 Pisoporcelanato 30x30cm SS.HH NPT 0.90 Pisoporcelanatocolor blanco30x30cm Pisopulidocolorrojo NPT 0.68 Pisopulidocolorrojo NPT 0.68 Pisopulidocolorrojo B D E F G H I HALLESCALERA NPT 0.90 Pisoporcelanatocolor naranja30x30cm 1.302.50 5.00 1.502.50 P2 1.502.50 SS.HH NPT 0.68 Pisoporcelanatocolorazul 30x30cm 2.10 1.60 1.300.70 0.70 0.70 0.70 0.80 NPT 0.50 NPT 0.50 NPT 0.50 1.302.10 P9 0.70 V70.90 V60.90 LAVANDERÍA NPT+0.68 Pisoporcelanatocolor blanco60x60cm SALAPRINCIPAL Pisolosetacondiseño 0.20 4.78 0.15 2.95 0.15 0.15 5.49 0.70 4.80 0.151.550.15 2.36 0.151.200.15 7.10 2.06 0.15 2.53 0.20 10.06 0.70 0.20 5.25 0.15 B D E F G H A C 43.00 5.65 3.96 6.01 5.71 6.01 4.11 5.55 5.55 0.70 0.70 0.70 0.70 7.73 1.55 0.98 1 2 3 4 5.42 4.47 3.65 0.70 9.41 0.70 3.45 3.65 0.80 1.75 14.00 3.25 5.31 5.01 7.89 0.20 1.75 2.10 2.73 1.24 1.10 Pisoporcelanatocolor blanco60x60cm Pisoporcelanatocolor blanco60x60cm Pisoporcelanatocolor Pisoporcelanatocolor COLINDANTE X1 X3 X4 X2 X5 X7 X6 X8 X9 X1 1 X10 X1 2 X1 3 Y1 �������� 56 = 0,45��1,3��1,1��2 56 =0,22 �� =������������������������ �� =����������������������C �� =����������������������������4 ������������������������������ ∶ 498��2 ACTUAL PARA PROPUESTA Suma de A*L en X <= 0,22 Muros en X Ficha 04: Estudio de muros en X

ACTUAL

A L S

y1 0,7 14 9,8 y2 0,7 8,3 5,81 y3 0,7 3,6 2,52 y4 0,7 4,32 3,024 y5 0,7 7,5 5,25 y6 0,7 7,5 5,25 y7 0,7 7,5 5,25 y8 0,7 7,33 5,131 y9 0,15 3,6 0,54 y10 0,15 3,6 0,54 y11 0,15 3,6 0,54 y12 0,15 3,6 0,54 y13 0,15 5,4 0,81 y14 0,15 5,4 0,81 y15 0,15 3 0,45 y16 0,15 3 0,45 y17 0,15 14 2,1 48,815 0,098022088

PARA PROPUESTA

A L S

y1 0,7 14 9,8 y2 0,7 8,3 5,81 y3 0,7 3,6 2,52 y4 0,7 4,32 3,024 y5 0,7 7,5 5,25 y6 0,7 7,5 5,25 y7 0,7 7,5 5,25 y8 0,7 7,33 5,131 y9 0,15 3,6 0 y10 0,15 3,6 0 y11 0,15 3,6 0 y12 0,15 3,6 0,54 y13 0,15 5,4 0,81 y14 0,15 5,4 0 y15 0,15 3 0 y16 0,15 3 0 y17 0,15 14 2,1 45,485 0,091335341

CURSO: CONSERVACIONDELPATRIMONIO CULTURAL DOCENTE: MG.ARQ.TORRESLOYOLA ELMERMIKY INTEGRANTES: CONTRERASROMEROMARICARMEN GUERRAAVALOSLISBETH GUEVARAPEREZANGEL LAIZATERANDANIEL LOYOLACAMPOSCRISTIAN MENDEZRAMIREZJAHNN PELAEZBACILIADAVID TANDAPANBAZANJHON SEMESTRE: 2022-II GRUPO: 02 N°LAMINA: 34 ESCUELADEARQUITECTURAYURBANISMO 7. PROPUESTAS Y SOLUCIONES CASA DELAFAM. ANGULOALVAREZ Suma de A*L en Y <= 0,22 Muros en Y ESTUDIO 43.00 14.00 1 2 3 4 NPT 0.68 Pisoalfombradocolorgris SALA SECUNDARIA NPT 0.68 Pisolosetacondiseño COCINA Pisoporcelanatocolor blanco60x60cm DORMITORIO PRINCIPAL Piso madera cedro Pisoporcelanatocolor naranja30x30cm COCINA Pisoporcelanatocolor naranja30x30cm PATIO SECUNDARIO Pisobaldosadecemento DORMITORIO NPT 0.68 Pisovinílicotexturizado DORMITORIO A 4.95 3.96 6.01 5.71 6.01 NPT 0.68 Pisodemaderade NPT 0.50 Pisodeloseta60x60cm FOYER INGRESO PRINCIPAL DEPÓSITO 4.81 C 5.55 5.55 DORMITORIO Pisoporcelanatocolor naranja30x30cm ÓPTICA ÓPTICA ÓPTICA DEPÓSITO LAVANDERÍA 5.42 4.47 SS.HH Pisoporcelanato SS.HH Pisoporcelanatocolor blanco30x30cm NPT 0.68 Pisopulidocolorrojo NPT 0.68 Pisopulidocolorrojo B D E F G H HALLESCALERA Pisoporcelanatocolor naranja30x30cm 1.302.50 1.502.50 1.502.50 SS.HH NPT 0.68 Pisoporcelanatocolorazul 30x30cm 0.70 1.300.70 3.4 NPT 0.50 1.302.10 LAVANDERÍA NPT+0.68 Pisoporcelanatocolor blanco60x60cm SALAPRINCIPAL NPT+0.68 Pisolosetacondiseño 0.20 4.78 0.15 2.95 0.15 0.15 5.49 0.70 4.80 0.151.550.15 2.36 0.151.200.15 7.10 2.06 0.15 2.53 0.20 10.06 0.70 0.20 5.25 0.15 B D E F G H A C 43.00 5.65 3.96 6.01 5.71 6.01 4.11 5.55 5.55 0.70 0.70 0.70 0.70 7.73 1.55 0.98 1 2 3 4 5.42 4.47 3.65 0.70 9.41 0.70 3.45 3.65 0.80 1.75 14.00 3.25 5.31 5.01 7.89 0.20 1.75 2.10 2.73 1.24 1.10 Pisoporcelanatocolor NPT 0.50 Pisoporcelanatocolor blanco60x60cm Pisoporcelanatocolor COLINDANTE Y1 Y3 Y4 Y2 PLANTA Y5 Y6 Y7 Y8 Y9
Y12
Y14
Y16
Y10 Y11
Y13
Y15
Y17
�������� 56 = 0,45��1,3��1,1��2 56 =0,22 �� =������������������������ �� =����������������������C �� =����������������������������4 ������������������������������ ∶ 498��2 Ficha 05: Estudio de muros en y

CONCRETANDO SOLUCIONES

8. CONCRETANDO SOLUCIONES

1ERNIVELPROPUESTA

CURSO: CONSERVACIONDELPATRIMONIO CULTURAL DOCENTE: MG.ARQ.TORRESLOYOLA ELMERMIKY
SEMESTRE: 2022-II GRUPO: 02 N°LAMINA: 35 ESCUELADEARQUITECTURAYURBANISMO
CASA DELAFAM. ANGULOALVAREZ Plano 08: Primer Nivel Propuesta Museo Fuente: Elaboración Propia
INTEGRANTES: CONTRERASROMEROMARICARMEN GUERRAAVALOSLISBETH GUEVARAPEREZANGEL LAIZATERANDANIEL LOYOLACAMPOSCRISTIAN MENDEZRAMIREZJAHNN PELAEZBACILIADAVID TANDAPANBAZANJHON

8. CONCRETANDO SOLUCIONES

2DONIVELPROPUESTA

CURSO: CONSERVACIONDELPATRIMONIO CULTURAL DOCENTE: MG.ARQ.
LOYOLA ELMER
II
02 N°
36 ESCUELADEARQUITECTURAYURBANISMO
TORRES
MIKY INTEGRANTES: CONTRERASROMEROMARICARMEN GUERRAAVALOSLISBETH GUEVARAPEREZANGEL LAIZATERANDANIEL LOYOLACAMPOSCRISTIAN MENDEZRAMIREZJAHNN PELAEZBACILIADAVID TANDAPANBAZANJHON SEMESTRE: 2022-
GRUPO:
LAMINA:
CASA DELAFAM. ANGULOALVAREZ Plano 09: Segundo Nivel Propuesta Museo Fuente: Elaboración Propia

8. CONCRETANDO SOLUCIONES

NIVELTECHOSPROPUESTA

INTEGRANTES: CONTRERASROMEROMARICARMEN GUERRAAVALOSLISBETH GUEVARAPEREZANGEL LAIZATERANDANIEL

CURSO: CONSERVACIONDELPATRIMONIO CULTURAL DOCENTE: MG.ARQ.TORRESLOYOLA ELMERMIKY
02
°
37 ESCUELADEARQUITECTURAYURBANISMO
LOYOLACAMPOSCRISTIAN MENDEZRAMIREZJAHNN PELAEZBACILIADAVID TANDAPANBAZANJHON SEMESTRE: 2022-II GRUPO:
N
LAMINA:
CASA DELAFAM.
ANGULOALVAREZ Plano 10: Techos de Propuesta Museo Fuente: Elaboración Propia
CURSO: CONSERVACIONDELPATRIMONIO CULTURAL DOCENTE: MG.ARQ.TORRESLOYOLA ELMERMIKY INTEGRANTES: CONTRERASROMEROMARICARMEN GUERRAAVALOSLISBETH GUEVARAPEREZANGEL LAIZATERANDANIEL LOYOLACAMPOSCRISTIAN MENDEZRAMIREZJAHNN PELAEZBACILIADAVID TANDAPANBAZANJHON SEMESTRE: 2022-II GRUPO: 02 N°LAMINA: 38 ESCUELADEARQUITECTURAYURBANISMO 8. CONCRETANDO
CASA DELAFAM. ANGULOALVAREZ Plano 11: Secciones Propuesta Museo Fuente: Elaboración Propia
SOLUCIONES

ELEVACIÓN PROPUESTA

CURSO: CONSERVACIONDELPATRIMONIO CULTURAL DOCENTE: MG.ARQ.TORRESLOYOLA ELMERMIKY INTEGRANTES: CONTRERASROMEROMARICARMEN GUERRAAVALOSLISBETH GUEVARAPEREZANGEL LAIZATERANDANIEL LOYOLACAMPOSCRISTIAN MENDEZRAMIREZJAHNN PELAEZBACILIADAVID TANDAPANBAZANJHON SEMESTRE: 2022-II GRUPO: 02 N°LAMINA: 39 ESCUELADEARQUITECTURAYURBANISMO 8. CONCRETANDO SOLUCIONES CASA DELAFAM. ANGULOALVAREZ Plano 12: Elevación Propuesta Museo Fuente: Elaboración Propia
CURSO: CONSERVACIONDELPATRIMONIO CULTURAL DOCENTE: MG.ARQ.TORRESLOYOLA ELMERMIKY
GUEVARAPEREZANGEL LAIZATERANDANIEL
SEMESTRE: 2022-II GRUPO: 02 N°LAMINA: 40 ESCUELADEARQUITECTURAYURBANISMO
CASA DELAFAM. ANGULOALVAREZ Plano 13: Detalles Propuesta Museo Fuente: Elaboración Propia
INTEGRANTES: CONTRERASROMEROMARICARMEN GUERRAAVALOSLISBETH
LOYOLACAMPOSCRISTIAN MENDEZRAMIREZJAHNN PELAEZBACILIADAVID TANDAPANBAZANJHON
8. CONCRETANDO SOLUCIONES

BASES LEGALES USADAS

9. BASES LEGALES USADAS

NORMA A.140:BIENESCULTURALES INMUEBLES

Mantenimiento: Detener el deterioro de la edificación.

Art. 11

Tipos de Intervención

Art. 17

Puesta en Valor: Destacar caracteristicas para cumplir una función

Remodelación: Adaptar elementos y espacios a función

No se permite instalar elementos extraños que alteren la unidad del inmueble por su forma o tamaño.

Art. 24

Realizar estudio estatigrafico y hallar el color de la capa original de pintura

Art. 27

Se puede cambiar el uso y función siempre que se garantise la mejora del nivel de calidad del inmueble.

Art. 30

El proyecto de intervención debe contar con: Estudio Historico, Levantamiento del estado actual, Propuesta de intervención.

Art. 34

El nuevo uso debe ser decoroso y guardar respeto por sus características arquitectónicas.

CURSO: CONSERVACIONDELPATRIMONIO CULTURAL

DOCENTE: MG.ARQ.TORRESLOYOLA ELMERMIKY

INTEGRANTES:

CONTRERASROMEROMARICARMEN GUERRAAVALOSLISBETH GUEVARAPEREZANGEL LAIZATERANDANIEL

LOYOLACAMPOSCRISTIAN MENDEZRAMIREZJAHNN

PELAEZBACILIADAVID TANDAPANBAZANJHON

02 N°
41 ESCUELADEARQUITECTURAYURBANISMO
SEMESTRE: 2022-II GRUPO:
LAMINA:
FAM.
CASA DELA
ANGULOALVAREZ
Figura 15: Fachada Vivienda Fuente: Fotografía Propia

9. BASES LEGALES USADAS

CARTADEMADERA1999

Metodos y Técnicas

Deben permitir trabajos de conservación posterior a la intervención

Estructura

Deben recibir una intervención minima en su forma y tamaño.

Tratamientos

Todas las partes de la estructura de madera deben tener la misma importancia para el tratamiento. Figura

CURSO:
CONSERVACIONDELPATRIMONIO CULTURAL DOCENTE: MG.ARQ.TORRESLOYOLA ELMERMIKY INTEGRANTES: CONTRERASROMEROMARICARMEN GUERRAAVALOSLISBETH GUEVARAPEREZANGEL LAIZATERANDANIEL
02 N°
42 ESCUELADEARQUITECTURAYURBANISMO
LOYOLACAMPOSCRISTIAN MENDEZRAMIREZJAHNN PELAEZBACILIADAVID TANDAPANBAZANJHON SEMESTRE: 2022-II GRUPO:
LAMINA:
CASA DELAFAM. ANGULO
ALVAREZ Vigilancia y Mantenimien to Mantener una estrategia de vigilancia y mantenimiento para conserver estructuras de madera del inmueble.
Integridad Mantener la autenticidad de los elementos de madera del inmueble
Fuente:
16: Interior Vivienda
Fotografía Propia

CONCLUSIONES

10. CONCLUSIONES

Se logró entender y reutilizar los espacios de la vivienda, durante el proyecto se mantuvo los elementos arquitectónicos rescatables como puertas, molduras, materiales y acabados.

Los materiales y la función dada al museo responden a la perspectiva del diseño interior, se engloban todos los conceptos de las culturas para plasmarse en el tratamiento de muros y pisos.

El estudio de la ubicación nos arroja ligeros desniveles en la casona además de una inclinación de los muros que hace a la vivienda un tanto peculiar para adaptar y estudiar.

Se observó que el proyecto cuenta con mas muros en Y que en X además de tener en ese eje los muros mas dañados, por lo que una intervención podría darse sin afectar o tener riesgo de colapso.

Los desperfectos encontrados en elementos arquitectónicos y estructurales pueden ser ligeros a nivel de desgaste en acabados, como graves a nivel de agrietado y desprendimiento en los elementos de la casona.

Las funciones de los espacios se dan de manera progresiva en función al año en el que se asentaron las culturas en nuestro país, esto genera una mayor puesta en valor de la cultura.

Se logró identificar un costo total de reparación a partir del metrado, análisis y propuesta de materiales, en función a las normativas del A140, obteniendo un costo total de reparación de s/6000 en muros y s/9600 en pisos.

Se logró identificar las medidas y materiales a partir de una intervención en campo del lugar, además de lograr modelar aquellos elementos distintivos de la obra.

La historia de la edificación data del año 1850, por lo que es considerado parte del patrimonio nacional, desde ese enfoque podríamos hacer una crítica al INC debido a la baja intervención dada a este proyecto.

CONSERVACIONDELPATRIMONIO CULTURAL

DOCENTE: MG.ARQ.TORRESLOYOLA ELMERMIKY

INTEGRANTES:

CONTRERASROMEROMARICARMEN GUERRAAVALOSLISBETH GUEVARAPEREZANGEL LAIZATERANDANIEL

LOYOLACAMPOSCRISTIAN

MENDEZRAMIREZJAHNN

PELAEZBACILIADAVID

TANDAPANBAZANJHON

GRUPO:

CURSO:
SEMESTRE: 2022-II
02 N°
43 ESCUELADEARQUITECTURAYURBANISMO
LAMINA:
DELAFAM.
CASA
ANGULOALVAREZ

RECOMENDACIONES

11. RECOMENDACIONES

Se recomienda utilizar materiales ligeros en la ambientación de espacios que se superpongan a los ya existentes en la casona, como por ejemplo el vinil con texturas.

Se recomienda utilizar distintos materiales y hacer un estudio del sol para poder determinar las áreas iluminadas y opacas en la vivienda, esto en función de los distintos patio que se encuentran.

Se recomienda emplear mobiliario acorde con el material obtenido de valor arqueológico como los huacos o calaveras que sean encomendadas, para que desde la arquitectura se pueda contribuir.

Se recomienda agrupar las características de los muros en función a su espesor para obtener un cálculo mas rápido, identificar el tipo de suelo, el factor de uso y los niveles de la edificación para hacer comparativas entre constantes.

Se recomienda analizar referentes para realizar la intervención, así como también referentes de restauración, de esta manera podremos tener una guía para reactivar el proyecto e intervenir de manera adecuada en el mismo.

Se recomienda moldear los elementos arquitectónicos por separado al momento de hacer el modelo 3d, de esta manera se puede mejorar el flujo de trabajo que se da en el estudio de la casona.

Se recomienda contrastar precios de al menos 3 ferreterías para obtener información acerca de los materiales que se emplearán en el proceso de restauración de la vivienda, esto también tomando en cuenta la mano de obra de los obreros.

Se recomienda realizar un bosquejo previo desde la aplicación google earth para que al momento de tomar las medidas en campo se nos sea mas rápido y preciso la obtención de información.

Se recomienda mantener los códigos arquitectónicos que presente la obra actual, restaurando de manera racional, manteniéndose la escancia de obra, y observar que el perfil urbano no se vea afectado con la intervención a dar.

CONSERVACIONDELPATRIMONIO CULTURAL

DOCENTE: MG.ARQ.TORRESLOYOLA ELMERMIKY

INTEGRANTES:

CONTRERASROMEROMARICARMEN GUERRAAVALOSLISBETH GUEVARAPEREZANGEL LAIZATERANDANIEL

LOYOLACAMPOSCRISTIAN MENDEZRAMIREZJAHNN

PELAEZBACILIADAVID

TANDAPANBAZANJHON

GRUPO:

CURSO:
SEMESTRE: 2022-II
02 N°
44 ESCUELADEARQUITECTURAYURBANISMO
LAMINA:
CASA DELAFAM.
ANGULOALVAREZ

ANEXOS

12. ANEXOS PROPIOS

CURSO: CONSERVACIONDELPATRIMONIO CULTURAL DOCENTE: MG.ARQ.TORRESLOYOLA ELMERMIKY
02 N°
45 ESCUELADEARQUITECTURAYURBANISMO
CASA DELAFAM. ANGULOALVAREZ
02: PRIMER
INTEGRANTES: CONTRERASROMEROMARICARMEN GUERRAAVALOSLISBETH GUEVARAPEREZANGEL LAIZATERANDANIEL LOYOLACAMPOSCRISTIAN MENDEZRAMIREZJAHNN PELAEZBACILIADAVID TANDAPANBAZANJHON SEMESTRE: 2022-II GRUPO:
LAMINA:
Plano
NIVEL ESTADO ACTUAL Fuente: Elaboración Propia
CURSO: CONSERVACIONDELPATRIMONIO CULTURAL DOCENTE: MG.ARQ.TORRESLOYOLA ELMERMIKY
2022-II GRUPO: 02 N°LAMINA: 46 ESCUELADEARQUITECTURAYURBANISMO
CASA DELAFAM. ANGULOALVAREZ Plano 03: SEGUNDO NIVEL ESTADO ACTUAL Fuente: Elaboración Propia
INTEGRANTES: CONTRERASROMEROMARICARMEN GUERRAAVALOSLISBETH GUEVARAPEREZANGEL LAIZATERANDANIEL LOYOLACAMPOSCRISTIAN MENDEZRAMIREZJAHNN PELAEZBACILIADAVID TANDAPANBAZANJHON SEMESTRE:
12. ANEXOS PROPIOS
CURSO: CONSERVACIONDELPATRIMONIO CULTURAL DOCENTE: MG.ARQ.TORRESLOYOLA ELMERMIKY
2022-II GRUPO: 02 N°LAMINA: 47 ESCUELADEARQUITECTURAYURBANISMO
CASA DELAFAM. ANGULOALVAREZ Plano 04: TECHOS ESTADO ACTUAL Fuente: Elaboración Propia
INTEGRANTES: CONTRERASROMEROMARICARMEN GUERRAAVALOSLISBETH GUEVARAPEREZANGEL LAIZATERANDANIEL LOYOLACAMPOSCRISTIAN MENDEZRAMIREZJAHNN PELAEZBACILIADAVID TANDAPANBAZANJHON SEMESTRE:
12. ANEXOS PROPIOS
CURSO: CONSERVACIONDELPATRIMONIO CULTURAL DOCENTE: MG.ARQ.TORRESLOYOLA ELMERMIKY
LAIZATERANDANIEL
SEMESTRE: 2022-II GRUPO: 02 N°LAMINA: 48 ESCUELADEARQUITECTURAYURBANISMO 12. ANEXOS
CASA DELAFAM. ANGULOALVAREZ Plano 05: PRIMER NIVEL PROPUESTA Fuente: Elaboración Propia JIRÓN ORBEGOSO 667
INTEGRANTES: CONTRERASROMEROMARICARMEN GUERRAAVALOSLISBETH GUEVARAPEREZANGEL
LOYOLACAMPOSCRISTIAN MENDEZRAMIREZJAHNN PELAEZBACILIADAVID TANDAPANBAZANJHON
PROPIOS

12. ANEXOS PROPIOS

CURSO: CONSERVACIONDELPATRIMONIO CULTURAL DOCENTE: MG.ARQ.TORRESLOYOLA ELMERMIKY
2022-II GRUPO: 02 N°LAMINA: 49 ESCUELADEARQUITECTURAYURBANISMO
CASA DELAFAM. ANGULOALVAREZ Plano 06: SEGUNDO NIVEL PROPUESTA Fuente: Elaboración Propia
INTEGRANTES: CONTRERASROMEROMARICARMEN GUERRAAVALOSLISBETH GUEVARAPEREZANGEL LAIZATERANDANIEL LOYOLACAMPOSCRISTIAN MENDEZRAMIREZJAHNN PELAEZBACILIADAVID TANDAPANBAZANJHON SEMESTRE:

12. ANEXOS PROPIOS

CURSO: CONSERVACIONDELPATRIMONIO CULTURAL DOCENTE: MG.ARQ.TORRESLOYOLA ELMERMIKY
-II
02 N°
51 ESCUELADEARQUITECTURAYURBANISMO
CASA DELAFAM. ANGULOALVAREZ
07:
INTEGRANTES: CONTRERASROMEROMARICARMEN GUERRAAVALOSLISBETH GUEVARAPEREZANGEL LAIZATERANDANIEL LOYOLACAMPOSCRISTIAN MENDEZRAMIREZJAHNN PELAEZBACILIADAVID TANDAPANBAZANJHON SEMESTRE: 2022
GRUPO:
LAMINA:
Plano
TECHOS PROPUESTA Fuente: Elaboración Propia
CURSO: CONSERVACIONDELPATRIMONIO CULTURAL DOCENTE: MG.ARQ.TORRESLOYOLA ELMERMIKY INTEGRANTES: CONTRERASROMEROMARICARMEN GUERRAAVALOSLISBETH GUEVARAPEREZANGEL LAIZATERANDANIEL LOYOLACAMPOSCRISTIAN MENDEZRAMIREZJAHNN PELAEZBACILIADAVID TANDAPANBAZANJHON SEMESTRE: 2022-II GRUPO: 02 N°LAMINA: 52 ESCUELADEARQUITECTURAYURBANISMO 12. ANEXOS PROPIOS CASA DELAFAM. ANGULOALVAREZ RENDERS DE LA CASA SOLARIEGA Fuente: Elaboración Propia
CURSO: CONSERVACIONDELPATRIMONIO CULTURAL DOCENTE: MG.ARQ.TORRESLOYOLA ELMERMIKY INTEGRANTES: CONTRERASROMEROMARICARMEN GUERRAAVALOSLISBETH GUEVARAPEREZANGEL LAIZATERANDANIEL LOYOLACAMPOSCRISTIAN MENDEZRAMIREZJAHNN PELAEZBACILIADAVID TANDAPANBAZANJHON SEMESTRE: 2022-II GRUPO: 02 N°LAMINA: 53 ESCUELADEARQUITECTURAYURBANISMO 12. ANEXOS PROPIOS CASA DELAFAM. ANGULOALVAREZ RENDERS DE LA CASA SOLARIEGA Fuente: Elaboración Propia
CURSO: CONSERVACIONDELPATRIMONIO CULTURAL DOCENTE: MG.ARQ.TORRESLOYOLA ELMERMIKY INTEGRANTES: CONTRERASROMEROMARICARMEN GUERRAAVALOSLISBETH GUEVARAPEREZANGEL LAIZATERANDANIEL LOYOLACAMPOSCRISTIAN MENDEZRAMIREZJAHNN PELAEZBACILIADAVID TANDAPANBAZANJHON SEMESTRE: 2022-II GRUPO: 02 N°LAMINA: 54 ESCUELADEARQUITECTURAYURBANISMO 12. ANEXOS PROPIOS CASA DELAFAM. ANGULOALVAREZ RENDERS DE LA CASA SOLARIEGA Fuente: Elaboración Propia

BIBLIOGRAFÍA

13. BIBLIOGRAFÍA

• Garaycochea, C. F. (2016). La articulación económica prehispánica del Perú Sur Andino. Diálogo andino, (49).

• Gamarra, R. M. (2007). Arquitectura prehispánica de tierra: conservación y uso social en las huacas de moche, Perú. Apuntes: Revista de estudios sobre patrimonio cultural, 20(2).

• Torres Peceros, H. E. (2018, diciembre). Reflexiones acerca de la Arquitectura Precolombina en el Perú. In Anales del Instituto de Arte Americano e Investigaciones Estéticas. Mario J. Buschiazzo (Vol. 48, No. 2, pp. 157-170).

• REINDEL, M. (1999). Montañas en el desierto: La arquitectura monumental de la costa norte del Perú como reflejo de cambios sociales de las civilizaciones prehispánicas. Bulletin Société Suisse des Americanistes, 63, 137-148.

• Solis,R. S. (2002). El patrimonio arqueológico y su importancia en el desarrollo del Perú. Arqueología y Sociedad,

• Canziani Amico, J. (2009). Ciudad y territorio en los Andes: contribuciones a la historia del urbanismo prehispánico. Pontificia Universidad Católica del Perú. Fondo Editorial.

• Mendoza Santillán, V. A. (2019). Identidad cultural y su relación con la restauración del patrimonio cultural inmueble del Centro Histórico de Trujillo, 2019.

• Obando Rodríguez, G. (2018). Estudio de las condicionantes y patrones habitacionales para la reinserción de la vivienda en el Centro Histórico de Trujillo.

• Tirado Mendoza, J. C. (2018). Características físicas y organizativas de los atractivos turísticos de la categoría manifestaciones culturales del centro histórico de Trujillo, que posibilitan la ejecución de actividades culturales no convencionales que generen mayor atracción turística.

• Gamarra, R. M. (2007). Arquitectura prehispánica de tierra: conservación y uso social en las huacas de moche, Perú. Apuntes: Revista de estudios sobre patrimonio cultural, 20(2).

• Principios Que Deben Regir La Conservación De Las Estructuras Históricas En Madera. (1999). Icomos .Org. https://www.icomos.org/images/DOCUMENTS/Charters/wood_sp.pdf

• Norma A.140.

BIENES CULTURALES

INMUEBLES. [Resol.] Art. 1-12.

• Sodimac.com. (s. f.). Sodimac Perú. Recuperado 2022, https://www.sodimac.com.pe/sodimacpe/landing/cat10022/Materiales-de-Construccion

• Materiales de Construcción. (s. f.). Promart. Recuperado 2022, de https://www.promart.pe/construccion

• Generador de precios de la construcción. Perú. CYPE Ingenieros, S.A. (s. f.). Recuperado 2022, de http://www.peru.generadordeprecios.info/

CURSO: CONSERVACIONDELPATRIMONIO CULTURAL

DOCENTE: MG.ARQ.TORRESLOYOLA ELMERMIKY

INTEGRANTES:

CONTRERASROMEROMARICARMEN GUERRAAVALOSLISBETH GUEVARAPEREZANGEL LAIZATERANDANIEL

LOYOLACAMPOSCRISTIAN MENDEZRAMIREZJAHNN PELAEZBACILIADAVID TANDAPANBAZANJHON

02
55 ESCUELADEARQUITECTURAYURBANISMO
SEMESTRE: 2022-II GRUPO:
N°LAMINA:
CASA DELAFAM.
ANGULOALVAREZ

Turn static files into dynamic content formats.

Create a flipbook
Issuu converts static files into: digital portfolios, online yearbooks, online catalogs, digital photo albums and more. Sign up and create your flipbook.