Portafolio - Arq. Ma. Citlalli Hernández Reyes

Page 1


o r t a f o l i o

Arq. Ma. Citlalli Hernández Reyes

Bienvenido

Este portafolio muestra una selección de mis proyectos como estudiante de arquitectura durante los años 2017 - 2022. Y diseños que he realizado en diferentes empresas una vez egresada de la Benemérita Universidad Autónoma de Puebla.

En mis proyectos como estudiante se muestran diagramas, renders y planos. Los cuáles fueron mi herramienta durante el proceso de aprendizaje, exploración y crecimiento en el ámbito arquitectónico. Mientras que mis proyectos como egresada muestran diseños que fueron creados para clientes reales en función de sus necesidades, gustos, requisitos, etc.

Ambos muestran una visión general de mi cambio y aprendizaje en la arquitectura. Y el como llevo a cabo diseños funcionales y creativos, adaptados a las necesidades de cada uno.

Arq. María Citlalli

Hernández Reyes

Sobre mí

Arquitecta con experiencia en diseño arquitectónico, de mobiliario, supervisión en obra y representación digital. Soy capaz de crear espacios y/o mobiliario adecuados a las necesidades del usuario, optimizando su comodidad, funcionalidad y presupuesto.

Experiencia laboral

Analista de proyectos

EMITEC

Enero 2025 - Actualidad

•Dibujo de planos de fabricación y producción de mobiliario residencial y hotelero de madera y melamina.

•Realizar cotización de materiales, herrajes y todo lo necesario para costeo de mobiliario.

•Elaborar cubicación de materiales necesarios para fabricación.

•Elaborar modelos 3D, shop drawings y renders.

Educación

Diplomado diseño de mobiliario Generación 2025

Benemérita Universidad Autónoma de Puebla

Facultad de Arquitectura | Licenciatura en Arquitectura

Generación 2017 – 2022

Software

AutoCAD

SketchUp + V-ray

ArchiCAD

Photoshop

Illustrator

Lumion

Diseñadora de mobiliario y proyectos arquitectónicos

Spiga Muebles de oficina

Febrero 2023 - Actualmente

- Levantamiento y elaboración de planos

- Diseño personalizado de cocinas, muebles de oficina y acabados residenciales en madera

- Elaborar propuestas de modelos en 3D y renderizado de las mismas

- Cotización de mobiliario

- Diseño de proyectos arquitectónicos

Dibujante de planos para redes de fibra óptica

GSP - Global Services Providers

Octubre 2022 - Febrero 2023

- Dibujo de planos y diseño de instalaciones para redes de fibra óptica.

Prácticas profesionales

L&R Cía. Ingeniería Geotécnica

Enero 2022 - Mayo 2022

- Elaboración de planos arquitectónicos

- Diseño, modelado 3d y renderizado de diversos espacios

Auxiliar de residente de obra

3D Floor

Mayo 2018 - Octubre 2018

- Gestión de equipo de trabajo

- Elaboración de reportes de obra semanales

Puebla, México

citlallibtw28@gmail.com

2311315590

contenido

01 PROYECTO REMODELACIÓN “EL CARMEN”

Pág. 05

02 HOSPITAL MODELO IMSS

Pág. 11

03

CENTRO COMERCIAL

Pág. 13

04 REMODELACIÓN COCINA “LA HACIENDA”

Pág. 17

05

06

CONCURSO RENDER

Pág. 21

07

PROYECTO TESIS “CASA HOGAR”

Pág. 23

COCINA “FRAMBOYANES”

Pág. 27

08 CASA 0522

Pág. 29

PROYECTO REMODELACIÓN “EL CARMEN”

Año: 2021

Software: AutoCAD, Photoshop, SketchUp

Proyecto: Conceptual

Ubicación: Teziutlán, Puebla

El proyecto surge con la necesidad de darle una nueva identidad al parque “el carmen” ubicado en Teziutlán Puebla. El cual actualmente ya no se adapta al contexto urbano y social en el que se encuentra, pues estos han sufrido modificaciones a lo largo de los años, lo cual lleva a replantear las actividades y el uso de este espacio público.

La propuesta de intervención busca otorgar a los habitantes un espacio que logre cubrir sus necesidades actuales.

Delimitación del espacio

Zonificación

Planta

Año: 2020

HOSPITAL MODELO IMSS

Software: AutoCAD, Photoshop, SketchUp

Proyecto: Conceptual

Ubicación: Puebla, Puebla

Durante el sexto semestre se desarrolló un proyecto de hospital general, apegándose a las normativas del Instituto Mexicano del Seguro Social (IMSS), el cual estaría ubicado en la ciudad de Puebla. Cuenta con área de urgencias, imagenología, consulta externa, medicina interna, área administrativa, cocina, área de lavado, quirófanos y una torre de hospitalización.

Colaboradores:

Bonilla Velez A. David

De los Santos Sales I. Gabriel

Juárez Cruz Oscar Ernesto

Vallejo Coeto Daniela

Año: 2020

CENTRO COMERCIAL

Software: AutoCAD, Photoshop, SketchUp

Proyecto: Conceptual

Ubicación: Cabo San Lucas, Baja California Sur

Mediante la idea de generar un master plan en la materia de taller VI, se planea un centro comercial. El cual sigue la tipología de los proyectos de los compañeros del grupo y se integra al entorno aprovechando la topografía del lugar.

Colaboradores:

Velez A. David

De los Santos Sales I. Gabriel

Bonilla
Juárez Cruz Oscar Ernesto
Vallejo Coeto Daniela
Portafolio
Renders tipo maqueta

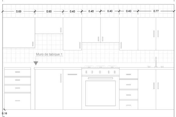
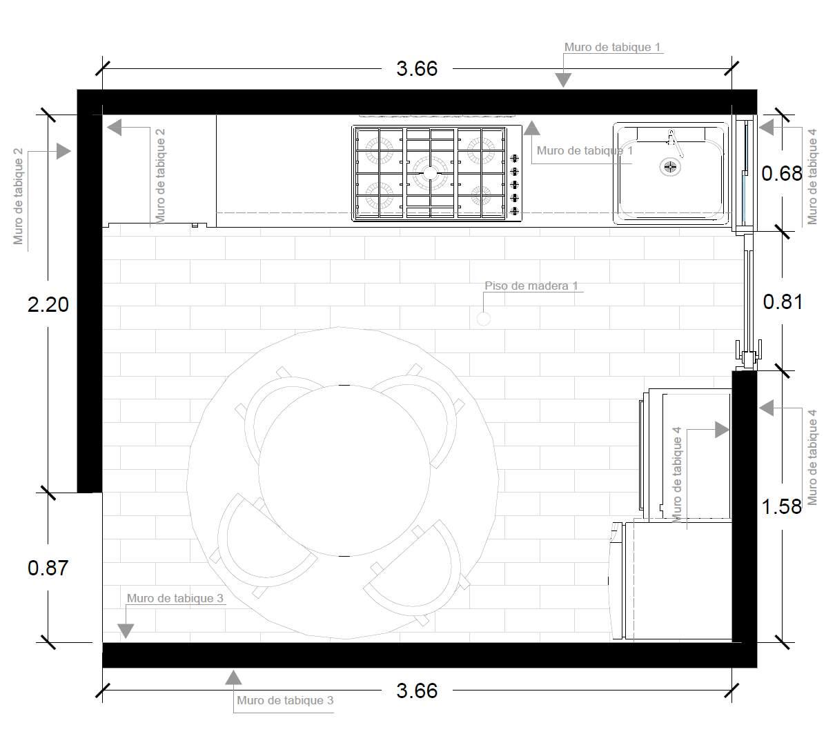
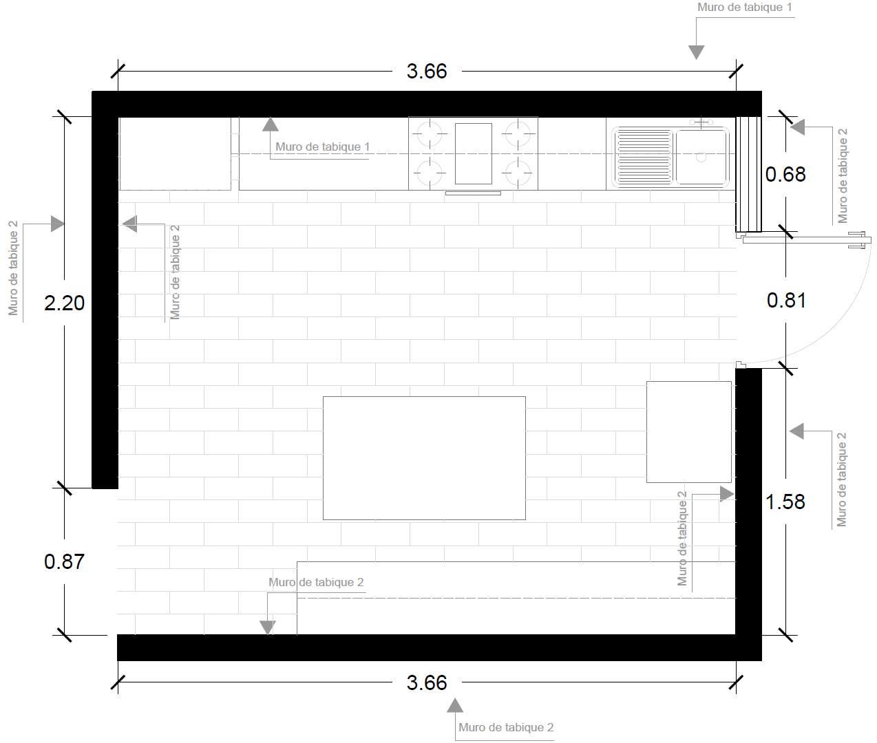
REMODELACIÓN COCINA “LA HACIENDA”

Año: 2020

Software: AutoCAD, Photoshop, SketchUp

Proyecto: Conceptual

Ubicación: Puebla, Puebla

En la materia de diseño de interiores uno de los trabajos consistió en remodelar un espacio de nuestra propia casa. El espacio elegido fue la cocina, el propósito fue hacer más funcional el espacio para quienes habitan la casa, a través de un diseño uniforme y agradable al usuario.

Estado actual

Propuesta

Año: 2020

CONCURSO RENDER

Software: Photoshop, SketchUp

Proyecto: Conceptual

Ubicación: -

Durante el año 2020 las personas que representan “Feel Like An Architect” realizaron un concurso de renderizado, el cual consistía en diseñar el exterior del modelo. A pesar de no ganar este concurso considero que adquirí mayor conocimiento sobre renderizado.

Autoría del modelo: Feel Like an Architect

PROYECTO TESIS “CASA HOGAR”

Año: 2022

Software: AutoCAD, Photoshop, SketchUp

Proyecto: Conceptual

Ubicación: Puebla, Puebla

Como proyecto para obtener el título en arquitectura, se partió de buscar una solución a una problemática social, en el caso de mi equipo de trabajo dicha problemática fue los niños en situación de calle. Con esto creamos un proyecto que pudiera atender las necesidades de los niños, además de adaptar espacios para otorgarles zonas de estudio, recreación, salud y ocio.

Colaboradores:

Bonilla Velez A. David

De los Santos Sales I. Gabriel

Juárez Cruz Oscar Ernesto

Vallejo Coeto Daniela

Biblioteca

Comedor

Dormitorios Edificio A

Taller de danza

Año: 2022

COCINA “FRAMBOYANES”

Software: AutoCAD, Photoshop, SketchUp

Proyecto: Real

Ubicación: Puebla, Puebla

Primer proyecto de diseño realizado una vez siendo egresada de la carrera de arquitectura, durante mis prácticas profesionales.

En el cual se buscó crear un espacio funcional de acuerdo a las necesidades del cliente, pero no sin dejar de lado la estética.

Proyecto perteneciente a “L&R”

Diseño, modelado y render

Año: 2022

CASA 0522

Software: AutoCAD, Photoshop, SketchUp

Proyecto: Real

Ubicación: Puebla, Puebla

Proyecto de casa habitación de dos plantas, en el cual se buscó integrar el diseño, materiales, colores y muebles de acuerdo al lugar en donde encontraba el proyecto.

Proyecto perteneciente a “L&R”

Diseño y render autoría propia

Arq. Ma. Citlalli Hernández Reyes

Turn static files into dynamic content formats.

Create a flipbook
Issuu converts static files into: digital portfolios, online yearbooks, online catalogs, digital photo albums and more. Sign up and create your flipbook.