PORT FOLIO
ARCHITECTURE
SELECTION DE PROJETS
![]()
ARCHITECTURE
SELECTION DE PROJETS




S itué dans le 8ème arrondissement de Paris, cet immeuble
a fait l’objet d’un projet de réhabilitation portant sur un appartement traversant de 250 m², situé au premier étage. L’objectif été de créer un espace de bureaux répondant aux exigences actuelles tout en préservant le cachet d’origine. Ainsi, les corniches, moulures et le parquet en Point de Hongrie ont été restaurés afin de retrouver l’élégance de l’époque. L’aménagement conjugue harmonieusement l’authenticité du style haussmannien et une touche de modernité grâce à l’intégration d’éléments contemporains tels que des portes en verre, des claustras et des verrières en bois. Les menuiseries extérieures, de type « mouton et gueule de loup », ont été remplacées à l’identique. Une attention particulière a été portée au choix des matériaux pour garantir une rénovation de qualité.
Le projet, commandité par un administrateur de biens, est destiné accueillir une entreprise locataire, dont l’activité reste à préciser. J’ai eu l’opportunité de travailler sur ce projet de l’esquisse au suivi de chantier.



Ce projet porte sur la rénovation d’un immeuble de bureaux de 5 343 m² répartis sur quatre étages, avec une intervention majeure sur les parties communes.
J’y ai participé de la phase d’esquisse jusqu’au suivi de chantier, en intervenant principalement sur les espaces communs hall d’entrée, sanitaires, tisaneries, circulations.
Ces espaces ont été repensés avec une conception cohérente et soignée, alliant fonctionnalité et qualité des matériaux pour créer une ambiance conviviale et accueillante.
Les plateaux de bureaux ont été remis à neuf à l’état identique, dans une logique de modernisation technique tout en conservant l’agencement existant.
Un élément décoratif suspendu dans le hall, mis en lumière par un système d’éclairage dédié, devient un signal fort visible depuis l’extérieur, apportant une nouvelle identité à l’immeuble.


BTP Consultant
Massy
01 69 20 82 01 mateo.raso@betleroux.fr
© Héry Sébastien
Ces plans sommaires ne sont pas des plans d'exécution et ne peuvent en aucun cas être directement utilisés pour réaliser la construction. Aucune responsabilité ne peut être imputée l'auteur lié l'utilisation de ces documents sans son accord et sans autorisations administratives préalables. Les dimensions, natures de murs, et branchements, ne sont indiqués sur le plan qu'à titre d'information et ne sont nullement contractuelles. Toutes les mesures devront être vérifiées sur site par l'entreprise.
En attente avis Bureau de Contrôle.
Sous réserve de l'accord dun bureau d'étude nommé et rémunéré par l'entreprise.
INDICE DATE MODIFICATIONS
Réhabilitation d’un plateau de bureaux de 335 m² au 3è étage d’un immeuble haussmannien, rue de Rome (Paris 8ème), à deux pas de Saint-Lazare. Il s’agit de mon premier projet au sein de SHA Architectes, sur lequel j’ai travaillé de l’esquisse au suivi de chantier. Le projet vise à créer des espaces de travail modernes, tout en préservant le cachet de l’existant restauration du parquet en point de Hongrie, reprise des corniches et moulures en staff, et aménagement d’un axe de circulation structurant.
Un équilibre subtil entre architecture classique et fonctionnalité contemporaine.







À la suite de la réhabilitation des plateaux de bureaux et des parties communes, le client a confié à l’agence la transformation de la cafétéria en un espace modulable et multifonctionnel.
J’ai participé ce projet de l’esquisse jusqu’au suivi de chantier, avec pour objectif de concevoir un lieu capable d’accueillir des usages variés zone de détente, cours de sport, projections ou conférences.
La réponse architecturale s’est articulée autour de cloisons mobiles, rideaux occultants et murs décoratifs modulables, permettant une grande flexibilité d’usage tout en conservant une cohérence esthétique.




Le projet a consisté en la rénovation partielle d’un appartement situé au 2ème étage d’un immeuble parisien, avec pour principal objectif la refonte de la salle de bain et de la cuisine. Deux propositions ont été soumises aux clients, qui ont finalement opté pour la première, plus économique. Cette option préservait l’agencement initial des pièces ainsi que le système de gaz en place. Bien que la seconde version, proposant une cuisine ouverte sur le salon, ait suscité leur intérêt, ils ont préféré ne pas la retenir afin de respecter leur budget. Afin d’améliorer la circulation entre les espaces, l’angle de la paroi extérieure de la nouvelle salle de bain donnant sur le salon a été adouci avec une forme arrondie, créant une transition plus fluide et accueillante.










Le projet 21Bourgogne a consisté en la rénovation d’un appartement traversant de 135 m², situé au 3ème étage. L’objectif principal était de concevoir un espace de vie en adéquation avec les modes de vie contemporains, tout en préservant et valorisant les éléments architecturaux d’époque. Les ornements haussmanniens ont ainsi été conservés et restaurés avec soin les corniches et moulures ont été retravaillées en staff, tandis que le parquet en point de Hongrie et à l’anglaise été restauré ou remplacé lorsque nécessaire. Les portes moulurées d’origine ont été préservées et rénovées autant que possible, de même que la cheminée du salon, afin de préserver le charme et l’authenticité du lieu.




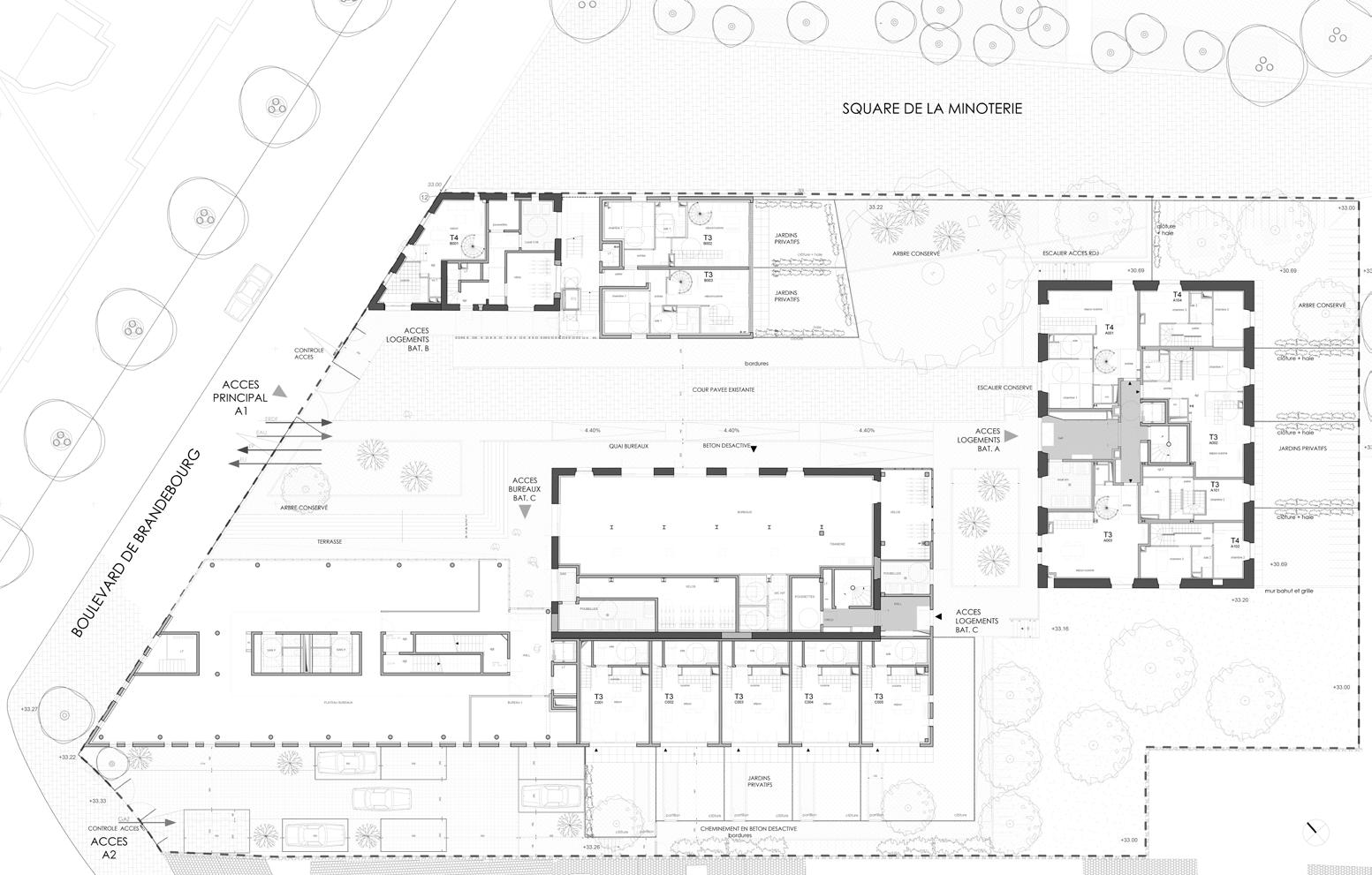
Ce projet, implanté à Ivry-sur-Seine, concerne la réhabilitation du site de la Minoterie, un lieu chargé d’histoire et au riche passé industriel.
L’objectif principal a été de préserver et de mettre en valeur le patrimoine architectural et paysager, tout en transformant et en étendant le site pour y aménager des logements et des bureaux. Cette intervention visait à créer un espace de vie dynamique, ouvert sur la ville, où se rencontrent et dialoguent différentes époques et influences architecturales.
J’ai participé au suivi de chantier, en accompagnement de l’architecte du projet.
