Kanlayakorn Kulaprapa_Portfolio

Page 1


P O R T F O L I O

Kanlayakorn Kulaprapa

01

Phahurat Frabricae

A fashion learning center located in the historic Phahurat district. The design incorporates the surrounding cultural context and repurposes the existing building structure to create a new space for education and creativity.

Thesis Project : 2024–25

A museum project designed to raise public awareness and appreciation for the historical layers of Ayothaya. The proposal embraces the concept of “ruin value,” using architectural storytelling to reflect the cultural memory embedded in the site.

Academic Project : 2023–24

An architectural exploration of traditional Thai reinterpreted in a contemporary context. The interior houses a public library, creating a cultural space where architectural heritage and knowledge coexist.

Academic Project : 2023–24

04

15 MINUTE CITY "TEENAGER"

An urban design studio project that adapts Bangkok’s 15-minute city policy into an academic proposal. This project re-imagines the concept through the lens of teenage lifestyles, aiming to create a more inclusive and accessible urban environment for the younger generation.

Academic Project : 2023–24

05

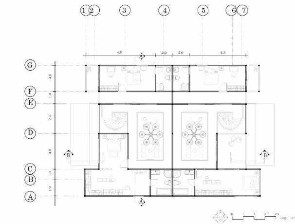
Semi-Detached House

A luxury semi-detached residence designed in Tropical Modern style. The project explores the balance between shared structure and individual privacy, integrating natural light, ventilation, and material richness to enhance comfort and elegance.

Academic Project : 2021

High-Rise Building

A high-rise building design focused on core structure systems and internal circulation. The project emphasizes structural clarity, vertical efficiency, and functional zoning to address the complexities of modern skyscraper

Academic Project : 2023

01 Phahurat Frabricae

Thesis Project : 2024–25

A fashion learning center located in the historic Phahurat district. The design incorporates the surrounding cultural context and repurposes the existing building structure to create a new space for education and creativity.

A thesis project focused on revitalizing the Phahurat district through the adaptive reuse of two underutilized commercial buildings Phahurat Plaza and India Emporium. Drawing from the area’s deep connection to the textile trade and its distinct urban fabric, the project reimagines these buildings as a fashion and textile learning center that supports education, craftsmanship, and public engagement.

The design is guided by the concept of “superimposed alley,” inspired by the layered and dynamic spatial rhythm of the neighborhood. Through modular planning, open corridors, natural light, and public passages, the project creates interconnected spaces for workshops, exhibitions, and fashion shows. It balances cultural sensitivity with modern function, aiming to reconnect people with place and bring new vitality to the historic district.

Concept

The concept began with an in-depth study of Phahurat’s shopfronts and their spatial relationship to the surrounding urban fabric. The shops are typically aligned along main roads, with deep, narrow extensions forming a network of inner alleys. These overlapping layers of movement and usage inspired the concept of a “superimposed alley,” which reinterprets the rhythm and continuity of the city into architectural space, reflecting how Phahurat’s identity has been shaped through time.

PATTERN STUDY

experiences.

India Emporium

India Emporium comprises 4 floors and a basement, featuring wide-span open floor plates and vertical voids that provide a sense of spaciousness and visual connection across levels. The building’s existing atrium and circulation system make it ideal for hosting events such as exhibitions, fashion shows, and showcases. Positioned on Chakraphet Road, the structure stands as a prominent landmark that reflects cultural identity and encourages public engagement through adaptive reuse.

The project maintains the core concept of the “alley” by translating Phahurat’s urban pathways into internal circulation that runs between programmatic zones. This spatial strategy reflects the dynamic rhythm of the district’s retail culture, where movement occurs alongside active storefronts. Key functions such as sewing studios, library, auditorium, cafeteria, and co-working spaces are arranged along these interior alleys, with adjustments made to suit real environmental conditions and user needs.

The design of India Emporium focuses on establishing a clear spatial function for exhibitions and fashion showcases, while subtly preserving the layered, alley-like atmosphere that defines the identity of Phahurat. The building is envisioned as the project’s public-facing “front of house,” serving as a venue for displays, fashion shows, and commercial interactions. These programs highlight the creative outputs from Phahurat Plaza conceptualized as the “back of house” or production space creating a complementary relationship between making and presenting within the urban context.

02 Ruin Value

Academic Project : 2023–24

A museum project designed to raise public awareness and appreciation for the historical layers of Ayothaya. The proposal embraces the concept of “ruin value,” using architectural storytelling to reflect

Projec Type

Take a walk among the ruins. Walk to the end and you’ll come across a model of an Ayutthaya-era pagoda.

Mass Development

Geometries of Ayothaya Pagoda

The Evolution of Ayothaya Exhibition

The permanent exhibition interprets Ayothaya’s history through a sequence of emotional spaces arranged in a spiral layout. Beginning with Amazement, visitors encounter reflective surfaces and a city model that blends past and present, evoking a sense of time travel. As the spiral unfolds, Holy is expressed through focused lighting on artifacts, representing Ayothaya’s prosperity. The path transitions to Depression, where ruins are displayed on ascending shelves within dim lighting, emphasizing loss and decay. Finally, Bittersweet contrasts restored and unrestored objects through light and shadow, conveying the fragmented memory of the city. The journey ends at a raised platform overlooking a replica of Wat Yai Chai Mongkhon, symbolizing historical awareness and reverence.

03 Tipitaka

Academic Project : 2023–24

An architectural exploration of traditional Thai reinterpreted in a contemporary context. The interior houses a public library, creating a cultural space where architectural heritage and knowledge coexist.

This project involves designing a library building for a Buddhist university, employing a cuttingedge architectural concept. The core idea is to reinterpret the symbolic form of the traditional Thai roof finial and integrate it with contemporary spatial functions. The design focuses on intuitive circulation and spatial clarity, allowing users to navigate the space with ease and comfort. Located at Mahachulalongkornrajavidyalaya University in Ayutthaya, the library serves as both a modern knowledge center and a contemplative space that reflects the intellectual and spiritual values of the monastic community.

Concept

The project reinterprets traditional Thai religious architecture into a contemporary form, using the symbolic motif of the "roof finial" as a spatial and conceptual anchor. The architectural language blends spiritual imagery with the functions of a modern monastic library serving both as a space for learning and a journey of reflection. The design encourages vertical movement through layers of knowledge, guided by Buddhist philosophy, where each floor offers different levels of engagement: co-working and interaction at the base, reading and contemplation above, and archival silence at the top.

04 15 MINUTE CITY "TEENAGER"

Academic Project : 2023–24

An urban design studio project that adapts Bangkok’s 15-minute city policy into an academic proposal. This project re-imagines the concept through the lens of teenage lifestyles, aiming to create a more inclusive and accessible urban environment for the younger generation.

The “15-minute city for teenagers” is proposed as an urban framework that responds to the specific needs of young people—such as independence, flexibility, social connectivity, and access to everyday functions within a compact, walkable environment. This concept emerges from the observation that teenagers experience and navigate the city differently from adults, often seeking spaces for informal gathering, creative expression, and identity building. Banthat Thong Road, with its high concentration of teenage users, mix of schools, dormitories, food culture, and casual street activities, serves as an ideal urban context to study and test how proximity based planning can enhance urban life for the younger generation.

Projec Type

Urban De ign

Inclu ive Public Space Strateg

Tran it Oriented Development

Advisor

A t. Prof. Dr. Singhanat Saeng eenat

Si e

Banthat Thong Rd, Wang Mai, Pathum Wan,
 Bangkok 10330, Thailand

Working Me hod

Thi project wa developed a a group work con i ting of 7 member .

My role

Team Leader re pon ible for coordinating the overall concept, organizing ta k , and guiding the de ign direction.

15 MINUTE CITY "TEENAGER"

Banthat Thong Road is an active urban corridor shaped by the daily presence of university students and teenagers. With a mix of food venues, co-working spaces, shops, and informal gathering spots, the area supports a wide range of youth-centered activities. A spatial analysis within a 15minute walking radius reveals strong access to daily amenities, green spaces, and key youth hubspositioning the area as an ideal model for a walkable city framework designed around teenage lifestyles. Most teenagers expressed the need for co-working and flexible activity spaces that support informal and creative use.

Teenagers’ Needs Site Issues

Main issues include lack of seating, shade, and walkable areas, making it difficult for teenagers to stay and engage with the space.

Projec Type

R sid ntial Archit ctur

Tropical Mod rn Styl

Adaptiv Housing D sign

Advisor

Prof. Dr. Chatri Prakitnonthakan

Si e

Fl xibl / Applicabl to urban or suburban s ttings

Working Me hod

This proj ct was d v lop d as an individual d sign proj ct.

My role

Sol d sign r r sponsibl for all asp cts of th proj ct including conc pt d v lopm nt, d sign strat gy, t chnical drawings, and pr s ntation.

Concept

This semi-detached house explores the redefinition of shared living in response to modern lifestyle needs and past health crises such as COVID-19. The design begins with the emotional mapping of domestic life captured through surreal collage to reflect routines, conflicts, and intimacy. Functions are arranged based on spatial hierarchy and separation potential, with specific zones for quarantine, guests, and family members. The circular bubble diagram represents the dynamic overlaps between living, working, and resting spaces. Architecture becomes a framework that balances flexibility, privacy, and social interaction, adaptable across urban contexts and generational use.

Most teenagers

Most teenagers

Most teenagers

Most teenagers

Project Type

High-Ris Offic D sig

Co structio Focus d Archit ctur

Archit ctural-Structural I t gratio

Advisor

Asst. Prof. Dr. Kwa chai Roja aka o

Site

Soi Ratchadaphis k 3, Di da g District,
 Ba gkok 10400, Thaila d

Working Method

This proj ct was d v lop d as a collaborativ d sig b tw two m mb rs.

My role

Co-d sig r r spo sibl for d sig d v lopm t, drawi g productio , a d ov rall co tributio throughout all phas s of th proj ct.

Turn static files into dynamic content formats.

Create a flipbook
Issuu converts static files into: digital portfolios, online yearbooks, online catalogs, digital photo albums and more. Sign up and create your flipbook.