CAROLINA DELGADILLO
ARCHITECTURE PORTFOLIO
2 Library Ct
Studio Upwall Architects
Single Family
Type of Construction: 5B
Role: Facilitated ongoing collaboration between our design and preservation experts to resolve any concerns or challenges related to historic preservation standards.

Proposed First Floor Plan Proposed Second Floor Plan
4607 Brandywine St
Studio Upwall Architects
Single Family
Type of Construction: 5B
Role: I assisted in optimizing the space and functionality to meet the clients needs. I also developed the mechanical and electrical plans and managed the permit process.


1530 O St
Studio Upwall Architects
Single Family
Type of Construction: 5B
Role: Modified an existing wall to create an open view to the backyard, improving the flow of natural light and enhancing the living space’s connection to the outdoors. Also collaborated on the design and technical details to ensure structural integrity.

1343 Randolph St
Studio Upwall Architects
Single Family
Type of Construction: 5B
Role: Assisted in the design for the rear elevation update, ensuring the changes aligned with the overall aesthetic and functionality goals of the project. I also worked on partial updates in various areas of the home. Prepared documents and managed through the permit process.

1007 Upshur St
Studio Upwall Architects
Single Family
Type of Construction: 5B
Role: My main contribution included kitchen layout design, where I helped refine the layout to meet both functionality and design specifications. I also managed the permit process and worked through the construction administration phase.

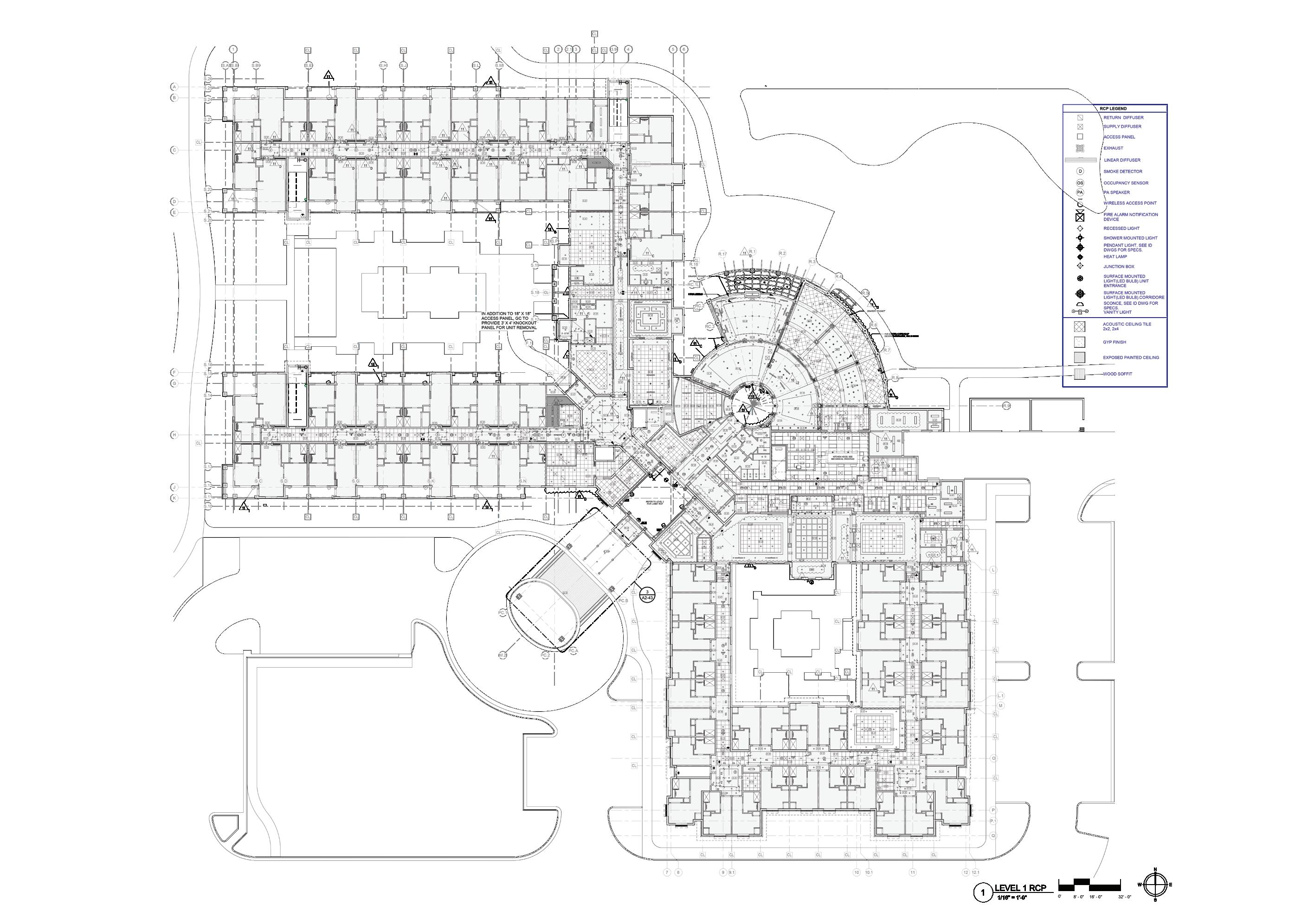
100 Church Ave

Dwell Design Studio
Multifamily I Business I Assembly
Type of Construction: IA
Role: My responsibilities included garage ventilation calculation, updating elevations per client comments, developed the mail room, and worked on a series of unit plans including ANSI units. I have also assisted with creating sections and pool development.

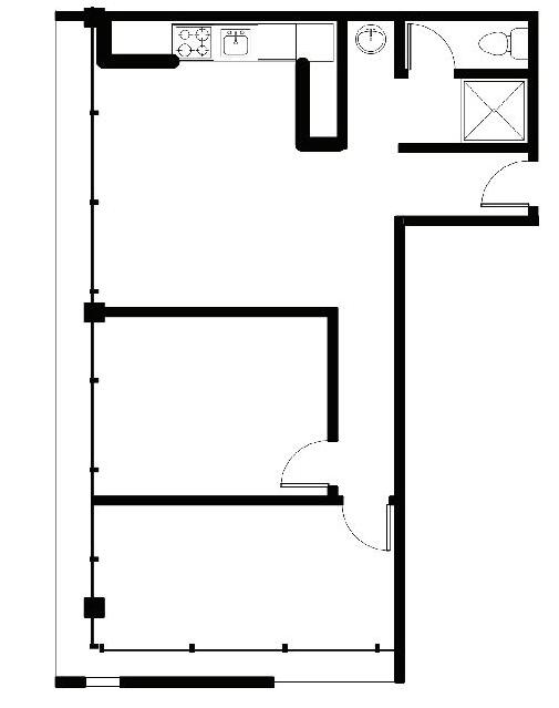
UNIT A3-ANSI
UNIT C1
UNIT E3



































































































Highland Ave.

Dwell Design Studio
Multifamily I Assembly
Type of construction: IA and IIIA
Role: I have taken significant responsibilities in the garage structure. I focused on ventilation calculations, required parking spaces, and the staircase between garage and building. Additionally, I have also assisted with exterior details through out the building as well as made changes to elevations.

































































































































































































































































































































































































































































































































































































































































