Site Research_Chang_Cheng-Yun_CARD7003

Page 1


Reinterpreting Chinese Architecture in Dialogue with London’s Past

Art Chinese Gallery and Chinese-Inspired Garden at Kew Gardens, London

Project Book Portfolio - 22 May 2025

Cheng-Yun Chang

ADDRESS : No. 4-1, Lane 2, Taian St, Zhongzheng District, Taipei City 10054 Country Taiwan

EMAIL : bychengyun0218@gmail.com

PHONE : (+886)928476888

UK PHONE:(+44)7375067175 / Contact

/ Education

2006-2007

The Affiliated Kindergarten of Xinsheng Elementary School. 2007-2013

Primary School Diploma - Xinsheng Elementary School 2013-2016

Junior High School Diploma - Taipei Municipal Heping Affiliated Hunior High School 2016-2019

Senior High School Diploma - Taipei Municipal Heping High School Number: (2018) 000230 2019-2020

Kaplan International Pathway & Art and Design Foundation (Nottingham Trent International College) - Foundation Certificate for Art, Design and Media (RQF - Pass with Distinction) 2020-2024

Bachelor of Architecture-BArch (H) ArchitectureRIBA BArch (Hons) Architecture Part One - Nottingham Trent University

I am Cheng-Yun Chang, from Taiwan, a graduate from the Department of Architecture at Nottingham Trent University. Throughout my journey in architectural design, I have always believed that architecture is not just a manifestation of functionality but also a form of art—a power that touches the soul. Proportion and scale convey stability and harmony in buildings, colors and materials endow them with emotion and texture, while space design is the soul of architectural aesthetics—whether enclosed or open, fluid or layered, every detail in architecture creates unique experiences for people.

In Asia, Feng Shui often influences architectural design, sometimes leading to compromises or limitations. However, I aim to break through these constraints and explore a path where Feng Shui and architectural aesthetics can harmoniously coexist. As I embark on my studies at UCA, I wish to integrate traditional wisdom with modern design, allowing Feng Shui to be a source of inspiration rather than limitation, and achieving a balance between culture, space, and aesthetics.

I understand that this path of learning is long, but I believe that every step is part of the journey toward progress. I look forward to discussing, learning, and growing alongside my teachers and classmates at UCA, bringing more inspiration and possibilities to future architectural creations.

https://www.chengyun0218.com/

Project Overview

Reinterpreting Chinese Architecture in Dialogue with London’s Past

This project proposes a contemporary “Chinese Art Gallery and Chinese-Inspired Garden” located in the historic landscape of Kew Gardens, London – a UNESCO World Heritage Site known for its rich botanical and cultural heritage.

Design Intent

While Kew Gardens features the iconic “Great Pagoda (1762)” – a symbol of British Chinoiserie fantasy – this project presents a “genuine architectural response from a contemporary Chinese perspective”. It seeks to “re-engage traditional principles like Feng Shui and the Five Elements”, while reflecting on cultural identity and modern expression.

Design Thesis Introduction

A Dialogue Between Imagination and Authenticity

In the 18th century, the British fascination with the East gave rise to “Chinoiserie”, a European interpretation of Chinese aesthetics. The “Great Pagoda” at Kew Gardens is one such expression — beautiful, yet imagined.

This project does not seek to correct the past, but to converse with it.

By situating a contemporary Chinese architectural work next to this historic pagoda, the project allows two voices to coexist:

The imagined “China” of the 18th century, and

The lived cultural identity of 21st-century China.

Design is not merely a matter of form, but a continuation of culture and memory.

• Authentic Cultural Expression - Drawing on real Chinese spatial traditions — such as Feng Shui, Five Elements, and courtyard logic — rather than replicating surface style.

• Contemporary Translation - Inspired by architects like Wang Shu and Liu Jiakun, the project embraces cultural memory, poetic space, and material consciousness.

• Botanical and Philosophical Integration - Aligning Chinese plants, seasonal rhythms, and directional symbolism into a holistic spatial experience.

1.1 Site Comparison: Evaluating Potential Locations

As the site for the project, three locations I carefully evaluated: “Kew Gardens (London)”, “Regent’s Park (London)”, and “Eastbridge Hospital (Canterbury)”. The comparison considered factors such as cultural relevance, environmental quality (sunlight, wind, botanical potential), and compatibility with Feng Shui principles.

- Cultural Anchor: Home to the 1762 Great Pagoda, offering a direct visual and symbolic link to Chinese influence in British history.

- Botanical Excellence: As a world-leading botanical garden, Kew provides an ideal setting for showcasing Chinese plants and seasonal symbolism.

- Educational Alignment: Its institutional mission supports cultural learning and ecological awareness, aligning perfectly with the goals of the project.

- Lacks Chinese Context: No architectural or historical Chinese presence.

- Leisure-Oriented: Functions primarily as a recreational park rather than a cultural site.

- Weak Cultural Justification: A new Chinese structure would feel disconnected from the park’s identity and history.

- Poor Feng Shui orientation: Empty space is contrary to Feng Shui

- Strong Religious Identity: Dominated by medieval and Christian architectural elements, including Gothic and Norman influences.

- Cultural Incompatibility: Its solemn spiritual setting is difficult to reconcile with Chinese garden principles.

- Contextual Conflict: The contrast between Chinese architecture and surrounding churches creates visual and symbolic dissonance.

Final Decision:

> Kew Gardens was selected for its strong historical resonance, botanical richness, and alignment with both ecological and cultural objectives. It offers the clearest opportunity for a meaningful architectural dialogue between imagined and authentic Chineseness.

Figure 1.01 Me & Temperate House in Kew Gardens (2024 December 27)
Figure 1.02 Regent’s Park, London (2025 February 27)
Figure 1.03 Eastbridge Hospital, Canterbury (2024 October 21)
Kew Gardens, London – Selected Site
Regent’s Park, London – Not Selected
Eastbridge Hospital, Canterbury – Not Selected

1.2 Why This Site?

- Over 2 million annual visitors

- Flat terrain suitable for traditional courtyards and new structures

- Convenient access (Underground + Overground)

Strategic

Location

- High visibility within Greater London

Why Kew Gardens?

- UNESCO World Heritage Site

Cultural & Historical Value

- Dialogue between Chinoiserie and Authentic Chinese Design

- Iconic Architecture

Environmental Opportunities

- Home to over 50,000 plant species

Cultural Integration Potential

- Strong BritishChinese historical ties (via Great Pagoda)

- Ideal for applying Feng Shui principles

Figure 1.04 Kew Gardens Visitor Statistics and Economic Value (Source: Kew Official Website)
Figure 1.07
Illustration of the Great Pagoda in Kew Gardens (Source: https://all3dp.com, downloaded 2025 March 20)
Figure 1.08 Taiji Bagua Diagram
Figure 1.05 Kew Station Rail Map (2024 December 27)
Figure 1.10 View from the Project Site Facing South – Cheng-Yun Chang (2024 December 27)
Figure 1.09 Hand-drawn Botanical Mapping of Kew Gardens – All Plants Labeled (Cheng-Yun Chang, completed 2025 March 27)
Figure 1.06 Temperate House in Kew Gardens – Cheng-Yun Chang (2024 December 27)

1.3 Why Does London Need This Project?

→ London, despite being multicultural, lacks public spaces that reflect authentic Chinese architectural and garden philosophy. This project addresses that absence.

→ The gallery becomes a place for engagement, participation, and cultural expression, aligned with London’s ethos of inclusion and cross-cultural dialogue.

- Strengthening Multicultural Identity

- Filling a Cultural Gap

Cultural and Urban Necessity

“This is more than a building — it is London’s response to culture, nature, and its evolving identity.”

→ The Chinese garden model emphasizes ecological integration and biodiversity, aligning with the city’s green infrastructure strategy.

- Supporting London’s Green Goals

Sustainability & Urban Wellbeing

Why Does London Need This Project?

- Boosting Cultural Tourism

→ A destination that combines contemporary design, sustainability, and cultural depth — appealing to global architecture and culture-focused visitors.

Enhancing Global Cultural Role

- Reinforcing London as a Global Cultural Capital

→ Demonstrates the city’s willingness to embrace and translate non-Western cultural forms into its built environment.

Educational and Cross-Cultural Value

→ Designed with Feng Shui and sensory balance, the space offers a peaceful urban retreat that addresses rising urban stress and anxiety.

- Facilitating EastWest Dialogue

- Mental Health and Urban Relief

- Interactive Educational Platform

→ A place for learning about Chinese horticulture, sustainability, and design, through exhibitions and workshops.

→ Merges Chinese spatial philosophy with British modernism, making the architecture a living site of cultural exchange.

1.4 Why Does Kew Gardens Need This Project?

→ Incorporates Feng Shui, symbolic plants, and seasonal rhythms, enriching Kew with authentic Chinese architectural language and Eastern spatial values.

→ While Kew Gardens is famous for biodiversity, its representation of traditional garden cultures is limited. This project complements the Japanese Garden and the Great Pagoda with a new Chinese layer.

- Expanding Global Cultural Depth

- Celebrating Chinese Garden Heritage

Enhancing Cultural Representation

“This is not just an addition to Kew — it is a renewal of its role as a cultural, ecological, and educational beacon.”

→ Gallery and garden serve as interactive spaces to explore Chinese horticulture, Feng Shui, and sustainable design thinking.

- Biodiversity Enhancement

→ Introducing other Chinese species that are compatible with the local climate and enrich the ecological level.

Ecological & Sustainable Contribution

- Climate Resilience Strategies

→ Rainwater harvesting, shadeoriented planting, and native vegetation integration reduce carbon footprint and increase site resilience.

- Immersive Educational Platform

→ Presents Chinese design philosophy within a British context, enabling exploration of shared values in spatial harmony and environmental care.

Supporting Education & Learning

How This Project Supports Kew Gardens’ Cultural, Ecological, and Educational Mission

Aligning with Kew’s Core Mission

- Promoting Environmental Stewardship

→ Demonstrates harmony between built form and nature, reinforcing Kew’s goal of fostering awareness for biodiversity and sustainability.

- Bridging Past and Future

Reinforcing Kew’s Global Role

- Facilitating CrossCultural Understanding

- Enriching Visitor Experience

→ A spatial link between the historic 1762 Great Pagoda and futureforward, ecological design values — giving Kew a timeless narrative arc.

- Symbol of CrossCultural Innovation

→ Continuing Kew’s legacy as a place of science and cultural exchange, this project blends ancient Chinese spatial logic with contemporary design.

→ Activates underused spaces and offers multi-sensory, story-driven exploration, expanding how visitors interact with landscape and meaning.

2.1 Site Visit & Action Plan Reflection

→ Observed spatial relationships between major landmarks (Great Pagoda, Palm House, Treetop Walkway)

→ Captured four key views (north, south, east, west), recorded sunlight patterns and vegetation distribution

- Environmental Conditions

→ South-facing openness supports energy flow and aligns with key Feng Shui principles of “receiving qi”

→ Created a photographic and analytical foundation for layout planning and circulation design

- Site Visit Date: December 27, 2024

Field Visit – Kew Gardens Observation

“Through site research and cultural exploration, the landscape is no longer just a backdrop — it becomes the origin of design inspiration.”

→ Began establishing a conceptual map linking Feng Shui, Five Elements, and spatial symbolism to inform design

→ Read The “Classical Gardens of Suzhou”, “Feng Shui and Architecture”, and watched “The Art of Chinese Gardens”

- Design Vocabulary Development

- Sources Consulted

Cultural Research & Theoretical Foundation

→ Explored the symbolic function of water, pathways, and plant arrangement in traditional Chinese gardens

- Identified HighPotential Zones

- Feng Shui Reading

- Visual & Spatial Data Recorded

Implementation & Insights from Action Plan and On-Site Exploration

- Extended Research: Chinoiserie vs Authenticity

- Core Learnings

→ Understood how environmental psychology supports healing and meditative spatial experiences

→ Studied 18th-century British Chinoiserie to understand its stylistic misreadings of Chinese architecture

→ Compared how contemporary architects like “Wang Shu” and “Liu Jiakun” reinterpret Chinese traditions through materials, spatial memory, and poetic form

Key Observations & Site Analysis

- Next Research Focus

Reflection & Next Steps

- Initial Goals Accomplished

→ Northern edge as a “mountain” backing; southeast corner ideal for water and pavilion

- Three Hills and One Pond Strategy

→ Considered how to translate this classical concept into a contemporary and site-specific layout

→ Deepening studies in “Five Elements–based spatial planning, visitor experience design, and plant symbolism”

- Upcoming Tasks

→ Completed first-stage site visit and foundational cultural research

→ Develop preliminary diagrams combining site, culture, and spatial logic

2.2 Social Context and Cultural Representation

“This design is more than a building — it is a response to cultural coexistence, emotional restoration, and the future of green public spaces.”

→ Audiences today seek immersive and interactive experiences that foster cultural connection and emotional well-being.

→ This project responds to that gap by promoting cultural equity and representation.

→ Home to a large and influential Chinese community, yet public space design often lacks authentic cultural inclusion.

→ A UNESCO site attracting millions yearly, known for global horticulture.

- Kew Gardens’ Role

- Visitor Participation & Engagement

- London’s Multicultural Landscape

- Cultural Underrepresentation

→ Despite being a global city, London lacks visible representation of Chinese garden philosophy and spatial identity in its public realm.

→ While it features a Japanese Garden and the “18th-century Great Pagoda”, the pagoda is a “Chinoiserie creation” — a British fantasy of “China”, not a true architectural representation.

Social Context of the Research

Key Issues and Interconnections

- Sustainability & Green Space Demand

→ Rising environmental challenges highlight the need for biodiversity, urban resilience, and ecological education through design.

How Social and Cultural Contexts Shape the Design Strategy

→ Use of meaningful and climate-compatible Chinese plants (plum, bamboo, peony), rainwater systems, and passive shading.

- Chinese Gallery & Garden

Justifying the Design Approach

→ A cultural platform merging “poetry, calligraphy, music, tea, landscape, and Feng Shui”, framed through a contemporary lens.

- Threefold Impact

- Mental Health & Natural Space

- Sustainability Strategy

1. Cultural: Adds missing pieces to London’s cultural landscape, sparks East–West dialogue

2. Social: Creates educational, immersive, and healing spaces

3. Environmental: Supports urban biodiversity, showcases sustainable practices for future design

→ Green spaces are proven to reduce stress and improve mood.

→ Feng Shui principles — such as balance of movement and stillness, orientation, and elemental harmony — enhance these benefits through spatial calmness.

2.3 Research and Sources

→ Understanding the properties and directional roles of metal, wood, water, fire, and earth to guide layout and material choices.

→ Case studies of Qing Dynasty pavilions, lacquerware, ceramics, and carved wood inform cultural authenticity and spatial detailing.

- Symbolism and Pattern

→ Research on calligraphy inscriptions, auspicious motifs, and plant symbolism helps shape gallery identity.

- Five Elements & Spatial Harmony

- ArchitectureArt Fusion

- Three Determinants of Destiny

→ Exploring how environment (Earth), personal actions (Self), and timing (Heaven) shape human experiences in space.

Feng Shui Modern –Cliff Tan & Dura Lee

- Environmental Psychology

→ Learning how sunlight, movement, orientation, and sheltering affect human mood and perception.

Three books found in the library

Chinese Art and Design: The T.T. Tsui Gallery – Rose Kerr

“These three books form the foundation of my design logic — allowing the space to respond to cultural memory, emotional needs, and social connection.”

- Compositional Techniques

→ Buildings should reflect and serve diverse community narratives, especially underrepresented cultures.

- Cross-Cultural Design Strategies

- Architecture as Social Practice

All-Inclusive Engagement in Architecture – Farhana Ferdous & Bryan Bell

→ Insights on blending environmental, historical, and cultural memory to create inclusive public spaces.

→ Studying how traditional gardens use contrast (solid/ void), layering, and framing to create poetic space.

- Accessibility and Interaction

→ Emphasizing open paths, participatory design, and educational components — directly informing the project’s gallery/garden circulation and programming.

Figure 2.01 Feng Shui Modern – Cliff Tan & Dura Lee
Figure 2.02 Chinese Art and Design – Rose Kerr
Figure 2.03 All-Inclusive Engagement in Architecture– Farhana Ferdous & Bryan Bell

2.4 Review: “On the Supposed Chineseness of the English Landscape Garden”

→ The shift in English landscape gardens toward irregular, naturalistic layouts appeared similar to Chinese design (e.g., winding paths, layered scenery).

→ Designers like William Kent and Horace Walpole insisted this “natural style” was a uniquely British innovation, rejecting Chinese inspiration.

- Denial of Chinese Influence

- Superficial Similarities

The Debate: Chinese Influence vs British Naturalism

“The legacy of Chinoiserie was imagination — my design is a response, a reinterpretation, and a return to spatial truth.”

→ Between 1757–1763, Chambers designed parts of Kew Gardens, advocating for Chinese aesthetics and building the “Great Pagoda (1762)”.

- William Chambers’ Role

Chinoiserie in Kew Gardens

How Did 18th-Century England Misinterpret Chinese Gardens — and How Does

This Inform My Design?

- Filtered Cultural Knowledge

Sources of Misinterpretation

→ 18th-century Britain’s understanding of Chinese gardens came from indirect sources: Jesuit letters, merchant accounts, and Sir William Temple’s writings.

- “Irregular but Beautiful” Misquote

→ Temple’s phrase — meant to praise Chinese intentional design — was misread as random disorder, reinforcing perceived aesthetic kinship.

- Visual China, Not Spatial China

Design Reflection & Contemporary Reinterpretation

→ While the pagoda looked “Chinese,” it lacked authentic principles — it followed “Chinoiserie”, a European reinterpretation of Chinese motifs, not their architectural logic.

- From Exotic Imitation to Poetic Integration

- Correcting the Image Through Design

→ Through architectural reinterpretation, the new gallery and garden become a “cultural dialogue across time” — between fantasy and essence, past and future.

→ My project brings authentic Chinese logic to Kew: Feng Shui orientation, Five Elements programming, spatial rhythm, and layered experience.

Figure 2.04 Great Pagoda in Kew Gardens
Figure 2.05 Chinese House at Stowe House

2.5 Traces of Chinese Influence in Kew Gardens

→ Designed by William Chambers, the pagoda exemplifies “Chinoiserie” — a European reinterpretation of Chinese visual motifs, not authentic spatial logic.

→ It served as a visual focal point, but its essence reflects Europe’s imagination of China, rather than true cultural depth — precisely the historical misreading that my design seeks to respond to and reinterpret.

- Symbolic but Superficial Representation

- The Great Pagoda (1762)

“The Chinese traces at Kew are not just historical curiosities — they are the starting point of my cultural reinterpretation.”

Chinoiserie Symbolism (18th Century)

What Traces of Chinese Culture Exist at Kew — and How Do They Inform My Design Response?

→ Tied to early 20th-century botanical expeditions, especially by “Ernest Wilson”.

- The Role of Plant Hunters

→ Explorers like Ernest Henry Wilson brought many rare Chinese species to the UK, especially from Sichuan and Yunnan.

Historical Botanical & Cultural Encounters

- Cultural Filtering through Science

→ While presented as scientific collection, these transfers involved reinterpretation, simplification, and sometimes “detachment from cultural context”.

- Cross-cultural Horticultural Exchange

Imported Chinese Plant Species

- Integrated into My Five Elements Spatial Strategy

→ Kew hosts many Chinese-origin species

My Design as a Cultural Response

- Living Botanical Heritage

→ These plants are placed intentionally based on Feng Shui directions and symbolic meaning.

- Architecture as Dialogue

- From Symbol to System

→ Rather than imitating form, my project introduces authentic Chinese architectural language — Feng Shui planning, Five Elements logic, spatial layering, and poetic narrative.

→ The new gallery and garden “enter into a cultural conversation” with the Great Pagoda — between imagined China and real spatial philosophy, across time and meaning.

2.6 E.H. Wilson’s Plant Expeditions

Who Was “Chinese” Wilson

Early Life & Career Origins

- Born in 1876, Chipping Campden, Gloucestershire, UK

- Apprenticed at a local nursery → later worked at “Birmingham Botanical Gardens”

- Continued training and education at “Royal Botanic Gardens, Kew”

- In 1899, selected by “Veitch Nurseries” to become a plant hunter in China

Publications & Legacy

- Authored “A Naturalist in Western China” (1913), “China: Mother of Gardens” (1929)

- Credited with over “1,500 plant introductions” from China and Taiwan

- More than 200 species named after him (e.g., Magnolia wilsonii)

- Earned the title “Chinese” Wilson for his botanical achievements

Kew Gardens’ Role

- Kew was Wilson’s training ground and botanical foundation

- Later supported documentation and cultivation of his collected species

- Many of Wilson’s discoveries still grow in Kew today, symbolizing a living link between Chinese flora and British horticultural history

Cultural & Scientific Impact

- Viewed China as the “Mother of Gardens”, emphasizing its unmatched contribution to global horticulture

- Helped shift Western understanding of East Asian plant species from curiosity to cultural appreciation

- Set the stage for “plant diplomacy” — using horticulture as a medium of cultural exchange

Figure 2.06 Ernest Henry Wilson
Figure 2.08 China: Mother of Gardens
Figure 2.09 ‘Chinese’ Wilson: Life of Ernest H.Wilson, 18761930 (Great Plant Collectors)
Figure 2.07 Ernest Henry Wilson black plaque

2.6 E.H. Wilson’s Plant Expeditions

China & Taiwan Botanical Journeys

First trip to China: Looking for The Dove Tree (Davidia involucrata)

Commissioned by Veitch Nurseries to find the elusive “Handkerchief Tree”

Faced illness, bandits, and a near-death river accident

Successfully found and shipped seeds back to England; tree introduced to Kew and many British gardens

Min River valley, Sichuan

Sustained a leg injury from a landslide, causing lifelong disability

Became one of the most beloved lilies in the West — “The Queen of Lilies”

Second trip to China: Meconopsis integrifolia

High-altitude meadows near Kangding, Sichuan

Described fields of giant yellow poppies “stretching for miles like a golden carpet”

Symbol of China’s alpine botanical richness

Japanese colonial period, with official government support

Visited Regions: Alishan, Basianshan, Taipingshan

Focus Species: Taiwan red cypress, Taiwania cryptomerioides

Declared Taiwan’s mountains as home to “the most beautiful forests in East Asia”

Post-Trip Writing (1922): Called Taiwan the “Jewel of the Orient”

Figure 2.10 Dove Tree (Davidia involucrata) (China Mother of Gardens by Ernest H. Wilson)
Figure 2.13 Taiwan red cypress
Figure 2.11 Meconopsis integrifolia (Yellow Poppy)
Taiwan Expedition
Regal Lily (Lilium regale)
Figure 2.12 Regal Lily (Lilium regale) (China Mother of Gardens by Ernest H. Wilson)

2.6 E.H. Wilson’s Plant Expeditions

How Did Wilson Reshape British Landscapes and Horticultural Aesthetics?

Chinese Plants in Kew Gardens

According to the on-site plant map, many native Chinese plants can be found in Kew today, including:

Dawn Redwood Ginkgo Biloba Rhododendron, Azalea Camellia

Bamboo Magnolia Mulberry My Site: Berberis Bamboo Sweetgum Peony

Taiwan Red Cypress Plum Bossom

Plants as Cultural Diplomacy

- Plants serve as “non-verbal carriers of cultural values and aesthetics”

- They reflect taste, symbolism, and poetic associations embedded in Chinese tradition

- This built a quiet yet powerful “cross-cultural bridge between China and Britain”

- In landscape design, such plants become “subtle cultural storytellers”

Chinese Influence in British Garden Exhibitions My Project Response

- The “Flower Show” showcases many Chineseorigin plants annually

- Wilson’s introductions have become “highlight features in exhibition gardens”

- His legacy continues to attract interest from visitors and “British royalty” alike

- The plant selection and placement in my design directly references “Wilson’s botanical legacy”

- I incorporate these species through a lens of Feng Shui, Five Elements theory, and seasonal cycles

- In my work, plants are not just decoration

— they are mediums of cultural narrative and emotional connection

2.7 Chinese Plants in Kew: Botanical Mapping

Sweet Gum (Liquidambar formosana)

Overview of the Chinese Plant Cultural Route

Pink Line: Proposed “Chinese Cultural Plant Route”

Figure 2.14 Plant Map and Chinese Plant Route

Bamboo Forest → Education, meditation, rhythm

Peonies → Cultural richness, aesthetics Plum Blossom Grove → Winter beauty and perseverance

White Text on Black: General Plant Names

White Text on Red: Existing Kew Buildings

Pink Text on Black: Chinese-Origin or Culturally Significant Plants

White Text on Purple: “My Site (Design Area)”

Inspired by the botanical expeditions of Ernest Henry Wilson, this curated walking route connects existing Chinese flora within Kew Gardens to my design site. It weaves a narrative of “botanical symbolism”, “seasonal rhythm”, and “cultural interpretation” through landscape.

Bamboo Garden Dawn Redwood (Metasequoia) Umbrella Pine (Sciadopitys) Rhododendrons
Camellias Maple & Rhododendron Mulberry
Hydrangeas Roses Azaleas My Site
Berberis Dell Magnolias
Zelkova Taiwan red cypress Maidenhair Tree (Ginkgo)

3.1 Site Overview

About Kew Gardens:

- Founded in the 18th century, designated a UNESCO World Heritage Site in 2003

- Home to over 50,000 plant species; a global hub for botanical research and garden education

- Attracts over 2.5 million visitors annually

Chinese Cultural Elements:

- The Great Pagoda (built in 1762) as a Chinoiserie architectural symbol

- Many Chinese plants scattered across the gardens (bamboo, ginkgo, dawn redwood, peony, etc.)

- Historically reflected a European imagination of China rather than authentic representation

Current Site Condition:

- Flat terrain with sparse vegetation and open views

- Proximity to water features offers ecological context and aesthetic richness

Design Opportunities:

- The site aligns with the Great Pagoda along a visual axis, allowing for cultural dialogue

- Suitable for incorporating Feng Shui and Five Elements spatial logic

- High potential to extend the narrative of Chinese horticultural aesthetics in Kew

A

Contemporary Interpretation within a UNESCO World

Heritage

Landscape: Southeastern Corner of Kew Gardens

Project Site: Located in the southeastern corner of Kew Gardens

- Location: Richmond, London, UK

- Site Area: Approx. 15000 m²

- Position: Southeastern edge of Kew Gardens, adjacent to the Aquatic Garden, Bamboo Garden, and Pagoda Vista

Accessibility:

- 5–10 minute walk from Kew Gardens Underground Station

- Directly connected to major visitor circulation routes and entry flows

Figure 3.02 Me & Great Pagoda in Kew Gardens (2024 December 27)
Figure 3.01 My Site in Digimap
Figure 3.03 My Site in Digimap

3.1 Site Overview - “Plan”

Northern Hill

Serves as a spatial and symbolic terminus, offering topographical depth and seasonal character. Represents the “Backing Mountain” (靠山): a protective presence in Feng Shui; plum trees (Wood) harmonize with Water to signify winter resilience.

Northwest (Gift Shop, Exit)

Logical location at end of visitor routesupports closure and takeaway experiences. Associated with “Metal + Water”: reflects gratitude, cultural exchange, and transition.

West (Restaurant)

Warm afternoon sun supports dining and tactile exhibition

Matches “Metal”: symbolizes refinement, structure, and appreciation of craftsmanship.

Southwest (Library)

Quiet zone set apart from main paths - ideal for extended visits and study. Reflects “Fire + Metal”: transforms inspiration into structured knowledge and cultural preservation

Feng Shui Justification:

Why the Site Layout Follows True South - North Instead of Existing Pathways

Site Circulation Rationale:

Although Kew Gardens’ main pedestrian flow moves diagonally from southwest to northeast, this axis is slightly tilted and does not align with the cardinal compass directions. Aligning the building purely with this diagonal would prioritize flow but compromise the project’s symbolic and spatial clarity.

Northern zone offers emotional depth and stillness - Suited for cultural climax. Aligned with “Water”: governs emotion, stillness, and introspection- ideal for artistic climax.

Northeast (Public Toilets) North

Centrally placed for visitor convenience; located discreetly off main circulation. Combines “Wood + Water”: associated with release, purification, and hygienic balance.

Stable eastern daylight protects delicate artworks and enhances immersive cultural atmosphere. Linked to “Wood”: governs learning and intellectual expansion, suitable for artistic and contemplative spaces.

Southeast (Tea House, Pond, Bamboo Corridor, Pavilion) East

Maximum Light - Transparent Facade Perfect for quiet activities, garden experiences, and reflection. Corresponds to “Wood + Fire”: signifies cultural growth and inspiration; water features attract and circulate Qi.

South - Main Entrance – Facing Visitor Flow from Kew Path

Aligns with major pedestrian axis

Positioned along Kew’s main visitor route with strong visibility and sunlight — ideal for arrival and transition.

Associated with “Fire”: symbolizes welcome energy and dynamic flow. A south-facing entrance aligns with ideal Yang House principles.

In Feng Shui, orientation is fundamental. A true south-facing main entrance aligns with the ideal Yang House principle (陽 宅三要:門、主、灶), welcoming auspicious Qi and ensuring the building breathes harmoniously with cosmic forces. The True South orientation corresponds with the Fire element, representing vitality, vision, and visibility - essential for ceremonial entry and cultural activation.

Aligning the overall plan with the compass, not the garden’s flow, respects Heaven–Earth–Human harmony (天人合一) and Five Elements balance — the spiritual foundation of this architecture.

Center

High Daylight Exposure - Ideal for public entrance or open plaza

Acts as a circulation hub and gathering point with direct alignment to the Great Pagoda axis.

Represents “Earth”: the stabilizing core of the site, balancing energy from all directions.

Figure 3.05 Pagoda in Kew Gardens (2024 December 27)
Figure 3.07 Pavilion Bar and Grill in Kew Gardens (2024 December 27)
Figure 3.06 Japanese Landscape in Kew Gardens (2024 December 27)
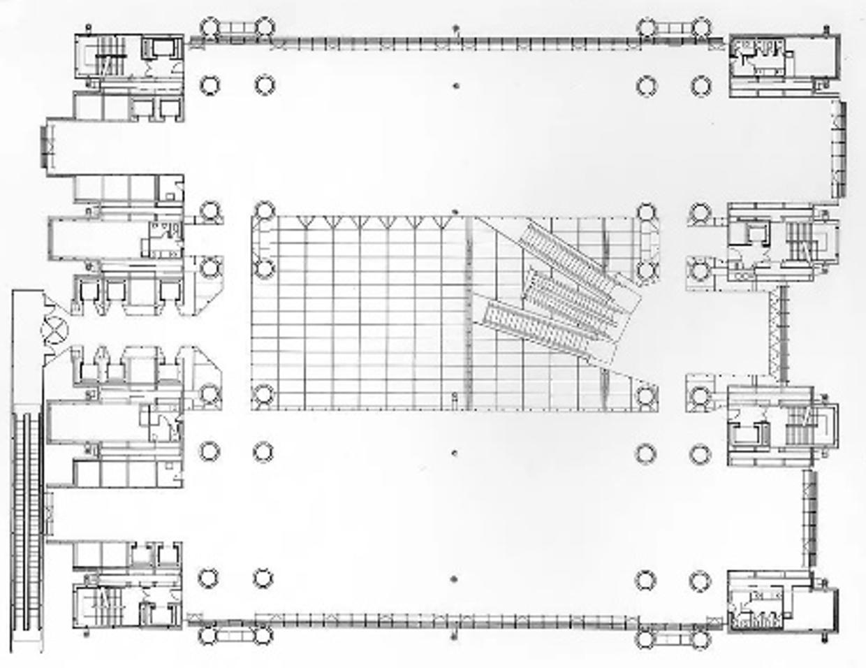
Figure 3.04 Site Diagram – Sun Path, Circulation, and Feng Shui Mapping (Created by Cheng-Yun Chang, 2025 May 18)

Princess Augusta founded the original Royal Botanic Garden, covering nine acres within the royal estate

King George III merged the Kew and Richmond estates, expanding the garden’s footprint

Kew evolved into a global center for plant conservation and scientific exchange, collaborating with over 100 countries

Designated a “UNESCO World Heritage Site”, recognizing its contributions to science, education, and culture

Expanded its role in public learning, exhibitions, and intercultural engagement

The “Great Pagoda”, designed by William Chambers, was completed — a symbol of 18th-century Europe’s romanticized view of Chinese architecture (Chinoiserie)

Kew became a national botanical garden and opened to the public, promoting education and horticultural outreach

The iconic “Palm House” was completed, showcasing tropical plant species in an innovative glasshouse

Public Access and Scientific Mission in the 19th–20th Century

Kew Gardens: A Site of Botanical Science and Cultural Layers for Over 265 Years

Design is not only about shaping the present — it also responds to the past. Kew Gardens holds more than two and a half centuries of layered development, transforming from a royal estate into a global botanical center. It also reflects Britain’s long-standing fascination — and misinterpretation — of Chinese culture.

- My site, located along the extended “sightline from the Pagoda”, becomes a spatial platform for “dialogue and reinterpretation”

Suffragettes launched a protest at Kew, destroying the Tea Pavilion and damaging parts of the garden

- However, the pagoda remains a “Chinoiserie artifact” — visually Chinese but lacking authentic architectural or philosophical depth

The “Great Pagoda” was reopened after restoration, with 80 dragons reinstated to revive its 18th-century appearance

- Through the use of “genuine Chinese design principles”, Feng Shui, Five Elements theory, and botanical symbolism, the project seeks to create a new cultural encounter that bridges history and contemporary expression

Figure 3.09 The Tea Pavilion after being burnt down by suffragette party members - fireman hose the remaining shell of the building © RBG Kew
Figure 3.10 The Great Pagoda was designed by Sir William Chambers and completed in 1762.
Figure 3.08 Plan of the Royal Palace Gardens and Park at Richmond in 1754 © RBG Kew

3.3 Sun Path & Wind Analysis

“Sun and wind are the architecture’s original language; design is the act of listening to them.”

How do the sun path, prevailing winds, and microclimate shape both ecological and cultural design strategies for the site?

Sunlight Overview- Summer vs. Winter Solstice:

- Summer Solstice (June 21): High sun angle, long daylight hours, short shadows

→ Even light distribution enables vibrant outdoor events and immersive cultural experiences

- Winter Solstice (Dec 22): Low sun angle, long shadows, limited daylight

→ Design strategies must focus on southern orientation and lightmaximizing features

- Shadow Observation: Between 9:30–11:30 AM, the shadow of the Great Pagoda partially covers the site

→ This becomes a symbolic and functional opportunity — a “mountain” in Feng Shui, or a setting for reflective water features or contemplative pavilions

Wind & Microclimate Conditions:

- Prevailing winds come from the west and southwest, typical of the UK’s westerly wind belt

- Surrounded by trees and aquatic zones, the site benefits from natural wind buffering

- Moderate air flow prevents stagnation and supports a pleasant visitor environment

Bottom Left Branch: Natural Conditions & Five Elements Mapping:

- The site is north-facing to south, aligning with ideal Feng Shui orientation

- Sunlight + wind data can be aligned with Wu Xing (Five Elements) for symbolic and spatial logic

→ South (strong light) → Fire → Main entrance & tea pavilion

→ Southeast (humid, warm) → Wood → Bamboo grove, painting gallery

→ North (cool, shaded) → Water → Music hall, contemplation court

Summary: - Sunlight and wind are “not just environmental data”, but narrative tools for spatial storytelling

- The design embraces “site-specific observation and simulation”, crafting a response that is both sustainable and symbolic

Figure 3.11 Sun Path Analysis (Cheng-Yun Chang)

3.3 Sun Path & Wind Analysis

How can prevailing wind and surrounding vegetation be used to create a comfortable and sustainable microclimate?

“Wind is invisible, but never neutral — it carries stories, emotions, and the rhythm of space.”

Wind Direction & Velocity Characteristics:

- “Prevailing wind”: From the “west and southwest”, typical of the UK’s westerly wind belt

- “Moderate speed”, offering good airflow without discomfort

- Surrounded by tree belts and architectural edges → “natural wind buffering”

- Helps reduce humidity, prevent stagnation, and improve visitor comfort

Design Applications of Wind:

- Airflow & Circulation

→ Align main circulation axis with prevailing winds → creates passive ventilation corridors

→ Place openings on “southwest and northeast sides” to enhance cross-ventilation

- Functional Zoning

→ Pavilions and tea houses placed at wind corridor ends → enjoy ventilation without wind disturbance

→ Tree and plant massing buffer strong winds and maintain comfort

- Microclimate Zoning

→ South: sun + breeze

→ North: use wind-blocking design + thermal retention strategies

Feng Shui & Five Elements Integration:

- Wind plays a central role in Feng Shui as the carrier of Qi (energy):

→ Southwest wind = symbolic flow from “Metal to Fire” in Five Elements → vitality, wealth, popularity

→ Cultural zones like “tea house, reception, and gift shop” placed near wind entry points → encourage gathering and energy flow

Climate Comfort & Sustainability Strategy:

→ Passive ventilation reduces dependence on mechanical systems

→ Enhances “thermal comfort” and improves indoor-outdoor air quality

→ Stabilized microclimate supports plant health and visitor experience

Figure 3.12 Sun Path and Wind Analysis in SketchUp (Cheng-Yun Chang)

3.3 Sun Path & Wind Analysis

Summer Solstice Light Observation - June 21, 2024 (Kew Gardens Site Study)

8:00 AM:Sunrise from the Northeast-Morning Activation 12:00 PM:High Noon-Balanced and Bright

- Sun rises at a low angle from the northeast

- Eastern paths and entrances are illuminated early

- Long, crisp shadows form — ideal for morning energy and visual drama

Design Implications:

- Eastern entrance area can feature a tea pavilion or bamboo walkway to greet morning light

- Use of “wooden lattice” or “semi-transparent shading” to filter soft sunlight and create dynamic textures

- Sun is almost directly overhead; minimal shadows

- The entire site is evenly lit, with strong visibility of architectural and landscape elements

- Perfect for exhibitions, open-air programming, or central gathering spaces

Design Implications:

- Courtyard or central open space ideal for “calligraphy or painting exhibitions”

- Reflective surfaces (e.g. water or stone) can enhance spatial atmosphere and highlight “light and shadow poetry”

4:00 PM:Sunset from the Northwest-Warm Afternoon Glow

- Sun shifts to the northwest, casting gentle and warm light

- Shadows lengthen, creating a calm, atmospheric environment

- Ideal for meditative or contemplative spatial experiences

Design Implications:

- Western pathways may include “wisteria trellises, benches, or reflective pools”

- The soft afternoon light becomes a “natural backdrop for slow movement and quiet reflection”

Figure 3.13 Sun Path Analysis-Summer Solstice 8am (Cheng-Yun, Chang)
Figure 3.14 Sun Path Analysis-Summer Solstice 12pm (Cheng-Yun, Chang)
Figure 3.15 Sun Path Analysis-Summer Solstice 4pm (Cheng-Yun, Chang)

3.3 Sun Path & Wind Analysis

Winter Solstice Light Observation - December 22, 2024 (Kew Gardens Site Study)

8:00 AM:Sunrise from the Southeast-Subtle Beginnings 12:00 PM:Low-Angle Noon-Southern Focus 4:00 PM:Sunset from the Southwest-Quick Dimming

- The sun rises at a very low angle from the southeast

- Long, diffused shadows dominate the landscape

- Ideal for quiet programs such as meditation gardens, water features, or tea pavilions

Design Implications:

- Introduce “reflective water surfaces” or angled walls to enhance morning light

- Design curved paths in southeast corners to gently guide visitors through early light zones

- Even at midday, the sun remains low; shadows remain long and angled

- South-facing areas receive the most direct light and warmth

Design Implications:

- Concentrate main circulation and exhibition programs along the “southern zone”

- Use large “south-facing windows, glazed walls”, and thermal massing to absorb and retain heat

- The light becomes golden and soft, but fades quickly

- Shadows cover most of the site; supplemental lighting or reflective design becomes necessary

Design Implications:

- Create ambient lighting zones or use “uplighting in gardens” for seasonal evening programs

- Consider installations that use “light and shadow as poetic timemarkers” — seasonal sundials or winter projections

Figure 3.16 Sun Path Analysis-Winter Solstice 8am (Cheng-Yun, Chang)
Figure 3.17 Sun Path Analysis-Winter Solstice 12pm (Cheng-Yun, Chang)
Figure 3.18 Sun Path Analysis-Winter Solstice 4pm (Cheng-Yun, Chang)

3.4 Topography and Vegetation

“Topography forms the skeleton of space; vegetation sets its breathing rhythm.”

→ The stable terrain is ideal for organizing spatial typologies inspired by traditional Chinese courtyards and axial layouts

- Plant diversity allows alignment with Five Elements (Wu Xing) — e.g., bamboo corresponds to Wood (East)

- Plants are not merely decorative, but serve as cultural symbols and seasonal spatial cues, enriching the poetic experience of the landscape

Design Potentials & Future Strategy

Flat terrain with slight elevation differences

How do the site’s topography and vegetation contribute to spatial structure and cultural symbolism?

Topography Analysis

Vegetation Overview

→ The site’s elevation ranges approximately between “8–10 meters” above sea level

→ A gentle slope toward the south aids in “natural surface water drainage”

(Source: Ordnance Survey Map)

Drainage Characteristics

→ Although generally flat, the site requires a well-planned drainage system to prevent waterlogging, particularly in garden zones and circulation paths

→ Traditional Chinese landscape strategies such as permeable stone paving and sunken water-retention gardens may be integrated to combine function with aesthetic design

Figure 3.19 Royal Botanic Gardens, Kew topographic map, elevation, terrain. (2025 January 1)
Figure 3.21 Plant Map and Chinese Plant Route
Figure 3.20 Empty sided road leading to the Great Pagoda (2024 December 27)

3.5 Key Views and Sightlines

Figure 3.25 View from the site toward the south
Figure 3.23 View from the site toward the north
Figure 3.24 View from the site toward the east
Figure 3.26 View from the site toward the west
Figure 3.28 Temperate House in Kew Gardens
Figure 3.27 Nash Conservatory in Kew Gardens
Figure 3.29 Treetop Walkway in Kew Gardens
Figure 3.30 Me in Kew Gardens
Figure 3.22 Site Map

3.6 Site Constraints and Opportunities

“Constraints are expressions of respect; opportunities are bridges to cultural dialogue.”

How can complex site constraints be reinterpreted as catalysts for spatial innovation and cultural expression?

Physical Constraints

- Proximity to Historic Landmarks

→ The site is adjacent to the “Great Pagoda”, requiring architectural scale and massing to preserve visual hierarchy

- Compact Area with Defined Boundaries

→ The site spans approx. 15000 m², requiring efficient programming of both gallery and garden without overcrowding

Environmental Constraints

- Tree Preservation

→ Mature trees surround and frame the site. Construction must avoid root zones and canopy interference

- Seasonal Sensitivity

→ Significant changes in light quality and vegetation across seasons affect spatial atmosphere, thermal comfort, and user experience

Conservation & Planning Regulations

- UNESCO World Heritage Guidelines

→ All design must respect historical continuity and ecological balance, avoiding intrusion into protected view corridors

- Planning Approval Required

→ Any intervention must follow Kew Gardens’ and local authority regulations, particularly regarding form, materiality, and ecological sensitivity

3.7 SWOT Analysis

Strengths: Weaknesses:

Strong Cultural and Historical Context

- Proximity to the Great Pagoda (Chinoiserie symbol) opens a chance for architectural dialogue

- Existing cultural diversity on site supports multicultural interpretation

Flat Terrain and Stable Environment

- Gently sloped and flat terrain enables effective courtyard and path-based spatial planning

- Mature vegetation provides natural shade and microclimate regulation

High Visitor Potential

- Over 2.5 million annual visitors to Kew Gardens

- Site is located along “major pedestrian routes”, allowing easy access and extended visitor engagement

Ideal for Feng Shui and Five Elements Layout

- Open southeast exposure, northern “back support,” and full seasonal sunlight

- Site conditions allow clear implementation of directional, symbolic, and material Feng Shui logic

Opportunities:

New Model for Cross-Cultural Integration

- A chance to respond to 18th-century “Chinoiserie imagination” with a “contemporary Chinese architectural voice”

- Creates one of London’s few true public spaces dedicated to Chinese cultural heritage

Platform for Education and Exhibition

- Can host workshops, exhibitions, and interactive zones for calligraphy, painting, music, and horticulture

- Provides opportunities for art-based education and cultural appreciation

Showcase for Ecological and Passive Design

- Incorporates “green roofs, rainwater harvesting, native + Chinese flora”

- Seasonal Five Elements layout encourages climate-resilient, culturally expressive design

Limited Site Size (approx. 15000 m²)

- Requires compact yet efficient layout of gallery, garden, circulation, and rest areas

- Only low-rise construction is feasible — massing must remain subtle and respectful

Visual Pressure from Adjacent Landmarks

- Nearby landmarks like the Great Pagoda and Temperate House dominate the visual hierarchy

- New structures must maintain low profile, restrained materiality, and subtle integration

Strict Conservation Restrictions

- Located within a UNESCO World Heritage zone, subject to multiple layers of approval and ecological constraints

- Existing mature trees must be preserved, affecting structural layout flexibility

Threats:

Complex Administrative Approval Process

- Requires approval from Kew Gardens, local planning authority, and possibly UNESCO

- May result in longer design development and approval cycles

Climate Limitations on Outdoor Use

- Frequent rain and overcast skies may limit outdoor program use and reduce sunlight-based experience

- Requires “weather-adaptive strategies” for circulation, shelter, lighting, and drainage

Risk of Cultural Misinterpretation

- “Chinese architecture” may be misunderstood as decorative “Chinoiserie”

- Design must emphasize authenticity, contextual integrity, and contemporary reinterpretation

3.8 Environmental Conditions

Climate Conditions:

Temperate Oceanic Climate (Cfb)

→ Average annual temperature: approx. 11°C

→ Mild summers (18–24°C) and damp, cold winters (2–8°C)

→ Precipitation is evenly distributed, but low sunlight and high humidity in winter require careful planning

Design Implications

- Integrate rain shelters, wind buffers, and light-optimizing strategies

- Provide seasonally adaptive outdoor spaces to ensure year-round usability

Ample sunlight in summer

→ Southeast-facing zones are ideal for floral displays, tea pavilions, and public seating

→ North and northwest edges may require insulation and thermal buffering

Soil & Ground Conditions:

- Loamy-clay mixed soil (based on Kew’s soil map)

→ Good water retention and moderate permeability — ideal for traditional Chinese plants such as plum blossoms, peonies, and osmanthus

→ Suitable for permeable paving, rain gardens, and ecological water absorption

→ Ground stability supports lightweight construction, especially timber structures and low-rise pavilions

Vegetation & Ecological Layers:

Multi-layered planting structure

→ Upper canopy: mature trees (oak, ginkgo, redwood, cedar)

→ Mid-layer: bamboo, rhododendrons, azaleas, hydrangeas, wisteria, peonies

→ Lower layer: lawn, ground covers, aquatic plants (e.g., irises)

High biodiversity offers great potential for ecological education and immersive spatial experience

→ Seasonal walking routes aligned with blooming cycles and Five Elements logic

→ Pollinator support and bird habitats that enhance natural interaction

Hydrology & Water Management:

- Natural slope toward the south facilitates efficient surface drainage

- No significant natural water bodies on-site, but ample opportunity to introduce:

→ Artificial ponds, reflective pools, or recessed water catchments

→ Incorporation of Chinese garden principles such as layered stone ponds, moisture courtyards, and flowing water symbolism

3.9 Surrounding Context

→ Provides contrast to the proposed project’s more poetic and symbolic Chinese botanical expression

- Temperate House

- The Great Pagoda (1762)

→ Located just under 100 meters of the site

→ A symbolic expression of 18th-century British fascination with “Chinese style” — serving as the conceptual starting point for cultural reinterpretation

→ The site lies at the intersection of multiple visitor paths — linking the Pagoda, Temperate House, and Japanese Garden

→ Creates a natural opportunity to form a new spatial “pause point” and destination node

- Diverse Visitor Groups

- Convergence of Major Pedestrian Routes

Cultural & Architectural Landmarks Nearby

→ Positioned southwest of the site, this iconic Victorian glasshouse represents botanical colonial expansion and display of exotic flora

- Japanese Landscape Garden

How can the proposed design engage with Kew Gardens’ existing landmarks, landscape framework, and cultural context?

Circulation & User Patterns

- International tourists: drawn by history and cultural heritage

- Local families & schools: seeking interactive and educational experiences

- Researchers & design professionals: exploring horticulture and spatial narratives

→ Design must accommodate both quiet reflection and active engagement, offering multiple speeds of experience

→ Located to the northwest, showcasing Kew’s earlier efforts in cross-cultural garden design

→ Serves as a precedent for spatial contrast and cultural dialogue with the proposed Chinese-inspired garden

- Visual Axis & Spatial Symmetry

Design Response Strategies

- The entrance aligns subtly off-axis with the Great Pagoda, reflecting “Feng Shui principles” that avoid direct confrontation

- The central courtyard reinforces “northsouth orientation” and establishes symbolic continuity with nearby landmarks

- Scale & Material Transition

- Cultural Contrast & Integration

- The project forms a “cultural dialogue” with the Japanese Garden — allowing visitors to compare Eastern spatial traditions

- Low-rise architecture with “natural materials” (timber, stone, glazed surfaces) responds respectfully to surrounding built forms

- Garden circulation uses “winding paths, layered vegetation, and framed views” to express traditional Chinese poetic spatial logic

- Bridges the conceptual gap between the Temperate House (scientific collection) and the Chinese Garden (symbolic landscape)

“Where history meets landscape, a new architectural voice can resonate across time.”

Figure 3.32 Great Pagoda in Kew Gardens (2024 December 27)
Figure 3.33 Kew Gardens (Great white cherry (Prunus ‘Taihaku’) in the Japanese Landscape © RBG Kew)

4.1 Reinterpreting Chinese Architecture in Dialogue with London’s Past

This project is not a replication of traditional Chinese forms, but a contemporary architectural response to Britain’s historical imagination of “Chineseness” — creating a dialogue across time and culture.

Historical Context: Chinoiserie & the Imagined “China”

- In 18th-century Europe, understanding of China was largely based on second-hand materials (Jesuit letters, trade accounts)

- The Great Pagoda (1762) at Kew Gardens, designed by Sir William Chambers, exemplifies the Chinoiserie movement — a European fantasy of Chinese aesthetics

- Yet, it lacks authentic Chinese spatial logic, cosmology, and philosophical intent

- This project seeks to reinterpret “Chineseness” from within, using Chinese architectural theory to respond to Western historical imagination

Contemporary Interpretation: Not “Imitation,” but “Cultural Regeneration”

Inspired by leading contemporary Chinese architects:

- Wang Shu: “Extracting Chineseness from memory, craft, and context”

- Liu Jiakun: “Architecture as a vessel of cultural memory, where history and nature speak together”

The design avoids superficial forms (roofs, ornaments) and instead emphasizes:

- Spatial Narrative: courtyards, winding paths, layered framing

- Feng Shui Logics: spatial arrangement shaped by direction, energy, and flow

- Botanical Symbolism: flower and tree species embedded with meaning and seasonal rhythm

- Material Expression: natural materials (wood, stone, bamboo, rammed earth) reinterpreted through modern detailing

From “Fantasy China” to “Contemporary China”

Period: Expression Style: Representation of Chineseness:

18th Century Chinoiserie

21st Century Proposal

Exotic spectacle, symmetrical tower Decorative symbols, disconnected from context

Poetic logic, cultural narrative, spatial flow

Rooted in ontology — a space for dwelling, reflection, and journeying

“This is not just a cultural response — it is a dialogue between time and space, expressed through architecture.”

4.2 From Chinoiserie to Authenticity

“The Chinese Style” in European Eyes – From Trade to Imagination

Early European Encounters with Chinese Architecture

- Initial knowledge of Chinese buildings came through “missionary accounts”, “travel journals”, and “trade interactions” (e.g., the British East India Company)

- Most Europeans had never been to China — their understanding was filtered through “secondhand interpretations” and “visual approximations”

From Culture to Ornament: The Birth of Chinoiserie

- What Europeans perceived as “Chinese architecture” was reduced to symbolic decoration and visual spectacle

- Elements such as pagoda roofs, dragon motifs, and curved eaves became detached from their cultural and spatial logic

- Chinoiserie reflected a growing appetite for the exotic, shaped by: → Colonial imagination , Aristocratic fantasy , Desire for visual novelty

(https://www.worldhistory.org/uploads/images/146.png?v=1739156164-1738836844)

“Chinoiserie was not a mirror of Chinese culture, but a visual construction shaped by colonial-era imagination and aesthetic desire.”

Figure 4.01 Silk Road
Figure 4.02 Silk Road Transport Ship
Figure 4.03 On The Silk Road
Figure 4.04 Chinese Wallpaper
Figure 4.05 Imported Chinese porcelain
Figure 4.06 Chinese House at Stowe House Chinoiserie Case
Figure 4.07 Johan Nieuhof’s painting of the Porcelain Tower of Nanjing, 1665.

4.2 From Chinoiserie to Authenticity

Chinesischer Turm – Munich’s English Garden

The Chinesischer Turm (Chinese Tower) is a prime example of 18th-century European Chinoiserie architecture, reflecting the fascination with Chinese design in Europe. Located in Munich’s English Garden, it stands as one of the most well-known Chinese-inspired structures from this period.

Historical Background

Construction Period: 1789 – 1790

Inauguration: 1792, when the English Garden opened to the public

Height: 25 meters

Architectural Influence: Inspired by Chinese pagodas seen in illustrations and descriptions from European travelers

Purpose: Originally built as a scenic viewing tower for visitors to the park

Architectural Characteristics

Material: Wooden structure with multiple tiers

Levels: Five stories with octagonal tiers, similar to traditional Chinese pagodas

Design: The structure follows European interpretations of Chinese architecture, incorporating curved eaves and layered roofs

Comparison to Traditional Chinese Pagodas: While the tower takes inspiration from Chinese design, its proportions and materials do not strictly adhere to authentic Chinese pagoda construction methods

Chinoiserie Influence and Cultural Significance

Represents Europe’s fascination with Chinese aesthetics during the late 18th century A prime example of Chinoiserie—a European artistic movement that imitated Chinese styles

Social Hub: Today, the area surrounding the tower is home to Munich’s largest beer garden, where visitors gather to enjoy traditional Bavarian culture

Music Tradition: Since the 19th century, Bavarian folk music bands have played from the tower’s upper levels

Connection to Other 18th-Century Chinoiserie Architecture

The Chinesischer Turm was part of a wider European trend that integrated Chinese-inspired architecture into garden designs

Figure 4.08 Chinesischer Turm – Munich’s English Garden

4.2 From Chinoiserie to Authenticity

The Brighton Pavilion, also known as the Royal Pavilion, is one of the most extravagant examples of Chinoiserie architecture in Britain. Originally built as a modest villa in the late 18th century, it underwent a three-decade-long transformation and was completed in 1823 under King George IV. Designed to be a royal pleasure palace, it became a place of lavish parties, concerts, and banquets set against elaborate Chinoiserie-inspired interiors.

The Role of Chinoiserie in British Culture

Chinoiserie was a cross-cultural phenomenon that emerged as part of Europe’s fascination with the exotic.

Construction Period: Late 18th century, transformed until 1823

Commissioned by: King George IV (then Prince Regent)

Architects & Designers: Interior designers Frederick Crace and Robert Jones

Purpose: A royal retreat for entertainment and social gatherings

Architectural & Interior Design Features

Exterior Influence

The exterior of Brighton Pavilion is more Indo-Saracenic than Chinese, resembling Mughal palaces in India rather than traditional Chinese architecture.

The domes and minarets show a fusion of exotic styles, reflecting Britain’s colonial interests in Asia. Chinoiserie Interior Design

The interiors of the Pavilion are among the most elaborate examples of Chinoiserie decoration in Britain. Frederick Crace and Robert Jones created an exotic fantasy world inspired by Chinese and East Asian motifs. The Music Room and Banqueting Room feature ornate dragon chandeliers, lacquered furniture, gilded murals, and imported Chinese wallpapers.

The 17th-century maritime expansion allowed rare goods such as silk, porcelain, and lacquerware from China to enter European markets, sparking an intense interest in Chinese aesthetics.

Due to the high cost of genuine Chinese goods, European craftsmen began creating their own versions of Chinese-inspired decorative arts, which often lacked authenticity but fulfilled the demand for exotic luxury.

The English East India Company’s expansion of trade with China in the 18th century further popularized Chinoiserie in Britain.

Chinese Influence and Colonial Power Dynamics

The Brighton Pavilion’s interior raises questions about the representation of Chinese culture in a European context.

George III’s diplomatic mission to China (1793), led by Lord Macartney, aimed to establish trade privileges with the Qing Empire. Though unsuccessful, the mission provided intelligence on Chinese culture.

The illustrator William Alexander, who was part of the mission, created visual representations of China based on second-hand information, which later influenced Frederick Crace’s design choices for the Pavilion.

The Pavilion’s use of Chinese motifs was not an accurate representation of Chinese culture but rather a colonial fantasy constructed from European imagination.

The Pavilion’s Place in the Broader Chinoiserie Movement

Brighton Pavilion – The Chinoiserie Fantasy of the Royal Palace
Historical Background
Chinoiserie Fantasy of the Royal Palace-Interior Design
Figure 4.09 Brighton Pavilion – The Chinoiserie Fantasy of the Royal Palace

4.2 From Chinoiserie to Authenticity

Chinese House at Stowe House

Location: Stowe, Buckinghamshire, England

Construction Period: 1738–1750

Architectural History:

The Chinese House at Stowe House is one of the earliest examples of chinoiserie architecture in England. Constructed between 1738 and 1750, it reflects the 18th-century European fascination with Chinese art and design. Originally built as a garden pavilion, it served as a decorative focal point within the landscape gardens of Stowe.

Design Features:

- Structure and Materials: The pavilion is a timber-framed structure, characterized by its lightness and intricate detailing. The use of wood allowed for elaborate carvings and ornamentation, typical of chinoiserie design.

- Decorative Elements: The exterior is adorned with painted panels depicting Chinese scenes, including landscapes, flora, and fauna. The roof features upturned eaves, reminiscent of traditional Chinese architecture.

- Color Scheme: A vibrant palette of reds, greens, and golds enhances the exotic appeal of the pavilion, aligning with the European interpretation of Chinese aesthetics.

Chinoiserie Style Analysis:

The Chinese House embodies the essence of chinoiserie, blending European architectural forms with Chinese decorative motifs. This fusion resulted in a romanticized version of Chinese culture, tailored to European tastes. The pavilion’s ornamental features, such as the painted panels and roof design, showcase the Western fascination with the Orient during the 18th century.

Cultural Influence:

The incorporation of the Chinese House into the gardens of Stowe reflects the period’s colonial and trade relationships between Europe and Asia. It symbolizes the desire to display wealth and worldliness through the adoption of exotic styles. Such structures also indicate an early appreciation and curiosity about Chinese art and culture, albeit through a European lens.

Note: While the original Chinese House no longer exists, a replica has been constructed to preserve the historical significance of this example of chinoiserie architecture.

Figure 4.13 Chinese House at Stowe House
Figure 4.14 Chinese House at Stowe House History Sketch

4.2 From Chinoiserie to Authenticity

- Applying traditional garden strategies such as “sequential scenery,” “winding paths,” and “borrowed views”

- Rejecting symmetrical Western monumentality → Creating dynamic spatial storytelling

- Space is not only for visual consumption, but for walking, dwelling, and reflecting

- Combining timber, stone, bamboo, and glass to balance natural and modern sensibilities

- Detailing inspired by traditional mortise-and-tenon joints, translated through modern techniques

- Creating tactile culture, not just visual representation

Spatial Logic Rooted in Culture

“I do not design a fictional Chinese building — I construct a spatial narrative that revives cultural authenticity.”

Materiality and Contemporary Construction

My Design ResponseFrom Decorative Fantasy to Architectural Authenticity

The goal is not to imitate “Chinesestyle” decoration, but to return to the spiritual core of Chinese architecture — reconstructing cultural authenticity through contemporary expression.

Cultural Elements as Spatial Generators

- Using Five Elements orientation, Feng Shui energy, and seasonal plants as design logic

- These are not surface symbols, but starting points for spatial generation

- Teahouses, plum groves, bamboo corridors → Serve as archetypes of Eastern cultural places

Design

Positioning and Cultural Dialogue

- The dialogue is not with history itself, but with misinterpretations of history

- Architecture does not recreate China, but rebuilds a spatial perception of culture

- A direct response to Chinoiserie icons like the Great Pagoda at Kew, seeking a new cultural balance

Four Major Dynasties in Traditional Chinese Architecture

Ancient Chinese Architecture –

Four Major Developmental Dynasties

Color Scheme

The primary architectural colors were red and black, giving buildings a solemn and austere appearance.

Use of “Que(闕)” Structures

One of the most distinctive features of Han architecture was the use of “que”—ceremonial gate towers—at the entrances of significant buildings such as palaces, gardens, and tombs. These towers had a symbolic function, representing imperial power and dignity. A “闕que” typically consisted of three parts: the roof (闕檐), the body (闕身), and the base (闕基).

As a period of great prosperity in Chinese history, the Han Dynasty laid the foundation for classical Chinese architectural traditions. Representative architectural works include the city of Chang’an, Weiyang Palace, Jianzhang Palace, and the imperial Shanglin Garden.

The Tang Dynasty represents the golden age of traditional Chinese architecture and cultural development. During this period, building techniques and forms experienced remarkable advancements.

Chiwen (Decorative Roof Ridge Ornaments)

One of the most iconic elements of Tang architecture is the “chiwen”—mythical fish or bird-like ornaments placed at both ends of the main roof ridge. Typically simplified and rugged in form, they symbolized protection against fire and lightning while serving decorative purposes. Though they first appeared during the Han Dynasty, the design became standardized and widely adopted during the Tang period, especially in palaces and temples.

Roof Design and Bracketing System:

The eaves of Tang buildings featured slightly curved slopes—more curved than Han structures but gentler than those of the Ming and Qing periods. The “dougong” (bracket system) was more prominent, supporting wide overhanging eaves. These expansive and elegant rooflines can still be observed in contemporary Neo-Tang architecture, such as the modern Xi’an North Railway Station.

Elevated Platforms

Roofs were generally low in height with gentle, straight slopes. The ridgelines were predominantly straight, with minimal upturned eaves or curved forms, emphasizing simplicity and structural clarity.

Roof and Ridge Design

Han architecture prominently features large raised platforms, known as “台基“, constructed using rammed earth and stone. These bases were often decorated with patterned bricks. In the early Western Han period, these platforms could reach heights of several dozen meters, creating an overwhelming sense of grandeur as one approached the buildings.

Han Dynasty : Grand and majestic in scale.

4 key periods in the development of ancient Chinese architecture.

Tang Dynasty : Monumental and expansive in size.

Structure and Columns:

The overall structure was straightforward and unadorned. Columns were robust, typically designed with a tapering profile—thicker at the base and thinner at the top. Column bases often featured lotus motifs or low plinths.

Window Design:

Windows in the Tang era were generally non-operable and designed with vertical wooden slats arranged in a grid pattern. These slats had square cross-sections, forming fixed lattice-like panels that balanced aesthetics and function.

Figure 4.15
Figure 4.16
Figure 4.17

4.3 Four Major Dynasties in Traditional Chinese Architecture

The Emergence of Yingzao Fashi: Roof Design

Song roofs featured slightly upturned corners and softer, more elegant eave lines compared to earlier dynasties. Increased attention was given to daylighting and decoration. Lattice doors and windows, along with decorative patterns such as coin motifs and ball ornaments, were widely used to enhance both functionality and beauty.

The Song Dynasty marked a transformative period in Chinese architectural history. Unlike the grand and imposing structures of the Tang Dynasty, Song architecture embraced a more delicate and refined aesthetic while simultaneously becoming more systematized and standardized.

Song Dynasty : Intricate and refined in craftsmanship.

4 key periods in the development of ancient Chinese architecture.

Ming Dynasty : Stylistically mature and well-developed.

Ming Dynasty architecture inherited the structural principles of the “Yingzao Fashi” from the Song period and laid the foundation for the Qing Dynasty’s *Gongcheng Zuofa* (“Construction Practices”), compiled during the reign of Emperor Yongzheng. The Ming era witnessed a formalization of architectural systems alongside significant advancements in materials and decorative language.

Architectural Evolution and Urban Planning:

- Stylistic Shifts Over Time:

- Early Ming: Simple and rustic

- Middle Ming: Precise and restrained

- Late Ming: Ornate and extravagant

- Urban Planning:

Exemplified by the grand plan of Beijing, urban design in the Ming period was characterized by large-scale, symmetrical layouts that projected imperial authority and spatial order.

“Yingzao Fashi” (“Treatise on Architectural Methods”), compiled by Li Jie in 1103 during the reign of Emperor Huizong, is the most comprehensive architectural manual in ancient China. Its creation responded to rampant construction activities fueled by a booming commercial economy—and the corruption that accompanied them. The treatise aimed to curb embezzlement and enforce consistent building standards across the empire, marking a major advancement in construction professionalism.

Encircling Verandas (Fu Jie Zhou Zha)

A hallmark of Song architecture, “fu jie zhou zha” refers to the addition of peripheral verandas surrounding the main building. This technique, first recorded in “Yingzao Fashi”, created a semi-open transitional zone—similar to what we now call “grey space”—and was typically used in significant structures such as halls, pavilions, and pagodas. Notable examples include the Sacred Mother Hall at Jinci Temple in Taiyuan and the Wooden Pagoda of Ying County.

Bridge Construction:

The Song Dynasty was a golden age for bridge engineering, achieving unprecedented levels of length, complexity, and technical sophistication.

Bracket Sets (Dougong):

As brick walls became more common, eaves became shorter, and the structural role of “dougong” diminished. However, these brackets remained in use, becoming more elaborate and decorative to convey a sense of grandeur.

Unlike earlier periods dominated by rammed earth walls, the Ming Dynasty fully adopted brick construction. Bricks were extensively used for paving, platforms, and foundational structures.

Column Reduction Method (Jian Zhu Fa)

To improve lighting and spatial openness, Song architects developed the “column reduction method”, strategically removing columns to allow more light into interior spaces and expand usability.

Rising Corner Columns:

One of the most iconic structural innovations of the Song period, “rising corner columns” involved progressively increasing the height of outer corner columns relative to the central ones. This technique created a graceful upward curve along the eaves, a defining visual element of Song architecture.

Architectural Ornamentation:

Decorative details became more elaborate, with colorful paintings and finely carved motifs. Unlike earlier dynasties that used fabrics for interior spatial divisions, the Song favored wooden screens and partitions, providing both elegance and durability.

Roofs and Glazed Tiles:

Historical Importance and Representative Works:

Tang architecture marks a high point in ancient Chinese architectural sophistication and cultural symbolism. Notable examples include the ancient city of Chang’an, the Giant Wild Goose Pagoda, the Small Wild Goose Pagoda, Nanchan Temple, and Foguang Temple.

The widespread use of glazed roof tiles (made from refined white clay, water-resistant and durable) became a hallmark of Ming architecture. Yellow glazed tiles, considered the highest grade, were reserved for imperial buildings such as pagodas, gates, and screen walls.

Decorative and Interior Design:

- Palatial Decorative Systems:

A hierarchical system of decorative painting was established. The “Xuanzi” style (玄子彩畫), also known as the “centipede motif”, featured swirling floral patterns within decorative medallions, and became a visual signature of Ming architecture.

- Interior Color Palette: Warm tones—particularly vermilion—dominated interior spaces. Shaded areas were balanced using cool colors like green and blue to create visual contrast.

Innovations in Building Materials:

Material development played a central role in Ming architectural progress:

1. Refined Brickwork: Bricks were planed for smoother surfaces, improving both functionality and appearance.

2. Glazed Tiles and Bricks: These provided enhanced durability and a broader range of vibrant colors.

3. Lime Plaster: A cost-effective and widely available material, lime was used for masonry, bonding, and wall finishing, especially in vernacular architecture.

4. Sanhetu (Traditional Mortar): Lacking modern cement, Ming builders employed *sanhetu*—a composite material made from lime, sand, and glutinous rice paste—as an adhesive, greatly improving structural integrity.

Brick Walls:
Figure 4.18
Figure 4.19

4.4 Contemporary Chinese Architects

Wang Shu: A Poet of Architecture Who Weaves Time and Tradition

Basic Background :

Year of Birth: 1963

Birthplace: Ürümqi, Xinjiang; raised in Hangzhou

Education: Graduated from the Department of Architecture, Nanjing Institute of Technology (1985)

Professional Roles: Architect, educator (Co-founder of the Architecture School at China Academy of Art)

Major Achievements :

- Awarded the “Pritzker Architecture Prize” in 2012 (the first Chinese recipient)

- Recognized for his ability to “creatively reinterpret history, modernity, and regional identity”

- Known for “not sketching designs”, but instead collaborating directly with craftsmen on-site → “Architecture as poetic practice”

Architectural Philosophy :

- Opposes blind imitation of Western modernism → Advocates starting from “traditional craftsmanship, materials, and local culture”

- Emphasizes architecture’s “temporality” and “handcrafted traces”, often using reclaimed bricks and tiles

- Believes architecture should serve as a “mediator” between people, nature, and history — not a force of opposition

Notable Quote

:

“I am not creating traditional architecture, nor modern architecture. I am building contemporary Chinese architecture.”

Figure 4.20 Wang Shu
Figure 4.21 Wang Shu, Pritzker Prize winner

4.4 Contemporary Chinese Architects

Key Work 1: Ningbo Museum (2008) :

Key Work 2: Xiangshan Campus, China Academy of Art (2004–2007) :

Theoretical Contribution : Reconstructing Historic Cities & Anti-Modernist Manifesto Reference Works :

Key Perspectives :

- Opposes superficial “historic replication,” advocating for “historical construction within contemporary thinking”

- Emphasizes spatial memory, local craftsmanship, materiality, and ecological co-existence

- Authored the book “Building a House”, exploring the intertwined relationship between architecture, land, history, and culture

Key Work 1: Ningbo Museum (2008)

Project Highlights :

- The building’s façade is constructed using “recycled bricks and tiles” sourced from demolished local houses

- Acts as a “collage of time,” turning the architecture into a vessel of memory

- Though monumental in scale, it maintains a human-scale intimacy through its detailing, embedding history into contemporary urban life

Interpretive Focus :

→ Traditional materials + contemporary language + regional memory = a spatial reconstruction of “cultural authenticity”

Key Work 2: Xiangshan Campus, China Academy of Art (2004–2007)

Project Highlights :

- Integrates “landscape imagery” into the layout, inspired by traditional Chinese literati paintings

- Features handcrafted bamboo structures and tiled walls, realized in collaboration with local artisans

- The architectural–landscape fusion enhances the “Genius Loci” (spirit of the place)

Interpretive Focus :

→ Architecture is not just form, but a rhythm of movement, a dialogue with nature, and an echo of culture

- Wang Shu, “Building a House”

Selected Quotes :

“Our culture is not lost — it is simply buried.”

“Becoming an architect with cultural self-awareness is what I desire most.”

Figure 4.26 Ningbo Museum Materials_©Pintrest.com
Figure 4.25 Wang Shu, Ningbo Museum, 2008 | China,
Figure
Figure 4.28 Wang Shu

4.4 Contemporary Chinese Architects

Liu Jiakun: A Builder of Poetic Spaces Rooted in Locality

Basic Background :

Year of Birth: 1956

Place of Birth: Chengdu, Sichuan, China

Education: Graduated from Chongqing Institute of Architecture and Engineering (now Chongqing University, Department of Architecture)

Professional Identity: Architect, curator, educator

Founder of: Jiakun Architects

Key Achievements :

- Awarded the 2025 Pritzker Architecture Prize, becoming the second Chinese architect to receive this honor

- Represented China at the Venice Architecture Biennale (2002, 2010)

- Works featured in major international journals such as “Architectural Review”, “Domus”, and “A+U”

- Internationally recognized for a design language that blends “humanistic care with poetic spatial expression”

- Widely regarded as one of the most representative practitioners of contemporary Chinese architectural identity

Architectural Philosophy :

- Advocates “design from life”: architecture should respond to the deep connection between people and place

- Emphasizes “low-tech, high-emotion” strategies → valuing material texture and integration with nature

- Believes in spatial “emptiness, subtlety, and breathing rhythm”, crafting buildings with a sense of restraint and openness

- Actively engages in “post-disaster reconstruction and rural intervention”, shaping architecture as social practice

Key Quotation :

“The future of Chinese architecture lies not in form, but in the reconstruction of inner cultural consciousness.”

Figure 4.29 Liu Jiakun
Figure 4.30 Liu Jiakun, 2025 Pritzker Prize winner

4.4 Contemporary Chinese Architects

Key Project 1: Wenli · Songyang

Three

Temples Cultural Center (2016) :

Key Project 1: Wenli · Songyang Three Temples Cultural Center (2016)

Project Highlights :

- Located in Wenli Village, Songyang County, Zhejiang; integrates the restoration of three Ming and Qing dynasty temples with newly constructed cultural spaces

- Respectfully preserves the religious heritage while introducing modern functions such as a stage, exhibition hall, and meeting spaces

- Materials include “wood, rammed earth, and stone”, evoking a timeless dialogue between old and new

Interpretation Focus: :

→ “Restoring the old is not just preservation, but a revival of community vitality.”

Key Project 2: Lanzi Pavilion, Egret Bay Eco-Wetland, Sichuan (2013) :

Key Project 2: Lanzi Pavilion, Egret Bay Eco-Wetland, Sichuan (2013)

Project Highlights :

- Located in the Egret Bay Wetland in Chengdu, functioning as a contemplative pavilion and resting space

- Built primarily with exposed concrete and wood; the design is minimal yet deeply poetic

- Uses “framing perspectives and mirrored reflections” to enhance visual and emotional engagement with nature

Interpretation Focus: :

→ “Architecture steps back, allowing nature to step in” — integration rather than domination of nature

Key Project 3: West Village Base, Chengdu (2017–) :

Theoretical Contributions: Rural Regeneration & Poetic Architecture

Core Ideas :

- Architecture should “emerge from real life”, not from abstract design fantasies

- Advocates a design approach rooted in “social engagement, rural revitalization”, and everyday poetics

- Opposes the superficial use of cultural symbols—calls for “spatial subtlety and temporality”

Key Readings & Interviews :

- From Temples to Village Houses: Reframing Architecture’s Relationship with the Countryside

- Building from Memory

- Interviews: UED, Youfang, TEDx Chengdu – “The Value of Emptiness”

Key Project 3: West Village Base, Chengdu (2017–)

Project Highlights :

- Adaptive reuse of a former state-owned factory into a multifunctional creative complex including retail, exhibitions, restaurants, theater, and public areas

- Juxtaposes preserved industrial structures with contemporary additions, layering “architectural time”

- Creates an urban microcosm where people can dwell, stroll, and connect

Interpretation Focus: :

→ Urban renewal is not just spatial transformation, but the reweaving of social memory

Figure 4.31 Wenli Songyang Three Temples Cultural Exchange Center, Lishui, China, 2020 © Arch-Exist
Figure 4.32
Bailuwan Ecological Wetland Lancui Pavilion, Sichuan, China, 2013 © ArchExist
Figure 4.33 Xicun Courtyard, Sichuan, China, 2015 © Arch-Exist

4.5 Integrating My Dissertation Research

Feng Shui Theory in Chinese Architecture from the Perspective of Environmental Psychology and Sustainable Practice

Interpretation of Chinese architectural feng shui theory from environmental psychology and application of Urban Horticulture in practice

Introduction:

Feng Shui has a very long history in China, the emperors, nobles, and common people attach great importance to Feng Shui in their lives. Emperors and nobles strictly followed the Feng Shui theory in their lifetime from the construction of palaces and noble residences to the tombs after death. The common people also strictly followed the Feng Shui theory in their home construction, spatial layout, and surrounding environment. Feng Shui is the Chinese philosophy of life and allows them to live within the laws of nature. They believe that following the Feng Shui theory is helpful for family harmony, career prosperity, good official luck, and national peace and security. Feng Shui is a philosophy that embodies environmental science and cosmic laws. Feng is the wind which refers to vitality and energy, while Shui is water which refers to flow and change. The study of Feng Shui in Western countries began in the late 19th century. Feng Shui theory faced resistance and opposition from scholars in various countries because it contradicted scientific concepts at that time and lacked scientific explanations and verification methods. Afterward, Joseph Needham researched the Feng Shui theory. In his book “Science and Civilisation in China,” he referred to Chinese Feng Shui theory as a “pseudo-science” and “landscape architecture of ancient China”. He does not believe that Feng Shui theory is scientific, but he believes that Feng Shui theory contains aesthetic elements (Needham and Ling, 1956). Needham believed the Chinese would struggle to accept the mechanical worldview underlying the European scientific revolution. Over time, Joseph Needham’s views on Feng Shui philosophy have been challenged. Feng Shui has existed and developed in non-scientific environments for centuries, and it is the default worldview in China and Southeast Asia (Matthews, 2019), and naturally has its significance and rationality. For over half a century since Joseph Needham, not only Chinese and Southeast Asian scholars but also Western scholars have begun to study Feng Shui theory from a scientific perspective.

At present, architects have adopted Feng Shui theory in architecture and interior design (Cho, 2024). Designers use Feng Shui theory in home design and overall life to create balanced and flowing spaces, using arranged pieces in living spaces to maintain balance with the natural world and establish harmony between individuals and the environment. They use clear and clean windows to allow more sunlight to enter the interior, making the space appear more spacious, vibrant, and energetic. Sunlight can also vividly render all the colors and objects that residents see. Then designers plant green plants and fill the room with the life energy brought by plants. Green and vibrant plants are one of the key elements in home feng shui (Cho & Khare, 2024).

Modern neuroscience’s development has provided new insights into how architecture affects human psychology and behaviour (Robinson & Pallasmaa, 2015). In the process of continuous development, humans constantly explore, understand, and reflect on the environment, and then this knowledge forms the theory of environmental psychology. Psychologists divide the processing and evaluation of environmental perception information by humans into the domain of environmental cognitive level, and the adaptive response to environmental cognitive information into the domain of emotional level. Humans will respond to the built environment cognitively and emotionally. (Higuera-Trujillo et al. 2021). According to research in environmental psychology, environmental noise causes human stress (Glass & Singer, 1972), and stress related to the built environment can even damage life expectancy (Glaser & Kiecolt-Glaser, 2005). There is evidence to suggest that green coverage near home can alleviate the adverse effects of perceived stress on sleep quality (Yang et al. 2020).

By chance, I touch on the concept of “Lu Chong (Road Conflict)” in Feng Shui. “Lu Chong” refers to the direct frontal or sloping direction of a road towards the main entrance of a building (as shown in Figures 1a and b), which is said to direct strong destructive energy onto the building, affecting the comfort and mental health of residents The solution in Feng Shui is to place a “Shi Gandang (large stone)” between buildings and roads. If the buffer zone is large enough, green vegetation can be planted around the “Shi Gandang” or a small pool can be built behind it. In the pool, the fish can be raised and some aquatic plants can be placed.

Figure 4.34 The direct frontal “Lu Chong”

Figure 4.35 The direct frontal “Lu Chong”

These concepts and methods have sparked my thinking. When a building faces a “Lu Chong”, people living in the building will feel pressure, which comes from the noise of vehicles driving, the panic and anxiety caused by residents seeing cars rushing towards them, and a deep sense of insecurity, worrying about whether vehicles will lose control and crash into the building. In the solution of Feng Shui theory, the “Shi Gandang” forms a safety buffer barrier between buildings and vehicles driving on the road, giving residents a sense of security. At least the “Shi Gandang (large stone)” blocks the out-of-control vehicles first, and then blocks the residents’ line of sight such that residents will not directly look at vehicles coming towards them on the road, reducing anxiety. The small pool forms a second layer of safety barrier, even if an out-of-control vehicle rushes over the “Shi Gandang”, it will still get stuck in the small pool. Green vegetation around “Shi Gandang” and aquatic plants in small pools can soothe residents’ moods and reduce stress. At the same time, green vegetation can help drivers restore their tired vision and clearly distinguish roads and buildings based on green vegetation. These seem to be explained by the environmental psychology of architecture. Therefore, these concepts and methods gave me the idea of using environmental psychology to think and explain Feng Shui. The “Shi Gandang” to solve the problem of “Lu Chong” is a big stone, which can be replaced by a stone or a wall that has been demolished by other buildings. The construction of small pool should also use sustainable building materials, and green vegetation should be able to plant green vegetables or fruit trees. I believe that the concept of feng shui can be combined with the concept of sustainable building materials and urban gardens (urban farms) to achieve this. Therefore, this project will attempt to interpret China’s architectural Feng Shui theory from the perspective of environmental psychology and conduct practical design based on the concept of sustainable architecture.

5.1 Narrative Development

Exit Sequence & Closure Design

- The gift shop, donation zone, and costume return area are placed near the main exit (west side) → taking advantage of the emotional peak after the tour

- Gift shop offers curated items linked to the gallery experience: tea, poetry, plant symbolism

- Costume return at the end completes the immersion cycle, returning visitors to their daily identity

Entry Sequence (Welcoming Rhythm)

- The main entrance is located on the south, where sunlight is strongest → creates a welcoming and vibrant first impression.

- It faces the Great Pagoda, allowing visitors to immediately establish a visual and symbolic connection with Kew’s heritage.

- Features a reception area and costume rental (e.g., traditional Hanfu) → enhances immersive experience and ceremonial entry.

“The spatial journey begins with the body, unfolds through culture, and ends in memory and connection.”

Experience Rhythm & Spatial Sequence

- Early stage: Tea pavilion, water garden, bamboo corridor → sensory and emotional tuning

- Middle stage: Gallery rooms for calligraphy, painting, music, poetry → intellectual and artistic immersion

- Later stage: Library and reading space (in the southwest, separate from the main route) → offers extended learning for slow-paced visitors without disrupting the main loop

Counterclockwise Flow Design (South → East → North → West)

- A counterclockwise route contrasts with the usual clockwise instinct (right-hand dominant), slowing down the pace and encouraging contemplation.

- The route starts with the tea house and water garden, offering sensory immersion and slow entry into cultural narrative.

- Visitors then move into the main exhibition spaces, transitioning from body-focused experiences to intellectual engagement.

- Morning sunlight enters from the east (ideal for exhibitions), while afternoon shade falls on the western garden (perfect for quiet rest).

Figure 5.01

5.2 Understanding Key Visitor Groups

International Tourists

Characteristics & Needs:

- Visitors from around the world, including those curious about East Asian culture

- Prefer visual and immersive cultural experiences

- Often time-limited and drawn to photogenic or “Instagrammable” locations

Design Responses:

- Clear signage with multilingual options

- Dedicated “photo zones” and culturally rich backdrops

- Spatial narrative and circulation enhanced through symbolic visuals and storytelling

Cultural & Art Enthusiasts

Characteristics & Needs:

- Interested in deep cultural narratives and guided interpretation

- Appreciate fine details, historical backgrounds, and aesthetic depth

- Often study Chinese aesthetics, architecture, or art history

Design Responses:

- Exhibition design focused on detail, narrative layering, and materiality

- QR codes and in-depth interpretive tools for extended learning

- Host public talks, forums, or thematic tours

Families & Educational Groups

Characteristics & Needs:

- Parents with children, or school groups visiting for outdoor learning

- Seek a balance of educational value and playful discovery

- Prefer exploratory, hands-on environments

Design Responses:

- Include interactive workshops (e.g., calligraphy practice, botanical rubbing)

- Child-friendly paths and shaded resting areas (e.g., under pavilions or tea house corners)

- Provide educational booklets and teacher-friendly resources

Botanists & Horticultural Scholars

Characteristics & Needs:

- Often in collaboration with Kew, focusing on plant origin and cultural symbolism

- Read the space through ecology, seasonal cycles, and planting strategies

- Interested in scientific as well as cultural interpretation of landscape

Design Responses:

- Botanical labels include scientific names, Five Element correspondences, and symbolic meanings

- Exhibit plant migration history (e.g., Wilson’s expeditions and East-West botanical exchanges)

- Seasonal tours and lectures on Chinese horticultural philosophy and phenology

5.3 Spatial Programming and Symbolism

“A meaningful cultural journey begins with the rhythm of the very first step.”

South - Main Entrance & Reception Plaza / Traditional Costume Rental

Placement Rationale:

- This area directly faces Kew’s main pedestrian path and has strong visibility and accessibility, making it the natural point of arrival for most visitors.

- It benefits from good sunlight and a spacious layout, ideal for serving as a gathering point and a psychological transition space.

- The traditional costume rental is placed here, allowing visitors to symbolically shift roles and atmosphere right from the beginning, deepening cultural immersion.

Spatial Symbolism:→ Creates a sense of ritual — a “gateway” transitioning visitors from modern London into a journey through Eastern cultural landscapes.

Northeast - Public Toilet Zone

Placement Rationale:

- Located mid-way along the east-side gallery on the ground floor, easily accessible whether entering from the south or from the northern exhibition hall.

- Positioned near the circulation loop, it allows for natural transitions and convenient rest breaks.

- The exterior can incorporate green walls or landscaped screening to help the utility function blend into the broader spatial atmosphere.

Spatial Symbolism:→ Balances practicality and discretion — meeting physical needs while preserving the immersive experience.

Central Area - Central Plaza and Facilities (Bagua-Inspired Layout)

Placement Rationale:

- Located at the geographic and spatial center of the site, connecting all four directions and acting as a key transitional node.

- The open space allows for small events, seasonal rituals, and communal gatherings.

- It offers framed views toward the Great Pagoda, establishing a strong visual axis and cultural connection.

Spatial Symbolism:→ Acts as the spiritual core of the site, a moment for pause and rhythm adjustment before entering the main exhibitions.

Figure 5.02

5.3 Spatial Programming and Symbolism

“The journey from tea aroma to ink strokes offers the softest transition into cultural immersion.”

East Exhibition Hall - Ground Floor

– Calligraphy Exhibition

Placement Rationale:

- Positioned near the garden, allowing a natural transition from outdoor scenery into the world of written art.

- As a quiet and detail-focused exhibit, the calligraphy hall is placed on the ground floor for better accessibility for elderly visitors and families.

- Lighting is soft and controlled — ideal for preserving calligraphy scrolls while creating a peaceful exhibition environment.

Spatial Meaning:→ A cultural core where bodily movement transforms into intellectual stillness and appreciation of written forms.

Southwest Zone-Library & Reading Pavilion (Independent Structure)

Placement Rationale:

- Positioned in the southwestern corner, the library is separated from the main exhibition route to create a quiet and contemplative environment.

- As a standalone structure, it offers a relatively peaceful, introspective space for visitors to explore ideas beyond the exhibitions.

- Close to main circulation paths yet intentionally set apart, it acts as a “buffer zone” for reflection and extended engagement.

Spatial Meaning:→ A cultural island of knowledge within the garden — where exhibitions inspire, and reading deepens the experience.

Southeast Garden - Bamboo Corridor / Pavilion / Chess Hall

Placement Rationale:

- Located adjacent to the tea area, this garden segment extends the immersive landscape experience with small architectural features.

- The bamboo corridor creates a “passage-like” space experience, supporting a fluid spatial transition.

- The chess hall offers a place for quiet cultural interaction (e.g., Chinese chess or Go), enriching visitor engagement.

Spatial Meaning:→ A multi-layered spatial rhythm that blends nature and micro-architecture, designed for both movement and contemplation.

Southeast Area - Tea House / Pond / Pavilion

Placement Rationale:

- This area receives ample sunlight from the east, symbolizing a fresh beginning — ideal for the start of a cultural journey.

- It is close to the entrance, yet calm and secluded, making it a perfect setting for tranquil tea ceremonies and scenic views.

- The pond and pavilion create a “stillness within movement” atmosphere, inviting pause, contemplation, and sensory immersion.

Spatial Meaning:→ A space for “slow immersion into cultural narrative,” guiding visitors from the urban tempo to a garden rhythm.

Figure 5.03

5.3 Spatial Programming and Symbolism

West Wing | First Floor: Traditional Crafts Exhibition (Incense, Ceramics, Embroidery, Papercutting, Jade Carving)

Placement Rationale:

- The first floor accommodates interactive craft demonstrations and tactile learning activities.

- Afternoon light gently illuminates fine craft details, highlighting textures and materials.

- In dialogue with the ground floor’s culinary exhibits — forming a cultural “duet” of hand and taste, craft and flavor.

Spatial Meaning:→ Traditional crafts here are not static displays, but immersive experiences to be touched and engaged with.

West Wing | Ground Floor: Brewing Culture & Chinese Restaurant

Placement Rationale:

- Located in the west to benefit from warm afternoon light — ideal for dining, gathering, and relaxed interaction.

- Merges exhibits of traditional brewing culture with a functioning restaurant, fusing culture and taste.

- Near the exit path, offering a final destination for visitors to rest, reflect, and extend their visit duration.

Spatial Meaning:→ Taste serves as a cultural memory trigger — transforming the space into a vessel for multisensory experiences.

East Wing - First Floor: Painting Exhibition

Placement Rationale:

- Positioned above the calligraphy gallery, continuing the narrative layering of the eastern cultural wing.

- The first-floor elevation provides spacious wall height for large-scale artworks and contemporary interpretations.

- Gentle natural light filters through side windows, enhancing the visual interplay of light and shadow on the artworks.

Spatial Meaning:→ Calligraphy represents form, painting expresses meaning — their vertical dialogue embodies dual dimensions of Chinese aesthetics.

“The depth of culture is not only seen — it is revealed through experience and the unfolding of all five senses.”

Figure 5.04

5.3 Spatial Programming and Symbolism

“The cultural peak is not in the middle of the journey, but in the moment you carry it home.”

North | Main Hall – Ground Floor: Music Exhibition (Guqin, Pipa, Bianzhong, Erhu, etc.)

Placement Rationale:

- The northern zone receives softer lighting, suitable for the tranquil atmosphere needed in sound-based exhibitions.

- The ground floor allows spacious layouts for installations, performance zones, and sound-based interaction.

- This is the climax of the cultural experience, engaging visitors in a multisensory realm of sound and memory.

Spatial Symbolism:→ Music embodies intangible cultural memory, transforming the visual journey into an emotional, auditory encounter.

Northwest | Gift Shop, Donation Area, Costume Return, Exit

Placement Rationale:

- Positioned at the final node of the visitor journey — the transition back to everyday life.

- Returning costumes and purchasing souvenirs here reflects the rhythm of “entering culture → experiencing → re-entering the world.”

- The donation area invites visitors to contribute to cultural preservation and future education.

Spatial Symbolism:→ The end is not just departure, but a space for reflection, contribution, and new beginnings.

North Hill Area | Artificial Mountain (Kao Shan) and Plum Grove

Placement Rationale:

- An artificial mountain is constructed at the northern edge, symbolizing a “supportive mountain” at the rear of the site. It enriches the spatial layers and embodies cultural meanings of protection and closure.

- A plum grove is planted nearby — representing resilience, solitude, and the spiritual essence of East Asian winter.

- As the final spatial segment, it leads visitors from a humanistic peak into a quieter, introspective natural transition.

Spatial Symbolism:→ The artificial mountain acts as a structural conclusion, while the plum trees offer emotional closure — together forming a poetic end to the journey.

North | Main Hall – First Floor: Poetry Exhibition (Tang/Song poetry, literary scrolls, calligraphy, etc.)

Placement Rationale:

- The upper level ensures a quiet space for reading, contemplation, and introspection.

- Gentle lighting conditions are ideal for displaying fragile literary artifacts and scrolls.

- Echoes the music exhibition below: sound and words, movement and stillness — together forming layers of Chinese aesthetics.

Spatial Symbolism:→ Poetry is a vessel of cultural memory, guiding visitors into imagined landscapes and historical narratives.

Figure 5.05

5.4 Feng Shui Principles and Spatial Logics

Feng Shui

Theories & Applications of Feng Shui Theoretical Evolution of Feng Shui

Origins of Feng Shui

Ancient Feng Shui Development

Gua & Spatial Directions Prehistoric Site Selection Yin-Yang Balance

of Qi Plants

Han Dynasty (206 BCE-220 CE): The concepts of Yin Feng Shui (for tombs) and Yang Feng Shui (for residences) emerged. Qi is the fundamental energy of the universe, influencing all things.

Tang & Song Dynasties (6181279 CE): The two major Feng Shui schools, Form School (Xing Shi Pai) and Compass School (Li Qi Pai), emerged.

Ming & Qing Dynasties (1368-1912 CE): Feng Shui became widespread in royal palaces, residential homes, and commercial buildings.

Spring and Autumn Period (770 BCE): Feng Shui integrated Yin-Yang, Five Elements, and the Heavenly Stems and Earthly Branches.

Feng Shui Symbolism: Resilience, Purity, and Prosperity

1.Resilience & Endurance

& Auspiciousness

1.Plum blossoms bloom in the heart of winter, even flourishing under snow-covered conditions. Their ability to withstand harsh cold represents “determination and perseverance in adversity”.

2.Plum blossoms have a refined and elegant appearance, with colors ranging from white and pink to red. They grow independently without relying on other trees or supports.

3.In Chinese culture, plum blossoms symbolize “Five Blessings”

Shui Symbolism: Resilience, Continuous Growth, and Humility

& Harmony

1.Bamboo thrives even in harsh conditions, bending without breaking under strong winds and enduring heavy rain.

2.Bamboo grows in “distinct segments”, with each node marking an upward expansion.

3.Bamboo’s hollow interior symbolizes “humility, openness, and a receptive mindset”.

Feng Shui dates back over 6,000 years to the Neolithic period when humans began selecting ideal settlement locations.

Human Qi and environmental Qi interact, meaning spatial adjustments can enhance fortune.

(Mountain), Dui (Lake).

Yin and Yang represent opposing yet complementary forces, such as light and darkness, motion and stillness

Feng Shui emphasizes dynamic balance in spaces, such as contrasting light and shadow, and balancing open and closed areas.

Shui Symbolism: Elegance, Nobility, Balance, and Resilience

long been

as a symbol of nobility and elegance, cherished by scholars and aristocrats.

2.In Chinese tradition, the layered and symmetrical petals represent harmony and balance, which align with Feng Shui principles of equilibrium.

- The temperature is higher, and sunlight is strong.

- Spring winds come from the east, making it suitable for plant growth.

- Winter is severely cold, with snowfall, and rivers flow from the north.

- Autumn is dry, and metal symbolizes harvest and craftsmanship.

- The center represents Earth and the interseason period, symbolizing stability and balance.

Fire governs the South, representing fame and recognition.

Setting up the main entrance here can symbolize a busy area.

Wood represents growth, creativity, making the East an ideal spot for an “art exhibition featuring nature, and traditional Chinese paintings”.

Water represents fluidity. symbolize an open flow of visitors and knowledge exchange.

Metal represents refinement, communication, and elegance, making the “ displaying artworks, ceramics, and calligraphy”.

Earth governs the Center, representing balance and stability. Keeping this area open ensures harmony and free energy circulation throughout the space.

1.Peonies have long been regarded as the “King of Flowers” due to their large, lush, and vibrant

2.When peonies bloom, their full and colorful flowers signify “abundance, career success, and financial growth”.

1.Its golden flowers are linked to gold (wealth) in Feng Shui, symbolizing financial success and abundance.

2.The Chinese phrase “桂冠” (Guìguān, Laurel Crown) is derived from osmanthus, symbolizing academic achievement, fame, and social prestige.

Southwest is linked to the calm energy.

Wood generates Fire, and the kitchen represents Fire.

Since Water nourishes Wood, and the toilet is associated with Water, this placement is considered harmonious.

Metal symbolizes prestige and authority, while Water represents communication and flow.

blossoms.
1.Wisteria is a long-lived plant, capable of surviving for decades or even centuries.
2.The cascading wisteria flowers resemble bonds of deep connections.
1.Camellia has
regarded
Shang Dynasty (1600 BCE): Site selection for buildings and burials through divination.
Early Heaven vs. Later Heaven Ba Gua: Different interpretations of spatial directions.
Zhou Dynasty (1046 BCE): Developed “Tu Gui Method,” using shadow length to determine cardinal directions.
Ba Gua Symbols: Qian (Heaven), Kun (Earth), Zhen (Thunder), Xun (Wind), Kan (Water), Li (Fire), Gen
Feng Shui Symbolism: Wealth and Prosperity
Feng Shui Symbolism: Prosperity and Reputation
Feng Shui Symbolism: Longevity and Everlasting Bonds
Feng
Feng
White Circle Blue Wavy Red Triangle Yellow Square
Figure 5.14 Prunus mume
Figure 5.15 Phyllostachys
Figure 5.16 Paeonia suffruticosa
Figure 5.17 Osmanthus fragrans
Figure 5.18 Wisteria sinensis
Figure 5.19 Camellia japonica
Figure 5.11
Figure 5.12
Figure 5.13
Phyllostachys
Paeonia suffruticosa
Osmanthus fragrans
Wisteria sinensis
Camellia japonica

5.5 Feng Shui Assessment

How can the Five Elements and the Bagua Grid be used to evaluate the appropriateness of the current spatial layout?

Introductory Notes

- In traditional Chinese architectural philosophy, “Feng Shui” is not superstition — it’s a system that integrates geography, climate, circulation, and human psychology to create harmonious environments.

- This page introduces a “Bagua grid analysis” combined with the “Five Elements” to examine whether the current design aligns with the natural flow of energy (Qi) and cultural spatial logic.

- The aim is not to mystify the design, but to “draw on the wisdom of Feng Shui” to enrich cultural depth and enhance user experience through spatial harmony.

Bagua Grid + Five Elements Diagram

Northwest: Water + Metal (conclusion, clarity)

West: Metal (structure, refinement)

North: Water (reflection, flow)

Northeast: Wood + Water (transition, introspection)

Fire:

Energy, illumination

Wood: Water: Metal: Earth:

Growth, expansion Stillness, flow

Entrances, gathering spaces Learning, culture, libraries Music, poetry, contemplation Exhibitions, craftsmanship Plazas, central nodes Precision, refinement Stability, grounding

Southwest: Metal + Fire (craftsmanship, sharing)

Center: Earth (balance, stability)

East: Wood (growth, culture)

South: Fire (vitality, openness)

Southeast: Wood + Fire (creativity, expression)

5.5 Feng Shui Assessment

Main entrance, gathering, active public areas

Tea culture, art-making, cultural exchange

Education, cultural activities, creativity

Reflection, transition, rest, contemplative use

Plaza, gathering node, circulation core

Closure, transition, exit, gift & memory

Exhibition, crafts, refined programs, dining

Knowledge sharing, craftsmanship, library function

Music, poetry, emotional & contemplative experiences

Main Entrance and Reception Plaza

Teahouse, Pond, Bamboo

Corridor, Pavilion, Chess Hall

Calligraphy Gallery (Ground Floor), Painting Gallery (First Floor)

Public Restrooms

Central Bagua Plaza

Gift Shop, Donation Area, Costume Return, Exit

Restaurant (Ground Floor), Craft Gallery (First Floor)

Library and Reading Space (Detached)

Music Exhibition (Ground Floor), Poetry Gallery (First Floor)

Suitable

Suitable

Logically Placed

5.6 Feng Shui Case Studies

Case Study-Methods of experimental practice

1. To design a Chinese-inspired garden and art gallery in the UK, exploring the balance between rules and creativity.

2. A Chinese-inspired garden harmonizes traditional elements with modern needs, promoting cultural understanding.

3. The Art gallery integrates Feng Shui principles with modern design to create a Chinese cultural hub in the UK.

Figure 5.23 Leshou Tang in Summer Palace
Figure 5.22 Ancient Ginkgo Tree of Guanyin Temple in Xi’an City
Figure 5.21 Bamboos of Lingering Garden
Figure 5.20 Canglang Pavilion in Suzhou

5.6 Feng Shui Case Studies

Three Case Studies for My Specialism-The HSBC Building (Hong Kong)

Figure 5.24 Front facade of HSBC Building in Hong Kong.
Figure 5.25 A tall and hollow atrium on the first floor of the HSBC.
Figure 5.26 Floor Plan of HSBC Headquarters Building in Hong Kong.
Figure 5.27 Section of HSBC Headquarters Building in Hong Kong.
Figure 5.28 Section of HSBC Headquarters Building in Hong Kong.
Figure 5.29 Natural ventilation, grand atrium.

5.6 Feng Shui Case Studies

Three Case Studies for My Specialism-The Apple Store (London).

Applying Feng Shui Principles to the Design Process

Figure 5.30 The Apple Store (London).
Figure 5.31 Indoor Open Design of Apple Store (London).
Figure 5.32 Ground Floor Plan of Apple Store (London) Figure 5.34 Use trees to create a comfortable atmosphere.
Figure 5.35 The direction and flow of people and “Chi” in indoor retail environments.
Figure 5.33 Section of Apple Store (London).

5.6 Feng Shui Case Studies

Three Case Studies for My Specialism-The Bank of China Tower (Hong Kong)

Applying Feng Shui Principles to the Design Process

Figure 5.36 Front facade of the Bank of China Tower in Hong Kong.
Figure 5.38 HSBC Building Feng Shui Cannons.
Figure 5.37 The Bamboo Image of Bank of China Tower (Hong Kong)

5.6 Feng Shui Case Studies

Before the HSBC building was built, the management of HSBC bought the building land, not only the HSBC building site but also the land in front of it was purchased and handed over to the government for management. The government was required to build a park here and plant trees inside. In Feng Shui theory, trees can ward off negative energy. In environmental psychology, personnel working in HSBC buildings can see the trees and green vegetation in the opposite park through the windows, reducing work pressure and improving work performance.

Then they placed a pair of lion sculptures on both sides of the gate, using the fierce energy of beasts in Feng Shui theory to ward off negative energy. In traditional Chinese culture, it is customary to place a pair of lion sculptures at the entrance of buildings including the ancient and modern governments, armies, and some enterprises, hotels, especially larger financial institutions, to appear noble and dignified, and can evoke respect from passersby.

The first floor of the building is designed as an open space, consisting of a tall and hollow atrium. In architectural ecology, this narrow and high atrium space creates a chimney effect, which drives natural ventilation inside the building. According to the Feng Shui theory, this design can introduce more “Chi”. According to environmental psychology, I believe that a tall atrium can make customers feel that the building is magnificent and grand, and then respect and trust the owner of the building, thereby facilitating successful transactions.

The Apple Store on Regent Street in London is the busiest store of the company. It is located at a small turn on Regent Street. The interior space of Apple Regent Street is a 7.2-meter-high double-decker hall, creating a flexible and cozy “town square” style space that enhances the transparency of the street and fills the shops with natural light. The store also has the longest luminous ceiling in the world, covering the entire ceiling. The customized lighting panel emits pure and uniform white light and can absorb environmental noise. This store uses warm materials, including stone, wood, and terrazzo. The height of the double-decker hall allows for the addition of twelve Ficus Ali trees on the ground, bringing nature to the indoor space. There are flower pots in this forest, which can serve as a comfortable place to sit and rest. The iconic Apple display table is set against the backdrop of New Avenue, allowing people to touch, feel, and try Apple products and accessories in an attractive and handson way. The forum is located in the middle of the space and is a new learning environment where experts from various fields can entertain, inspire, and teach. From the perspective of Feng Shui, the Apple Store on Regent Street is located at a small turn on Regent Street, which is the best place for ‘Chi’ energy. Positive energy flows towards the building and enters at a certain angle. Then the architect adopted a design that violates feng shui theory here, with the interior design of the building adopting a design that allows people to flow in a clockwise direction, which also allows the “Chi” entering the interior to flow in a clockwise direction.

In Feng Shui theory, water in the northern hemisphere flows in a counterclockwise direction. When the energy of qi reflects this flow, a comfortable atmosphere is created, and being in this environment makes people feel calm, peaceful, and joyful. The design of the Apple Store ensures that this energy can flow clockwise throughout the entire store, and adopts an open design to avoid possible obstruction from the interior walls of the house. This disruptive thinking encourages the clockwise flow of ‘Chi’ to encourage chaos. This kind of chaos may lead people to make impulsive purchases. This will also make them more susceptible to the influence of promotions and events. This idea is to prevent people from engaging in logical thinking. In this state, they will make more decisions based on their desires, which is a good thing for the store. The result seems to have been effective as well. The annual sales per square foot of the Apple Regent Street store are £ 3250 (approximately $6000). This is a number higher than almost any other store in London.

1. The HSBC Building (Hong Kong)
2. The Apple Store (London)
Figure 5.39 A pair of lion sculptures placed on both sides of the HSBC gate.

5.6 Feng Shui Case Studies

The Bank of China Tower was planned and designed by renowned architect I.M. Pei in 1982. Construction began in April 1985 and was completed in 1989 The building has a sharp and angular structure with three sharp edges. The Bank of China Tower has a base area of approximately 8400 square meters, a total construction area of 129000 square meters, 70 floors above ground, a height of 315 meters, and a total height of 367.4 meters with two poles on top. When completed, it was the tallest building in Asia and the tallest skyscraper outside the United States. The building’s appearance resembles the rising bamboo, symbolizing strength, vitality, growth, and the spirit of enterprising. The hemp stone exterior wall of the base represents the Great Wall and symbolizes China.

This building consists of four triangular towers made of glass and aluminum, each with a different height. The geometric changes that occur as the building rises into the sky are the most interesting aspect of this tower. The sharp angles and points of interest create an appearance that contrasts with the dominant flat buildings in the city. The silver reflective glass used in the tower creates objects that reflect light on sunny days and nights. The sloping terrace allows for more natural lighting, thus requiring less energy for artificial lighting.

The Bank of China Tower has won the “Excellent” rating award in the 2002 Hong Kong Building Environmental Assessment, the Top 10 Best Buildings in Hong Kong by the Hong Kong Institute of Architects in 1999, the Marble Building Award in 1992, the AIA Reynolds Memorial Award in 1991, the Outstanding Engineering Award in 1989, and the Outstanding Engineering Certificate in 1989. From the perspective of Feng Shui theory, the Bank of China Tower is a terrible example of Feng Shui architecture. The sharp-shaped Bank of China Tower is like a three-bladed knife. The first side of the blade points towards the “Governor’s Mansion”, and coincidentally, in December 1986, Duke Youde died suddenly of a heart attack in Beijing, becoming the only Governor to pass away while in office. The second side of the blade pointed towards the military camp of the stationed troops in Hong Kong at that time (British army). The third side of the blade points to HSBC, where HSBC’s performance suddenly regressed and its stock price plummeted at that time. Later, after consulting a Feng Shui master, HSBC’s management creatively erected two “cannons” on the rooftop to engage in a “knife cannon battle” with the Bank of China to defuse the bank’s “killing Chi”. Coincidentally, the stock price rebounded as a result.

In the late 1990s, the location of the Yangtze River Group Center was awkwardly sandwiched between the Bank of China and HSBC. With the advice of feng shui masters, the Yangtze River Center was built in a shield-like shape on all sides, with an impenetrable appearance resembling a fortress, and cleverly avoiding the relative position of “knives and cannons” in height. Although it was repeatedly criticized for not being aesthetically pleasing, but has been safe and sound since its completion.

3. The Bank of China Tower (Hong Kong)
Figure 5.40 The center of the Yangtze River.

5.6 Feng Shui Case Studies

Inspiration from Temperate House: A Fellow Kew Gardens Case Study

Applying Feng Shui Principles to the Design Process

Figure 5.41 Me & Palm House in Kew Gardens (2024 December 27)

5.6 Feng Shui Case Studies

Application Principles for Extraction

The Challenges And Opportunities

Methods of experimental practice

Research Questions

Q1: How can Chinese garden principles (e.g., borrowing scenery, layered landscapes) be adapted for a UK context?

Q2: What design elements best represent Chinese culture while appealing to an international audience?

Q3: How can the space balance natural and built environments to enhance visitor experience?

Q4: What are the practical and cultural challenges of integrating a Chinese art gallery into Kew Gardens?

Specific projects design

1. To design a Chinese-inspired garden and art gallery in the UK, exploring the balance between rules and creativity.

2. A Chinese-inspired garden harmonizes traditional elements with modern needs, promoting cultural understanding.

3. The Art gallery integrates Feng Shui principles with modern design to create a Chinese cultural hub in the UK.

Link to the Personal Professional

Plan

5.7 Final Spatial Programming Based on Feng Shui

Combining initial spatial reasoning with Five Elements principles to affirm the final positioning of key zones.

South Zone - Main Entrance & Reception Plaza / Traditional Costume Rental

Original Spatial Rationale:

- Aligned with Kew Garden’s main pedestrian route, receiving ample sunlight and offering strong visual prominence.

- Serves as a transitional space where visitors begin their cultural journey and shift into an immersive experience.

Feng Shui Interpretation:

- The South is associated with the element “Fire”, representing sunlight, welcome energy, and dynamic movement.

- A “south-facing entrance” aligns with the ideal “Yang House” orientation, maximizing beneficial Qi (energy) flow and visibility.

Enhancement Strategies:

- Use red or warm-toned materials at the entrance to reinforce the Fire element and create a sense of welcome.

- Integrate symbolic patterns into the flooring—such as sunrays or upward motifs—to suggest rising Yang energy and dynamic flow.

Central Zone - Eight-Trigram Courtyard (Bagua Plaza)

Original Spatial Rationale:

- Sits at the intersection of all circulation paths; visually aligned with the Great Pagoda, it serves as both a symbolic and spatial anchor.

- Functions as a gathering space for seasonal rituals, events, and collective orientation.

Feng Shui Interpretation:

- The center corresponds to the element “Earth”, symbolizing stability, grounding, and harmonizing energy from all directions.

- Featuring a “Bagua diagram” in the center reflects the heart of the Taiji (Supreme Polarity), fostering spatial balance and symbolic resonance.

Enhancement Strategies:

- Pave the plaza with Bagua or Lo Shu Nine Grid patterns to symbolize directionality and energy convergence.

- Use natural stone, earthen tiles, or terracotta materials to strengthen the grounding energy of the central space.

Figure 5.42
Figure 5.43

5.7 Final Spatial Programming Based on Feng Shui

East Zone - Ground Floor: Calligraphy Gallery / First Floor: Painting Gallery

Original Spatial Rationale:

- Captures soft early sunlight, providing stable lighting conditions for delicate artworks and enhancing cultural immersion.

Feng Shui Interpretation:

- The “East” corresponds to the “Wood” element, which governs education, learning, and creative growth.

- Calligraphy and painting are introspective and spiritual forms of expression, aligning with Wood’s symbolism of intellectual and cultural development.

Enhancement Strategies:

- Incorporate green design elements such as vertical gardens, moss panels, or carved bamboo motifs to reinforce the growth symbolism.

- Display pieces in wooden frames or use natural paper materials to amplify the Wood-based energy.

Northeast Zone - Public Toilets

Original Spatial Rationale:

- Strategically located at the midpoint of the eastern circulation route—easily accessed from both the entrance and main exhibition areas, providing convenience for transitions and brief breaks.

Feng Shui Interpretation:

- The “Northeast” is associated with “Wood + Water”. Water governs flow and elimination—making this an appropriate direction for restroom facilities.

- The presence of Wood helps balance and purify excess Water energy, supporting hygiene and comfort.

Enhancement Strategies:

- Add screen planting, vertical greenery, or landscaped walls to buffer views and control odor dispersion.

- Use light wood grain textures and natural materials inside and out to moderate dampness and elevate spatial comfort.

5.7 Final Spatial Programming Based on Feng Shui

Southeast Zone - Tea House / Pond / Bamboo Corridor / Pavilion / Chess Hall

Original Spatial Rationale:

- Receives warm morning sunlight, ideal for early-to-midday activities and serene engagement.

- Water features and greenery help cultivate a calm, reflective garden atmosphere.

Feng Shui Interpretation:

- The “Southeast” combines “Wood + Fire” elements: Wood symbolizes growth and culture, while Fire represents activity and inspiration.

- Tea ceremonies, water landscapes, and chess-playing spaces reflect cultural depth and contemplative leisure—well-suited to this orientation.

Enhancement Strategies:

- Introduce bamboo, wooden flooring, or rattan furnishings to strengthen the Wood element.

- Maintain water movement and reflections in the pond to symbolize Qi circulation and the fluid expansion of cultural energy.

Southwest Zone - Library & Reading Pavilion (Standalone Building)

Original Spatial Rationale:

- Positioned in the southwest corner, separate from the main exhibition route to offer a quiet and autonomous space for reading.

- Its openness welcomes researchers, students, or casual visitors for deeper engagement or short stays.

Feng Shui Interpretation:

- The “Southwest” is governed by a combination of “Fire + Metal”: Fire symbolizes passion and inspiration, while Metal represents refinement and structure.

- Books embody the crystallization of cultural memory—placing them here metaphorically expresses the transformation of inspiration into structured knowledge.

Enhancement Strategies:

- Integrate skylights or clerestory windows to increase daylight penetration and foster mental clarity.

- Use a mix of wooden and metallic materials in bookshelves and furniture to visually and energetically express the Fire-to-Metal transition.

5.7 Final Spatial Programming Based on Feng Shui

West Zone - Ground Floor: Restaurant / First Floor: Traditional Crafts Exhibition

Original Spatial Rationale:

- Located in an area with warm afternoon sunlight, making it ideal for rest, dining, and concluding the spatial journey.

- The first floor extends the cultural narrative by exhibiting traditional crafts such as incense, ceramics, embroidery, paper-cutting, and jade carving.

Feng Shui Interpretation:

- The “West” corresponds to the “Metal” element, symbolizing precision, refinement, and containment.

- Dining represents energy restoration and containment, while craftsmanship echoes the meticulousness and cultural legacy of Metal.

Enhancement Strategies:

- Introduce metallic fixtures such as golden frames, metal-accented lighting, and a white/gold color palette to enhance the Metal energy.

- Incorporate circular patterns and symmetrical layouts to reflect the formal and cohesive nature of Metal.

Northwest Zone - Gift Shop, Donation Corner, Costume Return, Exit

Original Spatial Rationale:

- Strategically placed at the final stage of the tour, offering visitors a chance to re-enter everyday life through purchasing, donating, or symbolically closing their cultural journey.

- As a “departure node,” it complements the process of re-entry after immersive cultural experiences.

Feng Shui Interpretation:

- The “Northwest” carries “Water + Metal” energies, symbolizing closure, transition, gratitude, and circulation.

- The gift shop serves as a cultural translator and output point; Metal expresses value exchange, while Water facilitates flow and emotional connection.

Enhancement Strategies:

- Use curvilinear pathways, metallic display tables, soft water sounds, or directional lighting to guide visitors smoothly through the space.

- Consider a “Cultural Seeds” donation wall or message area to symbolize the cycle of giving and the transmission of heritage.

Figure 5.52
Figure 5.53

5.7 Final Spatial Programming Based on Feng Shui

Northern Hill - Artificial Rockery (“Back Mountain”) & Plum Grove

Original Spatial Rationale:

- The artificial rockery is intentionally constructed to represent the symbolic “back mountain” (靠山) in traditional Chinese gardens, creating a visual terminus and cultural conclusion.

- Plum trees are planted to symbolize winter resilience and solitary strength, serving as a poetic transition from exhibition to personal reflection.

Feng Shui Interpretation:

- Although the northern hill does not belong to the eight cardinal sectors, it holds great importance in Feng Shui as the “Black Tortoise” (玄武) or spiritual backing.

- Plum blossoms belong to the Wood element and interact harmoniously with the North’s Water energy—signifying inner vitality and perseverance in winter.

Enhancement Strategies:

- Design the rockery with layered, meandering, and asymmetrical forms to echo the natural landscape and support energy accumulation (藏風聚氣).

- Include winding paths, stepping stones, and a plum-viewing platform to help visitors transition from dynamic cultural immersion to personal contemplation.

North Zone - Ground Floor: Music Exhibition / First Floor: Poetry & Literature Exhibition

Original Spatial Rationale:

- Located near the original shaded tree zone of Kew Gardens, this area receives soft and serene light—ideal for hosting emotionally resonant and introspective content.

- Music and poetry represent core elements of Eastern aesthetics and serve as the emotional climax of the entire exhibition sequence.

Feng Shui Interpretation:

- The “North” corresponds to the “Water” element, which governs stillness, reflection, emotion, and fluidity—perfectly aligned with the themes of music and poetry.

- If Water energy is too dominant, it should be balanced with Wood elements. Introducing wood materials can stabilize and harmonize the space.

Enhancement Strategies:

- Use wooden floors and décor, sound-guiding architectural forms, and brushstroke or ink-wash visual walls.

- Incorporate water ripple lighting effects and soft, low-intensity illumination to guide visitors into a meditative atmosphere.

5.8 Site Models and Material Studies

Figure 5.56 Figure 5.57
Figure 5.58
Figure 5.59
Figure 5.60

5.8 Site Models and Material Studies

Figure 5.61
Figure 5.62
Figure 5.63
Figure 5.64
Figure 5.65
Figure 5.66

5.8 Site Models and Material Studies

Figure 5.67
Figure 5.68
Figure 5.69
Figure 5.70
Figure 5.71

5.8 Site Models and Material Studies

Figure 5.72
Figure 5.73

5.9 Case Study References

2025 February 18

London Research Trip: Exploring Museum Collections

& Architectural Inspirations

Introduction:

As part of my ongoing research for the Art Gallery & Chinese-Inspired Garden at Kew Gardens, I traveled to London to visit key cultural institutions and study their curation strategies, spatial organization, and integration of Chinese elements. This trip provided valuable insights into how historical and contemporary design approaches can inform my project.

1: Sir John Soane’s Museum (10:00 AM - 11:55 AM)

1. Architectural Layout: Observed the compact yet immersive spatial arrangement.

2. Curatorial Style: The museum’s approach to artifact display and layered narratives inspired ideas for exhibit storytelling.

3. Natural Lighting & Interior Flow: Examined how natural light is used to highlight key artifacts, relevant for gallery design.

1. Chinese Material Culture: Studied Chinese ceramics, calligraphy, and architectural motifs to explore cultural integration.

2. Spatial Flow & Exhibition Design: Noted how spaces guide visitors through a historical narrative while maintaining engagement.

3. Color & Material References: Examined color palettes and materials used in traditional Chinese art and architecture.

Stop 2: British Museum – Chinese Art Collection (12:30 PM - 17:00 PM) Reflection & Impact on My Project

This research trip provided crucial insights into exhibit design, material culture, and spatial planning. The curatorial strategies at the Sir John Soane’s Museum and British Museum reinforced the importance of narrative-driven exhibit design and seamless spatial flow. Observing traditional Chinese artifacts and historic garden references has strengthened my understanding of how to incorporate Chinese cultural elements into my project at Kew Gardens. Moving forward, I will refine my gallery layout, exhibition techniques, and garden design based on these observations.

Stop

5.9 Case Study References

Building Typology & Design Philosophy

:

Blends traditional Chinese courtyard principles with a modern exhibition space, adopting a hybrid approach between a pavilion-style structure and an open-air galler y.

- Inspiration: Influenced by classical Chinese gardens (e.g., Suzhou Gardens, Summer Palace) while integrating with the existing European landscape of Kew Gardens.

- Spatial Concept:

- Seamless Indoor-Outdoor Integration – The building interacts with the surrounding landscape, utilizing the “borrowed scenery” technique.

- Balance of Activity & Stillness – Exhibition zones provide immersive, contemplative experiences, while garden pathways offer dynamic circulation.

- Light & Shadow Play – Incorporating “lattice windows” and “courtyard openings” to regulate natural lighting and create a layered spatial atmosphere.

Mutual Influence: Building & Environment :

How the Building Affects the Environment:

- Visual Connection: Ensuring the structure does not obstruct key viewpoints, particularly towards the Great Pagoda.

- Circulation Enhancement: Newly designed garden paths and entryways will enrich visitor movement and engagement.

- Microclimate Regulation: The building will provide shaded areas and wind channels to optimize thermal comfort.

How the Environment Affects the Building:

- Interaction with Existing Vegetation: The architectural layout will respect Kew Gardens’ natural ecosystem, using multi-tiered planting to frame views.

- Topographic Adaptation: The design will respond to natural drainage patterns and soil conditions to ensure environmental sustainability.

Figure 5.87
Figure 5.88 Figure
Figure 5.90
Figure 5.92
Figure 5.93

Case Study References

Traditional Chinese Roof Edge Detail

Figure 5.94
Figure 5.95
Figure 5.96
Figure 5.97
Figure 5.98
Figure 5.99

SP (Special Workshop) - Time Based Media

The Sounds of the Five Elements Why?

This short film presents the energetic flow of the Five Elements (Wu Xing) through a blend of visuals, environmental sound, and cyclical transitions. By smoothly connecting images and sounds, the film creates an immersive experience where symbolism, rhythm, and narrative intertwine.

Favourite Films

Figure SP1 In groups brainstorm on newsprint using diagrams (2025 February 24)
Figure SP2 Defining My Film’s Purpose (2025 February 24)
Figure SP3
Figure SP4

SP - Time Based Media

The Sounds of the Five Elements

Film Structure:

1.Opening: Introducing the Theme

•Visuals: Iconic symbols of the Five Elements slowly dissolve into a single water droplet.

•Sound:

-A resonant “drop” sound — the water droplet falls and creates ripples on a calm surface.

•Transition:

oThe camera pulls back to reveal the ripple transforming into a stream.

oAmbient water sounds grow stronger.

oThe stream slowly morphs into urban pedestrian movement, resembling flowing water.

oThe sound shifts: flowing water fades, replaced by the rhythmic footsteps of the crowd.

•Caption:

Water

“The sound of movement, rhythm, and fluidity.”

•Transition:

oThe crowd thins out as a winding path appears, leading into a forest scene, transitioning into my recorded footage of a river.

Figure SP5
Figure SP6
Figure SP7

SP (Special Workshop) - Time Based Media

2.Water Generates Wood: Entering the Forest

•Scene: A lush forest filled with life.

Visuals:

- First-person footage walking into the woods.

- Sunlight filters through leaves; a breeze gently stirs the trees.

- Natural sounds like insects and birds fill the background.

- A child suddenly runs across the frame, symbolizing vitality.

- The camera shakes slightly as the child moves.

- A single leaf falls from a tree.

•Sound:

- Insects, birdsong.

- A single, clear sound of a child laughing (symbolic and not noisy).

•Transition:

- As the leaf touches the ground, it catches fire—symbolizing Wood generating Fire.

- The falling leaf becomes part of a burning flame.

•Caption:

Wood

“The sound of growth, vitality, and harmony with nature.”

•Scene: A candle ignites, leading into a night festival.

•Visuals:

- The burning leaf transitions into a close-up of candle lighting (self-filmed).

- Gradually shifts to a vibrant nighttime festival — dragon dances, lanterns, fireworks.

•Sound:

- Crackling flames → drumming, crowd noises, fireworks.

- The louder the better — representing high energy.

•Transition:

- The flames extinguish, leaving glowing embers.

- Two hands emerge from the ashes, lifting a handful of soil.

•Caption:

Fire

“The sound of energy, celebration, and transformation.”

3.Wood Generates Fire: From Candle to Celebration
Figure SP9
Figure SP10
Figure SP12
Figure SP13
Figure SP14
Figure SP11

SP - Time Based Media

•Scene: A tranquil mountain temple, wrapped in morning mist.

•Visuals:

- Ashes become soil in someone’s hands.

- The camera pans up to reveal a peaceful temple setting.

•Sound:

- Gentle footsteps on soil.

- Distant birdsong.

- Soft, subtle chanting in the background (never overpowering).

•Transition:

- A temple bell rings — deep and echoing.

- The scene transitions into construction imagery.

•Caption:

Earth

“The sound of stability, reflection, and connection to the land.”

•Scene: Clock tower, coins dropping, traffic moving across a bridge.

•Visuals:

- A large bell swings → coins drop onto a metal surface.

- Cut to my own footage of trucks passing over a bridge.

•Sound:

- Typing sounds.

- Welding, mechanical hums.

- Occasional phone rings or trading floor announcements.

•Transition:

- Through a window, we see people walking — echoing earlier water-like motion.

- Slowly transitions back to a city crowd scene.

•Caption:

Metal

“The sound of precision, structure, and innovation.”

4.Fire Generates Earth: From Ash to Architecture
5.Earth Generates Metal: From Bells to Bridges
SP15
Figure SP16
Figure SP17
Figure SP18
Figure SP19

SP (Special Workshop) - Time Based Media

6.Metal Generates Water: Returning to Flow

•Scene: Urban streets, busy with people, water reflections.

•Visuals:

- Seen through a window: the city’s foot traffic.

- Reflections of light shimmer on wet pavement.

- Finally returns to the original droplet falling into water, completing the cycle.

•Sound:

- Footsteps, distant traffic.

- A final “drop” sound — echoing the opening moment.

•Caption:

Water

“Everything flows. Everything connects.”

7.Ending: The Philosophy of Five Elements

•Visuals:

- Black screen with the Five Elements interaction diagram (generating and overcoming cycles).

- On-screen text:

“The harmony of the Five Elements.”

“Balance in all things.”

•Final Sequence:

- A series of my site visit photos at Kew Gardens, overlaid with ambient sounds and environmental textures.

- A train passes through (symbolizing Metal), and I am seen walking toward it (Water returns).

- The screen fades to black with: “Coming Soon”.

Figure SP25
Figure SP26

SP - Time Based Media “The Sounds of the Five Elements”

The Sounds of the Five Elements

Introduction

My short film, The Sounds of the Five Elements, which explores how the ancient Wu Xing (Five Elements: Fire, Earth, Metal, Water, and Wood) philosophy can be represented through sound, movement, and visual storytelling.

This film is not just a creative experiment but also an extension of my MA Architecture project, where I explore how Feng Shui principles influence spatial perception and design. Using a combination of self-filmed footage, AI-generated visuals, and photographs I took at Kew Gardens, I crafted a film that translates spatial atmosphere and energy flow into a sensory experience.

Concept & Inspiration

The idea behind this project is to examine how sound and movement shape our perception of space—something that’s deeply embedded in Feng Shui and traditional Chinese architectural design.

Film is an effective medium because it allows for sequential storytelling, making it possible to convey the energy shifts between elements. Each element transitions into the next based on Wu Xing’s natural cycle:

•Fire → Earth (Flames burn into ashes, forming soil)

•Earth → Metal (Soil produces minerals, turning into metal)

•Metal → Water (Condensed metal droplets transform into water)

•Water → Wood (Water nourishes plants, enabling growth)

•Wood → Fire (Wood fuels fire, completing the cycle)

This cyclical transition became the foundation for the visual structure of my film.

“Ultimately, this film is a creative exploration of how we experience space—not just visually, but through sound, movement, and natural forces.”to visual storytelling.

Production Process

To create this film, I used a combination of:

1. Self-Filmed Footage (shot at Árbol Singular & Kew Gardens)

2. AI-Generated Clips & Transitions

3. My Own Photography from Kew Gardens

AI played a key role in generating complex transitions and symbolic elements.

•The opening Five Elements diagram was AI-generated.

•Fire, festival, desert, and child running sequences were created using AI.

•Water droplet, river erosion, and metal coin drops were also AI-enhanced.

•However, I personally filmed real river water, trees, and the act of lighting a candle to add realism.

•For the final sequence, instead of using online Kew Gardens footage, I used photos that I took during my visit to Kew, incorporating them into the closing scene.

Editing & Sound Design

•The entire film was edited using Adobe Premiere Pro & After Effects.

•Sound was critical to this project—each element has a distinct audio identity:

Fire: Crackling flames, fireworks.

Earth: Footsteps on soil, deep gong chimes.

Metal: Clanging metal, mechanical hum.

Water: Rainfall, splashing water.

Wood: Rustling leaves, birds chirping.

•Transitions were carefully designed so each element transformed naturally into the next, keeping the rhythm seamless.

Challenges & Solutions

This project had several challenges, including:

•Blending AI-generated visuals with real footage: To ensure a consistent aesthetic, I had to carefully adjust color grading, textures, and transitions.

•Structuring a narrative without words: Since there is no dialogue, I had to rely heavily on sound and movement to guide the viewer’s experience.

•Balancing AI-generated and personal elements: While AI helped with transitions and abstract visuals, I wanted the film to remain personal—so I incorporated real footage and my own photographs from Kew Gardens to make it authentic and site-specific.”

“In the end, these challenges pushed me to experiment with different tools and refine my approach to visual storytelling.

Reflection & Connection to Architecture

This project has deepened my understanding of how sensory experiences shape architectural design.

•It reinforced that film can be a powerful tool for simulating spatial perception, atmosphere, and materiality.

•It highlighted the importance of Feng Shui in shaping movement and energy flow in space.

•It also demonstrated how AI can be integrated into architectural visualization, offering new ways to express dynamic and multi-sensory environments.

Figure SP27

SP (Special Workshop) - Technology

- Purpose: Quick 3D scanning of real-world objects using iPhone’s LiDAR or camera.

- Key Features: Multiple capture modes, instant mesh preview, export to OBJ/PLY.

- Scanned small items like a paint tube, sculpture, and fire extinguisher.

1.Scaniverse (Mobile App) 2.CloudCompare

Getting Started with 3D Scanning

Key Tasks:

- Discussed 3D scanning applications and capture methods (LIDAR, Structured Light, Photogrammetry, Gaussian Splatting)

- Tested mobile scanning apps

- Explored how lighting, object size, and material affect scan quality

- Learned basic scan data cleanup using “CloudCompare”

Reflections:

I discovered that small, matte, and non-reflective objects scan most successfully. Lighting plays a critical role in point cloud accuracy. This week laid the technical foundation for deeper spatial experimentation.

- Purpose: Point cloud editing and analysis.

- Key Features: Trimming, alignment, noise removal, format conversion.

- Cleaned scan data and exported assets for Blender.

SP - Technology

Developing Technique

Key Tasks:

- Practiced scanning across different scales and materials

- Manipulated scan data in “Blender”

- Learned how to clean, align, and reformat point clouds

- Group discussion on artistic vision in design

- Drafted initial scene concept based on scanned objects

Reflections:

I began to understand how scanning is not only technical but also expressive. Through Blender, I explored how spatial storytelling could emerge from combining and transforming scanned assets.

3.Blender

- Purpose: 3D modeling, scene composition, and rendering.

- Key Features: Mesh editing, lighting setup, camera placement, material control.

- Combined and lit scanned objects to tell a spatial story.

Final Scene Creation

Key Tasks:

- Defined a personal artistic vision: “Juxtaposition of safety and expression”

- Composed and rendered a spatial scene combining both assets

- Applied real-world lighting principles and camera positioning

Reflections:

My final composition tells a subtle story: “After the Fire, the Artist Remains.” It explores fragility, safety, and artistic presence. This project showed me how digital space can convey emotion and narrative.

Figure SP39
Figure SP40
Figure SP41 Figure SP42
Figure SP43 Figure SP44
Figure SP45 Figure SP46
Figure SP47
Figure SP48
Figure SP49

SP (Special Workshop) - Fabrication

Hybrid Fabrication: Found Object Documentation & Concept Development

1.Initial Documentation

Material & Texture Analysis:

Tree Branch: Natural wood, rough texture, may have bark or cracks.

Plastic Bottle: Transparent plastic, smooth, lightweight, recyclable.

2.Object Examination & Connection Possibilities

Connection Strategy for Handmade & Digital Parts:

Handmade Component (Base): Provides support, potentially made from reclaimed materials.

Digital Fabrication Component: 3D-printed threaded adapter to allow the plastic bottle to screw onto the tree branch instead of using glue or traditional attachment methods.

3.Brainstorming

Concept & Narrative:

The project explores sustainability by integrating natural materials (tree branch), manmade materials (plastic bottle), and modern technology (digital fabrication).

Interaction Between the Three Parts:

The tree branch provides structure & an organic form.

The handmade base offers stability.

The 3D-printed adapter enables a removable, functional connection, promoting reusability.

Tree Branch & Plastic Bottle
Figure SP50
Figure SP51
Figure SP52
Figure SP53
Figure SP54
Figure SP55

SP - Fabrication

Figure SP56
Figure SP57
Figure SP58
Figure SP59
Figure SP60
Figure SP61

SP - Fabrication

1.The Story of My Object:

My object tells a story about “reusing discarded materials”—a tree branch and a plastic bottle—and giving them “new meaning through design and fabrication”.

I wanted to explore the contrast and connection between “nature and human-made materials”, and how design tools can help create balance between the two.

For me, this project symbolizes:

The fragile balance between sustainability and convenience

The potential of “design and making” to bring harmony between natural and synthetic forms

A personal reflection on “how we can reinvent waste into something meaningful”

2.Reflection & Iterative Improvements:

What was successful:

- Choice of Found Objects: I’m happy with the tree branch I found—it has a nice, natural curve and texture.

- Concept: The environmental theme of Eco Tree felt very personal and relevant.

- Digital Connection: My 3D-printed bottle-thread worked! I tested it with real bottle caps and the rotation was smooth.

- Adapting to Failure: Although my first attempt with the double base didn’t work, I returned to my earlier design using a flat paperwood board with a hole—and it stabilized the whole object.

What didn’t work, and what I changed:

- Balance Issues: The double-base idea looked nice, but it couldn’t hold the object upright. The center of gravity was off.

- Cutting & Fitting: The wooden board wasn’t easy to cut cleanly by hand, and the fit wasn’t perfect, but it was a practical solution.

Assembly Precision: It was challenging to align all three parts neatly because of the irregular shapes of found materials.

3.Aesthetic refinements:

I liked the contrast between the raw wood, clear plastic, and white 3D print.

The rotating cap gave the object an interactive feature—it becomes more than just a static piece.

SP - Fabrication: Eco Tree

Eco Tree

My project is called “Eco Tree”. It explores the relationship between nature and synthetic materials using found, handmade, and digitally fabricated components.

I used a tree branch and a plastic bottle as my found objects. For the handmade element, I first tried to make a double-legged base that could clamp onto a table edge. However, I realized the balance wasn’t stable—the piece kept falling over. So I returned to my original idea: a wooden board with a hole to insert the branch. The size and weight of the board helped to keep the structure grounded.

For the digital component, I 3D printed a series of threaded connectors. These allow me to screw a real bottle cap—taken from my found bottle—directly onto the branch. The result is a clean, glue-free connection that’s strong but also reversible.

The project as a whole reflects my thoughts on sustainability and resourcefulness. It’s about turning waste into a story—how materials that don’t belong together can still be brought into balance through design.

Figure SP63
Figure SP64
Figure SP65
Figure SP66

10.1 Figure References

Figure 1.01 Photo taken by the author at the Temperate House, Royal Botanic Gardens, Kew, London, on December 27, 2024.

Figure 1.02 Photo taken by the author at Regent’s Park, London, on February 27, 2025.

Figure 1.03 Photo taken by the author at Eastbridge Hospital, Canterbury, on October 21, 2024.

Figure 1.04 Statistics and charts from Kew Gardens Annual Review 2023–24. Source: Royal Botanic Gardens, Kew.

Figure 1.05 Rail map photographed by the author at Kew Station, London, on December 27, 2024.

Figure 1.06 Photo of Temperate House taken by the author in Kew Gardens, December 27, 2024.

Figure 1.07 Illustration of the Great Pagoda in Kew Gardens. Downloaded from all3dp.com on March 20, 2025.

Figure 1.08 Taiji Bagua diagram from Chinese Wikipedia. Accessed March 20, 2025.

Figure 1.09 Hand-drawn botanical mapping of Kew Gardens, created by the author and completed March 27, 2025.

Figure 1.10 Site photo facing south, taken by the author in Kew Gardens on December 27, 2024.

Figure 1.11 Map of the United Kingdom highlighting London’s location. Used to contextualize the cultural and ecological relevance of siting the project in the capital city.

Figure 2.01 Excerpt from Feng Shui Modern by Cliff Tan & Dura Lee, illustrating the Five Elements and directional correspondences.

Figure 2.02 Page spread from Chinese Art and Design by Rose Kerr, featuring traditional spatial layout and garden pavilions.

Figure 2.03 Cover of All-Inclusive Engagement in Architecture, reflecting social context themes and community-oriented design approaches.

Figure 2.04 Great Pagoda in Kew Gardens, designed by William Chambers in 1762 – photographed by Cheng-Yun Chang (2024 December 27).

Figure 2.05 Chinese House at Stowe House (c. 1738–1750) – early example of European Chinoiserie architecture in a landscape setting. Image sourced from public domain.

Figure 2.06 Portrait of Ernest Henry Wilson (public domain image).

Figure 2.07 Commemorative black plaque for E.H. Wilson in Chipping Campden – photographed by Cheng-Yun Chang (2025 March).

Figure 2.08 Cover of China: Mother of Gardens by Ernest Henry Wilson (1929).

Figure 2.09 Cover of ‘Chinese’ Wilson: Life of Ernest H. Wilson, 1876–1930 from the Great Plant Collectors series.

Figure 2.10 Davidia involucrata (Dove Tree) – Illustration from China: Mother of Gardens by Ernest H. Wilson (1929).

Figure 2.11 Meconopsis integrifolia (Yellow Himalayan Poppy) – Botanical illustration (public domain).

Figure 2.12 Lilium regale (Regal Lily) – Illustration from China: Mother of Gardens by Ernest H. Wilson (1929).

Figure 2.13 Chamaecyparis formosensis (Taiwan Red Cypress) – Image sourced under Creative Commons license, Taiwan forest photography archive.

Figure 2.14 Plant Map and Chinese Plant Route – Drawn by Cheng-Yun Chang, completed on 1 April 2025. Highlights the distribution of Chinese-origin plant species within Kew Gardens and suggests a walking path that connects them through the project site.

Figure 3.01 My Site in Digimap – Created using Digimap’s OS and Historic layers, visualizing the site boundaries and cultural context. (2025)

Figure 3.02 Me & Great Pagoda in Kew Gardens (2024 December 27) – Photograph by Cheng-Yun Chang, showing on-site relationship between project location and the Great Pagoda.

Figure 3.03 My Site in Digimap – Detail map showing the project site’s layout and surrounding pathways in Kew Gardens, created via Digimap. (2025)

Figure 3.04 Site Diagram – Sun Path, Circulation, and Feng Shui Mapping (Created by Cheng-Yun Chang, 2025 May 18) - Composite diagram integrating environmental analysis (sun angle, circulation, vegetation) and spatial logics based on Feng Shui theory; overlaid on Digimap.

Figure 3.05 Pagoda in Kew Gardens (2024 December 27) – Photo by Cheng-Yun Chang, documenting site proximity to the Great Pagoda as cultural reference.

Figure 3.06 Japanese Landscape in Kew Gardens (2024 December 27) – Photo by Cheng-Yun Chang; supports analysis of cross-cultural garden representation.

Figure 3.07 Pavilion Bar and Grill in Kew Gardens (2024 December 27) – Photo by Cheng-Yun Chang; used for scale and design language comparison.

Figure 3.08 Plan of the Royal Palace Gardens and Park at Richmond (1754) © RBG Kew — Historical map showing the landscape before the modern development of Kew Gardens.

Figure 3.09 The Tea Pavilion Burnt by Suffragette Party – 1913 © RBG Kew — Archival image documenting a significant moment of social history in Kew Gardens.

Figure 3.10 The Great Pagoda by Sir William Chambers (Completed in 1762) — Early representation of the iconic pagoda, pivotal to the site’s Chinoiserie heritage.

Figure 3.11 Sun Path Analysis Diagram (2025 March, by Cheng-Yun Chang)

Figure 3.12 Sun Path and Wind Analysis in SketchUp (2025 March, by Cheng-Yun Chang)

Figure 3.13 Sun Path – Summer Solstice 8am (2025 March 21, Kew Gardens Site Study)

Figure 3.14 Sun Path – Summer Solstice 12pm (2025 March 21, Kew Gardens Site Study)

Figure 3.15 Sun Path – Summer Solstice 4pm (2025 March 21, Kew Gardens Site Study)

Figure 3.16 Sun Path – Winter Solstice 8am (2025 March 21, Kew Gardens Site Study)

Figure 3.17 Sun Path – Winter Solstice 12pm (2025 March 21, Kew Gardens Site Study)

Figure 3.18 Sun Path – Winter Solstice 4pm (2025 March 21, Kew Gardens Site Study)

Figure 3.19 Royal Botanic Gardens, Kew topographic map, elevation, terrain (2025 January 1)

Figure 3.20 Empty sided road leading to the Great Pagoda (2024 December 27, Cheng-Yun Chang)

Figure 3.21 Chinese Plant Route and Botanical Mapping of Kew (Hand-drawn by Cheng-Yun Chang, 2025 April 1)

Figure 3.22 Site Map (2025 March, Cheng-Yun Chang)

Figure 3.23 View from Site Facing North (2024 December 27)

Figure 3.24 View from Site Facing East (2024 December 27)

Figure 3.25 View from Site Facing South (2024 December 27)

Figure 3.26 View from Site Facing West (2024 December 27)

Figure 3.27 Nash Conservatory in Kew Gardens (2024 December 27)

Figure 3.28 Temperate House in Kew Gardens (2024 December 27)

Figure 3.29 Treetop Walkway in Kew Gardens (2024 December 27)

Figure 3.30 Me in Kew Gardens (2024 December 27)

MA Architecture

Figure 3.31 Walking Range and Time Map (Cheng-Yun Chang, created in 2025 March)

Figure 3.32 Great Pagoda in Kew Gardens (2024 December 27)

Figure 3.33 Great White Cherry Tree in Japanese Landscape © RBG Kew (Accessed 2025 March)[Source](https://www.kew.org/)

Figures 4.01–4.03 Various depictions of the Silk Road. Sources include worldhistory.org and Wikimedia Commons.

Figures 4.04–4.05 Chinese decorative elements imported into Europe (wallpaper, porcelain), photographed in the V\&A and British Museum.

Figures 4.06, 4.13, 4.14 Chinese House at Stowe House – photograph and sketch sourced by author.

Figure 4.07 Illustration of the Porcelain Tower by Johan Nieuhof, 1665.

Figure 4.08 Chinesischer Turm, English Garden, Munich – Wikimedia Commons.

Figures 4.09–4.12 Brighton Pavilion – photographs taken by the author.

Figures 4.15–4.19 Architectural diagrams reconstructed from historical references and educational materials.

Figures 4.20–4.28 Wang Shu and Amateur Architecture Studio projects – including Pritzker Prize references, architectural photos, and published materials.

Figures 4.29–4.33 Liu Jiakun works and biographical images, including Arch-Exist photography.

Figures 4.34–4.35 Author-drawn diagrams for dissertation section on Feng Shui and environmental psychology.

Figures 5.01–5.05 Spatial bubble diagrams by author over Digimap base (2025).

Figures 5.06–5.10 Icons of Five Elements from Feng Shui Modern by Cliff Tan.

Figures 5.11–5.12 Bagua and Taiji diagrams. Source: Wikipedia (2025).

Figure 5.13 Combined directional Feng Shui diagram created by author.

Figures 5.14–5.19 Botanical images: Prunus mume, Phyllostachys, Paeonia suffruticosa, Osmanthus, Wisteria, Camellia (compiled from Kew Gardens, author’s plant map, and open sources).

Figures 5.20–5.23 Photos and illustrations of traditional Chinese gardens (Canglang Pavilion, Lingering Garden, etc.).

Figures 5.24–5.29 Floor plans and sections of HSBC Hong Kong; architectural sources.

Figures 5.30–5.35 Apple Store London: interior analysis and Chi flow references.

Figures 5.36–5.39 Bank of China Tower symbolic analysis and HSBC lion statues.

Figure 5.40 Yangtze River source image, symbolic to Chinese landscape orientation.

Figure 5.41 Palm House visit photo by the author.

Figures 5.42–5.55 Author’s final hand drawings of spatial plans and interiors (2025).

Figures 5.56–5.66 Site and roof model photographs (1:1000 & conceptual).

Figures 5.67–5.73 Pavilion/corridor prototype tests – mixed techniques.

Figures 5.74–5.86 Visit records: London museums, time-stamped photo log.

Figures 5.87–5.89 Classical Gardens of Suzhou: architectural layout, stone bridge detail, and water courtyard. Sources from Viator.com and SCIRP research publication (2024–2025).

Figure 5.90 Suzhou Classical Garden Pavilion – image showing layered spatial transitions. Source: viphuayuan.com.

Figures 5.91–5.93 Feng Shui spatial relationships and traditional plant usage within Suzhou gardens. Extracted from open-access academic article (SCIRP) and tourism documentation.

Figures 5.94–5.99 Traditional Chinese Roof Edge Detail – examples of upward eaves curvature and ridgeline bracket design (斗拱飛檐設計). Visual references collected from architectural archives and heritage garden case studies.

10.2 Bibliography

1 : Site Context & Rationale

Royal Botanic Gardens, Kew. Annual Review 2023–24. Accessed via: [https://www.kew.org/sites/default/files/2024-09/Kew-AnnualReview-2023-24.pdf](https://www.kew.org/sites/default/files/2024-09/Kew-Annual-Review-2023-24.pdf)All3DP.

The Great Pagoda at Kew Gardens: 3D Model Reference. Accessed March 20, 2025. [https://all3dp.com](https://all3dp.com) Wikipedia. Accessed March 20, 2025. [https://zh-yue.wikipedia.org/wiki/%E5%85%AB%E5%8D%A6](https://zh-yue.wikipedia.org/ wiki/%E5%85%AB%E5%8D%A6)

UK Map Base Image. Public domain or Google Maps reference, edited for academic use.

2 : Research Foundations

Tan, C., & Lee, D. (2023). Feng Shui Modern. DK Publishing. Kerr, R. (1991). Chinese Art and Design: The T.T. Tsui Gallery of Chinese Art. Victoria and Albert Museum. Ferdous, F., & Bell, B. (2022). All-Inclusive Engagement in Architecture: Towards the Future of Social Change. Routledge. Keswick, M. (2003). The Chinese Garden: History, Art and Architecture. Harvard University Press. Hunt, J. D. (1986). Garden and Grove: The Italian Renaissance Garden in the English Imagination: 1600–1750. JHU Press. Chambers, W. (1757). Designs of Chinese Buildings. London. Wilson, E. H. (1929). China: Mother of Gardens. New York: Doubleday, Page & Company. Coats, A. M. (1989). ‘Chinese’ Wilson: Life of Ernest H. Wilson, 1876–1930. In Great Plant Collectors. Studio Editions. Sargent, C. S. (1913). A Naturalist in Western China. Houghton Mifflin Company. Wilson, E. H. (1929). China: Mother of Gardens. New York: Doubleday, Page & Company. Hsu, J., & Wolf, J. (2020). Flora of Taiwan. Taiwan Forestry Research Institute. Coats, A. M. (1989). ‘Chinese’ Wilson: Life of Ernest H. Wilson, 1876–1930. Studio Editions. Royal Botanic Gardens, Kew (2024). Plant Explorer Interactive Map. Retrieved from: [https://www.kew.org](https://www.kew.org)

3 : Site Analysis & Environment

Digimap (2025). OS & Historic Map Layers. Retrieved from: [https://digimap.edina.ac.uk](https://digimap.edina.ac.uk)

Chang, Cheng-Yun. (2024). Photograph of Great Pagoda in Kew Gardens, taken on December 27, 2024. Digimap (2025). OS & Historic Map Layers. Retrieved from: [https://digimap.edina.ac.uk](https://digimap.edina.ac.uk) Chang, Cheng-Yun. (2024). Photographs of Kew Gardens Cultural and Architectural Landmarks, taken on December 27, 2024. RBG Kew Archives. (n.d.). Plan of the Royal Palace Gardens and Park at Richmond (1754). Royal Botanic Gardens, Kew. RBG Kew Archives. (n.d.). Photograph of the Tea Pavilion Burnt by Suffragettes, 1913. Royal Botanic Gardens, Kew. RBG Kew. (n.d.). Historical Documentation on the Great Pagoda by Sir William Chambers. Retrieved from: [https://www.kew.org] Chang, Cheng-Yun. (2025). Sun Path and Wind Analysis at Kew Gardens Site. Author’s original diagrams and simulations. Weather and solar angle reference based on: U.K. Meteorological Office data for Richmond, London. SketchUp Sun & Shadows Tool, applied on site model exported from Digimap base. Chang, Cheng-Yun. (2025). Chinese Plant Route and Botanical Mapping. Hand drawing based on site study and Kew species data. Royal Botanic Gardens, Kew (2025). Topographic and elevation maps accessed via Digimap / Ordnance Survey. Author’s own photography (2024 December 27). Kew Gardens site documentation. Chang, C.-Y. (2024–2025). Personal site visit photographs taken at Kew Gardens on December 27, 2024. Royal Botanic Gardens, Kew. (2025). Kew Gardens Official Website. Retrieved from: [https://www.kew.org/](https://www.kew.org/)

RBG Kew. (n.d.). “Japanese Landscape – Great White Cherry (Prunus ‘Taihaku’)”. © RBG Kew.

4 : Design Philosophy & Cultural Dialogue

World History Encyclopedia. Silk Road Map. [https://www.worldhistory.org](https://www.worldhistory.org) Wikimedia Commons – Various Silk Road and architectural images. Victoria and Albert Museum. Chinese Wallpapers Collection. British Museum. Collection of Chinese Porcelain. Johan Nieuhof. Illustration of Porcelain Tower of Nanjing, 1665. Arch-Exist. [https://www.arch-exist.com](https://www.arch-exist.com)

Wang Shu. Building a House (造房子), 2017.

Pinterest.com – Ningbo Museum Material Reference. YanGu Studio, Iwan Baan – Architectural Photography.

Cheng-Yun Chang. Author’s original drawings and photographs (2024–2025).

5 : Concept Development

Tan, Cliff, and Dura Lee. Feng Shui Modern. DK Publishing, 2023. Wikipedia contributors. “Bagua,” “Yin-Yang.” Wikipedia, 2025. Royal Botanic Gardens, Kew. Plant and Garden Resources. Architectural references for HSBC, Apple Store, Bank of China – collected from open-access archives and academic databases. Author’s site visit journal and original photography (Feb 2025).

Archival images of Canglang Pavilion, Porcelain Tower, Summer Palace, and more – collected from museum and cultural databases.

Scientific Research Publishing (SCIRP). Feng Shui and Environmental Design in Classical Chinese Gardens of Suzhou. Accessed via: [https://www.scirp. org/journal/paperinformation?paperid=128889]

Viator. Classical Gardens of Suzhou. Tour overview and descriptions.[https://www.viator.com/en-GB/Suzhou-attractions/Classical-Gardens-of-Suzhou/ d28824-a25576]

VIP Huayuan. Suzhou Garden Case Studies and Cultural History. Accessed via:[http://www.viphuayuan.com/content\_2249.html]

Architectural typology of Chinese roof edge design (飛檐斗拱等構造). Source to be updated when official reference is confirmed.

Turn static files into dynamic content formats.

Create a flipbook
Issuu converts static files into: digital portfolios, online yearbooks, online catalogs, digital photo albums and more. Sign up and create your flipbook.