

CONTENT
01 02 03 04 05
BUSINESS TOURISM CENTER
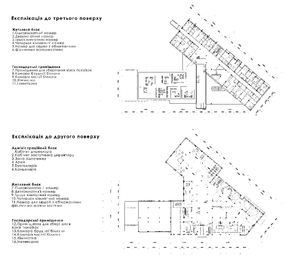
REHABILITATION CENTER
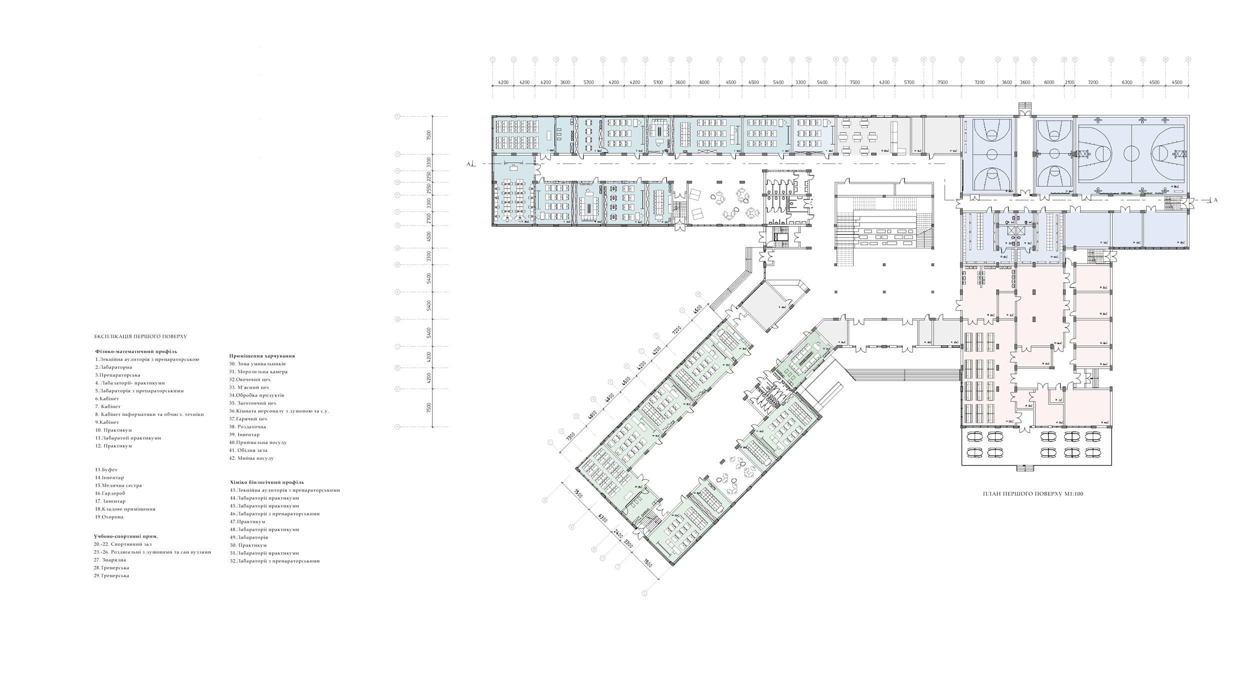
LYCEUM FOR 24 CLASSES
URBAN PROJECT
DESIGN OF A NEIGHBORHOOD
OTHER












![]()


01 02 03 04 05
BUSINESS TOURISM CENTER
REHABILITATION CENTER
LYCEUM FOR 24 CLASSES
URBAN PROJECT
DESIGN OF A NEIGHBORHOOD
OTHER


































