Brittany Ellis Design Portfolio 2023

Page 1

Design Portfolio

CONTENTS 2 Community Over-the-RhineCincinnati,Ohio Individual North Bend Park Boydton, Virginia Neighborhood Mount Cincinnati,AuburnOhio FOUNDATIONPOETRY HOUSEPOOLSAUNA TOWNHOUSE

3 Residential Cincinnati,PendletonOhio Commercial Multiple Locations Ohio and Texas Showcase University of Cincinnati,CincinnatiOhio ROWEHOUSE PROFESSIONAL TECHNICAL Street LandskronaSweden

The Poetry Foundation project is located in Over-the-Rhine in Cincinnati, Ohio. The site was used to imagine a space for the community to gather to read, write, perform, explore and appreciate art. The building has a two-story library to emphasize learning and comfortability, allowing ample space for the user to study, read and relax.

Studio II | Renee Martin | Fall 2018

POETRY FOUNDATION

4 VINESTREET

5

3 LEVEL21BASEMENT NSCALE: 3/32 = 1’ UP VINEREPUBLIC DN 3 LEVEL21BASEMENT UP VINEREPUBLIC DN BASEMENT21 NSCALE: 3/32 = 1’ UP VINEREPUBLIC DN BASEMENT1 NSCALE: 3/32 = 1’ UP VINEREPUBLIC DN 6 1 Entry 2 Gallery 3 Performance Space 4 Public Restrooms 5 Private Offices 6 Conference Rooms 7 Library 8 Open Study Area 9 Terrace 10 Private Study Room 11 Storage 21 7 7 6 3 3 4 5 6 9 2 2 11 10 8 LEVEL ONE BASEMENT LEVEL TWO LEVEL THREE

7 ENTRY GALLERY PERFORMANCE SPACE SECOND FLOOR LIBRARY GALLERY OPEN STUDY AREA

StudioSAUNA2003|

Professor Pravin | Summer 2019

The Sauna project was a small scale project. The program demanded a shower, changing area, a sauna, and a plunge pool. The project was fast-paced and major explorations for how the Sauna would be build was driven heavily by each designers precedent study. STUDIO SERIES

10 PRECEDENT

This precedent study of Peter Zumthor's Therme Vals, located in Vals Switzerland, laid the foundation for projects in this portfolio. His use of light, levels, visuals and the relationship between building and landscape are studies that are applied in the Sauna project and others.

THERME VALS

11 PRELIMINARY LIGHTSITESTUDYPLAN

1 Entry 2 Changing Room 3 Overlook 4 Lounge Space 5 Sauna 6 Plunge Pool 7 Terrace VUP SCALE EXISTINGN1/4”=1’PARKING V DOWN LEVEL ONE LEVEL TWO 1 7 6 3 4 5 2

13 FINAL LONGITUDINALCROSS-SECTIONSTRUCTURESECTION

POOL HOUSE Studio 2003 | Professor Pravin | Summer 2019 Pool House is located in an existing facility at Filson Park in Cincinnati. The project focus is to create opportunities for more people in the neighborhood to enjoy the pool, park and additional amenities required by the program. The idea approached in this project was to maintain the integrity of the existing structure and the purpose it has served for the community since first being built. 14 PRECEDENT STUDIO SERIES 48 1/64”=1’0” PUEBLORINGGOLDSTREETSTREET STREETYOUNG N SITE PLAN 1'0 = 1/64"

15 Preliminary Floor Plans Spatial Relationships LEVEL ONE LEVEL TWO

16 V 1’0” = 1/8” LEVEL ONE 1'0 = 1/8"

17 1’0” = 1/8” V 1’0” = 1/8” LEVEL TWO

18 StudioTOWNHOUSE2004|JossKiely|

Townhouse succeeds in paying tribute to the history by not overbearing the neighbors, yet, strikes the viewers eye when noticed.

Spring 2020 TownHouse by Elding Oscarson is a small, 16ft wide, townhome wedged in a small existing street of Landskrona, Switzerland.

The townhomes three-story structure and white exterior blends into the clouds on a bright day, the modern exterior juxtaposes the rich history and ornament that is on the façade of the other buildings on the street.

NEIGHBORING PROPERTIES

CIRCULATIONINTERIOR PROGRAM STREET VIEW PROFFESSIONAL PHOTO

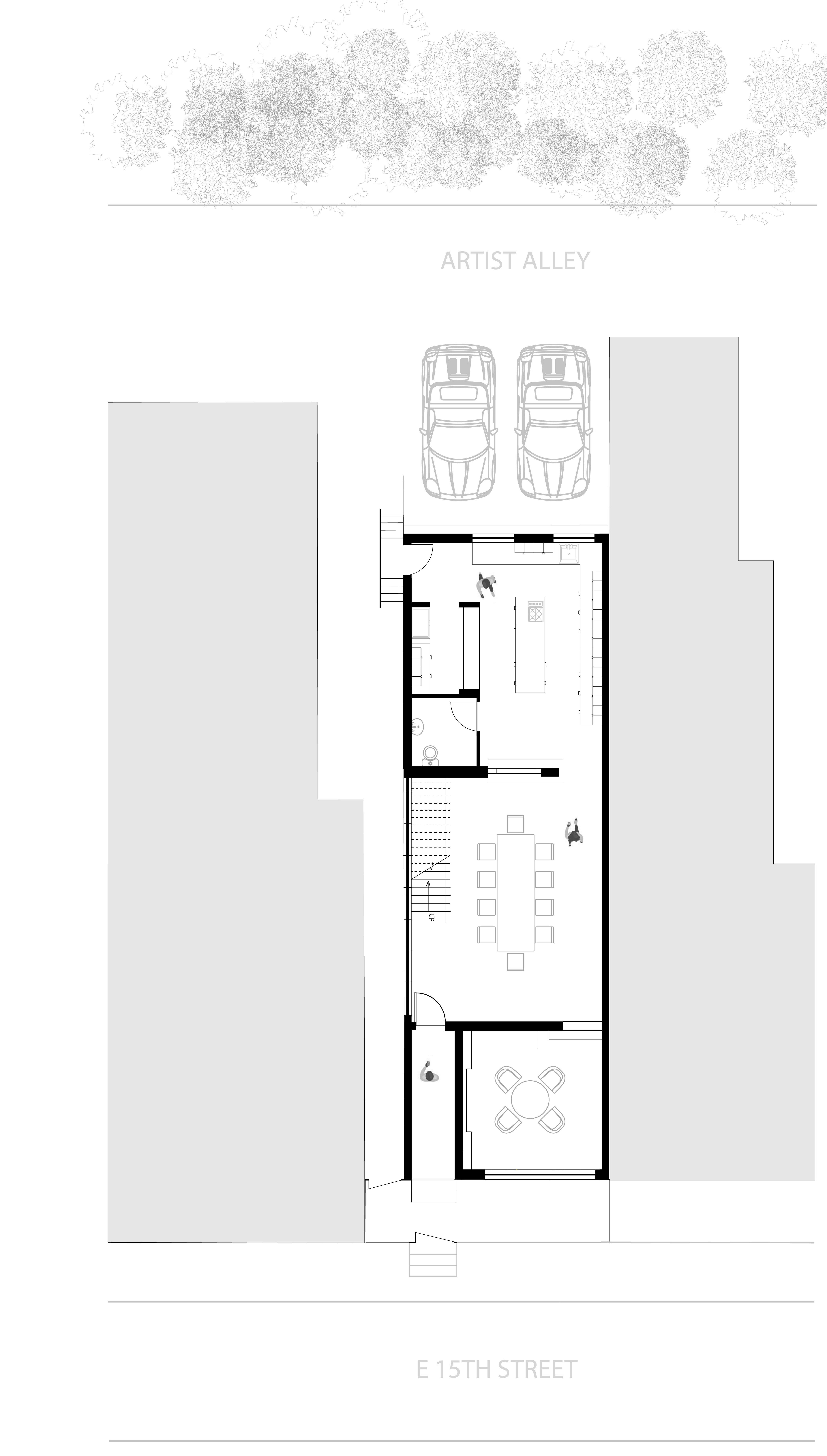
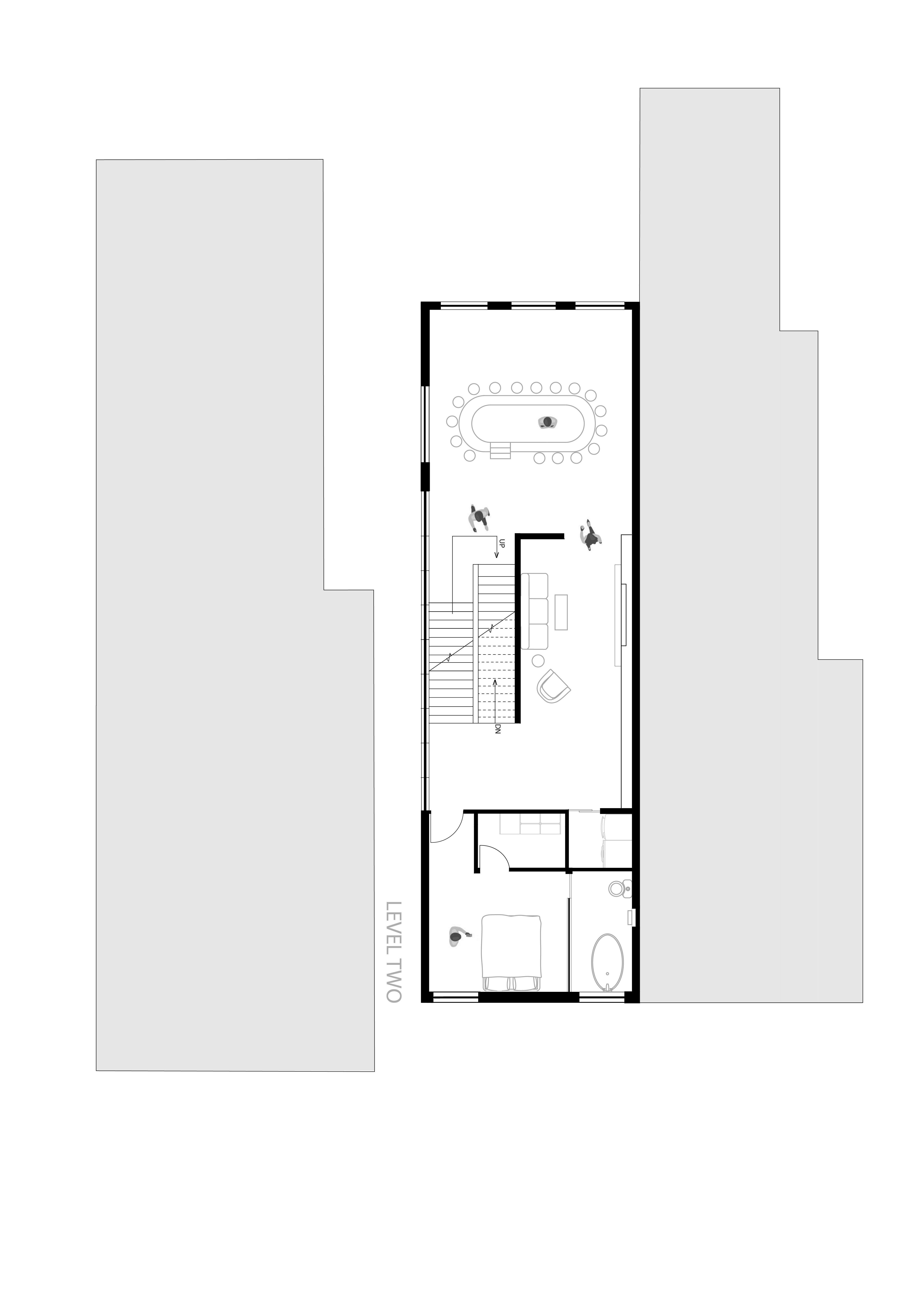
SITE FACADE STUDY 20 StudioROWEHOUSE2004|JossKiely

| Spring 2020 Rowehouse is the study of townhomes that exist in our local Cincinnati neighborhood, Pendleton. The program is designed for a couple who loves to entertain. They want the focal point of the house to be in the dining room where all the guests can gather. They need entertainment spaces. In addition to the program, a bar area, garden, and solarium are added within the home to create interactive spaces that can keep the couples' company intrigued at every turn.

SITE 21

22 1 Entry 2 Sunroom 3 Dining 4 Kitchen 5 Butler Pantry 6 Bathroom 1 3 4 5 6 2 2 1 4 LEVEL ONE

7 9 10 8 11 6 6 Bathroom 7 Bedroom 8 Closet 9 Laundry 10 Living 11 Bar 10 6 11 LEVEL TWO

12 13 11 12 13 11 11 Bar 12 Garden 13 Solarium LEVEL THREE

25 BEDROOMGARDEN CLOSET DINING LIVING KITCHENLIBRARY BEDROOMBAR

PROFESSIONAL WORK

TOM LANDRY MEMORIUM GRAPHICS

26

The professional projects presented in the following pages range from architectural practices to graphic design work. The first four spreads were opportunities I had while working for Corgan in Dallas, Texas. The projects ranged from technical tasks in Autocad and Revit to the exploration of design and representation of work in Illustrator, Photoshop and Indesign. I carried this development forward in more recent projects with businesses based in Cincinnati, Ohio.

27 PRESTON COMMONS RENOVATION RENDERINGS

LEGACY LOBBY RENOVATION Rendering Photoshop,ProposalsSiteVisit 28 401 ONE ROOF LIGHTING Design and Installation Autocad

29 CRESTA ENERGY LOBBY Render and Reception Desk Design Revit and Photoshop

30 BRENT THOMAS RENOVATIONS Drawings for Design Proposals Autocad and Rhino 6'-10 1 2 " 5'-0" 8'-0" 2'-4" 9'-9" 10' WATER CLOSET ELEVATION SCALE 1’ = .375” 5' Built-In Living Room Shelving Unit 25'-0" 8'-0" SECTION 01 ELEVATION SCALE 1’ = .375” ELECTRIC TV MOUNT 3'-0"4'-7" 5'-6 1 2 " 4'-85'-0" 3 4 " 3'-3 3 4 " 1 3 4 " 2'-6"2" 3 1 2 " 1'-2" 2'-8 1 4 " 1'-0" Bathroom Renovation Proposal

31 BRENT THOMAS RENOVATIONS Graphic Design for Rebranding Adobe Illustrator and Adobe Indesign

ACADEMIC 32 The following pages are dedicated to projects with short timelines and specific deliverables. These projects focused on skill development in the following programs: Rhino, Illustrator, Photoshop and Lumion. We also learned how to use equipment in our Rapid Prototyping

33 MODULE SYSTEM STRUCTURE

34 SKYSCRAPER 3D Model and Render Rhino, Lumion, Photoshop

35 LUMION RENDER PHOTOSHOP RENDER Inspired by The Jetson's

Thank You Brittany Ellis DAAP Architecture 2021 University of Cincinnati 513 967 ellisb3@mail.uc.edu0991

Turn static files into dynamic content formats.

Create a flipbook
Issuu converts static files into: digital portfolios, online yearbooks, online catalogs, digital photo albums and more. Sign up and create your flipbook.