


![]()



This offering has been prepared solely for informational purposes. It is designed to assist a potential investor in determining whether it wishes to proceed with an in-depth investigation of the subject property. While the information contained herein is from sources deemed reliable, it has not been independently verified by the MAJ Commercial Real Estate affiliate or by the Seller.
The projections and pro forma budget contained herein represent best estimates on assumptions considered reasonable under the circumstances. No representations or warranties, expressed or implied, are made that actual results will conform to such projections. This document is provided subject to errors, omissions and changes in the information and is subject to modification or withdrawal. The contents herein are confidential and are not to be reproduced without the express written consent.
Interested buyers should be aware that the Seller is selling the Property “AS IS” CONDITION WITH ALL FAULTS, WITHOUT REPRESENTATIONS OR WARRANTIES OF ANY KIND OR NATURE. Prior to and/or after contracting to purchase, as appropriate, buyer will be given a reasonable opportunity to inspect and investigate the Property and all improvements thereon, either independently or through agents of the buyer’s choosing.
The Seller reserves the right to withdraw the Property being marketed at any time without notice, to reject all offers, and to accept any offer without regard to the relative price and terms of any other offer. Any offer to buy must be: (i) presented in the form of a non-binding letter of intent; (ii) incorporated in a formal written contract of purchase and sale to be prepared by the Seller and executed by both parties; and (iii) approved by Seller and such other parties who may have an interest in the Property. Neither the prospective buyer nor Seller shall be bound until execution of the contract of purchase and sale, which contract shall supersede prior discussions and writings and shall constitute the sole agreement of the parties.
Prospective buyers shall be responsible for their costs and expenses of investigating the Property and all other expenses, professional or otherwise, incurred by them.



MAJ Commercial Real Estate is pleased to present the opportunity to acquire a brand-new, Multi-Tenant NNN Lease Investment located in the rapidly growing city of Hutto, Texas.
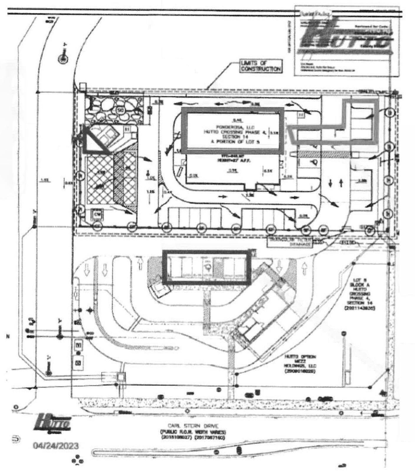
The property is 100% leased to Freebirds World Burrito and Animal Hospital Of Hutto, both operating under brand-new 10-year initial lease terms. Freebirds features 10% rental increases every five (5) years, while Animal Hospital Of Hutto benefits from 2% annual rental increases, offering a strong and growing income stream for investors. Strategically located along Chris Kelley Blvd, the site sits directly across from Hutto High School and Hutto Memorial Stadium, ensuring high visibility and consistent traffic. The property is also situated just east of the Carmel Creek Development, a 466-acre mixed-use project anchored by The Emory Apartments, a 305-unit Class A multifamily development. Surrounding national and regional tenants include Lowe’s, Salad and Go, McAlister’s Deli, Take 5 Oil Change, Home Depot, Chase Bank, and many more—highlighting the strength and growth of this trade area. This is a rare opportunity to acquire a stabilized, newly constructed retail asset in one of Central Texas’ fastest-growing submarkets.


PROPERTY ADDRESS:
126 Chris Kelley Blvd. Hutto, TX
TENANTS: Freebirds & Animal Hospital Of Hutto
LEASE TYPE: NNN YEAR BUILT: 2025
BUILDING SIZE: +/-5,000 SF
LAND SIZE: +/-0.97 Acres
OWNERSHIP TYPE: Fee Simple

Located in an Income Tax Free State Premium Location directly across from Hutto High School and Hutto Memorial Stadium
Each Tenant pays 4% of the Aggregate Rental Due for a Management Fee


LEASE GUARANTOR: Azul Restaurants, LLC
NUMBER OF LOCATIONS: 60+
HEADQUARTERS: Austin, TX
WEBSITE: www.freebirds.com
PROPERTY ADDRESS:
126 Chris Kelley Blvd., Suite 100 Hutto, TX
GUARANTOR: Azul Restaurants, LLC
SQUARE FOOTAGE: +/-2,500 SF
TERM: 10-Years
EXTENDED TERMS: Two, 5-Year Options
LEASE TYPE: NNN
LANDLORD RESPONSIBLE: Roof and Structure
COMMENCEMENT DATE: June 23, 2025
MANAGEMENT FEE: 4% of the Aggregate Rental due
Freebirds World Burrito is a Texasbased fast-casual chain known for its customizable burritos, bold flavors, and laid-back vibe. Originally founded in 1987 in California, it later flourished in Texas, expanding to over 60 locations. With fresh, high-quality ingredients, guests can build their perfect burrito, bowl, salad, or tacos, choosing from flame-grilled chicken, premium steak, and plant-based options.
More than just great food, Freebirds embraces a fun, rebellious spirit with its funky décor and energetic atmosphere. The brand encourages individuality, letting customers express themselves through their meal choices while enjoying a fresh, made-to-order dining experience. With a strong Texas presence, Freebirds has built a loyal following of burrito lovers who appreciate its fresh ingredients and bold flavors.



LEASE GUARANTOR: Corporate
NUMBER OF EMPLOYEES: 200+ Across 10+ States*
HEADQUARTERS: Chicago, IL
PROPERTY ADDRESS:
126 Chris Kelley Blvd., Suite 200 Hutto, TX
GUARANTOR: Corporate
SQUARE FOOTAGE: +/-2,500 SF TERM: 10-Years
EXTENDED TERMS: Two, 5-Year Options
LEASE TYPE: NNN
LANDLORD RESPONSIBLE: Roof and Structure
COMMENCEMENT DATE: Est. Nov. 30, 2025
MANAGEMENT FEE: 4% of the Aggregate Rental due
Animal Hospital Of Hutto is a trusted network of experienced professionals committed to providing high-quality veterinary care. Their skilled team offers a wide range of medical, surgical, and preventive services, ensuring pets receive the best possible treatment in a compassionate and personalized manner. With a focus on advanced medical techniques and patientcentered care, they strive to support the health and well-being of every pet.
In addition to routine check-ups and emergency care, Animal Hospital Of Hutto emphasizes pet owner education on nutrition, behavior, and long-term wellness. Their state-of-the-art facilities and commitment to continuous learning keep them at the forefront of veterinary medicine, making them a reliable partner in every pet’s health journey.



































Animal Hospital of Hutto












































A 466-Acre Mixed Use Development with residential, retail and medical opportunities throughout.
130
The Emory the rapidly project has the latest throughout, the amazing 2021.


Commercial Tract #1
Emory is a beautiful 305 Unit apartment project in rapidly growing suburb of Austin - Hutto, Texas. The has beautifully landscaped grounds as well as latest in amenities. Gaming center, wood flooring throughout, home automation in every unit are some of amazing features - first units delivered in December


UNDEVELOPED
Size: Approx. 992 Acres
Description:

Description:

UNDEVELOPED SECTIONS
Acres city is working to recruit developments. These could also include centers and restaurants. New announced in early 2023.
SAMSUNGS SEMICONDUCTOR PLANT
Investment: $2-3 Billion 30-40 Per Data
Skybox Data Centers will build a
with multiple facilities as well substation that of the Megasite.

Size: 188 Acres
Construction Timeline: Q2 2023-2024
Description: Hutto Mega TechCenter will be an industrial park with buildings for companies to use as warehouse or manufacturing space. Joe Iannacone, senior VP at Titan Development, said the sizable site will allow titan to recruit companies that need large facilities.
Completed
CHIPS Act incentive: $6.4B in federal grants
Project investment: $45B
Project size: 1,268 acres
Project scope: 2 new fabrication plants, 1 new research and development lab, 1 new advanced packaging facility

A close-knit community conveniently located near the state capital, the City of Hutto is where small-town charm meets big-city vibes. While best known for its historic hippo mascot, Hutto is on the move. Not only did Money Magazine name Hutto one of the Top 50 Places to Live in the United States in 2023, but the City has also been repeatedly ranked as one of the safest communities around. And despite its impressive growth, Hutto’s culture of collaboration and economic development are stronger than ever. Road by road, and business by business, Hutto is indeed “Building the Future.”
Located at the intersection of US 79 and SH 130, Hutto is approximately seven miles east of Round Rock, 15 miles south of the county seat of Georgetown, and 22 miles from Austin, making it an attractive place to live. While the local economy has agrarian roots, the booming Central Texas economy now includes many high-tech, manufacturing, and service jobs. The charm of Hutto is balanced with quality schools, growing parks, expanding retail opportunities, and a strong workforce.



































PalmValleyBlvd(35,871VPD)










TX-130S (63,058 VPD)


























