Bhargav- Internship portfolio

Page 1

INTERNSHIP PORTFOLIO

WORKS FROM 2019- 2023

PORTFOLIO

BHARGAV SHEKHAR

ARCHITECTURE STUDENT

I am a passionate and quick learner who possesses a deep love for acquiring new knowledge As an aspiring architect, I am driven by the desire to create meaningful, sustainable and innovative spaces. I am constantly seeking opportunities to expand my skill set and broaden my understanding.

BHA R GA V SHE K HA R A R C HITE C T U RE S T U D ENT | C HRI S T U N IVER S I T Y - B A N GA LO R E C O N TA C T DETAIL S A B O U T M E ED UC ATIO N B A CK G R O UN D SK ILL S PA R TI C IPATIO NS A N D LEA RN I N G S S O F TWA R E BENGALURU C O MMUN I C ATIO N TEA M W OR K RE SP O NSI BI L IT Y T IM E M A N A G E M E N T DEC ISI O N M AK IN G 3 D HA N D D R A F TI N G DO CUM E N TAT I O N & RE S EARC H P HOTO G R A MM ETR Y CRITICA L THI NK I N G CO N CE P T U A LI Z AT I O N +91 903564365 4 bhargav.shr@gmail.com 2019 - CU RR EN T 2017 - 201 9 20 1 2 - 201 7 PRITHVI RAJ
SOFT SKILLS TECHNICAL SKILLS
01 02 03 04 05 06 MIXEDUSE TRADECENTRE MOTELS CENTRALPLAZA COMPETITIONS COMMUNITY KILNS CLAY CAFE WORKSHOPS MANUFACTURINGUNITS CONTENT RURAL STUDIO ALTERING LANDSCAPE & INSTITUTIONAL DESIGN POTTERY TOWN BIM GENDER | SPACE | ECOLOGY MISCELLANEOUS PAGE NO.1 PAGE NO.7 PAGE NO.11 PAGE NO.15 PAGE NO.21 PAGE NO.22

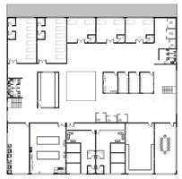
RURAL STUDIO

WOMAN’S LIVELIHOOD AND OPPORTUNITY CENTER LOCATION- APPASANDARA, BENGALURU

ANGANWAADI DESIGN TO EMPOWER WOMEN AND IMPROVING THEIR DAILY LIFE BY CREATING SPACES TO BALANCE THEIR WORK & PERSONAL LIFE. ENABLING WOMEN TO WORK AND ALSO SUPPORTING CHILDREN TO DEVELOP THEIR SKILLS AND TALENTS BY CREATING A MIXED & INDEPENDENT LIVELIHOOD

01 BIOGAS PLAN MASTER PLAN
1
2
LEGEND
1. Tool Room 2. Packing 3. Admin & Docking 4. Manufacturing Unit 5. Toilets 6. 1St Aid 7. Locker room 8. Lunch Court 9. Anganwadi 10. Kitchen & Biogas 11. Pavilion
11 4 12 9 8 5 3 10 1 2 7 6 3
12. Water Harvesting
A SECTION B B’ SECTION C C’ Tool room Storage and packing Dispatch 3X2.5 4.5 X3 4.5 X3 Manufacturing unit 9 x 7.5 1st Aid 3x3 Locker space 4x4 Washr oom 4x4 Washr oom Hiruthik , Bhargav SECTION Manufacturing unit Dispatch Washroo m Hiruthik SECTION ELEVATION Hiruthik SECTION AA’ PLAN MEZZANINE PAVILION SECTION PAVILION SECTION EE’ SECTION DD’ SECTION BB’ SECTION CC’ E E’ C’ D’ C D A A’ B’ B 4

ANGANWADI

ENTRANCE

5
MANUFACTURING UNIT

PAVILION

PAVILLION ANGANWADI 6
Bhargav

ALTERING LANDSCAPES & INSTITUTIONAL DESIGN

HOSPITAL DESIGN LOCATION- VITTASANDARA, BENGALURU

LANDSCAPE DETAILS

CREATING A FULLY OPERATIONAL 100- BED HOSPITAL IN AN ABANDONED QUARRY SITE IN BANGALORE. APPLYING APPROPRIATE DESIGN ELEMENTS AND LANDSCAPING TO HAVE A THERAPEUTIC EXPERIENCE FOR THE PATIENTS

Stepped terrace for seating and recreational purposes

Alternating green wall which shows the natural quarry layer Wooden walkway over the water in the quarry

02
OBJECTIVE WOODEN WALKWAY CAFE
LANDSCAPE DETAILS Stepped terrace for seating and recreational purposes MASTERPLAN LANDSCAPE DETAILS Stepped terrace for seating and recreat onal MASTERPLAN LANDSCAPE DETAILS Stepped terrace for seat ng and MASTERPLAN
MASTERPLAN
7
8

OBJECTIVE

Alternating green wall which shows the natural quarry layer Wooden walkway over the water in the quarry

To

OBJECTIVE

To create a space that communicates with the building and landscape to prov de a healing environment for the user

CONCEPT

The form of the building is developed in a way that it resembles the proposed modification of the landscape - step terracing

To create a space that communicates w bu ding and landscape to provide a heal env ronment for the user

WOODEN

To create a space that communicates with the building and landscape to provide a healing environment for the user e the

CONCEPT DEVELOPMEN

CONCEPT DEVELOPMENT

CONCEPT

,

The form of the building is developed in a way that it resembles the proposed modification of the landscape - step terracing

The form was developed by dividing a solid mass into layers The layers were then subtracted to vary in size to mimic the stepped terrace form

STEPPED

developed way that re prop m the - st ter

HOSPITAL BLOCK

The developed a so The subtracted size to ste

VEHICULAR PATHWAYS

CONCEPT, LANDSCAPE DETAILS AND MASTERPLAN

CONCEPT, LANDSCAPE DETAILS AND MASTERPLAN

SCALE- 1: 750

CONCEPT, LANDSCAPE DETAILS AND MASTERPLAN

SCALE-

CONCEPT, LANDSCAPE DETAILS AND MASTERPLAN

OBJECTIVE that commu andscape prov of th
CONCEPT LANDSCAPE DETAI whi the quarry
the quarry OBJECTIVE
Wooden walkway over the water in
bu developed SCALE- 1: 750 BHARGAV.S-1961706 DAFFODIL N 1961721 VARSHA B V- 1961739 VEHICULAR PATHWAYS WOODEN WALKWAY CAFE EN LIGHTING AND VENTILATION SCALE- 1: 750 BHARGAV.S-1961706 DAFFOD L N 1961721 VARSHA B V- 1961739 BUILDING ELEVATION ON SITE 3D MODEL OF THE BUILDING LIGHTING AND VENT LATION OF THE BUILDING
create a space bu lding and landscape environment for th
LIGHTING AND VENTILATION BUILDING ELEVATION ON SITE LIGHTING AND VENT LATION OF THE BUILDING LIGHTING A BUILDING ELEVATION ON SITE 3D MODEL OF THE BUILDING LIGHTING AND VENT LATION OF THE BUILDING
LANDSCAPE DE
CONCEPT
quarry OBJECTIVE
BHARGAV.S-1961706 DAFFODIL N 1961721 VARSHA B V- 1961739
1: 750 BHARGAV.S- ODIL N 1961721
CONCE SCALE-
VARSHA B V
purposes
1:
750 BHARGAV.S-1961706 DAFFODIL N 1961721 VARSHA B V- 1961739
PARKING
WALKWAY CAFE
2 WHEELER PARKING SERVICE ENTRY EMERGENCY BLOCK 9
TERRACE GARDEN
IL.N 1961721 196173 Sc ub+ chang oom D y oom M T Sub Sub e M jor T M jor T Nu win sh oom oc du oom essing er P e t sp Consu ng (o hoped cs) G ser su eld Consu �ng ene su ery) Consu �ng p mology Consu � endos p eha ili �on ayush oi Bal y SCALE- 1: 2 - 1961739 OOR 2ND FLOOR 3RD FLOOR DMINI TR TION OUNGE KI CHEN AUN A Y COLD EAL RECOR FORMATI SYSTEM REGI TRATION TWIN SHA ING WARD CON EREN R M Bal o Bal 4TH FLOOR OOR DMINI TR TION ON ERE CAFÉ PLAN PLAN ROOM Balco y Bal Si d c dor Sc ub+ change oom D oom M nor O Sub il Sub e M jor O M jor T On oom P op Blood b nk p op D Cen a age Con ol ed ili pha macy P ep oom O N CU Nu ng CU CU sola on sola on ng Sub e onsu a on c ery oom bor oom del ery wi sh P oc du essing p P r sp Consu �ng (o hoped cs) A ser sua eld Consu ng gene a su ery) Consu ng o amology ng endos o ehab �on yush oc du oom accina Consu � ng olo y) oom oi t Balc OOR PLANS SCALE- 1: 200 BHARGAV.S-1961706 DAFFOD L N 1ST FLOOR 2ND FLOOR GROUND FLOOR WITH CONTEXT SCALE- 1: 200 BHARGAV.S-1961706 DAFFOD L N 1961721 VARSHA B V- 1961739 10

HABITAT STUDIO

URBAN DESIGN LOCATION- POTTERY TOWN, BENGALURU

URBAN DESIGN OF POTTERY TOWN TO AID AND ENHANCE THE TRADITION OF POTTERY BY PROMOTING IT AND CONVERTING POTTERY TOWN INTO AN ATTRACTION WHILST PROVING BETTER LIVING CONDITIONS FOR THE PEOPLE RESIDING THERE

DENSITY CALCULATIONS

DENSITY CALCULATIONS

DENSITY CALCULATIONS

DENSITY CALCULATIONS

EXISITING

EXISITING TYPOLOGIES

TYPOLOGIES

11
NEELIM A SU NIL- 1961728
TONY-
SITE AREA CONSIDERED: Total population of Zone B: 767 Population of 46.80% of Zone A: 424. POPULATION CONSIDERED: POPULATION -1280 -265 Families LAND USE % 21.6%- Road Network 3.2%- Common ser vices 7.6% - Open and Public spaces 7.1%- Green Area 5.8%- Commercial space 4.4% - Community Spaces 46% -Residential spaces 4.3% -Institution & Industr y CALCULATIONS TYPOLOGIES SITE AREA CONSIDERED: Total population of Zone B: 767 Population of 46.80% of Zone A: 424. POPULATION CONSIDERED: POPULATION -1280 -265 Families LAND USE % 21.6%- Road Network 3.2%- Common ser vices 7.6% - Open and Public spaces 7.1%- Green Area 5.8%- Commercial space 4.4% - Community Spaces 46% -Residential spaces 4.3% -Institution & Industr y SITE AREA CONSIDERED: Total population of Zone B: 767 Population of 46.80% of Zone A: 424. POPULATION CONSIDERED: POPULATION -1280 -265 Families LAND USE % 21.6%- Road Network 3.2%- Common ser vices 7.6% - Open and Public spaces 7.1%- Green Area 5.8%- Commercial space 4.4% - Community Spaces 46% -Residential spaces 4.3% -Institution & Industr y SITE AREA CONSIDERED: Total population of Zone B: 767 Population of 46.80% of Zone A: 424. POPULATION CONSIDERED: POPULATION -1280 -265 Families LAND USE % 21.6%- Road Network 3.2%- Common ser vices 7.6% - Open and Public spaces 7.1%- Green Area 5.8%- Commercial space 4.4% - Community Spaces 46% -Residential spaces 4.3% -Institution & ndustr y
CLAY CAFE MANUFACTURINGUNITS 12
TESSLYN
1961736
MIXEDUSE TRADECENTRE MOTELS CENTRALPLAZA COMPETITIONS COMMUNITY KILNS

BHARGAV

TESSLYN

NEELIM

POTTERY TOWN

POTTERY TOWN

MOULDING BACK POTTERY TOWN INTO A COMPACT FLEXIBLE AND NEIGHBOURHOOD FRIENDLY ENVIRONMENT KNOWN FOR ITS ART AND SOCIAL CONTEXT BURSTING WITH OPPORTUNITES FOR ARTISTS

CENTRAL PLAZA POT TER’S STRE 1m 8m 1961728 ove and inc number of pot ers and inc ease venue establish an identi y or potters town is known or the a tists of own MENT Zone MENT one A OMER REACH AND SEASONS OF P OFI S DOES THE COMMERCIAL S DOES THE COMMERCIAL
vIBRANT STREETS COMPETITIONS COMMUNITY KILNS CLAY CAFE WORKSHOPS MANUFACTURINGUNITS S P 1961736 1961726 A SU NIL: 1961728 To imp ove and increase the number of pot ers and inc their evenue To establish an identi which is known or the a pot e y own
vIBRANT STREETS MIXEDUSE TRADECENTRE MOTELS CENTRALPLAZA COMPETITIONS COMMUNITY KILNS CLAY CAFE WORKSHOPS SEASONAL MELA MANUFACTURINGUNITS P G PUBLIC TON EN S ATU N WTRANSPORTAA COMPETITION FROM OTHER MARKETS USING MAKING POTTERY. EWS C A OPPORTUNITIES NEWER GENERATIONS CAN BE TRAINED AND CAN HAVE A LOT OF POTENTIAL FOR POT TERY AS A PROFESSION. VAST OP TIONS OF TRANSPORTA TIONS ALSO MAKES IT A BETTER AREA FOR TRADE O C SCALE: AL PLAZA POT TER S STRE 1m 8m 5m 4m 3m 2m 3m 6m LUME TION AA TION BB NEELIM BHARGAV S- 1961706 SCALE: 1m 8m 5m 4m 9m-SERVICES ET WORKING A 1m 8m 5m 4m 3m 2m 5m 7m 9m 10m 6m VOLUME SEC TION AA TION BB-B ROAD N NEELIMA SU NIL- 1961728 BHARGAV S- 1961706 0 1 3 6 PL ANS BHARGAV S- 1961706 N SCALE: 0 1 3 6 SU NIL- 1961728 V S- 1961706 0 V S- 1961706 TONY- 1961736 0 1 3 6 NEELI 0 1 3 6 PL ANS SCALE: 0 1 3 1961728 0 1 3 6 1961728 AL- 1961726 SCALE: 0 3 6 0 1 3 6 1961728 AL- 1961726 1961728 AL- 1961726 SCALE: 1 3 0 1 3 6 NEELIMA S- 1961728 MANYA KEJR WAL- 1961726 PL ANS NEELIMA SU NIL- 1961728 MANYA KEJR WAL- 1961726 SCALE: 0 1 3 TESSLYN TONY- 1961736 M ANYA KEJRIWAL- 1961726 SCALE:EWS LIG MIG HIG PROPOSED MIN. PLOT AREA 40.6% 29.4% 4.4% 25.6% TESSLYN TONY- 1961736 M ANYA KEJRIWAL- 1961726 SCALE:EWS LIG MIG HIG PROPOSED MIN. PLOT AREA 40.6% 29.4% 4.4% 25.6% TESSLYN TONY- 1961736 M ANYA KEJRIWAL- 1961726 EWS LIG MIG HIG PROPOSED MIN. PLOT AREA 40.6% 29.4% 4.4% 25.6% SCALE:EWS LIG MIG HIG PROPOSED 40.6% 29.4% 4.4% 25.6%
S- 1961706
TONY- 1961736
A SU NIL- 1961728
BHARGAV S- 1961706 TESSLYN TONY- 1961736 VIEWS NEELIM A SU NIL- 1961728 SCALE:
MELA TYPOLOGY 1 THEMED AND LOCAL MATERIAL USAGE TYPOLOGY 2 TYPOLOGY 3 14
SCALE:
vIBRANT STREETS SEASONAL

MODELING AND RENDERING

USING REVIT TO CREATE ACCURATE PLANS OF CHRIST UNIVERSITY, KENGERI CAMPUS EXISTING BUILDINGS AND RENDERED ON LUMION AND TWINMOTION OF THE SCHOOL OF ARCHITECTURE BLOCK AND MECHANICAL ENGINEERING BLOCK

04
BIM
15
16

ARC 753 Building Information Modelling

BLOCK

ARC 753 Building Information Modelling

LEVEL 1 LEVEL 2 LEVEL 3 LEVEL 7 LEVEL 6 LEVEL 5 LEVEL 4 17

SECTION SECTION AND ELEVATION

ARC 753 Building Information Modelling

BLOCK

DN DN DN DN 36 m² mezzanine 1 Room Legend mezzanine 36 m² mezzanine 4 36 m² mezzanine 7 36 m² mezzanine 8 81 m² class 14 81 m² class 15 81 m² class 16 81 m² class 17 42 m² corridor 18 DN DN DN DN 36 m² mezzanine 1 36 m² mezzanine 4 36 m² mezzanine 7 36 m² mezzanine 8 Level 1 -17 Level 2 4000 Level 3 8000 Level 4 12000 Level 0 -4000 Level0.5 -3410Level 5 16000 Level 6 20000 Level 2 Level 1 -17 Level 2 4000 Level 3 8000 Level 4 12000 Level 0 -4000Level 5 16000 Level 6 20000 81 m² class 19 81 m² class 20 81 m² class 21 81 m² class 22 38 m² corridor 23 1 : 200 Level 5 81 m² class 19 81 m² class 20 81 m² class 21 81 m² class 22 38 m² corridor 23 Level 6 20000 Level 7 24000 Level 2 4000 Level 3 8000 Level 4 12000 Level 0 -4000 Level0.5 -3410 Level 5 16000 Level 6 20000 Level 7 24000 1 200 Level 5 1 : 200 Level 6 1 : 200 South DN UP UP UP UP 81 m² class 2 81 m² class 3 81 m² class 5 81 m² class 6 Level 0 Level 1 EAST ELEVA
NORTH ELEVATION EAST ELEVATION
BLOCK V
AND ELEVATION
V SECTION AND ELEVATION
V
SCHOOL OF ARCHITECTURE
18
8 G DIGI COURSE INS SCALE 1:200 SECTION A A SECTION AA’ NORTH ELEVATION SECTION BB’ G G+1 G+2 G+3 G+4 EAST ELEVATION BLOCK V 8 SECTION AND ELEVATION ARC 753 Building Information Modelling SCALE 1:200 UP DN UP UP Display GROUND OOR NORTH ELEVATION A EAST ELEVATION 8 GROUP DIGITAL TRANSFORMATION IN ARCHITECTURE OURSE IN SECTION AA’ NORTH ELEVATION A SECTION BB’ EAST ELEVATION BLOCK V SECTION AND ELEVATION ARC 753 Building Information Modelling TION AA’
ENGINEERING BLOCK 19
MECHANICAL
20

GENDER | SPACE | ECOLOGY

URBAN INTERVENTION LOCATION- HALASURU, BANGALORE

DETAILED STUDY ON HOW SOCIAL AND SPACE FACTORS AFFECT A WOMANS BEHAVIOR AND MOVEMENT WERE ANALYZED FOR THIS COURSE. THE GOAL OF IS TO EMPOWER WOMEN TO LOITER AS FREELY AS MEN.

05 8
21
22
22
MISCELLANEOUS
RHINO MODELING PHOTOGRAMMETRY

BHARGAV SHEKHAR PORTFOLIO

Turn static files into dynamic content formats.

Create a flipbook
Issuu converts static files into: digital portfolios, online yearbooks, online catalogs, digital photo albums and more. Sign up and create your flipbook.
Bhargav- Internship portfolio by Bhargav S - Issuu