

CONTENTS
ACADEMIC
Omnigene R&D Centre



Dormitory of Universitas Pembangunan Jaya

Laboratory and Studio of Universitas
Pembangunan Jaya
RM House
OMNIGENE R&D CENTRE


Bogor, West Java Video

Omnigene research and Development Center is a biotechnology research and development facility for plastic waste and wastewater treatment. Omnigene Research and Development Center there are two categories of laboratories, biosafety laboratory level 2 and biosafety level 3. In both laboratories, laboratory modules are applied that can be flexible and adaptive according to research needs.








This research facility is located in a sub-urban area for safety reasons and to minimize the unwanted impact of research activities on the community.



This facility is designed to adapt to the context of the environment. Located in a hilly area, this building utilizes the Cool Valley breeze to cool around the building. Orientation of the building also displays a lot of scenery to reduce the stress level of staff officers and laboratory staff.
Laboratory interiors make extensive use of natural lighting. With the inner courtyard in the middle of the building mass produces natural light to illuminate the interior of the laboratory. maximizing natural lighting results in lower energy usage

Inner courtyard for natural air conditioning and maximize natural lighting for the building. Courtyard Area can be used for communal space.


Water feature as a natural cooling system around the laboratory building. Water in the water feature is the result of purification from waste water.

LABORATORY AND STUDIO
OF UNIVERSITAS PEMBANGUNAN JAYA
Ciputat, South Tangerang









JAYA HALL OF FAME
Jaya Hall of fame tells the journey of Jaya group. the Jaya Hall of fame consists of the founding figures of Jaya Group, the achievements obtained by Jaya journey. Group during its
Jaya Hall of Fame is located between the sport hall and UPJ lab studio building, with the roof and openings forming the logo of the Jaya Group illuminating the room with natural lighting.

Jaya Fall of Fame is designed with the preparation of a sequence that is applied with a ramp from the 1st floor which is in the sports hall which implies the journey of Jaya Group.
UPJ aims to be a sustainable campus. In its design, the sport hall and lab studio are designed to maximize natural lighting and apply cross ventilation and increase greenery to cool the outdoor area to save energy use



DORMITORY OF UNIVERSITAS PEMBANGUNAN JAYA
Status
Competition Entry
Indonesia DfGE Design
Competition 2023
Location
Ciputat, South Tangerang
Team
Bayu Dwicky Nugroho, Nandini Aziza, Dimas
Hendra Prabowo

The side of the locality taken from the Badui culture is applied to the design of buildings made with the concept of Stilt Houses where the lower area is used as a recreation area like co-working space and cafe. Meanwhile, in terms of the appointment of Sawah Baru, it is applied with a layered terrace that raises the theme of Agritecture that contained in the balcony area of each unit.


ccentuates the side of the locality ite which is Banten that identical to his site also known as Sawah Baru application side of this concept is ut also applied to all applications in uildings that are made layered and ments it.

UPJ Dormitory has a capacity of up to 300 students in each dormitory building. each room can accommodate 2 students. facilities inside there are 2 single beds, 1 shared bathroom in the unit, each student gets a table, wardrobe, and buffet.
Maximizing outdoor space in buildings for green areas. UPJ dormitory maximizes natural ventilation for outdoor areas to reduce energy use in accordance with UPJ's vision and mission to be a sustainable campus.



RM HOUSE



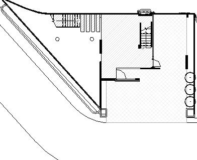
GROUNDFLOOR

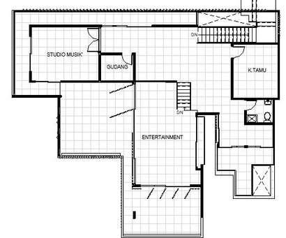
FIRST FLOOR



2nd FLOOR
3rd FLOOR


The house seamlessly blends the outdoor and indoor areas. Natural material and greenery sets a natural tone. The backyard is designed to give the experience of how natural lighting and time interact with architecture

THE OTHER PROJECT




