HUUR: Langestraat 233, 's-Gravenzande

Page 1

LANGESTRAAT 233

<PLAATSNAAM> 'S-GRAVENZANDE

HUUR

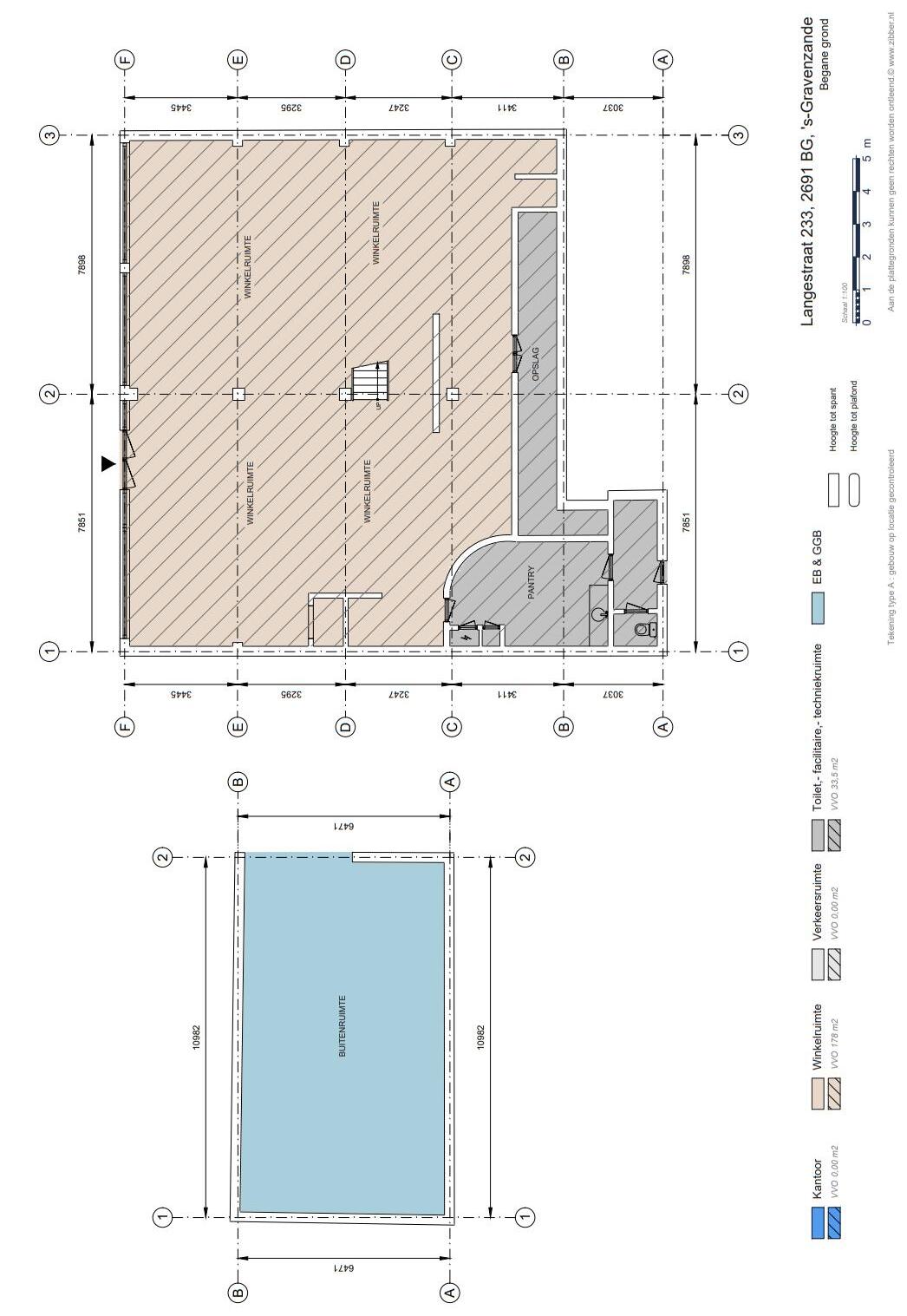
Aan de Langestraat 233 in ’s-Gravenzande komt een winkelruimte van ca. 353 m² VVO groot beschikbaar voor de verhuur! Het object is uitermate geschikt voor onder andere detailhandel activiteiten en komt medio Q4 2024 beschikbaar.

WINKELRUIMTE

Het betreft een hoogwaardige winkelruimte van ca. 353 m² VVO groot verdeeld over twee verdiepingen, zijnde ca. 212 m2 winkelruimte op de begane grond en ca. 141 m2 VVO op de verdieping. De winkelruimte komt medio Q4 2024 beschikbaar voor de verhuur Het uitgangspunt is dat de winkelruimte casco wordt opgeleverd, met dien verstande dat het overige opleveringsniveau in overleg is. De winkelruimte is onder meer voorzien van:

• Toilet;

• Pantry;

• Ledverlichting;

• 2x airco-verwarmunits op de begane grond;

• 1x airco-verwarmunit op de verdieping;

• Kunststofkozijnen v.v. dubbel glas;

• Frontbreedte van ca. 15,5 meter;

• Betonnen verdiepingsvloer;

• Achteringang;

• Data- en elektra aansluitingen;

• Cv ketel (welke momenteel defect is).

Aan de achterzijde is parkeren mogelijk op eigen terrein en is ruimte voor ca. 2 personenauto’s.

BOUWJAAR

Het pand is in 1975 gebouwd en heeft meerdere moderniseringen ondergaan.

BESTEMMING

Conform vigerend bestemmingsplan ‘’Centrum ’s-Gravenzande’’, onherroepelijk vastgesteld op 25-09-2013, zijn op de locatie gemengde activiteiten toegestaan. De voor 'Gemengd- 1' aangewezen gronden zijn bestemd voor:

a. het wonen;

b. detailhandel en dienstverlening uitsluitend op de begane grond met een maximale vloeroppervlakte van 400 m² per vestiging;

c. kantoren met een maximaal bvo van 1.000 m² per vestiging;

d. bedrijven uit ten hoogste categorie B1 van de Staat van Bedrijfsactiviteiten 'functiemenging';

e. maatschappelijke voorzieningen;

f. horecabedrijven uit ten hoogste categorie 1 van de Staat van Horeca-activiteiten mits deze inpasbaar is in de omgeving en een representatieve uitstraling heeft.

LIGGING EN BEREIKBAARHEID

Het object is gelegen aan de Langestraat welke zich in het centrum van ’s Gravenzande bevindt. Het winkelcentrum is goed bereikbaar met de auto en met openbaar vervoer (lijnbus 31 of 35, halte Langestraat of Zandeveltplein). Het parkeerdek boven de Jumbo en Lidl is goed voor 200 gratis parkeerplaatsen. Tevens is hier een roltrap en lift aanwezig.

In de directe omgeving van het centrum zijn eveneens voldoende mogelijkheden om gratis te parkeren en is het winkelcentrum fietsvrij. Er zijn diverse fietsenstallingen verspreid rondom het centrum, zodat het publiek altijd op de gewenste plaats het winkelcentrum in kan lopen. Daarmee is het een uitstekende uitvalsbasis voor de ondernemer die actief is in de regio Westland en omstreken.

‘s-Gravenzande heeft bijna 23.500 inwoners (2023), is gelegen in het westen van de provincie Zuid-Holland en maakt deel uit van de gemeente Westland. De gemeente telt per 1 april 2023 bijna 108.600 inwoners. De gemeente Westland bestaat uit elf kernen (o.a. ’s-Gravenzande, Naaldwijk, Monster, De Lier, Wateringen) en qua inwonertal is ‘s-Gravenzande de grootste kern binnen de gemeente Westland. De steden Den Haag, Delft en Rotterdam liggen binnen een half uur afstand. Vanuit alle kernen in het Westland is ’s-Gravenzande zowel per openbaar vervoer als per auto uitstekend bereikbaar.

HUURPRIJS

De huurprijs van het object bedraagt € 57.500,- per jaar excl. BTW.

SERVICEKOSTEN

Geen. Huurder is zelf verantwoordelijk voor het afsluiten van contracten met de desbetreffende nutsbedrijven.

ZEKERHEIDSSTELLING

Een waarborgsom of bankgarantie ter grootte van een betalingsverplichting van 3 maanden huur, te vermeerderen met BTW.

BESCHIKBAAR

Het object komt medio Q4 2024 beschikbaar.

ENERGIELABEL

Het object beschikt over Energielabel D en is geldig tot 19 februari 2034.

HUURINGANGSDATUM

In overleg.

HUURTERMIJN

Uitgangspunt is een huurovereenkomst voor 5 + telkens 5 jaar. Overige termijnen zijn in overleg met de eigenaar.

HUUROVEREENKOMST

De te sluiten huurovereenkomst zal worden opgemaakt conform het model dat door de Raad van Onroerende Zaken met bijbehorende Algemene Bepalingen is vastgesteld in september 2012, aangevuld met specifieke bepalingen vanuit verhuurder

HUURBETALING

Per maand vooruit.

HUURPRIJSHERZIENING

Jaarlijks, voor het eerst één jaar na datum huuringang, op basis van de wijziging van het maandindexcijfer volgens de consumentenprijs index (CPI) reeks alle huishoudens (2015 = 100), gepubliceerd door het Centraal Bureau voor de Statistiek (CBS), met dien verstande, dat de huurprijs nimmer zal dalen beneden de laatst geldende huurprijs.

OMZETBELASTING

Over de huurprijs is BTW verschuldigd. Uitgangspunt bij het tot stand komen van een huurovereenkomst is, dat huurder het gehuurde voor 90% of meer gebruikt voor met BTW belaste prestaties. Huurder zal zich zoveel als in zijn vermogen ligt inspannen om ervoor te zorgen dat niet van dit standpunt wordt afgeweken. Indien op enig moment een situatie aan de zijde van de huurder intreedt waardoor geen recht meer wordt gedaan aan dit uitgangspunt, is huurder gehouden om het daaruit voor verhuurder voortvloeiende nadeel te vergoeden.

COURTAGE

Indien door bemiddeling van Batenburg Bedrijfshuisvesting bij dit object een transactie tot stand wordt gebracht, dan zult u ons hiervoor geen kosten of courtage verschuldigd zijn.

VOORBEHOUD

Eventuele transacties dienen ter goedkeuring voorgelegd te worden aan opdrachtgever c.q. eigenaar van het pand.

ALGEMEEN

De informatie omtrent voormeld onroerend goed is met zorg samengesteld, maar voor de juistheid ervan kan door Batenburg Bedrijfshuisvesting geen aansprakelijkheid worden aanvaard, noch kan aan de vermelde gegevens enig recht worden ontleend. Nadrukkelijk is vermeld dat deze informatieverstrekking niet als een aanbieding of offerte mag worden beschouwd. Genoemde metrages in de brochure zijn gemeten conform NEN-2580 richtlijnen.

COLLEGIALE VERHUUR

Dit object wordt collegiaal aangeboden met RemmersVanGorkom Vastgoedadviseurs.

BATENBURG BEDRIJSHUISVESTING

Honderdland 1042, 2676 LV MAASDIJK

0174 282 555

www.batenburg-bhv.nl

info@batenburg-bhv.nl

REMMERSVANGORKOM VASTGOEDADVISEURS

Naarderpoort 2, 1411 MA NAARDEN

035 303 3200

www.remmersvangorkum.nl

tim@remmersvangorkom.nl

Turn static files into dynamic content formats.

Create a flipbook
Issuu converts static files into: digital portfolios, online yearbooks, online catalogs, digital photo albums and more. Sign up and create your flipbook.
HUUR: Langestraat 233, 's-Gravenzande by Batenburg Bedrijfshuisvesting - Issuu