PORTFOLIO

Page 1


SAMPLES

FERNANDO PIAZZA WORK

Our lives are constantly being defined by the people and the places we interact with. As an architect and urban planner I believe that through the design of buildings and cities we can inspire people to embrace the remarkable and become better versions of themselves.

“Architecture is the silent narrator of our lives”

FERNANDO PIAZZA

Prisma Residence

Year:

Program: Area:

Location:

Comission:

Participation:

Status: 2022

Single family house

400m²

Alta Floresta - MT, Brazil

Independent Project

Conceptual design / architectural project / 3D

modeling and rendering

In progress

ABSTRACT

The 400m² residence designed to accomodate a six-members family in Mato Grosso, Brazil, is characterized by a geometric configuration that ensures a high degree of privacy to the dwellers. While the primary emphasis of the front facade is detachment from the main street, the rest of the house is flooded with natural light and cross-ventilation through the carefully positioned openings. The design not only helps reducing energy consumption but also maintaining a cool and well-lit ambience all year long.

front main facade rendering

elevation north side

elevation west side

elevation east side

elevation south side

axonometric

caZa

Year:

Program: Area:

Location: Academic

Produced items: 2017

Architectural project of a single family house

400m²

Lages - SC, Brazil at UNIFACVEST

Professor: Caroline Ramella

Conceptual design / technical drawings / detail drawings / physical and digital models / renderings

ABSTRACT

The caZa residential project sought to disconnect from the conventional norms of local architecture to translate the contemporary lifestyle of a young family. The project embodies in its design the creation of spaces characterized by the alternating height and shape of the ceilings and walls, creating a distinct living experience in each room.

front main facade rendering

cross section

axonometric

Casarão Juca Antunes

Year:

Program:

Area:

Location: Academic

Produced items: 2018

Architectural intervantion and restoration project

2041m²

Lages - SC, Brazil at UNIFACVEST

Professor: Altair Bau

Conceptual design / technical drawings / detail

drawings / digital model and renderings

ABSTRACT

Built in 1850, the Casarão Juca Antunes is one of the last examples of Luso-Brazilian architecture in the city of Lages, and was declared a historical heritage site by the state government in November, 2001.

The historic building of approximately 245 m² is one of the oldest in the region and was originally the residence of the army colonel and police chief Henrique Ribeiro Córdova. The premises also served as the residence of state deputy Colonel José Antunes Lima (Juca), after whom the building is named.

The intervention and restoration project aims to recover the building’s original architectural features, maintaining its uniqueness and historical importance in the midst of a city that is constantly changing. In addition, the project seeks to give a new use to the landmark by the creation of an annex which, alongside the historical house, will serve as an art museum for the comunity.

front main facade rendering

Historical Context

The urban layout of Lages, as in most of the cities built in the 18th and 19th centuries, has still a strong remaining stylistic concept from the colonial period. These characteristics are easily noticed through the architectural features of the buildings and in the format of the plots derived of a strict urban plan.

The Casarão Juca Antunes is one of the few remaining buildings that greatly represent the Luso-Brazilian architecture in the city. However, due to poor investment in conservation, the house is suffering severely from degradation as a result of prolonged exposure to adverse weather conditions.

The building which was interdicted since 2013, had walls presenting several cracks and moisture, broken wooden boards on the roof and floor, mostly due to the roof’s advanced state of deterioration. The house has passed through several owners and has been used for different purposes during its existence, which has led to changes in its internal layout, as well as the use of materials that partially de-characterize the original features.

photography edifice is in a state of advanced deterioration, 2015

floor plan to be demolish

floor plan to be built

elevation main facade

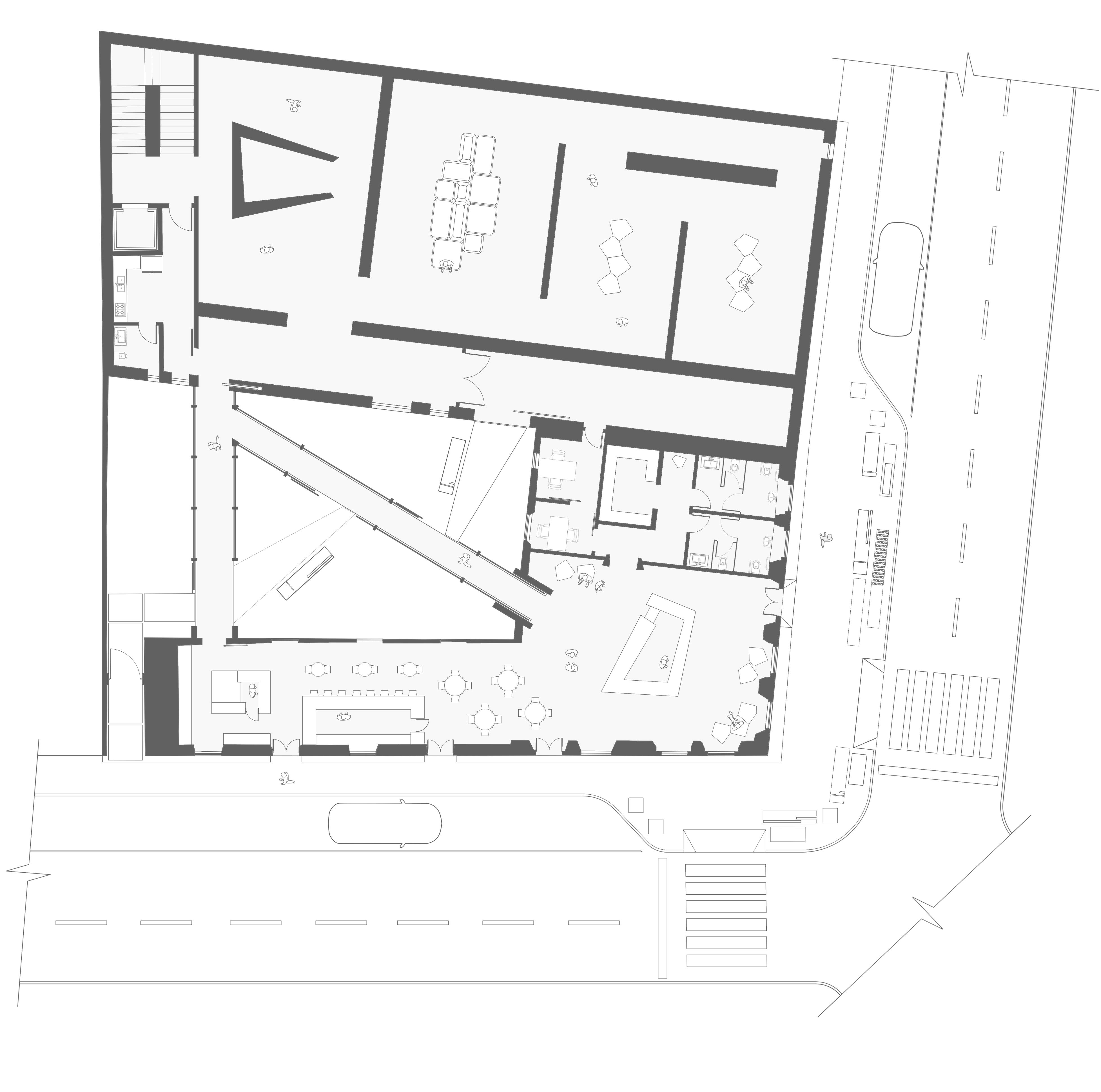
Ipanema Daycare

Year:

Program:

Area:

Location: Academic

Produced items: 2017

Daycare educational facility 3618m²

Lages - SC, Brazil at UNIFACVEST

Professor: Cintia Zanqueta

Concept design / technical drawings / detail drawings / physical and digital model / renderings

ABSTRACT

The project, covering more than 3600m², was envisioned to serve as a vibrant educational hub for the central community of Lages, catering to children aged one to six years old. The primary goal was to create an engaging architectural composition that would captivate the imagination of the young learners, both in innovative design and thoughtful use of spaces.

main facade digital conceptual sketch

The daycare center is composed of three key buildings, serving as the main areas for the daily activities. The buildings are connected by an indoor garden that is flooded with sunlight all year round through the glass and metal structure. The space also provide a welcoming area for numerous activities during winter, when going outdoors is less feasible.

The second floor of the premises is dedicated to the daycare’s administrative activities and teachers’ lounge area. Additionally, the underground level where the parking lot is located, can be easily accessed from all floors and provides parking space for both employees and visitors.

The design of the classrooms, conceived with the intention of creating a strong connection between the children and the green environment, features large glass openings that blur the line between indoor and outdoor spaces, creating a strong connection with nature.

top view roof
cross section
elevation main facade
elevation west facade

INTERIOR DESIGN

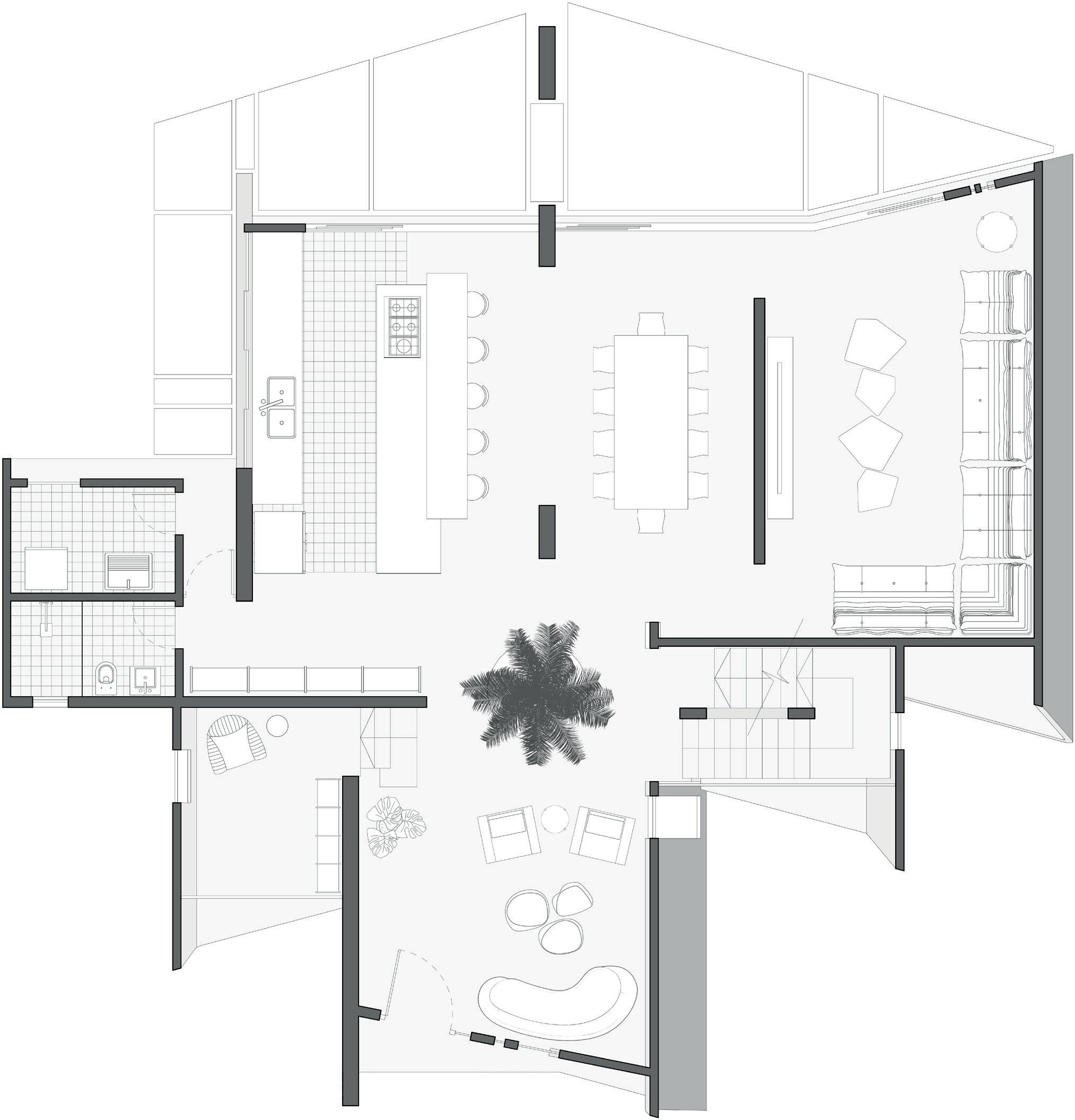
Social Area - Topazio Residence

Year:

Program: Area:

Location:

Comission:

Produced items: 2018

Social area of a single-family apartment

116m²

Vacaria - RS, Brazil

Tais Trevisan

Conceptual design / digital modeling and rendering

Master Suite - Hotel Fazenda - Campos da Serra

Year:

Program: Area:

Location:

Comission:

Produced items: 2019

Master Suite design for a five start hotel 54m²

Lages - SC, Brazil

Larissa Pedrozo

Conceptual design / digital modeling and rendering

PAINTINGS

The Chemist, 2022 acrylic on wood [40x60cm]
Blue, 2021 acrylic on canvas [60x80cm]
PHOTOGRAPHY
Berliner Dom, 2022 Berlin - Germany
Tietgen Dormitory, 2021 Copehagen - Denmark

Turn static files into dynamic content formats.

Create a flipbook
Issuu converts static files into: digital portfolios, online yearbooks, online catalogs, digital photo albums and more. Sign up and create your flipbook.
PORTFOLIO by Fernando Piazza - Issuu