Ar. Amarnath Architecture Portfolio

Page 1


Dob 08 /04 /1999

Place Thrissur ,Kerala ,India

Phone +91 8848769375

Email amarnatharchi@gmail.com

languages English, Hindi , Malayalam

INTERESTS

Form Developenment | 3dModelling

Sketching | detailing| Visualizing | Painting | Set designing |table tennis | Swimming | Travelling| Adventure | welcoming new experience |

EDUCATION

2018 - 2023 |

School Of Planning and Architecture , Bhopal

2015 - 2017 | Don Bosco Higher Secondary School , Kerala

WORK EXPERENCE

Internship Jan2022 – Aug 2022

MetaspaceArchitects kochi,kerala

worked on the Caspian Tech Park, residential, and apartment projects, as well as product design, all using Revit

junior architect Sept2023 – Nov2024 lijorenyarchitects thrissur,kerala achievement thrissur,kerala

contributed on various projects handling working drawings, detailing, fabrications, rendering, sitevisits and coordinated with site and consultants

Completed a residential project for a doctor in Thrissur ,Managed the project from concept to completion.

TECHNICAL SKILLS

WORKSHOPS

Drafting | Autocad Bamboo Design | Spab BIM | Revit

3d Modeling | Sketchup Rhino

Visualization | Lumion Enscape V ray

Presentation | Photoshop Indesign Illustrator

2019 | Heritage Mapping | Thrissur ,Kerala

2021 | Clt Induction | Online Product design | Online

2022 | NPTEL+ Workshop IIT Roorkee | Offline

COMPETITIONS

2018 | Lik Trophy | Nasa | Top 10 Ucp Trophy | Nasa | Top 6

2019 | The Lunchbox | Office Design

Idha | Product Design | Top 3

2020 | Encamp | Transit Shelters Hive Craft | School Design Insdag | Hospital Design

This architectural portfolio, designed by Amarnath PS, is a compilation of selected works spanning from 2018 to 2024.

JUNIOR ARCHITECT

Auto Spark

Multi Brand Car Showroom

Office Design

Architecture Thesis

Center for fine arts and drama

Cascading House

rendering+electrical layout

Residence

flooring detail + metal fabrication detail

other works

rendering + illustrations

metal fabrications

screen design detail + bar counter detail

product design independent residential project

set design + art work

vararuchi events

AUTO SPARK

MULTI BRAND CAR SHOWROOM

SEMESTER FIVE | KERALA, INDIA

Breif : Design a car showroom along with service section in your hometown. An appropriate location and brand should be picked after doing a market analysis.the design should adhere to the material palette supplied by the selected brand and utilise long span structural solutions. In addition, the showroom and service area should be designed so that they may work together seamlessly.

Programme extrusion based on circulation showroom and service seperated

parking segregation of parking acccourding to users

levels mezzanine floor as admin connected to workshop

north light truss for diffused sunlight

final form

concept sketch

The multi-colored facade symbolizes the versatility of the multi-brand, which stands out among the competitors.

LUNCH BOX

RETHINKING OFFICE SPACES

COMPETITION | BANGLORE, INDIA

Brief : competition was to design for this generation of entrepreneurs and their aspirations, a small scale collaborative startup business office for young entrepreneurs in Information & Technolog Sector.

Programme

After off set and hight restriction

Levels

Split level for transitional experience and for basement access

Spaces

Offering best view to lakeside

Energy efficenty

Stack ventilation

Pergola

Creating a biophilic environment

Final building

RECREATIONAL

SERVICE CORE

SMALL OFFICE

LARGE OFFICE

WORK CLUSTER

DIGITAL LIBRARY

LIBRARY

CONFERENCE HALL

SEMINAR HALL

ADMINISTRATION TOILETS

PARKING

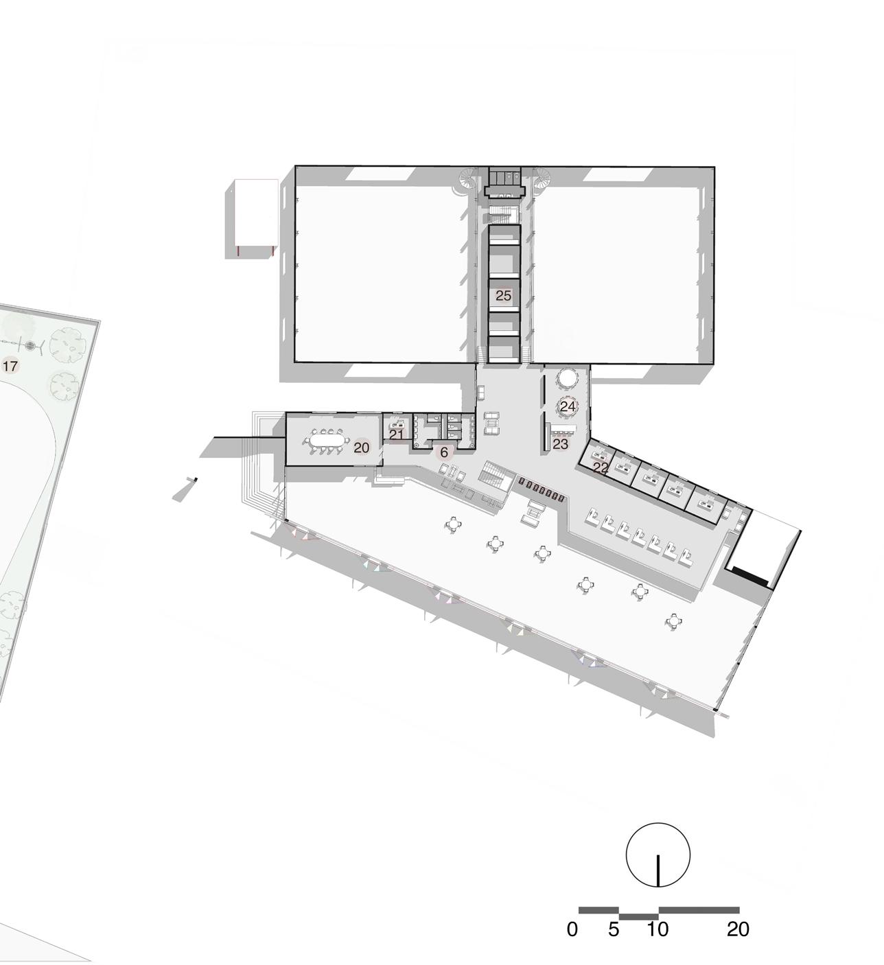
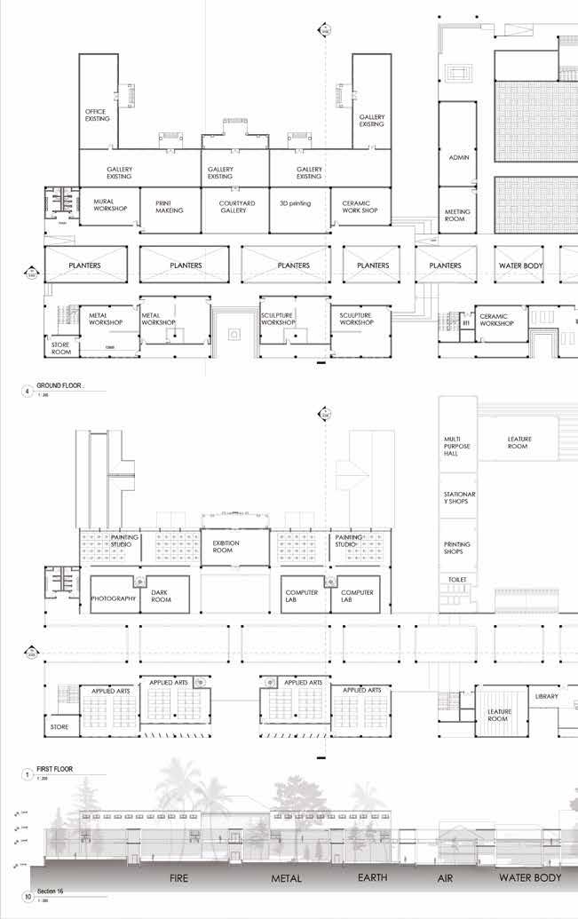
CENTER FOR FINE ARTS AND DRAMA

ARCHITECTURE THESIS

ACADEMICS | THRISSUR,KERALA, INDIA

background : Shaping the educational experience in fine arts and drama demands a new approach and pedagogy. Many colleges in the Indian subcontinent have failed to deliver effective results, without considering cultural identity. In Kerala, specifically, the lack of custom-designed spaces for fine arts and drama hinders their educational needs. Incorporating the cultural context into the design can foster creativity, expression, and belonging. By integrating traditional aesthetics, materials, and spatial arrangements, colleges can enrich the educational experience and nurture the talents of aspiring artists and performers The project aims to create an advanced learning hub for fine arts and drama, offering enhanced opportunities for individuals to excel. By integrating the community and designing diverse spaces to foster creativity, the project seeks to establish a new focal point and gathering space through architecture.

THE CONCEPT IS INSPIRED BY A PAINTING TITLED “KAALAM” (TIME)

which features eight distinct frames that open up different life experiences necessary for enhanced creativity. this painting is interpreted in the building as an axis of time which has 8 different courtyards which has 8 elements of nature to activate all the senses .

amphitheater plan

monet
first floor plan
artist residency cafae
auditorium

The following works are compilation of selected works done at lijorenyarchitects

Cascading House

rendering+electrical layout

Residence

flooring detail + metal fabrication detail

rendering + illustrations

other works metal fabrications

screen design detail + bar counter detail

Cascading House

junior architect | lijoreny architects

5755 sqft | manjeri, kerala

worked on creating working drawings,electrical drawing,flooring, metalfabrication, detailing, rendering, sitevisits and coordinated with site and consultants

visulisation

residence at manjeri

junior architect | lijoreny architects

8500 sqft | manjeri, kerala

worked on creating working drawings,electrical drawing,flooring, toiletlayout, metalfabrication, detailing, sitevisits and coordinated with site and consultants

Flooring - Part Details

residence at manjeri

junior architect | lijoreny architects

8500 sqft | manjeri, kerala

worked on creating working drawings,electrical drawing,flooring, toiletlayout, metalfabrication, detailing, sitevisits and coordinated with site and consultants

Flooring - Swimming Pool

Vaulted residence

junior architect | lijoreny architects

2500 sqft | thrissur, kerala

worked on creating working drawings,endering, detailing, sitevisits and coordinated with site and consultants

Tight fold house

junior architect | lijoreny architects

3770 sqft | thrissur, kerala

worked on creating detailing ,completetion drawing, detailing, sitevisits and coordinated with site and consultants,illustration

Crimped roof house

junior architect | lijoreny architects

6788 sqft | thrissur, kerala

worked on creating illustration

Tight fold house illustration
Crimped roof house illustration
metal screen visualisation
bar counter visualisation

Other works

product design

protea the green falls

independent residential project

set design + art work

PROTEA

A PRODUCT DESIGN COMPETITION IDHA | INDIA

Brief:

Design a modular product that addresses the needs of the new normal during the epidemic, improving home spatial quality while offering flexibility and adaptability.

Proposal:

This modular furniture system, inspired by building toys, enables users to create a variety of functional pieces. Its customizable design maximizes space, offering endless possibilities for different furniture types in a limited area.

THE GREEN FALLS

INDEPENDENT PROJECT

DOCTORS RESIDENCE | THRISSUR,KERALA

Designed and executed a residential project for a doctor, overseeing the entire process from concept to completion

M I R A G E

STAGE BACK DROP DESIGN

FREELANCE WORK | KERALA,INDIA

Breif :The client was a temple organisation group at Thrissur, Kerala. The task was to provide a symbolic backdrop for the cultural events .

Proposal :The design inspired from lotus flower, which is a common motif in all temple lakes. In Hinduism, the lotus is a sign of prosperity and purity. material used was forex sheet with vinyl print which was supportes with metal farication .

THE ENLIGHTMENT

ART WORKS ( pooram )

Oil on canvas

Turn static files into dynamic content formats.

Create a flipbook
Issuu converts static files into: digital portfolios, online yearbooks, online catalogs, digital photo albums and more. Sign up and create your flipbook.